LES FORMES CURVILIGNES DE SANAA

Limite : (n.f.) Ce qui marque la séparation entre deux étendues contiguës, ou qui termine un territoire, un domaine.1
En d’autres termes, la limite est ce qui sépare un ou plusieurs éléments les uns des autres. En architecture, la notion de limite se rapporte aux éléments de séparation des espaces, notamment entre le “dedans” et le “dehors”. Le mur est peut-être ce qui définirait de la manière la plus concrète cette limite si nous parlons d’architecture et de spatialité. Il matérialise dans un premier temps un élément opaque, permettant de délimiter et donc de séparer et définir des espaces, qu’ils soient intérieurs et/ou extérieurs. Il agit comme une barrière physique et sensorielle, qui limite nos mouvements et notre regard au-delà de cette séparation. A travers la fenêtre, l'œil perçoit l’intérieur (ou l’extérieur), car la matérialité de la séparation est différente. Le mur prend différentes valeurs en fonction de sa matérialité : celle de la transparence ou de la translucidité. Dans ce cas-là, il existe une sorte d’ambiguïté entre la séparation et le rassemblement. Ce changement matériel apparaît à la fois comme une séparation physique de l’espace (entre deux espaces intérieurs ou deux espaces intérieurs et extérieurs), tout en gardant une certaine connexion avec le paysage environnant. Un paysage que l’on perçoit à travers la matérialité, et qui s’étend jusqu’à l’intérieur du bâtiment.
1 Académie Française, 9e édition du dictionnaire de l'Académie Française
2 Franck Lloyd Wright, An Autobiography, page 128, citation de Jacques Lucan, Composition non-composition, 2009, page 386 3Ryue Nishizawa, Continuity System, A Conversation With Kazuyo Sejima & Ryue Nishizawa, Inmaculada Maluenda & Enrique Encabo, El Croquis, 179-180, page 19
"Ma conception du « mur », disait-il, n’était pas qu’il soit la paroi d’une boîte. C’était une clôture de l’espace, donnant, seulement lorsqu’il en était besoin, une protection contre l’orage ou la chaleur. Mais elle ne devrait aussi faire entrer dans la maison le monde extérieur et permettre à l’intérieur de la maison d’aller dehors. C’est dans ce sens que je travaillais à l’élimination du mur comme mur pour l’amener à la fonction d’un écran, comme moyen d’ouvrir l’espace […]"2
Là où la fenêtre pourrait s’apparenter à un petit tableau vers le paysage, Wright qualifie ici le mur d’écran, permettant à l’espace intérieur de s’ouvrir sur l’espace extérieur. Un moyen de rassembler l’humain et la nature semblable à ce que Sejima et Nishizawa tentent de reproduire au travers de leur travail.
“In Kanazawa, the glass facade was only a line that separated the interior and exterior clearly and at the same time, created a direct relationship between the two environments."3
La courbe comme limite
Le musée d’art contemporain du XXIe siècle de Kanazawa a été pensé comme une continuité de l’environnement. Sa forme circulaire n’induit pas de façade avant ou arrière : elle est unique et continue. Elle agit à la fois comme un mur et une fenêtre, et constitue une limite perceptible à travers laquelle les visiteurs depuis l’extérieur, peuvent apercevoir les œuvres exposées dans le grand espace liquide du musée. La limite tend à donner l’impression d’une continuité visuelle entre artificiel et naturel. Elle joue sur nos sens et en devient presque abstraite.
En effet, cette limite pourrait aussi bien se traduire par la toiture. Dans le projet de la Serpentine Gallery, on ne peut pas la toucher. Pour autant, elle permet de séparer un espace ouvert et un espace couvert. La limite est “horizontale”. Dans notre cas, nous nous intéressons plutôt à la limite “verticale”, et plus précisément au mur. Jusqu’ici, le mur apparaissait comme un élément transparent, dissout dans l’environnement. Il amenait finalement à rassembler le monde extérieur et intérieur en un seul et même monde.
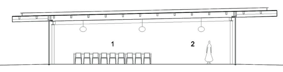
Fig.2 : Glass Pavilion, plan schématique des positionnements, dessin des auteurs
Cette limite transparente qui permettait de comprendre distinctement les espaces, se retrouve dans d’autres bâtiments plus flous. Le musée du Glass Pavilion, comme à Kanazawa, est constitué de parois transparentes en façade. A la différence de Kanazawa, les espaces intérieurs sont également séparés par du verre. Se manifeste alors une perception complètement différente et changeante en fonction du positionnement de l’usager dans le musée. En effet, la superposition de parois vitrées, la courbure des angles, et la réflexion de la lumière rendent certaines parois opaques. La limite est alors ambiguë. Elle change à mesure que l’usager se déplace. Dans l’exemple du positionnement “a”, la limite du spectateur est claire : deux murs horizontaux se succèdent entre lui et l’extérieur. Il aperçoit donc l'environnement distinctement. Dans le positionnement “b”, la limite est légèrement plus floue, mais ne
La courbe comme limite
permet pas encore de brouiller notre perception. Enfin, dans le positionnement “c”, la perception est presque complètement stoppée par la succession de parois vitrées. Les couches de verre se superposent tellement que la perception est brouillée entre la réflection des autres pièces et ce qui existe réellement plus loin. Il devient alors difficile de comprendre les espaces et leurs accès. Le verre joue ici le rôle de matériau transparent, translucide et opaque en fonction de l’ensoleillement et donc de la réflection de la lumière sur les parois. En effet, même depuis l’extérieur, la lumière reflète tellement sur le verre qu’il en devient presque impossible de voir l’intérieur.
“The walls in traditional Japanese buildings are very thin and the space is basically very transparent because there is an independent frame, the walls are not load-bearing. [...] the space is very transparent and bright [...].”4
Une fois de plus et bien que rapportée à la modernité, l’architecture du studio est ancrée dans la tradition japonaise. Les architectes puisent leurs inspirations au sein de cette architecture avec laquelle ils ont grandi. Ici, Nishizawa parle des parois traditionnelles en papier washi, translucides et lumineuses. Dans la Villa Katsura (Fig.6), le bâtiment est un immense espace neutre, dans lequel sont positionnées des parois amovibles qui délimitent ainsi plusieurs espaces. Lorsqu’il fait chaud, les parois sont déplacées, et laissent passer la lumière, le vent et les sons extérieurs.
4 Ryue Nishizawa, A Conversation With Kazuyo Sejima And Ryue Nishizawa, Juan Antonio Cortés, Septembre 2007, El Croquis n°139, page 9-10
En effet, Sejima et Nishizawa sont très attachés à ce système de pensée et à la relation profonde entre l’humain et la nature ; et c’est ce qu’il tentent de conserver au sein d’une nouvelle époque. Le processus de fabrication de la limite se fait finalement instinctivement. Il y a une sorte d’aller retour entre ce que le verre est, et comment on le traite différemment.
Cette distinction / non-distinction de la limite passe également et avant tout par le fait qu’ils cherchent à travailler une atmosphère et des émotions ressenties au sein d’une composition spatialement intéressante. En effet, la limite sert simplement à ajouter un nouvel environnement à celui que les architectes créent euxmêmes. Cette recherche d’atmosphère particulière est aussi permise grâce à la création d’espaces neutres, dénués de toute vérité structurelle.
Parler de neutralité de la structure revient à la définir comme étant non déterminante dans l'aspect du projet. Il ne s'agit pas de rendre la structure sans intérêt, mais plutôt de ne pas lui accorder autant de valeur pour mettre en avant d'autres éléments de l'architecture.
Jusqu’à présent, toutes les thématiques développées par SANAA gravitent autour de l’usage de la courbe. Elle leur permet de créer des espaces complexes et fluides. Dès lors que l’on s’intéresse à la structure en revanche, elle semble être mise de côté. On observe en effet que la courbe, à quelques exceptions, ne porte pas. C’est en partie dû au fait que l'agence travaille essentiellement en plan, et utilise la courbe de la même façon. Le plan est très souvent le résultat d’une simple extrusion des formes dessinées. La structure porteuse est aussi souvent composée de poteaux suivant soit une trame orthogonale, soit un placement non-orthogonal mais permettant d’optimiser le nombre de porteurs. Ils supportent des poutres majoritairement rectilignes dans la charpente.
Fig.2 : Centre culturel Grace Farm, la trame structurelle de la toiture, dessin des auteurs
Fig.3 : Centre culturel Grace Farm, coupe transversale schématique, dessin des architectes, https://www.archdaily.com/
Si l’on s’intéresse à la structure du Grace Farm Cultural Center, on remarque en premier lieu un rythme régulier en plan des poutres le long du projet. En bord de toiture, une gouttière file tout le long du bâtiment. Accrochée aux poutres, elle permet d’unifier le bâtiment de l’extérieur pour ne montrer qu’un volume courbe continu, et non un volume courbe composé de multiples fragments droits. La reprise des charges verticales est assurée soit directement par des poteaux métalliques, soit par une poutre métallique reposant elle-même sur des poteaux et servant à délimiter les pièces du projet. En suivant ce procédé, la disposition des porteurs se fait de manière organique car ils suivent la trame des poutres déformées par le tracé du projet.
Le Rolex Learning Center de l’EPFL à Lausanne, est un autre exemple du travail structurel de la courbe. En effet, la dalle inférieure du bâtiment est faite de deux coques en béton armée, tandis que la dalle de toiture est faite d’une structure mixte acier / bois lamellé-collé. La structure en toiture suit la trame des poteaux : elle est orthogonale en plan mais s’adapte en réalité en trois dimensions pour suivre la pente au sol. La courbe est donc ici bien présente en structure
VITRAGE
Double vitrage isolant (modules de 2,25 x 3,25m)
CLOISONS Plaques de plâtre
STRUCTURE
Pannes courbées en bois (entraxe 1,5m)
Traverses métalliques IPE 400 (entraxe 9m)
Poteaux métalliques ronds (diamètre 127mm)
COQUES
Coque 1 en béton armé 600 mm (4 arcs sous-tendus de 30 à 40 m)
Fig.4 : Rolex Learning Center, Axonométrie de la structure du toit, Maxime Rousseau, Pourquoi l’Architecture de SANAA s’exporte-t’elle ?, Mémoire de Master, 2013, page 39
Coque 2 en béton armé 600 mm (7 arcs sous-tendus de 55 à 90 m)
dans le plan vertical. Sur le plan horizontal, seuls les patios (et quelques pièces intérieures) ont une forme de goutte. Un profilé métallique sur mesure interrompt la trame pour y délimiter l’envergure de chacun. On se rend bien compte à travers ces exemples que le domaine de la structure est également celui de la rationalité et ne laisse donc pas de place à autant de liberté que le feraient les dessins des formes produites par l’agence. La structure est réfléchie conjointement avec l’ingénieur du projet Mutsuro Sasaki. Ce dernier travaille à leur proposer des moyens d’exprimer leurs courbes au travers de solutions rationnelles. C’est à lui que revient la charge de trouver de nouveaux systèmes pour faire exister ces courbes naturelles à l’aide des qualités plastiques de chaque matériau. Ainsi, la seule modalité d’existence de la courbe dans la structure des projets et notamment en toiture, est au point de rencontre entre la courbe libre et la structure rationnelle. Elle créée une connexion particulière et nécessite un assemblage complexe et multipartite, souvent invisible, permettant de simplifier au mieux sa partie visible.
Ce qui permet à SANAA de simplifier autant le lien entre curviligne et structure, c’est l’emploi récurrent de systèmes porteurs ponctuels. Cela leur permet de distinguer facilement les éléments porteurs fixes des éléments de partition, courbes et aux formes plus libres et variées. Cette manière de concevoir les espaces se rapporte à l’architecture traditionnelle japonaise, où l’on distingue la structure porteuse en bois
des panneaux de partition en papier. La charpente repose toujours sur un système porteur ponctuel, au sein d’espaces définis et partitionnés par les panneaux en papier raccrochés à la structure. On distingue donc les éléments de partition de la structure. Sejima et Nishizawa vont plus loin en distinguant totalement les parois du système porteur, manière de faire propre à la modernité établie notamment par Le Corbusier avec sa maison Dom-Ino. On retrouve aussi des similitudes avec la tradition japonaise dans la manière de concevoir la matière. Les structures et parois fines et légères construites en relation avec le climat, se retrouve dans des projets même réalisés en dehors du Japon. La légèreté est associée à des matériaux modernes, et les performances de structure porteuse sont sans cesse éprouvées au maximum. Le cas du bâtiment de l’EPFL que nous avons évoqué plus tôt traduit cela. Les poteaux sont extrêmement fins. Pourtant, leurs 12,7 centimètres de diamètre suffisent à supporter des poutres dont l’épaisseur varie entre 40 et 80 centimètres, et franchissant des portées pouvant attendre 80 mètres ou plus. Chaque matériau utilisé est toujours travaillé dans des dimensions les plus élancées pour atteindre un degré de légèreté aussi élevé que possible.
S’il est possible d’établir de nombreux liens à l’architecture japonaise chez SANAA, leur travail de la structure en revanche mélange les aspects traditionnels évoqués avant avec des considérations architecturales modernes, créant dès lors un point de rupture avec la tradition japonaise. En effet s’ils cherchent à atteindre ce degré de légèreté semblable à l’architecture japonaise, c’est avant tout pour créer un espace qui leur semble intéressant et où les interactions faites en son sein bénéficient de ces effets de légèreté.
Fig.5 : Iwan Baan, Rolex Learning Center, L'importance de la structure dans l'espace pour le Rolex Learning Center
Fig.6 : Yasuhiro Ishimoto, série Katsura Imperial Villa, L'importance de la structure dans l'espace pour la Villa Katsura
Ainsi ils n’hésitent pas si nécessaire à cacher en partie la structure. La vérité structurelle n’est pas une de leur considération, et cela s’observe avec le Rolex Learning Center. En effet depuis l’extérieur, les dalles du sol et de la toiture sont de même épaisseur. Pourtant, sous l’une d’entre elle se cache une structure en béton armée, alors bien plus lourde et complexe que la seconde. La dalle du toit se devant être plus légère pour éviter de trop lourdes charges, est en fait constituée d’acier et de bois. Seuls les poteaux en acier sont visibles de l’intérieur. L’épaisseur des deux dalles apparait donc bien comme des éléments similaires, mais ne sont en réalité pas représentatives de leur poids relatif. Contrairement à la tradition architecturale, et notamment celle du Japon, la structure n’est pas l’élément le plus important visuellement dans le bâtiment. Ce n’est pas un objet dont les méthodes d’assemblage sont mises en avant. Au contraire, il s’agit d’une partie de la composition au même titre que celles des cloisons, mis au service de la fluidité des espaces. Il serait pourtant faux de croire que le traitement de la structure est simplement délaissé. Il s’agit ici non
Le cas du pavillon de la Serpentine Gallery de 2009 est un autre exemple du travail de la structure. Ici, le projet se veut être un abri discret offrant de l’ombre Neutralité structurelle
pas de mettre en valeur une technique constructive établie par les architectes, mais d’assumer le besoin de la faire disparaitre pour produire des effets impactant le ressenti. C’est une vision qui s’exprime particulièrement bien dans le Glass Pavilion de Toledo. Pour ce projet, les architectes dessinent une toiture caisson reposant sur des porteurs verticaux métalliques. Ce caisson est recouvert en sous-face par un platelage métallique le camouflant. Plusieurs stratégies y sont ainsi employées pour faire disparaitre les poteaux et leurs contreventements. En effet, quelques croix de St André sont placées pour assurer le contreventement de ces poteaux. Elles sont cependant toutes dissimulées dans les parois opaques qui permettent également de cacher une partie des éléments verticaux. Puisque tous les poteaux ne peuvent pas être camouflés de la même manière, ces derniers sont aussi placés dans les espaces d’expositions et les espaces tampons inaccessibles. Le caisson de la toiture permet ainsi d’optimiser les portées et de réduire le nombre de porteurs, de sorte que les poteaux nécessaires soient au maximum dissimulés par leur finesse et leur placement. Cela contribue à accentuer la présence du verre et les effets spatiaux qu’il procure, à tel point qu’il brouille le visiteur sur la perception du rapport entre porteur et non-porteur.
Neutralité structurelle
dans le parc, où la finesse de chaque élément lui donne presque l’impression de se dissoudre dans le paysage.
Là aussi SANAA utilise des poteaux métalliques fins. Leur matérialité réfléchissante est en harmonie avec la nature environnante. Malgré leur extrême finesse, une grande importance leur est accordée. En effet, ils ne sont pas aussi insignifiants qu’ils pourraient l’être au Rolex et pour cause : le rapport de proportion est renversé. A Lausanne, les poteaux sont infiniment fins comparés à la toiture qu’ils portent, contrairement au projet de la Serpentine Gallery où la toiture est aussi fine que les poteaux. Même si dans ce cas-ci l’un est éphémère et possède donc moins d’enjeux, les architectes jouent avec la disposition de l’espace mis en place par ces poteaux. Les passants arpentent cet espace en circulant entre les poteaux comme un parc dans lequel on se déplace entre les arbres. La toiture en revanche, semble totalement disparaitre dans le paysage du fait de son revêtement d’aluminium à effet miroir. Ce qui intéressait les architectes ici, ce ne sont pas les qualités constructives du métal, mais plutôt les effets visuels qu’il produit en tant que simple revêtement de toiture si fin qu’on n’imaginerait pas de prime
:
:
abord qu’elle soit composite. En effet, elle est en réalité construite de panneaux de bois, conçus pour s’emboiter entre eux et se soutenir mutuellement entre deux feuilles d’aluminium (Cf Fig.2 dans La géométrie de la courbe). Une toiture composite de la sorte demande une multitude de poteaux qui permet donc de mettre en place une forêt de poteaux et un assemblage entre le poteau métallique et la plaque en bois cachée par le revêtement. Tout cette complexité de design structurel leur permet d’obtenir une toiture aussi fine (2,5 centimètres) que les poteaux, tout en facilitant un assemblage et un démontage rapide du pavillon.
Tous ces exemples sont révélateurs de la perception de la structure pour SANAA. Ils proposent une vision moderne de cette dernière qui ne peut plus être le seul moyen d’expression de l’architecture et qui, à l’image de la société contemporaine, n’est qu’un élément parmi d’autres appartenant à un tout qui se doit de paraitre unitaire. Ils priorisent ainsi la conception d’un espace unique, multipliant les interactions entre elles et avec l’environnement, plutôt que la conception d’une architecture monumentale, magnifiant le travail de la matière et de sa mise en œuvre.
Inscrits dans la continuité de la tradition japonaise, l'exploration et le développement du travail de la courbe de Sejima et Nishizawa est encore aujourd’hui en pleine croissance. Cette monographie explore le processus de construction de la courbe et du développement de la forme au travers d’hypothèses personnelles, basées à partir d’écrits des architectes, de mémoires et de thèses extérieures. Conscients que ce travail reste incomplet dans la mesure où la production de l’agence continue d’évoluer, il permet néanmoins d’apporter une dimension nouvelle sur le processus de réflexion et de construction des projets curvilignes de SANAA.
La recherche se penche davantage sur la phase de réflexion des architectes, étape primordiale où les idées, des plus simples aux plus complexes sont testées, avant de faire l’objet de multiples variations jusqu'à l'obtention d’une version finale. Ce travail a permis de se rendre compte de l’importance du travail à la main, qu’il soit graphique ou volumique. Croquis et maquettes n’ont en effet pas été délaissés malgré un essor et un développement croissant de l’informatique.
L’étude de projets majeurs et charnières ont permis de nourrir la comparaison et les hypothèses développées tout au long de la recherche.
Ainsi, le développement de la courbe associé à l’évolution des technologies, a permis de mathématiser et de rationaliser les dessins produits par SANAA à partir de méthodes de conception traditionnelles. Chaque projet est selon eux, l’opportunité de pousser leur travail formel encore plus loin. La courbe apparait comme un moyen d’adresser des espaces correspondant aux besoins d’une société contemporaine.
Son emploi de nos jours est souvent complexe et dans ce contexte, étudier les raisons qui font qu’une agence telle que SANAA parvient à le faire est d’autant plus intéressant. Notre recherche invite à comprendre comment le studio évolue à travers l’utilisation de la courbe pour s’intéresser à présent à ce qu’elle continue de devenir au travers des futurs projets.
Ouvrages :
- BÊKA Ila, LEMOINE Louise, The Emotional Power of Space, [Floirac] : Bêka & Partners Publishers, 2023
- DELLA CASA Francesco, Rolex Learning Center, Lausanne : Presses polytechniques et universitaires romandes, 2010
- IDENBURG Florian, BAAN Iwan, The SANAA Studios 2006-2008 : Learning from Japan : Single Story Urbanism, Baden : Lars Müller Publ, 2010
- LE CORBUSIER, Vers une architecture, Nouvelle édition présentation par Jean-Louis Cohen, Paris Flammarion, 2005
- LUCAN Jacques, Composition, non-composition : architecture et théories, XIXe-XXe siècles, Lausanne : Presses Polytechniques et Universitaires Romandes, Architecture (Lausanne), 2009
- LUCAN Jacques, Précisions sur un état présent de l’architecture, Lausanne : Presses Polytechniques et Universitaires Romandes, 2015
- MEYSTRE Olivier, Images des microcosmes flottants : nouvelles figurations architecturales japonaises, Zurich : Park Books, 2017
- NISHIZAWA Ryue, Studies by the Office of Ryue Nishizawa, Tokyo : INAX Publishing, 2009
- PÉREZ RUBIO Augustin, CHERMAYEFF Sam, SAKAMOTO TOMOKO, Houses : Kazuyo Sejima + Ryue Nishizawa, SANAA, Barcelona : ACTAR, DL 2007
- SANAA - Tokyo, Japon, SANAA : Serpentine Gallery Pavilion 2009, London : Koenig Books, cop 2009
- SANAA, Kazuyo Sejima + Ryue Nishizawa 1988-1996, El Croquis n°77 (I), 1996
- SANAA, Kazuyo Sejima + Ryue Nishizawa 1995-2000 : making the boundary, El Croquis n°99, 2000
- SANAA, Kazuyo Sejima + Ryue Nishizawa 1998-2004 : oceano de aire, El Croquis n°121-122, Madrid : Croquis, 2004
- SANAA, Kazuyo Sejima + Ryue Nishizawa 2004-2008 : topología arquitectónica, El Croquis n°139, Madrid : El Croquis, 2008
- SANAA, Kazuyo Sejima + Ryue Nishizawa, 2008-2011 : arquitectura inorgánica, El Croquis n°155, Madrid : El Croquis, 2011
- SANAA, Kazuyo Sejima + Ryue Nishizawa, 2011-2015 : sistemas de continuidad, El Croquis n°179-180, Madrid : El Croquis, 2015
- SEJIMA Kazuyo, Kazuyo Sejima + Ryue Nishizawa / Sanaa : Works 1995-2003, Tokyo : TOTO Shuppan, 2003
Articles de revues :
- NOBUYUKI Yoshida, Curving line & surface, Nobuyuki Yoshida ; English translation Thomas Donahue, Kei Benger, Japan Architect, n°97, 2015
- SEJIMA Kazuyo, Living Space : Kazuyo Sejima, Essay Arata Isozaki ; English translation Thomas Donahue, Kei Benger, Japan Architect, n°99, 2015
- ALSONZO PROVENCIO Marta, ALMAZAN CABALLERO Jorge, Designing the process: scale models in the work of Kazuyo Sejima and Sou Fujimoto, Thèse de doctorat d’université, Université de Genève, In: ArchNet-IJAR, 2011, vol. 5, n° 1
- BESSON Adrien, Architecture et indétermination, Matières, vol 8, 2006, https://www.e-periodica.ch/cntmng?pid=mat-001%3A2006%3A8%3A%3A148
IBORRA PALLARES Vicente, CAPDEVILLA
- CASTELLANOS Ivan, ALMAZAN CABALLERO Jorge, Las familias de SANAA, Universidad de Alicante, Departamento de Edificación y Urbanismo, Escuela Politécnica Superior, Alicante, España, 2016, https://www. researchgate.net/publication/312397800_Las_familias_de_SANAA_O_como_Kazuyo_Sejima_y_Ryue_Nishizawa_responden_a_sus_intereses_arquitectonicos_ mediante_secuencias_de_proyectos
- BONDATY Alice, Vers une non-architecture : la possibilité d’un neutre en architecture, Thèse de doctorat d’université, HAL open science, 2018, https://dumas. ccsd.cnrs.fr/dumas-01806886/document
- JARAIS PEREZ José, El parque : Espacios, limites y jerarquias en la obra de SANAA, Thèse de doctorat d’université, Universidad politécnica de Madrid, Escuela Técnica Superior de Arquitectura de Madrid (ETSAM), 2012, https://oa.upm.es/12741/
- ROUSSEAU Maxime, Pourquoi l’Architecture de SANAA s’exporte-t-elle ?, École Nationale Supérieur d’Architecture de Nantes (ENSA Nantes), 2013
Page de garde :
- Croquis du processus de conception de la Flower House de SANAA, dessin des auteurs, 2024
Biographie :
- Takashi Okamoto, Photo de Kazuyo Sejima et Ryue Nishizawa, https://news.virginia.edu/content/kazuyo-sejima-and-ryue-nishizawa-thomas-jefferson-foundation-medalists-architecture
- Fig. 1 : Photographie du studio, El Croquis n°155, page 8, 2011
- Fig. 2 : Serpentine Gallery 2009, Coupe détail, El Croquis n°155, 2011, page 26
- Fig.3 : Grace Farm Cultural Center, diagramme du projet, dessin des auteurs
- Fig.4 : Grace Farm Cultural Center, Photographie du système porteur, Iwan Baan, 2015, https://iwan.com/ portfolio/gracefarms-new-canaan-ct-sanaa/
- Fig. 5 : Inventaire des lignes chez SANAA, dessin des auteurs
- Fig. 6 : Vitra Factory Building, détail de façade, El Croquis n°139, 2008
- Fig. 7 : Vitra Factory Building, plan général, El Croquis n°139, 2008
L'évolution
- Fig.1 : Axonométrie du Pao I, (Inaki Abalos, Juan Herreros, “Toyo Ito, Light Time”, El Croquis 71, page 36
- Fig.2 : Platform 2, Kazuyo Sejima, El Croquis n°77, page 32
- Fig.3 : Villa in the Forest, Kazuyo Sejima, El Croquis n°77, page 75
- Fig. 4 : Proposition pour la rénovation du quartier antique de Salerno, SANAA, El Croquis n°99, page 199
- Fig. 5 : 140 unité de logement à Paris, SANAA, El Croquis n°139, page 210
- Fig. 6 : New Urban Campus for the Bocconi University, SANAA, El Croquis n°197-180, page 102
- Fig.7 : Tableau de classification des projets de SANAA, dessin des auteurs
- Fig.8 : Flower House, tracé directeur, dessin des auteurs
- Fig.9 : Flower House, Maquette échelle 1/2, SANAA, El Croquis 139, p.195
- Fig.10 : Centre Culturel Grace Farm, tracé directeur de la forme, dessin des auteurs
- Fig.11 : Christian Richters, Photographie de la Serpentine Gallery de 2009, area-arch.it
- Fig.1 : Le système Dom-Ino, Le Corbusier, 1927, https:// thecityasaproject.org/2014/03/the-dom-ino-effect/
- Fig.2 : Musée de Kanazawa, Photographie du poteau en retrait de façade, Michele Nastasi, 2020
- Fig.3 : Musée de Kanazawa, Photographie des galeries internes, Michele Nastasi, 2020, https://www.michelenastasi.com/portfolio/21st-century-museum-of-contemporary-art-kanazawa-japan/
- Fig.4 : Plan du musée de Kanazawa, zoom sur l'organisation structurel du musée, dessin des auteurs
- Fig.6 : Glass Pavilion, Iwan Baan, 2010, https://iwan.com/ portfolio/a-sanaa-toledo-glass-pavilion/
- Fig.7 : Glass Pavilion, Iwan Baan, 2010, https://iwan.com/ portfolio/a-sanaa-toledo-glass-pavilion/
- Fig.8 : Rolex Learning Center, Iwan Baan, 2010, https:// iwan.com/portfolio/sanaa-epfl-rolex-learning-centre-lausanne/
- Fig.9 : Iwan Baan, Espaces non-définis du Rolex Learning Center, 2010, https://iwan.com/portfolio/sanaa-epflrolex-learning-centre-lausanne/
- Fig.1 : Les experimentations de composition autour de la grille pour le musée de Kanazawa
a : Maquettes d'étude, El Croquis n°99, page 213
b : Maquettes d'étude, El Croquis n°99, page 211
c croquis d'étude de composition du musée Kanazawa, Japan Architects n°97
- Fig.2 : Plan du musée de Kanazawa, Composition duprojet, dessin des auteurs
- Fig.3 : Plan du centre culturel Grace Farm, Composition du projet, dessin des auteurs
- Fig.4 : Plan de la Flower House, Composition du projet, dessin des auteurs
- Fig.5 : Plan du Glass Pavilion de Toledo, Composition du projet, dessin des auteurs
- Fig.6 : Plan du Glass Pavilion de Toledo, Placement de la structure et des pièces selon la trame structurelle, dessin des auteurs
- Fig.7 : Plan du Rolex Learning Center, Nonhiérarchisation des lignes, Olivier Meystre, Images des microcosmes flottants, Nouvelles figurations architecturales japonaises, page 135, 2017
- Fig.8 : Plan du Rolex Learning Center, Placement de la structure et des pièces selon la trame, dessin des auteurs
- Fig.1 : Michele Nastasi, Photographie du musée d'art contemporain du XXIe siècle de Kanzawa, Rapport intérieur et extérieur, https://www.michelenastasi.com/portfolio/21st-century-museum-of-contemporary-art-kanazawa-japan/
- Fig.2 : Glass Pavilion, plan schématique des positionnements, dessin des auteurs
- Fig.3 : Glass Pavilion, Position "a", https://www.flickr.com/ photos/minkewagenaar/5711559183
- Fig.4 : Glass Pavilion, Position "b", https://iwan.com/portfolio/a-sanaa-toledo-glass-pavilion/
- Fig.5 : Glass Pavilion, position "c", https://www.modlar. com/photos/2221/glass-pavilion-at-the-toledo-museumof-art-interior/
- Fig.6 : Gwen Ermin, Photographie d'une pièce de la Villa Katsura et son rapport à la nature, https://ermingwennaujapon.blogspot.com/2018/12/la-villa-imperiale-de-katsura. html
- Fig.1 : Dean Kaufman, Centre culturel Grace Farm, photographie de la gouttière assurant la finition de la courbe, https://www.archdaily.com/775319/grace-farms-sanaa
- Fig.2 : Centre culturel Grace Farm, la trame structurelle de la toiture, dessin des auteurs
- Fig.3 : Centre culturel Grace Farm, coupe transversale schématique, dessin des architectes, https://www.archdaily.com/
- Fig.4 : Rolex Learning center, Axonométrie de la structure du toit, Maxime Rousseau, Pourquoi l’Architecture de SANAA s’exporte-t’elle ?, Mémoire de Master, 2013, page 39
- Fig.5 : Iwan Baan, Rolex Learning Center, L'importance de la structure dans l'espace pour le Rolex Learning Center, https://iwan.com/portfolio/sanaa-epfl-rolex-learningcentre-lausanne/
- Fig.6 : Yasuhiro Ishimoto, série Katsura Imperial Villa, L'importance de la structure dans l'espace pour la Villa Katsura, https://aperture.org/editorial/yasuhiro-ishimoto-katsura/
- Fig.7 : Glass Pavilion, Schéma structurel de la toiture, dessin des auteurs
- Fig.8 : Iwan Baan, Glass Pavilion, poteau "caché" dans l'espace interstitiel, https://iwan.com/portfolio/serpentine-gallery-pavillion-2009-sanaa/
- Fig.9 : Iwan Baan, Serpentine Gallery 2009, Photographie de la toiture et les poteaux, https://iwan.com/portfolio/serpentine-gallery-pavillion-2009-sanaa/
- Fig.10 : Iwan Baan, Serpentine Gallery 2009, Photographie de projet dans son contexte, https://iwan.com/portfolio/serpentine-gallery-pavillion-2009-sanaa/