

Retailer Runway

Einstein Bros. Bagels
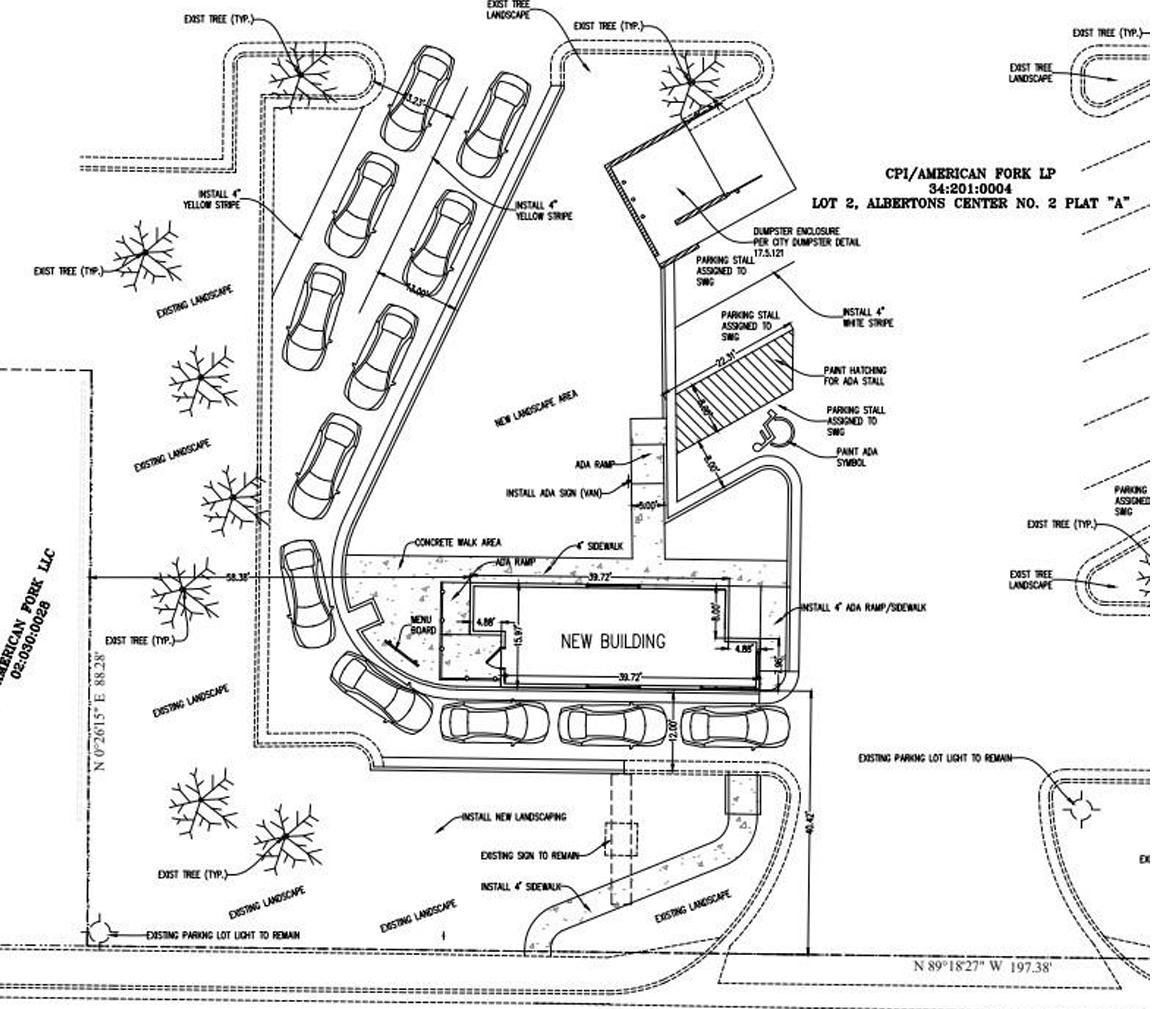
First Watch
Great Clips
Ulta Beauty
Crunch Fitness
Smoothie King
Big Blue Swim School
Jersey Mike's
Swig
Dollar Tree Stores
Rural King
Kwik Trip
McDonald's
Fry the Coop

Retailer Runway
Einstein Bros. Bagels














Growth Markets



Location Criteria

Size: 1,700-2,600 sf
Frontage: 20’ minimum
Parking: 3 to-go spots
Signage: Einstein’s standard sign to max size per code. Two preferred on endcap locations.
Monument/pylons signage available
Access: Morning side of traffic. Full turn access from main street
Real Estate Type: In-line, endcap and out parcel


Trade Area
Traffic Count: 25k per day
Center Types: Power,
Neighborhood and Community Centers on strong retail corridor


Site Requirements

Power: 3 Phase, 400-amp preferred
Grease
Interceptor: To code

Retailer Runway
First Watch




















Retailer Runway Great Clips


ICSC Midwest 2025

Jack Gulden
Real Estate Manager, Midwest Region







175 Leases Executed (2024 – present)
126 Competitor Takeovers (since 2020)


Path to 5,000 Salons (4,439 as of 9/9/25)
NEW! GREENLIGHT Design














Jack.Gulden@greatclips.com
Supported States
• Colorado
• Iowa
• Illinois
• Indiana (Elkhart, Ft. Wayne, Indianapolis, Lafayette, South Bend, Terre Haute)
• Kansas (Joplin-Pittsburgh, Topeka)
• Michigan (Alpena, Grand Rapids-Kalamazoo-Battle Creek, Lansing, Traverse City-Cadillac)
• Minnesota
• Missouri
• Nebraska
• North Dakota
• South Dakota
• Wisconsin
• Wyoming




Retailer Runway

Retailer Runway ICSC @ Midwest



Who We Are & What We Do Best
Born and Raised in Chicagoland Inspire Disruption and Continuously Innovate
• Founded in 1990 and headquartered in the SW suburb of Bolingbrook, IL (Celebrating our 35th yr. anniversary)
• ~58K associates across all 50 states
• 45.8M Ulta Beauty Rewards Members
• First location opened in High Point Centre in Lombard as Ulta3 (renamed to Ulta Beauty in 1999)
• Oldest location currently open is located in Lakeview Plaza – #7 Orland Park, IL
• IPO in 2007 | Publicly Traded | (NASDAQ: ULTA)
• Feel free to check out our investor page @ https://www.ulta.com/investor

Retail Category:
• Nations largest retailer of cosmetics, fragrance, heath and beauty products in addition to operating a full-service beauty salon in majority of store locations
FY 2025 – A year to remember:
• On track to open our 1500th U.S. location
• Opened 1st international location (Mexico City)
• 1st location in Middle East on track to open later this FY
• Acquired UK Based Retailer – Space NK
Future Domestic Growth:
• Double digit store growth expected across all retail types
• Strategic remodeling of existing store fleet
• New exclusive/emerging brands to continuously drive traffic and be at the forefront of market trends

Site Requirements:
Size Range: ~5,000 – 10,000 sq ft (depending on market size and deployable store prototype)
Each store prototype has a frontage requirement ranging from 50’ – 80’
Location Type: Dominate Power/Strip Centers, Community-Neighborhood, Lifestyle, Outlet, Mall

Co-Tenants: Flexible: Big box daily needs driver, National tenant mix, Soft goods
Growth Mkts: In-fill Major Metro | Fringe Suburban Growth Sectors | Tertiary/Small/ County Seat


Recent FY25 Midwest New Store Openings








Pleasant Prairie, WI (Premium Outlets)
Brownsburg, IN (Brownsburg Sq)
Lincoln, NE (Gateway Mall)
Pittsburg, KS (Pittsburg T.C.)
Cape Girardeau, MO (West Park Mall)
Fort Dodge, IA (Corridor Plaza)

Follow us on LinkedIn @ Ulta Beauty & @Ulta Beauty Real Estate to follow all the exciting news in our world


Retailer Runway Crunch Fitness




OCTOBER 9, 2025

ABOUT CRUNCH FITNESS
NO JUDGMENTS #1 in 2024 & 2025
• Founded in 1989, began franchising in 2010
• HVLP gym with monthly memberships starting at $9.99
• 500+ locations in the US and five countries
• 75 Unit MFA signed for expansion into India
• 3 Million+ members
• 100 new locations in 2025
• 500K+ annual visits per location
• Nearly 8,000 members on average per location
• Busiest Monday through Thursday, 4PM-8PM

CRUNCH 3.0 CLUB DESIGN


CRUNCH 3.0 CLUB DESIGN


CRUNCH 3.0 CLUB DESIGN


CRUNCH 3.0 CLUB DESIGN


SITE REQUIREMENTS
• 20,000 – 50,000 SF
• High ceilings
• Plenty of parking
• Daily needs co-tenancy
• Pre-sale space
• 50K-75K+ pop in 16-minute drivetime

CRUNCH REAL ESTATE TEAM




CORY STEVENS
RIJUL BHARDWAJ


Retailer Runway
Smoothie King


Retail Category: SMOOTHIE / BEVERAGE / SNACK
Typical size: 750 – 1,600 SQ FT.
Location type: Free Standing, End Cap, Drive thru only, In-Line
Current # of stores: 1,300+ (Domestic Stores)

Growth markets and # of New Stores: Central / Eastern / South U.S.A Markets
Opened 100+ new locations FY2024 On track for same pace FY2025
Co-tenants: Gyms, Grocery, Pharmacy (Daily Needs)
Additional requirements: Drive thru preferred / Outdoor seating / 2+ Reserved
WHAT WE’VE ACHIEVED THIS YEAR SO

EXPANSION VECTORS
PROTECT AND DEFEND
Focus on existing franchisees that are actively engaged operationally in efforts to increase brand penetration
NEW & EMERGING
Focus on areas contiguous to growth markets with limited brand presence
BE THE KING CONQUEST
GROWTH
Focus on Area Development Agreements and aggressive marketing/PR to attract new franchisees
FIND THE SUPERFAN TEST AND INNOVATE
OPTIMIZE
Highly selective candidate process

What We Look For
















VISIBILITY





ACCESS PARKING ENERGY (SYNERGY)
- 10+ Parking Spaces
- 2 Reserved Spots (LOI) - Multiple Access Points - Full Non-Blocked Access
Size – 750 – 1600 Sq. Ft - 20k+ Cars Per Day - Raised Elevations
- Outdoor Seating - Near Grocery
- Near Fitness
- Near National QSR
- Near Service Retailers
- 30k Population (7 min) + / -





New Items AND Strong Online App!



BEYOND SMOOTHIES – POWER EATS LAUNCH!








Retailer Runway
Big Blue Swim School


BIG BLUE SWIM SCHOOL


Overview
• We’re not just a swim school – we’re a mission-driven brand solving a real need: helping kids develop life-saving swim skills and confidence in the water. Parents are actively seeking structured, high-quality lessons, and our model delivers that at scale.
• Big Blue is active across 26 states.
• SDG Swim LLC owns 21 development rights in Illinois, Wisconsin, and Minnesota. Currently, we have 2 open schools located in Illinois. At year's end 2026, there will be 2-3 new open pools.




Why Big Blue?

Why Big Blue is a strong partner?

• Traffic Driver- Families visit our schools weekly, often year-round. That’s hundreds of consistent repeat visits every week, generating reliable foot traffic for co-tenants.
• Resilient Business Model- Swim lessons aren’t discretionary. They’re seen by parents as a safety necessity, which makes us recessionresistant and insulated from e-commerce competition.
• Flexible Real Estate- We thrive in secondgeneration retail spaces, typically 6,000— 8,500sf, with good parking and visibility. We invest heavily in each site, transforming it into a long-term, high-quality community asset.
Conclusion
• Every school we open creates a family-centered destination that drives consistent traffic, supports surrounding tenants, and brings economic vitality to shopping centers.
• We offer landlords something unique: a stable, community-centric, family-driven tenant that signs longterm leases and invests millions into every location.

• Here to connect with developers and landlords who want to partner with a tenant that’s growing rapidly in the Midwest.








Retailer Runway
Jersey Mike’s


ICSC Retailer
Runway - Chicago 2025










CONTINUED TRADITION

MARKETING




Three Pillars of the Jersey Mikes Brand

The People


The Product


Making A Difference



HISTORICAL GROWTH – Stores Opened
Per Year




Path To Growth
Size 1200-1800 square feet
Frontage 20’ minimum
Parking 12 spots per 1000 square feet, 15 minimum
Signage Jersey Mike’s standard sign to max size per code. For end cap locations, two signs are preferred
Outside Seating Outside seating strongly preferred

Store Location Shared pads or outparcels and end-caps preferred. In-line with good visibility from the street is acceptable
Accessibility Full turn access from both main and side arteries
Co-tenancy Dominant grocer in market, office supply and convenience users, full price retailers, and solid retail synergy




Retailer Runway Swig



Swig Drinks was founded in 2010 in St George, Utah. We are known for creating the “Dirty Soda” category. A Dirty Soda combines your favorite soda with a choice of add-ins like fresh fruit, flavor shots, and creamers.
We have grown into a national chain with a strong emphasis on customer service which has gained us a very loyal following.



Swig Drinks was founded in 2010 in St George, Utah. We are known for creating the “Dirty Soda” category. A Dirty Soda combines your favorite soda with a choice of add-ins like fresh fruit, flavor shots, and creamers.
We have grown into a national chain with a strong emphasis on customer service which has gained us a very loyal following.
Swig Drinks was founded in 2010 in St George, Utah. We are known for creating the “Dirty Soda” category. A Dirty Soda combines your favorite soda with a choice of add-ins like fresh fruit, flavor shots, and creamers.
We have grown into a national chain with a strong emphasis on customer service which has gained us a very loyal following.










This Photo by Unknown Author is licensed under CC BY-ND
















Retailer Runway
Dollar Tree Stores


Retail Category: Discount Variety Store
Typical size: 8,000 – 12,000 square feet
Location type: Free Standing, Inline, End Cap, High Visibility, etc.
Current # of stores: 9,000+ in North America

Growth markets and # of New Stores: Aggressive national growth plans
Co-tenants: Big box discounters, dominant grocery stores, soft goods, National/Regional Retailers
Additional requirements: Full size semi truck access, visibility, parking, etc.



Strategy:
• North America’s Leading Discount Variety Store
• A Fortune 200 Company
• 1.25 primary price point; select stores feature a Dollar Tree Plus section with $3 & $5 deals.
• Offers a variety of high-quality, everyday general merchandise and an ever-changing array of seasonal goods.
• Bright stores, big signs and a clean environment.
• Regional, or neighborhood centers.
• Freestanding locations in a strong retail corridor.
• Easy ingress/egress and ample parking.
• Highly-visible shopping centers with strong traffic counts.
• Middle to upper income demographic.

Retailer Runway
Rural King




Blake Pierce President of Rural King Realty








Current Locations


















Retailer Runway Kwik Trip

Kwik Trip, Inc.
2025 Retailer Runway



Kwik Store Facts
• Employ 39,000+ Coworkers
• 100% Privately Owned
• Own & Operate 900 Stores
• 9 Zone Leaders (6-7 Districts Per Zone)
- 60 District Leaders
- Each District Comprised of 14 - 18 Stores
• Gen 3 stores are 9,200 S.F.








• Each Store Employs 40 - 60 Coworkers: (60% PartTime; 40% Full-Time)
• 150 Truck Routes Per Day; Daily Store Deliveries
• Ship 80+% of our store products through our Distribution Center
• Kwik Trip is the #1 Lottery Retailer in WI & MN
Retailer Names






States Served & Store/Coworker Count
• Kwik Trip owns and operates stores in WI, MN, IA, IL, MI, & SD.
• Own and operate 900 stores & employs 39,000+ coworkers in:
• Wisconsin: 510 Stores; 23,888 Coworkers | 4,658 work @ Support Center
• Minnesota: 216 Stores; 8,722 Coworkers
• Iowa: 152 Stores; 5,346 Coworkers
• Illinois: 2 Stores; 101 Coworkers
• Michigan: 6 Stores; 236 Coworkers
• South Dakota: 11 Stores; 373 Coworkers
Site Needs
• Purchase opportunities only
• > 2 acres for traditional Gen 3 store; 10+ acres for truck stop
• Will consider both standalone sites along with pads within a larger development; all sites require a fuel, C-Store, and car wash exclusive
• No minimum traffic or population requirements; sites and markets are evaluated on an individual basis





3 New Stores
6 Rebuilds
1 Truck Center 1 Diesel Addition Michigan

2 New Stores













Real Estate Development Managers: Zach Pagel zpagel@kwiktrip.com (SD, WI) Patrick Wewel pwewel@kwiktrip.com (IL, WI) Dean George dgeorge@kwiktrip.com (MN) Lisa Wadsen lwadsen@kwiktrip.com (MN) Kacie Bonjour kbonjour@kwiktrip.com (IA) Travis Small tsmall@kwiktrip.com (IA)
Thank You for Your Time!
Kwik Trip/Kwik Star looks forward to continuing to grow with your help.
See you next time!







Retailer Runway McDonald’s











Retailer Runway
Fry the Coop

















