MARCEL HADID
PORTFOLIO

![]()

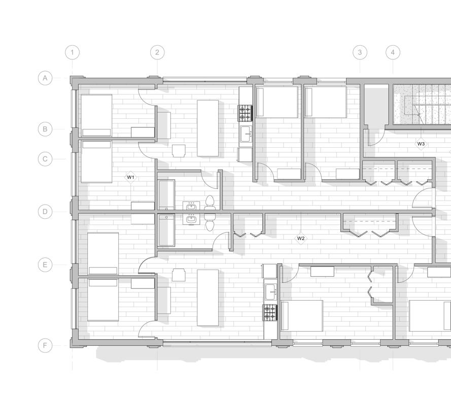
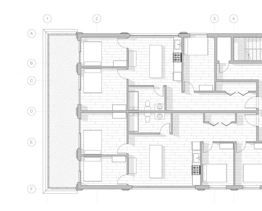
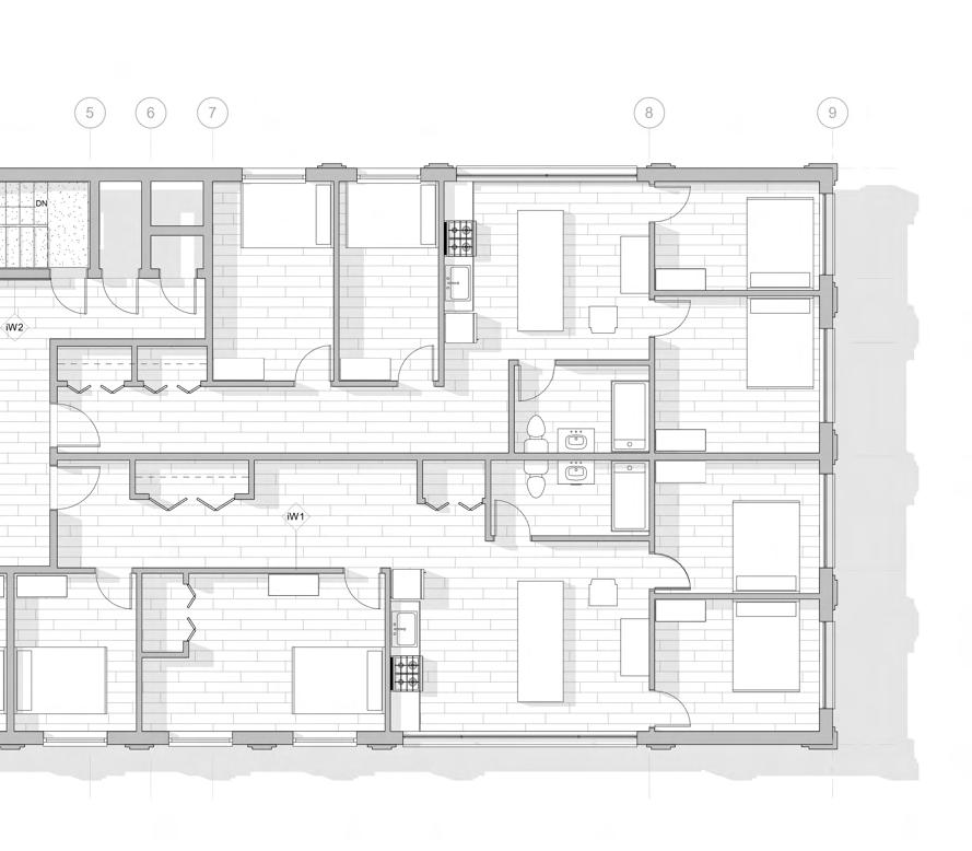
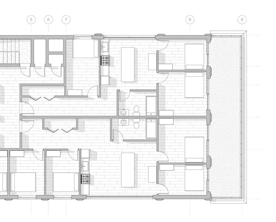
This is project aims at creating a housing typology for a six storey building, with the condition that it only has a single stair shaft. As explored in the following pages, this typology could ameloriate affordable housing because of it’s smaller lot size, it’s greater room sizes, and the riddance of unnecessary corridor space. It’s spatially efficient. It can constructed on any lot(s) that connect to two roads, drive community engagement, and respect the aesthic appeal of it’s architectural context. This entire project was done individually out of personal interest in the competition, and it took three weeks to complete.







Reliability of Fire-Resistance Rating of Modern Wall Assemblies

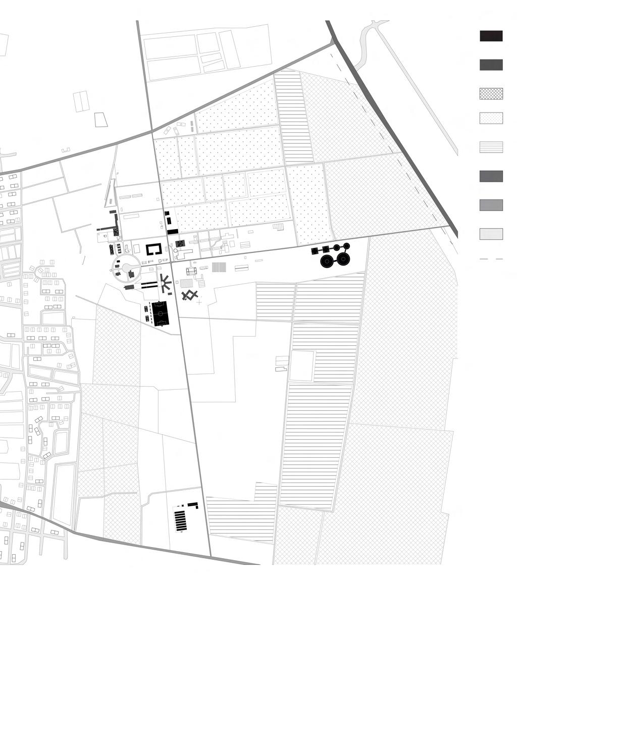
Denver Mid-Rise Housing Typologies




Unification of Core Shaft Proximity to Stairs





Denver like most American cities, is subject to the ‘two-stair-shafts’ rule that is applicable to all buildings above 3 storeys. This takes up more corridor and stair space, leaving inhabitants with less living and window space. As outlined above single stair housing would enhance affordable housing by recovering all the lost space and allocating it to improving the living standards of the residents. The unification of the core could also allow for some unique forms, all while maintaining the aesthetic environment that it’s built in.
2nd - 3rd Floor Plans

4th- 6th Floor Plans








W1 - Exterior Brick Veneer (1HRRated)
W2 - Demising Wall (2HRRated)
W3 - 200mm Concrete Wall (2HRRated)
IW1 - 3 5/8” Stud Interior Partition Wall
IW2 - 7/8” Channel Furring Wall



Axonometric Drawing

Passageway Rendering
This is a semester-long studio project I did on my own during my second year in university. The prompt was to design a study center next to the Goldring Center in Toronto, Ontario. This project was meant to accomodate a plenty of studying spaces, and one extra program of choice, which I decided was going to be an exhibition space. I decided to make the space open, with terrace spaces on top of every floor to maximize space, and indoor spaces that can be used for studying in both a public setting and a private

The main concepts that drove this design was transparency, and efficiency of space. Transparency was established through the use of glass walls and windows, and efficiency through the use of terrace and basement spaces. The exterior finish was selected to give a natural and modern feel to the building, countering the other buildings on campus that had a brutalistic and outdated style.

Preliminary Sketches


Concept Diagram









Vertical Wood Siding
3/4” Furring Strips
2” Rigid Insulation
5/8” Plywood Sheathing
2”X6” Wood Studs
1/2” Gypsum Board
1”x1” Int. Wood Siding
Parametric Ceiling Finish
1/2” Gypsum Board
2”x8” Joists
3/8” Subfloor Sheathings
Wall-Floor Connection 3D Detail



Exhibition Space Rendering


This is a class project I took during the summer of my third year at university. We were tasked with designing and buillding a community space in the parking lot of Jane and Finch mall over the span of two weeks. Our class was split into two groups. One was in charge of designing and building a facade for a stage. The one I was in was in charge of doing the two pavillions in the image on the right. The group I was in had 6 people including myself. My role was to help develop the concept, cut up the wood pieces, and ensure that the building assembly is cohesive.
This project enhanced my teamworking skills, and introduced me to the skill of wood-working and the methods in which things are built with wood. It also introduced.

For this design, our group decided to go for a simple wavy pattern around the perimeter of our pavillion. This was in coordination with the other groups design for the main stage. Our design had to take everything into consideration: budget, structural stability, shading, aesthetic, and constructability. That is why we used simple structural elements such as as wooden posts and 2X4 joists.
After brainstorming for a few days, we then went on to make working drawings so that we could cut the wood into the required framing members.
I worked on or contributed to all of the following drawings. The working drawings are the original.
Concept Diagram








Facade to Frame Detail


This is a project I undertook in the fall semester of my fourth year at my undergraduate program. The purpose of this project was to rehabilitate an abandoned farm in the West Bank, Palestine. The four main programs that this rehabilitation aimed at incorporating is a Kids Summer Camp, a Women’s Agricultural Training Centre (WATC), an Artists Residency, and tourism attractions. Each one of those programs aimed at increasing the income of underpriviliged demographicsn in the West Bank, and to attract tourism.
This project was undertaken with the entire class of around 20 people, who were split into 5 different groups delegated with different tasks. My groups task was to implement the programs into the existing buildings, and create new ones where necessary. My role was the proposal and implementation and proposal of the new programs. All the following work is my own individual revamp of the project.

The aim of this rehabilitation work is to create a space that is a vibrant and reliable space for the community to rely on. Our project started by conducting some research into the most marginalized demographics in the West Bank. We concluded that this project would help out the most if it centered women, children, tourists, and business owners.
Women often had a decent relative education to men, but served a minor role in business leadership positions. Given the low per-capita GDP of the West Bank, children were given very little oppurtunity to travel and take part in any summer activites. Tourists often found it difficult to find calm and culturally-rich at the same time. Business owners, due to the lack of tourism and the weak economy, find customer aquisition quite difficult. We believed that these problems could be solved by integrating the programs that we did into this project. Our aim was to create a stable, high-traffic tourism and business center, that is also safe and spacious enough for a kids summer camp.










The program selected to make buildings are integrated on the farm and that purposes. This encourages and productivity interconnectedness of the
buildings were carefully make sure that the majority of integrated into the other facilities that they can be used for other encourages the sustainability productivity of the buildings. This interconnectedness also promotes the properity the entire farm.

This semester-long studio project aims at discovering the hidden environmental and social impact that the lithium trade complex has on the surrounding inhabitants in Jujuy, Argetina, and on the global gas emissions. In a group of three, my group set out to discover whether electric vehicles are as sustainable as they are promised to be. In specific, our research focused on the scale of environmental impact that mining lithium in Argentina has on it’s indigenous communities, it’s hazardous health consequences, and the cost of it’s itinerary’s carbon footprint. I played a central role in researching the impact on indigenous communities, the immediate health hazards, and the environmental impact of the lithium mine on it’s surroundings.

• Water Consumption of 2.92L/s, which is about 92.4 megaliters of water per year. This rate of consumption causes a risk to the total amount of water supply in the region.
• Evaporation ponds release harmful chemicals into the air. Examples of these chemicals are Nitrogen Oxides, Sulfure Oxides, and Carbon Monoxide.
• Operations at the mine emit a total of Dioxide.
This is the equivalent to the gas emissions
• 3,232 Gasoline powered passenger
• 37,223,083 miles driven by an average
• The consumption of 1,687,859 gallons

• A lithium brine at this scale caused the displacement of 3,021 indigenous people from their homes. Operations Facilities Evaporation and Storage Facilities
of 15,012 Tonnes of Carbon of: vehicles driven for one year average gas powered car gallons of Gasoline

• Evaporation ponds take up approximately 29Km² of land. This poses a survival threat to 215 species of wildlife.

Our research concluded that the process of lithium mining has some devastating immediate consequences to those who involved in the extraction process. The labour involved can often receive some deadly diseases to many vital organs as shown above. The neighbouring communities often are faced with forced displacement in the thousands due to this. Additionally, we found that the lithium mine itself uses a lot of water and oil, leaving a huge carbon footprint, and depleting the area of it;s natural water resources. This severely hinders the chance of survival for any humans or wildlife in the area.

LITHIUM INVESTMENT VS NUMBER OF AIRBORNE LITHIUM INCIDENTS
500 G OF CO² / TON /KM OF TRANSPORTATION






Hand-Traced details.

Popsicle Bridge. In a group of 4, my tem and I made a popsicle bridge that was able to carry a load of 145Kg. This was done to deepen our understanding of structural systems.


Corner Section 1:50 Model


This model was the final assignment for my first studio project at GBC done in groups of 2. We were given only the foundation wall to start with, and had to build the rest of the house through other materials we found. We had to make sure that all the connections/details are exposed including the roof detail, window lintel detail, foundation walll to first floor connection, wall assembly, and all of it’s other intricacies.





