Keating -Hard Finishes, Tile Layouts, & Plumbing

Page 1


Grape Creek Road

Hard Finishes, Tile Layouts, & Plumbing

April 22nd, 2025

*Please refer to Design Specification Worksheet & Tile Layout Drawing Packet for additional specs and information.

*Revision 1

All details to be reviewed and confirmed by team.

-

Hardwood Flooring Campagne, Old Brown Varying Wide Widths, Random Lengths

Hardwood Flooring Campagne, Old Brown Varying Wide Widths, Random Lengths

See Foyer Details

Hardwood Flooring Campagne, Old Brown Varying Wide Widths, Random Lengths

Limestone, Zahra Beige Picket (Wet Space Only)
Limestone - Zahara Beige Loft Finish, Sawn Edges Foyer Installed in Cut Pattern
Artillo, Arabesque 2D Cross Picket and 2"x2" Color: Yazmin Blend Hacienda with Tuscan Mustard
Limestone
Zahara Beige Loft Finish, Sawn Edges (Wet Space Only)

Campagne, Old Brown

Fixed Width 8 5"W, Random Lengths

Hardwood Flooring
Limestone
Zahra Beige, 2"x8" Herringbone
Artillo,Arabesque
Creme Friache Blend
5" Square Star & 6" Cross

Floor Pattern Design per Renegage

Limestone
g
Zahara Beige
Loft Finish, Sawn Edges
Stone Wall to match exterior
Bronze Metal Cased Opening Details
All Countertop & BacksplashHoned Bl e Roma Countertop
Newport Brass Taft Pull Down Faucet Crosstown Stainless Sink 31 5"x18 5"x9"
Hardwood Flooring Farmhouse Stone Campagne, Old Brown Lengths Vary
Cooking Island - Stained Wood Built with feet to look like a piece of furniture
All Countertop & BacksplashHoned Blue Roma Countertop
Wood Top Detail (See Drawings) At Counter Stool Bar
Newport Brass Bar Taft Pull Down Faucet Crosstown Stainless Sink 23 5"x18 25"x10"

Kitchen - West

Kitchen - West

Kitchen - East

Kitchen - North
Cooking Island - STAINED
Bar Island
Bar Island - With Wood Top Detail

Antique Mirror Backsplash

Vendor: To Be Confirmed

Would like the antique look to match closely to sample shown

Installation: TBD

(See Renegade Drawings)

(Similar to example photo shown)

*Exact antique mirror size to be confirmed.

Samuel Heath

Single Lever Lavatory Mixer Faucet Urban Brass

Elkay, Quartz Luxe Single Bowl Sink Charcoal, 15.75"x15.75"

Drawings)

Hardwood Flooring

Farmhouse Stone

Campagne, Old Brown Lengths Vary

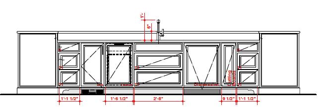
Brass Metal Cabinet Front By Renaissance
Metal Inserts & Details By Renaissance (See Renegade
Mirror Installation Reference Photo Installed: Horizontal Straight Stack
Countertop Honed Soapstone

Countertop Remnant Options

Neolith Porcelain New York, New York, Finish: Silk Honed Soapstone Honed Blue Roma Quartzite

election to be finalized based on remnant availability

Farmhouse Stone

Campagne, Old Brown

Lengths Vary

Hardwood Flooring

Newport Brass Adams Pull Down Faucet

Elkay Crosstown Stainless Sink

23 5"x18 25"x10"

Countertop

Neolith Porcelain Slab

New York, New York

Finish: Silk

Flooring

Farmhouse Stone

Artillo, Arabesque 2D

6" Cross Picket and Artillo 2"x2"

Color: Yazmin Blend, Hacienda with Tuscan Mustard

Installed: Match, Per Designer Drawings

Limestone Flooring
Zahara Beige
Loft Finish, Sawn Edges
Countertop
Neolith Porcelain Slab
New York, New York
Finish: Silk

*Confirm nosing detail with Farmhouse Stone

Metal Hand Rail Detail
Stair Treds
Hardwood Flooring, Farmhouse Stone
Campagne, Old Brown

Stair Treds

Hardwood Flooring, Farmhouse Stone

Campagne, Old Brown

*Confirm nosing detail with Farmhouse Stone

Integrated Floating Sink/Vanity Top With edge detail across front (similar to photo)
Concealed Storage In Wall underneath (pushed back)
Countertop and Integrated Sink Saint Laurent Quartzite - Honed
Kallista One Bar Faucet Gun Metal

Brass East Linear Prep/Pull Down Bar Faucet Oil Rubbed Bronze

Black 15"x18"

Selection to be finalized based on remnant availability

Need to confirm if we have enough remnant of suggested slab for MD to confirm backsplash selection

Countertop Remnant Options Honed Saint Laurent Quartzite
Hardwood Flooring Farmhouse Stone Campagne, Old Brown Lengths Vary
Newport
Nantucket Single Bowl Granite Bar Sink

Master Bathro

Hardwood Flooring at Vanity Farmhouse Stone Campagne, Old Brown Lengths Vary
Undermount Sink, White 23 5" x 14 5"
Newport Brass Pardees Widespread Antique Nickel
Limestone Flooring in Wet Spaces & Shower Floor
Zahara Beige
Loft Finish, Sawn Edges 18"x36"
Newport Brass, Tub Spout, Finish: Antique Nickel
Victoria & Albert Freestanding Tub
Color: White, Center Drain, 71"x32"
Floating stone countertop and sink Farmhouse Stone to rest on wood counter top
Samuel Heath 2 Hole Wall Mounted
Lavatory Mixer without Plate
City Bronze
Limestone Flooring in Wet Spaces & Shower Floor
Zahara Beige
Loft Finish, Sawn Edges
18"x36"
Cabinetry Design to be finalized with team & drawn by Renegade
East Linear Bar Faucet
Blanco Quartus Bar Sink
Stainless Steel Sink
Countertop Rio Alicante Marable Premium Honed
Limestone Flooring in Wet Spaces & Shower Floor
Zahara Beige
Loft Finish, Sawn Edges 18"x36"
Hardwood Flooring at Vanity Farmhouse Stone Campagne, Old Brown Lengths Vary

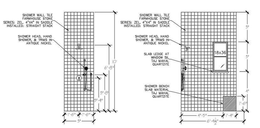
Series: Zel Bejmat, Size: 4"x4" Color: Saddle

Installed: Straight Stacked

Casita 1 Bath - 111, 112, 113

Hardwood Flooring at Vanity Farmhouse Stone Campagne, Old Brown Lengths Vary
Newport Brass, Miro Single Spout Finish: Antique Nickel
Countertop
Taj Mahal Quartzite
Undermount Sink Finish: White, 20 5"x14 25"
Accent Wall Tile & Shower Wall Tile
Designer Vanity Specifications & Design to be reviewed with & drawn by Renegade

Accent Wall Tile & Shower Wall Tile

Series: Zel Bejmat, Size: 4"x4"

Color: Saddle

Installed: Straight Stacked

Flooring in Wet Space & Shower Floor

Limestone, Zahara Beige Picket

Casita

Newport Brass Showerhead with 8” Arm Antique Nickel
Linear Drain
Satin Stainless Steel Length Adjustable on Site
Wall tile & slab detail at Niche
Hardwood Flooring at Vanity Farmhouse Stone Campagne, Old Brown Lengths Vary

Casita 2 Bath - 115, 116, 117

Hardwood Flooring at Vanity Farmhouse

Campagne, Old Brown Lengths Vary

Accent Wall Tile Series: Zel Bejmat Classic 2"x6" Color: Fog

Installed: Vertical Overlay

Finish: Antique Nickel

Undermount Sink Finish: White, 20 5"x14 25"

Stone
Newport Brass, Miro Single Spout
Countertop Taj Mahal Quartzite
Designer Vanity Specifications & Design to be reviewed with & drawn by Renegade

Casita

S S C

Installed: Straight Stacked

Flooring in Wet Space & Shower Floor

Limestone, Zahara Beige Picket

Length Adjustable on Site

Shower bench material
Taj Mahal Quartzite
Newport Brass Showerhead with 8” Arm Antique Nickel
Linear Drain
Satin Stainless Steel
Wall tile & slab detail at Niche
Niche Design in Development
MD to review niche design with Renegade
Hardwood Flooring at Vanity Farmhouse Stone Campagne, Old Brown Lengths Vary

Flooring

Limestone, Zahra Beige Rustic

Size: 2"x8"

Installed: Herringbone Pattern

Newport Brass, Miro Single Spout Finish: Antique Nickel

Undermount Sink

Finish: White, 20 5"x14 25"

Countertop Taj Mahal Quartzite

Designer Vanity Specifications & Design to be reviewed with & drawn by Renegade

Shower Flooring

Limestone, Zahra Beige Rustic Size: 2"x8"

Installed: Herringbone Pattern Pattern to continue from main bath

Shower Wall Tile

Tilex Design, Bison Brick 6"x12", Olivine

Installed: Horizontal Straight Stack

Linear Drain

Satin Stainless Steel Length Adjustable on Site

Niche Design in Development
MD to review niche design with Renegade
Shower bench material
Taj Mahal Quartzite
Newport Brass
Showerhead with 8” Arm Antique Nickel
Wall tile & slab detail at Niche
Hardwood Flooring at Vanity Farmhouse Stone
Campagne, Old Brown Lengths Vary

Flooring

Installed: Pattern Match

Artillo Arabesque, Creme & Friache Blend
Countertop
Rojo Alicante Premium Honed
Exposed Wood Vanity - Stained
Designer Vanity Specifications & Design to be reviewed with & drawn by Renegade

Shower Wall Tile Ragno Melange, Beige 4"x4"

Installed: Straight Stack

Miro Shower/Tub Control & Faucet Antique Nickel

Kohler 30x60 Tub White

Archer Flange Bath

Wall tile & s at Niche
Wood Detail at Front of Drop In Tub
Niche Design in Development MD to review niche design with Renegade

Need to confirm if we have enough remnant of suggested slab for MD to confirm backsplash selection

Hardwood Flooring at Vanity Farmhouse Stone
Campagne, Old Brown Lengths Vary
Countertop
Rojo Alicante Marble Premium Honed
Brizo
Litze Bar Faucet with Knurled Handle Brilliance Luxe Gold
Elkay, Quartz Luxe Single Bowl Sink Charcoal, 15 75"x15 75"

713-664-6707

office@manndesignsstudio

Turn static files into dynamic content formats.

Create a flipbook
Issuu converts static files into: digital portfolios, online yearbooks, online catalogs, digital photo albums and more. Sign up and create your flipbook.