2025.11.17 Mickler - Design Development

Page 1


Mickler Residence

Skyview Ranch

November 17th, 2025

Plumbing & Hardsurfaces

Materials & Concept

Aged Cedar Aspen Canyon Gray Arendale
Wood Plank Ceiling Outside, Carried into the inside Foyer
Bronze Metal Transition at Stone Openings

Great Room

36" Silgranit Sink in Cinder
Countertop
Prep Kitchen
Kitchen Countertop
Cabinet Front Style - Stained
Drawer Cabinet Fronts with layered storage.
Outdoor Kitchen Countertop Material - Quartz
Matte Black Faucet Silgranit Sink
Sink Idea
Alternative Cabinet Designs
Floor Tile

Table and Chairs -

Stone Wall in Dining Room
Dining Room Chandelier
Backsplash Option
Countertop Option
ter Faucet nless Steel Sink
Floating Vanity with Integrated Sink Wall Mounted Faucet 8 7/8" Depth
Option to do wallpaper in space
Coffee/Tea Bar Backsplash
Pewter Faucet Silgranite Sink
Option to do stained ceiling
Blackout Shades Sheer Drapery Panels
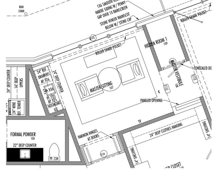
Countertop & Shower Slab
Floating Vanity Design, Possible Pendant Lights & Mirror Design
Cantiliver Shower Bench

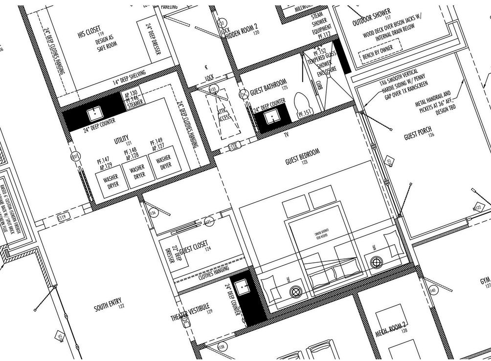
Guest Room/Utility

21"W Sink Utility
Countertop
Brushed Nickel
Remnant Option
orcelian Tile
Matte Black Finish

Theater Room & Pool Bath

Countertop
Theater Vestibule- Pool Bath-
Remnan
Matte Black Finish
Carpet Floors & Wallpaper
Wall Design - Could be painted

Kitchen Pallette Idea

Painted Cabinetry

Quartz Countertop

Brushed Nickel Faucet

Silgranit Sink

Casita Baths

Matte Black Finish

Taj Mahal Quartzite

Cabinetry Inspiration

21"W Silgranite
21"W Silgranite
Brushed Nickel Finish
z Countertop
Quartz Countertop Quartz Countertop

Screened In Porches

Flooring Material?

Possibility for Natural?

Interior

Inspiration for Stained Trim Detail (No Reveal)
Additional Door Panel Suggestion Stained
Door Hardware Inspiration - Finish and Distress Rocky Mountain

713-664-6707

office@manndesignsstudio

Turn static files into dynamic content formats.

Create a flipbook
Issuu converts static files into: digital portfolios, online yearbooks, online catalogs, digital photo albums and more. Sign up and create your flipbook.
2025.11.17 Mickler - Design Development by manndesignsstudiodiscovery - Issuu