Keating - Phase 1 Hard Finishes & Fixtures

Page 1


Keating Ranch

Grape Creek Road

Hard Surface & Design Discovery

Mann Design Studio | June 2024

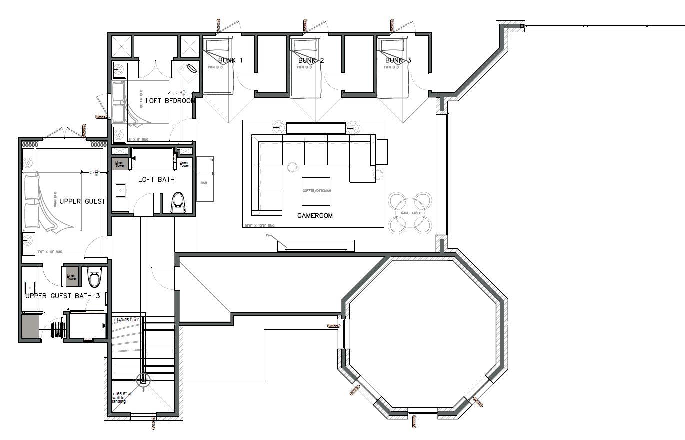
Second Floor

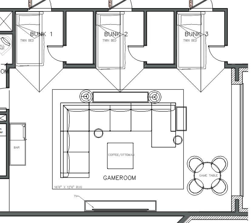
10’ Sofa x 41”D x 36”H (overall)

3 Seat cushions vs 2 Seat Depth 23”D

Game Table Chairs in Leather

Coffee Area - Leather Swivel Club Chair

Possibly with irregular shape rug or cowhide underneath

Swivel Chair x4

Existing Fireplace

New fireplace surround options
Slurry stone

Add a piece of furniture under TV

10’x4’ Dining Table (Shown top) Seating 10

Extended to 14’x4’ Dining Table (Shown Right) Seating 14

Questions:

-Would a wider table be better so you could fit 2 on the end?

-Still want it to fit 6 comfortably to use when guest are not there.

A variation of a Branch Hanging Fixture

69”L x 42”D x 53”H

Chair

Dining Table - Customized to extend for additional seating

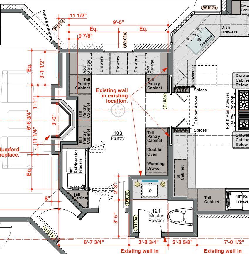
Metal Detail at Stone Arches on both sides of Dining Room

Side Chair

Head
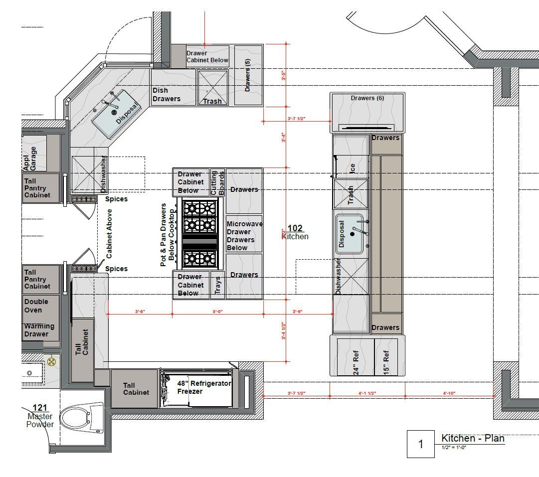
Countertop - Quartzite
Limestone Flooring
Stained Wood Cabinetry
Brass Hardware with Backplate
Inspiration for incorporating wood at Bar Island. Bottom right: Barstool and wall sconce
Antique Mirror Backsplash
Belgian Bluestone Countertop this surface depends on Kitchen counter selection
Metal Cabinet Front Option
Wood Cabinet Front with Metal Inserts/Details
Wood Countertop Option
Patterned Limestone Floor Tile
Neolith Countertop

Hallway Sconce Options

Bottom Stair Detail
Metal Railing

Countertop Option

Edge Detail Option on Countertop

Integrated sink (shallow or deep) all slab or with drawer detail underneath

Wood Detail on Ceiling

Blackout Drapery Panels with Pocket Detail - Soft, Accent Lighting in Cove

(Not Fabric)

Fireplace Design

Custom headboard in Leather or Hide Sconces over nightstands

Swivel Chairs in Front of Fireplace
Chaise Lounges in Primary Sitting
Desk Area in Master Sitting
Countertop Slab Option
Example of Slab Shower Wall Surround
Drapery Behind Tub

Floating Vanity Inspiration Integrated Sink & Wall Mounted Faucet

Casita/Guest

Entry

Belgian Bluestone Countertop
Limestone Floor

Guest 1 & 2

Guest 2 - Four Poster Bed or Spool Bed
Guest 1 - Upholstered Headboard options

Casita Bathrooms - Guest 1 & 2

Stacked porcelain Pattern with Solid and Ribbed Tile
Quartzite Countertop
Vanity Stain
Shower Floor Mosaic
Floor Tile
Shower Floor
Shower Wall Option
Slab Option
Bathroom Tile Palette Inspiration
Bathroom Floor Tile
Wall Tile
Shower Floor
Inspiration
Bathroom Floor
Leather wrapped handrail at Open to Below

713-664-6707

office@manndesignsstudio.com

3214 Mercer St. Houston, TX 77027

Turn static files into dynamic content formats.

Create a flipbook
Issuu converts static files into: digital portfolios, online yearbooks, online catalogs, digital photo albums and more. Sign up and create your flipbook.