2025.05.19 Design Review

Page 1


Design Selections & Cabinetry Elevations

May 19th, 2025

Note: Cabinetry Elevation Drawings to be confirmed and developed as appliance and plumbing details are finalized

All measurements to be confirmed on site by contractor Dimensions provided in attached are for design direction and development

Ceiling Detail Idea - Do we tie in the herringbone pattern somewhere?

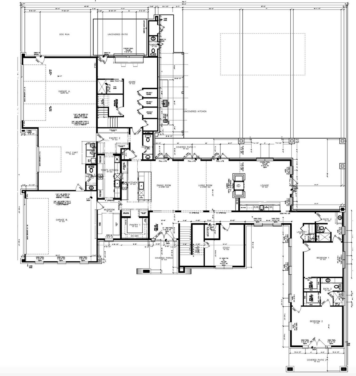
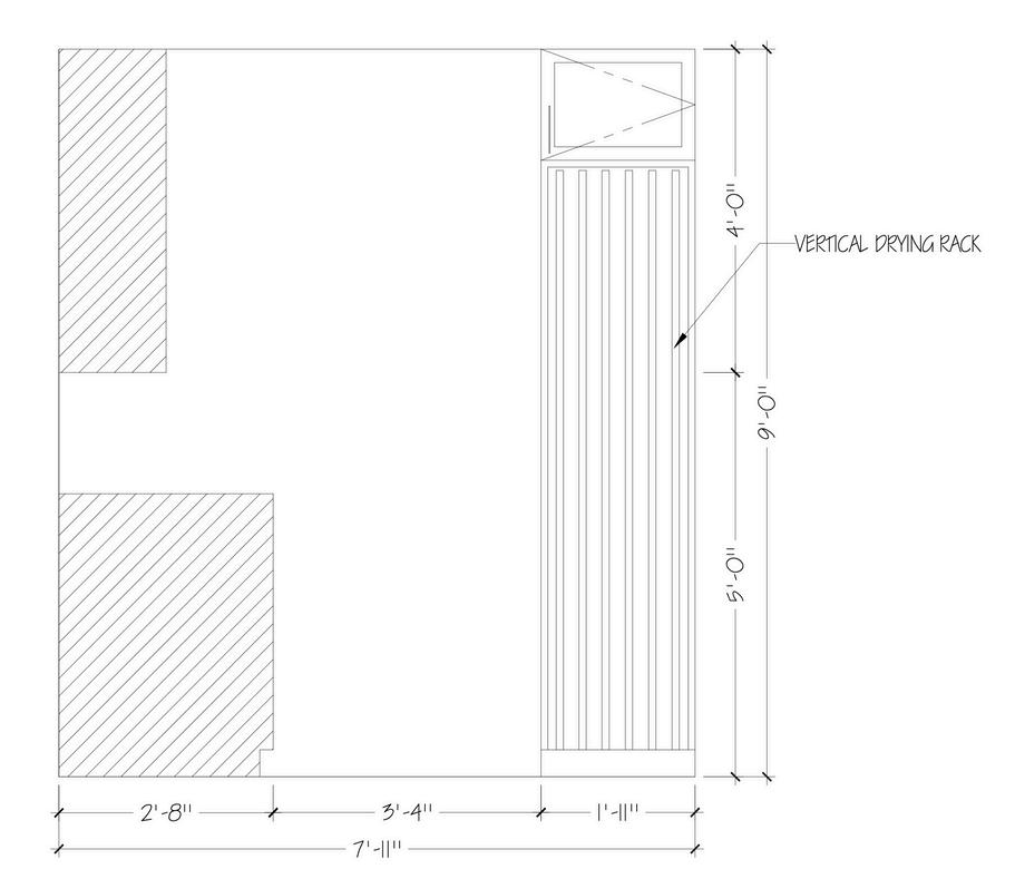
Interior Details

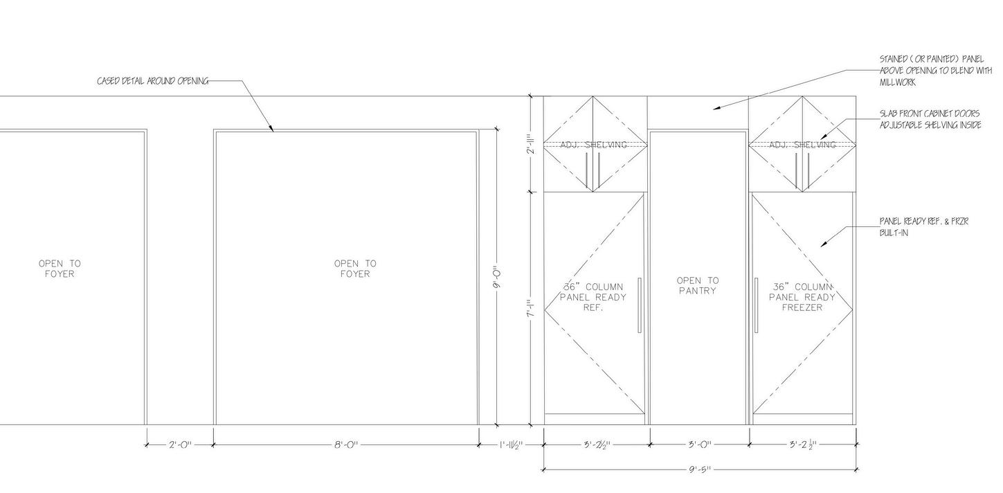
Doorway cased opening example in stained wood (Yours are slightly thinner)

Room

Built-In Cased wood detail
Ceiling Idea
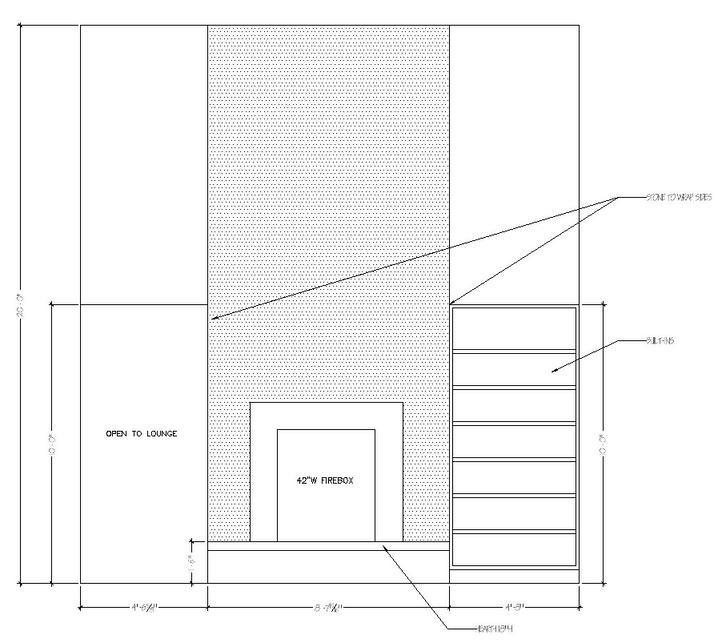
Stone wrapping sides
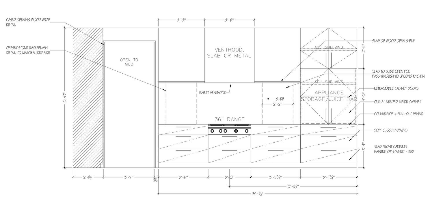
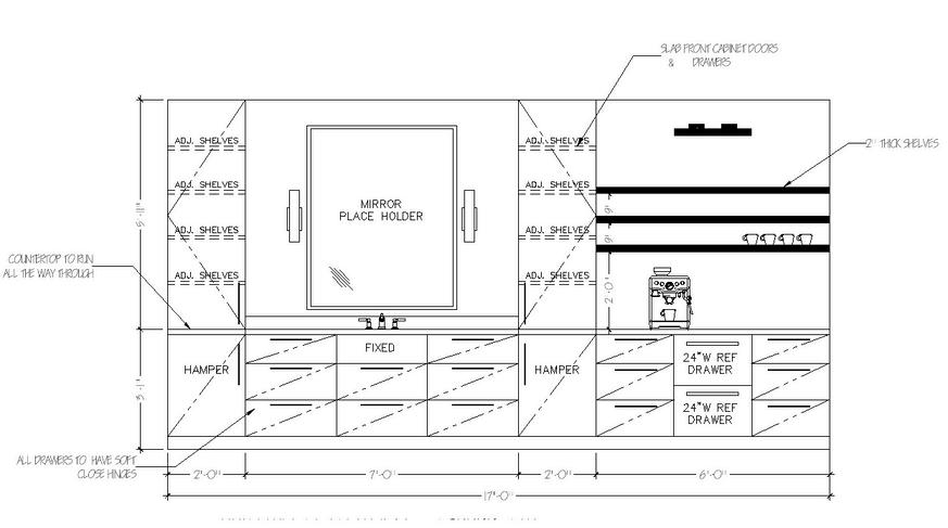
Slabfront Cabinetry
Perimeter Stained Island, Painted Urban Bronze
Slab Options
Reference Photo of Stained Cabinetry with metal hood & slab backsplash

For Panel Ready, Built-In Look - Pantry

Opening size may need to be adjusted To Be

Confirmed once appliances are finalized

Island Painted Sherwin Williams Urban Bronze 7048

Full Overlay

Shaker Style Cabinetry

Base Cabinets Painted SW Urban Bro

Upper Cabinets Stained

Brass Cabinetry Hardware

Backsplash

Countertop Backsplash behind Sink

Brass Plumbing Finish

Antique Doors provided by owner
Brick
Quartz
Vinyl Flooring
33" Silgranite Sink, Cinder

Confirm Venthood Details

Confirm cabinet bank size needed for induction cooktop

Armoire provided by owner

Used to create mudroom storage with hooks & drop

zone Need to confirm height & shape of Armoire

Pew provided by owner

Need to confirm Depth of Pew

Mudroom

AccentWall
Paint Ceiling
Brick Backsplash & Around wall
Quartz Countertop
Brass Plumbing Finish
Vinyl Flooring
Full Overlay
Shaker Style Cabinetry
Base Cabinets Painted SW Ur
Upper Cabinets Stained
Brass Cabinetry Hardware

Slab Intergrated Sink

Need to confirm slab remnant available

(Painted Dark)
Pool Bath Floor Tile
20"x20", Straight Stacked
Countertop
Painted Cabinetry
Shaker Style Cabinet Front
Painted
Full Overlay
Brass Sink Provided by Owner Lounge
Shaker Style Cabinet Front with Detail
Painted, SW Greenblack
Open Shelving with Brass Detail
Antique Mirror Backsplash

Need to confirm Appliance Specifications

Installed:

Quartz Countertop
Brass Faucet
Shower Wall Tile
Vertical Stack
Shower Floor Mosaic
Vinyl Flooring installed in Herringbone Pattern
Shaker Style Cabinet Front Painted, SW Dorian Gray Full Overlay
Need to Confirm Countertop Remnant

Plumbing Fixture

Accent Wall Tile (Behind Vanity)
Shower Wall Tile, Large Format 12"x24", Installed: Horizontal Straight Stack
Shaker Style Cabinet Front
Painted, Full Overlay
Vinyl Flooring
Quartz Countertop
Shower Floor
Polished Nickel Handshower in Shower

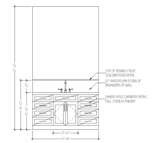
Main Floor Tile, 20"x20"

Installed: 2 Rows up the wall & in kennels - walls and ceiling

Cabinetry Paint Color

Quartz Countertop
Dog Shower Wall Tile
Horizontal, Overlay
Dog Shower Floor Tile
Hexagon Mosaic Adore
Shaker Style Cabinet Front Painted, SW Dorian Gray Full Overlay
Standard Stainless Sink & Faucet
Dog Shower Design
Raised up with 1 step
Tiled walls and mosaic floor
Glass Door
Hand shower for washing
Accent Wall behind Vanity 3"x12", Vertical Stack
Countertop
Cabinetry Paint Color
Main Floor Tile
20"x20"
Shaker Style Cabinet Front
Painted, SW Dorian Gray Full Overlay
Satin Nickel Plumbing
Soft White Paint
Soft White Paint

Need to confirm specificationsappliances

Do we need a sink?

Shaker Style Cabinet Front, Painted, SW Passive
Full Overlay
Floor Tile, 13"x13"
Offset
Quartz Countertop
Cabinetry Paint Color
Backsplash, Overlay
Stainless Faucet and Sidespray

Need to confirm appliance specs

Switching Walls

Shaker Style Cabinet Front,

Painted, SW Passive

Full Overlay

Plumbing Selection

Brushed Gold

Quartz Countertop

Cabinetry Paint Color

Shower Wall Tile

Installed: Herringbone

Shower Floor Mosaic

Bathroom Floor Tile

Turn static files into dynamic content formats.

Create a flipbook
Issuu converts static files into: digital portfolios, online yearbooks, online catalogs, digital photo albums and more. Sign up and create your flipbook.