2025.04.10 Madeksho Design & Cabinetry Elevations

Page 1


Design Selections & Cabinetry Elevations

April 10, 2025

Slab Options
Reference Photo of Stained Cabinetry with metal hood & slab backsplash
Reference Photo of Painted Cabinetry with metal hood & slab backsplash

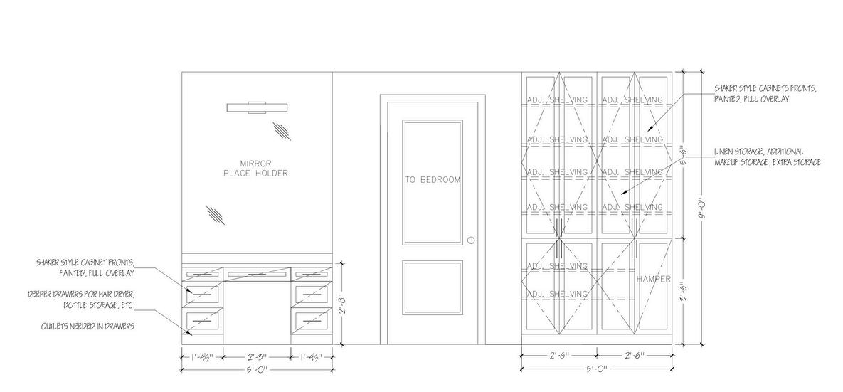
Shaker Style Cabinetry

Painted SW Urban Bronze & Brass Cabinetry Hardware

Antique Doors provided by owner Need to confirm dimensions

Brick Backsplash

Quartz Countertop

Brass Plumbing Finish

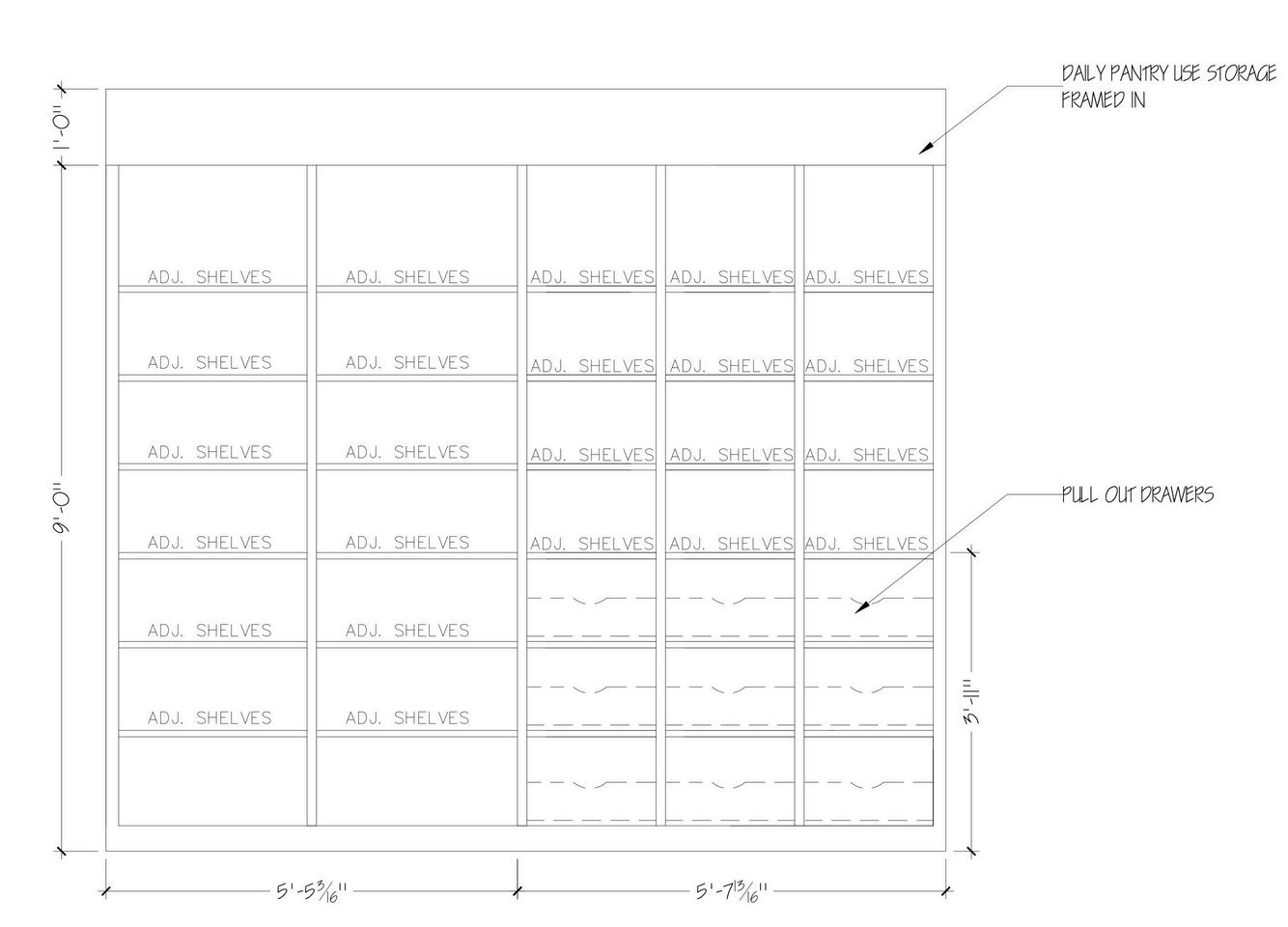
Vinyl Flooring

Armoire provided by owner

Used to create mudroom storage with hooks & drop zone Need to confirm height & shape of Armoire

Pew provided by owner

Need to confirm Height of Pew

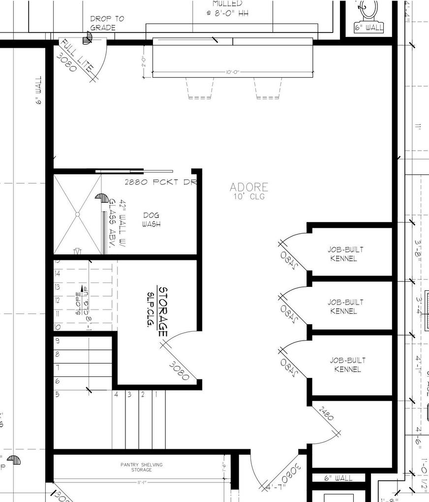
Mudroom

Design to be further DevelopedDo you need to incorporate additional built-in storage around Armoire? Do you need a drop zone/countertop space in here when you enter?

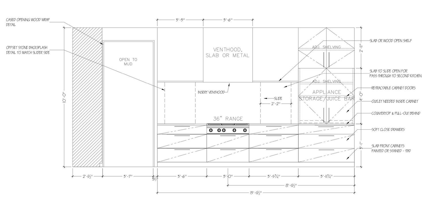
Slabfront Cabinetry
Painted or Stained
Focal wall to have glass cabinetry for Display

What type of storage is mainly needed in this space?

Style Cabinetry

SW Urban Bronze & Brass Cabinetry Hardware

Shaker
Painted
Brick Backsplash & Around wall
Quartz Countertop
Brass Plumbing Finish
Vinyl Flooring

Design to be developed

Previous Countertop Options:

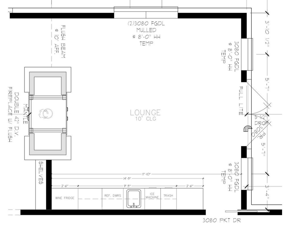
Lounge

Shaker Style Cabinet Front with Detail
Painted - Dark
Open Shelving with Brass Detail
Antique Mirror Backsplash

Need to confirm Appliance Specifications

Installed:

Quartz Countertop
Brass Faucet
Shower Wall Tile
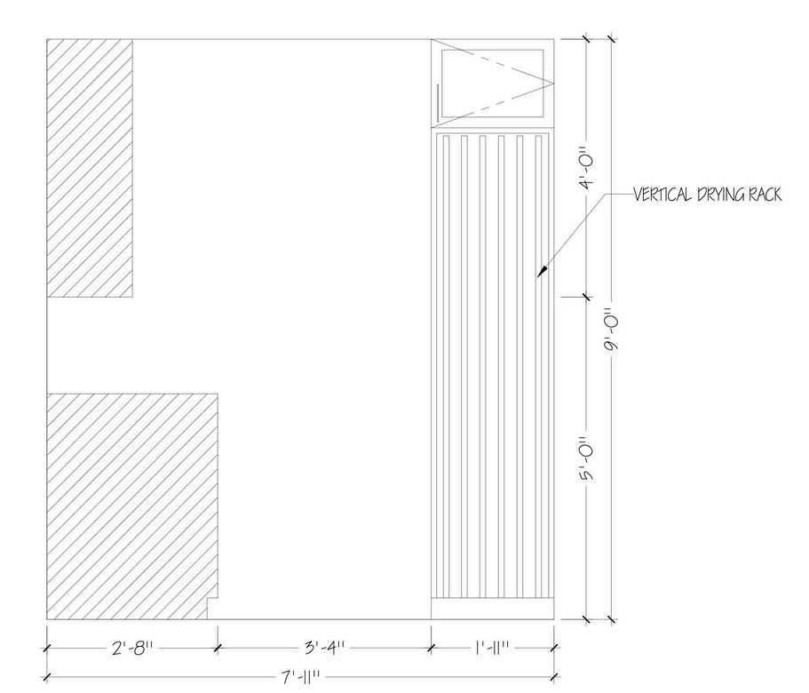
Vertical Stack
Shower Floor Mosaic
Vinyl Flooring installed in Herringbone Pattern

Are you purchasing vanity for this space?

Reference Photo for found Sink/Vanity

Countertop Needed
Shaker Style Cabinet Front Painted Full Overlay
Accent Wall Tile (Behind Vanity)
Shower Wall Tile, Large Format 12"x24", Installed: Horizontal Straight Stack
Shower Floor Tile
Bath 3 (Downstairs Guest)
Shaker Style Cabinet Front Painted, Full Overlay
Polished Nickel Faucet
Vinyl Flooring
Quartz Countertop
Dog Shower Floor Tile
Main Floor Tile, Large Format 24"x24"
Quartz Countertop
Dog Shower Wall Tile
Shaker Style Cabinet Front Painted, Full Overlay

Do you need additional storage cabinets in here?

Shaker Style Cabinet Front Painted Full Overlay

Selections to be confirmed

Slabfront Cabinetry
Quartzite Countertop
Soft White Paint

Selections to be confirmed

Slabfront Cabinetry

Need to confirm specificationsappliances, plumbing, etc

Shaker Style Cabinet Front, Painted, Full Overlay
Floor Tile
Quartz Countertop
Cabinetry Paint Color

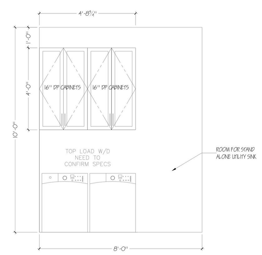
Would a tall countertop for folding space work?

Need to confirm appliance specs

Shower Mosaic
Shaker Style Cabinet Front, Painted, Full Overlay
Plumbing Selection
Quartz Countertop
Cabinetry Paint Color
Shower Wall Tile
Installed: Horizontal, Overlay
Bathroom Floor Tile

Turn static files into dynamic content formats.

Create a flipbook
Issuu converts static files into: digital portfolios, online yearbooks, online catalogs, digital photo albums and more. Sign up and create your flipbook.