Madeline Bradley 2022 Architecture Portfolio

Page 1

2020-2022
Not only of sight and sound, but of mind.”
MADELINE BRADLEY
- Rod Serling
Architectural Portfolio 2022
Photo Cred: IG:65_andsunny

Hello,

My name is Madeline Bradley and I am 23, living in Lawrence, Kansas and aim to finish my Master of Architecture degree in 2023. I approached my Architecture degree from an artistic background and am interested in designing and researching green urbanism and reducing urban heat islands. In addition, to researching, finding solutions, and re-designing the medical model for longterm care facilities in regards to senior

patients. I take delight in questioning my field research and leaving questions for my audience to inform them of my design thinking process. I’m currently learning to be more effective with my work and thoughtfully detailed to impact my reader. I am a strong believer in the ability of Architecture and research combined with design thinking for strengthening societies and having a positive impact on the world.

Madeline Bradley phone /816.309.2229 email /m914008@ku.edu linkdln /madelinebradley

Interest in Architecture Research: Health and Wellness Senior Housing Re-Design Cross-Generational Community Living Co-Housing | Retirement Living

Experience

2022 Jun - December

HKS Inc. Health + Wellness Internship

Full-time Washington, DC

Assisted in Medical Planning on various design softwares Determined impact of environmental, zoning, and other regulations on site Prepared diagrams illustrating spatial relationships and functional adjacencies Communicate design ideas to client with 2-D & 3-D computer aided design software Conducted Research pertaining to Health and Wellness based topics

2023 Jan - May

HKS Inc. Internship

Part-time Remote

Design Programs

Sketch-Up / V-ray / Enscape

Microsoft Office

Adobe Illustrator / Photoshop

Revit Architecture / Enscape

Adobe InDesign Lumion

AutoCAD

Involvement

2017 2018 2018 - Present 2018 - Present 2019 2020- Present 2020-2022

2022 2022 - Present

/ National Freshman Leadership Organization / National Sophomore Leadership Organization / National Collegiate Scholars / Rising Scholars / NOMAS Organization / Multi-Cultural Academic Scholars Program / KU / M. Arch First Professional Portfolio Finalist

/ HOK Scholarship Diversity X Design Recipient / NCARB Working towards license

References

Nilou Vakil

Hui Cai Kent F. Spreckelmeyer

/ nilou.vakil@ku.edu / 785.864.0036

/ huicai@ku.eduu / 785.864.0025

/ kents@ku.edu / 785.864.3164

Published Research

2022 2022

How Well is Wayfinding Facilitated in Nursing Homes?

An analysis on care centers built environment and the influence it has on dementia and Alzheimer residents navigation and autonomy

Reevaluating the Mental and Behavioral Environment for Pediatric Inpatients

An analysis on pediatric inpatients built environment to better serve their mental and emotional recovery when experiencing a crisis

CONTENT

Aspen School for the Blind 01

- 26th & Roslyn Denver, Colorado 80238 Berkley Riverfront 02

- River Front Rd, Kansas City, Missouri 64120

Carpe Senior Housing 03

- E 18th Street, Kansas City, Missouri 64108

Library Perspective
“How can we design with sensitivity for a young demographic with visual impairment, while instilling confidence for them to navigate a world that does not facilitate universal design strategies?”

Aspen

School for the Blind

Education

26th & Roslyn Denver, Colorado

Professor: Nilou Vakil

Partner: Trina Mills Spring 2022

In 2015, the CDC claims that approximately 3.22 million people in the United States have vision impairment Through 2050, the number of people with visual impairments are projected to steadily increase. Universal Design is important to implement in any built environment to accommodate people with different abilities. But how do you prepare and design navigation tools to a visually impaired demographic, that does not always have an environment that supports their autonomy?

Located on 26th and Roslyn in Denver, Colorado, Anchor Center for the Visually impaired, is a school that provides early intervention from birth to five years of age, to enhance the child’s quality of life and prepare them for a world that doesn’t always accommodate their disabilities. My partner,

Trina Mills, and I were tasked with designing a K-5 School for the Blind that compliments the Anchor Center Curriculum and provides an environment for students to meet their full potential in all aspects of their lives. The site is across the street from the Anchor Center and has direct connection for students transitioning from Pre-K to kindergarten with ease. Wayfinding from their previous school to the new one was an important aspect to give the student as much autonomy and confidence when navigating to a new space. A question we hoped to answer by the end of this project was, how can we design with sensitivity for a young demographic with visual impairment, while instilling confidence for them to navigate a world that does not facilitate universal design strategies?

Site Context

In a region that has 3,100 hours of sunshine per year, utilizing and adding to the existing pocket parks and maintaining a reduction in the contexts urban heat island was important to build on the towns resilient community. South of the site opened up to a massive park, called the Fred Thomas Park. When considering site layout and design strategies, in other case studies we reviewed initially, many visually impaired schools appreciated a park nearby or on site for students to have shade when walking outdoors during the hot seasons. This was due to students needing to avoid the sun glare with the help of shaded trees, in addition to teaching them how to walk freely on the park paths.

When considering program in relation to the site, we wanted to have the classrooms on the north side, farthest away from E 26th ave and Roslyn Street, due to the street being a major

transportation road and having strong potential for noise disruption. Adding a garden and vegetation in the courtyard spaces on the site would add to the pocket parks to the surrounding context nearby. It would also help reduce heat vulnerability, which is a big issue in Colorado due to the constant heat. An overall increase in foliage would help with added shading and provide a cool outdoor experience for students when they are at recess or an outdoor event. Surrounding Anchor Center and the proposed site is a residential hub with homes not surpassing two stories. On the north side of the site, we planned to have program respond to the roof line conditions. To blend in with the urban fabric, it was important for us to take note of the residential influence and follow similar roof typology and volumes in our building design to provide the users with a sense of home.

N

N Roslyn Street

Proposed Development

Anchor Center

One-Way Transportation Heading North

Pocket Parks

N Roslyn Street

Primrose School
E 26th Ave
Round-About Drop-off | Pick-Up
Playground RoslynSt E26thAve Circulation Service Space Service Private Space Semi-Public Public Space
Staff Parking Lot

1. CENTRALIZE SPINE

The form runs along a central circulation spine that creates a intuitive way-finding system. The Central spine was extruded from the other programs to allow controlled natural light navigation. The other programs facing the residential street, E 26th Ave, respond to existing roof line conditions.

2. SNAKE THROUGH THE TREES

The centralized spine and the building was then curved to respond to the existing park datum lines and to allow the form to snake through some of the older existing foliage.

3. CELEBRATING RELIEF

To allow celebration of larger programs, the form push’s out more at key points from the spine. The pockets of relief naturally create important outdoor pockets filled with opportunity for student and staff.

Back of House: Classrooms

Drawing completed by: Trina Mills

Design Strategies

We started researching forests in Colorado and took note of the beautiful tree formations against the rocky mountain scenery. The month of September is an deal time to witness gilded aspen on a scenic drive in Colorado. We noticed the Aspen trees bloomed beautiful yellow, red, and orange leaves in the fall period. Envisioning a walk under the aspen trees, as the sun transmits the colors to the ground must be breathtaking. When considering this beautiful staple of Colorado into our project. We wanted our building to take our students and staff on a trail through the Colorado forest in the fall period. This style will be a new branch of universal design to accommodate and fit all user needs.

In regards to people with visual impairments, bright colors are generally the easiest to see due to their ability to reflect

light. Lighting can influence the perception of color. Dim light can wash out some colors, while bright light can intensify others. Solid, bright colors, such as red, orange, and yellow are usually more visible than pastels. The connection of the fall aspen trees to the important color cues that support wayfinding for the students was a design strategy that we wanted to implement throughout the building. Stainglass has a similar effect of fall leaves and tree branches when the sun reflects the design to the ground. We implemented clerestories with stain-glass throughout the corridor to utilize bright colors as a navigation tool while also providing the illusion of being under the fall aspen trees.

Drawing completed by: Trina Mills

Navigating in Corridor Drawing completed by: Trina Mills

North Elevation

1/4” = 1’-0”

South Elevation

1/4” = 1’-0”

1 A01 1 A01

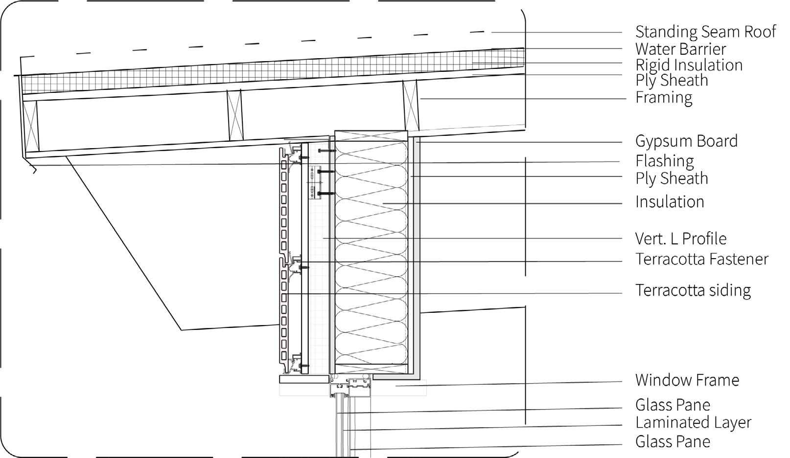
Footing Callout

Callout completed by: Trina Mills

1 A01
East Section 1/4” = 1’-0” 1.1

Footing Callout

Callout completed by: Trina Mills

1.2 1.3 1.3 1.2 1.3
1/4”
1 A01
1.1 West Section
= 1’-0”

Footing Callout 1.1

Callout completed by: Trina Mills

Site Plan 1/16” = 1’-0” 1 A01 01 01 13 14 01 01 10 11 12 01. Classrooms 02. Kitchen 03. Cafeteria 04. Gymnasium 05. Flex Space 06. Teachers Lounge & Development 07. Music Room 08. Art Room 09. MEP 10. Admin Office 11. Primary Entrance 12. Library 13. Greenhouse 14. Playground
N Roslyn Stree t E 26th Ave 01 01 02 03 04 05 06 07 08 09

Classroom Perspective

Berkley Terraces

Mixed Use

River Front Rd, Kansas City, Missouri 64120

Professor: Eddy Tavio Partner: Bridgett Espino Spring 2021

Studio 508 was tasked with creating a world class destination at the front door of Kansas City. The over arching question we needed to answer in the conceptual phase was, “What does it take to actually build places that have lasting cultural value?” The 60acre plot of land stretched along the Missouri River and consisted of mixed use, promotion of active lifestyles, sustainable design, entertainment, and planning for the next economy. My group specifically was tasked with designing a mixed use building in the center of the 60-acres. The objective is to have the medium rise building draw both residential and commercial density to the area and provide amenities in-line with top-tier cities across the United States.

Design Intent: Berkley Terraces fuses greenery and social interaction to create long lasting entertainment value. It consist of offices, retail, commercial, food, and a variety of housing types in a compact site footprint. This mixed use

development optimizes views to the river, facing north and south, along with preserving views for the surrounding buildings and residences. Starting at the second level and leading up to the top floor, the balconies hug the form and maximize views and daylight all around the parcel. Vegetation is integrated throughout the resident floors to both create privacy and maintain the picturesque feel of the traditional town. In addition to privacy, wooden louvers were built into the residence floors and office levels to implement sun-shading.

Cred: IG:65_andsunny
Photo

railway

interstate -35

BerkleyParkway

Heart ofamerica Bridge interstate29

guinotteavenue railway railway railway indePendenceavenue

existing roads

ProPosed rd modification ProPosed rlwy modification

existing railway

interstate -29
Diagram completed by: Dakoda Ash

This diagram illustrates the modified and added vehicle and pedestrian transportation routes, along with the new commercial and residential spaces to the Berkley Riverfront.

Diagram completed by: Liz Putnam
SITE PHOTOGRAPH OVERLAYED GREEN SPACE ROADS RAILWAYS CYCLING PATHS EXISTING COMPONENTS Bar K River Market Columbus
Residential Residential Volleyball Courts
Park

Existing entertainment, commercial, and residential spaces in the Kansas City, Missouri area. Relative to our site, there is a lot of new development but not a second downtown KC feel currently. How can you bring a second powerhouse that contains lasting cultural value?

Diagram completed by: Donovan Brook

Out of the 12 floors that made up the Berkley Terraces, the first four levels were the sections within the building that changed the public and private access between residential and commercial circulation before it became consistent residential to the top.

Level One Commercial
Level Three Amenities Floor Level Four-Twelve Residential Level Two Office Residential Commercial

The conceptual idea is centered around vertical, terra-formed courtyard that maximizes green-space, contains a central water element, outdoor seating and public space, and a variety of modular commercial spaces that intertwine with one another.

IG:65_andsunny
Photo
Cred:

04. Create connections and open the courtyard to the park.

03. Create terraces to optimize views towards the park

02. Orient buildings North-South to preserve views to surrounding buildings

01. Site

North Perspective

Carpe Social Senior Housing: Independent | Dependant Long-term Care

E 18TH ST, KCMO 64108

Studio 608 was tasked with envisioning 18th Street corridor as a car-less, pedestrian focused and multi-modal transit that will connect two arts centered destinations into a single, urban scale experience. Currently, the west end of 18th street corridor is the font lawn of the Kauffman Performing Arts Center and the hub of the First Fridays, Kansas City’s premier arts festival. Anchoring the east end of our master plan is the historic Kansas City Jazz District located at 18th and Vine. We plan on connecting the two anchor destinations into a single east-west pedestrian-only corridor that will still allow vehicular traffic to cross north-south at existing street intersections. This new pedestrian corridor is a community-focused, arts driven, urban-scale experience. We each identified a site along this newly published corridor that is suitable for mixed-use urban living.

Design Intent: Re-imaging a long term care senior living environment was important to add to the 18th Street Corridor because by 2030 more than a 5th of the US population is expected to be over 65. After 64, more than 2/3 of people start

frequenting the doctor 3 or more times a year. Present day, boomers are facing a caregiver crunch in their golden years. A growing need for medical care is clear, but what form ill it take and what spaces will it occupy? Considering LTC facilities there is a need to reevaluate how elderly are treated within society. You can naturally assume within the context of architecture is to think about medical hospitals designing accessible cities. But these all overlook an emerging and serious problem: loneliness and social isolation. Living in modern LTC communities provides an opportunity for engagement and interaction while beginning to shed this stigma, and allow residents to regain their independence. I chose the name Carpe, because in French to English it translates, “to enjoy, seize, and make us of,” and applying that to Senior LTC communities its important for residents to reactivate their independence and get the most out of their day through the max social activities housed on the site. The Carpe Senior Housing Project allows Seniors to seize any activity they get involved in and enhance their quality of life with all their needs at their grasp.

Senior Living Site

Dependant Units: 90 Units

1 Bed 1 Bath_650 SQFT^2 Independent Units: 48 Units

1 Bed 1 Bath_550 SQFT^2

Early in the research process, I examined the existing health facilities and longterm care facilities in the KCMO area relative to my site. I went back 1000 meters and took note of just how far apart the clinics are to LTC. A solution I propose is to have a senior clinic on my site to resolve this current issue. This would uplift the need for vehicle access for dependent residents and give seniors their independence back.

01 SELECT

Prime gateway location in need of senior healthcare

02 CARVE

From building envelope 03 ACTIVATE

The street and courtyard with and entertainment

DEPENDANT LTC SENIOR LIVING

INDEPENDENT SENIOR CO-HOUSING

SOCIAL HUB | COMMUNITY

with retail, food, entertainment

04 CREATE Residential design for LTC facility | non-institutional

05 INVITE Passageway and social interaction AXONOMETRIC SECTION

Bowling Alley 2900 Square Feet Senior Health Clinic 6000 Square Feet Grocery Store 9660 Square Feet

Before the design phase of Studio 608, we conducted an extensive program diagrammatic studies to understand all the program we proposed at our given site. I conducted 15 diagrams that primarily promoted an increase in socialization and senior independence.

PRIVATE

North Elevation E 18TH ST

SEMI-PUBLIC

PUBLIC

East Elevation Troost Ave

01 Ground Level TROOST AVE FOREST 01 02 03 04 06 05 07 08 09 10 11 12 13 14 15 16 16 16 16 17 17 11 11 11 N E 18TH STREET E 17TH STREET TROOST AVE 02 Second Level 18 19 19 19 19 20 21 19 19 19 19 01 Health Clinic 02 Grocery Store 03 Cafe 04 Restaurant 05 LTC Facility Main Lobby 06 Hair Salon 07 Zen Garden 08 Pottery Studio 09 Paint Studio 10 Aviary 11 Senior
Main Entry E 18TH STREET E 17TH STREET 12 Flex Space 13 Social Hub 14 Courtyard 15 Parking Garage Entrance 16 Senior
Parking 17 LTC Lobby 18 First
19 First
Units 20 Bowling
21 Second
22 Third
Floor Plan Key:
Co-housing
Co-housing
Floor of LTC Residential
Floor of Senior Co-housing
Alley
Floor of Social Hub
Floor of Senior Co-housing
FOREST N E 18TH STREET E 17TH STREET TROOST AVE FOREST 03 Third Level 22 22 22 22 22 22 22 22 23 24 N 00 LVL 01 LVL 02 LVL 03 LVL 04 LVL 05 LVL 06 LVL 07 LVL

LONG TERM CARE IN-PATIENT ROOM DESIGN WITH HOMELIKE CHARACTERISTICS

NON- INSTITUTIONAL CHARACTERISTICS

When revising the long-term care facility unit design, its important to design an environment that feels familiar to the patient transitioning from home to a permanent nursing home. Qualities such as, a rug to family photos hanging up on the wall, can ease the residents way-finding and loneliness

MEMORY LEDGE

A memory ledge in a long-term care facility are used for the resident to place any memorabilia from their previous home and be able to create an environment that mirrors home as much as possible. Items that are usually placed on memory ledges include but are not limited to: picture frames, stuffed animals, books, and baby dolls.

LARGE BATHROOM | WHEELCHAIR ACCESSIBLE

When designing a wheelchair accessible full bathroom in a long-term care facility room, its important to think of ways for the resident to have as much independence performing task without the assistance of a nurse. This specific bathroom design has fold able doors for the wheelchair to not run the risk of running into the door upon opening or closing. In addition to a walk in shower the length of the wheelchair to fit.

In-Patient Unit Design LTC Unit Design Perspective
“Front
Outdoor Courtyard
Door “of site
Indoor Gathering Space
2020-2022 ph: 816.309.2229 / m914008@ku.edu / IG: @madelinebradley / in: madelinebradley MADELINE BRADLEY Architectural Portfolio 2022
Photo Cred: IG:65_andsunny

Turn static files into dynamic content formats.

Create a flipbook
Issuu converts static files into: digital portfolios, online yearbooks, online catalogs, digital photo albums and more. Sign up and create your flipbook.
Madeline Bradley 2022 Architecture Portfolio by MadelineBradley07 - Issuu