HSO511-60
HSO511-90

Max. 20 Kg de carga


Fecha de elaboración
Fecha de revisión
25 11 25
Pantalonero extraíble cierre lento
Material
Acabado superficial Montaje
Aluminio -Acero Gris antracita Para Atornillar
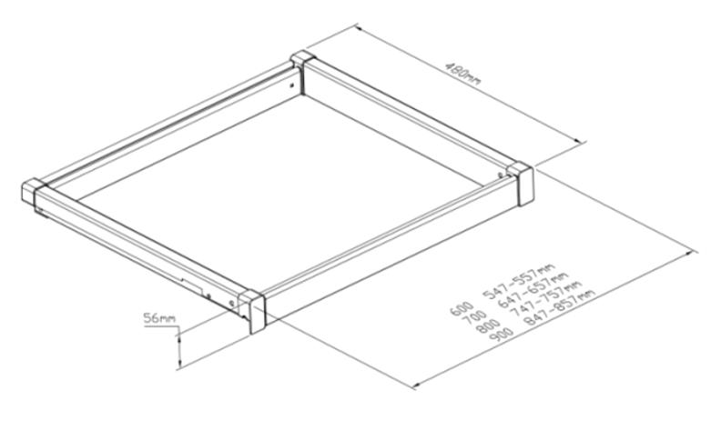
HSO511-60 557mm 600mm 480mm 56mm 500mm 1200mm
HSO511-90 900mm 500mm 857mm 480mm 56mm
1200mm
Referencia Medida del Herraje Medida del Módulo A B C Suministro: 1 Pantalonero 1 Juego de rieles Tornillos
(Medidas de referencia para su instalación. Se puede generar cambios a la información publicada en este documento sin previo aviso)
Pasos
HSO511-60
HSO511-90
Fecha de elaboración
Fecha de revisión
Hoja de instrucciones
1- Fija el riel (1) al tablero lateral con los tornillos ( 2), tal como se muestra en la imagen.
Nota: los dos rieles deben quedar exactamente al mismo nivel.
2- Ajuste de ancho de 50 mm:
A oja el tornillo (5), ajusta el ancho que necesites tal como se muestra en la imagen A.
Coloca el marco de aluminio encima de los rieles con un ángulo de 30° y empújalo hasta el fondo del riel (como se ve en la imagen B y en el paso 3).
25 11 25
A continuación, presiona hacia abajo el marco (paso 4) para que encaje completamente con la bayoneta del riel.
Aprieta el tornillo (5).
Importante: ambos lados deben moverse al mismo
3- Coloca los herrajes en el marco de aluminio tal como se muestra en la imagen.
(Medidas de referencia para su instalación. Se puede generar cambios a la información publicada en este documento sin previo aviso)