Table of COntents
Project Overview
Project Description
This project is designed to give students a small taste of residential design. Each student got to choose a client and proceeded to design a downtown loft based on the description and needs of the client. The loft spaces are from an older, commercial building but designed and converted into an urban, residential space for each client.
Client Description
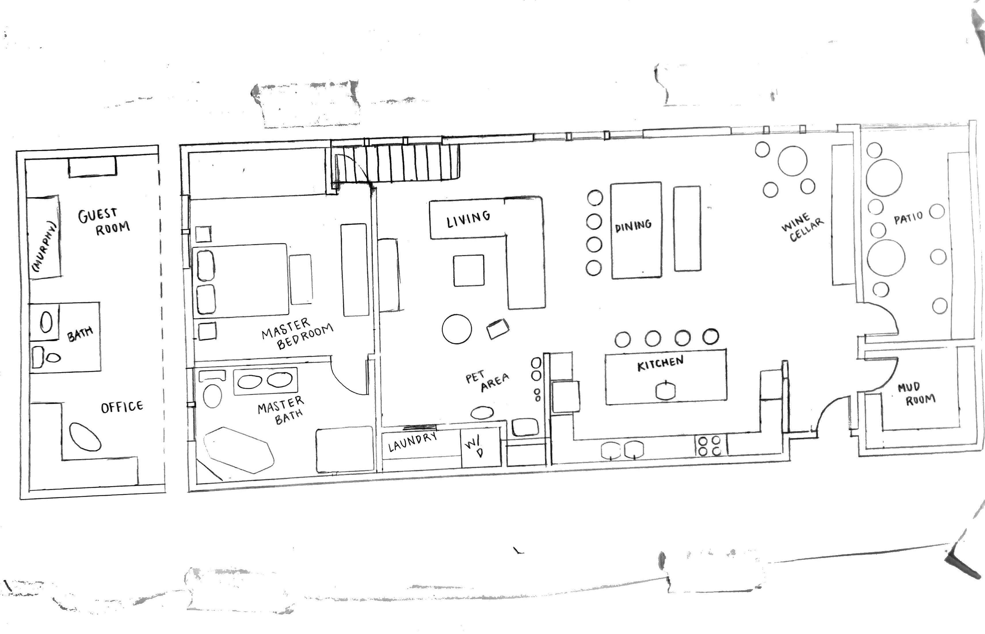
Emile and Jonathan are a married couple living in Seattle, WA. They share one dog named Queen Anne, which is the neighborhood they live in, and one cat named King George. One works from home as an accountant. The other works at Adobe. One is Danish and both like the modern Scandinavian aesthetic. They cook and entertain often for a large group of friends. Wine aficionados. Art collectors, mostly paintings and prints.
Research Highlights
In order to deliver the “modern Scandinavian aesthetic” wanted by the clients, key elements in this design will be:
- Light, neutral colors
- Airy spaces filled with light
- Wood furniture and wood accents
- Muted, dark hues
- Decorative, statement pendants
It is also important to provide spaces for an at-home office, a wine cellar, and an area for the pets. It was also significant to incorporate a lot of Scandinavian and Nordic style prints to show off the couples’ collection.
Design Concept
Statement
The design of this loft explores the minimalist aesthetic while keeping things functional, airy, and beautiful. This space will allow for productivity as well as entertainment. Enhancing the space with wood accents, dark hues, and decorative pieces will allow for this couple to feel comfortable and at home on those rainy Seattle days.
Classy Airy Refined
Floor Plan
Floor Plan lvl 2
Kitchen Elevation
Rendered Perspectives
FF&E Collages
Kitchen
K1 - Double Sink
K2 - Gas Cooktop
K3 - Double Wall
Oven
K4 - Hood
K5 - Double Door
Refridgerator/Freezer
K6 - Faucet
K7 - Island Stool
K8 - Cabinet
Hardware
K9 - Lighting
dining/entry
E1 - Coat Hooks
D1 - Dining Table
D2 - Dining Chairs
D3 - Bench
D4 - Floating Shelf
L1 - Entry Light
L2 - Dining Light
Living
LV1 - Sectional Sofa
LV2 - Chair
LV3 - Coffee Table
LV4 - Area Rug
LV5 - Fireplace & Mantel
LV6 - Throw Pillow
LV7 - Throw Pillow
Master Bedroom
MB1 - Double Vanity
MB2 - Sink
MB3 - Faucet
MB4 - Mirror
MB5 - Shower Hardware
MB6 - Toilet
MB7 - Bathtub
MB8 - Shelf
L6 - Vanity Lighting
patio/wine cellar
P1 - Lounge Chair
P2 - Bar Table
P3 - Outdoor Rug
WC1 - Wine Cooler
WC2 - Shelf
WC3 - Pub Table
WC4 - Stool
P1 WC4 WC2 P2 P3 WC3 WC1Finishes & Materials
FF&E
FF&E cont.
Finishes & Materials
Space Planning
Space Planning
Process Images
Process Images
Sustainable Materials Selections
Furniture
All of my furniture and fixture selections are carefully chosen from retailers and other companies that use sustainable practices and/or materials. We learn a lot about sustainable design here at school and it is very important to implement those learnings and ideas into our practice. Pottery Barn and West Elm are great resources to gather modern furniture pieces and other elements. The company I got all of the kitchen equipment from specializes in energy conservation and sustianability as well.
Material
I utilized many of the resources and websites from the materials lab. Knoll and Momentum textiles are used for pillows and lounge chairs. I got all of my tiles (backsplash, floor tile, shower tile) from Virginia Tile. I also used laminate oak flooring from Tarkett in my entire loft. All of these resources are sustainable and durable.
