YOUmedia Teen Library

Page 1

YOUMEDIA TEEN LIBRARY

DES304 - SPRING 2023

LYDIA SCHLOSKEY

PROJECT DESCRIPTION.......................... 3 MOOD BOARD & CONCEPT................. 4 ZONED FLOOR PLAN.............................. 5 RENDERED FLOOR PLAN........................ 6 REFLECTED CEILING PLAN..................... 7 RENDERED PERSPECTIVES...................... 8 - 12 CIRCULATION/CAFE......................... 9 READING/LOUNGE........................... 10 PERFORMANCE/COMPUTER........... 11 STUDY NOOKS.................................. 12 AXON VIEWS.......................................... 13 - 15 AXON VIEWS OF RECEPTION............14 AXON VIEW....................................... 15 PROCESS IMAGES.................................. 16-18 2
TABLE OF CONTENTS

PROJECT OVERVIEW

YOUmedia has decided to expand its digital learning program to locations throughout the Midwest. You have been hired by YOUmedia to design a teen space focused on digital learning at one of the Milwaukee Public Library locations. The library has identified approximately 3000 SF of space on the second floor that will be the future home for this project. This is a space where teens can hang out, get help with homework, experiment with design software in a range of disciplines, record music, and participate in a variety of digital media activities and workshops.

PRELIMINARY RESEARCH

PUBLIC LIBRARY DESIGN TRENDS

- Light and open spaces

- Plan for change

- Allow for plenty of access to power

- Optimize spaces between spaces

- Envision it as a space, not a place

FUNCTIONAL REQUIREMENTS

1. Info Desk – Approx. 150 SF

• This is where library staff will be located, typically 1-2 people during busy hours.

• The client would like the service desk to be visible from the main entrance.

• This desk must be custom designed and meet ADA requirements

2. Library Shelving – Approx. 120 SF

• Provide a minimum of 60 LF of shelving for books as well as resources for exam preparation (SAT, ACT, etc.).

3. Computer Zone – Approx. 300 SF

• Provide a minimum of 10 desktop computer stations where students can work with a variety of media-based software options.

4. Social Zone– Approx. 300 SF

• Provide an area where teens can informally gather, socialize, relax, and work.

5. Lounge Zone – Approx. 200 SF

• Provide a small, more intimate, lounge space with seating for 4-6 people.

6. Performance Zone – Approx. 200 SF

• Incorporate an area where informal performances can take place.

7. Media Zone – Approx. 250 SF

• This area needs to have the option of being enclosed for acoustic purposes. Students can use it to play video games, play music, watch movies, etc.

• This room should have a large projection screen at least 78” H x 104” W

8. Recording Studio – Approx. 150 SF

• Provide a minimum of 8 linear feet of worksurface for 2 computers and mini mum of 1 keyboard.

• This room needs to have a door and acoustic separation.

9. Podcast Booth – Approx. 60 SF

• Provide a minimum of 8 linear feet of worksurface for 2 computers with micro phones, and 2 chairs.

• This room needs to have a door and acoustic separation.

10. Café – Approx. 150 SF

• Provide a sink, microwave, and a minimum 6 LF of countertop.

• Provide (2) vending machines, one for beverages and one for snacks.

11. Reading Zone – Approx. 200 SF

• Incorporate a quiet area where students can read or work on homework in small groups.

12. Study Nook– Approx. 50 SF each (150 SF total)

• Each nook should be designed to accommodate 1 or 2 people.

13. IT Closet – Approx. 50 SF

3

MODERN BRIGHT THOUGHTFUL VISCERAL

This addition to the Milwaukee Public Library, Mitchell Street Branch location, will embody the existing personality of the building while also incorporating new aspects in terms of modernity and function. Creativity, originality, and collaboration will be encouraged through the addition of bright colors, simple materials, and natural light. Additionally, overall functionality and purpose will be at the forefront of the design in order to deliver a space that is, all in all, a great place to learn, a fun place to hangout, and a positive place for individuality to shine.

4

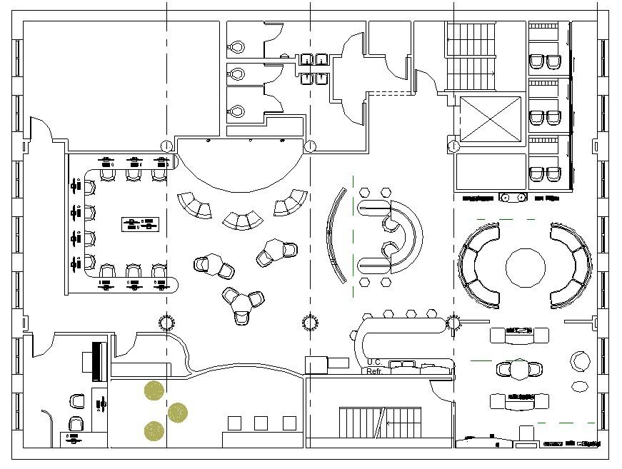
ZONED FLOOR PLAN

COLOR KEY STUDY NOOK

LOUNGE ZONE

READING ZONE

RECEPTION AREA

CAFE

PERFORMANCE ZONE

SOCIAL ZONE

MEDIA ZONE

PODCAST BOOTH

RECORDING STUDIO

COMPUTER ZONE

5

RENDERED FLOOR PLAN

6

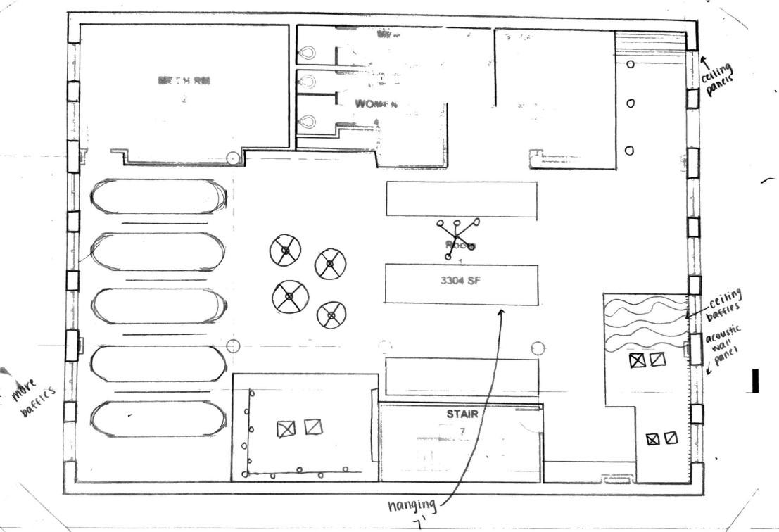
REFLECTED CEILING PLAN

Pendant lights

Wall sconces and ceiling spotlights

13’ high with 4” acoustical ceiling baffles

Curvilinear suspended light fixtures

9’ and 10’

ACT ceilings

6” recessed cans

8’ high with 4” acoustical ceiling baffles

Suspended circilar ceiling tiles ranging from 9’ to 12’

Ceiling suspended 10’ above cafe

Suspended circilar ceiling tiles ranging from 10’ to 13’

7

RENDERED PERSPECTIVES

8

CIRCULATION DESK/CAFE

2 3 4

KEY CALLOUTS

Suspended cicular ceiling panels - improves acoustics around the front desk

Custom curved wall with custouts, glass in each cutout to hinder sound travel from performance zone

Custom reception deskADA

Custom cafeteria counter - ADA

1 2 3 4
9
1

READING ZONE

3 4

KEY CALLOUTS

Haworth Tulip Chairs - create visual and acoustical privacy in open space

Custom bookshelves with curved shelves

Acoutstical wall covering to aid in sound aborption in a quiet area

Arched opening with acoustical material

1 2 3 4 1 2
10

PERFORMANCE/COMPUTER ZONE

KEY CALLOUTS

Moveable tables and chairs to transform social and performance zones

2 3 4

Ceiling baffles to aid in acoustics

Modular furniture pieces - easily moveable and transformable

Acoustical wall covering with sconces for performances

4 2 1 3 1
11

STUDY NOOKS

KEY CALLOUTS

Ceiling baffles to aid in acoustics

Acoustic wall panels to aid in acoustics and design

Height adjustable table

Sliding glass doors for acoustics and easy access

3 1 2 4 1 2 3 4 12

AXON VIEWS

13

AXON VIEW OF CIRCULATION DESK

30” high Cork board for desk attendants 42” high Front approach for wheelchair access Front approach for wheelchair access Open entrance from both sides Teal laminate
14
White textured tile

AXON VIEW OF LIBRARY

15

PROCESS IMAGES

16

PROCESS IMAGES

17

PROCESS IMAGES

18

Turn static files into dynamic content formats.

Create a flipbook
Issuu converts static files into: digital portfolios, online yearbooks, online catalogs, digital photo albums and more. Sign up and create your flipbook.