Palm Spring Accessible Home FALL 2022

Page 1

Palm

Springs Accessible

Home

DES314 - FALL 2022

Lydia Schloskey

Contents Project Overview............................................ 3 Project Description.................................. 3 Client Description.................................... 3 Research Highlights................................. 3 Concept Statement & Imagery..................... 4 Annotated Floor Plan..................................... 5 Rendered Floor Plan....................................... 6 Rendered Perspectives................................... 7 Living Area................................................. 8 Kitchen........................................................ 9 Bathroom................................................... 10 Master Bedroom....................................... 11 Rendered Elevations...................................... 12 Kitchen....................................................... 13 Bathroom................................................... 14 FF&E.................................................................. 15- 21 Space Planning................................................ 22-23 Process Images............................................... 24-26 KraftMaid Items.............................................. 27 2
Table of

Project Overview

Project Description

This project is a great way to introduce students into accessible design in a residential setting. Each student was given one of three clients and asked to design an accessible home in Palm Springs, California based on that description. Mid-century modern aesthetic and elements from Joseph Eichler homes will be important to integrate into each project.

Research Highlights

Mid-Century Modern

- Bold shapes (domes)

- Futuristic feeling materials

- Focus on functionality

- Mixing materials and aesthetics

- Fusion of indoor and outdoor

- Natural hues and pops of color

Eicher Homes

- Bringing the outdoors inside especially with the atrium

- Lots of windows

- Tradition in featuring the front door as a focal point of interest

Client Description

Suzie and Ike are a married couple with one child, Oliver, who is 7. Oliver has a mild case of cerebral palsy and uses leg braces and crutches. They would like to make this their forever home and are thinking ahead so universal design will help them age in place. They would like their home to reflect the Palm Spring history of the Eichler home style and midcentury modern. In addition, Suzie works from home as a marketing specialist and Ike owns his own law firm. They also just adopted a best friend for Oliver, a 10-week-old golden retriever puppy named Murphy, who will be trained to help Oliver with his needs as well. They really want their space to be bright and welcoming while also being accommodating and easy to maneuver.

- Wood accents

- Bright pops of color

- Colorful tile and walls

- Fun artwork

Oliver’s Braces

- Orthotics

- Provide structural support which can help individuals with cerebral palsy improve their form

- They help hold the limb in place and promote musculoskeletal alignment so individuals can walk more naturally

- Increase a childs ability to function both physically and mentally

- He is still very functional

3

Palm Springs

Accessible Home

The design of this accessible home in Palm Springs will explore the historic design and style of the homes built by Joseph Eichler. It will also seek to incorporate elements of mid-century modern design by incorporating pops of color, bold shapes, and a variety of different materials. Additionally, this space will be carefully designed to accommodate for an aging family as well as accessibility codes and standards. Enhancing the space with natural light, organic elements, and wood accents, this space will be perfect for a young family that wishes to make it their forever home.

4 Bold Natural Bright Contemporary

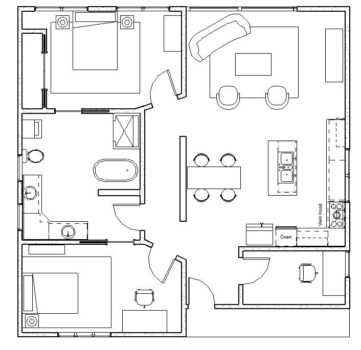
Annotated Floor Plan

Plenty of clearnace on each side of the bed

Left: 3’9”

Right: 6’

Washer and dryer side by side to remove the high reach of a stacker unit

Walk in shower and bath tub allow users to easily utilize the amentities

Floating vanity at 2’6” high

Wide hallway (4’) for easy passage

Room to manuever around living area

Stone or wood floors throughout for ease of travel with Oliver’s braces and/or wheelchairs/ walkers

Island stools with a back to help support Oliver

Touch free sink for ease of use of all individuals

Floating shelves instead of cabinets to take away opening a high cabinet door

Wall oven above lower cabinets (3’). Easy use

Open ends of dining table for wheelchair approach or other hadicapable individuals

18” on pull side of every door

5

Rendered Perspectives

7
8
9
10
11

Rendered Elevations

12
13 K8 K3 T4 T2 K1 L1 K7 K4 S1

Palm Springs & retro posters

14 D2 D3 LV2 LV3 LV5 LV1
L2
T4
L1

FF&E Collages

15

Kitchen

K1 - Refridgerator/Freezer

K2 - Wall Oven

K3 - Dishwasher

K4 - Touch-Free Faucet

K5 - Double Sink

K6 - Electric Cooktop

K7 - Hood

K8 - Island Chair

S1 - Floating Shelf

L1 - Pendant Light

M3 - Kitchen Cabinets

T2 - Countertop

F2 - Floor

T4 - Backsplash

C1 - Cabinet 1

C2 - Cabinet 2

C3 - Cabinet 3

16
K4 K3 K2 K1 K5 K8 L1 K6 K7 M3 T2 F2 T4 C1 C2 C3

Dining/Entry

E1 - Entry Bench

E2 - Welcome Mat

E3 - Hook

L1 - Pendant Light

D1 - Dining Table

S1 - Floating Shelf

D1 - Dining Table

D2 - Dining Booth

D3 - Dining Chair

T4 - Dining Wall

F2 - Floor

17
E1 D1 S1 E2 L1 E3 D2 D3 T4 F2

Living Room

LV1 - Couch

LV2 - Lounge Chair 1

LV3 - Lounge Chair 2

Lv4 - Living Room Area Rug

LV5 - Living Room Coffee

Table

L2 - Floor Lamp

L3 - Celing Light

F1 - FLoor

M4 - Couch Pillow

M1 - Textile - Living Room

Chair

18
LV1 L2 LV4 LV2 LV3 LV5 L3 F1 M4 M1

Master Bedroom

MB1 - Master Bed Chair

MB2 - Master Bed Area Rug

MB3 - Master Bedframe

MB4 - Master Bed Floating

Nightstand

MB5 - Master Bed Orange

Pillow

MB6 - Master Bed Blue Pillow

L4 - Master Bed Chandelier

F1 - Master Bed Floor

W1 - Master Bed Wallcovering

19
MB1 MB2 MB3 MB4 L4 MB5 MB6 F1 W1

Bathroom

B1 - Bathroom Floating Vanity

B2 - Bathroom Sink

B3 - Bathroom Toilet

B4 - Bathroom Touch-Free

Faucet

B5 - Shower Hardware

B6 - Bathtub

B7 - Vanity Mirror

S1 - Floating Shelf

L3 - Celing Light

LD1 - Washer/Dryer

F2 - Bathroom Floor

T1 - Vanity Tile

T3 - Shower Tile

20
B2 B6
B8 LD1 F2 T1 T3
B1
B5 B4 B3 B7 S1

Finishes & Materials

F1 - Bedroom Floor

F2 - Kitchen, Living, Dining, Entry Floor

F2 - Bathroom Floor

T1 - Vanity Tile

T2 - Vanity & Kitchen

Countertop

T3 - Shower Tile

T4 - Backsplash & Dining Wall

W1 - Bedroom Wallpaper

M1 - Black Leather - Island

Chairsw

M2 - Textile - Living Room Chair

M3 - Vanity & Kitchen Cabinets

M4 - Living Room Pillows

21
F1 T1 T4 M2 M3 M4 M1 W1 T2 T3 F2 F3

Space Planning

22

Space Planning

23

Process Images

24

Process Images

25

Process Images

26

Kraftmaid Items

Perifot

Slab

1 Style

Evercore - Moonshine

Polished

Chrome Pull

Pegged Drawer Organizer

27
Maple - Cognac Pacific Palisades Electric Orange Base Organizer Roll-Out

Turn static files into dynamic content formats.

Create a flipbook
Issuu converts static files into: digital portfolios, online yearbooks, online catalogs, digital photo albums and more. Sign up and create your flipbook.
Palm Spring Accessible Home FALL 2022 by lydiaschloskey - Issuu