

C O N C E P T O

U B I C A C I O N
A l r e d e d o r e s y c e r a n i a s
D E P T O S A | B
S u p e r f i c i e s y c o m o d i d a d e s
D E P T O S C | D
S u p e r f i c i e s y c o m o d i d a d e s D E S C U B R Í
![]()


C O N C E P T O

U B I C A C I O N
A l r e d e d o r e s y c e r a n i a s
D E P T O S A | B
S u p e r f i c i e s y c o m o d i d a d e s
D E P T O S C | D
S u p e r f i c i e s y c o m o d i d a d e s D E S C U B R Í
Edificio Vector es un proyecto arquitectónico que se integra de manera armónica en su entorno, ofreciendo una propuesta moderna y funcional para sus residentes. Ubicado en el corazón de Barrio Escobar, en Int. Ramón Bautista Mestre 3790, este edificio de propiedad horizontal (PH) se destaca por su diseño contemporáneo y sus acabados de alta calidad.
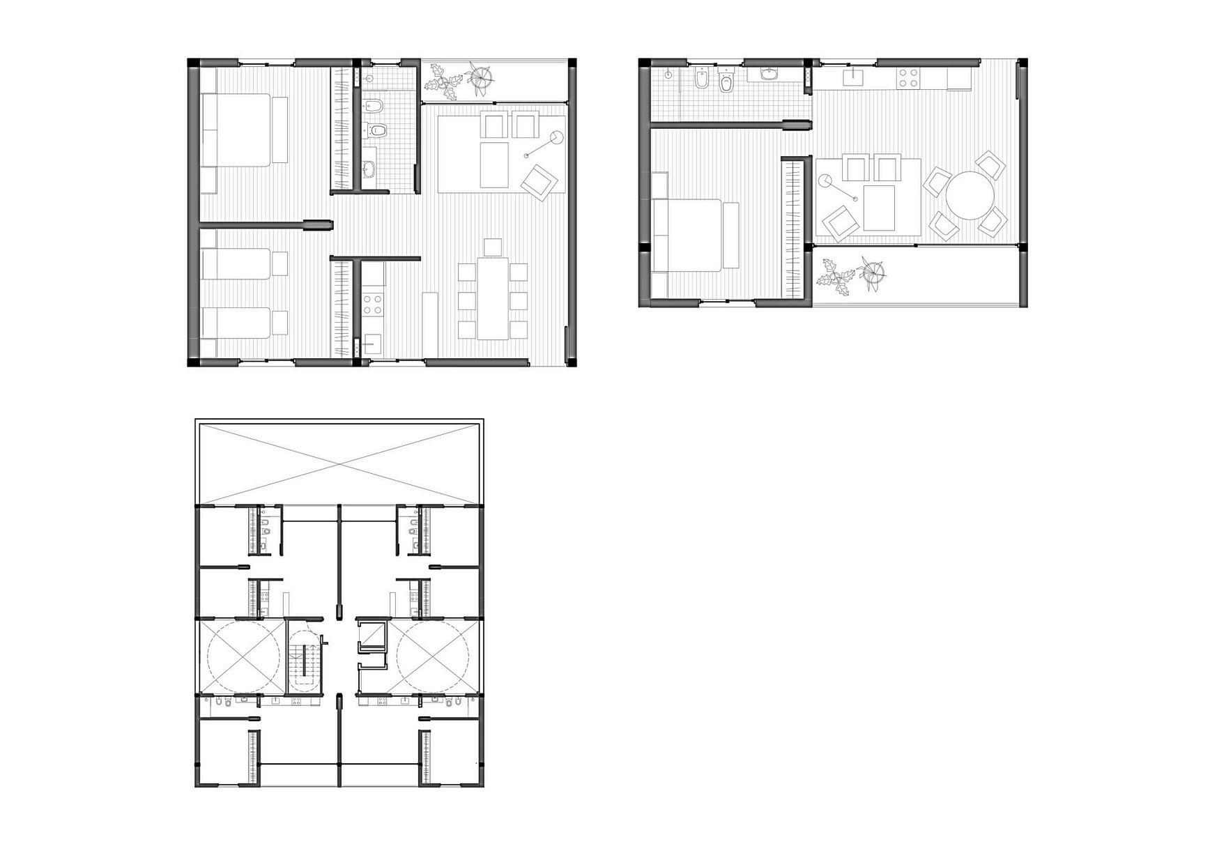
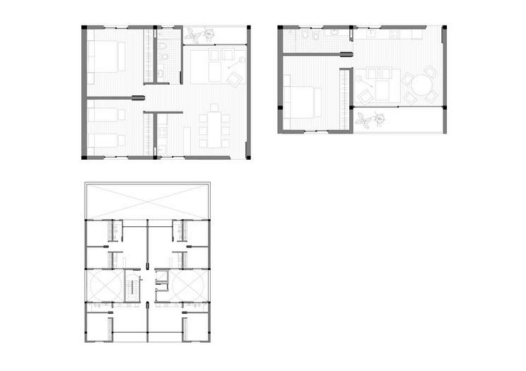
El edificio se compone de planta baja y cuatro pisos, con un total de 14 departamentos y 3 locales comerciales. Los departamentos se distribuyen en dos tipologías: 8 unidades de 2 dormitorios con 75m² cada uno, y 6 unidades de 1 dormitorio con 59m², todas ellas con balcón Están diseñados para ofrecer espacios amplios y luminosos, con una distribución inteligente que maximiza la funcionalidad y el confort. Los acabados seleccionados reflejan un alto nivel de calidad y buen gusto, brindando un ambiente elegante y acogedor.
Los tres locales comerciales, de 20m² cada uno, están ubicados en planta baja y ofrecen una excelente oportunidad para emprendedores y comerciantes locales que deseen establecer su negocio en una ubicación estratégica y de gran visibilidad.
El edificio cuenta además con una serie de comodidades que mejoran la calidad de vida de sus residentes, incluyendo espacios verdes, y estacionamiento La seguridad también es una prioridad, con sistemas de vigilancia y control de acceso para garantizar la tranquilidad de los habitantes.


arrio Escobar Rio Suquia
ácil acceso a una amplia gama e servicios: transporte úblico, centros comerciales, scuelas, y hospitales.
locales comerciales en planta aja de 20m2 deales para emprendedores y equeños negocios que deseen stablecerse en una zona en recimiento

Máxima comodidad y funcionalidad, acabados de alta calidad que reflejan la excelencia
departamentos de 2 ormitorios perfectos para amilias y parejas departamentos de 1 ormitorio ideales para rofesionales solteros o arejas jóvenes
El edificio dispone de un estacionamiento seguro y conveniente, con plazas garantizadas para todos los residentes
Acabados modernos y materiales de alta calidad, optimizando la iluminación natural y ventilación cruzada para crear ambientes acogedores.
B a r r i o E s c o b a r
2 5 4 4 O b i s p o V i d e l a d e P i n o E
E D I F I C I O V E C T O R

C o l e g i o F a s t a
P a r q u e d e l a s N a c i o n e s
C ó r d o b a S h o p p i n g
d i s t a n c i a 4 0 0 m
d i s t a n c i a 1 . 8 k m
d i s t a n c i a 2 k m






















modulo.estudio@gmail.com
