Zalaz Brew Pub
Lucas Paiva Hime
Orientadora: Nadia Oliveira Cahen
![]()
Lucas Paiva Hime
Orientadora: Nadia Oliveira Cahen
Trabalho Final de Graduação
Centro Universitário Belas Artes de São Paulo
Em primeiro lugar, gostaria de expressar minha imensa gratidão aos meus pais, Adriana Paiva Hime e Valter Luis Hime Pinheiro Soares, por terem arcado com os custos da minha faculdade e por me darem o suporte necessário para finaliza-lá.
Aos meus amigos, que fizeram com que a experiência universitária fosse muito mais rica e inesquecível, o meu muito obrigado. Compartilhar risos, desafios, noites em claro e conquistas ao lado de vocês tornou cada momento ainda mais especial e significativo.
Agradeço também à minha orientadora, Nadia Oliveira Cahen, que teve toda a paciência do mundo ao me orientar na produção deste TCC. Sua orientação foi fundamental, e sou muito grato pela dedicação, pelas sugestões e pela confiança no meu potencial.
Gostaria ainda de agradecer a todos os professores que passaram pela minha formação ao longo desses cinco anos. Vocês enfrentaram uma pandemia, mas não desistiram de nos ensinar com maestria, adaptando-se a um cenário incerto e nos ajudando constantemente a trilhar o caminho para nos tornarmos arquitetos. Sou muito grato a cada um de vocês pelo esforço e dedicação, que não apenas formaram profissionais, mas também pessoas melhores.
1.0 O começo
1.1 Introdução
1.2 A marca
1.3Justificativa
1.4 Tema
1.5 Objetivos
2.0 A Vila Madalena
2.1 História
2.2 Hoje
2.3 Mapeamento
3.0 Estudo de caso
4.0 ZalaZ Brew Pub
4.1 Conceitos
4.2 Projeto
4.3 Programa
4.4 Legislação
4.5 Peças gráficas
5.0 Referêmcias
1.0 O começo
O presente Trabalho de Conclusão de Curso (TCC) visa o desenvolvimento de uma cervejaria conceito em São Paulo, alinhada aos valores da marca ZALAZ. O projeto propõe um espaço multifuncional que integre cursos de gastronomia e formação de mestres cervejeiros, além de um bar/restaurante, utilizando práticas de projeto sustentáveis para minimizar impactos ambientais e valorizar a experiência do usuário. A experiência do cliente será proporcionada por meio de um complexo público-privado, onde as pessoas poderão desfrutar de um ambiente acolhedor e interativo, que busca criar uma conexão genuína entre o usuário e a marca. O projeto envolve uma ambientação sensorial, criando uma experiência diferenciada que vai além do consumo tradicional e valoriza a cultura local e a autenticidade da ZALAZ.
Localizado na Vila Madalena, um reduto cultural e boêmio de São Paulo, o projeto visa aproveitar a dinâmica única da região, conhecida por sua vida noturna, cenário artístico e espaços de socialização. A escolha deste local pretende explorar o potencial da arquitetura para proporcionar experiências memoráveis e valorizar a história e as características do bairro.
Este trabalho propõe a criação de um espaço que una arquitetura, gastronomia e cultura, promovendo um ambiente que atenda às expectativas do público-alvo e se torne um ponto de referência em São Paulo, integrando práticas sustentáveis e promovendo a interação social de forma criativa e responsável.

A ZALAZ é uma cervejaria artesanal situada na Fazenda Santa Terezinha, em Paraisópolis, na Serra da Mantiqueira, em Minas Gerais. Fundada em 2014, a marca combina tradição e inovação para criar produtos de forma sustentável, como cervejas, destilados e cafés especiais. O compromisso é com a terra, a simplicidade do campo e o respeito ao meio ambiente. Na fazenda, todos os ingredientes são cultivados sem o uso de conservantes ou aditivos, seguindo um ciclo sustentável que vai do cultivo à produção.
A produção da fazenda é pensada para valorizar o meio rural e preservar os recursos naturais. O uso da água da serra e as práticas agroecológicas respeitam o tempo do solo e evitam o uso de agrotóxicos, refletindo um compromisso genuíno com a sustentabilidade.
Além das bebidas, a ZALAZ proporciona experiências gastronômicas que destacam a produção local. No restaurante da fazenda, os visitantes têm a oportunidade de experimentar pratos feitos com ingredientes frescos, o que traduz o respeito da marca pela natureza e pela vida no campo.
A ZALAZ oferece mais do que produtos; proporciona uma vivência autêntica que une qualidade e respeito pelo meio ambiente. A marca convida a todos para vivenciar a essência da Serra da Mantiqueira e redescobrir a beleza da simplicidade no campo, seja por meio de suas bebidas ou de experiências gastronômicas únicas.
A proposta de implementar uma cervejaria conceito da ZALAZ na Vila Madalena trará benefícios para a comunidade local e o público urbano. Essa iniciativa visa criar um espaço que valorize a produção artesanal, promovendo uma experiência autêntica e diferenciada em meio ao ritmo acelerado da cidade. Além de oferecer bebidas de alta qualidade, a proposta busca promover atividades culturais e educativas, conectando as pessoas à origem dos produtos e ao processo artesanal.
A implantação da cervejaria contribuirá para formar uma nova centralidade em frente ao Beco do Batman, gerando um ponto de referência cultural e social na região. A escolha da Vila Madalena, em frente ao Beco do Batman, com sua atmosfera cultural e boêmia, reforça o potencial do projeto, pois o bairro já atrai um público que valoriza experiências únicas e autênticas. A integração de atividades como cursos e eventos culturais incentivará o aprendizado sobre aproximará os visitantes dos valores da marca ZALAZ.
o projeto fortalecerá o sentimento de pertencimento e valorização do bairro, contribuindo para o desenvolvimento de uma comunidade mais conectada.


1.4 Tema
Este projeto propõe uma cervejaria conceito que traduz os valores da ZALAZ para o público urbano. A proposta busca resgatar a simplicidade, criando um espaço que reflita os valores da marca. Combinando tradição e inovação, o projeto pretende oferecer uma experiência sensorial e sustentável, promovendo um espaço de encontro e valorização do que é local.
O espaço será mais do que um bar, integrando educação e cultura, com workshops e degustações.
A ideia é inspirar e educar, conectando as pessoas ao processo artesanal e à história dos produtos.
O projeto utilizará materiais naturais e design sustentável.
A integração de áreas verdes, iluminação natural e materiais recicláveis criará uma atmosfera acolhedora que convida a desacelerar e apreciar os pequenos prazeres.
Assim, a cervejaria conceito da ZALAZ oferecerá um espaço diferenciado em meio ao ritmo acelerado da cidade, promovendo uma experiência autêntica que une qualidade e sustentabilidade.
1.5 Objetivo
• Valorizar a Produção Artesanal através da Arquitetura: Criar um espaço que evidencie a produção artesanal de cervejas da ZALAZ, conectando os visitantes ao processo e à origem dos produtos.
• Promover a Integração de Espaços Culturais e Educativos: Projetar ambientes multifuncionais para atividades culturais e educativas, como workshops e cursos, integrando-os ao contexto urbano.
• Estabelecer uma Nova Centralidade Urbana na Vila Madalena: Criar um ponto de referência em frente ao Beco do Batman, dialogando com o entorno cultural e reforçando o valor da região.
• Criar Espaços de Convivência e Socialização: Desenvolver áreas acolhedoras que incentivem a socialização, integrando paisagismo e criando espaços de descanso e encontro.
• Aumentar a Visibilidade da Marca ZALAZ em São Paulo: Servir como centro de produção e distribuição, utilizando soluções arquitetônicas que expressem a autenticidade e qualidade da marca.
2.0 A Vila Madalena
A Vila Madalena passou por inúmeras mudanças ao longo do tempo. No século XVI, a região, chamada então de Vila dos Farrapos, era habitada por indígenas que deixaram o centro da cidade devido à chegada dos jesuítas ao Pátio do Colégio. Nesse local, formou-se uma pequena aldeia onde os jesuítas implementaram seu trabalho de colonização, por meio de catequese e batismos. Logo depois, foi erguida uma capela dedicada a Nossa Senhora da Conceição, e a área permaneceu como um núcleo rural da “protocidade” de São Paulo.
No século XX, a Vila Madalena começou a adquirir sua forma atual. A cidade expandiu-se além do centro histórico e, em 1910, a Companhia City instalou a primeira linha de bonde no bairro. Com a chegada do transporte, houve a modernização da região. Em 1930, a área foi loteada, atraindo trabalhadores, especialmente portugueses. Surgiram os primeiros botecos, e a Vila ganhou o apelido de “Risca Faca” pela fama de ser perigosa.
Na década de 1970, o bairro começou a se moldar como é conhecido hoje. Após o fechamento do Conjunto Residencial da Universidade de São Paulo (CRUSP), muitos estudantes se mudaram para a Vila, atraindo também artistas e intelectuais. Esse movimento transformou a região em um reduto de arte e cultura, e os primeiros bares começaram a surgir, moldando a atmosfera boêmia


A Vila Madalena é um dos bairros mais charmosos e dinâmicos de São Paulo, conhecido por sua vida artística e boêmia. Suas ruas, como as do famoso Beco do Batman, são repletas de grafites, transformando cada esquina em uma galeria a céu aberto. A arte de rua, que é um dos grandes atrativos da Vila, expressa a diversidade cultural e o espírito livre do bairro, tornando-o um ponto de referência para artistas e visitantes.
Além dos grafites, a Vila Madalena é marcada pela intensa vida social. Bares e restaurantes oferecem uma ampla variedade gastronômica, que vai desde a comida típica brasileira até experiências culinárias internacionais. A efervescência cultural se reflete nas galerias de arte e ateliês de artistas locais, fazendo do bairro um lugar onde a criatividade está sempre em destaque. Eventos como feiras de arte, música ao vivo e festivais de rua fazem parte do cotidiano, reforçando o caráter acolhedor da Vila.
O bairro combina arte, gastronomia e entretenimento, proporcionando uma experiência completa para quem o visita. A atmosfera vibrante atrai não só os moradores da cidade, mas também turistas que buscam conhecer um lado mais autêntico de São Paulo. O projeto da ZALAZ na Vila Madalena visa reforçar essa identidade cultural, destacando o bairro como um polo inovador e criando um ponto de encontro que celebra a diversidade local.
Para compreender melhor o contexto urbano da Vila Madalena e embasar o desenvolvimento do projeto, foram elaborados mapas que ilustram diferentes aspectos da região. Esses mapeamentos oferecem uma visão geral dos elementos urbanos e naturais que influenciam o ambiente local, contribuindo para uma integração cuidadosa do projeto com o entorno e decisões projetuais, como localização, transposição pública e inclusão de elementos.
Analisando o mapa é possível constatar que o entorno é caracterizado por uma alta concentração de edificações, com poucas áreas vazias, indicando uma ocupação intensa do solo.
A localização estratégica do terreno em um ambiente com muitas edificações sugere que qualquer desenvolvimento no local deve considerar cuidadosamente a infraestrutura existente e as demandas da população local

O mapa de gabarito de altura destaca as diferentes alturas das edificações. O entorno do terreno apresenta edificações de um a dois pavimentos, tendo somente um prédio com mais de 30m de altura. Isso indica uma área urbana que é composta majoritariamente por casas térreas e sobrados. A predominância dessas edificações de média altura sugere um equilíbrio entre densidade e abertura, proporcionando um ambiente que combina elementos residenciais e comerciais.



O terreno está próximo a vários córregos, incluindo o Córrego das Corujas e o Córrego Verde, e possui uma rede de drenagem bem delineada, indicada por linhas tracejadas azuis. Notavelmente, o terreno está perto de uma área inundável, indicando um potencial risco de, o que requer medidas de mitigação no desenvolvimento do projeto. Além disso, o terreno está dentro de uma bacia hidrográfica, o que é crucial para a gestão de recursos hídricos. A área possui uma boa infraestrutura urbana, sugerindo boa acessibilidade e conexão com outras partes da cidade. Portanto, é essencial avaliar o risco de inundações, considerar o impacto ambiental, garantir um sistema de drenagem eficiente e aproveitar a boa acessibilidade da localização.
O terreno proposto está situado em uma área densamente povoada, cercada por ruas movimentadas como Rua Harmonia, Rua Girassol. O entorno é caracterizado por uma alta concentração de residentes, o que sugere a necessidade de infraestrutura e serviços urbanos eficientes para atender à população local. A localização estratégica do terreno em um bairro vibrante pode proporcionar oportunidades para projetos que aproveitem a movimentação constante e a vida ativa da região.
Goose Island BrewHouse
Arquitetos: McKinley Burkart, SuperLimão
Área: 750 m²
Ano: 2016
A Goose Island Brewhouse cervejaria norte-americana originária de Chicago, trouxe ao Brasil o conceito de brewpub, um bar que produz e serve sua própria cerveja no mesmo local. O projeto de sua sede em São Paulo foi desenvolvido pelo SuperLimão Studio em parceria com o escritório canadense McKinley Burkart
O espaço escolhido foi o Largo da Batata, refletindo o compromisso da marca em se estabelecer em áreas de intensa transformação urbana, além de ser um local estrategico de altissimo fluxo de pessoas das mais variadas clases sociais. Em Chicago, a primeira brewhouse ocupava uma antiga zona industrial que se transformava em um polo jovem e artístico.

A casa selecionada foi a última remanescente do processo de desapropriações promovido pelo Metrô. Com 10 metros de frente e 40 metros de profundidade, sua lateral foi transformada na fachada principal do projeto, voltada para o Largo.


O Largo da Batata foi escolhido por ser uma área em transformação, o que se alinha à proposta da marca. No entanto, o imóvel não apresentava o caráter industrial definido no guideline da Goose Island Brewhouse. Após a remoção das intervenções anteriores, a estrutura original do imóvel, um antigo depósito de côco do início do século, foi exposta. A decisão de utilizar os tijolos originais, deixandoos à vista dos visitantes, junto ao uso de concreto, madeira queimada no estilo Shou Sugi Ban e a nova estrutura metálica aparente, permitiu alcançar a linguagem industrial desejada.
O projeto enfrentou o desafio de unir dois programas distintos: cervejaria e bar, com exigências sanitárias e de fluxo diferentes. A solução foi integrar os dois ambientes, colocando o bar no centro do espaço, visível até no caminho para o banheiro, de forma que os visitantes possam observar a produção de cerveja ao redor.



O layout foi organizado em etapas. Na entrada, uma recepção funciona como loja e apresenta a história da marca. Ao seguir, um grande salão exibe a cervejaria ao fundo e se conecta à área externa por grandes portas metálicas, que, quando abertas, funcionam como cobertura, integrando os espaços. Do lado oposto, vãos foram criados para permitir a entrada de luz natural. Paralelamente, uma calha com jiboias foi instalada, permitindo que, ao longo do tempo, as plantas tomem as instalações aparentes.
No segundo pavimento encontra-se o biergarten, que oferece uma vista única para o Largo da Batata, em uma ampla área externa protegida por uma pérgola de madeira com cobertura retrátil. Esse espaço conta com um segundo bar e uma parrilleira integrada à área externa, além de um pequeno pomar. O restante do pavimento é destinado a áreas técnicas e à cozinha, garantindo o suporte necessário para o funcionamento do estabelecimento.
A edificação apresenta duas fachadas com características distintas. A fachada principal, que dá acesso ao interior, possui um aspecto mais vertical, mantendo uma referência à construção original. Em contrapartida, a face voltada para o Largo da Batata é marcadamente horizontal, permitindo que se observe a transformação do antigo galpão, agora integrado à cervejaria, com os tanques brancos visíveis sobre a estrutura. Para reforçar a identidade local, foi convidado o grafiteiro Nove (Digital Orgânico), que desenvolveu um painel colorido, oferecendo uma interpretação contemporânea da região e adicionando um toque de brasilidade ao projeto.













Pontos de contato:
1. Entrada
2. Caixa/loja - Venda de produtos e historia da marca




3. Salao de consumo - Mesas posicionadas para o consumo de comidas e cervejas
4. Bar central - Bar posicionado estrategicamente para facilitar a locomoção dos garçons e evidenciar o “carro chefe” que é a cerveja
5. Producao de cerveja - visível aos clientes, age como ambientacao e tambem como diferencial


Arquitetura Comercial de Varejo: Criar um ambiente que vá além da venda de produtos, focando na experiência do cliente e na conexão com a marca. O retail design integra marketing e arquitetura para traduzir os ideais da ZALAZ, alinhando a identidade visual ao espaço físico.
Experiência do Cliente: A arquitetura deve criar condições para um relacionamento profundo entre o cliente e o espaço, tornando a jornada do consumidor memorável e valorizando o envolvimento com a marca.
Espaço Sensorial e Fenomenologia: O espaço sensorial conecta o visitante ao ambiente por meio dos sentidos (olfato, tato, visão, audição e paladar). A fenomenologia aprofunda essa experiência, destacando como o espaço é percebido de forma individual e subjetiva. Aspectos como aromas, texturas e luz natural são pensados para criar uma experiência imersiva, que desperta emoções e memórias, conectando o visitante de forma autêntica com o ambiente da ZALAZ e reforçando a identidade da marca.
A loja conceito da ZALAZ está localizada na Rua Harmonia, em frente ao Beco do Batman, um dos pontos mais visitados de São Paulo. Esse local privilegiado, com intenso fluxo de pessoas, reforça a visibilidade da marca e proporciona uma experiência autêntica e envolvente, conectando o público ao universo da ZALAZ.
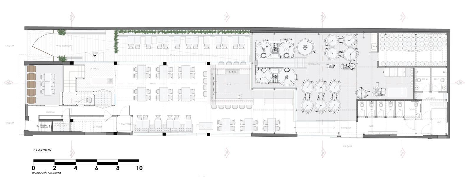
O projeto inclui uma praça pública e três edifícios principais: uma área de ensino com café, biblioteca e cursos de culinária e produção de cerveja; um lounge com restaurante para degustação de bebidas e pratos especiais; e um espaço dedicado à produção de cerveja, que também funciona como distribuidora. A sustentabilidade é um dos pilares do projeto, com placas solares, janelas amplas para luz natural, pisos drenantes e um espelho d’água que remete ao antigo córrego da região, reforçando a eficiência hídrica e o vínculo com a memória local.
O moodboard do projeto reflete a simplicidade dos materiais e a rusticidade, valorizando madeira natural, texturas de concreto, vegetação e detalhes metálicos. Esses elementos criam uma atmosfera acolhedora e autêntica, alinhada à filosofia da marca, que valoriza o artesanal e o natural. O jardim e o mobiliário foram planejados para oferecer um espaço confortável, conectando visitantes à natureza e ao processo de produção, enquanto traduzem a essência rústica e genuína do projeto.

A produção de cerveja na estrutura foi projetada para abarcar todas as etapas do processo, desde a mistura e cozimento até a maltagem, resfriamento e envase, garantindo a funcionalidade completa. O laboratório integra o projeto para assegurar a qualidade e o controle do produto final, reforçando o compromisso com a excelência.
A cozinha foi planejada da direita para a esquerda, seguindo rigorosamente as normas da ANVISA, contemplando todas as etapas, desde a recepção dos alimentos até a lavagem, promovendo uma organização eficiente e higienicamente adequada. Todas as áreas foram dimensionadas para acomodar a circulação de forma confortável e segura.
O lounge de degustação foi idealizado para servir também como espaço de eventos, permitindo sua locação para diversas finalidades, ampliando a funcionalidade do local.
A loja de conveniência oferece suporte aos entusiastas da produção de cerveja artesanal, disponibilizando produtos e materiais essenciais para o processo caseiro.
Por fim, os materiais e trajetos foram projetados com acessibilidade em mente, assegurando que todas as áreas possam ser utilizadas por todos, sem barreiras, refletindo uma abordagem inclusiva e funcional.



Além dos parâmetros de ocupação e quota ambiental, a edificação deverá obter um Alvará de Funcionamento de Baixo Risco (ALF), conforme exigido pela Lei nº 16.050/2014 – Plano Diretor Estratégico (PDE). A atividade econômica prevista, classificada no CNAE “5611-2/02 Bares e outros estabelecimentos especializados em servir bebidas”, necessita apenas deste alvará, simplificando o processo de legalização.
A construção deve atender às instruções técnicas específicas para bares e restaurantes, bem como à NBR 9050, garantindo acessibilidade universal e inclusão. Também é obrigatório cumprir as normas da vigilância sanitária, especialmente as diretrizes da RDC nº 216/2004, que regula as boas práticas em serviços de alimentação, e da RDC nº 275/2002, que estabelece procedimentos padronizados e listas de verificação para fabricação de alimentos. Esses requisitos asseguram a conformidade do projeto com as normas técnicas e legais.




Grid em Madeira MLC (cobertura)
Estruturas em concreto
Volumetria
Fluxo do Café na Rua Girassol: O projeto conta com um fluxo dedicado ao café localizado na Rua Girassol, onde os visitantes podem desfrutar de uma pausa agradável em um ambiente acolhedor e integrado ao bairro. Esse espaço cria um ponto de encontro que contribui para a vida ativa da região, proporcionando um ambiente onde as pessoas podem socializar e aproveitar a atmosfera vibrante da Vila Madalena. O café foi planejado para oferecer uma experiência relaxante, promovendo a conexão entre o público e o bairro, com um ambiente que une design funcional e acolhimento.
Fluxo do Bar Expresso no Beco do Batman: Outro fluxo importante é o do bar expresso, situado no Beco do Batman. Este ponto é pensado para aqueles que buscam uma experiência rápida e descontraída, em contato direto com a atmosfera vibrante e artística do Beco, que é um dos locais mais icônicos da Vila Madalena. O bar expresso foi planejado para se integrar ao cenário artístico da região, oferecendo bebidas em um espaço que celebra a cultura de rua e a criatividade. Este fluxo reforça o aspecto cultural e turístico do projeto, convidando os visitantes a vivenciar o bairro de maneira única, enquanto desfrutam de uma bebida em um dos pontos mais movimentados e conhecidos da cidade.
Fluxo de Fruição Pública: O terceiro fluxo é o de fruição pública, que conecta a Rua Harmonia à Rua Girassol. Essa passagem oferece um percurso agradável para pedestres, possibilitando uma integração fluida com o entorno e promovendo o uso contínuo do espaço urbano. A proposta é criar um trajeto que não apenas facilite o acesso entre as ruas, mas também se torne uma experiência por si só, com áreas verdes, mobiliário urbano e espaços de convivência que convidem o público a parar, explorar e interagir com o local. Esse fluxo de fruição pública visa transformar o percurso em um elemento ativo do bairro, incentivando o deslocamento a pé e a interação social.









Cervejaria Toca do Urso. SuperLimão Studio. Disponível em: <https://www.archdaily.com.br/br/919885/cervejaria-toca-do-urso-superlimao-studio?ad_ source=search&ad_medium=projects_tab>. Acesso em: 6 jun. 2024.
GERMANA, Macambira. Cerveja é preferência para homens e mulheres, aponta pesquisa. Folha PE, publicado em 10 dez. 2022. Disponível em: <https://www. folhape.com.br/sabores/cerveja-e-preferencia-para-homens-e-mulheres-aponta-pesquisa/249960/>. Acesso em: 7 jun. 2024.
GLADYS, Magalhães. Memória de Vila: dos farrapos à Vila Madalena. Gazeta SP, publicado em 20 jan. 2022. Disponível em: <https://www.gazetasp.com.br/ noticias/memoria-de-vila-dos-farrapos-a-vila-madalena/1104397/>. Acesso em: 5 jun. 2024.
Histórico da Subprefeitura de Pinheiros. Prefeitura de São Paulo. Disponível em: <https://www.prefeitura.sp.gov.br/cidade/secretarias/subprefeituras/pinheiros/ historico/index.php?p=472>. Acesso em: 8 jun. 2024.
Por que o Beco do Batman em São Paulo tem esse nome. Superinteressante. Disponível em: <https://super.abril.com.br/coluna/oraculo/por-que-o-beco-dobatman-em-sao-paulo-tem-esse-nome>. Acesso em: 3 jun. 2024.
SOUZA, Anna Luiza Spairiani. Arquitetura de varejo: transformando conceitos em projetos. 2014. Trabalho de Conclusão de Curso (Graduação em Arquitetura e Urbanismo) – Universidade de Vila Velha, Vila Velha, 2014.
Tudo sobre o Bairro Vila Madalena em SP. Redação Trisul, 11 ago. 2022. Disponível em: <https://www.vilamadalena.com.br/site/pagina/index/ref/historiacultura>. Acesso em: 1 jun. 2024.
VARGAS, Heliana Comin. Espaço Terciário – O Lugar, a Arquitetura e a Imagem do Comércio. São Paulo: Editora SENACSP, 2001. 335 p. ISBN 85-7359-2079.
BRITANNICA. Retailing. Disponível em: <https://www.britannica.com/topic/retailing>. Acesso em: 6 out. 2024.
RIGBY, Darrell K. The Future of Shopping. Harvard Business Review, dez. 2010. Disponível em: <https://hbr.org/2010/12/the-future-of-shopping>. Acesso em: 6 out. 2024.
RETAIL DESIGN INSTITUTE. Disponível em: <https://www.retaildesigninstitute.org/>. Acesso em: 6 out. 2024.
NATIONAL RETAIL FEDERATION. Insights. Disponível em: <https://nrf.com/insights>. Acesso em: 6 out. 2024.
MCKINSEY & COMPANY. Retail Insights. Disponível em: <https://www.mckinsey.com/industries/retail/our-insights>. Acesso em: 6 out. 2024.
DELOITTE. Perspectivas do Setor de Varejo. Disponível em: <https://www2.deloitte.com/br/pt/industries/consumer-business/perspectivas-do-setor-de-varejo. html>. Acesso em: 6 out. 2024.
INTERNATIONAL COUNCIL OF SHOPPING CENTERS. History of the Shopping Center. Disponível em: <https://www.icsc.com/who-we-are/about-icsc/history-ofthe-shopping-center>. Acesso em: 6 out. 2024.
PRICEWATERHOUSECOOPERS. Consumer Markets. Disponível em: <https://www.pwc.com/gx/en/industries/retail-consumer/consumer-markets.html>. Acesso em: 6 out. 2024.
UNDERHILL, Paco. Why We Buy: The Science of Shopping. New York: Simon & Schuster, 1999. Disponível em: <https://www.amazon.com.br/Why-We-BuyScience-Shopping/dp/0684849143>. Acesso em: 6 out. 2024.
GOOGLE ARTS & CULTURE. The History of Department Stores. Disponível em: <https://artsandculture.google.com/exhibit/the-history-of-department-stores/>. Acesso em: 6 out. 2024.
GONÇALVES, Cíntia Amaral; PIRES, Celso Cláudio de Hildebrando. Evolução do varejo e comportamento do consumidor. Revista de Administração de Empresas, v. 59, n. 3, p. 261-271, 2019. Disponível em: <https://www.scielo.br/scielo.php?script=sci_arttext&pid=S0034-75902019000300261>. Acesso em: 6 out. 2024.
RETAIL MUSEUMS. Disponível em: <https://retailmuseums.com/>. Acesso em: 6 out. 2024.
FORBES. Retail. Disponível em: <https://www.forbes.com/retail/>. Acesso em: 6 out. 2024.
WORLD RETAIL CONGRESS. Insights. Disponível em: <https://www.worldretailcongress.com/insights>. Acesso em: 6 out. 2024.
MIT SLOAN MANAGEMENT REVIEW. Retail. Disponível em: <https://sloanreview.mit.edu/tag/retail/>. Acesso em: 6 out. 2024.
TECMUNDO. Há 125 anos, a primeira escada rolante do mundo era instalada em NY, 2018. Disponível em: <https://www.tecmundo.com.br/produto/126186-ha125-anos-primeira-escada-rolante-mundo-instalada-ny.htm>. Acesso em: 6 out. 2024.
REVISTA EBS. Era do Marketing de Experiência. Disponível em: <https://www.revistaebs.com.br/brand-experience/era-do-marketing-de-experiencia/>. Acesso em: 6 out. 2024.
EXAME. Phygital: a tendência que está mudando a experiência de compra. Disponível em: <https://exame.com/negocios/phygital-tendencia-mudandoexperiencia-compra/>. Acesso em: 6 out. 2024.
MCKINLEY ARCHITECTS. Goose Island Brewhouse. ArchDaily Brasil, 2018. Disponível em: <https://www.archdaily.com.br/br/893005/ goose-island-brewhouse-superlimao-studio-plus-mckinley-architects>. Acesso em: 6 out. 2024.
+ MANOEL MAIA ARQUITETURA. Dengo Chocolates Concept Store. ArchDaily, 2021. Disponível em: <https://www.archdaily.com/960046/ dengo-chocolates-concept-store-matheus-farah-plus-manoel-maia-arquitetura>. Acesso em: 6 out. 2024.