HALO Landscape Porfolio 2024

Page 1

HALO

PORTFOLIO

LANDSCAPE ARCHITECTURE & GARDEN DESIGN

1
Louise Checa LANDSCAPE ARCHITECT Co. Offaly, Ireland halolandscape@gmail.com +353 85 155 2268 LANGUAGES SKILLS SOFTWARES 100 90 40 ENGLISH GERMAN FRENCH Native language Advanced level 6 years of expatriation Basic level Autocad Vectorworks Sketchup Pro Photoshop InDesign Illustrator Office Qgis design thinking graphic design 3d modeling planting knowledge hand drawing garden design urban design landscape architecture INFORMATION MEET THE TEAM

EDUCATION

Master’s degree in Landscape Architecture Internships

2011 2017 2011 2017

Graduated with Highest Honours from the ENSNP INSA Centre-Val de Loire, France.

>Reykjavik Botanical Garden, Iceland

>Nong Nooch Tropical Botanical Garden, Thailand

>Agence TER, Germany

>Atelier de l’Ile, Paris

>Fontana Landschaftsarchitektur, Switzerland

EXPERIENCE ACHIEVEMENTS

2023 today

2021

2023 2017 2021

Landscape architect & freelance designer

Designing private gardens and public spaces

Alan Rudden Garden Design

Landscape architect for Outside Options Ltd.

Worked on high-end private garden design and construction all across Ireland and France.

2023

Mitchell + Associates

Meeting clients, site visits, landscape design, 3D modeling, presentation documents, design package, construction package, material selection, plant selection,... Dublin, Landscape Architecture and Urban Design all across Ireland. Worked on various range of projects and scales, public & private including universities, public plazas, housing developments, data centres, public parks

>MetroLink(Dublin,TII)

>TrinityCollege,UCD

>ApartoStudentAccomodation

>Librarysquare(Ringsend,DCC

>DataCenter(Clonee,Facebook)

>AbbeyGarden(Kilkenny)

>Housingdevelopments:Fassaroe, TheGrange,Fosterstown,Oakley

Kearney’sfield,WoodparkManor

2022

2023 2020

ILI (Irish Landscape Institute) Professional Practice Exam

Achieved with Grade A

ILI Membership

Corporate member 2023-2024

GLDA Garden & Landscape Designers Association)

Pre-Reg Membership 2023-24

Board Bia Bloom

2018

2017

International Garden Festival Chaumont-sur-Loire, France

Gold medal winner for medium size garden — Savills while working for Outside Options competition winner, design and construction of the garden : “The Garden of the Soil (R)evolution” with Mitchell+Associates.

Publication : “Les Cahiers de l’École de Blois

Finalist : “Excellence Jury” & “Young Talents 2017

N°16 : Métamorphoses Éditions de la Vilette. organised by the Fédération Française du Paysage for my end of studies thesis : «Memory, erasure, transgression : building a crossborder territory between Strasbourg (France) and Kehl (Germany)”.

LANGUAGES SOFTWARES Autocad Vectorworks Sketchup Pro Photoshop InDesign Illustrator Office NBS 100 100 40 ENGLISH FRENCH IRISH Fluent Advanced level 6 years of expatriation Basic level Harry Osborne LANDSCAPE ARCHITECT Co. Dublin, Ireland halolandscape@gmail.com +353 85 147 1455 INFORMATION SKILLS design thinking construction detailing 3d modeling project
drawing
urban design landscape architecture
THE TEAM
management hand
garden design
MEET

2011 2015

today

2015 2024 EDUCATION EXPERIENCE

BSc in Landscape Architecture Internships

2011

Graduated with 2.1 from University College Dublin

Landscape architect & freelance designer

Designing private gardens and public spaces

Stephen Diamond Associates Chartered Landscape Architects

Landscape architect for SDACLA

Working on a range of projects throughout Ireland including residential, healthcare, education, public works.

Design, planning, tender and construction stages.

2014

>Greenstone Landscaping London Design & Maintenance of residential houses throughout London and Oxford

>Lyon Botanical Garden, France

2019

ILI (Irish Landscape Institute) Professional Practice Exam

Achieved with Grade A

2024

ILI Membership

Corporate member 2019-2024

GLDA Garden & Landscape Designers Association)

Pre-Reg Membership 2023-24

2015

Student Design Award

Organised by the Irish Landscape Institute

ACHIEVEMENTS

DESIGN PROCESS

PHASE I - INITIAL CONSULTATION

The design process starts with a site visit and initial consultation. The priority here is to obtain a thorough understanding of your aspirations and needs for the garden, as well as getting a feel for the existing space. Following this, a written brief is sent to you,whichoutlinesthefeestructure,designprocess,andacomprehensivesummary ofyourgoalsforthespace.

INITIAL CONSULTATION

•Analysisofthebrief,coordinationwithdrawingsfromotherprofessionalsinvolved

SITE VISIT

•Sitevisit,photographicreport

•Topographicalsurveyofthesite(sitelayout,levels,utilities)mustbeprovided

PHASE II - CONCEPT DESIGN

Inthisphase,conceptdesigninboth2dand3disproduced.3Dimageryisdeveloped togivearealsenseofspace.Adesignbookletisalsosharedtosupporttheconcept. At this stage, the focus is very much on getting the layout right along with feature elements,ratherthanspecificdetails.

SITE ANALYSIS

•Designbookletwithcompletesiteanalysis,moodboard&referencepictures DESIGN

• Concept design with 2D and 3D model, selection of relevant landscape renders to illustratetheproject(axonometry,plan,sections,elevations,perspectives,etc)

•Onlineconsultationtopresentthedesign

•Includesaroundofeditstoadjustthedesignandfinaliseit

PHASE III - DEVELOPED DESIGN

Produced after the concept design has been agreed, these drawings develop the chosenconceptlayoutintoanoverallmasterplanandadditionaldrawings.Thissetof drawingscanthenbepresentedtoabuilderinordertogetaquotefortheconstruction ofthegarden.

Initial material palette, as well as a planting palette with general character of the plantingwillbeproposed.

INITIAL WORKING PLANS

•Generalarrangementplan,measurementsplan,lightingplan

•Coordinationwithotherprofesionnals(architect,engineer,interiordesigner,etc)

DEVELOPED DESIGN BOOKLET

•Initialmaterialpaletteandplantingplalette,lightingschedule

6

CONSTRUCTION PROCESS

PHASE IV - CONSTRUCTION PACKAGE

Once the masterplan is approved, technical drawings are developed in order to guide thebuilderwithprecision.Amaximumofinformationisspecifiedtoinsurethedesign willbebuiltasmuchaspossiblelikeithasbeenaprovedwiththeclient.Theseinclude differenttypesofplans,elevations,crosssectionsandtechnicaldetails.

TECHNICAL DRAWINGS

•Finecoordinationwithotherprofessionals

•Technicalplanswithlevels,measures,key,atdifferentscales

•Elevations,crosssectionswhereappropriate

•Technicaldetails,typicaldetailsforsoftandhardlandscape,bespokedetails

PHASE V - PLANTING PLAN

From the precision of the construction plan, we can then move to a planting plan, coveringalltheplantedsurfacesanddividedintosub-section.Theplantingplanshow the location and size for every plant selected, and the planting schedule lists every plantwithnumbers,size,specifications,latinname,family,floweringperiod,seasonof interest,evergreen/deciduous,andtype.

PLANTING

•Plantingplanwithlocationoftrees,shrubs,climbers,perennials,grasses,ferns, bulbs,etc

•Plantingschedulewithadditionalinformationoneachplant(native,irish-grown, pollinatorfriendly,non-toxictokidsandanimals,seasonofinterest,edible,etc)

7

GARDEN DESIGN

PRIVATE GARDENS PORFOLIO

Projects:

Trinity College courtyard, Dublin

The garden of Soil (R)evolution

Chaumont-sur-Loire, show garden

A gardener’s palette

Dublin, concept garden

A transformative garden

Dublin, Charity large garden

Daring to do things differently

Dublin, medium concept garden

Library square, Ringsend, public plaza

Marist, Laytown, large seaside garden

Bastin, France, large seaside garden

Donnybrook, medium city garden

Other designs

> > > > > > > > > > > > > > > > > > > >

TRINITY COLLEGE COURTYARD

A courtyard needed to be introduced in the refurbishement plan for the Arts Block in Trinity College between 2017 and 2021. The design is user friendly and divides the space in multiple pocketswithlushplantingandseatingoptions.

9
year 2021 type courtyard location Dublin stage built team M+A theme students amenity

THE GARDEN OF SOIL (R)EVOLUTION

This 5m x 7m garden explores the possibilities of uses within a small-scale garden. A garden canbeesthetic,aniceplacetohostfriendsandfamily,butmoreover it is a place for nature, biodiversity (even in an urban environment) and perhaps a place that stimulatestheimaginaryandthecreativitywithinus.

10 0 1 2 4m
year 2020 type show garden location France the edible forest theperennialvegetablegarden the field timber seats brickraisedplanters pleachedfruittrees 4 4 1 1 1 1 5 5 2 2 2 6 6 3 3 3
built team M+A theme Return to Mother Earth
stage
11

A GARDENER’S PALETTE

This 5m x 7m garden explores the possibilities of uses within a small-scale garden. A garden canbeesthetic,aniceplacetohostfriendsandfamily,butmoreover it is a place for nature, biodiversity (even in an urban environment) and perhaps a place that stimulatestheimaginaryandthecreativitywithinus.

12
2023 type concept garden location Dublin stage design team LCLA theme small back garden
year
13 0 1 2 4m glasshouse timberboundary swing pleachedtree steppingstones organicbench raisedplanter water bowl feature tree 1 1 4 4 7 7 7 2 2 2 5 5 8 8 3 3 6 6 9 9

A TRANSFORMATIVE GARDEN

Thisisa16x10mlargegardenproposaldesignedtoillustratetheTuslastrategicplanforfoster

14
year 2024 type concept garden location Dublin stage design team LCLA theme large charity garden
15 4 7 2 5 8 6 9

DARING TO DO THINGS DIFFERENTLY

Thisgardenproposalisa12mx9mmediumsizedgarden,consistingofahighlyplantednatural openwoodland,withafeaturefloatingcanopyandaloungeareainitsheart.Theuseofcurves andorganicshapesgivesthesenseofbeinghuggedandcosy,likeina“zenheaven”.

16
year 2024 type concept garden location Dublin stage design team LCLA theme zen/lounge garden 0 1 2m cocoon seats floatingcanopy feature tree feature bench cloudboundary steelpaths curved walls water features firepit 1 1 4 4 7 7 2 2 5 5 5 8 8 8 3 3 6 6 9 9 9
17

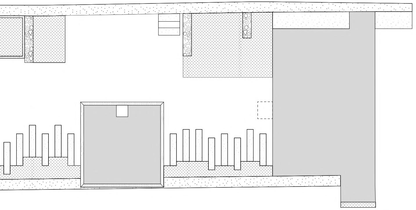
LIBRARY SQUARE

The Ringsend library needed its surroundings to be refurbished. The goal has been here to introduce a new public plaza, protected from the heavy used road by three corten steel raised planters. A strong identity has been brought by the use of feature ginkgo biloba trees and contemporarypubliclighting.

year 2021 type public plaza location Dublin stage part 8 team M+A theme refurbishment

ST MARY’S OLD CONVENT

This large piece of land directly adjacent to the beach has introduced a long contemporary floatinghouse.Thegardendesignarticulatesdifferentareasallaroundthebuildingandprovides differentamenitieswhileprovidingprivacy.

20
Options
year 2023 type large garden location Laytown stage construction team Outside
theme seaside house 3DrendersbyReRender
21

BASTIN BEACH HOUSE

This garden design has been largely influenced by the different constraints in the South of France,suchasheatwaves,needtoshadeandalsotopographicalchallenges.Itoffersdifferent loungeanddiningoptions,andarelaxingpoolarea.

22
2023 type medium garden location France stage construction team Outside Options theme seaside house 3DrendersbyReRender
year
23

DONNYBROOK CITY GARDEN

Thishousehasonlyafrontgarden,whichinfluencedthedesigntohaveamulti-functionspace, abletoparkacarfromtimetotime,hostdinersonabigtable,butalsoofferinganasgreenas possibleloungeandoutdoorarea,withoutforgettingstorage.

24
2023 type small location Dublin stage built team Outside Options theme city garden
year
3DrendersbyReRender
25

OTHER DESIGNS

year 2021-23 stage construction team Outside Options

3DrendersbyReRender

26
27

CONSTRUCTION PACKAGE

DESIGN BOOKLET & CONSTRUCTION

Design booklet

Moodboard

Planting moodboard

Construction details examples

Design & construction package

General arrangement plan

Sun analysis plan

Measurements plan

Lighting plan

> > > > > > > > > > > > > >
29
MOODBOARD
30
MOODBOARD
PLANTING
31 900 167 600 1200 1600 102 60 350 50 4030 1393 1310 1310 1600 5050 steel stairs Elevation 1/60 steel stairs Elevation 1/60 Recessed LED lighting to concrete and steel steps Elevation 1/25 3 1300 950 100 40 1000 60 290 950 8950 5300 3530 300 2000 1200 300 400 Stairs, handrail and lighting section Elevation 1/20 1 Corten steel steps pattern Elevation 1/30 3 Corten steel tree ring to the italian cypres Elevation 1/75 2 CONSTRUCTION
corten steel tree grille in two pieces circular cut for lighting tree opening ø250mm ground level frame tree grille weed stop layer 800 760 250 380 1200 760 380 Corten steel tree grilles to table top trees Elevation 1/50 2 Corten steel pannels to barbecue area with dotted pattern Elevation 1/30 3 Corten steel tree grille with dotted pattern corten steel tree grille in two pieces circular cut for lighting tree opening ø250mm ground level frame tree grille weed stop layer 800 760 380 1200 760 380 Elevation 1/50 2 Corten steel pannels to barbecue area with dotted pattern Elevation 1/30 3 Corten steel tree grille with dotted pattern tree opening ø250mm ground level frame tree grille weed stop layer 800 760 380 1200 800 760 380 Elevation 1/50 2 Corten steel pannels to barbecue area with dotted pattern Elevation 1/30 3 Corten steel tree grille with dotted pattern 2530 1930 300 1630 1000 2000 850 1800 300 1600 300 1390 450 360 350 350 1500 100 100 150 900 167 167 600 300 300 1200 1600 102 60 350 50 4030 1390 950 1393 1310 5050 Corten steel stairs Plan 1/60 1 Corten steel stairs Elevation 1/60 2 Recessed LED lighting to concrete and steel steps Elevation 1/25 3 elevation 1/20 stairs,handrailand lightingsection plan1/30 cortensteeltreegrille withpattern plan&elevation1/30 cortensteeltreegrillewith pattern elevation 1/60 corten steel stairs elevation 1/25 recessedLEDlightingto concreteandsteelsteps corten steel tree grille in twopieces treegrille weedbarrierlayer groundlevelframe circularcutforlighting treeopening250mm 1 3 2 4 5
DETAILS
32 0 1 2 4m A3
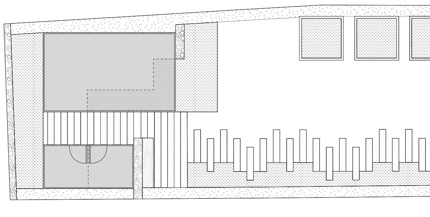
year 2024 type medium garden location Clontarf stage construction team LCLA theme back garden 1 10 4 7 2 2 2 11 11 5 3 3 6 1
GENERAL ARRANGEMENT PLAN
33
heatpump featureplanting feature stone walls pleachedtrees vegetablebeds retainedexistingtrees binstorage Shomera 23 retained fruit tree timberpergola sidepassageway RB73 stove featuregreenwall gardenshed diningarea floatingbench outdoor kitchen 1 10 4 13 13 7 7 16 16 2 2 2 2 11 11 11 11 5 14 14 8 8 17 17 3 3 12 12 6 15 15 9 9 18 18
House steppingstones

existing retained trees

evergreen pleached trees feature stone walls porcelain tile paving

timber decking

concrete floor/ micro-cement

timber structures

existing retained hedge feature planting lawn

GENERAL ARRANGEMENT PLAN

34
2024 type medium garden location Clontarf stage construction team LCLA theme back garden
year
35
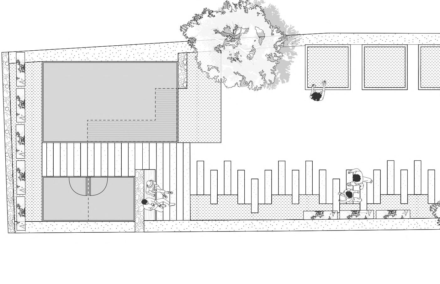
year 2024 type medium garden location Clontarf stage construction team LCLA theme back garden N S 0 ° 10 ° 20 ° 30 ° 40 ° 50 ° 60 ° 7pm 6pm LENGTH OF DAY 16HRS SUMMER SOLSTICE JUNE 21 WINTER SOLSTICE DECEMBER 21 SPRING/FALL EQUINOX MARCH 20/SEPTEMBER 23 12HRS 8HRS 5pm 5am 6am 7am 8am 9am 10am 11am 4pm 3pm 2pm 1pm 12am w E House 0 1 2 4m A3
SUN ANALYSIS
36 400 500 5300 300 400 1500 14700
year 2024 type medium garden location Clontarf stage construction team LCLA theme back garden 0 1 2 4m A3
MEASUREMENT PLAN
37 2200 4000 4000 400 1500 5500 4200 1000 1000 2000 3000 4700 7700 1200 800 3900 5100 3200 1600 3600 4800 1200 400 400 House feature
timber
timber
feature
lawn existing retained hedge
tile
stone walls
decking
structures
planting
concrete floor/ micro-cement porcelain
paving

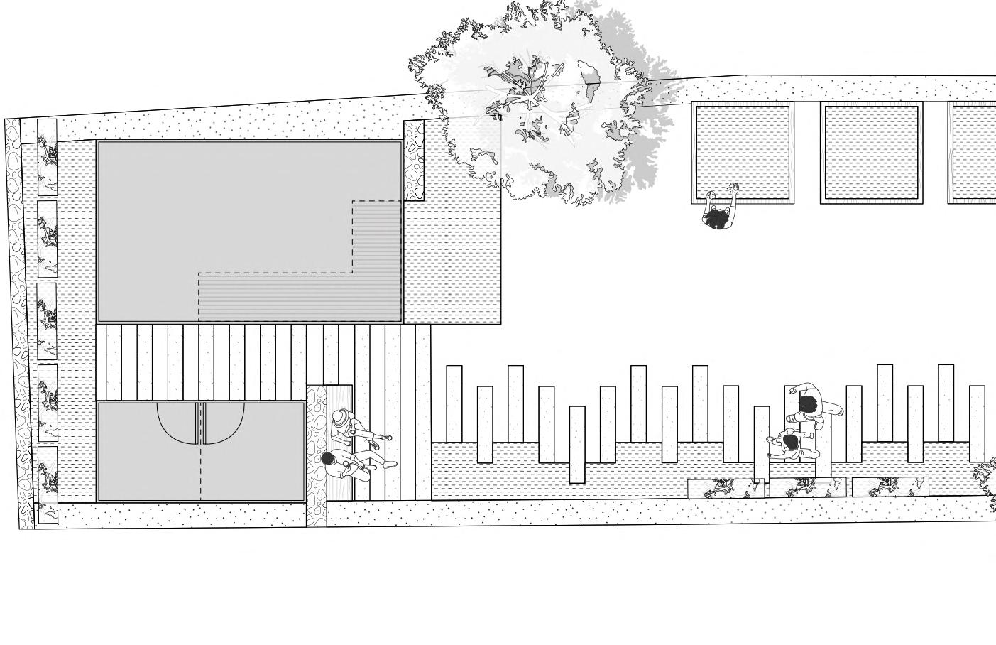
LIGHTING PLAN

38
year 2024 type medium garden location Clontarf stage construction team LCLA theme back garden 0 1 2 4m A3

spike uplighters to trees & feature walls

evo ground light to footpath mini scope ceiling to pergola floating light to feature planting

“disc wall” to outdoor kitchen down light to house, shed & shaumra

39

BUILT DESIGNS

GARDENS & PUBLIC SPACES

Projet type : Chaumont-sur-Loire International Garden Festival 2020, France

Trinity College Arts Block courtyard - Level 5&6, Dublin Aparto Cork Street student accomodation, Dublin work done while working for Mitchell + Associates

Projet type : Donnybrook, Glasnevin, Dublin Celbridge, Kildare, Cork work done while working for Outside Options Ltd.

> > > > > > > >
41
42
43
44

halolandscape@gmail.com

45
HALO

Turn static files into dynamic content formats.

Create a flipbook
Issuu converts static files into: digital portfolios, online yearbooks, online catalogs, digital photo albums and more. Sign up and create your flipbook.