LCLA Porfolio 2024 Louise Checa

Page 1

LCLA

PORTFOLIO

LANDSCAPE ARCHITECTURE & GARDEN DESIGN

1

Co. Offaly, Ireland

lc.landscapearchitecture@gmail.com

+353 85 155 2268

SKILLS

Louise Checa LANDSCAPE ARCHITECT
LANGUAGES
SOFTWARES 100 90 40 ENGLISH GERMAN
Basic level
Vectorworks
Pro Photoshop
Office
design thinking graphic design 3d modeling planting knowledge hand drawing garden design urban design landscape architecture INFORMATION
FRENCH Native language Advanced level 6 years of expatriation
Autocad
Sketchup
InDesign Illustrator
Qgis

Master’s degree in Landscape Architecture

Graduated with Highest Honours from the ENSNP INSA Centre-Val de Loire, France.

Internships

>Reykjavik Botanical Garden, Iceland

>Nong Nooch Tropical Botanical Garden, Thailand

>Agence TER, Germany

>Atelier de l’Ile, Paris

>Fontana Landschaftsarchitektur, Switzerland

EXPERIENCE

Landscape architect & freelance designer ILI (Irish Landscape Institute) Professional Practice Exam

Designing private gardens and public spaces

Alan Rudden Garden Design

Landscape architect for Outside Options Ltd.

Worked on high-end private garden design and construction all across Ireland and France.

Meeting clients, site visits, landscape design, 3D modeling, presentation documents, design package, construction package, material selection, plant selection,...

Mitchell + Associates

Dublin, Landscape Architecture and Urban Design all across Ireland.

Worked on various range of projects and scales, public & private including universities, public plazas, housing developments, data centres, public parks

>MetroLink(Dublin,TII)

>TrinityCollege,UCD

>ApartoStudentAccomodation

>Librarysquare(Ringsend,DCC

>DataCenter(Clonee,Facebook)

>AbbeyGarden(Kilkenny)

>Housingdevelopments:Fassaroe, TheGrange,Fosterstown,Oakley Kearney’sfield,WoodparkManor

2022

2023 2020 2018 2017

Achieved with Grade A

ILI Membership

Corporate member 2023-2024

GLDA Garden & Landscape Designers Association)

Pre-Reg Membership 2023-24

Board Bia Bloom

Gold medal winner for medium size garden — Savills while working for Outside Options

International Garden Festival Chaumont-sur-Loire, France

competition winner, design and construction of the garden : “The Garden of the Soil (R)evolution” with Mitchell+Associates.

Publication : “Les Cahiers de l’École de Blois

Finalist : “Excellence Jury” & “Young Talents 2017

N°16 : Métamorphoses Éditions de la Vilette. organised by the Fédération Française du Paysage for my end of studies thesis : «Memory, erasure, transgression : building a crossborder territory between Strasbourg (France) and Kehl (Germany)”.

2011 2017
EDUCATION
2023 today 2023
2011 2017 2021 2023 2017 2021
ACHIEVEMENTS

DESIGN PROCESS

PHASE I - INITIAL CONSULTATION

The design process starts with a site visit and initial consultation. The priority here is to obtain a thorough understanding of your aspirations and needs for the garden, as well as getting a feel for the existing space. Following this, a written brief is sent to you,whichoutlinesthefeestructure,designprocess,andacomprehensivesummary ofyourgoalsforthespace.

INITIAL CONSULTATION

•Analysisofthebrief,coordinationwithdrawingsfromotherprofessionalsinvolved SITE VISIT

•Sitevisit,photographicreport

•Topographicalsurveyofthesite(sitelayout,levels,utilities)mustbeprovided

PHASE II - CONCEPT DESIGN

Inthisphase,conceptdesigninboth2dand3disproduced.3Dimageryisdeveloped togivearealsenseofspace.Adesignbookletisalsosharedtosupporttheconcept. At this stage, the focus is very much on getting the layout right along with feature elements,ratherthanspecificdetails.

SITE ANALYSIS

•Designbookletwithcompletesiteanalysis,moodboard&referencepictures DESIGN

• Concept design with 2D and 3D model, selection of relevant landscape renders to illustratetheproject(axonometry,plan,sections,elevations,perspectives,etc)

•Onlineconsultationtopresentthedesign

•Includesaroundofeditstoadjustthedesignandfinaliseit

PHASE III - DEVELOPED DESIGN

Produced after the concept design has been agreed, these drawings develop the chosenconceptlayoutintoanoverallmasterplanandadditionaldrawings.Thissetof drawingscanthenbepresentedtoabuilderinordertogetaquotefortheconstruction ofthegarden.

Initial material palette, as well as a planting palette with general character of the plantingwillbeproposed.

INITIAL WORKING PLANS

•Generalarrangementplan,measurementsplan,lightingplan

•Coordinationwithotherprofesionnals(architect,engineer,interiordesigner,etc) DEVELOPED DESIGN BOOKLET

•Initialmaterialpaletteandplantingplalette,lightingschedule

4

CONSTRUCTION PROCESS

PHASE IV - CONSTRUCTION PACKAGE

Once the masterplan is approved, technical drawings are developed in order to guide thebuilderwithprecision.Amaximumofinformationisspecifiedtoinsurethedesign willbebuiltasmuchaspossiblelikeithasbeenaprovedwiththeclient.Theseinclude differenttypesofplans,elevations,crosssectionsandtechnicaldetails.

TECHNICAL DRAWINGS

•Finecoordinationwithotherprofessionals

•Technicalplanswithlevels,measures,key,atdifferentscales

•Elevations,crosssectionswhereappropriate

•Technicaldetails,typicaldetailsforsoftandhardlandscape,bespokedetails

PHASE V - PLANTING PLAN

From the precision of the construction plan, we can then move to a planting plan, coveringalltheplantedsurfacesanddividedintosub-section.Theplantingplanshow the location and size for every plant selected, and the planting schedule lists every plantwithnumbers,size,specifications,latinname,family,floweringperiod,seasonof interest,evergreen/deciduous,andtype.

PLANTING

•Plantingplanwithlocationoftrees,shrubs,climbers,perennials,grasses,ferns, bulbs,etc

•Plantingschedulewithadditionalinformationoneachplant(native,irish-grown, pollinatorfriendly,non-toxictokidsandanimals,seasonofinterest,edible,etc)

5

GARDEN DESIGN

PRIVATE GARDENS PORFOLIO

Projects:

Trinity College courtyard, Dublin

The garden of Soil (R)evolution

Chaumont-sur-Loire, show garden

A gardener’s palette

Dublin, concept garden

A transformative garden

Dublin, Charity large garden

Daring to do things differently

Dublin, medium concept garden

> > > > > > > > > >

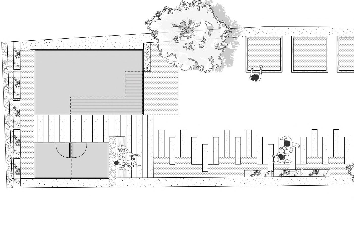
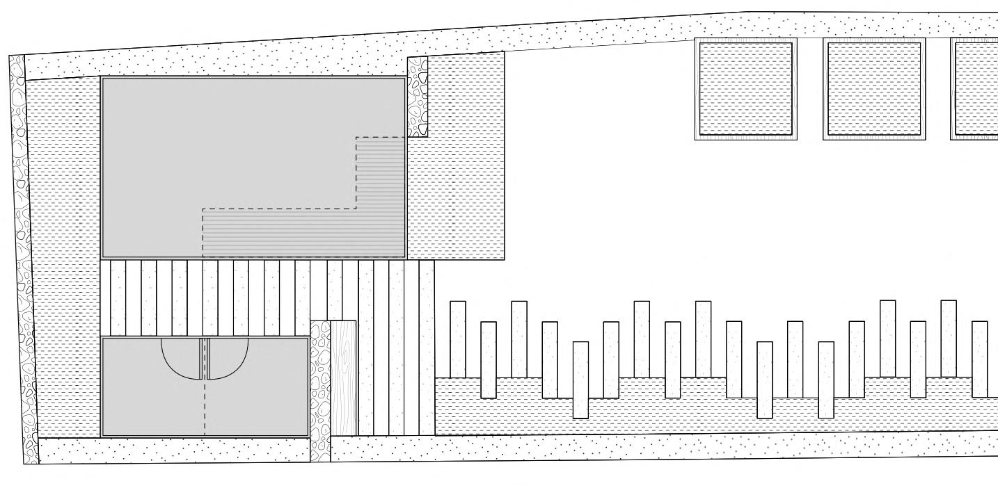
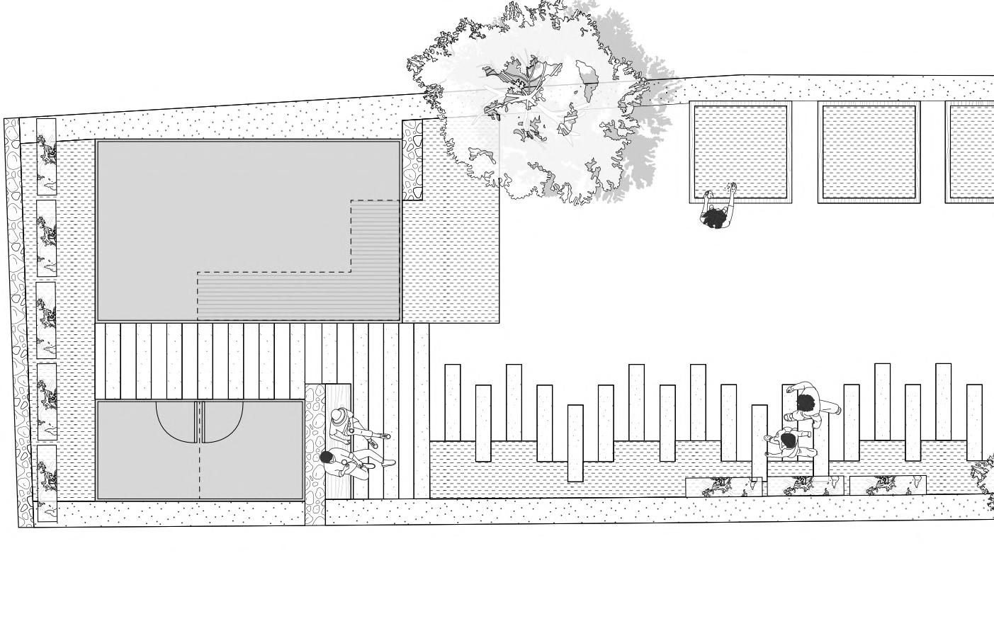
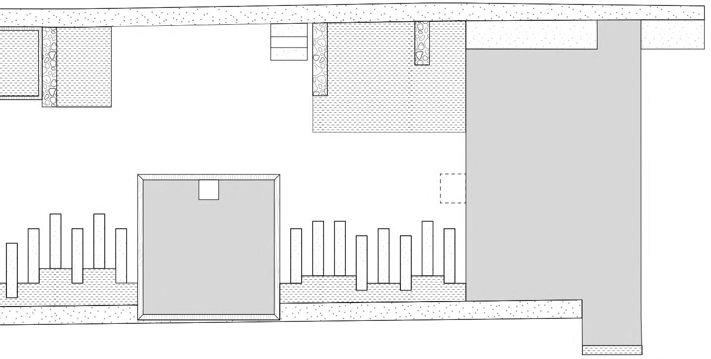
TRINITY COLLEGE COURTYARD

year 2021 type courtyard location Dublin stage built team M+A theme students amenity

A courtyard needed to be introduced in the refurbishement plan for the Arts Block in Trinity College between 2017 and 2021. The design is user friendly and divides the space in multiple pocketswithlushplantingandseatingoptions.

7

THE GARDEN OF SOIL (R)EVOLUTION

This 5m x 7m garden explores the possibilities of uses within a small-scale garden. A garden canbeesthetic,aniceplacetohostfriendsandfamily,butmoreover it is a place for nature, biodiversity (even in an urban environment) and perhaps a place that stimulatestheimaginaryandthecreativitywithinus.

8 0 1 2 4m
year 2020 type show garden location France the edible forest theperennialvegetablegarden the field timber seats brickraisedplanters pleachedfruittrees 4 4 1 1 1 1 5 5 2 2 2 6 6 3 3 3 stage built team M+A theme Return to Mother Earth
9

A GARDENER’S PALETTE

year 2023 type concept garden

location Dublin stage design team LCLA theme small back garden

This 5m x 7m garden explores the possibilities of uses within a small-scale garden. A garden canbeesthetic,aniceplacetohostfriendsandfamily,butmoreover it is a place for nature, biodiversity (even in an urban environment) and perhaps a place that stimulatestheimaginaryandthecreativitywithinus.

10
11 0 1 2 4m glasshouse timberboundary swing pleachedtree steppingstones organicbench raisedplanter water bowl feature tree 1 1 4 4 7 7 7 2 2 2 5 5 8 8 3 3 6 6 9 9

A TRANSFORMATIVE GARDEN

large charity garden

Thisisa16x10mlargegardenproposaldesignedtoillustratetheCharitystrategicplanfor

12
type concept
stage
team
theme
year 2024
garden location Dublin
design
LCLA
13 4 7 2 5 8 6 9

DARING TO DO THINGS DIFFERENTLY

Thisgardenproposalisa12mx9mmediumsizedgarden,consistingofahighlyplantednatural openwoodland,withafeaturefloatingcanopyandaloungeareainitsheart.Theuseofcurves andorganicshapesgivesthesenseofbeinghuggedandcosy,likeina“zenheaven”.

14
year 2024 type concept garden location Dublin stage design team LCLA theme zen/lounge garden 0 1 2m cocoon seats floatingcanopy feature tree feature bench cloudboundary steelpaths curved walls water features firepit 1 1 4 4 7 7 2 2 5 5 5 8 8 8 3 3 6 6 9 9 9
15

CONSTRUCTION PACKAGE

DESIGN BOOKLET & CONSTRUCTION

Design booklet

Moodboard

Planting moodboard

Construction details examples

Design & construction package

General arrangement plan

Sun analysis plan

Measurements plan

Lighting plan

> > > > > > > > > > > > > >
17 MOODBOARD
18 PLANTING MOODBOARD

Corten

plan&elevation1/30 cortensteeltreegrillewith pattern

plan1/30 cortensteeltreegrille withpattern

elevation 1/60 corten steel stairs

elevation 1/25 recessedLEDlightingto

900 167 600 1200 1600 102 60 350 50 4030 1393 1310 1310 1600 5050 steel stairs Elevation 1/60 steel stairs Elevation 1/60 Recessed LED lighting to concrete and steel steps Elevation 1/25 3 1300 950 100 40 1000 60 290 950 8950 5300 3530 300 2000 1200 300 400 Stairs, handrail
lighting section Elevation
Corten steel steps pattern Elevation 1/30 3 Corten steel tree ring to the italian cypres Elevation 1/75 2 CONSTRUCTION DETAILS corten steel tree grille in two pieces circular cut for lighting tree opening ø250mm ground level frame tree grille weed stop layer 800 760 250 380 1200 760 380 Corten steel tree grilles to table top trees
1/50
steel tree grille with dotted pattern corten steel tree grille in two pieces circular cut for lighting tree opening ø250mm ground level frame tree grille weed stop layer 800 760 380 1200 760 380 Elevation 1/50 2 Corten steel pannels to barbecue area with dotted pattern Elevation 1/30 3 Corten steel tree grille with dotted pattern tree opening ø250mm ground level frame tree grille weed stop layer 800 760 380 1200 800 760 380 Elevation
and
1/20 1
Elevation
2 Corten steel pannels to barbecue area with dotted pattern Elevation 1/30 3 Corten
1/50 2 Corten steel pannels to barbecue area with dotted pattern Elevation 1/30 3
steel tree grille
dotted pattern 2530 1930 300 1630 1000 2000 850 1800 300 1600 300 1390 450 360 350 350 1500 100 100 150 900 167 167 600 300 300 1200 1600 102 60 350 50 4030 1390 950 1393 1310 5050 Corten steel stairs Plan 1/60 1 Corten steel stairs Elevation 1/60 2 Recessed LED lighting to concrete and steel steps Elevation 1/25 3
with
elevation 1/20 stairs,handrailand lightingsection
concreteandsteelsteps
1 3 2 4 5
corten steel tree grille in twopieces treegrille weedbarrierlayer groundlevelframe circularcutforlighting treeopening250mm
20 0 1 2 4m A3
year 2024 type medium garden location Clontarf stage construction team LCLA theme back garden 1 10 4 7 2 2 2 11 11 5 3 3 6 1
GENERAL ARRANGEMENT PLAN
21 House steppingstones heatpump featureplanting feature stone walls pleachedtrees vegetablebeds retainedexistingtrees binstorage Shomera 23 retained fruit tree timberpergola sidepassageway RB73 stove featuregreenwall gardenshed diningarea floatingbench outdoor kitchen 1 10 4 13 13 7 7 16 16 2 2 2 2 11 11 11 11 5 14 14 8 8 17 17 3 3 12 12 6 15 15 9 9 18 18

GENERAL ARRANGEMENT PLAN

22
year 2024 type medium garden location Clontarf stage construction team LCLA theme back garden
existing retained trees
feature
feature
lawn
evergreen pleached trees
stone walls porcelain tile paving timber decking concrete floor/ micro-cement timber structures existing retained hedge
planting

SUN ANALYSIS

23
year 2024 type medium garden location Clontarf stage construction team LCLA theme back garden N S 0 ° 10 ° 20 ° 30 ° 40 ° 50 ° 60 ° 7pm 6pm LENGTH OF DAY 16HRS SUMMER SOLSTICE JUNE 21 WINTER SOLSTICE DECEMBER 21 SPRING/FALL EQUINOX MARCH 20/SEPTEMBER 23 12HRS 8HRS 5pm 5am 6am 7am 8am 9am 10am 11am 4pm 3pm 2pm 1pm 12am w E House 0 1 2 4m A3
24 400 500 5300 300 400 1500 14700 MEASUREMENT PLAN year 2024 type medium garden location Clontarf stage construction team LCLA theme back garden 0 1 2 4m A3

feature stone walls timber decking timber structures feature planting lawn existing retained hedge concrete floor/ micro-cement porcelain tile paving

25 2200 4000 4000 400 1500 5500 4200 1000 1000 2000 3000 4700 7700 1200 800 3900 5100 3200 1600 3600 4800 1200 400 400 House

LIGHTING PLAN

26
year 2024 type medium garden location Clontarf stage construction team LCLA theme back garden 0 1 2 4m A3

spike uplighters to trees & feature walls evo ground light to footpath

mini scope ceiling to pergola

“disc wall” to outdoor kitchen down light to house, shed & shaumra

floating light to feature planting

27

BUILT DESIGNS

GARDENS & PUBLIC SPACES

Projet type :

Chaumont-sur-Loire International

Garden Festival 2020, France

Trinity College Arts Block courtyard - Level 5&6, Dublin

Aparto Cork Street student accomodation, Dublin work done while working for Mitchell + Associates

> > > > > > >
29
30
31 LCLA lc.landscapearchitecture@gmail.com +353 85 155 2268

Turn static files into dynamic content formats.

Create a flipbook
Issuu converts static files into: digital portfolios, online yearbooks, online catalogs, digital photo albums and more. Sign up and create your flipbook.