Purchase Homes New Home Collection

Page 1

1 NEW HOME COLLECTION 2022 New Home Collection 2023

OUR colour schemes

INTERIOR colour scheme CONCRETE

KITCHEN STONE BENCHTOP YDL - JASMINE

KITCHEN / BATHROOM BASE CABINETRY

POLYTEC - AVION GREY MATT

KITCHEN OVERHEAD CABINETRY

POLYTEC - TESSUTO MILAN MATT

SPLASHBACK

100X300 - WHITE GLOSS TILE

CARPET

FLASH STONE - JORDAN

FLOOR & WALL TILES

500X500 INDUSTRIAL CONCRETE TILE

FLOORBOARDS

OMEGA - DUSK OAK

WALL PAINT

TAUBMANS - JUNE FOG

DOORS/SKIRTS/ARCHS PAINT

TAUBMANS - JUNE FOG

BLINDS

VIBE - CLOUD

10
1300 110 437 hello@purchasehomes.com.au www.purchasehomes.com.au
Gascoyne Circuit, Lara 3212 Victoria
31-33

KITCHEN STONE BENCHTOP

POLYTEC - SILVER STAR WHITE

PLEASE NOTE: Colours and materials are indicative only and may not accurately represent the final built form of your home. All images are to be used as a guide only. These inclusions are subject to change without notice and New Build Co reserves the right to substitute products to a similar product should it not be available at the time of supply.

INTERIOR colour scheme COntemporary

CARPET

FLASH STONE - OTIS

KITCHEN / BATHROOM BASE CABINETRY

POLYTEC - NOUVEAU GREY MATT

KITCHEN OVERHEAD CABINETRY

POLYTEC - NATURAL OAK MATT

SPLASHBACK

100X300 - WHITE GLOSS TILE

FLOOR & WALL TILES

500X500 INDUSTRIAL STEEL TILE

FLOORBOARDS

OMEGA - LATTE OAK

WALL PAINT

TAUBMANS - SILVER PENDANT

DOORS/SKIRTS/ARCHS PAINT

TAUBMANS - SILVER PENDANT

BLINDS

VIBE - CLOUD

11
1300 110 437 hello@purchasehomes.com.au www.purchasehomes.com.au 31-33 Gascoyne Circuit, Lara 3212 Victoria

OUR colour schemes

INTERIOR colour scheme Coastal

KITCHEN STONE BENCHTOP

YDL - BIANCO GENTAL

KITCHEN / BATHROOM BASE CABINETRY

POLYTEC - BLOSSOM WHITE MATT

KITCHEN OVERHEAD CABINETRY

POLYTEC - MAISON OAK MATT

SPLASHBACK

100X300 - WHITE GLOSS TILE

CARPET

FLASH STONE - VAN

FLOOR & WALL TILES

500X500 INDUSTRIAL LIME TILE

DOORS/SKIRTS/ARCHS PAINT

TAUBMANS - MARBLE MIST

FLOORBOARDS

OMEGA - WHISPER OAK

WALL PAINT

TAUBMANS - MARBLE MIST

BLINDS

VIBE - CLOUD

12
1300 110 437 hello@purchasehomes.com.au www.purchasehomes.com.au 31-33 Gascoyne Circuit, Lara 3212 Victoria

PLEASE NOTE: Colours and materials are indicative only and may not accurately represent the final built form of your home. All images are to be used as a guide only. These inclusions are subject to change without notice and New Build Co reserves the right to substitute products to a similar product should it not be available at the time of supply.

external colour scheme

13
ROOFTILES
BRICKS AUSTRAL
GARAGE
DOWNPIPES/FASCIA/GUTTER COLORBOND MONUMENT
CHARCOAL
STONE FIRST FLOOR RENDER 1 COLORBOND MONUMENT FRONT DOOR COLOR COLORBOND SURFMIST
DOOR SLIMLINE COLORBOND SURFMIST
GROUND FLOOR RENDER COLORBOND SURFMIST WINDOW FRAMES BLACK
1300 110 437 hello@purchasehomes.com.au www.purchasehomes.com.au 31-33 Gascoyne Circuit, Lara 3212 Victoria

Option one

Option two

Option three

Front landscaping

SHRUBS/GROUND COVERINGS

Up to 20 mixed variety plants in 150mm pots.

FEATURE TREE

Up to 2 feature trees as indicated.

TOPPINGS

Compacted topping or rock configuration as per plan.

TURF

Rolled Turf as per plan.

Rear landscaping

TREES

8 Lily Pillies (or similar) placed around the fence.

PATHS/TOPPINGS

Compacted topping to side of home, and path around rear or home.

EDGING

Timber Edging to garden beds.

REAR CONCRETE

Coloured concrete to Alfresco or Up to 12m2 concrete pad to nominated location.

1300 110 437 hello@purchasehomes.com.au www.purchasehomes.com.au

DRIVEWAY

Up to 35m2 of coloured concrete driveway.

WATERING

Manual Dripline including timer.

GARDEN BEDS

Mulch or Rock to garden beds as per selected plan.

TURF

Rolled Turf.

FENCING

Timber paling fence (half share) up to 448m2 Lot.

WATERING

Manual Dripline including timer.

garden beds

Mulch or Rock to garden beds as per selected plan.

31-33 Gascoyne Circuit, Lara 3212 Victoria

14
1 Name 1 Signature 2 Signature 2 Name Email Website ABN jason@newbuildco.com.au www.newbuildco.com.au 46 615 314 479 1 BUILD CO. Client 1 Name Client 1 Signature Client 2 Signature Client 2 Name Email Website ABN jason@newbuildco.com.au www.newbuildco.com.au 46 615 314 479 2 NEW BUILD CO. Client 1 Name Client 1 Signature Client 2 Signature Client 2 Name Email Website ABN jason@newbuildco.com.au www.newbuildco.com.au 46 615 314 479 3 NEW BUILD CO.
landscaping options
1300 110 437 hello@purchasehomes.com.au www.purchasehomes.com.au 31-33 Gascoyne Circuit,
3212
Lara
Victoria

SMALL LOT HOUSING CODE

What is the Small Lot Housing Code (SLHC)?

The Small Lot Housing Code is essentially a different set of rules and regulations that builders and home owners must comply with to build a new home. The SLHC was introduced in 2011 to assist in eliminating the need for a planning permit on lots less than 300 square metres by introducing a new set of house design and siting standards.

Some of the requirements that need to be considered are:

Setbacks

Building Heights

Porch Projection Overlooking

Provision of Car Spaces

Direct Sunlight to Private & Open Space

Overshadowing Building Articulation Fences

Private and open space requirements

Your Lot must achieve a minimum of 24sqm of private open space with a depth of 3m. This area must also achieve a minimum of 6sqm of direct daylight at midday with a minimum depth of 2m when the sun is at true North. (New Build Co may need to modify a floorplan to suit these requirements)

Type A vs Type B – The Basics based on a regular Lot

Block types subject to the Small Lot Housing Code have been split into TYPE A and TYPE B.

TYPE A

Maximum front setback of the building line is 3m unless it is a declared road then there must be a 4m setback.

Minimum Side setback of 1.5m.

Garage to be 5m.

Private and open space for 3+ bedrooms must have 24sqm with a minimum depth of 3m.

Porch depth to be 800mm from the building line, which can encroach on the front setback.

No less than 25 per cent of the area of the front façade of a building must be setback at least an additional 300mm.

If a wall is more than 10.0 metres in length, 10 per cent of the area of the wall must be setback at least an additional 300mm.

90% site coverage.

TYPE B

Minimum front setback of the building line is 1.5m.

Minimum Side setback of 1m.

Garage to be 5m.

Private and open space for 3+ bedrooms must have 24sqm with a minimum depth of 3m.

Porch depth to be 800mm from the building line, which can encroach on the front setback.

No less than 25 per cent of the area of the front façade of a building must be setback at least an additional 300mm.

If a wall is more than 10.0 metres in length, 10 per cent of the area of the wall must be setback at least an additional 300mm.

100% site coverage.

16
SMALL LOT READY PLAN 1300 110 437 hello@purchasehomes.com.au www.purchasehomes.com.au 31-33 Gascoyne Circuit, Lara 3212 Victoria
you considering a block of land under 300m2? It could be subject to the Small Lot Housing Code. New build Co specialises in this style of home. Let us guide you through the differences. SMALL LOT READY PLAN 1300 110 437 hello@purchasehomes.com.au www.purchasehomes.com.au 31-33 Gascoyne Circuit, Lara 3212 Victoria
Are

OUR NEW HOME collection guide

SINGLE STOREY

NAPLES 17

ROME 15 MONZA 15 VERONA 16

VERONA 18 COMO 18

SORENTO 18

COMO 19

FLORENCE 17

BRESCIA 17

TUSCANY 18

TORINO 19

MILAN 20

VENICE 20

HOUSE NAME SQUARES Min. WIDTH Min. DEPTH BEDS BATHS LIVING GARAGE PAGE
GENOA 13 NAPLES 14
VENICE 22
18
PALERMO
SIENA 25 SIENA 27
28 SIENA 29 PARMA 15 BARI 17 CAPRI 21 PISA 33 12.80sq 13.88sq 16.49sq 15.04sq 15.12sq 16.00sq 18.50sq 17.50sq 18.00sq 19.00sq 16.50sq 17.00sq 17.50sq 18.50sq 20.00sq 20.00sq 22.00sq 22.00sq 22.50sq 24.00sq 24.00sq 18.00sq 22.50sq 25.00sq 25.00sq 25.30sq 26.50sq 28.50sq 28.50sq 14.72sq 16.50sq 20.47sq 33.00sq 8.5m 8.5m 8.5m 10.5m 10.5m 10.5m 10.5m 10.5m 10.5m 10.5m 12.5m 12.5m 12.5m 12.5m 12.5m 12.5m 12.5m 12.5m 12.5m 12.5m 12.5m 14m 14m 14m 14m 14m 14m 14m 14m 16m 16m 16m 16m 21m 25m 28m 21m 21m 25m 28m 25m 25m 28m 21m 21m 21m 21m 25m 25m 28m 28m 28m 30m 30m 21m 25m 28m 28m 28m 30m 32m 32m 16m 16m 21m 32m 3 3 4 3 3 3 4 3 4 4 3 4 3 3 4 4 4 4 4 4 4 4 4 4 4 4 4 4 4 3 3 4 4 2 2 2 2 2 2 2 2 2 2 2 2 2 2 2 2 2 2 2 2 2 2 2 2 2 2 2 2 2 2 2 2 2 1 1 1 1 1 1 1 1 1 1 1 1 1 1 1 1 2 2 2 2 2 1 2 2 2 2 2 2 2 1 1 1 2 1 1 1 1 2 1 1 2 2 2 2 2 2 2 2 2 2 2 2 2 2 2 2 2 2 2 2 2 2 1 1 1 2 22 23 24 25 26 27 28 29 30 31 34 35 36 37 38 39 40 41 42 43 44 45 46 47 48 49 50 51 52 53 54 55 56
SICILY 22 PALERMO 23 PALERMO 24 VENICE 24 AMALFI
MESSINA 23
25 VENICE 25
PISA
18 1300 110 437 hello@purchasehomes.com.au www.purchasehomes.com.au 31-33 Gascoyne Circuit, Lara 3212 Victoria

DOUBLE STOREY

HOUSE NAME SQUARES Min. WIDTH Min. DEPTH BEDS BATHS LIVING GARAGE PAGE LONDON 21 BLACKBURN 26 MANCHESTER 26 MANCHESTER 31 MANCHESTER 35 SHEFFIELD 28 BRIGHTON 34 BRIGHTON 40 ROCHESTER 40 FULHAM 24 21.21sq 25.50sq 26.00sq 30.50sq 34.50sq 27.91sq 33.40sq 40.14sq 39.81sq 23.54sq 10.5m 10.5m 12.5m 12.5m 12.5m 14m 14m 14m 14m 16m 21m 25m 21m 25m 28m 21m 25m 28m 30m 16m 4 4 4 4 4 4 4 4 4 3 2.5 2.5 2.5 2.5 2.5 2.5 2.5 2.5 4.5 2.5 3 3 3 4 4 3 3 5 5 3 2 2 2 2 2 2 2 2 2 2 60 61 62 63 64 65 66 67 68 69
19 1300 110 437 hello@purchasehomes.com.au www.purchasehomes.com.au 31-33 Gascoyne Circuit, Lara 3212 Victoria
20 OUR facades THE URBAN FACADE THE PROVINCIAL FACADE THE MODERN FACADE 1300 110 437 hello@purchasehomes.com.au www.purchasehomes.com.au 31-33 Gascoyne Circuit, Lara 3212 Victoria
21 SINGLE STOREY 8.5M | 10M FRONTAGE THE industrial FACADE THE luxe FACADE THE pinnacle FACADE DISCLAIMER: All photos and images are for illustrative purposes. All designs are the property of New Build Co and must not be used, reproduced, copied or varied, wholly or in part without written permission from an authorised New Build Co representative. 1300 110 437 hello@purchasehomes.com.au www.purchasehomes.com.au 31-33 Gascoyne Circuit, Lara 3212 Victoria

Are you an investor expanding your portfolio or a first home buying looking at breaking into the property market?

Look no further, The Genoa is the ideal build for you, practical and affordable this design speaks for itself.

22
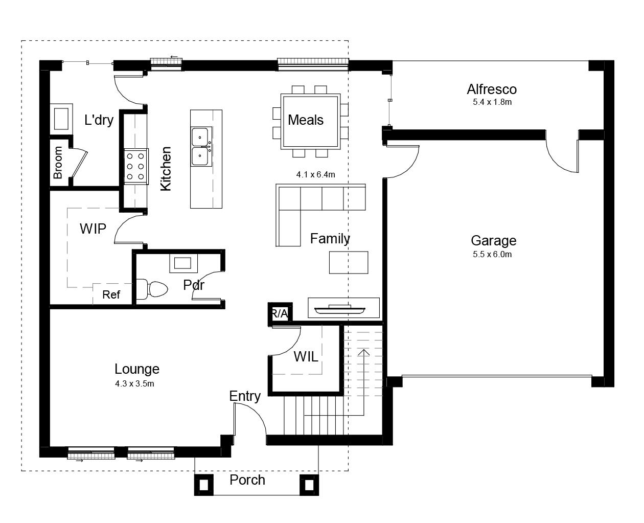
TOTAL AREAS GROUND FLOOR 92.32m2 GARAGE 23.6m2 PORCH 3.3m2 MINIMUM LOT WIDTH 8.5m MINIMUM LOT DEPTH 21m EXTERIOR LENGTH 15.00m EXTERIOR WIDTH 8.5m TOTAL 119.22sqm | 12.8sq 3 2 1 1 GENOA 13 SMALL LOT ready plan 1300 110 437 hello@purchasehomes.com.au www.purchasehomes.com.au 31-33 Gascoyne Circuit, Lara 3212 Victoria

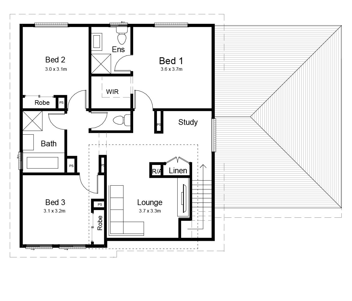
Modest and unique, the Naples sits perfectly on an impressive eight and a half meter width block. This cleverly designed narrow footprint delivers an effortlessly functional three bedroom home with ample storage throughout, necessary for every growing family home.

The Naples 14 fits on a 8.5 meter width block. Please contact our team to learn more about the Naples range.

110 437 hello@purchasehomes.com.au www.purchasehomes.com.au

SMALL LOT ready plan

TOTAL AREAS

31-33 Gascoyne Circuit, Lara 3212 Victoria

23
GROUND FLOOR 86.97m2 GARAGE 23.6m2 PORCH 1.58m2 MINIMUM LOT WIDTH 8.5m MINIMUM LOT DEPTH 25m EXTERIOR LENGTH 18.70m EXTERIOR WIDTH 8.5m TOTAL 128.96sqm | 13.88sq 3 2 1 1
8.5M DESIGNS
naples 14
1300

naples

Modest and unique, the Naples sits perfectly on an impressive eight and a half meter width block. This cleverly designed narrow footprint delivers an effortlessly functional four bedroom home with ample storage throughout, necessary for every growing family home.

TOTAL AREAS

GROUND FLOOR 114.92m2 GARAGE 23.6m2 PORCH 4.70m2 MINIMUM LOT WIDTH 8.5m MINIMUM LOT DEPTH 30m EXTERIOR LENGTH 22.26m EXTERIOR WIDTH 8.5m TOTAL 143.22sqm | 16.49sq 24 4 2 1 1
The Naples 17 fits on a 8.5 meter width block. Please contact our team to learn more about the Naples range. 17 SMALL LOT ready plan 1300 110 437 hello@purchasehomes.com.au www.purchasehomes.com.au
31-33 Gascoyne Circuit, Lara 3212 Victoria

ROME 15

3 2 1 1

1300

SMALL LOT ready plan

TOTAL AREAS MINIMUM LOT WIDTH 10.5m MINIMUM LOT DEPTH 21m EXTERIOR LENGTH 14.80m EXTERIOR WIDTH 10.50m TOTAL 139.75sqm | 15.04sq 25

10.5M DESIGNS

This stylish and spacious footprint is the ideal home for young families looking for open plan modern living. The kitchen dining/living layout to the rear in addition to the large sliding doors gives a seamless connection to outside, perfect for entertaining. Escape to the master suite which is sectioned off from the kids sleep zone but conveniently not too far. GROUND FLOOR 112.15m2 GARAGE 23.6m2 PORCH 4.00m2 ALFRESCO
110 437 hello@purchasehomes.com.au www.purchasehomes.com.au 31-33 Gascoyne Circuit, Lara 3212 Victoria

The Monza offers all that a modern operational family home needs. The single corridor to the end of the home enhances the feeling of space within a small footprint. In addition, the second bedroom includes clever access to bonus side patio that can be used how your family chooses

TOTAL AREAS GROUND FLOOR 102.18m2 GARAGE 36.5m2 PORCH 1.84m2 ALFRESCO MINIMUM LOT WIDTH 10.50m MINIMUM LOT DEPTH 21m EXTERIOR LENGTH 16.02m EXTERIOR WIDTH 10.50m TOTAL 140.52sqm | 15.12sq 26 3 2 1 2 MONZA 15 SMALL LOT ready plan 1300 110 437 hello@purchasehomes.com.au www.purchasehomes.com.au 31-33 Gascoyne Circuit, Lara 3212 Victoria

3 2 1 1 VERONA 16 SMALL LOT ready plan

Offering a great lifestyle for growing families, the Verona cleverly delivers all that is needed for the perfect home neatly on a narrow block. The inviting open plan living area at the rear of the home is a peaceful and relaxing hub for the whole family to unite after a long day or entertaining loved ones.

1300 110 437 hello@purchasehomes.com.au www.purchasehomes.com.au

31-33 Gascoyne Circuit, Lara 3212 Victoria

TOTAL AREAS MINIMUM LOT WIDTH 10.5m MINIMUM LOT DEPTH 25m EXTERIOR LENGTH 18.56m EXTERIOR WIDTH 8.90m TOTAL 148.60sqm | 16.00sq 27

10.5M DESIGNS

The Verona 16 fits on a 10.5 meter width block. Please contact our team to learn more about the Verona range. GROUND FLOOR 123.02m2 GARAGE 23.6m2 PORCH 1.98m2

Offering a great lifestyle for growing families, the Verona cleverly delivers all that is needed for the perfect home neatly on a narrow block. The inviting open plan living area at the rear of the home is a peaceful and relaxing hub for the whole family to unite after a long day or entertaining loved ones.

TOTAL MINIMUM LOT WIDTH 10.5m MINIMUM LOT DEPTH 28m EXTERIOR LENGTH 21.75m EXTERIOR WIDTH 8.90m TOTAL 171.87sqm | 18.50sq 28

31-33 Gascoyne Circuit, Lara 3212 Victoria

4 2 1 1 VERONA 18 SMALL LOT ready plan 1300 110 437 hello@purchasehomes.com.au www.purchasehomes.com.au

The Verona 19 fits on a 10.5 meter width block. Please contact our team to learn more about the Verona range. AREAS GROUND FLOOR 136.68m2 GARAGE 23.6m2 PORCH 2.41m2 ALFRESCO 9.18m2

Providing a great lifestyle for growing families, the Como cleverly delivers all that is needed for the perfect home neatly on a narrow block. The inviting open plan living area at the rear of the home is a peaceful and relaxing hub for the family to unite after a long day or entertaining loved ones.

1300 110 437

TOTAL AREAS

GROUND FLOOR 120.81m2 GARAGE 36.5m2 PORCH 5.27m2 MINIMUM LOT WIDTH 10.5m MINIMUM LOT DEPTH 25m EXTERIOR LENGTH 18.47m EXTERIOR WIDTH 8.1m TOTAL 162.58sqm | 17.50sq 29 3 2 1 2 COMO 18 10.5M DESIGNS SMALL LOT ready plan
hello@purchasehomes.com.au www.purchasehomes.com.au
The Como 18 fits on a 10.5 meter width block. Please contact our team to learn more about the Como range. Gascoyne Circuit, Lara 3212
31-33
Victoria

This popular and comfortable four bedroom floorplan fits neatly on a narrow block with a hidden courtyard which you can use how your family chooses.

The spacious living area looking out to the yard and expansive kitchen creates an enjoyable atmosphere for entertaining family and friends.

TOTAL AREAS GROUND FLOOR 127.42m2 GARAGE 36.5m2 PORCH 3.3m2 MINIMUM LOT WIDTH 10.5m MINIMUM LOT DEPTH 25m EXTERIOR LENGTH 18.35m EXTERIOR WIDTH 10.50m TOTAL 167.22sqm | 18.00sq 30 4 2 1 2 SORENTO 18 SMALL LOT ready plan 1300 110 437 hello@purchasehomes.com.au www.purchasehomes.com.au 31-33 Gascoyne Circuit, Lara 3212 Victoria

Providing a great lifestyle for growing families, the Como cleverly delivers all that is needed for the perfect home neatly on a narrow block. The inviting open plan living area at the rear of the home is a peaceful and relaxing hub for the family to unite after a long day or entertaining loved ones.

The Como 19 fits on a 10.5 meter wide frontage block. Please contact our team to learn more about the Como range.

TOTAL AREAS

31
GROUND FLOOR 134.70m2 GARAGE 36.5m2 PORCH 5.3m2 MINIMUM LOT WIDTH 10.5m MINIMUM LOT DEPTH 28m EXTERIOR LENGTH 10.50m EXTERIOR WIDTH 20.05m TOTAL 176.5sqm | 19.00sq 10.5M DESIGNS 4 2 1 2 COMO 19
LOT
plan
SMALL
ready
1300 110 437 hello@purchasehomes.com.au www.purchasehomes.com.au
31-33 Gascoyne Circuit, Lara 3212 Victoria
32 OUR facades THE URBAN FACADE THE PROVINCIAL FACADE THE MODERN FACADE 1300 110 437 hello@purchasehomes.com.au www.purchasehomes.com.au 31-33 Gascoyne Circuit, Lara 3212 Victoria
33 SINGLE STOREY 12.5M|14m|16m FRONTAGE THE industrial FACADE THE luxe FACADE THE pinnacle FACADE DISCLAIMER: All photos and images are for illustrative purposes. All designs are the property of New Build Co and must not be used, reproduced, copied or varied, wholly or in part without written permission from an authorised New Build Co representative. 1300 110 437 hello@purchasehomes.com.au www.purchasehomes.com.au 31-33 Gascoyne Circuit, Lara 3212 Victoria

Offering a great lifestyle for growing families, the Florence cleverly delivers all that is needed for the perfect home neatly on a short block.

The inviting open plan living area at the rear of the home is a peaceful and relaxing hub for family to unite, complemented by a u shaped kitchen facing towards the yard.

TOTAL AREAS GROUND FLOOR 113.49m2 GARAGE 36.5m2 PORCH 3.3m2 MINIMUM LOT WIDTH 12.5m MINIMUM LOT DEPTH 21m EXTERIOR LENGTH 14.99m EXTERIOR WIDTH 11.35m TOTAL 153.29sqm | 16.50sq 34 3 2 1 2 FLORENCE 17 SMALL LOT ready plan 1300 110 437 hello@purchasehomes.com.au www.purchasehomes.com.au 31-33 Gascoyne Circuit, Lara 3212 Victoria

Offering a great lifestyle for growing families, the Brescia cleverly delivers all that is needed for the perfect home neatly on a short block.

Open plan living along with 4 bedrooms make the Brescia an easy choice to live or to invest in.

TOTAL AREAS GROUND FLOOR 118.13m2 GARAGE 36.5m2 PORCH 3.3m2 MINIMUM LOT WIDTH 12.5m MINIMUM LOT DEPTH 21m EXTERIOR LENGTH 14.96m EXTERIOR WIDTH 11.35m TOTAL 157.93sqm | 17.00sq 35 4 2 1 2
16M DESIGNS SMALL LOT ready plan 1300 110 437 hello@purchasehomes.com.au www.purchasehomes.com.au 31-33 Gascoyne Circuit, Lara 3212 Victoria
BRESCIA 17

The Tuscany, the ideal petite floor plan for a busy young family.

The central kitchen creates convenience for constantly attending to and nurturing a young family. Furthermore, the kitchen dining and living flow creates a sense of warmth and comfort.

TOTAL AREAS GROUND FLOOR 120.70m2 GARAGE 36.5m2 PORCH 5.3m2 MINIMUM LOT WIDTH 12.5m MINIMUM LOT DEPTH 21m EXTERIOR LENGTH 16.80m EXTERIOR WIDTH 11.28m TOTAL 162.50sqm | 17.50sq 36 3 2 1 2 TUSCANY 18 SMALL LOT ready plan 1300 110 437 hello@purchasehomes.com.au www.purchasehomes.com.au 31-33 Gascoyne Circuit, Lara 3212 Victoria

Cosy and innovative, the Torino is perfect for young families. The generous Master suite to the rear offers a private sanctuary, while the versatile study nook provides flexible options of your choice. Conveniently, the spacious walk in pantry behind the kitchen leads out to the laundry and side door.

TOTAL AREAS GROUND FLOOR 121.33m2 GARAGE 36.5m2 PORCH 5.00m2 ALFRESCO 9.04m2 MINIMUM LOT WIDTH 12.5m MINIMUM LOT DEPTH 21m EXTERIOR LENGTH 16.80m EXTERIOR WIDTH 11.35m TOTAL 171.87sqm | 18.50sq 37 12.5M DESIGNS 3 2 1 2 TORINO 19 SMALL LOT ready plan 1300 110 437 hello@purchasehomes.com.au www.purchasehomes.com.au 31-33 Gascoyne Circuit, Lara 3212 Victoria

| 20.00

Spacious and light filled, the Milan delivers a modern open plan living family home. This clever four bedroom layout with dedicated sleep zone, expansive kitchen dining living area, generous master suite and ample storage throughout makes the Milan an easy choice

TOTAL AREAS GROUND FLOOR 126.58m2 GARAGE 36.5m2 PORCH 2.93m2 ALFRESCO 8.90m2 MINIMUM LOT WIDTH 12.5m MINIMUM LOT DEPTH 25m EXTERIOR LENGTH 17.83m EXTERIOR WIDTH 11.35m TOTAL 185.91sqm | 20.00sq 38 4 2 1 2 MILAN 20 1300 110 437 hello@purchasehomes.com.au www.purchasehomes.com.au 31-33 Gascoyne Circuit, Lara 3212 Victoria

This functional home design delivers warmth and opulence. The Venice offers an expansive kitchen and dining/living area leading out into the alfresco showcasing a modern open plan living family lifestyle.

The Venice 20 fits on a 12.5 meter width block. Please contact our team to learn more about the Venice range.

TOTAL AREAS GROUND FLOOR 126.58m2 GARAGE 36.5m2 PORCH 2.93m2 ALFRESCO 8.90m2 MINIMUM LOT WIDTH 12.5m MINIMUM LOT DEPTH 25m EXTERIOR LENGTH 17.83m EXTERIOR WIDTH 11.35m TOTAL 185.91sqm | 20.00sq 39 4 2 1 2 VENICE 20 12.5M DESIGNS 1300 110 437 hello@purchasehomes.com.au www.purchasehomes.com.au 31-33 Gascoyne Circuit, Lara 3212 Victoria

This functional home design delivers warmth and opulence. The Venice offers an expansive kitchen and dining/living area leading out into the alfresco showcasing a modern open plan living family lifestyle.

The Venice 22 fits on a 12.5 meter width block. Please contact our team to learn more about the Venice range.

TOTAL AREAS GROUND FLOOR 159.31m2 GARAGE 36.5m2 PORCH 3.44m2 ALFRESCO 8.45m2 MINIMUM LOT WIDTH 12.5m MINIMUM LOT DEPTH 28m EXTERIOR LENGTH 19.80m EXTERIOR WIDTH 11.15m TOTAL 204.30sqm | 22.00sq 40 4 2 2 2 VENICE 22 1300 110 437 hello@purchasehomes.com.au www.purchasehomes.com.au 31-33 Gascoyne Circuit, Lara 3212 Victoria

Looking for a home with a master at the rear? Look no further.

AREAS 12.5M DESIGNS

TOTAL MINIMUM LOT WIDTH 12.5m MINIMUM LOT DEPTH 28m EXTERIOR LENGTH 19.80m EXTERIOR WIDTH 11.15m TOTAL 204.30sqm | 22.00sq 41

31-33 Gascoyne Circuit, Lara 3212 Victoria

4 2 2 2 SICILY 22 1300 110 437 hello@purchasehomes.com.au www.purchasehomes.com.au

This popular and attractive design was well thought through for those looking for something a little different. GROUND FLOOR 155.42m2 GARAGE 36.5m2 PORCH 3.17m2 ALFRESCO 9.21m2

Effortlessly delivering multiple living spaces and separated sleep wing, this relaxing and inviting design is the ideal entertainer. The Kitchen dining/family flowing out to the undercover alfresco creates the ideal space for uniting family and friends while also providing the functionality a family home needs.

The Palermo 23 fits on a 12.5 meter width block. Please contact our team to learn more about the Palermo range.

TOTAL AREAS GROUND FLOOR 160.12m2 GARAGE 36.5m2 PORCH 3.17m2 ALFRESCO 9.21m2 MINIMUM LOT WIDTH 12.5m MINIMUM LOT DEPTH 28m EXTERIOR LENGTH 20.81m EXTERIOR WIDTH 11.15m TOTAL 209.00sqm | 22.50sq 42 4 2 2 2 PALERMO 23 1300 110 437 hello@purchasehomes.com.au www.purchasehomes.com.au 31-33 Gascoyne Circuit, Lara 3212 Victoria

4 2 2 2 PALERMO 24 12.5M DESIGNS

Effortlessly delivering multiple living spaces and separated sleep wing, this relaxing and inviting design is the ideal entertainer. The Kitchen dining/family flowing out to the undercover alfresco creates the ideal space for uniting family and friends while also providing the functionality a family home needs.

1300 110 437 hello@purchasehomes.com.au www.purchasehomes.com.au

31-33 Gascoyne Circuit, Lara 3212 Victoria

TOTAL AREAS MINIMUM LOT WIDTH 12.5m MINIMUM LOT DEPTH 30m EXTERIOR LENGTH 21.36m EXTERIOR WIDTH 11.35m TOTAL 222.96sqm | 24.00sq 43

The Palermo 24 fits on a 12.5 meter width block. Please contact our team to learn more about the Palermo range. GROUND FLOOR 172.59m2 GARAGE 36.5m2 PORCH 3.17m2 ALFRESCO 10.7m2

Effortlessly delivering multiple living spaces and separated sleep wing, this relaxing and inviting design is the ideal entertainer. The Kitchen dining/family flowing out to the undercover alfresco creates the ideal space for uniting family and friends while also providing the functionality a family home needs.

The Palermo 23 fits on a 12.5 meter width block. Please contact our team to learn more about the Palermo range.

TOTAL AREAS GROUND FLOOR 173.07m2 GARAGE 36.5m2 PORCH 3.75m2 ALFRESCO 9.54m2 MINIMUM LOT WIDTH 12.5m MINIMUM LOT DEPTH 30m EXTERIOR LENGTH 21.36m EXTERIOR WIDTH 11.35m TOTAL 222.96sqm | 24.00sq 44 4 2 2 2 VENICE 24 1300 110 437 hello@purchasehomes.com.au www.purchasehomes.com.au 31-33 Gascoyne Circuit, Lara 3212 Victoria

This charming, light filled four bedroom modern home design makes the Amalfi an attractive choice. The main living area nestled central to the homes overall footprint, captures a sense of relaxation and convenience. In addition, the cleverly designed tranquil master suite is an absolute delightful space to escape and wind down.

TOTAL AREAS

GROUND FLOOR 126.58m2 GARAGE 36.5m2 PORCH 4.35m2 MINIMUM LOT WIDTH 14m MINIMUM LOT DEPTH 21m EXTERIOR LENGTH 13.66m EXTERIOR WIDTH 12.80m TOTAL 167.43sqm | 18.00sq 45 4 2 1 2 AMALFI 18 14M DESIGNS 1300 110 437 hello@purchasehomes.com.au www.purchasehomes.com.au
Gascoyne
31-33
Circuit, Lara 3212 Victoria

Spacious and light filled, the Messina delivers a modern open plan living family home with a central kitchen. This clever four bedroom layout with dedicated sleep zone, expansive kitchen dining living area, generous master suite and ample storage throughout makes the Messina a clever choice.

TOTAL AREAS GROUND FLOOR 158.38m2 GARAGE 36.5m2 PORCH 3.64m2 ALFRESCO 10.51m2 MINIMUM LOT WIDTH 14m MINIMUM LOT DEPTH 25m EXTERIOR LENGTH 18.00m EXTERIOR WIDTH 12.50m TOTAL 209.03sqm | 22.50sq 46 4 2 2 2 MESSINA 23 1300 110 437 hello@purchasehomes.com.au www.purchasehomes.com.au 31-33 Gascoyne Circuit, Lara 3212 Victoria

Effortlessly delivering multiple living spaces and separated sleep wing, this relaxing and inviting design is the ideal entertainer. The Kitchen dining/family flowing out to the undercover alfresco creates the ideal space for uniting family and friends while also providing the functionality a family home needs.

The Palermo 25 fits on a 14 meter width block. Please contact our team to learn more about the Palermo range.

TOTAL AREAS GROUND FLOOR 181.98m2 GARAGE 36.5m2 PORCH 3.45m2 ALFRESCO 10.32m2 MINIMUM LOT WIDTH 14.m MINIMUM LOT DEPTH 28m EXTERIOR LENGTH 19.92m EXTERIOR WIDTH 12.64m TOTAL 232.25sqm | 25.00sq 47 14M DESIGNS 4 2 2 2 PALERMO 25 1300 110 437 hello@purchasehomes.com.au www.purchasehomes.com.au 31-33 Gascoyne Circuit, Lara 3212 Victoria

VENICE 25

This functional home design delivers warmth and opulence. The Venice offers an expansive kitchen and dining/living area leading out into the alfresco showcasing a modern open plan living family lifestyle.

TOTAL AREAS 31-33 Gascoyne Circuit, Lara 3212 Victoria

GROUND FLOOR 179.43m2 GARAGE 36.5m2 PORCH 4.11m2 ALFRESCO 12.21m2 MINIMUM LOT WIDTH 14m MINIMUM LOT DEPTH 28m EXTERIOR LENGTH 19.94m EXTERIOR WIDTH 12.64m TOTAL 232.25sqm | 25.00sq 48 4 2 2 2
The Venice 25 fits on a 14 meter width block. Please contact our team to learn more about the Venice range. 1300 110 437 hello@purchasehomes.com.au www.purchasehomes.com.au

This stylish and spacious open plan designed home is the ideal dream space. The kitchen dining/living layout to the side of the home in addition to the large sliding door gives a serene connection to the outside, perfect for entertaining. Escape to the master suite at the rear which is conveniently not too far from the kids rooms making this perfect for all types of families.

The Siena 25 fits on a 14 meter width block. Please contact our team to learn more about the Siena range.

TOTAL AREAS

GROUND FLOOR 179.70m2 GARAGE 36.5m2 PORCH 4.3m2 ALFRESCO 14.7m2 MINIMUM LOT WIDTH 14m MINIMUM LOT DEPTH 28m EXTERIOR LENGTH 19.20m EXTERIOR WIDTH 12.59m TOTAL 235.20sqm | 25.30sq 49 14M DESIGNS 4 2 2 2
1300 110 437 hello@purchasehomes.com.au www.purchasehomes.com.au 31-33 Gascoyne Circuit, Lara 3212 Victoria
SIENA 25

This stylish and spacious open plan designed home is the ideal dream space. The kitchen dining/living layout to the side of the home in addition to the large sliding door gives a serene connection to the outside, perfect for entertaining. Escape to the master suite at the rear which is conveniently not too far from the kids rooms making this perfect for all types of families.

The Siena 27 fits on a 14 meter width block. Please contact our team to learn more about the Siena range.

TOTAL
GROUND FLOOR 196.03m2 GARAGE 36.5m2 PORCH 4.80m2 ALFRESCO 13.5m2 MINIMUM LOT WIDTH 14m MINIMUM LOT DEPTH 30m EXTERIOR LENGTH 21.65m EXTERIOR WIDTH 12.80m TOTAL 250.83sqm | 27.00sq 50 4 2 2 2
27 1300 110 437 hello@purchasehomes.com.au www.purchasehomes.com.au 31-33 Gascoyne Circuit, Lara 3212 Victoria
AREAS
SIENA

The grand and ever so popular Pisa was created to ensure it offers customers with the true aspects of the perfect family home. Filled with warmth and flexibility this floorplan will make you feel right at home with multiple living areas, generous storage and a neat/ practical layout.

The Pisa 28 fits on a 14 meter width block. Please contact our team to learn more about the Pisa range.

TOTAL
GROUND FLOOR 209.43m2 GARAGE 36.5m2 PORCH 3.40m2 ALFRESCO 10.77m2 MINIMUM LOT WIDTH 14m MINIMUM LOT DEPTH 32m EXTERIOR LENGTH 22.20m EXTERIOR WIDTH 12.60m TOTAL 260.1sqm | 28.00sq 51 14M DESIGNS 4 2 2 2
1300 110 437 hello@purchasehomes.com.au www.purchasehomes.com.au
AREAS
PISA 28
31-33 Gascoyne Circuit, Lara 3212 Victoria

This stylish and spacious open plan designed home is the ideal dream space. The kitchen dining/living layout to the side of the home in addition to the large sliding door gives a serene connection to the outside, perfect for entertaining. Escape to the master suite at the rear which is conveniently not too far from the kids rooms making this perfect for all types of families.

The Siena 29 fits on a 14 meter width block. Please contact our team to learn more about the Siena range.

TOTAL AREAS

GROUND FLOOR 209.97m2 GARAGE 36.5m2 PORCH 4.80m2 ALFRESCO 13.50m2 MINIMUM LOT WIDTH 14m MINIMUM LOT DEPTH 32m EXTERIOR LENGTH 22.86m EXTERIOR WIDTH 12.80m TOTAL 264.77sqm | 28.50sq 52 4 2 2 2
1300 110 437 hello@purchasehomes.com.au www.purchasehomes.com.au 31-33 Gascoyne Circuit, Lara 3212 Victoria
SIENA 29

Spacious and light filled, the Parma delivers a perfect first or forever family home. With a clever layout, expansive kitchen and dining living area, this home definitely exceeds. There is also a generous master suite and ample storage throughout which makes the Parma an easy choice.

TOTAL AREAS GROUND FLOOR 108.02m2 GARAGE 23.6m2 PORCH 5.20m2 MINIMUM LOT WIDTH 16m MINIMUM LOT DEPTH 16m EXTERIOR LENGTH 11.80m EXTERIOR WIDTH 13.80m TOTAL 136.82sqm | 15.00sq 53 3 2 1 1 PARMA 15 16M DESIGNS SMALL LOT ready plan 1300 110 437 hello@purchasehomes.com.au www.purchasehomes.com.au 31-33 Gascoyne Circuit, Lara 3212 Victoria

Unique and tranquil, this innovative design is going to make home feel like an everyday escape with the long rear living area viewing the whole yard allowing for natural light to stream through. Separated from the hustle and bustle of the entry and sleep wing you will truly be able to wind down with loved ones.

AREAS GROUND FLOOR 112.88m2 GARAGE 36.5m2 PORCH 3.91m2 MINIMUM LOT WIDTH 16m MINIMUM LOT DEPTH 16m EXTERIOR LENGTH 12.24m EXTERIOR WIDTH 14.50m TOTAL 153.29sqm | 16.50sq 54 3 2 1 2 BARI 17 SMALL LOT ready plan 1300 110 437 hello@purchasehomes.com.au www.purchasehomes.com.au 31-33 Gascoyne Circuit, Lara 3212 Victoria
TOTAL

This well thought through, rear master bedroom home design will be eye catching for many.

This unique and comfortable footprint will be a perfect fit for a short block or a family that simply wants larger yard space.

TOTAL AREAS GROUND FLOOR 190.20m2 GARAGE 36.5m2 PORCH 4.40m2 ALFRESCO 12.71m2 MINIMUM LOT WIDTH 16m MINIMUM LOT DEPTH 21m EXTERIOR LENGTH 13.66m EXTERIOR WIDTH 14.80m TOTAL 136.59sqm | 20.47sq 55 16M DESIGNS 4 2 1 2
21 SMALL LOT ready plan 1300 110 437 hello@purchasehomes.com.au www.purchasehomes.com.au 31-33 Gascoyne Circuit, Lara 3212 Victoria
CAPRI

The grand and ever so popular Pisa was created to ensure it offers customers with the true aspects of the perfect family home. Filled with warmth and flexibility this floorplan will make you feel right at home with multiple living areas, generous storage and a neat/ practical layout.

The Pisa 33 fits on a 16 meter width block. Please contact our team to learn more about the Pisa range.

TOTAL AREAS GROUND FLOOR 253.97m2 GARAGE 36.5m2 PORCH 4.04m2 ALFRESCO 12.07m2 MINIMUM LOT WIDTH 16m MINIMUM LOT DEPTH 32m EXTERIOR LENGTH 23.16m EXTERIOR WIDTH 14.65m TOTAL 306.58sqm | 33.00sq 56 4 2 2 2
1300 110 437 hello@purchasehomes.com.au www.purchasehomes.com.au 31-33 Gascoyne Circuit, Lara 3212 Victoria
PISA 33
1300 110 437 hello@purchasehomes.com.au www.purchasehomes.com.au 31-33 Gascoyne Circuit, Lara 3212 Victoria
58 OUR facades THE TRADITIONAL FACADE THE CONTEMPORARY FACADE 1300 110 437 hello@purchasehomes.com.au www.purchasehomes.com.au 31-33 Gascoyne Circuit, Lara 3212 Victoria
59 DISCLAIMER: All photos and images are for illustrative purposes. All designs are the property of New Build Co and must not be used, reproduced, copied or varied, wholly or in part without written permission from an authorised New Build Co representative. THE GRAND FACADE THE HAMPTON FACADE DOUBLE STOREY 10.5M|12.5M|14m|16m FRONTAGE 1300 110 437 hello@purchasehomes.com.au www.purchasehomes.com.au 31-33 Gascoyne Circuit, Lara 3212 Victoria

This stylish and clever design makes a double storey home affordable and practical for all, fitting perfectly on a narrow lot. It offers everything you need and more, including 4 bedrooms plus a study, 2 living areas and extra storage.

TOTAL AREAS GROUND FLOOR 158.52m2 GARAGE 36.5m2 PORCH 2.6m2 MINIMUM LOT WIDTH 10.5m MINIMUM LOT DEPTH 21m EXTERIOR LENGTH 14.00m EXTERIOR WIDTH 9.30m TOTAL 196.62sqm | 21.27sq 60 4 2.5 3 2 LONDON 21 GROUND FLOOR FIRST FLOOR RE-DESIGN OPTIONS BED 5 OPTION REFER TO PAGE 70 SMALL LOT ready plan 1300 110 437 hello@purchasehomes.com.au www.purchasehomes.com.au 31-33 Gascoyne Circuit, Lara 3212 Victoria

This double storey has so much to offer for a growing modern family fitting neatly on a narrow block.

Light filled open plan living will make winding down at the end of the day a dream, not to mention the spacious master ensuite upstairs.

TOTAL AREAS GROUND FLOOR 188.44m2 GARAGE 36.5m2 PORCH 3.56m2 ALFRESCO 8.4m2 MINIMUM LOT WIDTH 10.5m MINIMUM LOT DEPTH 25m EXTERIOR LENGTH 11.80m EXTERIOR WIDTH 13.80m TOTAL 236.9sqm | 25.50sq 61 4 2.5 3 2 BLACKBURN 26 10.5M DESIGNS GROUND FLOOR FIRST FLOOR SMALL LOT ready plan RE-DESIGN OPTIONS BED 4 OPTION REFER TO PAGE 70 1300 110 437 hello@purchasehomes.com.au www.purchasehomes.com.au 31-33 Gascoyne Circuit, Lara 3212 Victoria

This superb design has details needed to experience convenient and luxury living while also delivering a feeling of warmth and cosiness a home should have. The main living area of the home is pleasingly inviting, while the kitchen footprint is going to make cooking a dream.

The Manchester 26  fits on a 12.5 meter width block. Please contact our team to learn more about the Manchester range.

31-33 Gascoyne Circuit, Lara 3212 Victoria

62 4 2.5 3 2 MANCHESTER 26
TOTAL
GROUND FLOOR 201.48m2 GARAGE 36.5m2 PORCH 3.56m2 MINIMUM LOT WIDTH 12.5m MINIMUM LOT DEPTH 21m EXTERIOR LENGTH 13.80m EXTERIOR WIDTH 10.50m TOTAL 241.54sqm | 26.00sq GROUND FLOOR FIRST FLOOR SMALL LOT ready plan
AREAS
1300 110 437 hello@purchasehomes.com.au www.purchasehomes.com.au

This superb design has details needed to experience convenient and luxury living while also delivering a feeling of warmth and cosiness a home should have. The main living area of the home is pleasingly inviting, while the kitchen footprint is going to make cooking a dream.

The Manchester 31  fits on a 12.5 meter width block. Please contact our team to learn more about the Manchester range.

63 3 2.5 4 2 MANCHESTER 31
TOTAL AREAS GROUND FLOOR 231.59m2 GARAGE 36.5m2 PORCH 3.56m2 ALFRESCO 11.7m2 MINIMUM LOT WIDTH 12.5m MINIMUM LOT DEPTH 21m EXTERIOR LENGTH 17.66m EXTERIOR WIDTH 10.50m TOTAL 283.35sqm | 30.50sq 12.5M DESIGNS GROUND FLOOR FIRST FLOOR RE-DESIGN OPTIONS BED 5 OPTION REFER TO PAGE 70 1300 110 437 hello@purchasehomes.com.au www.purchasehomes.com.au 31-33 Gascoyne Circuit, Lara 3212 Victoria

This superb design has details needed to experience convenient and luxury living while also delivering a feeling of warmth and cosiness a home should have. The main living area of the home is pleasingly inviting, while the kitchen footprint is going to make cooking a dream.

The Manchester 35  fits on a 12.5 meter width block. Please contact our team to learn more about the Manchester range.

64 4 2.5 4 2 MANCHESTER 35
TOTAL AREAS GROUND FLOOR 269.04m2 GARAGE 36.5m2 PORCH 3.56m2 ALFRESCO 11.4m2 MINIMUM LOT WIDTH 12.5m MINIMUM LOT DEPTH 28m EXTERIOR LENGTH 19.85m EXTERIOR WIDTH 10.50m TOTAL 320.5sqm | 34.50sq GROUND FLOOR FIRST FLOOR RE-DESIGN OPTIONS BED 5 OPTION REFER TO PAGE 70 1300 110 437 hello@purchasehomes.com.au www.purchasehomes.com.au 31-33 Gascoyne Circuit, Lara 3212 Victoria

The Sheffield delivers a feeling of openness enhanced by the delightfully wide front entry and up stairs landing.

The multiple living areas and short footprint allowing for more backyard space, will be enticing for growing families.

65 4 2.5 3 2 SHEFFIELD 28
TOTAL AREAS GROUND FLOOR 206.57m2 GARAGE 36.5m2 PORCH 3.8m2 ALFRESCO 12.48m2 MINIMUM LOT WIDTH 14m MINIMUM LOT DEPTH 21m EXTERIOR LENGTH 13.80m EXTERIOR WIDTH 12.00m TOTAL 259.35sqm | 27.91sq 14M DESIGNS GROUND FLOOR FIRST FLOOR SMALL LOT ready plan RE-DESIGN OPTIONS BED 5 OPTION REFER TO PAGE 71 1300 110 437 hello@purchasehomes.com.au www.purchasehomes.com.au 31-33 Gascoyne Circuit, Lara 3212 Victoria

Innovative and functional this home was designed for the entertainer and will be sure to blow your guests away.

With multiple living areas to unite with loved ones and a large Walk in pantry, having large gatherings in your new home will be an enjoyable experience.

The Brighton 34  fits on a 14 meter width block. Please contact our team to learn more about the Brighton range.

TOTAL AREAS GROUND FLOOR 256.22m2 GARAGE 36.5m2 PORCH 5.20m2 ALFRESCO 14.7m2 MINIMUM LOT WIDTH 14m MINIMUM LOT DEPTH 25m EXTERIOR LENGTH 16.42m EXTERIOR WIDTH 12.00m TOTAL 311.22sqm | 33.50sq 66 4 2.5 4 2 BRIGHTON 34 GROUND FLOOR FIRST FLOOR RE-DESIGN OPTIONS BED 4 OPTION REFER TO PAGE 71 1300 110 437 hello@purchasehomes.com.au www.purchasehomes.com.au 31-33 Gascoyne Circuit, Lara 3212 Victoria

Innovative and functional this home was designed for the entertainer and will be sure to blow your guests away.

With multiple living areas to unite with loved ones and a large Walk in pantry, having large gatherings in your new home will be an enjoyable experience.

The Brighton 40 fits on a 14 meter width block. Please contact our team to learn more about the Brighton range.

TOTAL AREAS GROUND FLOOR 316.20m2 GARAGE 36.5m2 PORCH 3.8m2 ALFRESCO 16.45m2 MINIMUM LOT WIDTH 14m MINIMUM LOT DEPTH 28m EXTERIOR LENGTH 19.48m EXTERIOR WIDTH 12.00m TOTAL 372.95sqm | 40.14sq 67 4 2.5 5 2 BRIGHTON 40 14M DESIGNS GROUND FLOOR FIRST FLOOR RE-DESIGN OPTIONS BED 5 OPTION REFER TO PAGE 71 1300 110 437 hello@purchasehomes.com.au www.purchasehomes.com.au 31-33 Gascoyne Circuit, Lara 3212 Victoria

The Rocherster was thoughtfully designed and is an absolute dream come true. Every bedroom has its own ensuite and WIR, providing everyone in the family with their own space and privacy. Not to mention the 5 different living areas this home offers, which you can use how your family chooses.

TOTAL AREAS GROUND FLOOR 308.91m2 GARAGE 36.5m2 PORCH 3.8m2 ALFRESCO 20.7m2 MINIMUM LOT WIDTH 14m MINIMUM LOT DEPTH 32m EXTERIOR LENGTH 21.26m EXTERIOR WIDTH 12.00m TOTAL 369.91sqm | 39.81sq 68 4 4.5 5 2 ROCHESTER 40 GROUND FLOOR FIRST FLOOR RE-DESIGN OPTIONS BED 4 OPTION REFER TO PAGE 72 1300 110 437 hello@purchasehomes.com.au www.purchasehomes.com.au 31-33 Gascoyne Circuit, Lara 3212 Victoria

The ideal design for a tricky 16x16 block, making the best use of space, the Fulham offers features often seen in larger homes. With  a huge walk in pantry and multiple living areas this delightful family home will be sure to impress.

TOTAL AREAS GROUND FLOOR 169.51m2 GARAGE 36.5m2 PORCH 3.7m2 ALFRESCO 9.38m2 MINIMUM LOT WIDTH 16m MINIMUM LOT DEPTH 16m EXTERIOR LENGTH 9.70m EXTERIOR WIDTH 14.50m TOTAL 219.09sqm | 23.58sq 69 3 2.5 3 2 FULHAM 24 16M DESIGNS RE-DESIGN OPTIONS FIRST FLOOR BED 4 OPTION REFER TO PAGE 72 RE-DESIGN OPTIONS GROUND FLOOR BED 4 OPTION REFER TO PAGE 72 GROUND FLOOR FIRST FLOOR SMALL LOT ready plan 1300 110 437 hello@purchasehomes.com.au www.purchasehomes.com.au 31-33 Gascoyne Circuit, Lara 3212 Victoria

OUR RE-DESIGN OPTIONS

70
LONDON 21 - BED 5 OPTION MANCHESTER 31 - BED 5 OPTION MANCHESTER 35 - BED 5 OPTION STANDARD PLAN RE-DESIGN OPTION STANDARD PLAN RE-DESIGN OPTION STANDARD PLAN RE-DESIGN OPTION STANDARD PLAN RE-DESIGN OPTION
26 - BED 4 OPTION Bed 5 WIR Ens 2 BED 5 OPTION Linen will be relocated next to R/A & Pantry 3.1 x 3.9m Garage 17660 10500 Minimum Lot size: 12.5x25 Total Area: 283.35sqm Total square: 30.50sq MANCHESTER 31 Porch Pdr Bed WIR Bath WC Linen PS Lounge WIP Kitchen Entry Ref Lounge WIL R/A 3100 L'dry Broom PS PS PS Study Bed 5 WIR Ens 2 OPTION relocated next to R/A & Pantry Terms and conditions: Plans to scale of 1:100. All measurements shown are in millimeters. Floorplan dimensions We reguarly conduct site visits to all quoted Lots to ensure our product has not be reproduced by any unauthorised 5.5 x 6.0m Ground Floor: 231.59m2 Garage: 36.5m2 Alfresco: 11.7 Porch: 3.56m2 3.1 x 3.2m 4.4 x 3.2m 3.2 x 1.6m 3.1 x 3.2m Storeroom 4.4 Bed 4 3.1 x 3.3m BED 4 OPTION 1300 110 437 hello@purchasehomes.com.au www.purchasehomes.com.au 31-33 Gascoyne Circuit, Lara 3212 Victoria
BLACKBURN

SHEFFIELD 28 - BED 5 OPTION

BLACKBURN 26 - BED 4 OPTION

BRIGHTON 34 - BED 5 OPTION

BRIGHTON 40 - BED 5 OPTION

to scale of 1:100. All measurements We reguarly conduct site visits to all quoted Lots to

Terms and conditions: Plans to scale of 1:100. All measurements shown are in millimeters. Floorplan dimensions subject to façade We reguarly conduct site visits to all quoted Lots to ensure our product has not be reproduced by any unauthorised builder. ©New

Plans to scale of 1:100. All measurements shown are We reguarly conduct site visits to all quoted Lots to ensure our product has not

dimensions subject to façade selection. unauthorised builder. ©New Build Co 2020.

Terms and conditions: Plans to scale of 1:100. All measurements shown are in millimeters. Floorplan dimensions subject to façade We reguarly conduct site visits to all quoted Lots to ensure our product has not be reproduced by any unauthorised builder.

Garage 19857 10500 Porch Pdr Bed 1 Ens WIR 1 Bed Bath WC Bed R/A Bed Linen Robe PS PS Lounge WIP Kitchen Ref R/A L'dry Broom Meals Robe Robe PS PS PS PS Study
©New WIR 2 Storeroom 5.5 x 6.0m 4.3 x 5.3m 3.1 x 3.1m 3.1 x 3.1m 3.1 x 3.5m 4.3 x 3.8m 3.1 x 3.1m 4.4 x 3.6m Bed 1 Bed 3 Bed 2 R/A Robe PS
Sketch by: JT 3.1 x 3.2m 4.4 x 3.8m Garage Porch Bath WC R/A Linen PS Lounge WIP Kitchen Entry R/A L'dry Linen Robe Robe PS
Storage Landing 5.5 x 6.0m 3.8 x 4.9m 4.6 x 3.6m 2.8 x 3.8m 10500 17446 71
STANDARD PLAN RE-DESIGN OPTION STANDARD PLAN RE-DESIGN OPTION STANDARD PLAN RE-DESIGN OPTION STANDARD PLAN RE-DESIGN OPTION
Garage 5.5 x 6.0m Minimum Lot size: 14x21 Total Area: 259.35sqm Total square: 27.91sq SHEFFIELD 28 Porch Family Meals Kitchen Entry Terms and conditions:
Alfresco 6.1 x 3.7m 4.8 x 2.6m 5.0 x 3.0m 12000 Ensuite 2 L'dry Bed 5 3.6 x 3.3m BED 5 OPTION Ground Floor:206.57m2 Garage: 36.5m2 Alfresco: 12.48 Porch: 3.8m2 Garage 16424 12000 Minimum Lot size: 14x25 Total Area: 311.22sqm Total square: 33.50sq BRIGHTON 34 Porch Pdr WIP Kitchen Entry Ref Lounge R/A Family L'dry Broom Meals Terms and conditions:
Linen nook Bed 5 Ens 2 BED 5 OPTION Robe Linen 5.5 x 6.0m Ground Floor:256.22m2 Garage: 36.5m2 Alfresco: 14.7m2 Porch: 3.8m2 4.0 x 3.5m 4.0 x 3.2m 4.2 x 3.5m 5.4 x 3.7m 6.6 x 4.2m Minimum Lot size: 14x28 Total Area: 372.95sqm Total square: 40.14sq BRIGHTON 40 Bed 5 Ens 2 BED 5 OPTION Robe Ground Floor:316.20m2 Garage: 36.5m2 Alfresco: 16.45m2 Porch: 3.8m2 4.0 x 3.7m Bed 4 3.1 x 3.3m
4 OPTION
www.purchasehomes.com.au
Gascoyne
Lara 3212 Victoria
Plans
BED
1300 110 437 hello@purchasehomes.com.au
31-33
Circuit,

RE-DESIGN

ROCHESTER 40 - BED 4 OPTION

72
OUR
OPTIONS FULLHAM 24 - BED 4 OPTION
STANDARD PLAN RE-DESIGN OPTION STANDARD PLAN RE-DESIGN OPTION STANDARD PLAN RE-DESIGN OPTION GROUND FLOOR FIRST FLOOR FULLHAM
Minimum Lot size: 14x32 Total Area: 369.91sqm Total square: 39.81sq ROCHESTER 40SQ WIP Kitchen Study L'dry Meals Terms We Theatre Ground Floor: 308.91m2 Garage: 36.5m2 Alfresco: 20.7 Porch: 3.8m2 3.6 x 4.1m 3.4 x 3.2m 4.9 Study Bed 5 3.4 x 3.3m 3.6 x 1.8m Ens WIR BED 5 OPTION Garage 9700 Minimum Lot size: 16x16 Total Area: 219.09sqm Total square: 23.58sq FULHAM 24 Porch WIL Bed 3 Bath Lounge Linen WIP Kitchen Entry Ref Lounge R/A Family WIR PS Robe Robe Pdr PS PS R/A Study Pdr Bed 4 Entry R/A Lin WIR Ens WIP Ref L'dry Broom Linen Bed 4 R/A Robe BED 4 FIRST FLOOR OPTION BED 4 GROUND FLOOR OPTION 5.5 x 6.0m Ground Floor:169.51m2 Garage: 36.5m2 Alfresco: 9.38m2 Porch: 3.7m2 4.1 x 6.4m 4.3 x 3.5m 4.3 x 3.2m 3.1 x 3.2m 3.7 x 3.3m 3.2 x 3.3m Garage 9700 Minimum Lot size: 16x16 Total Area: 219.09sqm Total square: 23.58sq
24 Porch WIL Bed 3 Bath Lounge Linen WIP Entry Ref Lounge R/A Family PS Robe Pdr PS PS R/A PS Study Pdr Bed 4 Entry R/A Lin WIR Ens WIP L'dry Linen Bed 4 R/A Robe BED 4 FIRST FLOOR OPTION GROUND FLOOR OPTION 5.5 x 6.0m Ground Floor:169.51m2 Garage: 36.5m2 Alfresco: 9.38m2 Porch: 3.7m2 4.3 x 3.5m 4.3 x 3.2m 3.1 x 3.2m 3.7 x 3.3m 3.2 x 3.3m 1300 110 437 hello@purchasehomes.com.au www.purchasehomes.com.au 31-33 Gascoyne Circuit, Lara 3212 Victoria
24 - BED 4 OPTION
FULHAM

FLEXIBLE FLOORPLANS

All of our floorplans can be customised to suit your everyday needs. If it’s a small change or a complete custom plan. the team at NEW BUILD CO are here to help!

Please note that all plans shown in this publication are not to scale. All measurements shown are in meters. Floorplan dimensions subject to façade selection. ©New Build Co 2020.

Terms and conditions: Plans to scale of 1:100. All measurements shown are in millimeters. Floorplan dimensions subject to façade selection. We reguarly conduct site visits to all quoted Lots to ensure our product has not be reproduced by any unauthorised builder. ©New Build Co 2020.

1300 110 437 hello@purchasehomes.com.au www.purchasehomes.com.au

31-33 Gascoyne Circuit, Lara 3212 Victoria

Pdr Ref Study R/A
Meals
Linen Theatre 3.2m 4.9 x 4.6m 73
Sketch by: JT
1300 110 437 hello@purchasehomes.com.au www.purchasehomes.com.au 31-33
Gascoyne Circuit, Lara 3212 Victoria

Turn static files into dynamic content formats.

Create a flipbook
Issuu converts static files into: digital portfolios, online yearbooks, online catalogs, digital photo albums and more. Sign up and create your flipbook.