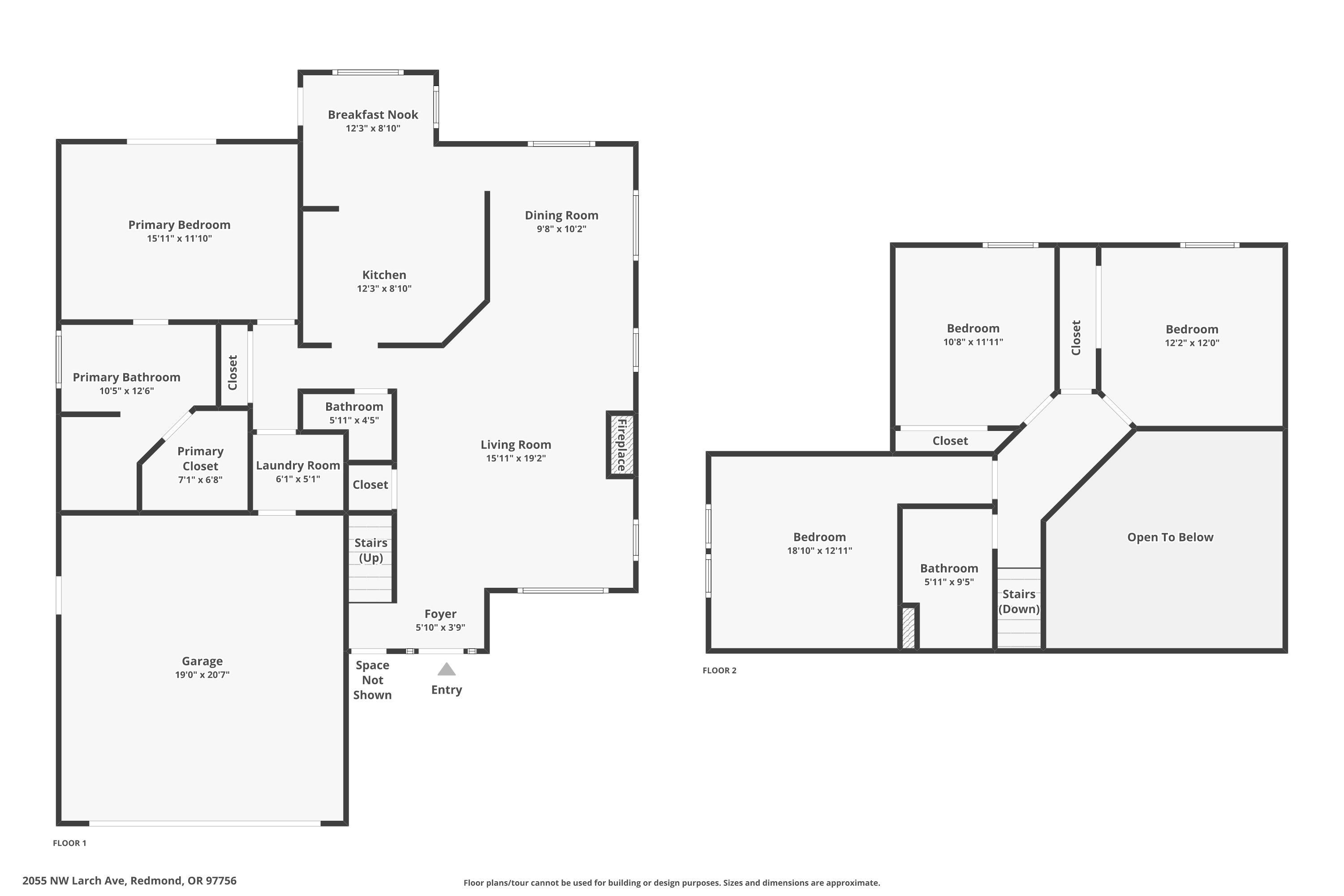
Located in NW Redmond, this 2,124 sq. ft. home rests on a beautiful corner lot and offers a welcoming great room with a gas fireplace and a kitchen that seamlessly connects to the dining area—perfect for gatherings and entertaining. The main-level primary suite features a walk-in closet and a private bath with a soaking tub. Upstairs, you’ll find two additional bedrooms, a full bath, and a spacious bonus room. Enjoy the fully fenced yard with mature landscaping, just minutes from the Dry Canyon Trail, schools, and parks!