




S I S T E M P E N G E L O L A A N S A M P A H T E R P A D U D E S A T A N J U N G



![]()





S I S T E M P E N G E L O L A A N S A M P A H T E R P A D U D E S A T A N J U N G





Puji syukur kami panjatkan ke hadirat Tuhan Yang Maha Esa atas rahmat dan karunia-Nya, sehingga Tim KKN-PPM Universitas Gadjah Mada dapat menyelesaikan dokumen rekomendasi pembuatan sistem pengelolaan sampah terpadu ini dengan baik dan tepat waktu. Dokumen ini disusun sebagai bagian dari upaya kami untuk memberikan kontribusi nyata bagi masyarakat, khususnya dalam meningkatkan kualitas pengelolaan sampah yang berkelanjutan di Desa Tanjung Agung, Kecamatan Tanjung Agung, Kabupaten Muara Enim.
Tujuan dari dokumen ini adalah untuk memberikan rekomendasi yang komprehensif mengenai sistem pengelolaan sampah terpadu yang melibatkan berbagai komponen, termasuk pemilahan sampah di sumber, pengumpulan dan pengangkutan, hingga pengolahan dan pembuangan akhir. Kami berharap bahwa sistem ini dapat diterapkan dengan baik, sehingga dapat mengurangi dampak negatif sampah terhadap lingkungan dan meningkatkan kesadaran masyarakat dalam menjaga kebersihan lingkungan.
Kami menyadari bahwa penyusunan dokumen ini tidak lepas dari bantuan dan dukungan berbagai pihak Oleh karena itu, kami mengucapkan terima kasih yang sebesar-besarnya kepada seluruh pihak di Kabupaten Muara Enim, instansi pemerintah, swasta, masyarakat, dan juga anggota TIM KKN Unit SS-001, serta seluruh pihak lain yang tidak dapat kami sebutkan satu per satu yang telah memberikan dukungan, masukan, dan partisipasi aktif dalam kegiatan ini.
Semoga dokumen ini dapat menjadi acuan yang bermanfaat dalam upaya mewujudkan pengelolaan sampah yang lebih baik di Desa Tanjung Agung, serta memberikan dampak positif bagi lingkungan dan kesejahteraan masyarakat setempat.
Kab. Muara Enim, 08 Agustus 2024
TIM KKN-PPM UGM Periode 2 Tahun 2024 Unit SS-001 Subunit Tanjung Agung



Dosen Pembimbing Lapangan (DPL)
Prof. Ir. Nanung Agus Fitriyanto, S.Pt., M.Sc., Ph.D., IPM
Anggota KKN-PPM UGM Periode 2 Tahun 2024 SS-001
Sub Unit Tanjung Agung
Ahmad Nurdianto
1. Denilna Alsah Waralita Mayudanti 2. Edina Tri Susilo
3. Fadila Rachma Susanti
4. Galang Putra Pratama
5. Regina Amanda Putri
6. Sumayya Nur Hanifah
9. Adetia Surya Maulana
10. Ahnan Yahya Fathussalam
11. Amalia Fauziah Zahra
12. Ghina Nabila Imtiyaz
13. Muhammad Rifqi Musyaffa
14. Rina Afifah
15. Wanindya Dian Utami
8
7. Taqiyyah Haidar Mutawally






Desa Tanjung Agung, yang terletak di Kecamatan Tanjung Agung, Kabupaten Muara Enim, merupakan desa dengan perkembangan penduduk dan aktivitas ekonomi yang cukup pesat. Perkembangan ini, selain membawa dampak positif terhadap peningkatan kesejahteraan masyarakat, juga menimbulkan tantangan baru, salah satunya adalah peningkatan volume sampah. Dengan bertambahnya jumlah penduduk dan intensitas kegiatan ekonomi, produksi sampah di desa ini terus meningkat dari tahun ke tahun.
Masalah pengelolaan sampah merupakan isu yang krusial bagi masyarakat di Desa Tanjung Agung. Saat ini, pengelolaan sampah di desa tersebut masih bersifat tradisional dan tidak terorganisir dengan baik. Sampah-sampah sering kali dibuang sembarangan di lahan terbuka, saluran air, atau bahkan dibakar, tanpa melalui proses pemilahan terlebih dahulu. Kondisi ini menimbulkan berbagai dampak negatif, baik terhadap lingkungan maupun kesehatan masyarakat. Pencemaran lingkungan akibat sampah yang tidak dikelola dengan baik bisa berdampak serius, termasuk pencemaran air tanah, penyumbatan saluran air, serta penyebaran penyakit. Sampah organik yang menumpuk tanpa pengolahan yang tepat akan membusuk dan menghasilkan gas metana yang berkontribusi terhadap pemanasan global. Selain itu, sampah anorganik seperti plastik yang sulit terurai dapat merusak kualitas tanah dan mengancam kehidupan satwa. Penumpukan sampah di sekitar pemukiman juga menciptakan lingkungan yang tidak sehat dan berpotensi menjadi sarang bagi berbagai vektor penyakit seperti lalat, tikus, dan nyamuk. Sementara itu, kesadaran masyarakat tentang pentingnya pengelolaan sampah yang baik masih rendah. Minimnya pengetahuan dan keterampilan masyarakat dalam mengelola sampah, serta kurangnya fasilitas yang memadai, membuat masalah ini semakin kompleks. Padahal, pengelolaan sampah yang baik dapat memberikan manfaat ekonomi bagi masyarakat, misalnya melalui pemanfaatan sampah organik untuk kompos dan daur ulang sampah anorganik.



Melihat kondisi ini, perencanaan sistem pengelolaan sampah di Desa Tanjung Agung menjadi suatu kebutuhan yang mendesak. Tujuan utama dari perencanaan ini adalah untuk menciptakan sistem pengelolaan sampah yang terpadu, efektif, dan efisien, yang tidak hanya mampu mengurangi dampak negatif sampah terhadap lingkungan dan kesehatan, tetapi juga dapat memberikan manfaat ekonomi dan sosial bagi masyarakat desa. Perencanaan sistem pengelolaan sampah ini akan mencakup berbagai aspek, mulai dari edukasi masyarakat, pengembangan infrastruktur pengelolaan sampah, hingga pengembangan kebijakan dan regulasi di tingkat desa. Partisipasi aktif dari seluruh elemen masyarakat, termasuk pemerintah desa, tokoh masyarakat, dan organisasi masyarakat, sangat diperlukan untuk memastikan keberhasilan implementasi sistem ini.
Selain itu, pendekatan yang terintegrasi dengan program-program lingkungan yang lebih luas, seperti pengelolaan sumber daya alam berkelanjutan dan peningkatan kualitas hidup masyarakat desa, juga akan dipertimbangkan dalam perencanaan ini. Dengan demikian, sistem pengelolaan sampah yang akan diterapkan di Desa Tanjung Agung diharapkan tidak hanya berfungsi sebagai solusi jangka pendek untuk masalah sampah, tetapi juga sebagai bagian dari strategi pembangunan berkelanjutan yang memperhatikan aspek sosial, ekonomi, dan lingkungan. Pada akhirnya, perencanaan sistem pengelolaan sampah ini diharapkan mampu menjadikan Desa Tanjung Agung sebagai desa yang bersih, sehat, dan ramah lingkungan, serta menjadi contoh bagi desa-desa lain di Kecamatan Tanjung Agung dan sekitarnya dalam upaya pengelolaan sampah yang berkelanjutan.



Tujuan oprasional dari program perencanaan sistem pengelolaan sampah terpadu Desa Tanjung ini adalah sebagai berikut: Mewujudkan pengelolaan sampah yang berkelanjutan melalui pengurangan, pemilahan, pengumpulan, pengangkutan, pengolahan, dan pembuangan sampah secara terintegrasi.
1. Meningkatkan partisipasi masyarakat dalam menjaga kebersihan desa. 2.
Sasaran dari program perencanaan sistem pengelolaan sampah terpadu Desa Tanjung Agung, antara lain: Perangkat Desa Tanjung Agung
2.
1. Masyarakat Desa Tanjung Agung




1. Pilah sampah rumah tangga
Proses ini melibatkan pemilahan sampah oleh rumah tangga menjadi tiga kategori utama: sampah organik (seperti sisa makanan dan bahan nabati), sampah anorganik (seperti plastik, kertas, dan logam), dan sampah residu (sampah yang tidak bisa diolah lebih lanjut seperti popok sekali pakai). Pemilahan di sumber ini penting untuk memastikan bahwa sampah dapat dikelola dengan lebih efisien pada tahap-tahap berikutnya.
2. Pengumpulan oleh petugas
Sampah yang telah dipilah di rumah tangga akan dikumpulkan oleh petugas atau kader lingkungan, yang diambil dari masyarakat setempat yang memerlukan pekerjaan. Pengumpulan dilakukan sesuai jadwal, misalnya setiap satu minggu sekali. Hanya sampah yang telah dipilah yang akan diangkut; ini mendorong partisipasi aktif dari masyarakat untuk memilah sampah mereka. Pengangkutan yang selektif ini juga membantu meningkatkan kualitas pengelolaan sampah pada tahap berikutnya
3. Pengangkutan ke TPS
Sampah yang sudah terkumpul dari rumah-rumah tangga diangkut ke TPS (Tempat Penampungan Sementara). TPS ini merupakan lokasi penyimpanan sementara di mana sampah ditampung sebelum diproses lebih lanjut. Pengangkutan dilakukan menggunakan kendaraan yang sesuai dengan jenis sampah untuk memastikan efisiensi dan kebersihan dalam proses pengelolaan.



4. Pemilahan di TPS
Di TPS, sampah kembali dipilah berdasarkan jenisnya untuk memastikan bahwa setiap jenis sampah ditangani dengan benar Sampah organik dipisahkan untuk diolah menjadi kompos, sementara sampah anorganik dipilah lebih lanjut untuk didaur ulang atau digunakan kembali. Sampah residu yang tidak dapat diolah lebih lanjut akan dikumpulkan dan diangkut ke TPA (Tempat Pembuangan Akhir).
5. Pengolahan sampah organik
Sampah organik yang telah dipisahkan di TPS akan diolah melalui proses komposting. Proses ini melibatkan penguraian bahan organik oleh mikroorganisme menjadi kompos, yang dapat digunakan sebagai pupuk alami untuk pertanian atau kebun. Pengolahan sampah organik ini membantu mengurangi volume sampah yang harus dibuang dan menghasilkan produk yang bermanfaat bagi lingkungan.
6. Bank sampah anorganik
Sampah anorganik yang dapat didaur ulang akan dikumpulkan dan disimpan di bank sampah. Di sini, sampah anorganik seperti plastik, kertas, logam, dan kaca dipilah, ditimbang, dan dicatat. Masyarakat yang menyetor sampah anorganik ke bank sampah dapat menerima imbalan berupa uang atau poin yang dapat ditukarkan dengan barang. Bank sampah ini juga berfungsi sebagai pusat pengolahan awal sebelum sampah dikirim ke pabrik daur ulang.
7. Pengangkutan sampah residual menuju TPA
Sampah residual yang tidak dapat diolah lebih lanjut akan diangkut dari TPS ke TPA (Tempat Pembuangan Akhir). Pengangkutan ini dilakukan secara berkala untuk memastikan bahwa sampah tidak menumpuk di TPS dan tidak menimbulkan masalah lingkungan. Di TPA, sampah ini akan dikelola sesuai dengan prosedur pembuangan yang aman, seperti penimbunan dengan tanah untuk mencegah pencemaran.


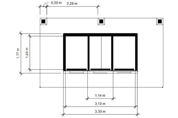
DESAIN 3 DIMENSI











Setiap rumah tangga diwajibkan untuk memilah sampah menjadi tiga kategori utama: sampah organik, sampah anorganik, dan sampah residu. Pemilahan dilakukan di sumber (rumah tangga) dengan menyediakan wadah terpisah untuk masing-masing jenis sampah.
• Sampah Organik: Meliputi sisa makanan, kulit buah, sayuran, daun, dan bahan organik lainnya yang mudah terurai secara alami. Sampah ini akan diolah menjadi kompos.
• Sampah Anorganik: Terdiri dari bahan-bahan yang dapat didaur ulang, seperti plastik, kertas, kaleng, botol, dan logam. Sampah ini akan disalurkan ke bank sampah atau pusat daur ulang.
• Sampah Residu: Jenis sampah yang tidak dapat diolah lebih lanjut atau didaur ulang, seperti popok sekali pakai, kemasan makanan berlapis, dan bahan sintetis lainnya. Sampah ini akan diangkut ke TPA.
Setiap rumah tangga diharapkan menyediakan setidaknya tiga wadah sampah yang terpisah dan diberi label sesuai dengan kategori sampah (Organik, Anorganik, Residu). Wadah ini harus ditempatkan di area yang mudah diakses oleh seluruh anggota keluarga, seperti dapur atau area belakang rumah. Wadah sampah disesuaikan dengan volume sampah yang dihasilkan oleh rumah tangga, dengan ukuran yang cukup untuk menampung sampah selama periode pengumpulan (misalnya seminggu untuk sampah anorganik, tiga hari untuk sampah organik).
a) Pelaksana Pengumpulan
Unit Pengelola Sampah Desa (UPSD) atau Kader lingkungan sebagai penanggungjawab yang bertugas untuk pengumpulan sampah dari setiap rumah tangga dengan jadwal yang telah ditetapkan. Petugas akan mendatangi rumahrumah warga dengan membawa gerobak sampah atau kendaraan kecil yang disediakan oleh desa. Warga diharuskan menempatkan sampah yang telah dipilah di depan rumah pada hari pengumpulan sesuai jadwal. Sampah harus ditempatkan dalam wadah yang mudah diangkut, misalnya kantong plastik atau karung yang tidak terlalu besar.



Sebelum sampah diambil, petugas akan memeriksa apakah sampah telah dipilah sesuai kategori (organik, anorganik, residu). Jika ditemukan sampah yang tidak dipilah dengan benar, petugas akan memberikan peringatan kepada warga dan mencatatnya sebagai pelanggaran. Setelah sampah diverifikasi, petugas akan mengangkut sampah tersebut ke Tempat Penampungan Sementara (TPS) dengan armada yang telah disediakan
b) Jadwal Pengumpulan
Jam Pengumpulan: Pengumpulan sampah dimulai pukul 07.00 pagi hingga pukul 11.00 siang untuk memastikan bahwa sampah tidak dibiarkan terlalu lama di depan rumah warga, yang bisa menimbulkan bau atau mengundang binatang. Warga diharapkan menempatkan sampah di luar rumah sebelum pukul 07.00 pagi pada hari pengumpulan.
Hari Pengumpulan:
Sampah organik: Diambil setiap 3 hari sekali.
1. Sampah anorganik: Diambil setiap minggu sekali.
3.
2. Sampah residu: Diambil setiap dua minggu sekali.
1. Pengangkutan Sampah Organik
Kumpulkan di Wadah Terpisah: Sampah organik ditempatkan dalam wadah terpisah berwarna hijau (atau sesuai kode warna yang ditetapkan) untuk membedakannya dari kategori lainnya.
Pengangkutan ke Fasilitas Pengomposan: Sampah organik diangkut menggunakan truk kecil yang dilengkapi dengan penutup untuk mencegah bau dan kontaminasi. Sampah organik langsung diantar ke fasilitas pengomposan yang berada di lokasi TPS atau ke lokasi pengomposan yang telah ditetapkan.
Proses Pengomposan: Di fasilitas pengomposan, sampah organik dikumpulkan dalam tumpukan atau komposter, kemudian diolah dengan metode aerasi dan pengadukan berkala untuk mempercepat proses pengomposan hingga menjadi kompos yang siap digunakan.


2. Pengangkutan Sampah Anorganik

Kumpulkan di Wadah Terpisah: Sampah anorganik ditempatkan dalam wadah berwarna biru (atau sesuai kode warna yang ditetapkan) dan dipisahkan berdasarkan jenis material seperti plastik, kertas, logam, dan kaca.
Pengangkutan ke Bank Sampah: Sampah anorganik diangkut menggunakan truk kecil dengan kompartemen khusus atau gerobak sampah besar ke bank sampah atau pusat daur ulang.
Proses Daur Ulang: Di bank sampah, sampah anorganik dipilah lebih lanjut jika diperlukan, kemudian dikirim ke pabrik daur ulang atau fasilitas pemrosesan untuk diproses menjadi bahan baku baru.
3. Pengangkutan Sampah Residu
Kumpulkan di Wadah Terpisah: Sampah residu ditempatkan dalam wadah berwarna merah (atau sesuai kode warna yang ditetapkan) untuk memudahkan identifikasi.
Pengangkutan ke TPA: Sampah residu diangkut menggunakan truk besar ke Tempat Pembuangan Akhir (TPA). Truk ini biasanya dilengkapi dengan sistem penguncian untuk menghindari kebocoran atau pencemaran.
Penanganan di TPA: Di TPA, sampah residu ditumpuk dalam area khusus yang dirancang untuk meminimalkan dampak lingkungan. TPA akan dilengkapi dengan sistem pengelolaan limbah, seperti lapisan tanah penutup dan pemantauan kualitas udara dan air untuk mengurangi dampak negatif.
Setiap rumah tangga diwajibkan membayar iuran bulanan yang digunakan untuk mendukung operasional sistem pengelolaan sampah, termasuk biaya pengumpulan, pengangkutan, dan pengolahan sampah.
Besaran Iuran: Iuran ditetapkan sebesar Rp15.000,- hingga Rp25.000,- per bulan, tergantung pada jumlah sampah yang dihasilkan oleh rumah tangga.



Keterlambatan pembayaran iuran lebih dari satu bulan akan dikenakan denda sebesar Rp5.000,- per bulan keterlambatan
Jika keterlambatan pembayaran berlangsung lebih dari tiga bulan, layanan pengumpulan sampah dapat dihentikan sementara hingga iuran dilunasi.
a. Pelaporan Rutin:
UPSD diwajibkan menyusun laporan bulanan mengenai jumlah sampah yang dikumpulkan, diolah, dan dikirim ke TPA, serta evaluasi kinerja sistem pengelolaan sampah.
Laporan disampaikan kepada Pemerintah Desa dan dibahas dalam rapat evaluasi yang melibatkan seluruh pihak terkait.
b) Evaluasi Sistem
Evaluasi dilakukan setiap enam bulan untuk menilai efektivitas sistem dan mengidentifikasi area yang memerlukan perbaikan. Hasil evaluasi digunakan untuk menyempurnakan kebijakan dan operasional sistem pengelolaan sampah.



Kelembagaan dalam sistem pengelolaan sampah berfungsi sebagai kerangka organisasi yang terstruktur untuk memastikan koordinasi, pengawasan, dan pelaksanaan setiap tahapan pengelolaan sampah secara efektif. Dengan adanya kelembagaan, peran dan tanggung jawab setiap pihak mulai dari pemerintah desa, unit pengelola sampah, hingga masyarakat dapat diatur dengan jelas, sehingga menciptakan sinergi dalam upaya menjaga kebersihan dan kesehatan lingkungan. Kelembagaan juga berfungsi sebagai wadah untuk menyusun kebijakan, mengalokasikan sumber daya, dan melakukan evaluasi terhadap program pengelolaan sampah, memastikan keberlanjutan dan keberhasilan program secara menyeluruh. Adapun susunan dari kelembagaan tersebut seperti pada diagram dibawah ini




Masing-masing pihak memiliki peran dan tanggungjawab, antara lain:
1.Kepala Desa Tanjung Agung
Peran:
-Memimpin dan mengawasi pelaksanaan sistem pengelolaan sampah.
-Mengeluarkan kebijakan dan peraturan desa terkait pengelolaan sampah.
-Menyediakan dukungan anggaran dan sumber daya untuk pelaksanaan program.
2.Badan Permusyawaratan Desa Tanjung Agung
Peran:
-Memberikan persetujuan dan dukungan kebijakan terkait pengelolaan sampah.
-Menyampaikan aspirasi masyarakat terkait pengelolaan sampah.
3.Unit Pengelola Sampah Desa (UPSD)
Peran:
-Merencanakan dan melaksanakan sistem pengelolaan sampah desa.
-Mengorganisir pemilahan, pengumpulan, dan pengangkutan sampah.
-Melakukan monitoring dan evaluasi pengelolaan sampah.
-Mengelola keuangan dan administrasi terkait pengelolaan sampah.
4.Kader Lingkungan
Peran:
-Melakukan sosialisasi dan edukasi kepada masyarakat tentang pentingnya pengelolaan sampah.
-Membantu dalam pemilahan sampah di tingkat rumah tangga.
-Mengawasi pelaksanaan pemilahan dan pengumpulan sampah di lingkungan masing-masing.
5.Masyarakat Desa Tanjung Agung
Peran:
-Melaksanakan pemilahan sampah di tingkat rumah tangga.
-Mengikuti sosialisasi dan pelatihan terkait pengelolaan sampah.
-Berpartisipasi aktif dalam program-program pengelolaan sampah desa.



Sistem pengelolaan sampah terpadu di Desa Tanjung Agung, Kecamatan Tanjung Agung, Kabupaten Muara Enim, disusun berdasarkan berbagai peraturan perundang-undangan yang berlaku di Indonesia. Beberapa dasar hukum yang relevan dalam penyusunan dan pelaksanaan sistem ini, antara lain:
Undang-Undang Nomor 18 Tahun 2008 tentang Pengelolaan Sampah Mengatur prinsip-prinsip dasar dalam pengelolaan sampah, termasuk pemilahan, pengurangan, dan pengolahan sampah yang bertujuan untuk mengurangi dampak negatif terhadap kesehatan masyarakat dan lingkungan.
Peraturan Pemerintah Nomor 81 Tahun 2012 tentang Pengelolaan Sampah
Rumah Tangga dan Sampah Sejenis Sampah Rumah Tangga Menguraikan pedoman teknis untuk pengelolaan sampah rumah tangga, termasuk peran pemerintah daerah, pengelola sampah, dan masyarakat dalam pengelolaan sampah.
Peraturan Menteri Lingkungan Hidup dan Kehutanan Nomor P.10/MENLHK/SETJEN/PLB.0/4/2018 tentang Pedoman Pengelolaan Sampah
Rumah Tangga dan Sampah Sejenis Sampah Rumah Tangga Memberikan panduan teknis yang lebih rinci mengenai pengelolaan sampah di tingkat rumah tangga, termasuk strategi untuk mengurangi dan mendaur ulang sampah.



Rencana anggaran biaya yang tertera pada tabel diatas merupakan perkiraan untuk pembuatan TPS dan keperluan oprasional. Harga masih dapat disesuaikan kembali tergantung dengan kebutuhan desa Tanjung Agung.



Operasional pengelolaan sampah terpadu tidak akan berjalan dengan baik tanpa adanya partisipasi masyarakat di dalamnya. Berikut adalah bentuk partisipasi masyarakat yang diperlukan dalam operasional pengelolaan sampah terpadu: Masyarakat memiliki kemauan untuk mengikuti aturan sistem pengelolaan sampah terpadu serta bersemangat dalam menjaga kebersihan lingkungan desa
Masyarakat diharapkan mematuhi aturan pemilahan sampah organik dan anorganik pada tahap pewadahan individual sehingga sampah yang dikumpulkan dapat langsung diproses tanpa perlu adanya pemilahan lebih lanjut.
Keaktifan masyarakat dalam memberi bantuan maupun masukan berupa kritik dan saran yang akan digunakan untuk meningkatkan kualitas sarana dan prasarana pengelolaan sampah.
Kesadaran masyarakat terhadap kebersihan lingkungan desa dan pendidikan non formal untuk anak di rumah terkait kebersihan lingkungan guna mencegah adanya sampah yang berserakan dan pembuangan sampah di sembarang tempat.
Kesediaan masyarakat untuk selalu belajar mengenai cara dan manfaat pemilahan serta pengolahan sampah untuk dapat mencapai operasional Bank Sampah dan Rumah 3R yang optimal.



Dokumen rekomendasi sistem pengelolaan sampah terpadu ini merupakan hasil kajian dan perencanaan yang komprehensif, yang disusun dengan tujuan untuk memberikan solusi yang berkelanjutan dan efektif dalam menangani masalah sampah di Desa Tanjung Agung. Melalui penerapan sistem ini, diharapkan Desa Tanjung Agung dapat menciptakan lingkungan yang lebih bersih, sehat, dan nyaman bagi seluruh warganya. Kesuksesan sistem pengelolaan sampah terpadu ini sangat bergantung pada komitmen dan partisipasi aktif dari semua pihak, termasuk pemerintah desa, masyarakat, serta pihak-pihak terkait lainnya. Dengan kerjasama yang baik, sistem ini tidak hanya akan mengurangi dampak negatif sampah terhadap lingkungan, tetapi juga dapat meningkatkan kualitas hidup masyarakat dan memperkuat kesadaran lingkungan secara berkelanjutan.
Kami berharap dokumen ini dapat menjadi panduan yang berguna bagi semua pihak yang terlibat dalam implementasi sistem pengelolaan sampah di Desa Tanjung Agung. Semoga rekomendasi ini dapat diimplementasikan dengan baik dan memberikan manfaat yang nyata bagi masyarakat dan lingkungan.
Akhir kata, kami mengucapkan terima kasih atas perhatian dan dukungan semua pihak yang telah berkontribusi dalam penyusunan dokumen ini. Semoga usaha kita bersama dapat membawa perubahan positif dan keberlanjutan bagi Desa Tanjung Agung
Kab. Muara Enim, 08 Agustus 2024
TIM KKN-PPM UGM Periode 2 Tahun 2024 Unit SS-001 Subunit Tanjung Agung