2016-2024 Sample Portfolio

Page 1


THE FOOD INNO HUB SELLY OAK, BIRMINGHAM 2024 3420m2

SITUATED TO THE NORTH OF THE SELLY OAK SHOPPING PARK, THE FOOD INNO HUB SERVES THE PUBLIC, THE INDUSTRY AND THE ACADEMIC BODIES BY ACCOMMODATING DIFFERENT SPATIAL NEEDS ACROSS ITS THREE LEVELS. IT IS PURPOSEDLY DESIGNED TO ENGAGE COMMUNITY AT LARGE BY CREATING AN OPEN DESIGN BOTH INDOOR AND OUTDOOR. THE INTRODUCTION OF SUDS WITH ITS RETENTION PODS HELPS TO EFFECTIVELY MANAGE THE ZONE 2 & 3 FLOOD RISKS. THE INTEGRATED LANDSCAPE BRINGS NOT ONLY ENJOYMENT, BUT ALSO FORTIFIES CONNECTION BETWEEN FOOD AND OUR NATURE ENVIRONMENT.

DESIGN DIARY

THE OBROUND

BIRMINGHAM 2024 310m2

PASSIVHAUS STRESSES ON THE IMPORTANCE OF BUILDING ENVELOPE DESIGN. BY LOOKING AT THE HEAT LOSS FORM FACTOR (HLFF), A PROTOTYPE OF A SEMI-DETACHED HOUSE IS DEVELOPED TO IMPROVE THE MOST ENERGY EFFICIENT CUBIC FORM THAT REGRETABALLY LACKS THE VISUAL APPEAL AS POINTED OUT BY A NHBC REPORT IN 2016. THE OBROUND IS ABLE TO ORIENTATE WITHIN A TYPICAL ELONGATED PLOT IN UK TO BENEFIT FROM SOLAR ENERGY AS A RESULT OF MAXIMIZED SOUTH-FACING FACADE AND THE INTRODUCTION OF SUNSPACE.

DESIGN DIARY POSTER

NEXT GENERATION HOMES - PASSIVHAUS PORTLOOP, BIRMINGHAM 2023 m2

NEXT GENERATION HOUSE DESIGN MAKES USE OF MODERN METHODS OF CONSTRUCTION (MMC) TO IMPROVE BUILDABILITY THAT SPEEDS UP THE CONSTRUCTION TIME AND BETTER CONTROLLED QUALITY AS A RESULT OF OFFSITE PREFABRICATIONS AND ASSEMBLIES.

THE INDIVIDUALITY OF A HOME COMES FROM THE SENSE OF UNIQUENESS DERIVES FROM THE ABILITY TO SHAPE OUR IMMEDIATE ENVIRONMENT. THE AUTONOMY EMPOWERS INDIVIDUALS. IT IS THE SAME ENERGY THAT EXPANDS TO CREATE A HEALTHY AND BALANCED COMMUNITY. THE CHALLENGE IS TO ACHIEVE INDIVIDUALITY IN STANDARDIZATION, WHICH IN CONTRAST, REQUIRES HIGH DEGREE OF CONFORMITY IN BOTH DESIGN AND CONSTRUCTION PROCESS.

ADAPTING TO THE CHANGING NEEDS OF A HOME BY DEFINING MODULES THAT CAN BE INTERCONNECTED IN VARIOUS COMBINATIONS TO CREATE A SUITABLE SPATIAL LAYOUT. THE VOLUMETRIC CONSTRUCTION OF 3 SIZES OF MODULES PROVIDES DIFFERENT SPATIAL LAYOUTS WITHIN THE SAME-SIZED STRUCTURE, BUT OF VARYING SETS OF WINDOW/DOOR OPENINGS TO SUIT. SERVED AND SERVANT ZONES ARE CLEARLY DIVIDED AND FIT INTO THE MODULE. ADAPTABILITY TO USER’S NEEDS ALSO LENGTHEN THE OWNERSHIP OF THE PROPERTY MAKES MULTI-GENERATION LIVING TOGETHER POSSIBLE.

DESIGN DIARY POSTER

BIM

PROJECT DRAWINGS IN REVIT

BCU BIM Champion Award 2024

A SET OF TECHNICAL DRAWINGS AND SCHEDULES COMPLETED USING REVIT MODELLING DEMONSTRATES THE ACQUIRED SKILLS AND UNDERSTANDING OF BIM APPLICATION.

FULL SET DRAWINGS

THE UNIVERSITY OF HONG KONG 2021 £5.5 MILLION RIBA STAGE 1 TO 4 STRUCTURAL ENGINEER - ARCADIS E&M CONSULTANT - ARUP THE EAST GATE

THE EAST GATE REQUIRES A NEW LOOK AND ADDITION OF ESCALATORS THAT FACILITAE THE PEDESTRIAN’S ACCESS TO THE UNIVERSITY CAMPUS. THE SITE IMPOSES DIFFICULTIES IN ESTABLISHING REUSABLE STRUCTURAL SUPPORTS WHILE SITTING ABOVE THE EXISTING DRAINAGE RESERVE AND UNDERGROUND UTILITIES, AS WELL AS ITS ADJACENCY TO A DECLARED MONUMENT. THE NEW ENTRANCE DESIGN INTRODUCES A FACETED GLASS ROOF THAT ORGANICALLY TAKES FORM IN RESPONSE TO THE SURROUNDING ELEMENTS, AND NATURALLY LEADS THE WAY UP TO THE EXISTING LIFT TOWER. WORKED ALONGSIDE WITH THE PROJECT ARCHITECT, I WAS RESPONSIBLE FROM DESIGN INCEPTION, TECHNICAL DESIGN, STATUTORY APPROVAL TO COMPLETION OF TENDER PACAKGES.

TAM WING FAN INNOVATION WING ONE

FACULTY OF ENGINEERING, THE UNIVERSITY OF HONG KONG

RIBA STAGE 1 TO 6

STRUCTURAL ENGINEER - WSP

E&M CONSULTANT - WONG & OUYANG (BUILDING SERVICES) LTD

LOCATED AT THE HEART OF THE CAMPUS, THIS ICONIC FACILITY OFFERS A NEW SPACE WITH COMPREHENSIVE PROTOTYPING FACILITIES AND EQUIPMENT SUCH AS 3D PRINTERS, LASER CUTTING AND A RANGE OF THEMATIC WORKSHOPS ON ADVANCED TECHNOLOGIES LIKE AI AND ROBOTICS. THE ADDITON AND ALTERATION WORKS INCLUDED RENOVATING THE G/F AND LG/F OF A 1980s SCIENCE BUILDING ON THE MAIN CAMPUS OF HKU, TOGETHER WITH A CANOPY INTEGRATED FACADE DESIGN THAT PROVIDES COVERED WALKWAY TO THE UNIVERSITY STREET.

THE LAYOUT OPENS UP ENTRANCES THAT WELCOMES STUDENTS AND VISITORS FROM CROSS-DISCIPLINARY BACKGROUND FOR INNOVATIVE COLLABORATION. A FEATURE STAIRCASE IS STRATEGICALLY LOCATED TO CONNECT THE TWO LEVELS SERVINGTHE EVENTFUL CENTRE FOR ITS PERIODIC FESTIVALS AND DEMONSTRATIONS. THE DESIGN ALSO CELEBRATES THE INHERENT BEAUTY OF THE EXISTING STRUCTURE TO CREATE THE ONE OF A KIND SPATIAL QUALITY. THE CANOPY DESIGN FEATURES TWO WINGS - AN UPLIFTING FACADE TREATMENT THAT ADD TO THE LIVELINESS OF THE MAIN CAMPUS. THE COLLABORATION WITH WSP AND THE CONTRACTOR HAS MADE POSSIBLE FOR THE WELL-ORGANIZED DETAILING THAT RESULTS IN A RHYTHMIC AND SLEEK OUTCOME. WHILE WORKED ALONGSIDE WITH THE PROJECT ARCHITECT, I WAS RESPONSIBLE FROM DESIGN INCEPTION, TECHNICAL DESIGN, STATUTORY APPROVAL, TENDER PACAKAGES, CONTRACT ADMINSTRATION, PROJECT COORDINATION TO HANDOVER.

RENDERING

CONFERENCE ROOM AT UNIT 104 BLOCK B CYBERPORT 4

THE FACULTY OF BUSINESS AND ECONOMICS, THE UNIVERSITY OF HONG KONG 2018 RIBA STAGE 1 TO 6

THE RENOVATION WORKS OF THE CONFERENCE ROOM AT BLOCK B CYBERPORT 4 WAS COMPLETED IN SEPTEMBER 2018. THE EXISTING OFFICE HAS BEEN RE-ORGANIZED INTO ONE LARGE CONFERENCE ROOM WITH 143 SEATING CAPACITY, SIX INDIVIDUAL MEETING ROOMS, COMMON AREA AND PANTRY AREA. INSTEAD OF HAVING GRID-CONFORMING ROOM LAYOUT, THE DESIGN FOCUSES ON INTRODUCING FLOW OF MOVEMENT USING ELLIPTICAL ELEMENTS AND FINS WALL ARRANGEMENT. THE CURVILINEAR CONFERENCE ROOM DESIGN NATURALLY DIRECTS SPECTATOR’S ATTENTION TOWARDS THE RAISED PLATFORM THAT IS ACCCESSIBLE BY RAMP DESIGNED. BREAK OUT AREA AND SMALL MEETING ROOMS BENEFIT FROM VIEWING THE PROMENADE BY STRATEGIC POSITIONING. MIRROR-CLADDED COLUMNS, TIMBER-TEXTURED WALLS AND METALLIC FINISHES ARE USED TO CREATE HARMONIOUS AND RELAXING ATMOSPHERE FOR BOTH BUSINESS MEETINGS AND NETWORKING. I WAS RESPONSIBLE FROM CONCEPT AND 2D SPATIAL DESIGN, 3D MODELLING, TENDERING, CONTRACT ADMINISRATION TO HANDOVER.

RENDERING

IDENDRON INNOVATION & ENTREPRENEURSHIP HUB

KNOWLES BUILDING, HKU 2017 RIBA STAGE 1-6

THE PROJECT INVOLVES A COMPREHENSIVE RE-PLANNING OF AN EXISTING STUDY AREA INTO A BRAND NEW COLLABORATIVE WORKSPACE, WHICH IS EQUIPPED WITH EVENT SPACE, HOTDESKS AND OPEN PANTRY. BOTH THE SELECTION OF MATERIAL AND THE DESIGN CONTRIBUTE TO FORM PART OF THE CORPORATE BRANDING THAT FOSTERS A SENSE OF VIBRANT INTELLECTUAL COMMUNITY AMONG THE TARGETED GROUP OF YOUNG ENTREPRENEURS.

THE POLYTECHNIC UNIVERSITY OF HONG KONG 2016 RIBA STAGE 1-6
U3DP - 3D PRINTING LAB
VR TOUR

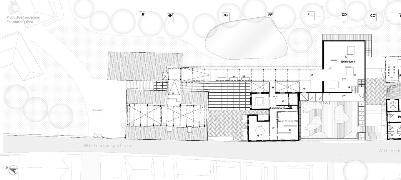
PRODUCTIVE LANDSCAPE LEARNING CENTRE

MANORIAL ESTATE IN ZEVENAAR, THE NETHERLANDS

MSC THESIS RMIT STUDIO TU DELFT 2010-11

https://www.linkedin.com/in/kikiskcheung

https://shuikei.wixsite.com/shuikei

Turn static files into dynamic content formats.

Create a flipbook
Issuu converts static files into: digital portfolios, online yearbooks, online catalogs, digital photo albums and more. Sign up and create your flipbook.
2016-2024 Sample Portfolio by kikiskicheung - Issuu