


![]()



Architekt


PROFIL
Architekt (M.A.) mit starker gestalterischer Ausrichtung und vertieftem Interesse an ganzheitlichen Bauprozessen. Neben meiner Erfahrung in den HOAI-Leistungsphasen 1–5 erweitere ich kontinuierlich mein Verständnis in den Bereichen Projektabläufe, Vertragswesen und interdisziplinäre Koordination, um die Qualität und Umsetzbarkeit von Architektur von der Idee bis zur Realisierung stärker zu durchdringen. In meiner Arbeit setze ich auf BIM (Revit), parametrisches Design (Rhino + Grasshopper) sowie AI-unterstützte Visualisierung, um innovative und nachhaltige Lösungen zu entwickeln. Besonders reizt mich die enge Verzahnung von Entwurf, Planung und Ausführung in dynamischen, interdisziplinären Teams.


KONTAKE




Khalidalabdulh@gmail.com
004915906170381
www.linkedin.com/in/khalid-alabdula
issuu.com/khalidalabdulh/docs/portfolio_and_ cv_khalid










• Konzeptentwurf, Schematischer Entwurf und Detailentwurf (LP 1-5)
• Standortanalyse, Inspektionen und Messungen
• Technische Zeichnungen und Konstruktionszeichnungen (1:25 - 1:50)
• BIM-Koordination und parametrischer Entwurf
• Kostenvoranschlag und Mengenermittlung (AVA)











Fließend
Fließend
Anfänger

AUSBILDUNG
M.Sc. Politecnico di Milano Architektur im Bauwesen
M.A. Hochschule Anhalt Dessau Architektonisches und kulturelles Erbe
B.Sc. Hochschule für angewandte Wissenschaften Bauingenieurwesen Mailand, Italien FEB,2021 - JUL, 2021
Dessau Bauhaus, Deutschland APR, 2020 - OKT, 2022
Amman, Jordanien 2011 - 2017
• Zertifizierte Weiterbildung im Bauprojektmanagement, Bau- und Bauvertragsrecht, Kosten-Risk -und Qualitätsmanagement, Arbeitsschutz. 19.05.2025 - 29.07.2025
• Online Workshop / Rhino, Grasshopper, Rhino Inside Revit Design Workflow, Von Dusan Cvetkovic. 04-14.05.2025
• Kostenermittlung, AVA, und HOAI im Bauwesen. 17.07.2023 - 11.08.2023
• Deutsch für Fach- und Führungskräfte. 22.05.2023 - 14.07.2023
• Gerrit Rietveld Tisch, Bauhaus-Holzmöbel-Workshop. 01.10.2021 - 30.11.2021
• Sommerlager des Deutschen Fachwerkzentrums Quedlinburg zur Restaurierung barocken Baudenkmals. 27.09.2021 - 03.10.2021
• PRINT in PRINT: Nesting robotischer 3D-Druck. 26-27.06.2021
Alfatraining Bildungszuentrum
How to Rhnio
Alfatraining Bildungszuentrum
Alfatraining Bildungszuentrum
Anhalt HS Bauhaus
Sommercamp - Exkursion
Digitalfutures
ZUSÄTZLICHE INFO
• Revit - Experte durch mehrjährige Erfahrung bei der Modellierung und detaillierte Dokumentation für Industrie- und Bürogebäude
• Rhino + Grasshopper - Für die frühe Entwicklung von Designkonzepten
• Vertraut mit den Planungsphasen (LP 1-5), der Baugenehmigung und den Kostenermittlungsgrundlagen (HOAI, AVA).
BERUFSERFAHRUNG
JUNIOR PROJEKTARCHITEKT - ARCHITEKT (LP 1-5)
PLANUNGSBÜRO BAUMERT & PESCHOS GMBH
• Leitung der architektonischen Planung und technischen Koordination für mittelgroße Industrie-, Geschäfts- und Bürogebäude, einschließlich Lager- und Archiveinrichtungen mit integrierten Parkplätzen und Fahrradabstellplätzen.
• Erstellung detaillierter technischer Zeichnungen für die Ausschreibungs- und Bauphase, einschließlich Dachplänen mit Entwässerungslösungen, Fundamentschnitten (1:25), Fassadendetails und strukturellen Querschnitten (1:50).
• Leitung von Baustellenbesichtigungen, Besprechungen mit Kunden und Auftragnehmern sowie Projektkoordination.
• Bearbeitung von Baugenehmigungsanträgen und Sicherstellung der Einhaltung nationaler Bauvorschriften, Zugänglichkeitsvorschriften, Brandschutz- und Nachhaltigkeitsstandards.
• Erarbeitung von Entwurfsvarianten, Kostenschätzungen und Vertragsänderungen.
• Qualitäts-, Kosten- und Terminkontrolle.
• Integrierte BIM-Methodik unter Verwendung von Revit für die Projektkoordination und 3D-Visualisierung.
ARCHITEKT (6 MONATE PROBEZEIT) (LP 1-5)
PLANUNGSBÜRO BAUMERT & PESCHOS GMBH
• Mitarbeit an der detaillierten Planung und Dokumentation eines Mehrzweckprojekts in Österreich (Regierungsgebäude, Wohngebäude, Geschäftsgebäude).
• Unterstützung der leitenden Architekten bei Entwurfsänderungen, technischen Details und der Koordinierung mit Beratern.
PRAKTIKUM IM BEREICH ARCHITEKTUR UND INNOVATIVE TECHNOLOGIEN
INDEXLAB - CREATIVITY AND TECHNOLOGY
• Entwicklung robotergestützter Fertigungstechniken für architektonische Anwendungen.
• Entwurf komplexer parametrischer Strukturen unter Einbeziehung von Computergestaltung und fortschrittlicher Materialforschung.
• Erforschung nachhaltiger digitaler Fertigungsstrategien zur Optimierung der Materialeffizienz und zur Verringerung der Umweltauswirkungen.
• Herstellung physischer und digitaler 3D-Modelle unter Verwendung innovativer Fertigungstechnologien.
• Verwendete Software: Rhino 3D, Grasshopper, Revit, C#, 3D-Drucker, ABB-Roboter.
STUDENTISCHE FACHKRÄFTE IM BEREICH DOKUMENTATION
ANHALT HOCHSCHULE BAUHAUS
• Fotodokumentation und Bildbearbeitung.
PRAKTIKUM IM BEREICH ARCHITEKTUR
WAEL AL-MASRI PLANNERS AND ARCHITECTS (LP 2-5)
• Unterstützung der Designentwicklung und -dokumentation für verschiedene Architekturprojekte.
• Assistierte bei der 3D-Modellierung und Konzeptvisualisierung mit BIM-Tools.
PRAKTIKUM IM BEREICH BAUZEICHNUNG NAZEEH AL-QARIM OFFICE (LP 2-5)
• Entwicklung von Architekturzeichnungen und technischen Unterlagen für verschiedene Projekttypen.
März,2024 - März, 2025 Magdeburg, Deutschland
Sep,2023 - März,2024 Magdeburg, Deutschland
Dec,2021 - Mai, 2022 Lecco, Italien
Jan, 2021 - Feb, 2021 Dessau, Deutschland
Nov, 2017 - Feb, 2018 Amman, Jordanien
Juli, 2017 - Okt, 2017 Amman, Jordanien
00 FORSCHUNGSBASIERTER INDUSTRIEKOMPLEX MIT BÜROS
PROFESSIONELLES PROJEKT BEI PBBP PLANUNGSBURO BAUMERT UND PESCHOS GMBH
02 MULTI-USE-KOMPLEX
TUNNEL DER KÜNSTLER
ADAPTIVE WIEDERVERWENDUNG
01 RENOVIERUNG GEBÄUDE UND LANDSCHAFTEN
CASCINA SAN FEDELE - ARCHITEKTONISCHE DENKMALPFLEGE
03. PAVILION
SMART PAVILION 21 - DIGITALES SCALE-UP

INDUSTRIEANLAGE ZUR WASSERVERSORGUNG
In dem Bereich Wasserrecycling und -aufbereitung wurde ein zweigeschossiges Industriegebäude mit multifunktionaler Nutzung geplant und realisiert. Das Gebäude kombiniert Büroflächen mit technischen Bereichen für Forschung, Wasseraufbereitung und Lagerung.
Das Gebäude wurde in Stahlbeton-Fertigteilbauweise errichtet. Um den Entwurf in die örtliche Umgebung zu integrieren, wurde die Fassade mit roten Klinkersteine gestaltet, die dem traditionellen Baustil der Umgebung entsprechen. Ein rasterförmiges Ordnungssystem wurde zur Planung und Koordination der Fassade verwendet.
Standort: Magdeburg
Art: Industrial Facility for Water Supply with Offices and Warehouse
Software:





Der Grundriss wurde in enger Abstimmung mit dem Bauherrn und den beteiligten Fachplanern und ausführenden Firmen entwickelt und optimiert. Die Abstimmung erfolgte parallel zur architektonischen Gesamtleitung des Projektes.
Die Entwurfs- und Genehmigungsplanung wurde gemäß den Anforderungen der Bauordnung umgesetzt und anschließend für die Ausführungsphase freigegeben. Die Ausführungspläne wurden in Zusammenarbeit mit den Statikern erstellt und an die ausführenden Firmen und die Bauleitung übergeben.










































































































































































































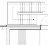
3D-Schnittansicht








































































Die Schnittlinie durchschneidet die Büroräume und den Erschließungskern und verdeutlicht die Bewegung der Aufzugskabine und die Rauchabzugsöffnung, die im Brandfall genutzt wird.
In der oberen rechten Ecke verdeutlicht ein Detailschnitt 1:5 des Dachgeschosses den Anschluss der Dachplatte an die tragende Außenwand. Darunter zeigt ein 1:5-Detailschnitt den Sockelbereich mit der Sockeldämmung des Gebäudes, die das System der Sockelisolierung verdeutlicht.
Das historische Gebäude, eine ehemalige Seifenfabrik, wurde zu einer Begegnungsstätte für Künstler und Musiker ausgebaut. Die vorgeschlagene Umnutzung soll die Bedeutung des Standorts erhalten und eine nachhaltige Lösung schaffen.
Das Gebäude besteht aus einem Studentenwohnheim, einer Musikschule mit Aufnahmestudios und Auditorium sowie Tanzräumen. Durch die adaptive Umnutzung wird das Gebäude effizienter und wirkt sich langfristig positiv auf die Umgebung aus.
Standort: Berlin Art: Individuelle/akademische Arbeit
Software:







Abschnitt A-A 1:200

Aluminiumverkleidung, Boden und Dachdetails









WIEDERERWECKUNG DER CASCINA
SAN FEDELE: UMNUTZUNG ALS BIO-MARKT UND LERNORT
ROYAL PARK MONZA
Das vorgestellte Projekt für San Fedele sieht vor, die historische Casina respektvoll zu restaurieren und als Boutique-Park zu nutze, der biologische Produkte anbietet.
Das Hauptziel ist es, mehr Besucher anzulocken, um den einzigartigen Charme von Monza durch lokale Produkte zu vermitteln.
Die Verbindung zwischen San Fedele und den umliegenden historischen Gebäuden wird gestärkt, indem neue Fußgängerwege entstehen, die kleine Strukturen für räumliche Erfahrungen und Aktivitäten der Besucher beinhalten.
Standort: Italien.
Art: Gruppe / akademische Arbeit
Software:








Pläne für neue und abgerissene Anlagen


a) Abgerundete Geometrie zur Begrüßung der Nutzer, die den Hinterhof betreten
Der Konferenz- und Veranstaltungspavillon entsteht aus einer einfachen Kreisform, die sich als Reaktion auf die natürliche Umgebung zu einer organischen, schlangenförmigen Struktur entwickelt.
Anstatt die vorhandenen Bäume zu entfernen, integriert die Architektur sie in das Raumkonzept. Das Ergebnis ist eine harmonische Verbindung von Landschaft und gebautem Raum - ein Ort, der Begegnung, Ruhe und Naturerlebnis miteinander verbindet.
Der Pavillon wird zu einem lebendigen Landschaftselement - ein Symbol für das respektvolle Zusammenspiel von Architektur, Umwelt und Nutzer.
b) serpentinenartigen roten Linien

c) Geometrien schlängeln sich um die Bäumeum die Bäume

d) Die Form des Pavillons verwandelt sich in eine organische, serpentinenartige Geometrie - teils Architektur, teils Landschaft.


e) Der Pavillon fungiert nicht nur als Veranstaltungsort, sondern auch als lebendige Struktur, die eine interaktive Beziehung zwischen Mensch und Natur ermöglicht.



Interventionskriterien - zusätzliche Konstruktions- und Fensterdetails
Details zur Konstruktion
Ansicht



für kulturelle Veranstaltungen und Landschaftsinstallationen zur Förderung der Begehbarkeit:
Der Hofbereich des Gebäudes wurde als multifunktionaler Konferenz- und Veranstaltungsort gestaltet.
Die Entwurfsvarianten werden auf der Grundlage der gegebenen Parameter durch evolutionäre genetische Algorithmen generiert, die das Auffinden von Entwurfsalternativen in der Struktur erleichtern.

Lageplan und Grundstückseingänge

UMWELTVERTRÄGLICHE GESTALTUNGSMETHODEN
Dieses Projekt verfolgt neue Designansätze, um Umweltprobleme im Baubereich anzugehen. Es zielt darauf ab, die Energieeffizienz in der Bauindustrie zu verbessern und den Materialabfall zu reduzieren.
Der Pavillon nutzt perforierte Außenhaut, um die Menge des Sonnenlichts, das ins Innere gelangt, zu kontrollieren und eine angenehme Temperatur für die Benutzer zu schaffen.

Durch umfassende Umwelt- und Strukturanalysen wurden die Durchmesser der Perforationen sowie die Struktur des Stahlrahmens berechnet.
Algorithmen zur Strukturoptimierung wurden verwendet.
Standort: Italien
Art: Individuelle/akademische Arbeit
Software:






und Designoptimierung



Strahlungstemperatur auf der Gebäudehülle
Rohbau des Pavillons
Die Module wurden so modifiziert, dass sie durch gefräste Perforationen Zugstangen aufnehmen können.
Belastungsanalyse und strukturelle Optimierung mit Karamba3D

a) b)
Definieren von Lasten

Projektion der Lasten auf die Oberfläche

c)
Rekonstruktion der Oberflächen-Tesselierung

d)
Versetzen der Maschenflächen