Arch 5671 Graduate Portfolio

Page 1


Karina
Professor

Wineries, once solely dedicated to the production and bottling of wine, have evolved into dynamic tourist destinations, embodying the spirit of enotourism—a form of tourism centered on the exploration, tasting, and appreciation of wine at its source. This project aims to develop a Louis de Grenelle Visitors Center in Saumur, France, situated within the historic Caves Louis de Grenelle. This facility will merge cultural heritage with modern enotourism, offering an immersive experience that celebrates wine, history, and the unique character of the Loire Valley.

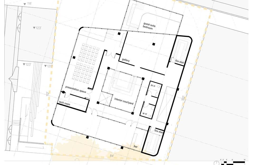
The center will include components such as wine education spaces, a café and tasting room, retail facilities, and a gallery space inspired by Piet Mondrian’s Broadway Boogie Woogie art piece. Special attention will be given to the interplay between Saumur’s historical building morphology, its connection to the vernacular architecture and the challenges posed by blending the local material of limestone with modern steel.

The integrative 5671 studio explores the project through an in-depth analysis of the site, program research and design considerations, as well as an ongoing investigation on how the traditional winery typology can be transformed all while complementing its primary structural material of steel. The visitor center is showcased through a series of phases delineating the design process from concept design through to construction detailing and select program design development.

Phase 01 Research & Concept

01.1 precedent studies

winery, steel + artist

01.2 site analysis

01.3 site model

Phase 02 Building Design

02.1 program analysis

02.2 plan studies

02.3 section studies

02.4 materiality studies

02.5 elevation studies

02.6 axonometrics

02.7 exterior views

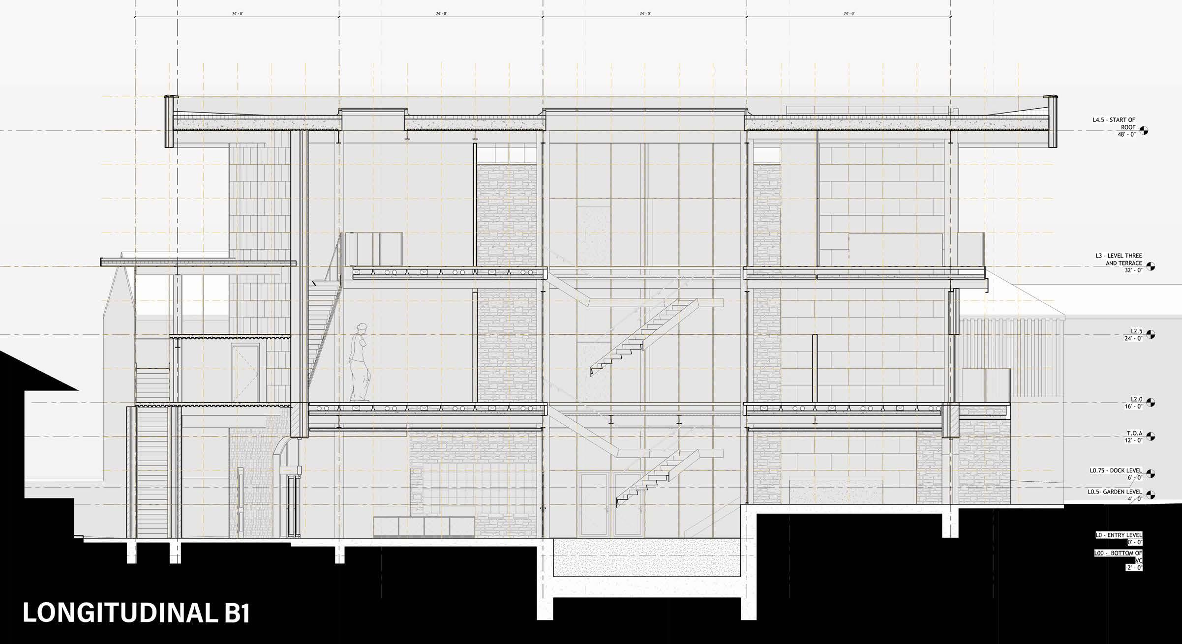
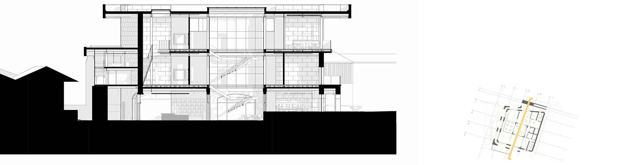
SECTIONS

02.8 interior views

02.9 model ( midterm)

Phase 03 Detail Design

03.1 planning grids

03.2 structural grids

03.2 structural elevations

03.3 structural sections

03.4 enlarged detail study

03.5 retail and exhibit spaces

03.6 mep studies

Phase 04 Detailed Model and Presentation

04.1 final detail model

04.2 enlarged plan

04.3 enlarged axonometric

04.4 enlarged section

04.5 enlarged elevation

studies

137 Dominus Winery

Yountville, Napa Valley, California, USA

Herzog De Meuron 1996-1998

SECTIONSECTION

FLOOR PLANS

STRUCTURAL DIAGRAM VS. VOID

LEVEL 2

BREEZEWAY BREEZEWAY STORAGE

GROUND LEVEL

LONGITUDINAL SECTION

PRIMARY CIRCULATION

SECONDARY CIRCULATION

MAIN ENTRY

TANK ROOM
CELLAR
MECH.
TANK ROOM
WINE CELLAR
SHOW ROOM

Disney Concert Hall Los Angeles, California Frank O Gehry Partners

Walt

CONCEPT

AXONOMETRICS

SOUTH EAST

NORTH EAST

MATERIALS

MACRO GRID
STEEL
MICRO GRID ALUMINUM SHELL/ SKIN STAINLESS STEEL

Broadway Boogie Woogie

BROADWAY BOOGIE WOOGIE

PIET MONDRIAN

KARINA MENDEZ

ARTIST

PIET MONDRIAN

AVANT GARDE CUBISM

STIJIL

WW1 1914-1918

WW2 1938-1945

60S

MONDRIAN 20S

BROADWAY

BOOGIE-WOOGIE

The Musée des Blindés in Saumur is a crucial repository of France's military history, showcasing the evolution of armored warfare through an extensive collection of vehicles.The museum's collection includes iconic tanks and armored vehicles used in major con icts such as World War I, World War II, and subsequent con icts. By presenting these vehicles in a historical context, the museum illustrates France’s role in global military history, from pioneering innovations in tank design to the adaptation of armored warfare strategies.

The Château de Saumur, perched atop a hill overlooking the Loire River, is a symbol of medieval power and architectural grandeur in Saumur, France. Its strategic location at the highest elevation in the city o ered a commanding view and forti ed position, crucial for defense and control during its construction in the 10th century. Historically, it has served various roles, including as a royal residence, a military stronghold, and a center for education. Its imposing presence continues to be a testament to Saumur's rich heritage and its signi cance in French history.

The Église Notre-Dame de Nantilly in Saumur, France, is a signi cant historical and architectural landmark. Dating back to the 12th century, this Romanesque church stands as a testament to the medieval religious and cultural heritage of Saumur. Its architecture, with its distinctive rounded arches and robust stonework, re ects the period's ecclesiastical style and provides insight into the city's development during the Middle Ages. The church's preservation and continued use underscore its importance in the local community, both as a place of worship and as a historical artifact that contributes to the rich tapestry of Saumur's past.

2’0’4’8’16’32’
2’0’4’8’16’32’2’0’4’8’16’32’
2’0’4’8’16’32’
2’0’4’8’16’32’
2’0’4’8’16’32’
2’0’4’8’16’32’
0’2’4’8’16’
3/4”=1’-0”
Karina

Turn static files into dynamic content formats.

Create a flipbook
Issuu converts static files into: digital portfolios, online yearbooks, online catalogs, digital photo albums and more. Sign up and create your flipbook.