RD Uhříněves

Page 1

Rekonstrukce a dostavba RD Uhříněves

architektonická studie

GSPublisherVersion 0.72.100.23

Identifikační údaje

PROJEKT: Rekonstrukce a dostavba RD Uhříněves

INVESTOR: Eva a Pavel Fadrhoncovi

MÍSTO: Pardubická 623/30 Praha - Uhříněves 104 00

STUPEŇ: Architektonická studie

DATUM: 04/2023

AUTOR: A2K architekti

Ing.arch. Jan Kabelka (ČKA 04 405)

Ortenovo nám 890/2 170 00 Praha - Holešovice +420 606 685 686 kabelka@a2k-arch com www.a2k-arch.com / www.jankabelka.com

GSPublisherVersion 0.72.100.23
2023 © A2K s r o | Ing arch Jan Kabelka Rekonstrukce a dostavba RD Uhříněves| studie | 04/2023

Obsah studie

Autorská zpráva

Skici dispozic přízemí

Skici dispozic patra

Skici fasád

Situace širších vztahů

Situace

1 pp - stávající

1 np - stávající

1 np - návrh

2.np - stávající

2.np - návrh

Řez A - stávající

Řez A - návrh

Řez B - stávající

Řez B - návrh

Severozápadní pohled - stávající

Severozápadní pohled - návrh

Jihozápadní pohled - stávající

Jihozápadní pohled - návrh

Severovýchodní pohled - stav

Severovýchodní pohled - návrh

Jihovýchodní pohled - stávající

Jihovýchodní pohled - návrh

Zákres z ulice

Zákres ze zahrady

Pohled z obývacího pokoje

Materiály

GSPublisherVersion 0.72.100.23 1 2 3 4 5 6 7 8 9 10 11 12 13 14 15 16 17 18 19 20 21 22 23 24 25 26 27
2023 © A2K s r o | Ing arch Jan Kabelka Rekonstrukce a dostavba RD Uhříněves| studie | 04/2023

Popis místa stavby

Pozemek se nachází ve vilové čtvrti v Praze - Uhříněvsi, je obdélníkového tvaru velmi mírně stoupá směrem od ulice do zahrady a směřuje svou delší hranou k jihozápadu

Na pozemku stojí rodinný domek z r. 1934 a samostatná garáž s prádelnou. Dům je dvoupatrový s šikmou střechou, garáž jednopatrová

Zadání

Přáním klientů je rozšířit přízemí směrem do zahrady a její spojení s nově vytvořeným obytným prostorem kuchyně, jídelny a obývacího pokoje. Tato

úprava umožní vytvoření dalšího pokoje v patře.

Je zvažován přesun koupelny v patře do prostoru nad vstup

Územní plán

Pozemek je ve funkční ploše OB-C, čistě obytná

Plocha pozemku = 625 m2

KPP (koeficient podlažních ploch) dle regulace: max. 0,5

ZP (zastavěná plocha) dům = 91.2 m2 (součet stávající ZP a přístavby)

ZP garáž = 37 m2

ZP celkem = 128 2 m2

KPP = ZP / plocha pozemku = 128 2 / 625 = 0,21 -> VYHOVUJE

KZ (koeficient zeleně) dle regulace: min. 0,45

Zpevněné plochy = 64 m2

KZ = 1 - ((ZP + zpevněné plochy) / plocha pozemku) = 1 - (192 2 / 625) = 0,69 -> VYHOVUJE

Navržené rozšíření domu vyhovuje předepsané funkční regulaci dle územního plánu. Plánovaná přístavba dodržuje výšku, materiálové řešení i tvar domu a nemění architektonický ráz objektu

Koncept

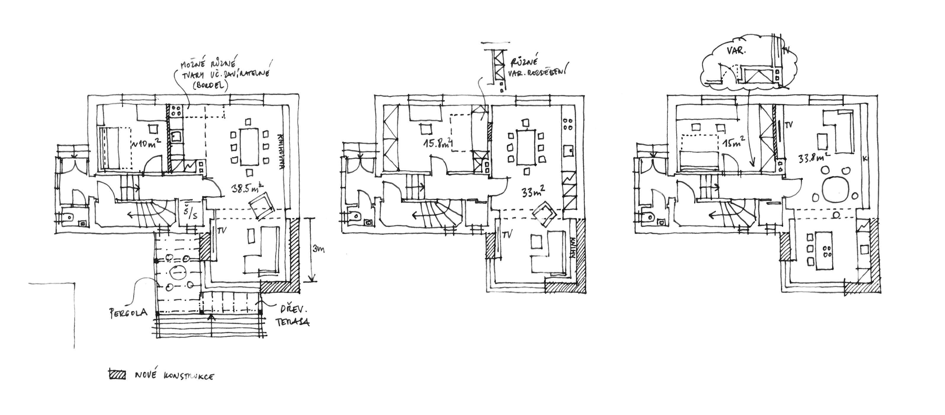
Řešení spočívá v několika zásazích:

1) směrem do ulice nadstavba nad vstupní částí a rozšíření vikýře

2) směrem do zahrady rozšíření domu ve směru hřebene vyšší části stavby

3) vybudování terasy s pergolou spojující obytnou část se zahradou

4) zateplení existujícího domu

Směrem do ulice budou obě nové části (ad 1) materiálově odlišeny (např titanzinkový plech se stojatou drážkou, antracitová barva), čímž se zvýrazní nové vrstvy architektury

Přístavba do zahrady bude naopak materiálově a tvarově stejná jako stávající dům

Technické sítě (vytápění zti, elektřina) budou aktualizovány tak aby vyhovovaly současným nárokům

Architektonické řešení

Přízemí se rozšíří o čistý vnitřní rozměr 3,6 m směrem do zahrady. Ze stávající kuchyně se vytvoří Pracovna / Pokoj pro hosta a ve zbývající části vznikne spojený obytný prostor obsahující kuchyň, jídelnou a obývací pokoj Ten bude prosklenou stěnou přímo spojen s terasou navazující na zahradu

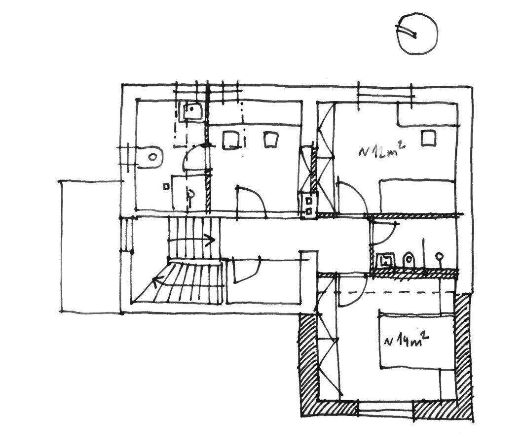
V patře vznikne jeden pokoj v rozšířené části a dvě nové malé koupelny (jedna mezi pokoji a druhá nad vstupní částí s přístupem z mezipodesty). Třetí pokoj vznikne sloučením stávající koupelny a pokoje

Materiálové řešení

Dům bude zateplen cca 12 cm kontaktním zateplovacím systémem (greywall eps), směrem do ulice budou vytvořeny imitace stávajících šambrán oken

Omítka bude jemná v odstínu bílé či lomené bílé a šambrány budou buď ve stejném odstínu, či o jeden odstín světlejší

Nová okna směrem do zahrady budou dřevohliníková v barvě antracitu.

Terasu budou tvořit dřevěné palubky a pergolu trámky a sloupky v přírodní barvě (ošetřené aspoň základním způsobem proti vlivu počasí). Předpokládáme tropické dřevo či sibiřský modřín pro terasu a smrk či modřín pro pergolu.

Konstrukce přístavby do zahrady předpokládáme zděnou vč keramických stropů a zastřešenou krovem s keramickou střešní taškou

GSPublisherVersion 0.72.100.23
2023 © A2K s r o | Ing arch Jan Kabelka Autorská zpráva Rekonstrukce a dostavba RD Uhříněves| studie | 04/2023 1
GSPublisherVersion 0.72.100.23 2023 © A2K s r o | Ing arch Jan Kabelka Skici dispozic přízemí Rekonstrukce a dostavba RD Uhříněves| studie | 04/2023 2
GSPublisherVersion 0.72.100.23 2023 © A2K s r o | Ing arch Jan Kabelka Skici dispozic patra Rekonstrukce a dostavba RD Uhříněves| studie | 04/2023 3
GSPublisherVersion 0.72.100.23 2023 © A2K s r o | Ing arch Jan Kabelka Skici fasád Rekonstrukce a dostavba RD Uhříněves| studie | 04/2023 4
GSPublisherVersion 0.72.100.23 1:2000 2023 © A2K s r o | Ing arch Jan Kabelka Situace širších vztahů Rekonstrukce a dostavba RD Uhříněves| studie | 04/2023 5
GSPublisherVersion 0.72.100.23 nová terasa 27 m2 přístavba 18 m2 dostavba 2.np nad vstupem nový vikýř stěny zatepleny 1:500 2023 © A2K s r o | Ing arch Jan Kabelka Situace Rekonstrukce a dostavba RD Uhříněves| studie | 04/2023 6
GSPublisherVersion 0.72.100.23 1:100 2023 © A2K s r o | Ing arch Jan Kabelka 1.pp - stávající Rekonstrukce a dostavba RD Uhříněves| studie | 04/2023 7
GSPublisherVersion 0.72.100.23 2023 © A2K s r o | Ing arch Jan Kabelka Rekonstrukce a dostavba RD Uhříněves| studie | 04/2023
GSPublisherVersion 0.72.100.23 1:100 2023 © A2K s r o | Ing arch Jan Kabelka 1.np - stávající Rekonstrukce a dostavba RD Uhříněves| studie | 04/2023 8
GSPublisherVersion 0.72.100.23 M B A A B 1:100 stávající navrhované 2023 © A2K s r o | Ing arch Jan Kabelka 1.np - návrh Rekonstrukce a dostavba RD Uhříněves| studie | 04/2023 9
GSPublisherVersion 0.72.100.23 1:100 2023 © A2K s r o | Ing arch Jan Kabelka 2.np - stávající Rekonstrukce a dostavba RD Uhříněves| studie | 04/2023 10
GSPublisherVersion 0.72.100.23 B A A B 1:100 stávající navrhované 2023 © A2K s r o | Ing arch Jan Kabelka 2.np - návrh Rekonstrukce a dostavba RD Uhříněves| studie | 04/2023 11
GSPublisherVersion 0.72.100.23 2023 © A2K s r o | Ing arch Jan Kabelka Řez A - stávající Rekonstrukce a dostavba RD Uhříněves| studie | 04/2023 12
GSPublisherVersion 0.72.100.23 1:100 2023 © A2K s r o | Ing arch Jan Kabelka Řez A - návrh Rekonstrukce a dostavba RD Uhříněves| studie | 04/2023 13
GSPublisherVersion 0.72.100.23 2023 © A2K s r o | Ing arch Jan Kabelka Řez B - stávající Rekonstrukce a dostavba RD Uhříněves| studie | 04/2023 14
GSPublisherVersion 0.72.100.23 1:100 2023 © A2K s r o | Ing arch Jan Kabelka Řez B - návrh Rekonstrukce a dostavba RD Uhříněves| studie | 04/2023 15
GSPublisherVersion 0.72.100.23 1:100 2023 © A2K s r o | Ing arch Jan Kabelka Severozápadní pohled - stávající Rekonstrukce a dostavba RD Uhříněves| studie | 04/2023 16
GSPublisherVersion 0.72.100.23 1:100 2023 © A2K s r o | Ing arch Jan Kabelka Severozápadní pohled - návrh Rekonstrukce a dostavba RD Uhříněves| studie | 04/2023 17
GSPublisherVersion 0.72.100.23 1 100 2023 © A2K s r o | Ing arch Jan Kabelka Jihozápadní pohled - stávající Rekonstrukce a dostavba RD Uhříněves| studie | 04/2023 18
GSPublisherVersion 0.72.100.23 1:100 2023 © A2K s r o | Ing arch Jan Kabelka Jihozápadní pohled - návrh Rekonstrukce a dostavba RD Uhříněves| studie | 04/2023 19
GSPublisherVersion 0.72.100.23 1:100 2023 © A2K s r o | Ing arch Jan Kabelka Severovýchodní pohled - stav Rekonstrukce a dostavba RD Uhříněves| studie | 04/2023 20
GSPublisherVersion 0.72.100.23 1:100 2023 © A2K s r o | Ing arch Jan Kabelka Severovýchodní pohled - návrh Rekonstrukce a dostavba RD Uhříněves| studie | 04/2023 21
GSPublisherVersion 0.72.100.23 1:100 2023 © A2K s r o | Ing arch Jan Kabelka Jihovýchodní pohled - stávající Rekonstrukce a dostavba RD Uhříněves| studie | 04/2023 22
GSPublisherVersion 0.72.100.23 1:100 2023 © A2K s r o | Ing arch Jan Kabelka Jihovýchodní pohled - návrh Rekonstrukce a dostavba RD Uhříněves| studie | 04/2023 23
GSPublisherVersion 0.72.100.23 2023 © A2K s r o | Ing arch Jan Kabelka Zákres z ulice Rekonstrukce a dostavba RD Uhříněves| studie | 04/2023 24
GSPublisherVersion 0.72.100.23 2023 © A2K s r o | Ing arch Jan Kabelka Zákres ze zahrady Rekonstrukce a dostavba RD Uhříněves| studie | 04/2023 25
GSPublisherVersion 0.72.100.23 2023 © A2K s r o | Ing arch Jan Kabelka Pohled z obývacího pokoje Rekonstrukce a dostavba RD Uhříněves| studie | 04/2023 26
GSPublisherVersion 0.72.100.23
dřevěný obklad fasády (vertikální palubky - např modřín), antracitová plechová střecha (např titanzinek) obklad závětří - titanzinek či cementotřískové desky
2023 © A2K s r o | Ing arch Jan Kabelka Materiály Rekonstrukce a dostavba RD Uhříněves| studie | 04/2023 27
interiéry: kombinace dřeva, bílé a antracitové barvy, barevnost dodají detaily - např knihy atp
GSPublisherVersion 0.72.100.23
Těším se na další spolupráci.

Turn static files into dynamic content formats.

Create a flipbook
Issuu converts static files into: digital portfolios, online yearbooks, online catalogs, digital photo albums and more. Sign up and create your flipbook.