Skip to main content

RCS Nº35

Page 1


Revista del Colegio de Arquitectos de la Provincia de Buenos Aires

FOTO DE TAPA

Obra: Casa en Las Golondrinas / Coronel Brandsen

CONSEJO SUPERIOR CAPBA

MESA EJECUTIVA

DEL CONSEJO SUPERIOR

Presidente Arq. Ramón Alberto Rojo (D4)

Vicepresidente Arq. Alejandro Latorre (D2)

Secretario Arq. Silvia Marcela Safar (D6)

Tesorero Arq. Claudio Videla (D3)

CONSEJEROS

Consejeros titulares

Arqs. Jorge Dardo Martegani (D1), Soledad González Taboada (D3), Jorge Alberto García (D5), Alejandro Guillermo del Blanco (D7), Augusto Beltrán Urrizola (D9)

Consejeros suplentes

Arqs. Juan Carlos Sánchez (D2), Oscar Alberto Leonardi (D4), Gabriel Osvaldo Giron (D6), Marcos Leonardo Barrionuevo (D8), Jorge Santiago Llambrich Herran (D10)

ASESOR LEGAL CS

Abogado Arquitecto Sergio O. Bertone

TRIBUNAL DE DISCIPLINA

Miembros titulares

Arq. Darío Néstor Maccagno (D6)

Arq. Julio César Santana (D1)

Arq. Enrique Segundo D´ambrosio (D4)

Arq. Carlos Alberto Isa (D10)

Arq. Diego Ricardo Varenna (D7)

Miembros suplentes

Arq. Miguel Osvaldo Tevez (D2)

Arq. Jorge Fabián Castro (D9)

Arq. Christian Hugo Mastri (D3)

Arq. Gustavo Sergio Smirnoff (D9)

Arq. Matías Gigli (D4)

Asesor legal Dr. Edgardo Didoda

STAFF REVISTA CAPBA

Propietario Colegio de Arquitectos de la Provincia de Buenos Aires / CAPBA / Calle 54 Nº 315 / La Plata / Provincia de Buenos Aires / Argentina T. (0221) 482-2631 / 421-8032 / info@capba.org.ar / www.capbacs.com

Director Arq. Ramón Alberto Rojo Consejo editor Arqs. Juan Carlos Sánchez y Mario Pérez Direccion de arte y diseño Estudio RO-K

AGRADECIMIENTOS

Arquitectos Sebastián Miranda, Julián Ierace, Luciano Dimaio, Nicolás Rocca, Esteban Muerza, Miguel García Escudero, Augusto Finochiaro, Gastón Castellanos, Matías Mosquera, Marcelo Vita, Martín Lattes, Alejo Salinas, Guillermo Elgart, Juan Albarenque, Pedro Martorana, Horacio Sardín, Eduardo Crivos, José Cubilla, Raúl Vallés, Vinicius de Andrade y Marcelo Morettin / Arquitectas Camila Gianicolo, Viviana Pérez Pironio, Mercedes Frolik, Malena Biaus, Valeria Del Puerto, Bárbara Berson y Marta Moreira

COLABORADORES EN ESTE NÚMERO

Arquitectas María Soledad Del Cueto y Elizabeth Vergara / Arquitecto Miguel Vecino

Autores: Arquitecto Sebastián Miranda (WoMi.estudio) + Arquitecto Julián Ierace

Créditos Fotográficos: Arquitecto Sebastián

Miranda

Revista CAPBA es el medio gráfico de comunicación del Colegio de Arquitectos de la Provincia de Buenos Aires Los artículos publicados expresan los puntos de vista de sus autores y no necesariamente representan los de la institución propietaria. Los artículos sin firma son conocidos por el Consejo Editor y su responsabilidad última recae en el Director Responsable. Revista CAPBA autoriza la reproducción total o parcial de los artículos contenidos en la misma con el compromiso de citar la fuente. Registro de propiedad intelectual en trámite.

SUMARIO 35

EDITORIAL

DECIR Y HACER BALANCE Y EXPERIENCIAS

ARQUITECTO RAMÓN ROJO

PRESIDENTE CAPBA

ARQUITECTURA BONAERENSE 9_

10_ CASA EN LAS GOLONDRINAS

CORONEL BRANDSEN / D1

ARQUITECTOS SEBASTIÁN MIRANDA

(WOMI ESTUDIO) + JULIÁN IERACE

18_ CASA AMENEDO / ADROGUE / D2

DRM ARQUITECTURA / DIMAIO, ROCCA Y MUERZA

26_ CASA LELOIR / ITUZAINGÓ / D3

HAAK ARQUITECTURA / ARQUITECTOS MIGUEL

GARCÍA ESCUDERO, AUGUSTO FINOCHIARO Y GASTÓN CASTELLANOS

36_ MeCa / SAN ISIDRO / D4

ATELIERM / ARQUITECTOS/A MATIAS MOSQUERA, CAMILA GIANICOLO Y MARCELO VITA

44_ CASA BRICK / PILAR / D5

ARQUITECTOS MARTÍN LATTES Y ALEJO SALINAS

52_ CASA ORILLA / JUNÍN /D6

LEONE LORAY ARQUITECTOS / JUSTINA LEONE, GASTÓN LORAY, NADIA NAVARRETE, GUSTAVO

CIANCIO, JULIANA VIRLA Y RUY NAREA

62_ QUINCHO REC / 9 DE JULIO / D7

ARQUITECTA VIVIANA PÉREZ PIRONIO / ESTUDIO AVPP

68_ LA PIRCA / TANDIL / D8

ARQUITECTAS MERCEDES FROLIK Y MALENA BIAUS

76_ CASA MORO / MAR DEL PLATA / D9

ARQUITECTOS GUILLERMO ELGART Y JUAN ALBARENQUE

86_ CASA EN BOSQUE ALTO / BAHÍA BLANCA / D10

ARQUITECTO PEDRO MARTORANA

CASA CURUTCHET 95_

96_ CASA CURUTCHET: UN HECHO CULTURAL ENTREVISTA AL ARQUITECTO RAMÓN ROJO / PRESIDENTE CAPBA CONSEJO EDITORIAL

104_ EL CAPBA Y LA CASA CURUTCHET: UNA HISTORIA DE AMOR

ARQUITECTO JULIO SANTANA

110_ EL RELEVAMIENTO 3D DE LA CASA CURUTCHET Y SU IMPACTO EN LA PRÁCTICA ARQUITECTÓNICA

ARQUITECTO JUAN STINCHI

Y SOSTENIBILIDAD

119_ DEBATIR Y REFLEXIONAR PARA ACTUAR

CONSEJO EDITOR

128_ JARDÍM LIDIANE / CONJUNTO

HABITACIONAL / SAN PABLO

ANDRADE-MORETTIN ARQUITETOS

130_ PRADERA VERTICAL / VIVIENDA

MULTIFAMILIAR / CABA

DEL PUERTO, SARDÍN, BERSON

132_ HOSPITAL DE MATADEROS EDUARDO CRIVOS

134_ TAKURÚ (TERMITERO) VIVIENDA UNIFAMILIAR / PARAGUAY JOSÉ CUBILLA

136_ SESC 24 DE MAYO

EQUIPAMIENTO SOCIAL / SAN PABLO

MENDEZ DA ROCHA-MMBB (MARTA MOREIRA)

138_ COVICIVI / VIVIENDA

ULTIFAMILIAR / MONTEVIDEO

RAÚL VALLÉS

140_ CONTENIDO PORTÁTIL

EQUIPAJE DE VIAJE DE UN COLEGIO PROFESIONAL

ARQUITECTO MIGUEL VECINO

144_ BAJO LA SOMBRA DEL ALGARROBO

CONSEJO EDITORIAL

154_ CONSTRUIR EL FUTURO

ARQUITECTA ELIZABETH VERGARA

158_ UN PROTOTIPOS DE VIVIENDA PARA LA COMUNIDAD BONAERENSE

MESA EJECUTIVA / CAPBA CS

160_ ZONA FLUVIAL | PRIMER PREMIO

ARQUITECTOS SEBASTIÁN CERRI Y JUAN IGNACIO SÁNCHEZ

164_ ZONA FLUVIAL | SEGUNDO PREMIO

ARQUITECTO OSCAR VÁZQUEZ.

166_ ZONA MARÍTIMA | PRIMER PREMIO

ARQUITECTO GASTÓN JULIÁN CANZANI

170_ ZONA MARÍTIMA | SEGUNDO PREMIO

ARQUITECTO LEONARDO UGUET

172_ ZONA METROPOLITANA | PRIMER PREMIO

ARQUITECTO GONZALO PÉREZ / ARQUITECTO FERNANDO URQUIOLA (ASOCIADO)

176_ ZONA METROPOLITANA | SEGUNDO PREMIO

ARQUITECTA JESICA BAVA Y ARQUITECTO FEDERICO CRAIG

178_ ZONA PAMPEANA NORTE | PRIMER PREMIO

ARQUITECTA JESICA BAVA Y ARQUITECTO FRANCISCO CARTASEGNA

182_ ZONA PAMPEANA NORTE | SEGUNDO PREMIO

ARQUITECTO FEDERICO MIGUEL GARCÍA

184_ ZONA PAMPEANA SUR | PRIMER PREMIO

ARQUITECTA MARÍA CELESTE FISCH

188_ ¿POR QUÉ PROMOVER UN CONCURSO DE PROYECTOS DE PROTOTIPOS DE VIVIENDA INDIVIDUAL SUSTENTABLE?

ARQUITECTA MARÍA SOLEDAD DEL CUETO

EDITORIAL

DECIR Y HACER

Balance y experiencias

“Me dirán: los tiempos han cambiado, me alegra que cambien los tiempos, lo que preocupa es la nostalgia pasatista de muchos de aquellos que son actores que nos conducen al futuro, como también preocupa que finalmente un Estado chico, se transforme en chiquitito y (se) crea que en el país se puedan realizar el Archivo Nacional o Tribunales o el Congreso, la Biblioteca (Nacional) y por qué no, la Casa de Gobierno, mediante gestiones privadas, para luego, con el sistema de leasing, alquilárselos al Estado en largas y tangenciales cuotas. Los tiempos han cambiado, de hecho, debemos participar en el cambio de los tiempos, porque si no nuestro lugar lo ocuparán otros que tal vez piensen muy distinto a nosotros.” Solsona. Hacer y Decir. Compilación, edición, notas y prólogo: Vivian Acuña, pág. 273. Ediciones Infinito.2007

Escogimos estas palabras de Jujo Solsona, publicadas en el Suplemento de Arquitectura de Clarín (21/7/1993) y, transcurridos más de treinta años, aún vigentes, para dar comienzo a este editorial, al que intentamos dar el carácter de breve inventario de las principales actividades que el CAPBA, desde el Consejo Superior, ha llevado adelante durante 2024. Cabe agregar que la totalidad de las valiosas acciones de las comisiones, institutos, departamentos, secretarías y otros ámbitos donde se trabaja para brindar servicios y beneficios a la matrícula y la comunidad, se han detallado en la Memoria 2023/24.

Arquitectos/as en relación de dependencia estatal. A un mes de finalizar el 2024, tuvo lugar en la sede del Consejo Superior, el primer Encuentro de Profesionales de la Arquitectura en Relación de Dependencia Estatal, con la presencia del ministro de Trabajo bonaerense. El evento fue una muestra elocuente de una línea de gestión, entendiendo que el entramado laboral actual de los/as arquitectos/as ha mutado desde el siglo pasado. Su complejidad actual debe ser comprendida con otras categorías de análisis distintas a las que estamos acostumbrados, incluso crearlas, si es necesario. La necesidad de dar visibilidad a la tarea diaria de los cientos de arquitectos y arquitectas dentro de las estructuras estatales es una demanda histórica. Estuvo allí desde el inicio. Lo que sí es nuevo es el tipo de demandas que plantean las comunidades que habitan el territorio provincial; así, en plural, asumido que hace ya mucho tiempo que la heterogeneidad es el punto de partida correcto para nombrar a la sociedad contemporánea. La multiplicidad de intereses es tal, que el saber y entrenamiento de los agentes públicos no tiene otra alternativa que ser profundizados y diversificados para estar al nivel de los requerimientos que se les plantean. Y esta no es solo tarea de quienes los emplean, también es incumbencia del CAPBA. Actualmente y para aportar un dato concreto, en Distrito 1, de

Arq. Ramón Rojo Presidente CAPBA

acuerdo a una encuesta reciente, un 40 % de la matricula está integrada por arquitectos vinculados a la acción estatal. El futuro no es menos Estado, es “un Estado que facilite, cada vez más, la inclusión y la equidad, es decir un Estado mejor.” (FC#18). Por supuesto que hacer visible un tema no implica tener la capacidad de resolverlo, pero ponerlo en agenda desde un espacio legitimado por su propia historia y acción, es un enorme paso adelante.

La Bienal y el Congreso. Visibilización y compromiso es el camino elegido para llevar adelante dos encuentros de vital importancia en el orden de prioridades de la gestión iniciada en 2023: la undécima Bienal de Arquitectura y Urbanismo y el Primer Congreso de Bio Construcción y Cambio Climático. Si acordamos que ya no es posible operar situados únicamente dentro de los límites de los espacios donde construimos nuestros proyectos, sin valorar sus efectos urbanos, ambientales, productivos, sociales y simbólicos, estaremos en mejores condiciones para discutir cuáles son las soluciones más pertinentes. Sin ampliar las fronteras de nuestros saberes o comprender las virtudes del trabajo interdisciplinario, no haremos más que alejarnos, creemos, del sentido de la propia disciplina. En la construcción del hábitat somos actores relevantes, sin lugar a dudas, pero no los únicos ni los más importantes.

La presencia de la presidenta del Instituto Cultural de la Provincia de Buenos Aires -su máxima autoridad- se debe a que la Bienal es un hecho cultural, no un encuentro meramente profesional. Y como tal, debe tener sentados en la mesa de discusión a actores relevantes que tengan algo para decir sobre la base de una praxis verificable, contrastable, no exclusivamente disciplinar. La arquitectura no es ajena a la producción y al trabajo; es parte de una ecuación económica y social. Si solo cuentan la opinión de los especialistas, habremos tomado un camino equivocado, que ya hemos transitado.

Si bien la consigna de la XI BAU fue “vivienda y suelo”, cabe destacar que fue en los foros donde se discutieron problemáticas sobre el segundo tema de la convocatoria. Y las conclusiones son poco alentadoras, por el momento. En las políticas sobre suelo, el soporte natural y material de proyectos arquitectónicos y urbanos, nuestra disciplina tiene poca injerencia. Generar ideas y llevarlas a la acción es un desafío a futuro. En esa línea, la BAU Itinerante, que comenzó a concretarse en los últimos meses de 2024, implica continuar y situar territorialmente en cada uno de los Distritos que integran el Colegio los debates que se dieron en Mar del Plata. En relación al Congreso, las edades de quienes participaron algo dicen de cuáles son los temas de interés de las nuevas generaciones de arquitectos y arquitectas. Dar un lugar rele-

vante a este evento fija una posición clara del CAPBA respecto al cambio climático y la sustentabilidad ambiental, por un lado, y a la necesidad de involucrar a los jóvenes arquitectos y arquitectas en la construcción de la agenda de los años que vienen, por otro lado. Es muy probable que las categorías de análisis que hemos utilizado hasta aquí no estén registrando adecuadamente los cambios que se han dado, en muy poco tiempo, en nuestra sociedad. Buena parte del andamiaje institucional contemporáneo está en cuestión, su eficacia está en cuestión: el CAPBA es parte de él. Quizá no solo se trate de las nuevas demandas que no encuentran un cauce, quizá el mayor inconveniente sea que viejas demandas tampoco se resolvieron. En este sentido -el de encontrar nuevos caminos para resolver viejas y actuales demandas-, la experiencia que nos dio la organización de este Congreso en particular, puede que sirva de modelo hacia adelante. Con una hoja de ruta previa, se sucedieron cinco encuentros preliminares, que dieron mejores pistas hacia dónde dirigir la convocatoria y qué temas requerían mejor atención que otros. En definitiva, este ensayo de cercanía, de aproximación directa a los/las arquitectos/as de nuestra provincia, es la manera correcta de encontrar los puntos de encuentro entre una institución y aquellos a quienes se propone representar. Y la temática elegida también es la manera correcta, afirmamos, de pararnos frente al cambio climático, que no es una interpretación o un manejo discrecional de datos, es una realidad instalada que ha puesto en riesgo serio a la vida en nuestro planeta, tal como la conocemos. No tomar posición frente a un hecho verificable que afecta al medio ambiente no es una opción para un colectivo de arquitectos/as.

Concursos, formación y ejercicio profesional. Durante 2024, el CAPBA actuó como co-organizador de seis concursos -a través de la Secretaría respectiva-, algunos de ideas, otros de anteproyectos, abarcando diversidad de temas y de escalas. Como sucede desde hace más de una década, en 2024 también se organizaron los concursos de Obra Construida y Premio Estímulo, con una importante convocatoria que habla a las claras de que ambos eventos ya se han incorporado a las prácticas habituales de la matricula provincial.

En línea con la idea del trabajo cooperativo entre Colegio y Estado, el Consejo Superior promovió y organizó un concurso de anteproyectos de prototipo de vivienda social sustentable, con la intención de obtener un modelo de unidad residencial para cada una de las cinco regiones en las

que se dividió el territorio bonaerense. Con este insumo, se propondrá a las autoridades provinciales la implementación de un programa de préstamos -una especie de Procrear provincial- que inicie un proceso virtuoso para morigerar el déficit habitacional, promover a una alicaída industria de la construcción y, como resultado fundamental, impulsar la actividad de los/las profesionales bonaerenses. Facilitar el ejercicio profesional es también, para los que llevamos adelante esta gestión, formar, actualizar y perfeccionar a los y las colegas. En este sentido, en el transcurso del año anterior, desde Consejo Superior y para beneficio de la totalidad de la matrícula provincial, se dictaron 51 seminarios y capacitaciones gratuitas, en su mayoría a distancia a través de la plataforma CAPBA en línea, para las que se inscribieron 4.352 matriculados.

Casa Curutchet: un patrimonio para los/as bonaerenses. La Casa, más allá de su pertenencia al patrimonio universal resguardado por la ONU, posee un valor especial para los profesionales bonaerenses y puede constituirse en un puente con la sociedad: no es solo una vivienda con inmenso valor simbólico, también es un hecho cultural, y como tal, debería alojar actividades para toda la comunidad local y nacional. La Asamblea Extraordinaria, que hacia fines de 2024 habilitó las gestiones para adquirir la propiedad, es un primer paso, muy importante, porque expresó la voluntad ampliamente mayoritaria de la matrícula en ese sentido. El otorgamiento de un préstamo por parte de la CAAITBA, ya autorizado, era el otro gran paso para la compra. Resta ahora la negociación con los propietarios, que todo indica será exitosa.

La casa Curutchet es más que la casa Curutchet. Como el legado único que es, tiene aún mucho que decir. Y ese es punto donde nos interesa situarnos, donde estamos situados. Los legados son algo así como luces en un camino ya transitados por otros y otras; sin valorarlos con generosidad, poco es lo que tendremos para mejorar. La continuidad no tiene buena prensa en este tiempo tan complejo, pero el cambio per se, sin saber qué y para qué, no parece una buena receta para dejar entrar nuevos aires. Lo supieron quienes nos antecedieron, los sabemos quiénes los continuamos

Dos mil veinticuatro, un año de gestión con encuentros y debates, acercamiento a nuevas problemáticas y propuestas para promover y perfeccionar el ejercicio profesional y avanzar con el crecimiento patrimonial.

_9 ARQUITECTURA BONAERENSE

Diez obras, una en cada Distrito. Toda la provincia representada por arquitectura residencial unifamiliar reciente. Diez estudios que plantean respuestas al hábitat con estrategias comunes: sensibilidad hacia el entorno, generosas conexiones interior-exterior, flexibilidad en la organización interna y empleo de recursos sustentables para el acondicionamiento de la vivienda.

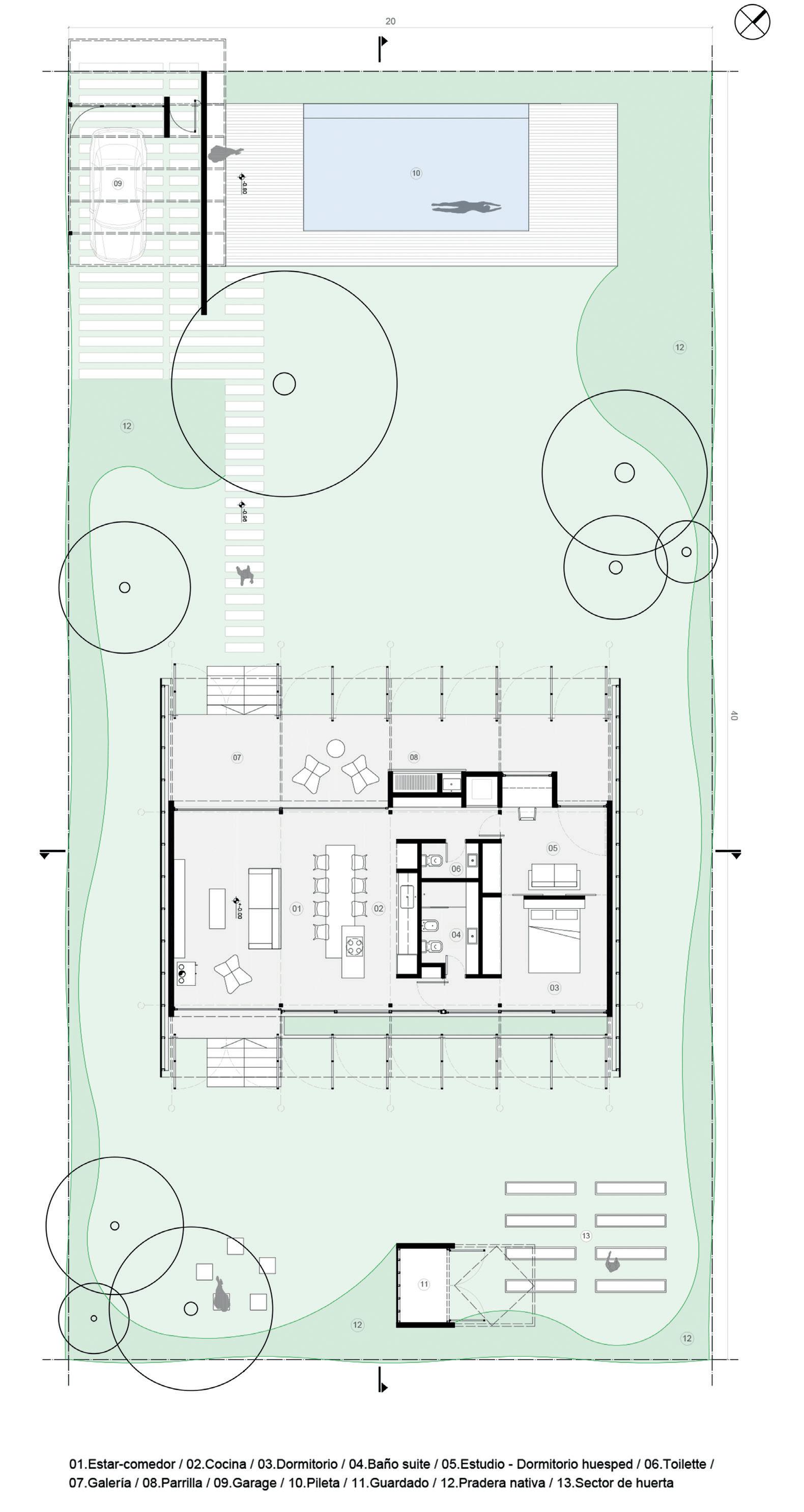
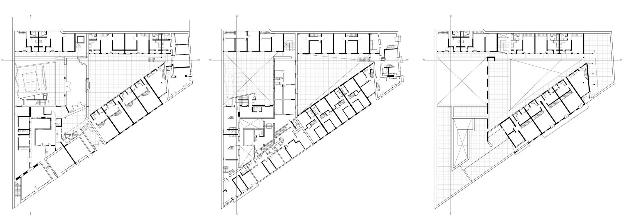
CASA EN LAS GOLONDRINAS

CORONEL BRANDSEN / DISTRITO 1

AUTORES ARQUITECTOS SEBASTIÁN MIRANDA (WOMI ESTUDIO) + JULIÁN IERACE

FICHA TÉCNICA

UBICACIÓN LAS GOLONDRINAS, PARTIDO DE CORONEL BRANDSEN

SUPERFICIE CUBIERTA 97 M2

SEMICUBIERTA 70 M2 FECHA FINALIZACIÓN 2023

MEMORIA

La casa se emplaza en un agrupamiento rural del partido de Brandsen, Provincia de Buenos Aires, junto al cauce del arroyo San Luis, en un entorno típico de la llanura pampeana. Es una vivienda de fin de semana para una pareja que requería una propuesta simple, de bajo costo y superficie reducida. Además de los requerimientos del encargo, se trata de una investigación y reflexionar sobre las formas de habitar el espacio doméstico en un contexto semirural y la tecnología adecuada para materializarlo. Aplicando soluciones integrales y sensibles con el ambiente, entendiendo la vivienda como un sistema en equilibrio con su entorno. El cuerpo de la vivienda se apoya sobre una plataforma de hormigón sostenida por dos grandes vigas al nivel del suelo, generando voladizos que le permiten suspenderse sobre el terreno y adaptarse a las características húmedas del mismo, producto del posible crecimiento del arroyo. Esto también eleva las visuales hacia el horizonte. Su planta regular y uniforme (reinterpretación de la casa Farnsworth de Ludwig Mies van der Rohe) aporta flexibilidad de uso, generando una articulación entre el área social y los espacios privados a través de las áreas húmedas. Sus grandes cerramientos vidriados, que se ocultan en su totalidad, permiten la vinculación y expansión directa, aumentando las áreas sociales. Para reducir el uso de recursos, se incorporaron aspectos pasivos como galerías, ventilaciones cruzadas, regulación de incidencia solar, adecuada aislación térmica y aprovechamiento de la luz natural. Además, se incluyeron estrategias activas, como sistemas de acumulación

de aguas de lluvia para riego, biodigestor para las aguas servidas y un colector solar para calentar el agua, reduciendo así el uso de recursos naturales. Tabiques con placas fenólicas de viruta de madera, derivados de productos elaborados con materiales reciclados, aportan interiormente características confortables propias de las cabañas rurales. Sumándose a las estrategias de sustentabilidad, una envolvente de chapa de zinc genera una barrera sobre los muros laterales y un efecto sombrilla sobre la cubierta mediante el sobretecho, creando una cámara de aire que aísla la vivienda del exterior, reduciendo así, la energía necesaria para acondicionarla y su exposición a la intemperie. Esta envolvente se complementa con un sistema de cerramientos pivotantes de chapa microperforada, que regula la incidencia de los rayos solares, y permite la vinculación visual con el paisaje, que además brinda seguridad cuando la vivienda está deshabitada. La utilización de hormigón visto y madera natural en solados y caminerías exteriores resalta el tratamiento natural de la composición. En el volumen de la vivienda, la combinación de muros y tabiques fenólicos con la estructura y envolvente metálica, en gran parte permeable, brinda un efecto visual de transparencia y contraste. Estas soluciones constructivas permitieron rapidez de ejecución, posibilidad de acopio en un área de difícil acceso y reducción del costo de mantenimiento a futuro.

Se encuentra en ejecución la regeneración ambiental a través del diseño del paisaje exterior con plantas nativas buscando recuperar la flora autóctona y su fauna asociada, afectada por la deforestación y el crecimiento urbano.

IMPLANTACIÓN

PLANTA
VISTA FRENTE
VISTA CONTRAFRENTE
VISTA LATERAL

DESPIECE

DETALLE CONSTRUCTIVO

CASA AMENEDO

ADROGUE / DISTRITO 2

AUTORES DRM ARQUITECTURA / DIMAIO, ROCCA Y MUERZA COLABORADORES ARQUITECTOS RAMIRO BARRAZA, AUGUSTO LATZKE BLAKE, LAUTARO EGUI, IGNACIO LLANEZA, FABIÁN BRUNO, EZEQUIEL BASSO / ARQUITECTAS FLORENCIA CHUMBES, LUCÍA BINETTI, GIULIANA SCATUERCHIO Y SOFÍA PRYTOLUK / FLIA. ALONSO (PAISAJISMO) / INGENIERO ANDRÉS MOSCATELLI FOTOGRAFÍA ARQUITECTO LUIS BARANDIARÁN

FICHA TÉCNICA UBICACIÓN ADROGUÉ, PARTIDO DE ALMIRANTE BROWN SUPERFICIE CONSTRUIDA 155 M2 FECHA FINALIZACIÓN 2023

MEMORIA

La casa es una vivienda unifamiliar situada sobre la calle Amenedo en el barrio de Adrogué. El encargo responde a las necesidades de una pareja que residía en un departamento y buscaba amplitud y ausencia de límites tanto en el espacio cubierto como en el espacio descubierto. Apoyándonos en la amplitud del terreno, lo dividimos a la mitad trazando una línea perpendicular a la calle, utilizamos la mitad para el desarrollo de la vivienda y la otra mitad restante para el desarrollo del parque. De esta forma ambas porciones del terreno tenían contacto y relación con el frente y con el contrafrente, respondiendo a las intenciones del encargo de “no generar grandes espacios encerrados”.

La casa es una gran cubierta abovedada que flota en el terreno, construida con un sistema de pórticos prefabricados mixtos de Guayubira y perfileria “L” de hierro, que resuelve los espacios de estar, comer y expansiones, entendiéndolos como espacios más dinámicos y fluidos, sin establecen límites con el terreno libre. Debajo de la cubierta, cinco cajas en construcción tradicional resuel-

ven los espacios de servicio y los espacios de dormir, que a nuestro entender requieren mayor grado de intimidad.

La relación entre la cubierta abovedada y la posición relativa de las cinco cajas programáticas define por un lado tres patios (frente, centro, contrafrente), y por el otro, una galería que atraviesa y conecta toda la vivienda. Ambos recursos nos permiten regular el asoleamiento de la vivienda y generar espacios acotados de apropiación acordes con la escala de cada programa.

La otra mitad del terreno, la descubierta, fue destinada a un proyecto paisajístico desarrollado por la propia familia.

Los pórticos fueron el principal objeto de diseño de la casa, decidimos que las columnas y cordones inferiores se desarrollen en madera para cualificar el espacio hasta esa altura, a la escala humana. Por sobre el cordón inferior, la materialidad muta a metálica, ya que eso nos permitía disminuir las secciones generando la sensación de suspensión de la cubierta. La sistematización y tallerización de este detalle condujo a la reducción de tiempos de ejecución de la obra.

DESPIECE Y ESQUEMAS
PLANTA BAJA
VISTA FRENTE
VISTA FRENTE
VISTA CONTRAFRENTE
DETALLE CUBIERTA
CORTE TRANSVERSAL
CORTE LONGITUDINAL

DETALLE CONSTRUCTIVO

CASA LELOIR

ITUZAINGÓ / DISTRITO 3

AUTORES HAAK ARQUITECTURA / ARQUITECTOS MIGUEL GARCÍA ESCUDERO, AUGUSTO FINOCHIARO, GASTÓN CASTELLANOS COLABORADORA ARQUITECTA MARÍA LAURA ALBERO

FICHA TÉCNICA

UBICACIÓN PARQUE LELOIR, PARTIDO DE ITUZAINGÓ

SUPERFICIE CUBIERTA 290 M2

SEMICUBIERTA 75 M2

FECHA FINALIZACIÓN 2023

MEMORIA

El proyecto se implanta en Parque Leloir, Ituzaingó, zona oeste del Gran Buenos Aires, en un entorno natural caracterizado por su abundante arboleda y especies protegidas. Se trata de una vivienda unifamiliar, pensada para una pareja con hijos ya independientes, pero donde la dinámica familiar cobra vida los fines de semana, cuando la casa se convierte en el punto de reunión.

La propuesta se diseñó considerando el entorno, las visuales y su uso. El estar-comedor se ubica estratégicamente en el centro del terreno, logrando vistas abiertas tanto hacia el jardín del fondo como hacia un patio interno, lo que permite la entrada de luz natural y favorece la ventilación cruzada.

El acceso a la casa se resuelve mediante un camino que flota sobre la vegetación, generando un recorrido controlado y sereno que anticipa la integración del proyecto con su entorno natural. Dentro del diseño se incorporaron tres nuevos focos verdes con árboles, aportando carácter y funcionalidad: un Taxodium en el

patio interno, un gomero bajo la claraboya central en el corazón de la casa, y una magnolia junto a la pileta, pensada para generar sombra sobre el espejo de agua.

El estar-comedor, con una altura y media, aporta amplitud y se conecta visualmente con el resto de los espacios. A medio nivel por encima, se encuentran el estudio, los dormitorios y un solarium desde el cual es posible saltar directamente a la pileta, generando situaciones lúdicas y de recreación familiar. Por debajo de este medio nivel, se ubica un espacio escalonado tipo tribuna para TV, el quincho y la cocina, con salida a un patio más íntimo y contenido, donde se desarrolla una huerta. Se optó por materiales sobrios y nobles: hormigón visto, lajas y granitos oscuros, que aportan un carácter atemporal al conjunto. El resultado es una vivienda que mantiene un diálogo con su entorno, logrando que la arquitectura y el paisaje se integren con el sello del estudio, Sintética, Con un recorrido tanto en su ingreso como en su uso, donde la naturaleza sea partícipe y logre una espacialidad única.

PLANTA ACCESO
PLANTA
PLANTA DORMITORIOS
PLANTA TERRAZA
VISTA LATERAL ESTAR
VISTA LATERAL COCINA
VISTA CONTRAFRENTE
VISTA FRENTE

MECA

SAN ISIDRO / DISTRITO 4

AUTORES ATELIERM / ARQUITECTOS/A MATIAS MOSQUERA, CAMILA GIANICOLO Y MARCELO VITA COLABORADORES PEDRO GEA (DISEÑO ESTRUCTURAL) / AYERZA & SAMARÍA (PAISAJISMO) FOTOGRAFÍAS ATELIERM

MeCa es un experimento del habitar que gira sobre el eje de la nutrición. Así son, viven y respiran sus propietarios. El ciclo de la comida es central en la génesis del proyecto, y espacialmente así sucede. Ubicada en el centro, el corazón de la casa, se encuentra una gran cocina que se materializa como una mesada cardinal, sobre y alrededor de la cual suceden las actividades vitales. Es un punto de encuentro, un lugar en donde se cocina, se nutre y se comparte. Y a pesar de estar en la médula de la casa, está rodeada de luz, vegetación y comida. Al sur, un estanque de agua refresca en verano y la vincula con un sector de aromáticas. Al este, se desprende una huerta rica y variada, al alcance de la mano. Al norte, se consagra el eje integrado del living y el jardín. Resulta interesante que el corazón del hogar, si bien se encuentra en el centro geográfico, da la sensación de estar en el afuera. No hay límites entre interior y exterior, los grandes ventanales de piso a techo desaparecen tras muros de hormigón que soportan el volumen superior de los cuartos, como otra dimensión, privada, que sucede en la copa de los fresnos. El espacio exterior se encuentra colmado de especies cuidadosamente seleccionadas para complementar el ambiente, situación que se repite también en el techo de la casa, a modo de culminación. Una de las premisas para el jardín fue la de preservar los fresnos existentes quienes, según la mito-

FICHA TÉCNICA

UBICACIÓN SAN ISIDRO, PARTIDO DE SAN ISIDRO FECHA FINALIZACIÓN 2020

logía, son un nexo que permite fluir la energía con la tierra misma. Los fresnos tienen la capacidad de sobrevivir a lo largo de las décadas, lo que los vuelve un símbolo de lucha por la vida. En esta planta baja, las visuales son largas, y la conexión con el afuera es constante más allá de estar en la ciudad, en una zona residencial. Los planos a donde se miran y se conectan esta sutilmente pensados, y donde es necesario, se protege con llenos o con filtros que dejan pasar el aire y a luz, sin afectar las visuales. El resultado es una casa muy cerrada y muy abierta en simultáneo. Pensada desde el diseño bio ambiental, en donde el 100% de sus espacios están ventilados e iluminados naturalmente, con aleros que protegen del verano, pero permiten el sol de invierno, se cierra al sur, se abre al norte. El flujo de la ventilación y la luz son centrales en MeCa, y es allí donde la materialidad toma también un rol central. La casa está compuesta de una paleta de materiales nobles: un basamento de hormigón expuesto en planta baja y un volumen de madera carbonizada con la técnica japonesa Shou Sugi Ban. Su elección y disposición no es casual, sino que se buscó, por ejemplo, que el hormigón estructural permitiese la amplitud espacial tan ansiada desde el corazón de la casa. Mientras que la madera quemada, proporciona no solo aislación ignifuga, hidrófuga y aleja insectos, sino que es el perfecto marco natural para envolver las

visuales que hacen que el interior y el exterior de la casa sean uno. Dichos elementos proporcionan, en conjunto con el exterior, una luz potente pero serena en la planta inferior. La yuxtaposición entre lo oscuro del cielorraso y la iluminación natural del ambiente, genera una calma diáfana que se traduce en la experiencia del usuario, liberando tensiones y creando una sensación de bienestar general. En el interior privado de la planta alta, ya entre la copa de los árboles, se respira madera con tabiques revestidos en kiri que aportan más luz y calidez entre las habitaciones y contribuyen al estado de descanso. El remate de la casa se encuentra como un oasis urbano, un rooftop lleno de vegetación que se conecta con la copa de los fresnos que emergen desde el jardín, la sensación es única. Naturaleza pura, vistas 360º infinitas, conexión con el horizonte pero más fuerte con el cielo, de día y de noche, una exquisitez que se permitió la propia casa. MeCa es también una casa interactiva, no por estar plagada de pantallas y tecnología de punta, sino por lo que sucede en su exterior. Un mundo rico en biodiversidad en donde siempre hay algo sucediendo. Orugas transformándose en mariposas, ellas volando entre las flores, junto a insectos y abejas nutriéndose entre plantas. La huerta con sus cultivos de estación, el ciclo del agua que se mueve y recircula, de lluvia a riego, de pileta a estanque actuando como un bio filtro natural y viceversa, sin químicos, solo ciclos naturales que se retroalimentan. Con un espíritu moderno incorpora conceptos de Le Corbu, Kahn y otros maestros, permitiendo a la casa ser funcional y estética, pero con la potencialidad y contemporaneidad de experimentar desde lo constructivo y reinterpretar el habitar desde la alimentación y la conciencia de todo su ciclo. En este juego de tradición, deconstrucción y metamorfosis es donde radica la verdadera riqueza de MeCa.

PLANTA BAJA
PLANTA ALTA
PLANTA TECHOS
VISTA FRENTE
ESQUEMA SUSTENTABILIDAD

CASA BRICK

PILAR / DISTRITO 5

AUTORES ARQUITECTOS MARTÍN

LATTES Y ALEJO SALINAS

COLABORADOR INGENIERO JORGE PRIETO (CÁLCULO ESTRUCTURAL)

FICHA TÉCNICA

UBICACIÓN MAYLING C.C. / PARTIDO DE PILAR

SUPERFICIE CONSTRUIDA 350 M2

FECHA FINALIZACIÓN 2022

“Casa Brick”, ubicada en la localidad de Pilar, Buenos Aires, se implanta sobre un terreno de 1.100 metros cuadrados, abrazando la esquina con orientación noroeste. Su diseño, una elegante superposición de volúmenes puros, junto con su distintivo revestimiento en ladrillo común, desafía las convenciones de la arquitectura residencial clásica, infundiendo un aire moderno y singular. El ingreso a la casa se realiza a través de un acogedor patio verde, contenido por muros de ladrillo común calados, que sectorizan el acceso peatonal y lo separan del estacionamiento. Este patio verde no solo crea un ambiente acogedor y privado, sino que también se convierte en el preámbulo de la experiencia natural que ofrece el interior de la vivienda.

En la planta baja, la trama principal se teje alrededor de la interacción entre el amplio living/comedor, la cocina y la galería, espacios que dialogan y se complementan entre sí. Estos ambientes interiores, enriquecidos con patios verdes, no solo infunden frescura y vida, sino que también juegan hábilmente con luces y sombras gracias al diseño meticuloso de los muros de ladrillo, ofreciendo al mismo tiempo privacidad hacia el exterior. Respecto a la galería, se destaca como un espacio de gran versatilidad y disfrute. No solo proporciona un área para relajarse y deleitarse al aire libre, sino que también incorpora de manera fluida un sector de sauna seco y spa, integrados de manera armoniosa con el solarium y la piscina, ofreciendo así una experiencia de bienestar integral.

En planta alta, un rectángulo macizo se eleva, creando voladizos que definen tanto la fachada frontal como la trasera. Aquí, la suite principal y dos dormitorios se encuentran estratégicamente posicionados para maximizar las vistas panorámicas, fundiendo el interior con el paisaje circundante en una armonía sublime.

PLANTA BAJA
PLANTA ALTA

VISTA FRENTE

VISTA CONTRAFRENTE

CORTE AA
CORTE BB

CASA ORILLA

JUNÍN /DISTRITO 6

AUTORES/AS LEONE LORAY ARQUITECTOS / JUSTINA LEONE, GASTÓN LORAY, NADIA NAVARRETE, GUSTAVO CIANCIO, JULIANA VIRLA Y RUY NAREA

COLABORADORA JULIANA VIRLA (DISEÑO INTERIOR)

FOTOGRAFÍA ALEJANDRO PERAL Y LEONEL LORAY

FICHA TÉCNICA

UBICACIÓN JUNÍN. PARTIDO DE JUNÍN

SUPERFICIE CONSTRUIDA 530 M2 FECHA FINALIZACIÓN 2023

Orilla es una casa pensada para ser vivida entre los límites del interior y el exterior, con una propuesta en la que el entorno forma parte de la arquitectura y logra introducirse en el interior. Su nombre es la síntesis de su esencia.

Implantada en Junín, provincia de Buenos Aires, en un predio abierto constituido por espacios verdes y algunas construcciones preexistentes, la casa se rige por dos temas: potenciar las visuales y las relaciones espaciales internas y externas.

Desarrollada en una única planta en formato longitudinal, a través de dos bloques que se desafían y desplazan entre sí, la casa mantiene un punto de tensión particular donde se cruzan y diferencian las áreas privadas y públicas. Es allí donde los accesos principales de la casa se desarrollan y permiten una intersección de vías circulatorias claras para el recorrido de la misma. Orilla tiene dos vistas frontales, dado que se accede, se expande y se vive desde ambas fachadas longitudinales. Estas, constituidas por cubiertas inclinadas, fueron diseñadas con el objetivo de respetar el sitio y dialogar de la mejor forma con las construcciones adyacentes que marcaban un precedente y estilo claro. Para su materialización, se añadió el factor de la naturaleza al formar la paleta de colores: una cáscara negra, envuelta por una serie de parasoles de madera y muros de piedra. El estudio del asoleamiento y la ubicación en el sitio fueron claves para el planteo de partido de la casa. Se deseaba que se viviera

de manera 360 grados, y que durante todas las estaciones del año que Buenos Aires ofrece, pudiera ser disfrutada desde todos los sectores. Es allí donde la utilización de paneles móviles y patios internos constituyeron un factor clave para generar juegos de luces y sombras, de espacios cerrados y abiertos, sumado a la utilización de gruesos muros de piedra para protegerla de los vientos. El programa está compuesto por un área pública principal, donde el living, comedor y cocina están acompañados por enormes aventanamientos que se desplazan y esconden dentro de muros que los contienen, logrando que ese espacio, rápidamente, se transforme en un semicubierto. En el sector sur, el más desfavorecido del sitio, se plantearon las áreas de servicio y accesos vehiculares. En cuanto al área privada, está compuesta por dos dormitorios amplios con vestidor y baño en suite, y culmina con el dormitorio principal donde el espacio de vestidor y baño son comunes para la pareja, pero no así el espacio de cama, dado que se plantearon dos dormitorios en espejo independientes. El agua que se aproxima al vagón central de la casa en ambos lados permite generar una sensación de libertad y amplitud con el entorno, lo que afirma aún más que es una casa que vive tanto del interior hacia el exterior como desde el exterior hacia el interior. Su transparencia controlada, combinada con el reflejo de las piscinas, genera sin duda esa sensación de infinito, como si uno estuviera parado en una orilla.

PLANTA
VISTA FRENTE
VISTA LATERAL

QUINCHO REC

NUEVE DE JULIO / DISTRITO 7

AUTORA ARQUITECTA VIVIANA PÉREZ PIRONIO / ESTUDIO AVPP

COLABORADORA MARÍA LUZ VÉLEZ

MEMORIA

PREXISTENCIA

En un amplio lote de un entorno suburbano y de tejido abierto donde ya existía una vivienda unifamiliar con una impronta establecida de líneas rectas y con carácter, es donde desarrollamos esta encomienda: un quincho para compartir, disfrutar y recibir. Como desafío proyectual, nos preguntamos que deseábamos para este espacio; no era menor incorporarse como un satélite a una vivienda con una impronta dominante en lenguaje, dimensión e implantación dentro del lote, extensamente verde y rodeado de árboles. El quincho se define en el espacio entre el plano perpendicular y menor de la vivienda, y paralelo al eje medianero suroeste del terreno, relacionando de forma directa y pragmática las áreas de servicios existentes y las de la encomienda. El volumen rectangular del quincho dibuja junto al volumen de la vivienda una “L” a vuelo de gaviota, es un juego entre ambos donde apenas se acercan y articulan en ese gesto, el acceso principal desde el exterior. Un fuelle entre dos planos verticales y una cinta que conduce a las vistas sobre el jardín y la piscina, y al acceso del quincho por la fachada principal donde todos los ambientes se abren a las inmejorables vistas del noroeste.

EL RECTÁNGULO

Dos planos horizontales de similares dimensiones alojan no solo los espacios interiores programáticos, sino también una serie de espacios ambiguos con límites flexibles que permiten su integración. Un gran espacio continúo pautado por amplios ventanales hacia el jardín, un hogar y una isla con el área de parrilla que generan las diferentes

FICHA TÉCNICA

UBICACIÓN NUEVE DE JULIO, PARTIDO DE NUEVE DE JULIO SUPERFICIE CUBIERTA 176 M2

SEMICUBIERTA 9.40 M2

FECHA FINALIZACIÓN 2023

situaciones y calidades espaciales, variando según las necesidades y definiendo los espacios domésticos, sus vínculos y privacidades. Una circulación lineal y periférica articulan la planta, incorpora los diferentes ambientes generando la habitabilidad de usos múltiples y el recorrido hacia y desde los espacios sociales y los privados. La extensión semicubierta en el dormitorio y en el acceso principal le aportan al quincho calidad medioambiental generada solo por recursos de diseño y que no requieren uso energético para su funcionamiento. El espacio entre la vivienda y el quincho hacia el jardín y la piscina, fácilmente accesible a través de un plano de piso combinando. Planos levemente rampados, fajas y escalones, complementan esta comunión entre volúmenes; la destacan, la observa cenitalmente a través de su apertura al jardín sosteniendo la autonomía de cada uno y aportando un espacio abstracto ajeno a la naturaleza, como una plaza propia que se expone como un área de disfrute intermedia. Un estar y esparcimiento como protagonista, articula los usos del gran ambiente no solo con definiciones sustanciales sino también con la flexibilidad necesaria para alojar las diferentes necesidades de la familia y los amigos. Espacio central en función del “hogar” que vincula a modo de recorrido visual con la galería, el dormitorio y el baño hacia el noreste y hacia el sureste donde se alojan los espacios de guardado y apoyo de servicios.

El plano de piso se sitúa por sobre el nivel del terreno y la cubierta inclinada se esconde dentro del volumen abarcando la totalidad de la superficie; el quincho se desarrolla entonces entre dos capas horizontales. Una perforación longitudinal en el volumen vincula a través de planos translúcidos que desdibujan los límites entre el interior y la vegetación exterior. De modo que se podría invertir el relato y contar al quincho REC desde el vacío y los extensos espacios verdes.

CORTE LONGITUDINAL
CORTE TRANSVERSAL

LA PIRCA

TANDIL / DISTRITO 8

AUTORAS ARQUITECTAS MERCEDES FROLIK Y MALENA BIAUS

FICHA TÉCNICA

UBICACIÓN TANDIL, PARTIDO DE TANDIL

SUPERFICIE CONSTRUIDA 206 M2 FECHA FINALIZACIÓN 2023

MEMORIA

El proyecto se ubica en la región serrana de Tandil, provincia de Buenos Aires. El contexto es marcado por intensas visuales y una topografía accidentada. La Pirca reposa en medio de este paisaje que ofrece una imponente vista de la ciudad hacia un lado y de las sierras hacia el otro.

La decisión de un único techo como elemento predominante, unifica la volumetría, utilizando la cumbrera como directriz del polígono que conforma la cubierta a dos aguas. Así, se percibe como una pieza única, un único contenedor donde el área social se enriquece del vacío interior con diferentes espacialidades, alturas, visuales intencionadas.

Dos volúmenes de planta rectangular, cuyas funciones programáticas se distinguen entre el área social y el privado, se intersectan generando el acceso y en línea con este, la galería exterior descubierta. El diálogo de los dos rectángulos se percibe en el trazado de la planta. Estos rotan sobre un mismo vértice, formando entre sí un ángulo obtuso, el cual responde a la topografía existente y a la

orientación deseada. Uno de estos rectángulos se modifica para adecuarse a la dirección del otro y así ambas superficies quedan comunicadas y atravesadas a la vez, por el acceso-hall-galería. Dos simples operaciones de sustracción en la volumetría, enfatizan el semicubierto de acceso y el de la galería, acentuando la transición entre estos espacios y generando una relación visual y espacial entre el interior y el exterior. El nivel del suelo interior acompaña el desnivel del terreno. Esto permite separar el área privada de dormitorios (en el nivel superior) del área social (en el nivel inferior). El entrepiso actúa como un híbrido entre lo social y lo privado. Se crea así una secuencia de espacios diferentes conectados a un espacio continuo. La obra se concibe como una volumetría simple y consolidada con operaciones de sustracción en el exterior que, además de generar aberturas intencionadas y en relación al entorno, dan lugar a muros de ancho útil, que albergan el mobiliario permanente y generan aleros para la protección solar. Así la obra resulta maciza y arraigada al sitio, como una gran piedra monolítica.

IMPLANTACIÓN

PLANTA BAJA
PLANTA ALTA
VISTA OESTE
VISTA NORTE
VISTA SUR
VISTA ESTE
CORTE
CORTE
DESPIECE

CASA MORO

MAR DEL PLATA / DISTRITO 9

AUTORES ARQUITECTOS GUILLERMO ELGART Y JUAN ALBARENQUE COLABORADORES ANDRÉS LÓPEZ, JUAN ALBERTO ICARDE, DELFINA DÍAZ Y FIORELA COLAUTTI

FICHA TÉCNICA

UBICACIÓN BARRANCAS DE SAN BENITO, CHAPADMALAL, PARTIDO DE GRAL. PUEYRREDÓN

MEMORIA

CONTEXTO

Ante todo el respeto por la naturaleza... ella estaba ahí antes de nuestra llegada… sentir el bosque, los pájaros, ese clima de vivir entre los árboles, el sentarte bajo su sombra, escuchar las hojas rozarse en los días de viento.

Las miradas lejanas hacia las ondulaciones del terreno. Calles de tierra y un gran parque-pulmón hacia el centro de manzana.

EL CLIENTE

Si algo caracteriza a los Moro es que saben disfrutar. La casa es una excusa, es un lugar de sentir, compartir, reír, relajarse, vivir. Un lugar de introspección y de fiesta grupal. La casa la disfruta toda la gran familia, la llaman la gran Morada.

El deseo casi excluyente de Cristina y Germán, es que el estar adentro se sienta como estar afuera. Pero con una condición importante: sentirse protegido de la mirada vecina. Como un micro mundo natural. Una construcción que los aísle y los lleve al medio del bosque.

Desde lo funcional, una vivienda única, pero, que pueda dividirse y ser dos totalmente autónomas.

Y… una construcción que no destruya, que se amolde a las bondades del lugar, a sus ondulaciones y sus grandes árboles.

PROGRAMA

El programa solicitado fue simple y claro. Dos paquetes diferenciados y unidos:

1. Estar-comedor-cocina y dormitorio.

2. Pequeña casa-quincho-estudio con su propio servicio e independiente del sector principal.

Los anteriores con accesos independientes y conexión clara entre ellas.

EL TERRENO

El terreno está ubicado en el barrio privado Barrancas de San Benito, en Chapadmalal, cerca de la playa y al sur de la ciudad de Mar del Plata. El barrio es agreste, con una excelente vegetación. Un paisaje ondulado y barrancas con vistas a las chacras vecinas. El terreno con el norte al frente, un gran parque arbolado al centro de manzana. E imponentes, un grupo de vigilantes y añejas Lambercianas.

DESARROLLO

MATERIA

El vacío ya existía. No encontramos la nada. Desde un concepto físico el vacío existía, un espacio medible y observable. Ese vacío estaba delimitado por la ondulación del terreno y el conjunto de árboles que delimitan territorio. Es un vacío que permite que desde la calle se llegue a mirar el pulmón de manzana. Nuestro objetivo fue no tocarlo, amoldarse a él y disfrutarlo. El comienzo de nuestro trabajo fue realizar un relevamiento en 3D de la totalidad de los árboles para poder modelar en nuestros ordenadores y en nuestras maquetas analógicas y así estudiar los espacios que podíamos ocupar. Primeramente, dispusimos un manto de hormigón ondulado, que se mimetiza con el terreno y se cubre de vegetación. Bajo este, está la mayor parte del programa. Con esta operación, la masa desaparece y no genera impacto en el vacío existente, ni en el espacio urbano.

Luego, completando el conjunto, flotando en el vacío, ubicamos una caja reflejante. Una figura que juega y multiplica lo natural. La disposición de las dos piezas, manto verde y caja reflejante enmarcan el vacío y permiten mantener ese juego de fugas espaciales desde la calle al pulmón verde y crean un espacio habitable, un paseo espacial con tensiones a medida que se recorre hasta llegar

al acceso medio sobre el manto.

La forma de trabajo es contrapuesta a la construcción tradicional, donde lo que se modela es un sólido que ocupa el espacio. Aquí, se esculpe con los llenos, ellos modelan el vacío que es la resultante de la posición de ellos. Todas las miradas, desde sus diferentes posiciones tanto en planta como en corte están dirigidas al vacío. Así se dispusieron infinidad de puntos de observación para poder disfrutar de algo que ya existía y se percibía solo desde el 0.00. Este vacío no es ausencia en absoluto, este es la materia de producción de sentidos. Es vacío-materia, es vacío que está cargado de información.

SISTEMA

Bajo el manto de hormigón se creó una planta libre y un hueco en él inventa un patio central. Patio que se transforma en el corazón de la casa, protegido de las miradas desde la calle. Además del patio, bajo el manto se dispuso un volumen de madera ameboideo, que, estratégicamente ubicado, y por tensión con los bordes, delimita, organiza y dimensiona todas las funciones. Separa lo público de lo privado, lo servido de lo sirviente.

Sobre el manto, una terraza jardín que protege a la planta inferior y recupera la superficie utilizada y la transforma en espacio verde. Este jardín es un paseo hasta llegar al acceso; un mínimo hall transparente que permite el acceso bajo el manto o a la caja flotante. Un espacio de conexión.

La caja flotante es casi una segunda casa, una casa mínima separada de la anterior. Una casa de invitados con un estar-comedor, dormitorio y un baño y pequeña cocina. Desde la caja se disfruta una mirada muy distinta a la de bajo el manto. Aquí estamos en el aire, en las copas de los árboles. Esta misma y marcada separación de programas nos aporta a su vez una marcada diferenciación de sensaciones en cada uno de sus espacios. Se está en uno y se siente de una manera casi física la transición al otro.

Los tres espacios están diferenciados espacial y sensorialmente, pero, un elemento los cose y organiza. Una escalera-biblioteca puntual que los enhebra y arma la circulación vertical. Entonces, a medida que uno se eleva en el espacio, se pasa de la sensación de abajo del manto al espacio vacío y luego a dentro de la caja. Un paseo de sensaciones contrapuestas y siempre recorriendo el vacío modelado por los árboles y las partes de la vivienda.

Estrategias para multiplicar la materia existente y hacerla propia. Desde lo constructivo se buscó la mayor simplicidad de elementos para potenciar el sistema espacial. Hormigón-vegetación para el manto, la caja negra reflejante y un hall totalmente vidriado en la planta media que unifica el interior de las dos partes. Uno de los puntos más importantes fue la construcción sustentable y bioclimática:

Espacio bioclimático natural. Aprovechamos la cúpula que ya estaba dada por los árboles existentes. Esta cúpula nos protege y nos permite tener superficies vidriadas que no necesitan cortinados ni filtros. Los arboles nos dan ese espacio bioclimático natural, que se regula solo según las estaciones del año.

Fachada ventilada de la caja negra. Se utilizó un revestimiento vidriado que deja una cámara de aire ventilada con la construcción. Así se eliminaron los puentes térmicos y los problemas de condensación. Este sistema promueve el movimiento convectivo del aire que entra en la cámara entre el muro y el revestimiento exterior.

Terraza verde. Punto fundamental del proyecto por su diversidad de funciones. a) Su espesor y humedad, mejora el aislamiento térmico, lo que deriva en un menor consumo energético de la vivienda tanto en los meses fríos como cálidos. b) Su capacidad de retención de agua de lluvia permite el almacenamiento de la misma y por lo tanto se evitan las inundaciones repentinas en el barrio. c) El techo no es un lugar muerto, sino que aporta al barrio de un gran ámbito para la biodiversidad y recupera el suelo utilizado. d) Por su espesor actúa de barrera acústica altamente eficiente.

Tanques de almacenamiento de agua de lluvia. Dispusimos de 4 tanques de 1500 lts. que son reservorio del agua captada por la terraza jardín y que luego vuelve a la naturaleza en tiempo regulado evitando la utilización de agua potable de red. Estanque bioecológico. En el centro de la casa colocamos un estanque que utiliza el agua de lluvia, este sirve de almacenamiento y además es un espacio de plantas acuáticas, peces y bebedero de los pájaros del barrio. Además al ser un lugar de reproducción de peces, es una fuente de alimento y bebedero para gatos y otros pequeños animales del barrio. Colectores planos para calentamiento de agua de la pileta. Sobre la caja, en toda su superficie, se extendieron colectores de circulación de mangueras que mediante los rayos solares se calientan y circulan hacia la pileta. Estos no calientan pero atemperan. Por otro lado la pileta se dividió en dos sectores, uno tibio el cual desborda a otro que se encuentra a temperatura natural.

INVESTIGACIÓN

Parafraseando a Jorge Oteiza: “La obra como desocupación activa del espacio por fusión de unidades formales livianas. Espacio es lugar, sitio ocupado o sin ocupar. Pero este sitio sin ocupar no es el vacío. El vacío se obtiene, es el resultado de una ausencia formal, el vacío se hace, es un resultado, no existe a priori”

La volumetría existe no para sí misma; existe para definir el vacío, crea un espacio desocupado en el que desaparece la masa.-

Se plantea la casa en contraposición a la idea de que la casa es el sólido habitable. Un sólido que se entromete y ocupa el espacio. Aquí, las figuras, la masa, se sitúan de tal forma que crean y modelan el vacío. El vacío no es ausencia, sino que es lo que le da sentido a la disposición de las partes. Y esas partes logran vaciar un/os huecos dentro del espacio natural. Una desocupación activa del espacio por medio de la fusión de unidades formales que trabajan en tensión. Los volúmenes modelan el vacío, le dan forma, lo estructuran, le dan escala y aportan a delimitar ese espacio que ya existía y estaba conformado por las señoras Lambercianas. Ya son una constante, en nuestro estudio, algunos puntos en que nos apoyamos para investigar y enriquecernos.

• Vincularse con lo natural es el comienzo. Crear un espacio propio, protegido, privado, que se defiende de la continuidad de visuales de los barrios privados. Un espacio corazón, que es casi interior.

• Trabajar un elemento que atrapa el espacio y, que dentro y bajo él, nos deje mover libremente. Estar, circular. Adentro, afuera. La línea que define el interior y el exterior, el cerramiento vidriado, se mueve libremente dentro o bajo él.

• Recorridos y relaciones espaciales. Fugas constantes y en todas direcciones a medida que se pasea bajo o dentro de una gran masa. Investigar la multiplicidad de situaciones espaciales fue la premisa de este trabajo. Investigar es la premisa.

PLANTA BAJA
PLANTA CERO
PLANTA ALTA
ESQUEMAS SUSTENTABILIDAD

CASA EN BOSQUE ALTO BAHÍA BLANCA | DISTRITO 10

AUTOR ARQUITECTO PEDRO MARTORANA

COLABORADORES MARÍA DE LA PAZ CANTARELLI (PAISAJISMO)

Y ENRIQUE GIL (INGENIERÍA)

FOTOGRAFÍAS NICOLÁS HERRERO

MEMORIA

Esta casa, ubicada en un exclusivo barrio cerrado en las afueras de Bahía Blanca, se encuentra en un terreno de 760 metros cuadrados y está diseñada para integrarse plenamente con su entorno. La planta baja se organiza con una distribución abierta que se orienta hacia el jardín posterior, mientras que su fachada principal se mantiene más privada. Los espacios interiores, como el livingcomedor y la cocina, fluyen de manera natural hacia la galería, la piscina y el jardín, creando una conexión directa con el exterior. Un detalle distintivo es la escalera de madera con peldaños flotantes, que, además de vincular ambas plantas, actúa como un elemento escultórico que filtra las vistas desde el exterior, garantizando privacidad. En esta misma planta se incluye un estudio, junto con accesos diseñados tanto para vehículos como para peatones. En el nivel superior, concebido como una estructura independiente en forma de “caja”, se ubican las áreas privadas. Al frente se

FICHA TÉCNICA UBICACIÓN BAHIA BLANCA, PARTIDO DE BAHÍA BLANCA SUPERFICIE CONSTRUIDA 430 M2 FECHA FINALIZACIÓN 2024

encuentran los dormitorios infantiles, mientras que la suite principal, orientada hacia el fondo, dispone de una terraza privada con vistas privilegiadas al jardín.

La paleta de materiales seleccionados combina ladrillos vistos tipo tejuelas, hormigón, aluminio, vidrio, mármol y porcelanato en tonos oscuros y neutros, contrastados con la calidez de la madera. Esta selección busca crear un equilibrio entre modernidad y confort, aportando un aire sofisticado a la vivienda.

Cada decisión tomada, desde la disposición de los espacios hasta la elección de los materiales, se centró en crear un hogar funcional, estéticamente atractivo y atemporal.

La orientación y el uso eficiente de la luz natural son aspectos clave en el diseño. La incorporación de aleros y celosías protege contra la incidencia solar en verano, mientras que las aberturas con doble vidrio hermético y ruptura de puente térmico refuerzan el aislamiento térmico y acústico, destacando el enfoque sustentable del proyecto.

PLANTA BAJA
PLANTA ALTA
VISTA FRENTE
VISTA CONTRAFRENTE
VISTA LATERAL NOROESTE
VISTA LATERAL SURESTE

CORTE TRANSVERSAL

CORTE LONGITUDINAL

CASA CURUTCHET

Tres miradas sobre la Casa. Una, la institucional, a cargo del arquitecto Ramón Rojo a través de una entrevista. La segunda, que repasa el vínculo histórico entre la Curutchet y el CAPBA, desarrollada por el arquitecto Julio Santana. Finalmente, una mirada desde el mundo de la imagen, a partir de la aplicación a la obra lecorbusiana de un novedoso sistema de representación en 3D.

CASA CURUTCHET: UN HECHO CULTURAL

ENTREVISTA

AL ARQUITECTO RAMÓN ROJO /

PRESIDENTE CAPBA

CONSEJO EDITORIAL

Varios hitos marcaron la gestión del CAPBA 2024. Uno de ellos fue la decisión -respaldada de modo casi unánime por una asamblea provincial- de gestionar la compra de la Casa Curutchet, esa vecina ilustre de nuestra Sede Provincial, tan cara a los sentimientos de las y los colegas. Y, seguramente, también valorada por los profesionales de todo el país y la sociedad en general. Finalmente, el lunes 19 de mayo último, la Mesa Ejecutiva del Consejo Superior formalizó la adquisición de la Casa. El arquitecto Ramón Rojo, presidente del Colegio y uno de los artífices de la gestión, relata en primera persona y en las próximas líneas (NdR: la entrevista fue realizada con anterioridad a la adquisición definitiva de la Casa), los pormenores y avances para que la única obra del arquitecto Le Corbusier en Latinoamérica, Patrimonio de la Humanidad, sea hoy también patrimonio colectivo de los y las arquitectos/as bonaerenses.

Revista CAPBA / Con respecto a la decisión de la compra de la Casa Curutchet, si nos remitimos a los números duros de la elección, la asamblea fue rotunda en su respaldo. Una decisión, muy clara, muy clara. ¿Por qué creés que la votación ha tenido esa contundencia?

Ramón Rojo/ Hay dos temas. Hace pocos días, una semana, hicimos una asamblea provincial, que en una hora terminó con un consenso absolutamente general, con un clima de distensión y hasta te diría de afecto, que no es casual. Esto es el fruto de haber trabajado en conjunto, de escuchar lo que el otro te plantea. Entonces, si el Consejo Superior en pleno más nueve Distritos votan a favor de

la compra de la Casa, es que hay un consenso político muy amplio sobre un tema; un tema de estado para los arquitectos, diría. A ver, ¿cómo se origina esto? Cuando vamos a renovar el contrato de alquiler, que lleva treinta y pico de años y por el cual estamos pagando veinte y pico de mil dólares por año, nos reunimos con los abogados de los Curutchet. En ese momento, fiel a mi estilo, cometo un acto irreverente, que no tenía nada que ver con la firma del contrato de locación, y les digo: “les quiero hacer una pregunta, tengo voluntad de compra, pero quisiera saber si los propietarios tienen voluntad de venta”. Porque hasta este momento, solo se escuchaba: “¡no la quiero vender, no la quiero vender!”. En su momento, la provincia inició un proceso de expropiación de la Casa que nunca se concretó por falta de recursos para pagarla. Entonces, pasa menos de una semana, me llaman los abogados por teléfono y me dicen: “los propietarios acceden a venderla en dos millones y medio de dólares”. Contesté que no se podía pagar esa cifra, bajaron a dos millones trescientos y terminamos negociando en dos millones de dólares. Que puede parecer un dislate, puede parecer muchísimo dinero, pero la verdad es que, respecto del bien que es, a nivel internacional, no es una cifra desmedida. Esa es la historia. Se origina en un acto irreverente que no estaba planteado y la respuesta fue afirmativa. Yo estaba en un almuerzo en Distrito 4, me llaman los abogados y me dicen que los propietarios la quieren vender. Ahí empezamos a discutir el monto, nos juntamos con Claudio [Videla] y llegamos a la cifra de dos palos verdes, que no teníamos.

Entre recursos propios del Consejo Superior y fondos que se podían usar de otras partidas, disponíamos de un millón seiscientos

mil dólares. Cuando hacemos la reunión de presidentes y explico todo esto, me dicen que solo se deben usar los fondos propios del Consejo Superior. Esa fue la condición que se pidió y yo la acepté. Entonces, salimos a pedir plata a la Caja, por la que tengo que pagar un 4% de interés anual en dólares, Pero, por la plata que está en el Fondo Compensador, ellos abonan el 0,14% anual. O sea, le pago a la CAAITBA el 4% y el Fondo percibe el 0,14%. Yo preferiría usar esos recursos y pagarle al Fondo el 4%. No sé si queda claro. Después vienen todas las peripecias de la tasación de la Curutchet, que poníamos como garantía del préstamo: un ingeniero la tasa en trescientos mil dólares, no estoy exagerando. Por otro lado, el Tribunal de Tasación de la Nación la tasa por metro cuadrado. Entonces yo los encaro y les digo: “¿usted tasa un Picasso por gramos de pintura, por tantos pies de madera del bastidor y por tantos metros de tela?” Me contestaron que estaban obligados por su reglamento a hacerlo de esa manera, y la tasaron en quinientos mil dólares. No servía ese monto. Entonces, sustituimos esa hipoteca por la sede del Colegio, que tiene tres tasaciones: un millón cuatrocientos, un millón quinientos, un millón trescientos y pico. En definitiva, me acaban de informar que la CAAITBA nos otorga un millón ciento cincuenta mil dólares de crédito. Que no es gratis, es con una tasa del 4%, a pagar en forma semestral durante diez años. La primera cuota se descuenta con la hipoteca. Con ese monto y lo que tiene el Consejo Superior, hoy falta un poquito, que de alguna manera lo resolveremos. Todavía hay un problema con los propietarios, que estoy tratando de manejar. La Casa está a nombre de una sociedad anónima, con lo cual tienen que pagar el impuesto a las ganancias sobre el mon-

to que cobran. Entonces, están haciendo la desafectación del bien de la sociedad a nombre de cada uno de los propietarios, con lo que el impuesto quedaría, de manera más conveniente, en el universo individual y personal. Estamos en diciembre, teóricamente la semana que viene estaría firmando el boleto de compraventa, o la primera semana de enero. Porque es un año fiscal distinto. Todo esto es una alquimia. Uno tiene que ir resolviendo los problemas con las curitas, con las voluntades, con las picardías que te pueden hacer otras profesiones para no darte el préstamo y complicarte la vida, o extorsionarte para que la Caja de Previsión nueva tenga una tasa mucho más alta, cosa con la que no estoy de acuerdo; o con los propietarios, que tienen un cierto nivel de exigencias. Creo que nadie se da cuenta que no solo se compra un bien inmueble, se compra un bien inmaterial, que es el nombre “Casa Curutchet”. ¿Cuánto vale ese nombre? Hubo que contratar un estudio especialista en marcas y patentes que nos explicó que la cesión tenía que estar firmada, porque se está haciendo uso del nombre de otra persona, como parte de un merchandising. A modo de ejemplo: si vendo una tacita con la imagen de la Casa no puedo poner “Casa Curutchet”, a menos que haya un acuerdo firmado. O sea, se compra un bien material y un bien inmaterial. Andá a explicárselo a un ingeniero que tasó esto en trecientos mil dólares por metro cuadrado de superficie cubierta, como si fuera un departamento de cuatro ambientes. Hay que tener paciencia y, además, discutir con algunas personas que ven la vida a través de un Excel. Me decían que con esa plata se podrían haber pagado cien años de alquiler. Sí, en tanto y en cuanto el propietario me quiera renovar el contrato de alquiler,

o encuentre otro comprador. Viene un jeque árabe que colecciona patrimonios de la humanidad o un empresario argentino muy poderoso, compra la Casa y terminas vendiendo una marca de perfumes o una línea de ropa. No, eso no: la Curutchet es una pieza cultural. Es un tema de gran importancia, que trasciende al CAPBA. Todos están interesados en saber -yo estoy en FADEA- cuál fue el procedimiento para comprar un patrimonio de la humanidad. Entonces, para la adquisición, no se afectan los beneficios que otorga el CAPBA como institución. Espero que para abril del año que viene [2025] se esté firmando la escritura. Y vuelvo a insistir, la Casa no solo es para el CAPBA, no solo para los arquitectos de la Provincia de Buenos Aires, no solo para los platenses que la toman como un elemento casi propio, -y es lógico entenderlo así-, sino para los arquitectos del país y para la sociedad toda.

RC/ ¿Hay ya un plan para la Casa como patrimonio de la humanidad? ¿Se continuará como hasta ahora o se van a incrementar los servicios que brinda? Por lo que has comentado, es de suponer, que se pondrá en práctica algún tipo de programa para el manejo de su explotación comercial…

RR / A ver, lo que no se va a hacer, y esto sí que quede claro, es comprar la Casa para privatizarla y para que otro haga un negocio. De ninguna manera. Se compra para los arquitectos. Hay también un aspecto cultural, que mal o bien se viene realizando, y un aspecto comercial con el cual no estoy en desacuerdo, que puede coexistir. Es una línea de acción para generar recursos y poder pagar las cuotas del préstamo. O bien, el mantenimiento de la casa. Más que nada, devolver rápidamente el préstamo a la CAAITBA y, entonces, quitar obligaciones de pago a gestiones futuras. Todo eso es una patriada personal, porque fui el hereje que en primera persona planteó el tema. Yo debo agradecer a la Mesa que, en su mayoría, me acompañó en esto. La Secretaria tenía reparos, lo cual es respetable, pero cuando llegó el momento de la verdad acompañó con su voto.

Nosotros tenemos una mirada sobre este tema, que es de estado. Algunos tienen una mirada más pobre, más de un Excel. Por ejemplo, hay Distritos que han dicho que voy a desfinanciar a la Caja pidiéndole este préstamo. El patrimonio de la CAAITBA son unos trecientos ochenta millones de dólares, nosotros le estamos pidiendo uno. Vamos a ser claros, no desfinancio a la Caja con esto. Es más, la mayoría de ese Fondo lo ponemos nosotros, somos los principales accionistas. De todas maneras, independientemente de eso, tuvimos un respaldo muy generoso de las otras profesiones, pero también las mezquindades propias de la política, tratando de lograr otros beneficios que tienen que ver con mayores aportes de los afiliados a la Caja: en vez del diez, que pase al dieciocho, ese tipo de cosas. Pero esto se soluciona.

RC/ ¿Ya está acordado el préstamo?

RR/ Hoy me acaban de informar que la CAAITBA nos banca con el 80% del promedio de las tres tasaciones: un millón ciento cincuenta mil dólares. A eso hay que sumarle la plata que tenemos nosotros, que en su momento eran ochocientos mil dólares y hoy ya está llegando a novecientos cincuenta mil. El desembolso por la Casa está cubierto y faltarán algunos gastos Calculo que el valor, con gastos, con estudio de títulos, con sellados, con pago de tasaciones, va a estar en alrededor de dos millones trescientos mil dólares.

RC/ Es lo que se aprobó en la asamblea, ¿no?

RR/ Sí, lo aprobó. Pero no vaya a ser que cuando se haga la cuenta final, no se necesite pedir un millón cien mil dólares sino solo un millón. ¿Por qué endeudar al que viene después de esta gestión por un monto mayor al realmente necesario, para comprar un bien que es patrimonio de la humanidad?

RC/ Cualquier arquitecto/a extranjero que viene a la Argentina, quiere visitar la Casa…

RR/ Sí, claro, lo único que digo es que este es un tema social, que es para toda la sociedad argentina, para los bonaerenses, fundamentalmente. La FADEA tiene un especial interés en este tema y nosotros vamos a concretarlo, y no como un legado sino como un compromiso con nuestra matrícula. Después, está lo de siempre. Algunos dicen: “compran la Casa, pero yo no tengo trabajo”. Sí, pero eso pasa por otro eje de discusión, que es político, el de la producción del trabajo dentro de una sociedad que está dejando de hacerlo hoy por hoy, a partir de las políticas del gobierno nacional. Yo discrepo absolutamente con las políticas del gobierno nacional, pero hay gente que me dice que está todo perfecto. Me enoja este tema, pero lo que planteo es otra cosa, muy simple: hay que alzar la voz, pero alzar la voz no es un grito histérico, no es golpear una cacerola porque me congelaron el plazo fijo o me caucionaron las cuentas corrientes. Alzar la voz es hacer hechos concretos que van en contra de la cultura financiera de Excel, que hoy se está viviendo en la sociedad, donde los números no son personas. A mí me parece que la Curutchet forma parte de la cultura. Mi proyecto personal es construir un anfiteatro frente a la Curutchet. De hecho, la Fundación Clorindo Testa me ofreció donarme el proyecto y sé que Julio Alak, intendente de La Plata, lo ve con buenos ojos. Hay que conseguir los recursos para hacerlo. ¿Por qué quiero hacer el anfiteatro? Porque sueño con el Boulevard Le Corbusier, hecho con adoquines, con dársenas para que los frentistas puedan estacionar el coche en su casa. Y tener un anfiteatro al frente, para que el Instituto Cultural de la Provincia mande los viernes flautas y chelos para interpretar una obra musical. Entonces, resulta que alguien que está el viernes volviendo de su laburo, dice: “bueno, voy a ver un poquito de cultura, me siento a tomar unos mates en el anfiteatro frente al Polo Cultural de la Curutchet”. Y ahí deja de ser la Casa. Esto es lo que yo llamo alzar la voz: son los hechos concretos.

RC/ La asamblea que autorizó la compra de la Casa, ¿fue quizás un punto de inflexión en la historia del CAPBA?

RR/ Sí, claro. Primero, porque la votación terminó 121 a 21, con todo un Distrito cuyo presidente extorsionó a sus vocales para que

voten negativamente cuando sé que varios de ellos se negaban a hacerlo, porque, obviamente, a nivel personal quedaban como los tipos que habían votado en contra. Que quede claro, los Distritos teóricamente opositores votaron a favor. En las elecciones del Colegio de hace dos años, la lista que encabezo ganó por el 70% de los votos en toda la Provincia. Pero si en una asamblea, nuestra conducción gana prácticamente todos contra uno, ese no es el 70%, es el 80% o el 90%. Pero no es mágico, es producto de haber escuchado lo que el otro te propone, haber planteado una apertura, un diálogo, una gestión. En esto es lo que hay trabajar, sin necesidad de criticar a los que te precedieron, porque eso es fácil.

Cuando hablo de Polo Cultural, no se trata de un hecho puntual, de la compra de una casa, de si un intendente de La Plata quiere encarar el patrimonio cultural, si está a pocos metros del eje histórico fundacional de La Plata. No dio el tiempo para comprar la casa de Andrés Kalnay, que está al lado de la Curutchet. Será objeto de otra gestión, de otra conducción y de otro presidente.

RC/ La Casa Curutchet, claramente, es un símbolo de la Modernidad. Una de las cosas que se escuchaban como crítica previa a la compra es que, en realidad, representa una mirada de la arquitectura enfocada solo en la Modernidad…

RR/ Cuando el Colegio discutía la compra de la Casa también se hacía un Congreso de Bioconstrucción, que era una mirada opuesta a la concepción de la Curutchet como obra. Y todo sucedía en el mismo Colegio. Se confunden las cosas, porque se apunta a un hecho puntual, cuando en realidad es parte de una política general, absolutamente. Está muy mal planteada la pregunta, el que la plantea lo hace desde esa miopía o ceguera intelectual, del que no ve. Solo ve el hecho arquitectónico y ve una cosa como un libro. Yo veo la Curutchet como un componente de la cultura. No es menor ver a la Casa como un mero objeto arquitectónico: es propio de un intelectualoide de facultad. Yo la veo como un componente de la cultura: a la Curutchet la quiero desmitificar, ponerle exposiciones de pintura, de escultura. En este momento está la

exposición de Clorindo, pero también quiero construir el anfiteatro, que es una obra muy simple de hacer, con una plazoleta enfrente. Hago un anfiteatro y acuerdo con el Instituto Cultural -que tiene un convenio con el CAPBA-, que en los días que se pueda, haya cultura en la calle para las personas que habitan este mundo, no solo para los platenses. El que viene caminando, se para por ahí y se encuentra con un ballet, con un chelo, con un piano. Creo que es un lugar extraordinario por la accesibilidad y la cantidad de personas y vehículos que circulan por ese lugar. La Curutchet dejó de ser una casa: tiene cultura adentro por las exposiciones, pero, además, genera cultura hacia afuera. El que ve esto como un elemento arquitectónico es un intelectualoide de facultad; yo soy un dirigente y no me importa la opinión de ellos. No es académico y nada es académico en tanto y en cuanto no lo pongas en una mesa para discutir los méritos y los aciertos de un tema. O sea, de otra manera, ¿estamos todavía en la Ecole de Beaux-Arts de París? Yo quiero que la Casa sea un componente de la cultura; es casi el título de la nota, claro. Si no, es miopía.

Mi primer convenio con la provincia de Buenos Aires no fue con Vivienda ni con Trabajo, con los cuales ya existía un acuerdo. No fue tampoco con el Instituto Cultural ni con la Secretaría de la Mujer, fue con Cultura. Cuando hacemos las bienales, son un hecho urbanístico, un hecho arquitectónico, un hecho cultural. Cuando hacemos el Congreso de Bioconstrucción, ¿qué estamos haciendo?: poner la crisis sobre un tema en particular -el cambio climático- para generar cultura, y esto es responsabilidad de quien me reemplace dentro de un año. Florencia Saintout [Presidenta del Instituto Cultural de la Provincia de Buenos Aires] también estuvo en la apertura de la XI Bienal, en Mar del Plata, que es un hecho cultural. Criticaron su presencia, porque ella es política. Pero es la Ministra de Cultura de la Provincia, todo el mundo es político. La derecha, en este país, es muy interesante: cuando tengo que medir con la vara para mi lado, es un tema tolerable, cuando la vara es para el otro, dicen: ¿por qué estás usando el Colegio para un hecho político?

La Casa Curutchet se utiliza hoy para que alguien haga exposiciones y deje una pieza de lo que expone para el Colegio. Fue lo que hizo Ariel Pradelli: vino, expuso, estaba fascinado. En vez de pagar con plata, donó una obra, que se suma a la pinacoteca del Colegio que estoy armando. ¿Querés dar tu colección privada a la Casa Curutchet? No. Porque entonces la dejarías estática y yo creo que la Casa debe tener un elemento dinámico, la cultura tiene esa dinámica.

RC/ La Casa Curutchet es como la extensión colegial del CAPBA hacia la comunidad, a la manera de los departamentos de extensión universitaria de las facultades…

RR/ Cuando yo hablo de este tema, enfado a todos. Están expectantes que logremos terminarlo porque realmente es un hito, es un hito que cuesta dos millones trecientos mil dólares. Queda claro: es un esfuerzo muy grande de todos nosotros, no es mío. Yo soy el hereje, el que no tiene miedo, no soy políticamente correcto, pero cuando tengo que contestarte, contesto también. Que te estés yendo te da más libertad, depende de dónde me vaya, que es otro tema; es una buena forma de terminar. Porque de aquí me voy a mi casa, soy un hombre feliz. Esta es mi opinión, uno es aquí y ahora por un allá y entonces. La vida es una continuidad absoluta de errores, aciertos, desaciertos; lo que no se entiende es que uno es el producto que es, hoy, aquí y ahora, porque hubo unos señores que lo hicieron antes. Yo debo reconocer, porque soy amigo de Jujo [Solsona], que esa generación les quitó las obras a los ingenieros. En esa época, en los 50, todas las obras eran de ingenieros; después hubo infinidad de carteles de arquitectos. Vinieron tipos como Roberto Frangella, Tito Varas, Moscato -otro que es amigo mío-. Es la generación de los 60. La respeto tremendamente porque le quitaron las obras de arquitectura a los ingenieros... ¿Cómo no voy a decir que soy un arquitecto, en este momento del siglo XXI, producido en los años 60? Estos tipos hicieron todo un laburo que a mí me permite ser este señor, con este bagaje intelectual, con esta capacidad y esta mirada amplia… ¿Cómo no voy a apreciar a un Osvaldo Moro en la Facultad de Arquitectura de la década de los 70, como a tantos otros?... Entonces, para contestar a los que hablan de la modernidad, esto es quedarte con una foto en el tiempo…

RC/ Cuando llamás hecho cultural a la Casa, quizá se comprende más la decisión de comprarla, aunque aún no se haya concretado la operación. La decisión de la compra y que, junto con esa decisión, se incorpore a Clorindo Testa, es todo un mensaje.

RR / Yo le vengo pidiendo a Julio Santana que traiga a Carlos Rulli, que traiga a Marcelo Frankacht, traer gente que exponga en la Curutchet, y que el costo por exponer no se pague con plata sino con algún objeto producido por el artista. ¿Se entiende? De eso es lo que quiero hablar, de ampliar el patrimonio cultural con eje en la Casa Curutchet.

EL CAPBA Y LA CASA CURUTCHET: UNA HISTORIA DE AMOR

ARQUITECTO JULIO SANTANA / DIRECTOR CASA CURUTCHET

La historia entre el Colegio de Arquitectos de la Provincia de Buenos Aires y la Casa Curutchet es, sin lugar a dudas, una historia de amor. Una historia de amor colectivo que une, desde hace más de treinta años, a la organización de profesionales de la arquitectura y el urbanismo más grande de la Argentina con la única Casa construida en el Continente Americano por el mayor referente global de la arquitectura del siglo XX: Le Corbusier. Como toda historia de amor, a lo largo del tiempo, ha atravesado diferentes etapas: la etapa del amor juvenil, la etapa del amor maduro y, probablemente, estemos a punto de comenzar la etapa del amor eterno.

EL AMOR JUVENIL

Cuando la Argentina recuperó la democracia en 1983, la sociedad civil tuvo un renacimiento que la impulsó a crear nuevas ins-

tituciones, más representativas, participativas y democráticas. Una de ellas fue nuestro Colegio de Arquitectos de la Provincia de Buenos Aires, creado por la Ley 10.405, aprobada en la Legislatura Provincial en mayo de 1986.

Como toda institución recién creada, el CAPBA no tenía sede propia y continuó funcionando en la del Consejo Profesional de la Ingeniería, compartiendo espacio, durante aquellos primeros años, con las otras profesiones afines de la industria de la construcción. Desde ese momento fundacional, el Colegio comenzó a explorar la posibilidad de tener una sede propia, independiente de las otras profesiones, y uno de los primeros sitios que intentó adquirir o alquilar fue la Casa Curutchet. El doctor Pedro Curutchet estaba mayor por esos días y no deseaba desprenderse de la Casa. No pudo ser en esos momentos. Curutchet alquiló la propiedad en 1987 a la Fundación Christmann, creada en honor a su colega

y amigo durante varias décadas. La Casa fue puesta en valor por los hermanos Julio y Luis Grossman y abierta al uso público en 1988 hasta poco después del fallecimiento del doctor en 1989. A mediados de 1991 -durante el segundo período de gestión colegial, encabezado por el arquitecto Daniel Delpino- su familia accedió a alquilar la Casa (no a venderla como era la intención original del Colegio) y el CAPBA estableció en ella su primera sede institucional y administrativa en un sitio independiente de las demás profesiones afines.

La primera fase de esta etapa estuvo marcada por una doble condición: el CAPBA desarrollaba tareas administrativas en la Casa, pero también se recibían visitas institucionales y se realizaban algunos eventos públicos, naturalmente condicionados por ciertas incompatibilidades de funciones.

En el año 1997 -durante la gestión presidencial de Horacio Giróel Colegio pudo adquirir la propiedad lindante con los fondos de la Casa Curutchet, con ingreso por la calle 54, y las actividades administrativas pudieron ser trasladadas allí.

Algunos años después –en 2006, durante la gestión presidencial de Eduardo Crivos- pudo comprarse una segunda propiedad sobre la calle 54. Ambos hechos marcan una clara consolidación institucional del Colegio y, además, permiten liberar la Casa de otras actividades que no fueran las visitas y las funciones culturales.

Podríamos decir que, luego del primer alquiler, este es el segundo acto de amor importante del conjunto del CAPBA hacia la Casa, ya que -pese a haber dejado de cumplir una función administrativa- el Colegio en su conjunto no dudó en continuar pagando su oneroso alquiler solo para permitir que las nuevas generaciones de estudiantes y profesionales de arquitectura pudieran tener libre acceso al mayor bien arquitectónico del Movimiento Moderno en la Argentina. Por esos tiempos, la Casa aún no tenía el atractivo que hoy tiene por fuera del ámbito disciplinar.

Podríamos decir que esta etapa llega a su fin cuando se filma la película “El hombre de al lado”, con guion de Andrés Duprat y dirección de Gastón Duprat y Mariano Kohn. La importante repercusión de la película rompió la pared de vidrio que separaba la Casa del público no formado en Arquitectura. En coincidencia su exhibición en los cines, se puede detectar un incremento del interés y las visitas a la Casa de parte del público ajeno a nuestra disciplina. Paralelamente, también en 2009, se produce el primer intento, motorizado por el Estado francés, de inscribir a la Obra de Le Corbusier en la Lista de Patrimonio Mundial de la UNESCO. El intento fracasa. Poco después, en 2011, se hará un nuevo intento que también fracasará. Consideramos oportuno señalar que, en ambas ocasiones, el CAPBA estuvo completamente ausente de la formulación de estas candidaturas.

Este hecho nos parece significativo, ya que creemos que marca una disociación entre el esfuerzo del Colegio por sostener económicamente el bien patrimonial, pero, al mismo tiempo, no darle un nivel de atención institucional y profesional acorde con la relevancia que éste comenzaba a tener para la Argentina y el mundo.

EL AMOR MADURO

Durante el año 2010, quien suscribe la presente, propuso al entonces presidente del CAPBA y candidato a la reelección, Adolfo Canosa, la necesidad de que la Casa Curutchet tuviera un espacio de gestión especifico lo más profesionalizado posible, dentro del Colegio. La propuesta se basaba en el incipiente y creciente interés que se percibía en la sociedad respecto de la Casa y en la necesidad que el Colegio construyera una capacidad de gestión del bien, acorde con la capacidad de las y los miles y miles de profesionales que la institución representa.

Esencialmente se proponía superar el modo receptivo pasivo de visitantes por un(os) modo(s) proactivo(s) que interpelara(n) a las y los profesionales y a la sociedad en general a través de la generación de actividades culturales, académicas, educativas y sociales.

De esta manera se intentaba dar cumplimiento a las palabras expresadas por Pedro Curutchet en su carta a Le Corbusier del 12 de junio de 1949, pocos días después de haber recibido los planos de la Casa y varios meses antes de comenzar con los trabajos de su construcción: “Mi deber será que todos aprovechen esta lección, en beneficio de su propia cultura y en reconocimiento al gran maestro.”

Aceptada esta propuesta, a comienzos de 2011, fue presentado un Plan de Trabajo que proponía el inicio de un proceso de Puesta en Valor de la Casa Curutchet que contemplara tres ejes principales:

• Edilicio

• Cultural

• Académico

Debido a las restricciones presupuestarias –y a las dificultades legales de recibir apoyos económicos externos por tratarse de un bien privado y no propio- las acciones durante los primeros años fueron más significativas desde lo cultural y lo académico.

Así, la Casa y el CAPBA, comenzaron a convocar a colegas y artistas a desarrollar cada vez más -y más diversas- actividades. La semana Le Corbusier en 2012 posibilitó que, por ejemplo, Clorindo Testa visitara la Casa por primera vez y dictara una conferencia y, desde entonces, se sucedieron las muestras de arquitectura y artes plásticas; las obras de teatro y de danza; los workshops y conferencias con participación de colegas y facultades argentinas y extranjeras, entre muchísimas actividades más.

También se puso la Casa a disposición de los diez Distritos que conforman nuestro Colegio para que propongan las actividades

que consideraran valiosas desde las matrículas de cada uno de los diversos territorios de nuestra Provincia. Así se organizaron muestras de arquitectura y de arte, visitas colectivas a la Casa y a diferentes sitios arquitectónicos de la ciudad de La Plata, encuentros y todo tipo de actividades por parte de todos los Distritos. Sin embargo, la Casa estaba significativamente deteriorada desde el punto de vista edilicio. Los trabajos en este eje se circunscribieron a un mantenimiento elemental hasta 2014, en que se realizó un trabajo de Puesta en Valor Edilicia integral.

En concordancia con todo ello se consiguió un objetivo clave de este proceso: la inscripción de la Casa Curutchet en 2016 en la Lista de Patrimonio Mundial de la UNESCO como uno de los diecisiete sitios ubicados en siete países de tres continentes que constituyeron la Serie “La Obra Arquitectónica de Le Corbusier, una contribución excepcional al Movimiento Moderno”.

La propuesta de inscripción fue encabezada por Francia -cuyo Embajador nos invitó a participar junto a la Fondation Le Corbusier en 2013- y acompañada por Suiza, Alemania, Bélgica, India, Japón y Argentina.

En esta oportunidad, el Colegio tuvo un protagonismo acorde con su compromiso con la Casa desde 1991, al punto de participar en todo el proceso de formulación de la candidatura que tuvo su corolario con el CAPBA formando parte de la Delegación Oficial de la República Argentina en la 40° Sesión del Comité de Patrimonio Mundial que se realizó en Estambul, en la que se aprobó la Inscripción.

Desde entonces la Casa Curutchet es uno de los doce sitios Patri-

monio de la Humanidad de la Argentina, el único dentro del territorio de la Provincia de Buenos Aires.

Esto permitió profundizar las líneas de acción comenzadas en 2011. La presencia de Amancio Williams -como director de obra en la Casa Curutchet y como proyectista, junto a Delfina Gálvez Bunge en la Casa sobre el Arroyo- nos impulsó a trabajar de manera conjunta con colegas del Distrito 9 en un proceso de hermanamiento de ambas casas. La filmación de un nuevo largometraje -La Obra Secreta, dirigida por Graciela Taquini en 2018- es un ejemplo de muchas iniciativas artísticas que tuvieron a la Casa como protagonista. Nuestra participación permanente en la Noche de los Museos nos consolidó como el segundo sitio más visitado de la Provincia de Buenos Aires en cada edición, después del emblemático y enorme Museo de Ciencias Naturales. Citamos estas tres como ejemplo, entre decenas de actividades artísticas y culturales realizadas, en general de manera coordinada con otras instituciones. Desde lo educativo y social merece destacarse el programa “Soy Humanidad, también es mi Casa” aprobado en 2017 y realizado, desde entonces, de manera conjunta, con la universidad Nacional de La Plata, destinado a las infancias en condiciones de vulnerabilidad y desde lo académico múltiples conferencias, intercambios y actividades compartidas con Universidades de Argentina, Latinoamérica y el mundo. En el año 2021 fue creado el MAMM -Museo de Arquitectura y Urbanismo “Adela Margarita Martínez”- y ese mismo año, el desarrollo de actividades permanentes en la Casa y su entorno posibilitaron que –a propuesta del CAPBA y por unanimidad- el Concejo Delibe-

rante de La Plata creara un área peatonal frente a ella y la designara como Boulevard Le Corbusier. Estamos trabajando junto a la Municipalidad de La Plata para que el sector pueda tener una configuración y un diseño dignos del entorno de un sitio Patrimonio Mundial, a través de la realización de un Concurso de Anteproyectos que cualifique este espacio verde tan significativo de la capital provincial.

EL AMOR ETERNO

Creemos que esta brevísima síntesis de tantos años de amor de parte del Colegio hacia la Casa Curutchet está mereciendo el mejor final: que sus destinos se unan definitivamente

La Casa fue habitada por la familia Curutchet desde diciembre de 1955 y -más allá que su uso cotidiano no fue permanente- fueron sus habitantes hasta 1987, cuando fue alquilada a la Fundación Christmann. Es decir, durante treinta y dos años.

El Colegio de Arquitectos la alquiló a mediados de 1991, así que ya hemos superado los treinta y tres.

Tantos años compartidos no deterioraron el amor, sino que lo profundizaron y nos inducen a soñar en mejores años por venir. ¿Por qué? Porque de concretarse la compra de la Casa será un salto cualitativo muy importante para todo el CAPBA y, en particular, permitirá a nuestra Institución desarrollar todo el potencial que tiene la Casa más valiosa del Movimiento Moderno en la Argentina y, probablemente, en América Latina.

En muchas oportunidades, desde el Colegio, hemos sido cautos con muchos temas que tienen que ver con la imagen de la Casa y con su(s) nombre(s). También hemos tenido dificultades al mo-

mento de intentar asociarnos con otras instituciones -públicas y privadas, nacionales e internacionales- debido a que éramos un tercero entre el titular privado del bien y esa institución. De concretarse la compra, estas dificultades se terminarían. Y es importante que digamos compra. Porque la propuesta es una compra definitiva que hará el Colegio a los propietarios y no un usufructo a 99 años como se había propiciado, varios años atrás, en el caso que el Estado Provincial hubiera ejecutado la Ley de Expropiación que fue aprobada en 2011 y venció en 2016. Creemos que todas y todos las y los colegas son conscientes del enorme salto cualitativo que significaría concretar esta compra. Sin embargo nos gustaría repasar algunas de sus potencialidades. En primer lugar, nos permitiría eliminar definitivamente la posibilidad que un tercero comparara la Casa y nos alejara del sitio que el CAPBA eligió como su lugar en el mundo desde sus años fundacionales. ¿Pueden imaginarse la sede del Consejo Superior con la Casa Curutchet en otras manos o cerrada después de tantos años de gestión y permanencia? En muchos momentos corrió la voz que algún millonario -argentino o extranjero- pudiera comprarla como obra de arte excepcional que es, e incluso cerrarla al uso público, con lo que hasta podría poner en riesgo su condición de Patrimonio Mundial.

Desde otro punto de vista, por la positiva, la referenciación y el prestigio institucional del Colegio se profundizará y cada uno de los proyectos y actividades mencionados (y muchos que no hemos mencionado) se potenciarían notablemente. Por ejemplo, creemos que el compromiso que implica invertir el

dinero que el CAPBA está disponiendo para ser propietario de la Casa Curutchet facilitará nuestras posibilidades de influencia y de gestión (aun sin ser propietarios en una primera instancia) de otros bienes de similares características en diferentes puntos de la Provincia de Buenos Aires. La profundización de los alcances del hermanamiento con la Casa sobre el Arroyo –hoy magníficamente restaurada por el Estado Nacional- por parte del Distrito 9 con colaboración del Consejo Superior puede ser un primer objetivo. También que el Distrito 10 -con colaboración del Consejo Superior- pueda contribuir para una gestión patrimonial de la excelente Casa Pillado de Bahía Blanca, obra de Wladimiro Acosta. ¿No sería una gran “política de Estado” colegial a largo plazo que cada Distrito pueda gestionar alguna de las obras emblemáticas construidas en sus territorios? La Casa Oks de Antonio Bonet en Martínez (territorio del Distrito 4) o la Casa Coppola-Stern de Wladimiro Acosta en Morón (territorio de Distrito 3) son dos simples ejemplos (entre muchos otros en cada Distrito) de obras maestras modernas sobre las cuales el Colegio podría extender su influencia, tomando como ejemplo el compromiso que implica la compra y la gestión de la Casa Curutchet. Este tipo de acciones son un objetivo fundacional de nuestro MAMM, Museo de Arquitectura y Urbanismo “Adela Margarita Martínez” Desde el punto de vista de la gestión especifica de la Casa Curutchet, la compra nos podría facilitar enormemente la posibilidad de conseguir aportes externos al Colegio para realizar una puesta en valor completa de la Casa. Desde hace muchos años, las instalaciones sanitarias de la Casa no están en funcionamiento. Tam-

poco el sistema de calefacción. Su restauración implica un nivel de intervención sobre el bien patrimonial y una inversión que no era razonable que el CAPBA hiciera tratándose de un bien que no es propio. Esa situación dominial impedía también que el Colegio gestionara la colaboración de alguna empresa o fundación del propio Estado Nacional o Provincial- para tal fin. La compra a posibilitaría esas alternativas que podrían permitir que la Casa exhibiera todo su esplendor.

Del mismo modo la cesión del nombre “Casa Curutchet” o “Casa del doctor Curutchet” (que es la denominación oficial de la inscripción ante UNESCO) nos permitirá desarrollar una estrategia de “merchandising” de elementos para ser vendidos en la Casa que podrá colaborar decididamente en la generación de recursos propios sin temor a acciones de sus propietarios.

El hecho de ser propietarios del bien nos permitirá también su libre locación a terceros sin temor a eventuales reclamos o acciones de sus dueños. La posibilidad de una locación temporal para artistas o colegas de diferentes partes del mundo bien administrada puede ser una valiosa fuente de ingresos colegiales futuros (además de ampliar la oferta de acciones culturales de la Casa).

La lista podría ser interminable y no queremos abusar con una extensión inapropiada de este texto. Pero no queremos dejar de citar que la compra de la Casa facilitará la generación por parte del CAPBA de un importante polo cultural en el punto en que el Eje Fundacional de la capital de la Provincia de Buenos Aires se encuentra con el Bosque, su principal espacio verde de uso público. La promoción por parte de la Municipalidad de La Plata de un Concurso Nacional para el tratamiento del espacio verde que abarque la avenida 1 desde 50 hasta 54 e implique la Plaza Almirante Brown (donde estuvo ubicado el Arco de Acceso a la Capital según el proyecto fundacional) es una posibilidad que ya ha sido tra-

tada con las autoridades municipales. Esta iniciativa formaría parte de un proyecto aún más ambicioso como es postular al Eje Cívico Fundacional de La Plata a la Lista de Patrimonio Mundial de la UNESCO. El hecho que nuestra Casa ya esté inscripta es un punto de partida clave para esa postulación, en una tarea conjunta entre el Colegio, el Municipio y otras Institucione, similar al que se inició en 2013 (o en 2009 si contamos los intentos fallidos) y se concretó en 2016.Nuestra experiencia en esa gestión también será clave para evitar posibles errores. Por lo expresado aquí -y varias razones más que no exponemos en honor a la brevedad- creemos que la compra de la Casa Curutchet puede ser una de las decisiones más importantes de la historia de la institución. Como fue dicho, no solamente por ratificar el compromiso fundacional del CAPBA hacia esta obra tan emblemática sino por su potencialidad estratégica para seguir prestigiando a nuestra Institución y a las futuras generaciones de arquitectos y arquitectas de la Provincia de Buenos Aires desde el corazón de su capital. Ese prestigio no es solamente por administrar y –a partir de ahoraser los propietarios de la Casa Curutchet, sino porque la obra emblemática, es un instrumento muy útil para valorar el rol de la Arquitectura y el Urbanismo como herramientas para mejorar la vida de las personas, de las familias y de la sociedad en su conjunto y así poner en valor la tarea que cada uno y cada una de nosotros y nosotras desarrolla en cada rincón de la Provincia de Buenos Aires. De concretarse este paso transcendental, quien suscribe este texto se compromete -en el entorno institucional que la Mesa del Consejo Superior considere adecuado- a la elaboración de un Plan Estratégico de Manejo del Bien Patrimonial de características similares al realizado en 2011, en el que se establezcan los ejes y líneas de acción a futuro los que, naturalmente, serán sometidos a la evaluación y aprobación de los cuerpos orgánicos de la Institución.

EL RELEVAMIENTO 3D DE LA CASA CURUTCHET Y SU IMPACTO EN LA PRÁCTICA ARQUITECTÓNICA

ARQUITECTO JUAN STINCHI / CAPBA IV BIM CAPTURE / TRANSPETROL S.A.

La Casa Curutchet, obra maestra de Le Corbusier en La Plata, es un ícono de la arquitectura moderna en Argentina. A lo largo del tiempo, ha sido objeto de estudios, intervenciones y restauraciones, pero nunca antes se había realizado un relevamiento 3D integral de la edificación.

En julio de este año, junto a mi equipo, llevamos adelante un escaneo LiDAR completo de la Casa Curutchet con el objetivo de generar un modelo de alta precisión que sirva tanto para su preservación como para futuras investigaciones y aplicaciones. Esta experiencia no solo nos permitió documentar con extrema fidelidad la obra, sino también reflexionar sobre el impacto de esta tecnología en la práctica arquitectónica contemporánea.

¿QUÉ ES UN RELEVAMIENTO 3D Y POR QUÉ ES UNA HERRAMIENTA CLAVE PARA LOS ARQUITECTOS?

El relevamiento 3D mediante escaneo láser (LiDAR) y fotogrametría permite capturar con extrema precisión la geometría de un edificio, terreno o estructura mediante una nube de puntos. Esta metodología representa una evolución respecto a los métodos tradicionales de medición, que pueden ser laboriosos, imprecisos o insuficientes en contextos complejos.

Su implementación ofrece múltiples beneficios:

● Exactitud milimétrica. Se obtiene un registro detallado sin margen de error, lo que permite tomar decisiones con datos confiables desde el inicio del proyecto.

● Ahorro de tiempo y costos. Minimiza visitas a obra y reduce

imprevistos durante el proceso de diseño y ejecución.

● Versatilidad de aplicación. Es una herramienta clave en remodelaciones, restauraciones patrimoniales y proyectos de obra nueva.

● Integración con BIM y CAD. Facilita la generación de modelos digitales para documentación técnica, análisis estructural y simulaciones.

Desde arquitectos independientes hasta estudios consolidados, el escaneo 3D se está convirtiendo en una herramienta fundamental para mejorar la eficiencia en el desarrollo de proyectos.

METODOLOGÍA APLICADA EN EL RELEVAMIENTO DE LA CASA CURUTCHET

Para el relevamiento de la Casa Curutchet, utilizamos un escáner láser terrestre, ubicando estratégicamente las estaciones para capturar con precisión la totalidad del edificio, incluyendo su estructura, detalles constructivos y mobiliario fijo. Posteriormente, alineamos los escaneos en un software especializado para generar una nube de puntos de alta densidad.

El modelo obtenido no solo refleja con exactitud la geometría real de la obra, sino que también permite visualizar detalles constructivos que pueden ser fundamentales en futuras intervenciones o estudios. Entre sus aplicaciones destacadas, se encuentran:

● Documentación as-built. Generación de planos y modelos BIM basados en la realidad construida.

● Visualización avanzada. Exploración en entornos de realidad virtual o aumentada.

● Análisis y diagnóstico. Identificación de deformaciones estructurales o patologías edilicias mediante comparaciones con modelos teóricos.

Este caso demuestra cómo la tecnología de relevamiento 3D no solo es una herramienta de registro, sino que abre nuevas posibilidades en la conservación y divulgación del patrimonio arquitectónico.

EL FUTURO DEL ESCANEO 3D EN LA ARQUITECTURA

Más allá de su aplicación en proyectos icónicos, el escaneo 3D se está consolidando como una herramienta accesible para todo arquitecto. En obras nuevas, permite coordinar con precisión diferentes disciplinas. En remodelaciones, minimiza los errores derivados de mediciones imprecisas. Y en restauraciones patrimoniales, se convierte en una herramienta clave para el análisis y documentación de edificaciones históricas.

El uso del escaneo 3D no es exclusivo de grandes estudios o proyectos de envergadura. Cada vez más profesionales independientes lo incorporan en sus flujos de trabajo para optimizar tiempos y mejorar la calidad de sus intervenciones. Ya sea en una reforma de vivienda, en la rehabilitación de un edificio histórico o en la planificación de una obra nueva, contar con una base digital precisa permite trabajar con mayor seguridad y previsión.

Adoptar esta tecnología no significa cambiar la forma en que se proyecta, sino potenciar y optimizar el trabajo arquitectónico con

datos más precisos y herramientas más eficientes. En definitiva, el escaneo 3D no es el futuro: es el presente de la arquitectura. Este artículo busca no solo compartir nuestra experiencia con la Casa Curutchet, sino también invitar a los colegas a descubrir cómo esta tecnología puede integrarse en su práctica profesional. Como arquitectos, tenemos la oportunidad de incorporar herramientas que nos permitan trabajar con mayor precisión y eficiencia en cada proyecto.

CONCLUSIÓN

El relevamiento 3D se ha convertido en una herramienta indispensable para el arquitecto contemporáneo. Su implementación en la Casa Curutchet es solo un ejemplo del potencial que tiene en la preservación del patrimonio y en la práctica arquitectónica diaria. El objetivo de este artículo es incentivar a los colegas a explorar estas tecnologías y comprender que no se trata de imponer nuevas formas de trabajo, sino de ofrecer recursos confiables que pueden integrarse según la necesidad de cada proyecto. Con el avance del escaneo 3D y la integración con metodologías BIM, los arquitectos tienen hoy más herramientas que nunca para diseñar con precisión, optimizar tiempos y mejorar la calidad de cada intervención, ya sea en un edificio histórico, una remodelación o una obra nueva.

El futuro de la arquitectura está en nuestras manos, y la tecnología nos brinda las herramientas para hacerlo con mayor exactitud y eficiencia.

XI BIENAL DE ARQUITECTURA

La relatoría de la Bienal comprende información sobre los conferencistas y sus exposiciones, la presentación de una obra emblemática de cada uno de ellos, y el desarrollo de los foros temáticos y las conclusiones elaboradas por sus coordinadores. Cierra la sección un artículo del arquitecto Miguel Vecino.

DEBATIR Y REFLEXIONAR PARA ACTUAR

XI BIENAL DE ARQUITECTURA Y URBANISMO / “VIVIENDA Y SUELO”

CONSEJO EDITOR

LA BIENAL

“La Bienal de Arquitectura y Urbanismo es el resultado del esfuerzo de los y las arquitectos/as que conforman el CAPBA y que, desde sus inicios hace tres décadas, procura dejar un saldo formativo para los colegas y otro propositivo para las agendas públicas provinciales y municipales.”

Arquitecto Ramón Rojo / Presidente CABA

“Un sinnúmero de experiencias pondrá de manifiesto el valioso trabajo de profesionales comprometidos con la construcción de una sociedad más justa, inclusiva y equitativa, vocablos a los que, sin duda, debemos dotarlos de una gran cuota de esperanza en el actual escenario. Esperanza en construir una estética enraizada en una ética alejada del embriagador culto a la imagen, que ya ha demostrado su perfidia en el seno del ejercicio profesional.”

Arquitecto Gabriel Santinelli / Director y Curador General XI BAU

La organización de la Bienal por parte del CAPBA se enmarca en la norma de creación colegial (ley provincial 10405), la que otorga atribuciones y establece la necesidad de impulsar este tipo de eventos: en su texto se menciona “promover […] la actualización y perfeccionamiento […] de los Arquitectos” (art. 26 inc.15). Pero también se establece en el mismo artículo (inc.21) que una de las facultades del

Colegio es “emitir opinión y formular propuestas sobre cuestiones relacionadas […] con el análisis de los problemas del medio y de la comunidad”. No solo es perfeccionamiento profesional, también es devolución de prácticas y saberes propios a la sociedad y a nuestros conciudadanos, por su contribución a nuestra formación profesional. Fueron tres jornadas en Mar del Plata, del 11 al 13 de abril, que marcaron un fructífero contrapunto: las conferencias de especialistas nacionales e internacionales (seis en total) brindaron un valioso material para los cuatro foros programados, que se nutrieron con la masiva participación de arquitectos y arquitectas que, a partir de sus prácticas cotidianas y localizadas, abordaron diversas problemáticas en respuestas a las consignas de la Bienal. Por un lado, las temáticas fueron la apremiante y muy actual articulación entre vivienda y sustentabilidad y los interrogantes que generan los concursos residenciales en cuanto a su implementación y resolución. Por otro lado, las oportunidades y dificultades de acceso al suelo en el territorio provincial y las modalidades que adopta en áreas urbanas, periurbanas y rurales. En definitiva, como afirma el arquitecto Rojo, “el acceso al hábitat de los ciudadanos bonaerenses implica considerar no solo la unidad de vivienda sino, entre las problemáticas centrales, el acceso a suelo urbano apto. La vivienda y el suelo entonces, como par dialéctico e indisoluble, es la consigna central de la Bienal en estos momentos de crisis e incertidumbre.”

Las conclusiones que se publican más adelante, elaboradas por el arquitecto Gabriel Santinelli, han sido el punto de partida para los encuentros distritales que se vienen sucediendo y que dan forma a la BAU Itinerante, un modo de interpretar la onceava Bienal como una actividad prolongada en el tiempo y con inclusión de todos y todas los matriculados/as bonaerenses, en contraposición a un evento encriptado en un envase de tres días, en una única localidad. Complementando conferencias y foros, la Bienal incluyó también “Talleres proyectuales” que reunieron a colegas de toda la provincia en “un intento de pensar y repensarnos desde nuestro oficio, disciplina y profesión.” Dos localizaciones -el Barrio Centenario, en Mar del Plata, y el Hipódromo de Tandil- fueron elegidas para que los arquitectos/as presentes en el Espacio Cova intentaran, en un par de horas y trabajando en equipo, proponer ideas con la modalidad del esquicio. En el lugar donde se desarrolló esta experiencia, también se presentó la exposición itinerante “Esto no es una caja”, seis dispositivos móviles con diversos contenidos: los trabajos galardonados de los Premios Estímulo y Obra Construida 2023 y Década 2013/23, un mapeo de las obras promovidas por el estado en territorio bonaerense y una recopilación de obras con valor patrimonial de la provincia de Buenos Aires, entre otros materiales. La idea de la exposición es presentada por el arquitecto Miguel Vecino en un artículo, en las próximas páginas. También tuvo su lugar una presentación de paneles gráficos a cargo de los diez Distritos, que mostraban las actividades en cada uno de ellos Como corolario del encuentro, y en un escenario especialmente apreciado por los y las colegas -el entorno del Museo Casa sobre el Arroyo-, se realizó la ceremonia de entrega de galardones correspondientes a los premios Obra Construida y Estímulo 2023, Obra Construida Década 2013/23 y del Concurso de fotografía organizado especialmente en el ámbito de la Bienal.

LOS PROTAGONISTAS

El arquitecto Rojo expresó en el Catálogo de la Bienal que “los actores principales del evento son los arquitectos y arquitectas que desarrollan su actividad profesional en la provincia, conocen y son partícipes de la realidad local y trabajan en beneficio de la comunidad a la que pertenecen.”

Acompañando con valiosas conferencias y colaborando de los Talleres proyectuales, participaron los colegas brasileños Marta Moreira y Vinicius de Andrade, y los arquitectos Raúl Vallés, de Uruguay, y José Cubilla, de Paraguay. Por nuestro país, se hicieron presentes la arquitecta Bárbara Berson y el colega Eduardo Crivos. Los Talleres contaron con la coordinación de los arquitectos Miguel Vecino, Pablo Rescia, Leonardo Jáuregui y Diego Riva, en tanto que moderaron los cuatro foros que se sucedieron durante las dos jornadas los arquitectos Santiago Hoses y Agustín Pinedo y las arquitectas Paula Suero y María Victoria Besonías.

LAS CONFERENCIAS

Los expositores ofrecieron una rica diversidad de enfoques sobre las temáticas de vivienda y suelo. El proyecto y su materialización, la vivienda como política pública y pieza central del sistema urbano, los conflictos ambientales que provoca la construcción o sus posibilidades como recurso sustentable, la encomienda particular y la autoconstrucción, y la vivienda como servicio social fueron algunas de las problemáticas presentadas y analizadas.

En las próximas líneas, el lector puede abordar diagnósticos, ideas y propuestas que surgieron durante las dos jornadas de exposiciones y debates, entendiendo que el conocimiento se construye de manera colectiva, articulando prácticas y reflexiones particulares e integrándolas en una síntesis transversal.

Las disertaciones completas de los participantes de la BAU fueron

editadas en formato audiovisual por CAPBA TV para su difusión entre la matrícula y el público en general y pueden ser consultadas en: https://www.youtube.com/channel/UCha7upS6hnIgvhHW6Odhmyw

Los apartados siguientes intentan ser ejes integradores de los temas planteados en el transcurso de las conferencias y las intervenciones durante la apertura y cierre del encuentro, y los textos que los acompañan han sido seleccionados por este Equipo Editorial a partir de ese material.

VIVIENDA y CONTEXTO

“Tenemos que discutir al interior de la disciplina como incorporar a nuestro trabajo la vivienda popular, discutir la normativa y pedir a la academia que el tema tenga más preponderancia en los contenidos curriculares.” Diego Domingorena/presidente D9.

“Hay que defender la educación pública, en un contexto de pobreza y déficit habitacional.” Francisco Olivo / Decano FADU-UNMDP.

“El déficit habitacional es similar al de los ´70…” Ramón Rojo/presidente CAPBA

“Existe un derecho a disfrutar de la cultura. Se ganó una elección comprometiéndonos a garantizar derechos.” Florencia Saintout/ presidenta Instituto Cultural bonaerense

“Se ha hablado de derechos. El déficit habitacional es el producto de la desidia estatal durante muchos años, pese a quien le pese.”

Gabriel Santinelli/organizador BAU

“No tenemos acceso, desde los estudios de arquitectura, a la vivienda social. Preparamos a los alumnos en la facultad para encargos que nunca llegan.” Bárbara Berson, expositora

“Una encuesta del Colegio de Arquitectos de Brasil (2019) muestra que, en los últimos 10 años, en las obras construidas o reformadas participaron arquitectos o ingenieros solo en el 15% del total. […]Además, ese 15% es el más rico. No estamos en contacto con quienes más necesitan de nuestra profesión”. Vinicius Andrade, expositor

VIVIENDA y CIuDAD

“El derecho a la vivienda como un derecho a la ciudad. El derecho a la ciudad como un derecho urbano. Si estos derechos no se materializan, no se espacializan, no existen. Estos derechos son una cuestión política.” Raúl Vallés, expositor

“El tema de hoy es el derecho a la ciudad y qué rol juega la arquitectura en ese derecho. El mundo actual es urbano: América del Sur es el continente más urbanizado del planeta. Los modelos europeos no nos sirven. El desafío actual es como hacer arquitectura urbana, como hacer ciudad.” Vinicius Andrade, expositor “Hacer ciudad, vivienda y territorio. Todo está en la parte que está en el todo (Edgardo Morin)”. Eduardo Crivos, expositor

VIVIENDA y PROyECTO

“Pensar qué batallas damos, hacer un aporte pequeño desde nuestro lugar, y ser un poco más desobedientes de los caminos establecidos.” Bárbara Berson, expositora “Una red colaborativa entre los más jóvenes y los más experimentados: es la mejor manera de encontrar soluciones y hasta asegurar la supervivencia de la profesión.” Vinicius Andrade, expositor

“Trabajo sobre la “materia atmosférica”. Arquitectura pasiva con gente activa, que la vaya desarrollando.” Bárbara Berson, expositora “En el edificio Valois, nos animamos con el sistema de tapial a pasar de escala. Material silencioso, pertinente, interesante desde el punto de vista térmico, económico.” José Cubilla, expositor

LOS FOROS

Los foros de la primera jornada, dedicados a la vivienda, propusieron dos problemáticas diferentes: la conciencia energética y la necesidad de proyectar con premisas que aseguren condiciones sustentables, por un lado, y la modalidad de los concursos de vivienda como momento de reflexión y posibilidad laboral, por otro. Durante el segundo día, se debatió en torno a dos temas vinculados con el suelo: el acceso a este recurso indispensable del

hábitat y las particularidades que adopta en situaciones urbanas, periurbanas y rurales.

En las próximas líneas, algunas conclusiones de los encuentros, que reunieron a cientos de profesionales con inquietudes de intercambiar, informar y debatir sobre el presente y futuro del hábitat bonaerense. Los textos que siguen fueron elaborados por los moderadores que actuaron en cada uno de los foros.

HACIA UNA VIVIENDA ENERGÉTICAMENTE CONSCIENTE: DESAFÍOS PROYECTUALES

Moderador: arquitecto Santiago Hoses

“Desde siempre, la buena arquitectura fue sustentable: ventilación cruzada, iluminación natural, orientación adecuada, aislaciones. Ahora sumamos: energías renovables y uso eficiente de las fuentes tradicionales. El cambio climático nos interpela: ¿declamamos o proyectamos con premisas sustentables?” Catálogo XI BAU

Introducción

Las Bienales inauguran un nuevo formato con el objeto de dar inicio a un proceso de debate y reflexión. Este foro ha contado con la participación entusiasta de casi un centenar de profesionales de la provincia.

Como apertura de la charla, se plantearon inicialmente tres temas disparadores: a) en primer lugar, se advierte que debido a las múltiples dimensiones y escalas que se desprenden del tema vivienda energéticamente consciente, sería necesario afrontarlo desde una mirada ecosistémica, involucrando de forma integral la cuestión del desarrollo urbano sustentable, b) posteriormente, se propone debatir sobre la aplicación de la normativa y el abordaje de las diferentes problemáticas derivadas de la misma y, c) en tercer lugar, se señala la necesidad de reflexionar sobre el grado de penetración real de la sostenibilidad en el quehacer profesional en el territorio bonaerense.

a/ La vivienda energéticamente consiente en el marco del desarrollo urbano sustentable

Los participantes han identificado una serie de procesos del hábitat derivados de la ciudad hecha por los desarrolladores, donde ni el Estado ni la matricula parecieran estar dando una respuesta a la altura de los problemas que esto conlleva, entre los cuales cabe mencionar: 1/ Los barrios privados situados en las periferias de las ciudades, que en general, registran altísimas dosis de ineficiencia y derroche energético, infrautilización de redes de servicios, y dependencia de la movilidad en vehículos particulares, solo por mencionar algunas. Como contrapartida de este proceso de traslado de población acomodada desde la ciudad al campo, en algunas ciudades del interior se han registrado gran número de viviendas desocupadas en áreas centrales servidas con muy bajas densidades y pérdida de urbanidad. Frente a esta problemática, se advierte la necesidad de priorizar la generación de acciones y políticas tendientes a favorecer una reconversión de un tejido potencialmente valioso, alentando mecanismos de regeneración urbana en áreas servidas, por sobre la pura especulación inmobiliaria.

2/ Los desarrollos inmobiliarios de gran escala que se promueven dentro del ejido urbano, sin incorporan estrategias sustentables de ningún tipo, fomentando imágenes importadas de otras latitudes, con bajísima ocupación a lo largo del año, como sucede, por ejemplo, en el caso de la primera línea de mar de algunos municipios de la costa bonaerense

En este sentido, pareciera acertado indagar en alternativas que desalienten el negocio inmobiliario que tiende a conformar ciudades genéricas e insustentables, con pérdida de identidad y memoria.

En ambos casos se trata de procesos que carecen de pautas normativas que garanticen un desarrollo urbano equilibrado, y se alejan del modelo de la ciudad compacta, sustentable, compleja

y diversa en usos, espacios y actividades. Como respuesta, desde el planeamiento urbano habría que elaborar normativas y estrategias que limiten el consumo energético, garanticen una ciudad para todos y optimicen el uso de áreas servidas. En la misma dirección, se podrían incorporar regulaciones o impuestos que desalienten este tipo de arquitectura, que no introduzca mínimos de estrategias sustentables, para edificios que permanezcan deshabitados gran parte del año y que necesiten para su confort consumir cantidades ingentes de recursos no renovables. 3/ La problemática histórica de los barrios populares, tejidos informales, donde la exclusión social o la pobreza, el déficit habitacional, la degradación ambiental y la ausencia absoluta de políticas de sustentabilidad, pareciera resignar las necesidades ambientales y energéticas básicas a un segundo plano. Si bien esta problemática ya está en la mira de los organismos de integración social y urbana, la demanda sigue estando mayormente insatisfecha En este contexto, sería deseable encontrar modos en que la matrícula pueda aportar a ese trabajo, sin estar necesariamente vinculada a organismos del Estado. Tanto el modelo urbano de los desarrolladores privados o la emergencia de la ciudad informal se imponen claramente por sobre los modos de producción de hábitat que propone el Estado. Un modelo más justo y equilibrado, exige una participación activa de aquel, involucrando a todos los sectores intervinientes, con el objetivo de encontrar fórmulas que regulen estos procesos que no consideran el cambio climático, que se sostienen con el consumo irracional de energía o el uso ineficiente de un recurso escaso como es el suelo urbano. En este sentido, los Premios Estimulo organizados por el CAPBA, brindan un espacio de reflexión que intentan cubrir, desde la práctica de taller, el déficit en formación sobre temas relacionados a la ciudad y el espacio público.

b/ La aplicación de normativa (hacia una transición energética) En el territorio bonaerense no hay obligatoriedad de Etiquetado de Eficiencia Energética de Inmuebles destinados a vivienda, y consecuentemente, la aplicación de normativas o criterios sustentables es de carácter voluntario. Ante la emergencia de sobrecostos o gestiones adicionales, y la falta de políticas de aplicación y seguimiento del estado, en la mayor parte de los casos hace que terminen dejándose de lado. En estos casos, la sostenibilidad en arquitectura pareciera traducirse en un eslogan publicitario de dudoso cumplimiento. Desde un punto de vista técnico, el Estado provincial sigue proponiendo para cada zona bioclimática, estándares fijos basados en modelos estacionarios, sin poder asimilar aun modelos dinámicos más ajustados a la realidad y a los múltiples factores que intervienen en la performance energética de un edificio a lo largo del año. Otro aspecto a tener en cuenta, es la dificultad de cuantificar el beneficio, tanto económico como ambiental, que se podría obtener con una política energética consciente. Se observa cierta deficiencia en la difusión y capacitación, así como falta de cuadros capacitados en las oficinas técnicas municipales y provinciales, lo cual dificulta la implementación. Por otra parte, no existe posibilidad de gradualidad en la aplicación de normativas (etiquetados o certificaciones), ni contraprestaciones significativas que los incentive. Frente a este panorama, se proponen algunas medidas: 1/ Promover acuerdos interinstitucionales entre públicos y privados, con el objeto de adoptar medidas tendientes hacia una eficiencia técnica con pragmatismo y coherencia cultural.

2/ Adecuar normativas, facilitando su aplicación.

3/ Acompañar la creación de programas de promoción y monitoreo. Ordenanzas y Normativas resultan insuficientes o inadecuadas, por las dificultades que plantea su aplicación. Ante la indefinición, o la

falta de decisión en lo atinente al control de su aplicación, emerge la aplicación voluntaria y la sanción profesional latente (producto de la obligatoriedad que proponen las normas). Se plantean, entonces, las siguientes premisas:

1/ Necesidad de políticas públicas (premios, exenciones impositivas, reducción de tasas) para adecuar el parque residencial existente, y lograr reducciones de consumo energético de forma efectiva.

2/ Necesidad de redefinir el rol de los colegios profesionales frente a este desafío. Si bien existen iniciativas de divulgación y formación continua, aun resultan insuficientes, especialmente en los Distritos del interior de la provincia.

Las practicas sustentables en el territorio bonaerense Salvo pocas excepciones, no existen registros de aplicación de buenas prácticas en el ámbito de la sustentabilidad en la vivienda estatal, ni prototipos donde poder visualizar performance energética y ahorro efectivo a lo largo del año para las diversas situaciones bioclimáticas de la PBA. Las acciones a considerar serían:

1/ A modo de divulgación y concientización, se podría impulsar la incorporación de sistemas de monitoreo de la performance energética en edificios emblemáticos, y se propone su implementación en los colegios profesionales como posible punta de lanza.

2/ Dado que no se han podido identificar practicas sostenibles o que sean energéticamente conscientes que resulten relevantes, se propone la creación de un registro de buenas prácticas, que favorezca el intercambio de experiencias proyectuales o de gestión.

3/ Se sugiere impulsar desde los colegios profesionales una mayor articulación de aspectos políticos y técnicos.

4/ Ante la falta de oficinas técnicas en los municipios, los colegios podrían facilitar acuerdos interinstitucionales entre públicos y privados, con el objeto de facilitar la aplicación de estrategias sustentables en la práctica habitual de la disciplina.

Conclusión final

Se ha recogido un gran consenso en la celebración de esta modalidad de foros en un evento de las características de estas bienales, que promueven el intercambio y la reflexión entre la matrícula sobre una temática singular.

CONCURSOS DE VIVIENDA:

¿QUÉ Y CÓMO ESTAMOS JURANDO?

Moderadora: arquitecta María Victoria Besonías

“Luego de la entrega de un concurso de viviendas, la pregunta es: ¿qué sucede del otro lado del mostrador? Los jurados, a la hora de decidir, ¿premiamos una posibilidad cierta de materialización, el buen vivir concretado en un proyecto, un programa desarrollado para el usuario de carne y hueso? Interrogante para la reflexión.” Catálogo XI BAU El desarrollo de este foro no se centró en la particularidad de los concursos de vivienda, sino que los participantes mostraron interés en debatir sobre los aspectos generales del sistema de concursos públicos, considerando actores que intervienen en el mismo. Entes organizadores

1/ Elevar, ante la presente coyuntura, la calidad de nuestra arquitectura mediante la promoción de los concursos, que debe ser asumida como genuina tarea por los Colegios profesionales.

2/ Volver a jerarquizar, como objetivo, el sistema de concursos, fomentando y brindando asesoramiento a diferentes instituciones en general y, especialmente, a los organismos encargados de la ejecución de la obra pública.

3/ Propender a que los concursos sean siempre vinculantes en las categorías Anteproyecto y a Dos Vueltas, respetando su genuina finalidad de devenir en obra concreta.

4/ Brindar a los concursantes ganadores el asesoramiento necesario para establecer una relación simétrica con el comitente, especialmente en los casos en que los mismos sean matriculados muy jóvenes. Asesores

1/ Posibilitar, siguiendo el ejemplo de una práctica del Colegio de Arquitectos de Neuquén, la capacitación de los matriculados jóvenes, actuando como pasantes junto a colegas experimentados, en

la elaboración de las Bases de diferentes concursos. De esta manera, se podrá contar con un cuerpo de asesores altamente idóneo.

2/ Guiar al promotor en un acertado planteo de sus necesidades.

3/ Elaborar bases definidas, tanto en el programa de necesidades como en los objetivos, conteniendo lo justo y necesario, como para no coartar la posibilidad de presentación de variadas alternativas y estableciendo con absoluta claridad aquellas cuestiones que dejarían a un participante fuera de concurso.

4/ Definir la cantidad de material requerido, su escala y plazos de entrega de acuerdo con la categoría y escala del llamado, con el objetivo de que resulte un concurso sustentable para los colegas participantes, en la relación premios y tiempo invertido.

5/ Acordar con el promotor un costo aproximado de ejecución de la obra para que la mayor innovación y calidad de diseño puedan resolverse adecuadamente con los recursos previstos.

Jurados

La singularidad del concurso de arquitectura es que, a diferencia de un encargo particular, el resultado se define en un encuentro anónimo entre los participantes y el cuerpo de jurados. El hecho de participar y poder someter la propia producción al juicio y arbitrio del otro, representado en un jurado, tiene un alto valor, ya que en arquitectura no siempre hay convergencia de ideas. La riqueza intelectual que aporta la posibilidad de proponer soluciones coexistiendo con diversas respuestas a un mismo problema, escapando a las recetas preestablecidas y reduccionistas, hace también que el hecho de concursar sea una oportunidad de crecimiento, tanto para el participante como para el jurado. Dada la complejidad de esta tarea y reconociendo que, al igual que en el caso de los asesores, no es posible adquirir experiencia ni con la práctica de la profesión ni con el entrenamiento que brinda el ejercicio de la docencia, se hace necesario que:

1/ Los matriculados con experiencia, no sólo en el mundo proyectual de la arquitectura sino también en el de su ejecución, reciban de los Colegios alguna forma de capacitación para desempeñarse en una tarea cuyo resultado puede verse empobrecido si no se valoran debidamente proyectos más creativos que los usuales, o en el otro extremo, que lo premiado sea despliegue formal y que tras una supuesta innovación no resuelva las necesidades requeridas. 2/ La jura de un concurso, que es una tarea colectiva de la que participan jurados con diferentes visiones e intereses, cuente con un tiempo y un ámbito donde el debate pueda establecerse. En este sentido, con la modalidad virtual de entrega de trabajos, se ha hecho posible la participación de un gran número de propuestas, lo cual es muy beneficioso siempre y cuando el tiempo disponible para resolver la premiación no resulte tan escaso que obligue a los jurados a hacer un descarte previo sin el debido análisis, a tomar decisiones sin agotar el debate, o a realizar una devolución de rutina sin el debido compromiso.

SUELOS DE OPORTUNIDADES: EXPLORANDO SOLUCIONES PARA UN ACCESO JUSTO

Moderadora: arquitecta Paula Suero

“Múltiples realidades: el lote con servicios, la intrusión de un terreno -luego legalizado o no-, el suelo urbano reciclado, las urbanizaciones cerradas, la tierra estatal para los conjuntos habitacionales. No olvidar: el suelo antecede a la arquitectura, la justicia social comienza por un lugar en el mundo.” Catálogo XI BAU

Bajo esta invitación nos encontramos a debatir en una de las aulas de la Facultad de Arquitectura, Urbanismo y Diseño de la Universidad Nacional de Mar del Plata, ejercicio que nos coloca en un modo atento, en comunicación con otros, construyendo en el

marco de la XI BAU acuerdos en torno al acceso al suelo. Se destaca la participación de colegas de todos los Distritos, donde se identificó el intercambio de diferentes voces de profesionales que ejercen en forma particular, en la investigación y docencia, en la función pública y en organizaciones vinculadas al hábitat.

En primer lugar, se distingue que los aportes que surgieron fueron conceptuales, enmarcando la importancia del tratamiento situado en la realidad del acceso a suelo en la provincia de Buenos Aires. Se plantea el hábitat como un concepto integrador del suelo, y esa integración como un abordaje que incorpora otras perspectivas en los procesos de transformación: la función social y ambiental del suelo como marco para enfrentar las desigualdades socioterritoriales.

En este sentido, se entiende el hábitat como un concepto que incorpora a las personas y su historia, lo que nos dio pie para debatir sobre el hábitat vinculado a los cuidados y cómo la localización determina la vida de las personas, especialmente de las mujeres. Otros de los temas que se plantearon como problemáticas fue la gestión del suelo desde los organismos públicos. También se profundizó sobre las leyes y códigos vigentes, y los instrumentos de gestión del suelo; en este sentido, se contó la experiencia de desarrollo del Observatorio de Valores de Suelo como herramienta de acceso libre y colaborativo. (Observatorio de Valores de Suelo (PBA) https://observatoriosuelo.gba.gob.ar/institucional/que-es / Observatorio Nacional de Acceso al Suelo: https://www.argentina.gob.ar/habitat/plan-nacional-de-suelo-urbano/observatorio-nacional-de-acceso-al-suelo). Otra de las temáticas desarrolladas por los participantes fueron el rol del poder político y la crisis democrática participativa. En relación a la problemática del déficit habitacional, se trató el tema del RENABAP (Registro Nacional de Barrios Populares) como instrumento de trabajo y apoyatura para el tratamiento integral del há-

bitat. En este sentido, la falta de continuidad en el financiamiento de las políticas socio urbanas vinculadas a los barrios populares y cómo esto afecta la posibilidad de acceso a un hábitat digno, pues se trata de obras de redes de servicios básicos, conexiones seguras a los mismos, espacios comunitarios, etc.

Uno de los interrogantes que surgió fue cuál es el rol de la disciplina y cómo es posible participar activamente en la toma de decisiones. En este sentido, surgió en el debate la necesidad de pensamiento y trabajo conjunto con otras profesiones; también, la Ley 14.449 de Acceso Justo al Hábitat como una gran posibilidad profesional y la urgencia de formarnos intensivamente en sus herramientas. Se contaron experiencias sobre el mejoramiento habitacional en contextos de exclusión y sobre el derecho a un acompañamiento técnico de construcción del hábitat. (Programa Construyendo Hábitat. CAPBA 9). Como posibilidad de oportunidad, se planteó la viabilidad de incorporar proyectos de viviendas de usos mixtos, viviendas colectivas y como antecedente se comentó las experiencias del arquitecto Claudio Caveri con el cooperativismo y el paisaje urbano. Por último, se destaca el rol del Colegio Profesional y cómo, desde los distintos Distritos y sus diversas realidades, se pueden realizar aportes desde un enfoque de derechos humanos a los temas de acceso al suelo y al hábitat.

SUELO

URBANO, PERIURBANO Y SUELO RURAL: ¿PARA QUÉ Y PARA QUIÉN?

Moderador: arquitecto Agustín Pinedo “Suelo urbano, hábitat del 96% de la población bonaerense: el AMBA, las ciudades intermedias, los pueblos. Suelo periurbano, territorio en disputa: informalidad, urbanizaciones cerradas, pequeños productores agrícolas. Suelo rural: 23 millones de hectáreas destinadas a cultivos y ganadería y un espacio despoblado.” Catálogo XI BAU

La propuesta por parte de la organización de la Bienal es la de generar una agenda temática centrada en el debate sobre la problemática “suelo y vivienda”. Algunas conclusiones:

1/ Distinguir entre suelo urbano y rural como territorios que necesariamente se deben trabajar de manera integral, pero reconociendo que las problemáticas son singulares. La ciudad crece sin profesionales

2/ Debatir y problematizar la ley de ordenamiento territorial vigente en la provincia de Buenos Aires (Decreto Ley 8912) para mejorar el tipo de usos del suelo. Es necesario dar sentido y contenido a la problemática del suelo antes que a la vivienda.

3/ El estado cumple un rol fundamental como impulsor de las políticas de acceso al suelo. Se debe profundizar en la capacitación y asistencia en temas de suelo en los tomadores de decisiones. Carencia de áreas municipales de planeamiento.

4/ Carencia en general de conocimiento en economía de urbanización o economía urbana para abordar la problemática del suelo.

5/ Uno de los efectos de la expansión urbana es el vaciamiento de los centros urbanos. Otro de los efectos negativos del crecimiento urbano espontáneo es el avance sobre zonas productivas. La zona de interfase entre el campo y la ciudad, para entenderlo como binomio, produce conflictos ambientales, que hoy parece no encontrar instrumentos de regulación en las normativas urbanísticas.

6/ Se producen áreas de borde (periurbano) sujetas a los cambios bruscos del mercado inmobiliario, generando efectos negativos en la población producto en ocasiones del uso de agrotóxicos, pero también pérdidas en la capacidad productiva de estos espacios, para lo cual se propone analizar y estudiar qué tipo de producción se podría realizar, sobre todo en localidades de escala intermedia.

7/ El estado debería promover la densificación de las áreas centrales y la movilización de vacíos urbanos o espacios vacantes.

8/ Promover la participación ciudadana para construir consenso y

colaborar con el conocimiento de las dinámicas urbanas.

9/ Trabajar de manera interjurisdiccional, superando las limitaciones de la división administrativa de los partidos, como, por ejemplo, por regiones, áreas, cuencas, etc.

10/ ¿Es negativo que la mancha urbana se extienda? El periurbano se torna en algunas ciudades como un nuevo espacio de disputa entre lo productivo y lo residencial. Proponer nuevos espacios de producción de cercanía, productos libres de agrotóxicos, promover el uso de energías renovables. Se produce el avance sobre áreas rurales debido al cambio de paradigma en los modos de habitar, promocionado por un supuesto modo de vida en contacto con la naturaleza.

11/ Los operadores inmobiliarios son los que configuran la planificación de la ciudad y avanzan sobre zonas de protección de la biodiversidad.

12/ La provincia es un territorio heterogéneo; reconocer la singularidad de las ciudades y poblaciones, para poder establecer estrategias que permitan un crecimiento armónico y acordes a profundizar la mitigación del cambio climático.

13/ Es clave el rol de los Colegios de arquitectos para difundir las incumbencias profesionales en el ámbito de la planificación territorial. Existen experiencias positivas en materia de ordenamiento que merecen ser difundidas por los distritos.

LAS OBRAS

Los expositores presentaron obras de su autoría para acompañar los conceptos sobre vivienda y suelo que propusieron al auditorio. A continuación, proyectos seleccionados por el Consejo Editor, uno por cada conferencista, intentan resumir las ideas contenidas en las disertaciones brindadas. Los textos que acompañan las imágenes, en cada caso, son el relato que los conferencistas ofrecieron durante su exposición.

JARDÍM LIDIANE

CONJUNTO HABITACIONAL / SAN PABLO

ANDRADE-MORETTIN ARQUITETOS

El conjunto fue construido en una favela donde vivían 1.400 familias, localizada en la periferia del centro de San Pablo y cerca del río Tieté, como un encargo del municipio. La favela está en una curva del río y, como el suelo es muy inestable, las casas se estaban hundiendo y una parte importante del barrio ya se había derrumbado. […] La comunidad se fue organizando en torno a una rotonda que da acceso a un puente que cruza el río Tieté. En el entorno del predio destinado a Jardim Lidiane había dos conjuntos ya construidos, por un lado, y las casas de la favela, por otro. Como ocurre en estos casos, el acceso es una sola calle, muy angosta y que se inunda cuando llueve, que tiene que ver con las deficiencias del drenaje pluvial y cloacal y de la recolección de residuos. […] Existe una calle comercial, que debe ser el elemento urbano-social más importante, donde la gente de la favela tiene sus negocios, donde se genera la renta, es decir, se genera sustentabilidad, resilencia. Vecino a la favela, hay un barrio de clase media en transformación, con pocos servicios urbanos, y por lo tanto, sus habitantes compran en la calle comercial mencionada, que se transforma en un elemento de integración social: era importante mantenerla y mejorarla, como estrategia urbana. Según las conclusiones del servicio social, que ya estaba trabajando en el barrio dos años antes que llegáramos nosotros, solo se podía demoler el 30% de las casas para evitar la ruptura de la red de solidaridad que existía en la comunidad, comprometiendo su estabilidad. Cuando ingresamos nosotros, hicimos un relevamiento casa por casa para conocer qué actividades se desarrollaban, cuántos pisos tenían, estudiamos la accesibilidad y movilidad en las calles. […] Mapeamos la favela con distintos datos: estado de la edificación, habitabilidad, zonas inundables, etcétera. Con esta tarea, se propuso la intervención de manera más puntual, determinando ejes

y sectores, de manera de facilitar un tránsito más fluido y permitir que ingresen los buses y camiones recolectores, y se plantearon los nuevos edificios y las pequeñas intervenciones donde se mantiene lo construido. Se reubicaron 200 familias, pero se proyectaron 240 nuevas viviendas, porque algunas familias compartían la vivienda original. La densificación permitió crear nuevos espacios públicos. El proyecto son láminas muy compactas, de planta baja más libre, y cuatro pisos, sin ascensor: con ello se logró mayor accesibilidad y economía. La calle comercial se potenció con los comercios en el nivel de vereda e incorporados a los edificios. Las láminas son dos bloques separados por una circulación al aire libre, lo que facilita la ventilación cruzada de las unidades. En Brasil, esta condición es básica, por el clima cálido y húmedo. La construcción llevó muchos años y aún continúa; por ello, los edificios empezaron a deteriorarse, hasta que la comunidad decidió ocuparlos después de siete años de iniciada la obra: a partir de ese momento, los edificios están cuidados. […] El edificio, cuando gana vida, crea personalidad. La obra no está terminada, pero ya la gente incorporó su impronta a los edificios: cambios de piso, de puertas de entrada, la incorporación de plantas, los objetos que se dejan en los pasillos. El desafío para nosotros, con escasos recursos, es transmitir cierta dignidad al hábitat de la gente: es un servicio urbano esencial. No solo tiene que ver con la vivienda, incluye los servicios, lo comunitario, el valor simbólico, darle visibilidad. Las láminas están muy claras en el paisaje urbano, es una declaración: “aquí están viviendo los pobres y además viviendo bien”. Lo que hemos aprendido de esta obra es la visibilidad otorgada a la comunidad -hoy es una comunidad muy fuerte, con mucha cohesión-, y creo que los arquitectos contribuimos un poco para lograrlo.

PRADERA VERTICAL

VIVIENDA

MULTIFAMILIAR / CABA

DEL PUERTO, SARDÍN, BERSON

Es un edificio en medio de la ciudad. Plantea cómo recuperar un terreno de la pampa en la ciudad, cómo tener contacto con la naturaleza, cómo ver el horizonte. Inspirado un poco en dibujos que hacía Amancio para sus viviendas aterrazadas, en un cuadro de Noé que representa una tormenta en la pampa. Queríamos recuperar todo eso.

El edificio se arma con terrazas que, a su vez, componen una especie de brise-soleil, de parasol. Aparecen huertas y otros elementos presentes en obras nuestras.

El impacto urbano es importante porque la obra abarca cuatro lotes: en la fachada aparecen las plantas colgando de los maceteros -hasta plantaron puerros y zanahorias-, y para la persona que camina por la vereda, las vivencias son muy diferentes a las que provoca un muro ciego. En el proyecto hay puentes, maceteros que están flotando, vegetación que provoca la visita de colibríes y de mariposas. Aquí sucede lo mismo que en otras obras, pero a otra escala.

PLANTA BAJA
PLANTA PRIMER PISO
PLANTA SEGUNDO PISO
PLANTA TERCER PISO
PLANTA CUARTO PISO
VISTA FRENTE
CORTE ESCALONADO

HOSPITAL

DE MATADEROS, ENTORNO DE VILLA 15

Y NÚCLEO HABITACIONAL

TRANSITORIO: REHABILITACIÓN Y TRANSFORMACIÓN / CABA

EDUARDO CRIVOS

Es tan importante saber proyectar y construir como gestionar y esto se ve en la obra que voy a mostrar: un proyecto de rehabilitación y transformación del hospital de Mataderos, el entorno de la Villa 15 y núcleo habitacional transitorio, que hicimos hace 17 años. Las Madres de Plaza de Mayo intervinieron en este edificio tres años antes de nuestra llegada, construyendo un comedor y una guardería para 250 menores, trabajando para niños y madres solteras, trabajando denodadamente. También comenzaron a construir viviendas con los propios habitantes del barrio, el núcleo habitacional. Villa 15 es Ciudad Oculta, en el sur de la Ciudad de Buenos Aires, al borde de la avenida Gral. Paz, con 30.000 habitantes en ese momento; hoy, seguramente deben ser muchos más. Nos convocaron porque este hospital -iniciado en el año 38 durante la presidencia de Justo, que Perón no pudo terminar-, se ha transformado hoy en un hito urbano para un entorno poblacional que lo tiene como referente. Es un edificio de 14 niveles, con gente habitándolo hasta el tercer piso, 250 a 280 personas. Al recorrerlo, no sin estupor, nos encontramos con pasillos de 150 metros de largo, 4.000 metros cuadrados de planta y 60.000 de edificio, parado durante 70 años, incólume y con todas las condiciones para ser reactivado. […] Relevamos totalmente el edificio y la estructura, con la participación de estudiantes y arquitectos. Nos fuimos incorporando a la tarea de las Madres con la impresión de que no podíamos fallarles. […] Queríamos recuperar el edificio funcionalmente, pero también arquitectónicamente. Recurrimos a la caja de herramientas de

los arquitectos: seccionar lo existente en partes, con el criterio de basamento y torre, y utilizar la quinta fachada para incorporar sistemas energéticos solares. Como las Madres pensaban dar contención social desde la educación y la cultura, incorporamos también un programa educativo, con jardín maternal y de infantes, escuela primaria y escuela secundaria técnica. También una universidad. […] Intentamos que el predio y el edificio tuvieran vínculos con el entorno en todos los lugares de su perímetro, ya que las circulaciones confluían al hospital. […]

El edificio terminado contaba con 332 viviendas de uno, dos y tres dormitorios, para 1288 personas, con equipamiento educativo, de salud y social. También se preveían espacios de reunión y trabajo y un centro de abastecimiento. Era una ciudad.

En conclusión, una gran tarea humanitaria y de derechos humanos, una militancia de dos años, una puesta en marcha de algo que creo era único en Argentina, pero debido al diferente color político entre el gobierno local y nacional, el proyecto eclosionó. Hoy, el edificio se transformó en el Ministerio de Desarrollo Social de CABA, con dos o tres niveles. El resto se demolió.

A pesar de no haber podido concretar la obra, la transformación edilicia es un camino posible, con este proyecto demostramos que los arquitectos estamos capacitados para hacer buena arquitectura con lo existente. Hay que encontrar caminos para la esperanza, para la utopía, para el “se puede”. Nosotros, por lo menos, llegamos a un legajo. Una tarea sacrificada de 45 personas para mostrar una de las tantas alternativas para atender el déficit habitacional.

TAKURÚ (TERMITERO)

VIVIENDA UNIFAMILIAR / PARAGUAY

JOSÉ CUBILLA

Es una vivienda en un lugar hermoso, para una familia campesina, sin dinero. Y aparece algo que hacía años que quería intentar, que es hacer la casa de tierra. Hasta entonces, nadie se animaba y los proyectos eran rebotados: siempre estaba el temor de considerarlo algo muy vernacular, muy rural. En esta casa, la inspiración fue el takurú, el termitero: es lo que finalmente hicimos. El takurú es el lugar donde se protege a la reina, está en el subsuelo y cuenta con un sistema de ventilación increíble. Con esta idea de usar la tierra, empezamos a diseñar una pieza como si fueran ladrillos. La familia tenía planta para hacer dos piezas, pero eran como 14. Diseñamos entonces una casa con tres partes: la A era la zona social, la C, el área de los padres, y la B, de los hijos. Con esa imagen, con el concepto de reciprocidad y como tienen animales, decidimos darles un reservorio de agua, y con la tierra que sacamos de la excavación, construimos un sistema de tapiales, de muros portantes, y unos ladrillos de tierra que eran para el interior. La exploración con este proyecto salió muy bien; el techo lo hicimos curvo porque era un lugar de dificultosa accesibilidad, y no podíamos traer ni tejas ni chapas. Decidimos producir con lo que teníamos: el 87% de los materiales son del mismo sitio, y eso es increíble.

Esto cierra como una ecuación, con un impacto que es como el de las termitas en el lugar donde construyen el termitero. El sistema tapial es prácticamente en seco, se usa la humedad del suelo. Con los ladrillos fabricados se hicieron los techos, las bóvedas. Si utilizábamos ladrillos o construcción tradicional, hubiéramos podido hacer menos metros cuadrados.

También se fabricó un sistema de ventilación por subsuelo, pozos canadienses. No había plata para aires acondicionado, así que dijimos “vamos por todo”: empezamos a investigar y resultó ese sistema, que funciona muy bien. El calor de 42º ingresa por una especie de serpentina y sale al exterior por unos tubos en los lugares de los dormitorios, eso baja mucho la temperatura. También se trató el agua: teníamos un arroyo cerca.

Hicimos una exploración de lo que teníamos en el lugar. Siento que realizamos un trabajo de diseño contemporáneo, que no es un estilo, es la clave contemporánea de entender que tenemos que hacer en este tiempo de crisis y de muchos problemas ambientales, de decisiones que tomamos los arquitectos y son tremendamente perjudiciales. Estamos en la línea de provocar el menor impacto.

SESC 24 DE MAYO

EQUIPAMIENTO SOCIAL / SAN

PABLO

MENDEZ DA ROCHA-MMBB (MARTA MOREIRA)

Estamos involucrados en la construcción o la reformulación de edificios en el centro de la ciudad. El SECS 24 de Mayo es un proyecto de Mendez Da Rocha, en el que colaboramos.

La transformación de la ciudad es función de la transformación de la vida y lo que esta experimente, la posibilidad de esa transformación. El SESC está cerca del centro histórico de San Pablo, de la Plaza de la República. El proyecto, que es la reformulación de un edificio existente, tiene una piscina pública en la terraza, es un equipamiento para la ciudad. La piscina es una manera de imaginar la ciudad que nos gustaría hacer.

El SESC funciona en un edificio privado, pero el organismo que lo administra recibe fondos públicos, que son un porcentaje de los impuestos que se abonan por actividades comerciales y de servicios. Existía la referencia del SESC Pompeia, de Lina Bo Bardi, que es una maravilla. Cuando comenzamos a pensar el programa, la piscina ocupaba un lugar importante; básicamente, debía estar al sol. […]

El edificio existente era un edificio de departamentos, y en principio se consideró su demolición, por su adaptación compleja al programa. Sin embargo, el edificio tenía un vacío central. Se demolió parcialmente, conservando las áreas más adaptables en

13 pisos, en torno al vacío. La piscina posee una estructura independiente del resto del edificio, y permite algunas vistas muy interesantes de la ciudad.

El programa del Centro es cultural y deportivo, distribuido en distintos niveles, en vertical, y organizado por una circulación en rampa, que recorre el edificio como una extensión de la vereda. El diseño facilita el acceso y el uso del edificio de manera confortable. El SESC también tiene una plaza que abarca el centro de manzana, una ocupación de ese espacio que en Buenos Aires se da con las galerías comerciales. En el espacio central, también se dan algunas alturas dobles. Para la zona de servicios y maquinarias, Da Rocha sugirió comprar un pequeño edificio aledaño al principal. El subsuelo existente, ampliado, fue ocupado por el teatro. En los primeros niveles funciona la administración, un restaurante y un espacio abierto, que tiene uso de plaza. La biblioteca ocupa dos niveles. Más arriba, los talleres de arte, los servicios de odontología y los niveles para el deporte y la danza, actividad muy vinculada con el barrio donde está el SESC. En el último piso, un café y un espejo de agua. Finalmente, rodeando la estructura de la piscina, los vestuarios. En la terraza, la piscina de 25 metro de lado, con vistas a la ciudad.

COVICIVI

VIVIENDA MULTIFAMILIAR / MONTEVIDEO

Me tocó trabajar con la cooperativa COVICIVI en las primeras experiencias de rehabilitación edilicia con cooperativas de ayuda mutua, en el área central de Montevideo. Con estas organizaciones, intervenimos sobre bienes con valor patrimonial. En este caso, en una ubicación fantástica, frente al puerto de Montevideo. El lote triangular recogía las tensiones de la manzana, y con los patios existentes pudimos trabajar los espacios comunes. Le robamos una idea al arquitecto sevillano Vázquez Consuegra: dúplex sobre dúplex, invertido el que estaba en la parte superior, con los dormitorios abajo y los estares arriba. Con esta idea, duplicamos el espacio colectivo y el espacio público de la cooperativa con el último nivel del proyecto. Lo más interesante fue trabajar en estos contextos complejos con autoconstrucción organizada. Eso fue muy potente: la gente desarrollando el proyecto en asambleas eternas, donde había controversias con los técnicos y distintos saberes a los de la academia. La obra fue finalista en la competencia para el premio Mies Van Der Rhoe de arquitectura latinoamericana, fue la única obra destinada a vivienda social. Ahí se hizo bastante conocida.

CONTENIDO PORTÁTIL

EQUIPAJE DE VIAJE DE UN COLEGIO PROFESIONAL

ARQUITECTO MIGUEL VECINO

Coexiste un dilema que nos persigue cuando especulamos y operamos en nuestros territorios entre la teoría y la práctica cotidiana. El equipo curatorial de la XI Bienal de Arquitectura y Urbanismo del CAPBA / XI BAU 2024 asumió este desafío de aportar y generar un espacio de conveniencia donde reconocer nuestros ecosistemas de saberes en contexto y los modos en que los expandimos y legitimamos para ponerlos en valor. Pensamos en reunir alrededor de la arquitectura y el urbanismo una experiencia que pueda itinerar, desplazarse por nuestros territorios acometiendo a partir del encuentro y la reflexión aquellos contenidos que exploramos en la Bienal a partir de los talleres y foros temáticos que sustentaron el evento.

Entendíamos que una simple caja puede contener y moverse de aquí para allá como una maleta de viaje, algo que la historia del arte y de la arquitectura acreditan con ejemplos sustentados por un principio metafísico atribuido al filósofo griego Parménides ¨Nada surge de la nada, o de la nada, nada surge”, indicativo del objeto en sí mismo pero también de su carácter de objeto de flujo, portador de contenidos, que nos permitía disponer de una hipótesis sobre nuestras realidades y la manera en que operamos para transformarlas.

Estonoesunacaja fue el punto de partida de una estrategia operativa cuya pretensión, centrada en la producción y pensamiento acumulado, lograra una formalización inmersiva para llegar a todos los sitios disponibles de la provincia, como una manera de transversalizar el conocimiento y la experiencia de los colegas. La importancia de centrarse en el proceso de intercambio de conocimiento situado y generación de nuevos contenidos a su paso, expande el concepto de la Bienal como instancia de vinculación

entro lo disciplinar, la profesión y la actualidad de la práctica consciente de la arquitectura bonaerense.

La construcción de seis cajas que incluyen un sistema grafico integral que abarca las actividades de participación de la matrícula -el Premios Estímulo y Obra Construida Capba 2023 y Obra Construida Histórica, el mapeo provincial de Obras Estatales y el Programa de Obras Patrimoniales bonaerense-, además del catálogo de la Bienal, permiten exponer estas producciones para crear continuidades territoriales y de pensamiento crítico frente a la oportunidad para visibilizar la naturaleza del fundamento del pensar y hacer como resistencia a las contingencias y como persistencia en tanto dinámica del día a día de nuestra disciplina y profesión.

El primer objetivo del despliegue de la exposición en Mar del Plata, sede de la Bienal, fue hacer visible el material y los diversos temáticos abordados sobres las que se ha trabajado en nuestros territorios, lo cual implica poner a disposición la producción significativa y actual de nuestros profesionales de la arquitectura y el urbanismo. La presencia a modo de mapeo releva las actividades, proyectos, dinámicas y gestiones que exponen la construcción crítica y situada de un colectivo de profesionales activo para con nuestras agendas urbanas y competentes; asimismo, el marco de la Bienal contextualiza dicha producción.

Lo presentado nos invita a realizar recorridos, a la curiosidad que estimula la participación con el objetivo de difundir itinerando por el territorio provincial, a los debates locales, a los intercambios para conocer, a los encuentros para explorar, reflexionar y afianzar las tareas que desempeñamos en el cotidiano de nuestras ciudades. Esta muestra itinerante intenta ser el inicio de una nueva línea temporal para pensar con ojos propios nuestro hacer más adecuado.

PRIMER CONGRESO DE BIOCONSTRUCCIÓN Y CAMBIO CLIMÁTICO

La tierra cruda, la madera y el bambú como alternativas constructivas que contemplen el cuidado ambiental y el cambio climático fue la problemática central del Congreso, desplegada por diversos expositores/as y abordada en distintos foros. La relatoría del evento y un artículo de la arquitecta Elizabeth Vergara que re-

BAJO LA SOMBRA DEL ALGARROBO *

* En las comunidades de los pueblos originarios que habitan el norte de nuestro país, son habituales las reuniones bajo la sombra de un algarrobo para escuchar a lxs ancianxs, a lxs que se considera custodias de saberes ancestrales, indispensables para la toma de decisiones.

CONSEJO EDITORIAL

No por obvia, la primera pregunta que debiéramos hacernos es qué nos dejó como experiencia este primer Congreso de Bioconstrucción y Cambio Climático, organizado por el CAPBA en su sede platense, durante el 17 y 18 de octubre de 2024. Se abre desde ahí un sin número de posibles respuestas, que iremos respondiendo a lo largo de esta breve relatoría que compartimos, selectiva, valorativa, que pretendemos alejada de la mera descripción.

Conscientes de la sobre abundancia de información sobre un tema tan delicado como lo es el cuidado ambiental y el cambio climático, intentamos evitar las generalidades haciendo foco en tres biomateriales en particular, entendiendo que, desde allí, podíamos dar con un abordaje más adecuado al expertise de los potenciales asistentes. Ahora bien, asumido de este modo, se abrieron -al menos- dos posibilidades de organización: o apuntábamos los esfuerzos directamente al mes de octubre, o ensayábamos encuentros previos destinados a ajustar la agenda de expositores y sus ponencias, tanto como los foros que la complementarían.

La opción por la segunda alterativa, más laboriosa, da cuenta de un interés puesto en anticipar mejores respuestas a una demanda de conocimiento preciso y específico. Los hechos demostraron que tomamos una decisión acertada.

En la editorial del fascículo CAPBA #17, sosteníamos:

“Tenemos la íntima convicción que hemos reabierto un saludable espacio de debate en el CAPBA, que va más allá de los biomateriales o de la sostenibilidad ambiental. El interés que despertó el Congreso, particularmente en las/los jóvenes arquitectos/os, da cuenta, a nuestro entender, de la necesidad de actualizar la agenda profesional.”

“Tratándose de prácticas ancestrales, muy vinculadas a los saberes populares, no podemos -no debemos- desconocer que ha habido, y seguirán allí, resistencias a su abordaje hacia el interior de una institución

como el CAPBA, donde conviven miradas más académicas, si se quiere, con otras más ligadas al quehacer profesional cotidiano, al de las arquitectas y arquitectos de a pie, para ser más claros. Es inevitable que así suceda, en esta o cualquier entidad profesional.”

“En este sentido, es fundamental poner en valor los encuentros preparatorios que fueron haciéndose en algunas localidades de la provincia -San Isidro, San Martín, Tigre, San Pedro, Vicente López-. Todos ellos se constituyeron en un insumo de trabajo excepcional para ir comprendiendo la real dimensión de una demanda muy instalada en buena parte de la matrícula, particularmente la más joven.” …y lo seguimos sosteniendo. No debiéramos olvidar que los saberes que hoy constituyen el cuerpo académico de nuestra disciplina, en algún momento, fueron marginales.

La estructura elegida para poner en marcha el Congreso retomó el formato de la XI Bienal CAPBA -Mar del Plata, 2024-, que se mostró claramente eficaz: ponencias por la mañana, esta vez en el Auditorio de la Caja de Previsión del Colegio de Abogados de la Provincia de Buenos Aires, y foros por la tarde, en la sede del Consejo Superior del CAPBA. A sala llena y Consejo Superior desbordado, las dos jornadas dieron cuenta de una demanda ineludible, que exige, a nuestro entender, de una agenda precisa como hoja de ruta. Las palabras de apertura de Ramón Rojo y Silvia Safar, como representantes institucionales del CAPBA, fueron elocuentes en ese sentido, siendo claros al manifestar que el camino a transitar es una construcción permanente, con idas y vueltas, e inevitablemente colectivo. Es cierto que afirmaciones de este tipo se dicen asiduamente, y suelen ser solo frases de ocasión. También es cierto que es responsabilidad de todas/os quienes integramos el Colegio, hacer que sucedan; con generosidad como punto de partida, con mirada crítica, como condición indispensable.

IMAGEN 1

PONENCIAS

Las ponencias presentadas por los expositores, tanto en la primera como en la segunda jornada, pueden ser consultadas en la plataforma CAPBA TV. Al inicio de los apartados correspondientes a cada jornada, se pueden encontrar los vínculos para acceder a estos documentos audiovisuales.

JORNADA 1. JUEVES 17/10

Presentación

1. Sustentabilidad y bioconstrucción en la provincia de Buenos Aires / Arquitecta Elizabeth Vergara / https://youtu.be/dTZ2ExnpzVo Construcción con Tierra Cruda Estabilizada

2. ¿Por qué construir con tierra? / Arquitectas Bettina Tommei y Mercedes Codone (Tika Bio Arq) / https://youtu.be/FuAmtbjDd_I

3. Red ProTierra Argentina / Arquitecta Aldana Farabello https://youtu.be/7tZwW5diias

4. De las zonas áridas y la arquitectura vernácula a las zonas húmedas urbanas y la arquitectura contemporánea en tierra / Arquitecta María Laura Giovino / https://youtu.be/jj4eklYkjLQ

5. Los “uritectos” de la tierra / Arquitecto Jorge Lema https://youtu.be/PKpXxQxZ6Zk

6. Experiencias / Arquitecto ingeniero Felipe Ramírez Ilculese

https://youtu.be/XTQPYOa-YY4

7. La ruta del adobe / Arquitecta Silvia Zalazar https://youtu.be/cWOBKXrRcjA

Bioconstrucción y Cambio Climático

Elisabeth Vergara, como responsable del Departamento de Bio Construcción del CAPBA, dio inicio a las ponencias del primer día, con un repaso breve del estado de situación de las condiciones ambientales planetarias y de nuestra región en particular. Los datos que puso sobre la mesa son tan contundentes y tan sólidamente fundamentados, que resulta difícil -muy- comprender a quienes niegan el cambio climático, sobre todo cuando se trata de figuras con altas responsabilidades institucionales. Son tan distópicas este tipo de actitudes, que pueden inducirnos a tomarlas en sorna, como posiciones delirantes. Nos parece que no es aconsejable ir por ahí. Aquellas/os que promueven los movimientos negacionistas no tienen interés en debatir -no podrían hacerlo, y lo saben-, aunque son muy lúcidos a la hora de identificar -y defender- qué actores intentan correr el cambio climático de la agenda global. Y no son únicamente las autoridades políticas de los países altamente desarrollados, como podía creerse, en defensa de sus sofisticadas estructuras económicas; se trata de grandes corporaciones trasnacionalizadas. Quienes las representan permanecen discretamente corridos de la escena pública y saben bien del deterioro ambiental producido por su actividad;

IMAGEN

IMAGEN 4

ganar tiempo ha sido siempre una de sus especialidades. Es por ello que insistimos, cada vez que tenemos la oportunidad, en invitarlas/os a ejercitar la lectura entrelíneas, un modo razonablemente eficaz -nunca infalible- para la desmenuzar la compleja realidad en la que nos movemos. Canalizar información correcta e impulsar la elaboración de conocimiento de manera colaborativa es una tarea que da sentido a la propia existencia del CAPBA como el colectivo profesional que somos.

Eli Vergara aporta imágenes muy elocuentes (img. 1/2/3), un diagnostico difícil de refutar (img. 4/5), y algunas soluciones posibles (img. 6). No son soluciones novedosas, claramente. Han permanecido entre nosotras/os por siglos, constituyendo un acervo cultural que está ahí disponible, para atravesarlo con la experiencia contemporánea.

Construir con Tierra

“El saber popular ha sido siempre parte esencial de la arquitectura. Su mayor o menor sostenibilidad radica en cuanto se acerca o se aleja de él como inspiración. Claro que no es una verdad absoluta, no podría serlo nunca; aunque debiéramos admitir que su condición relativa ha logrado atravesar el tiempo y llegar hasta aquí casi indemne. Claro está que el saber del artesano, primer escalón en la producción racional de la arquitectura, ha dado paso al cuerpo de conocimiento técnico del que hoy disponemos, con un grado de sofisticación inimaginable unas pocas décadas atrás.”

Fascículo CAPBA #13

Las arquitectas Bettina Tommei y Mercedes Codone, del estudio Tika Bio Arquitectura, dieron comienzo al ciclo de conferencias de construcción en tierra cruda, proponiendo un breve recorrido por las diversas técnicas que se aplican en nuestro país, desde mamposterías elevadas con los conocidos ladrillos de adobe, bloques de tierra alivianada (BTA), elaborados más artesanamente, o de tierra comprimida (BTC), que incorporan prensas hidráulicas en su fabricación, hasta técnicas más complejas como la Tapia o Tapial (tierra vertida en el interior de encofrados), los modelados directos (COB) o la más habitual Quincha (entramados de madera rellenos de tierra y fibras).Técnicas que, además, se combinan mutuamente en atención a cada situación, a cada sitio . (img. 7/12) Sin soslayar la solidez de su presentación, elegimos compartir particularmente dos comentarios que hicieron al final de su exposición respecto a su experiencia personal con la construcción en tierra. Por un lado, Mercedes habló de la recuperación de su amor por la profesión, y por el otro, Bettina, del efecto que tuvo en ella en términos de construcción de su propia identidad.

Creemos -y arriesgamos- que no son comentarios que deban dejarse pasar solo como reflexiones personales. La tierra cruda, construcción secular si las hay, conlleva una cercanía con la materialidad de la arquitectura que hemos ido perdiendo con el tiempo, cercanía que juzgamos necesario recuperar a fin de dotarla de pertinencia, de profunda conexión con los sitios y las gentes que los habitan. Si el origen de nuestra disciplina estuvo allí, quizá sea muy recomendable volver a transitar caminos colmados de experiencias, en un tiempo de tanta confusión como el actual.

IMAGEN 5

“Nuestros grandes maestros sabían construir, su labor asociaba naturalmente técnica y belleza, no ignoraban las tradiciones materiales de los lugares donde ponían en pie sus obras, ni su condición productiva. Quizá, se trate de una postura ética frente a la comunidad de la que eran parte -somos parte-, a la que hemos ido relegando para dar paso a un mundo de imágenes -bonitas, sin duda- que no transforman realidades; más bien las disimulan.” Fascículo CAPBA #13 Siendo modos de construir ancestrales y, por lo mismo, muy diversificados, la constitución de una red que se proponga como fin su divulgación y desarrollo, se convierte en un hecho casi obvio, necesario si se tiene en cuenta la dificultad de vincular saberes que nos atraviesa como sociedad. La Red ProTierra (Red Argentina para la Promoción y Desarrollo de la Arquitectura en Tierra) intenta ocupar ese rol tan indispensable, y a la vez, tan desafiante. Aldana Farabello, en la tercera presentación de la mañana, dio cuenta de una hoja de ruta que, iniciada en Jujuy en 1990 y 1995, hoy cuenta con una estructura institucio-

nal compleja, asociada a otras redes regionales y extra regionales. Su crecimiento es una muestra más -como se ha dicho antes- que el saber colaborativo es la expresión más cabal de la contemporaneidad. Su complejo entramado, tan inestable, requiere -a nuestro entenderde respuestas igual de complejas, imposibles de hallar en la individualidad. Es en red, en nuestra opinión, no hay otra manera. Hablábamos al comienzo de la necesitad de acceder a información precisa, fundamentada, para poder operar de manera correcta en nuestra práctica profesional. Al ser continuadores de una larga tradición, es nuestra responsabilidad hacia adelante reducir los márgenes de error de nuestras acciones, atenuar su impacto ambiental, y por ende, social. Obrar con responsabilidad requiere conocimiento, cuya base es información rigurosa y compartida colectivamente. Es información que se produce a diario, a cada minuto. Ponerla a disposición es tarea primaria de una entidad profesional como la nuestra; sirve de poco, si del otro lado no hay conciencia del riesgo que se corre si se decide ignorarla o desconocer su existencia. En esa línea, adquiere sentido el orden de aparición de la cuarta ponencia de aquel jueves, cuando Laura Giovino presentó algunos casos de investigación científica respecto al desempeño de viviendas construidas en tierra en diversos climas, a modo de auditoría, si se quiere; sin lugar a dudas, el método correcto para lograr avances cualitativos en nuestros modos de construir y habitar. La información científica es una aliada maravillosa e imprescindible de la imaginación creativa a la hora de dar con las respuestas correctas que se nos requiere como arquitectas/os. La arquitectura vernácula es pródiga en obras adaptadas eficientemente al clima y al sitio; su investigación rigurosa en todas sus dimensiones es un enorme aporte sobre el legado que nos han dejado las generaciones que nos precedieron. Sostenerla, profundizarla -y aplicarla-, es de primaria necesidad. Ante condiciones climáticas similares, las respuestas materiales locales suelen serlo también, aún en sitios geográficos muy distantes entre sí; lo reafirma Laura a partir de sus investigaciones y sus viajes. Si bien estos comentarios pueden parecer obvios, y de hecho lo son, no es tan habitual que se recurra a esa experiencia comparada en nuestros abordajes proyectuales. En alguna medida, es cierto que es información que aparece fragmentada y de fuentes muy diversas, lo cual hace muy difícil la tarea de compilación para una/un arquitecta/o de a pie, con escaso tiempo para abstraerse de su labor cotidiana. Una entidad como el CAPBA sí puedo hacerlo. En eso estamos. Las siguientes dos conferencias establecieron un tipo curioso de contrapunto entre dos modos de operar diferentes, de ninguna manera contrapuestos. Que su complementariedad -en la que creemos- sea evidente es la tarea que nos autoimpusimos. La exposición de Jorge Lema trajo al Congreso tres ejemplos de obras construidas de modo colaborativo en la provincia de Córdoba, entre amigas/os y vecinas/os, con asistencia profesional mínima: la casa de Diego y Liliana (img. 13/14), la casa de Hernán (img. 15/16) y la Cooperativa Olga Cossetini (img. 17/18)

Las destrezas populares -muchas- se ponen aquí en juego, de modo espontáneo y solidario. Materialidades sorprendentes, soluciones espaciales muy atendibles y adecuadas, de puro sentido común, se combinan aquí con la alegría del trabajo solidario que no distingue de pertenencias sociales, a sabiendas que se si mejora sustancialmente la vida de un otra u otra, se enriquece la propia. Sabemos que el resultado formal, lingüístico y/o funcional recibirá muchas objeciones de una buena parte de quienes hemos sido formados en nuestras escuelas de arquitectura. Sabemos también que la construcción en tierra tiene una fuerte connotación espiritual y simbólica que la precede, de la que Jorge Lema dio cuenta sobradamente. Elegimos no adentrarnos allí porque excede las capacidades de este breve relato que estamos escribiendo. Sí creemos que correrse de ese lugar, y enfocar en su faz técnica, abre la posibilidad de conocer mejor sus virtudes materiales. “El saber popular ha sido siempre parte esencial de la arquitectura. Su mayor o menor sostenibilidad radica en cuanto se acerca o se aleja de él como inspiración.”

Fascículo CAPBA #14. Editorial

Felipe Ramírez, socio de la Oficina de Arquitectura X, en su condición de arquitecto, ingeniero e investigador paraguayo, instala en otro plano la construcción en tierra. Aquí sí el proyecto de arquitectura incorpora el saber académico en todas sus dimensiones, aplicado con la inteligencia que requiere integrar el saber popular, los modos de construcción de extensa tradición, la investigación científica de las escuelas de formación y la práctica profesional. El resultado -a nuestro juicio- es una arquitectura simple y sofisticada a la vez, experimental en el mejor sentido: no abandonar nunca la búsqueda de nuevas y mejores soluciones a los viejos problemas. La pertinencia que exhibe la obra de Felipe frente a un paisaje, a un sitio o a un contexto productivo específico no es producto de la obsesión por un material determinado, por tal y cual técnica; es la convicción de que cada proyecto contiene en sí mismo la respuesta necesaria, esto es, pertinente. Para ello, entendemos, la investigación y el estudio riguroso son condiciones disciplinares indispensables, insuficientes si se soslayan los saberes populares construidos por generaciones. (img. 19/28)

Cuando se escucha a Felipe y se atiende su trayectoria, la decisión de ampliar su horizonte técnico hasta convertirse en arquitecto-ingeniero, nos lleva a preguntarnos si aquella no tan lejana separación entre arquitectura e ingeniería ha sido una opción inteligente para nuestras escuelas de formación. La obra de Paulo Mendes Da Rocha, Vilanova Artigas o Severiano Porto en Brasil, Eladio Dieste en Uruguay, o Mario Roberto Álvarez en Argentina, dejan la pregunta abierta.

La Ruta del Adobe fue el tema elegido para dar cierre a primera jornada del Congreso. Silvia Zalazar dio cuenta de un proyecto que lleva a adelante Catamarca, la provincia donde reside y trabaja. Extendida a lo largo de la ruta nacional 60, entre Tinogasta y Fiambalá, la ruta del

adobe no solo materializa un circuito turístico y una fuente de recursos económicos, construye un relato histórico coherente sobre piezas materiales dispersas, fragmentos que por sí solos no pueden explicar un territorio. De algún modo, es el tipo de sutura que requiere la memoria colectiva para constituirse en pensamiento crítico, en identidad común, en una suerte de insumo básico a la hora de elevar la autoestima de una comunidad. En definitiva, es comprender que se tiene algo –mucho- para decir sobre el pasado y el futuro. De Tinosgasta a Fiambalá descubriremos que aquellos modos de construcción en tierra de los que hemos hablado hasta aquí, ya estaban allí desde principios del siglo XVIII, y aún más atras.

“Tradición y contemporaneidad son convergentes. Se retroalimentan, no se excluyen. Quien sostenga lo contrario corre el riesgo de sobrevalorar el pasado sin percibir que el presente es siempre una oportunidad. En tanto y cuanto pongamos en valor nuestro acervo cultural.”

Fascículo CAPBA #14. Editorial

Se preguntaba Eli Vergara, a principio de su exposición, si la bioconstrucción es una moda fugaz o una imperiosa necesidad. En la búsqueda de una narrativa coherente y un discurso que alinee pensamiento, sentimiento y acción puso en juego una primera respuesta. La ruta del adobe recorre ese camino, el mismo que explica el lugar que ocupó en el orden de conferencias en el primer día del Congreso.

JORNADA 2. VIERNES 18/10

Construir con Bambú 1. Innovación y Sostenibilidad: Casa Olas y la Geometría Natural en la Arquitectura Sostenible / Arquitecto Jaime Peña https://youtu.be/VGqdqRsvlII

2. Economía Circular y Bioconstrucción para un Futuro Sostenible / Arquitecta Carolina Zuluaga / https://youtu.be/5gSIAk_p69U

3. El Bambú como Alternativa Sostenible / Cristian Massat y Solución Bambú / https://youtu.be/UHCUysLWihc

“El bambú, como los otros materiales de los que hemos venido hablando, han sido utilizados por siglos, siempre en relación a disponibilidades cercanas, a prácticas constructivas consolidadas por generaciones, sin que ello implicara la destrucción sistemática del ambiente. Su conservación en términos conceptuales -no literales- no significa volver el tiempo atrás, un imposible, por otra parte; es, más bien, la oportunidad de identificar saberes ancestrales que recorrieron ya un camino, con aciertos y errores, pero que han dejado un legado indispensable para la salvaguarda de nuestro planeta, nuestra casa común, aunque suene tan obvio volver a decirlo. Ignorar voluntariamente esas tradiciones, asociar nuestro pensamiento al cambio permanente, no disponer del tiempo para reflexionar sobre la información que recibimos, de quien la recibimos, nos lleva, a nuestro entender, a alejarnos de la propia esencia de la disciplina en la que ejercemos nuestra práctica. Somos constructores del hábitat común, y como tales, debemos poder precisar el alcance de nuestro trabajo, ampliar sus márgenes adquiriendo nuevos saberes, pero, y sobre todo, construir y/o afianzar capacidades para discernir el contexto ambiental, cultural y productivo en el que nos manejamos. De otra manera, se corre el riego de discutir lo que no hay que discutir -la realidad del cambio climático, por ejemplo- sin abordar seriamente el sentido de la Arquitectura en la contemporaneidad.”

Fascículo CAPBA #16. Editorial

Las tres conferencias iniciales del viernes fueron, de un u otro modo, en ese sentido. Jaime Peña, a partir de la presentación de una sola obra, reciente, dio cuenta de una práctica profesional esencialmente ligada a las lógicas geométricas que va descifrando en la naturaleza (img. 30/36). Si bien asume la condición intuitiva de sus abordajes proyectuales, no deja de puntualizar la necesidad de su validación técnica, basada en la exploración científica rigurosa y permanente, que es labor cotidiana

de su oficina. En ese punto, hemos insistido en las publicaciones previas al Congreso, donde vemos que se expresa de la mejor manera el cruce de saberes ancestrales con los dispositivos de producción de conocimiento contemporáneo. Como resultado de ese proceso, entendemos, nos encontramos con una obra de elaboración muy compleja -tanto como este tiempo que vivimos-, pero construida por una mano de obra claramente derivada de los viejos saberes populares transmitidos por fuera de la educación formal.

No deja de impactar que un edificio tan sofisticado, sea levantado de manera tan amable con la condición física de los constructores -y las constructoras-. Cuando hablamos de sustentabilidad, también hablamos de estas cosas. La opción por las formas orgánicas que provee la naturaleza es eso, una opción. Jaime Peña, con convicción, pone el foco allí. No necesariamente es ese el camino, es solo uno de ellos; no necesariamente deban asociarse los biomateriales a su condición de origen.

Carolina Zuluaga expuso a su turno, una obra menos experimental que la de Jaime Peña, aunque muy cercana en cuanto a su rigor técnico. Su obra está más ligada al mercado productivo, a la economía circular, apuntada a una producción a mayor escala, a la difusión masiva de un tipo de materialidad que juzga imprescindible en términos de resguardo ambiental (img. 40/45). De hecho, su labor profesional ha ido mutando, sin abandonarla, de la vivienda unifamiliar de alto costo a propuestas de vivienda destinadas a sectores sociales que encuentran muy difícil acceder a ella. Si bien hasta ahora permanecen en estado de proyecto, seguramente más temprano que tarde, encontrarán el modo de convertirse en hechos construidos. En Carolina Zuluaga es más evidente que en la obra de Jaime Peña, la idea de reinterpretar saberes populares ancestrales y transformarlos en realidad contemporánea. La experiencia de uno y otra no se contraponen, se retroalimentan para consolidar una opción constructiva que entienden formidable. Cristian Massat, de Solución Bambú (https://www.instagram. com/solucionbambu/), no es arquitecto. Se autodefine como militante del bambú… al escucharlo, no hay dudas que lo es. Según sus propias palabras, son las cualidades tan extraordinarias

del bambú las que lo llevaron asumir esa condición. Trascribimos algunos párrafos de un artículo del que es autor -Casa Viva Bio Arquitectura con Bambú- y que publicamos en el fascículo CAPBA #16. Este texto ha sido la base de su conferencia y, como tal, contiene buena parte de lo dicho allí, que no es as ni menos que sus muchos años de experiencia con este tan particular biomaterial. (img.46/49)

Dice allí Cristian Massat:

“Una casa de bambú, si está bien diseñada, puede ser heredada por tus hijos y tus nietos, pero las plantas que cedieron las cañas con las que la construiste, seguirán vivas durante muchos años siguientes a esa poda selectiva que aportó el material, quizás tantos años como dure la edificación.

Saber que las plantas proveedoras de la materia estructural de ese nuevo hogar siguen capturando CO2, creando y nutriendo suelo, siendo hogar de biodiversidad, conservando agua y -entre otras cosas- aportando más cañas para otros hogares como el tuyo, es una buena razón para que sientas la satisfacción de haber elegido muy bien la clase de material para tu obra”.[…]

“La bioconstrucción es un verdadero paso para desacelerar la caída de la calidad ambiental, pero también, es un gesto de amor profundo a los usuarios de esas edificaciones, en tanto los hogares realizados con estos materiales constituyen un hecho cultural fundacional y un mensaje de salud, vida y esperanza para las nuevas generaciones que nacen y se crían en contacto con madera tierra y bambú”. […]

“En el laboratorio de materiales, la caña soporta grandes presiones a los esfuerzos de compresión, pero donde se destaca es en la resistencia a la tracción. Tanto, que cuando se la compara por unidad de medida con el hierro de construcción, la mayoría de las especies que se usan para estructuras, son aún más resistentes. Esta es la razón por la cual el genial arquitecto colombiano Simón Vélez le dio el título de acero vegetal”.[…]

“Con bambú y mediante procesos manuales se realizan artesanías, instrumentos musicales, muebles y bicicletas. Mediante procesos industriales se puede extraer la parte más dura de la pared de la caña para construir todo lo que se construye con maderas duras:

transitables, puertas, marcos, muebles, vigas, columnas, machimbres, torneados y cientos de alternativas, tanto para la bio construcción como para la construcción convencional, la industria del mueble, utensilios de cocina y gastronómicos, y artículos deportivos (hockey, béisbol, cricket, croquet, paddle, remo, skate, snowboard, sandboard, esquí, surf, kitesurf).

Cuando la pared de la caña se lamina, sus fibras largas, finas y resistentes permiten fabricar delgadísimos terciados de alta resistencia, que se utilizan en revestimientos y embarcaciones para reemplazar al plástico. En China se lo devana para sustituir la fibra de vidrio y con resina epoxi se construyen mega estructuras, como las aspas de los generadores eólicos, tubos de enorme caudal y alta resistencia para encauzar ríos o hacer túneles, carrocerías del tren bala, fuselajes embarcaciones… y sigue la lista”.[…]

“Definitivamente, se trata de una herramienta multifacética para el manejo de la contingencia ambiental. Definitivamente puede constituirse en una herramienta de desarrollo social cultural y político. Sin duda puede ser un motor generador de bienes económicos en una sinergia que aporta a los nuevos conceptos de economías sin sectores perdedores.”

Existen más de 200 especies de bambú aptas para la construcción, y enormes reservas de ellas en Argentina. Culturas milenarias como la China vuelven sobre sus pasos y pone en valor sus viejas tradiciones constructivas (Primera Bienal Internacional de Arquitectura en Bambú¬, Baoxi, Longquan, Shanghai, 2017). De esta manera han hecho enormes avances en la descontaminación de sus ciudades. Como se ve, no estamos antes un material novedoso (ver fascículo CAPBA #16), aunque sí es cierto que la técnica contemporánea lo ha revitalizado

Construir con Madera

1. Analía Díaz https://youtu.be/nJzjQNzg6QM

2. Javier Hernández

Analía Díaz continuó el ciclo de ponencias de la mañana con un breve repaso sobre su trayectoria en la Bioconstrucción, que hoy

la tiene desarrollando una tesis sobre madera para la Maestría en Gestión Ambiental y Desarrollo Urbano, en la Universidad Nacional de Mar del Plata, de la que también es docente. Particularmente impactada por la Bienal de Venecia 2016 -que su Director, Alejandro Aravena, llamó Reportando desde el frente-, Analía abre el juego exponiendo algunas generalidades respecto de las virtudes de la madera, que convierte en hechos tangibles a partir de tres obras que ha construido, una de ellas, su propia casa (img. 50/55). Desde allí plantea una mirada que fue consolidándose a lo largo del Congreso respecto a lo que llamamos sustentable y a lo que no; y que no solo involucra a quienes habitan los edificios, sino, y también, a quienes los construyen: saludables para unos y para otros. No basta con envolventes eficientes, el uso de energías renovables o biomateriales, no basta contribuir al resguardo ambiental si no hay una contraparte que atienda la salud física y espiritual de sus hacedores materiales. Javier Hernández, a partir de su extensa experiencia laboral como arquitecto, empresario, profesor universitario y asesor institucional, ubicó el eje de su exposición en los puntos donde mercado y estado debieran converger en un mismo sentido: avances sustanciales en la mejora ambiental a partir de ecuaciones financieras posibles de llevar adelante… ¿Qué implica decir esto? La necesaria construcción de un marco regulatorio riguroso, con la suficiente versatilidad para que pueda ser cumplido. Sencillo de decir, muy difícil de hacer. Javier da cuenta que, en ese lugar, la madera va varios pasos adelante respecto al resto de los bio materiales, y explica que los grandes incendios de la ciudad de Chicago en el siglo XIX fueron el punto de inflexión. Hasta ahí, las obras de madera fueron construyéndose prácticamente sin control, conducidas fundamentalmente por un mercado inmobiliario ávido de mayores ganancias. El resultado es conocido: por largo tiempo, la madera quedó relegada de la industria y reemplazada por el hierro y el acero. Sin embargo, siempre en palabras de Javier Hernández, con la certeza que la madera tiene enormes virtudes materiales, fue elaborándose -a nivel internacional- un marco regulatorio razonable que dio origen a modificaciones sustanciales en los modos de construir. Sin ingenuidad, afirma que las normas son decisiones políticas, no técnicas,

y como tales, en su elaboración es primaria la intervención de saberes técnicos combinados con experiencia política. Sin asumir con honestidad intelectual esta condición, es casi imposible avanzar en casi cualquier objetivo que se trace. (img. 56/65) Javier mencionó el ejemplo de Francia, país en el que residió y trabajó muchos años, donde hoy la madera representa un 30 % del mercado de la construcción. Llegó incluso, en algún momento, a superar al acero y al concreto que, presiones mediante, recuperaron los primeros lugares. Nada que no sepamos. Los marcos regulatorios son esencialmente transacciones entre sectores, no son marcos ideales, son espacios de negociación permanente: si el estado esta fortalecido allí, mayores serán las posibilidades de mejorar las condiciones del hábitat, particularmente en aquellos lugares donde el mercado no llega. El mercado existe, también el estado.

La construcción en madera tiene -Javier ha sido elocuente al respecto- cualidades que le permiten incorporarse mejor al mercado regulado que otros biomateriales. Su modo de producción, sus facilidades de manipulación, su relativamente bajo impacto ambiental son solo algunas de ellas. Por supuesto, es una foto de hoy, no necesariamente será siempre así: la investigación científica se ocupa a diario de confirmarlo. En definitiva, la última conferencia de la mañana del viernes, se constituyó en un encuadre de realidad, indispensable para operar con eficacia ante un deterioro ambiental sin precedentes. “La construcción en madera es paradigmática en esto que estamos comentando. Probablemente sea el material más impactado por los cambios tecnológicos, un proceso que ha generado un salto cualitativo en su producción industrial, una verdadera Revolución de la Madera al decir de muchxs. A otrxs, sin embargo, les enciende una alarma, por la misma razón. Ahora bien, los avances tecnológicos no pueden eludirse, aunque si conducirse. Los riesgos que se esgrimen tienen fundamentos muy atendibles, los mismos que enfrentamos si nos dejamos llevar por una mirada nostálgica, tan presente en una disciplina como la nuestra. El pasado lejano tiene mucho aun para enseñarnos, siempre que lo revisemos desde una óptica contemporánea, aunque suene a obviedad.

Las antiguas prácticas no necesariamente han sido mejores que las actuales. Lo sabemos bien”. Fascículo CAPBA #16. Editorial MICROFOROS

Durante las dos jornadas, se llevaron a cabo siete microforos, con los siguientes temas:

Día1/ 1. Aplicaciones de tierra cruda en la construcción moderna / 2. Innovaciones y técnicas en tierra cruda / 3. Desafíos y soluciones en la implementación de tierra cruda.

Día 2/ 1. El bambú como solución sostenible para la construcción en la provincia de Buenos Aires / 2. Innovación y tecnología en construcción en bambú / 3. Economía circular y cadena de valor en bambú / 4. El impacto del bambú en la mitigación del cambio climático Nos pareció que era ocioso relatar en detalle el desarrollo de cada uno de estos pequeños encuentros que se realizaron en las dos tardes en la sede del Consejo Superior del CAPBA. Sí, llevarles a ustedes algunas de las conclusiones a las que se arribaron. Empecemos por la no incorporación de los sistemas constructivos ligados a la tierra cruda y el bambú a las escuelas de formación de arquitectas y arquitectos -no ocurre lo mismo con la madera-, o, en el mejor de los casos, de manera esporádica y aleatoria. Y eso ocurre a pesar de tratarse de saberes ancestrales, con altos grados de desarrollo. Las obras internacionales que hemos ido compartiendo (Fascículos CAPBA #14#16) son un ejemplo contundente de esto que decimos. Seguramente si eso empieza a suceder, tendrá lugar la discusión necesaria para contribuir a la construcción de la normativa adecuada, sostenida demanda en cada uno de los foros. Es cierto que hay gobiernos locales en todo

el país que ya lo están haciendo, pero no dejan de ser experiencias aisladas. La construcción en madera sí dispone de un sistema de normas que la regula (muy heterogéneo aún), que la ha llevado a evolucionar rápidamente (Fascículo CAPBA #15). Desde ya que también existe un mercado, que no podemos de ninguna manera obviar, aunque también puede crearse. Y así quedó planteada otras de las aristas que se manifiestan cuando se aborda la tierra cruda o el bambú. Ambos materiales están asociados desde siempre a cuestiones espirituales, la tierra cruda en particular (conferencia de Jorge Lema), que no debiera oponerse a su evolución tecnológica, indispensable para convertirlos en una posibilidad concreta para enfrentar el cambio climático. Las investigaciones de Jorge Dragone en Argentina, Felipe Ramírez en Paraguay, Jaime Peña en México o Ibuku en Indonesia, dan cuenta de un camino valioso ya transitado. Son investigaciones que no solo aportan los avances técnicos tan necesarios; también el conocimiento de condiciones inherentes a este tipo de materialidades, muy cercanas a la labor artesanal, al cuidado del ambiente, a la integridad física de sus constructores (siendo materiales de fácil manipulación), y a la participación comunitaria, entre tantas otras virtudes, que otros sistemas como el acero y el concreto -a nuestro juicio- no presentan. La cercanía entre material, arquitecta/o, ejecutores y comunidad ha sido siempre una fórmula capaz de ofrecer a la arquitectura la mejor oportunidad de elevar el cuerpo de conocimiento disciplinar hacia respuestas realmente sustentables, pertinentes y adecuadas, que no solo involucren el resguardo ambiental, sino y también, un acceso universal a sus servicios. Los modos de producción que implican cada uno de estos materiales y su contribución real a las economías de las comunidades locales, son componentes fundamentales de lo que llamamos sustentabilidad.

La construcción en madera no ha sido objeto específico de debate en los foros, entendiendo los organizadores que su estado de situación es otro. El cierre elegido para el Congreso explica esta mirada, que, como siempre, está abierta a la discusión.

CONFERENCIAS FINALES

En la tarde del viernes, sucedieron consecutivamente las dos últimas conferencias del Congreso, a cargo de Ariel Pradelli (img. 66/75) y Gustavo Barcia (ver fotos publicadas). Ambas tuvieron varios puntos en común, empezando por la decisión compartida de focalizarse en la descripción del proceso de diseño de una obra en particular, lo cual habilita la posibilidad de sintetizar algunas primeras conclusiones en un evento de este tipo. El segundo punto está en la elección de la materialidad: la madera. Sin lugar a dudas, entre los biomateriales, el que ha alcanzado un mayor nivel de desarrollo y, por lo tanto, la posibilidad de disponer de un grado mayor de información al momento de ensayar una mirada crítica, siempre necesaria en un ámbito profesional como el CAPBA. La tercera coincidencia radica en los territorios en las que se construyeron: territorios de agua. Sitios exigentes con la madera, a los que parece responder con mucha naturalidad, y no solo en términos estrictamente arquitectónicos o paisajísticos, que son los que mejor manejamos. La gestión y producción de una obra son hoy aspectos tan fundamentales como su comportamiento bíoambiental. Su posición en un territorio determinado no solo impacta allí, lo hace también sobre los sitios donde se producen los materiales con los que se construye, impactos que involucra también a las economías locales. Quizá la mayor diferencia entre una y otra presentación, haya estado en el ámbito laboral donde se desempeña cada uno de los disertantes: Pradelli es titular del estudio AP22 y profesor universitario, en tanto Barcia es dirigente del CABPA Distrito 4 en simultaneo con su actividad profesional independiente. Son contextos que no se contraponen, aunque Ariel aborda su obra a partir del conocimiento colectivo que otorga la exploración universitaria al frente de su propio taller de arquitectura, y, por lo tanto, tiene a mano un menú muy

amplio de posibles soluciones. La actividad profesional independiente incorpora otros matices, imprescindibles también, donde los colegios profesionales tienen la obligación de tender los puentes que se necesitan con las escuelas de formación. Es ese intercambio el que provoca saltos cualitativos en nuestra disciplina. El Congreso de Bioconstrucción es eso, un puente más.

APUNTES FINALES

Para finalizar, compartimos algunas reflexiones que hemos escrito en las publicaciones con las que fuimos acompañando la organización de este encuentro, a nuestro juicio, un espacio que aún tiene mucho que decir.

“Una óptica contemporánea, a nuestro entender, implica una mirada integradora de los procesos productivos -somos parte de ello. No basta con la eficiencia energética, no basta con la adecuación de nuestros saberes proyectuales y sus resultados arquitectónicos, no basta generar dispositivos ultra eficaces que construyan piezas de precisión milimétrica; si el resultado de ello no es asequible para las grandes mayorías. En definitiva, si la producción industrial solo reduce puestos de trabajo para incrementar su ganancia, serán pocos y pocas quienes puedan dar uso a sus productos, pocos y pocas quienes vivan con mayor confort, y pocos y pocas quienes dispongan de tiempo libre y recursos para disfrutar sus vidas. Ustedes se preguntarán: ¿qué tiene que ver esto con la Sostenibilidad? Ensayamos una única respuesta: no hay sostenibilidad posible si se olvida que es la comunidad la que debe progresar y mejorar sus condiciones de vida (colectiva) en primera instancia.” Fascículo CAPBA #15. Editorial “Tradición y contemporaneidad son convergentes. Se retroalimentan, no se excluyen. Quien sostenga lo contrario corre el riesgo de sobrevalorar el pasado sin percibir que el presente es siempre una oportunidad. En tanto y cuanto pongamos en valor nuestro acervo cultural.”

Fascículo CAPBA #14. Editorial

¡Gracias!

CONSTRUIR EL FUTURO: UN CONGRESO QUE NOS REDEFINIÓ

COMO ARQUITECTOS DE UN NUEVO MUNDO

ARQUITECTA ELIZABETH VERGARA

El 17 y 18 de octubre de 2024, en la ciudad de La Plata, algo extraordinario sucedió bajo la cúpula del Colegio de Arquitectos de la Provincia de Buenos Aires / CAPBA: el Primer Congreso de Bioconstrucción y Cambio Climático no solo reunió a profesionales, estudiantes, académicos y visionarios, sino que sembró en cada uno de ellos una idea transformadora. Fue más que un evento; fue un llamado. Construir no es simplemente edificar estructuras, sino también diseñar las condiciones para que la humanidad y el planeta puedan prosperar juntos. En un contexto donde las ciudades crecen como gigantes de acero y concreto, alienadas de los ecosistemas que las rodean, este Congreso nos desafió con una pregunta: ¿qué significa construir bien? Porque si seguimos edificando como hasta ahora, ignorando los ritmos de la tierra y las voces de las comunidades, ¿qué clase de legado estamos dejando? ¿Estamos levantando refugios o condenas?

La construcción como acto de responsabilidad

Los números presentados no dejaron margen para la indiferencia. La construcción es responsable del 38% de las emisiones globales

de carbono, un impacto devastador que no solo destruye ecosistemas, sino que amenaza directamente nuestra supervivencia. Y sin embargo, hay esperanza. Porque en medio de esta crisis, surgieron ideas, materiales y técnicas capaces de cambiar el rumbo.

La tierra, el bambú y la madera no fueron presentados como simples alternativas constructivas, sino como símbolos de algo más grande: un regreso a la humildad, a la sabiduría olvidada de quienes construían en armonía con la naturaleza. Son materiales que nos enseñan que la auténtica innovación no necesariamente depende de tecnologías modernas, sino de la habilidad de redescubrir el pasado con una perspectiva renovada y extraer su sabiduría.

Día 1. La Tierra, materia que une el pasado y el futuro

El primer día del Congreso fue un “homenaje” a la tierra, este material ancestral que, durante siglos, ha sido despreciado por asociarse con la precariedad. Y, sin embargo, la tierra es el material que más nos conecta con nuestras raíces. Es una arcilla maleable que nos

desafía a cuestionar nuestras percepciones de valor y modernidad. Bettina Tommei y Mercedes Codone abrieron la jornada con una reflexión incisiva: ¿por qué construir con tierra y por qué no hacerlo? Desmontaron los prejuicios que han invisibilizado este recurso, destacándolo como un material casi eterno, térmico, versátil y profundamente respetuoso con el medioambiente. Laura Giovino, con su enfoque poético y visionario, sumó una idea poderosa: “La tierra tiene memoria. Habitarla no es imponer una forma, es escuchar lo que nos ofrece”. Su ponencia entrelazó la tradición de las viviendas vernáculas con las posibilidades de la arquitectura contemporánea, mostrando cómo este material puede adaptarse tanto al calor abrasador del desierto como a la humedad de las ciudades. Jorge Lemma, con su propuesta de los Uritectos de la Tierra, expuso cómo este material puede trascender los límites de lo funcional para convertirse en un elemento que da identidad y pertenencia a las comunidades. Felipe Ramírez, desde una perspectiva más técnica, defendió la tierra como un componente esencial en la construcción urbana, desafiando las ideas preconcebidas sobre su lugar en los entornos modernos y demostrando que la bioconstrucción puede integrarse incluso en los paisajes más cosmopolitas. En los micro foros, se abordaron temas que iban más allá de la técnica: el derecho a una construcción sostenible, la urgencia de establecer normativas específicas y la necesidad de transformar los paradigmas culturales que aún desprecian la tierra cruda como algo

primitivo. La discusión gravitó en torno a una idea esencial: no solo estamos construyendo edificios; estamos construyendo valores.

Día 2. Bambú y Madera, los pilares de un futuro vivo

El segundo día nos llevó del suelo al bosque, con el bambú y la madera como protagonistas. Jaime Peña abrió con una afirmación que resonó en todo el auditorio: “El bambú no es solo un material; es un símbolo de resiliencia”. Su rápido crecimiento y resistencia lo convierten en una opción poderosa para comunidades vulnerables que necesitan soluciones inmediatas y sostenibles.

Carolina Zuluaga y Cristian Massat invitaron a repensar el bambú como algo más que un recurso estético: un motor para la economía circular y una herramienta que, en manos de comunidades locales, puede cambiar vidas. La madera, por su parte, brilló como el futuro de las construcciones en altura, con Oscar Paredes demostrando cómo la tecnología CLT (madera laminada cruzada) no solo compite con el concreto y el acero, sino que los supera en sostenibilidad y eficiencia.

En los micro foros, surgió una pregunta inquietante: ¿por qué, si estos materiales son tan prometedores, no los estamos usando masivamente? La respuesta apuntó a la falta de políticas públicas, la resistencia al cambio y un sistema económico que aún prioriza lo inmediato sobre lo duradero. Pero también quedó claro que cada participante tenía en sus manos el poder de desafiar esas barreras, de llevar estas ideas a sus propias comunidades y proyectos.

Conclusiones: Arquitectura de contexto, Arquitectura de sentido

El cierre del congreso no fue solo una ceremonia; fue un momento de introspección colectiva. Ariel Pradelli y Gustavo Barcia compartieron dos ejemplos de viviendas sostenibles: una en un entorno marítimo y otra en una región fluvial. Ambas mostraron que el primer acto de un arquitecto debe ser escuchar al lugar. Porque reconocer el contexto no es una limitación, sino una invitación a diseñar con propósito, adaptando cada proyecto a las condiciones que permitan no solo habitar un espacio, sino prosperar en él. Pradelli cerró con una reflexión profunda: “Construir con conciencia es un acto de amor: hacia la tierra, hacia quienes la habitarán y hacia quienes vendrán después de nosotros.” Y en ese momento, quedó claro que este Congreso no era solo un intercambio de conocimientos técnicos. Era un despertar. El encuentro no fue pasivo, ni mucho menos. Los participantes estuvieron hasta el último momento con energía, compartiendo

ideas, escuchando y siendo escuchados. Las discusiones no se apagaron al finalizar las ponencias; por el contrario, crecieron con fuerza. Fue un espacio vivo, donde la reflexión se transformó en acción, y la acción en compromiso.

Un legado que apenas comienza

El Primer Congreso CAPBA de Bioconstrucción y Cambio Climático dejó más que aprendizajes; dejó intenciones. Intenciones de construir desde el respeto, desde el conocimiento y desde la humildad. Intenciones de transformar un sector que, durante demasiado tiempo, ha estado desconectado de los ciclos naturales y de las necesidades humanas reales. Porque construir no es solo levantar paredes. Es decidir qué tipo de futuro queremos habitar. Y ahora, la pregunta ya no es si podemos cambiar la forma en que construimos. La pregunta es: ¿estamos dispuestos a hacerlo?

HÁBITAT Y SOSTENIBILIDAD

Nueve trabajos premiados del Concurso “Proyecto de Prototipos de vivienda individual sustentable”, organizado por el CAPBA para ofrecer a la comunidad bonaerense proyectos residenciales especialmente pensados para la diversa geografía de la provincia de Buenos Aires, contemplando la dimensión ambiental como premisa fundamental. Una nota final plantea el porqué del Concurso.

UN PROTOTIPOS DE VIVIENDA PARA LA COMUNIDAD BONAERENSE

“Este concurso es un paso hacia un futuro donde nuestras casas no solo sean refugios, sino también testimonios vivos de nuestro compromiso con un mundo más equitativo y respetuoso con la naturaleza.”

Bases. Anexo 1

Según datos de la Subsecretaría de Hábitat del Ministerio de Desarrollo de la Comunidad bonaerense, el déficit habitacional en la provincia de Buenos Aires alcanzaba en 2021 a 2.284.136 hogares o “núcleos familiares”.

Este dato, más allá de las consideraciones que se pueden hacer desde la perspectiva política o social, nos interpela como profesionales de la arquitectura y nos compromete como integrantes de la sociedad bonaerense.

En su momento, desde el Colegio celebramos la creación del Ministerio de Desarrollo Territorial y Hábitat, la puesta en marcha de programas como PROCREAR y la sanción de la Ley 14.449, de Acceso Justo al Hábitat.

En este contexto, las autoridades del Colegio de Arquitectos de la Provincia de Buenos Aires / CAPBA, a través de la Secretaría de Hábitat y Vivienda, nos propusimos promover y organizar un concurso que permita contar con proyectos prototípicos de viviendas individuales especialmente pensadas para el territorio provincial. Las Bases del Concurso establecieron una serie de condiciones a cumplir por el prototipo:

¢ accesibilidad universal,

¢ superficie entre 55 y 65 metros cuadrados,

¢ flexibilidad, funcionalidad y posibilidad de crecimiento, admisión de nuevos usos y adaptación a cambios familiares, y vinculación de la vida cotidiana con el trabajo en el hogar,

¢ resolución constructiva/estructural tradicional racionalizada, que permita acelerar plazos de obra dentro de costos razonables y contemple materiales nobles y de bajo mantenimiento, y

¢ adaptación a distintas orientaciones y dimensiones de lotes. Estos objetivos generales debían adecuarse a los contextos específicos (clima, economía, ambiente, etc.) de cada una de las cinco zonas en las que se regionalizó el territorio provincial -Pampeana Norte, Pampeana Sur, Marítima, Litoral Fluvial y Metropolitana- y para las que se solicitó proyectar una vivienda prototípica particular. Por otro lado, se sumó como premisa fundamental la dimensión ambiental ante la creciente preocupación planetaria por el cambio climático, entendiendo que “se deberá contemplar soluciones eficaces e innovadoras en el campo del diseño pasivo, la eficiencia energética y el desarrollo sostenible, en búsqueda del bienestar ambiental para la vivienda y la ciudad”. Esta intención expresada en las Bases se acentuó con la inclusión en las mismas de un Anexo: “La perspectiva de una mirada sostenible en nuestras viviendas”, en el que se detallaron criterios esenciales en torno a esta problemática. Un aspecto primordial de este Concurso ha sido el requerimiento a los participantes de un cómputo y presupuesto detallado de los insumos por rubro (material y mano de obra), lo que faci-

litó la estimación de costos de los diversos prototipos, la elaboración futura de un índice constructivo propio y las posibilidades de gestión con datos concretos.

A través de la ardua tarea desempeñada por la asesoría y el jurado y gracias al interés que la convocatoria despertó entre matriculados y matriculadas -se presentaron 89 propuestas-el Concurso ha permitido obtener 21 trabajos, entre premios y menciones, que cumplen satisfactoriamente las premisas ya mencionadas.

Este valioso material será utilizado por la institución para aportar saberes especializados y elementos concretos a programas de vivienda social, operatorias en el ámbito del hábitat y emprendimientos de carácter público o privado.

El CAPBA se ha fijado como propósito inmediato iniciar un proceso de gestión -ante instituciones gubernamentales, organizaciones intermedias y empresas del sector privado- para que los proyectos que se presentan en esta publicación posibiliten la mejora de las condiciones habitacionales de la población provincial, generen oportunidades laborales para los y las arquitectos/as bonaerenses y provoquen un impacto directo y positivo en la actividad económica.

Asimismo, desde el Colegio se pretende que este tipo de actuaciones coloquen en su verdadero valor y justiprecio las tareas profesionales y su producto.

Si con las propuestas que se despliegan en las próximas páginas se obtiene un mínimo cumplimiento de los objetivos arriba enunciados, el esfuerzo de autoridades colegiales y matriculados y matriculadas, del CAPBA en definitiva, se verá ampliamente recompensado.

Entidad promotora

Colegio de Arquitectos de la Provincia de Buenos Aires

Entidad organizadora

Colegio de Arquitectos de la Provincia de Buenos Aires

Coordinación general

Secretaría de Vivienda y Hábitat / CAPBA

Secretaría de Concursos / CAPBA

Auspiciante

Federación Argentina de Entidades de Arquitectos / FADEA

Asesoras

Arquitecta Elizabeth Vergara

Arquitecta Soledad del Cueto

Jurado

Arquitecto Daniel Delpino (CAPBA) / Presidente del Jurado

Arquitecto Jorge Moscato (FADEA)

Arquitecto Miguel Vecino (CAPBA / Zona Pampeana)

Arquitecta Natalia Kamada (CAPBA / Zona Metropolitana)

Arquitecto Pablo Rescia (Participantes)

ZONA FLUVIAL | PRIMER PREMIO

AUTORES ARQUITECTOS SEBASTIÁN CERRI Y JUAN IGNACIO SÁNCHEZ

COLABORADOR/A ARQUITECTA CAROLINA ISASI / RICHARD SIREN

Desarrollamos el prototipo de vivienda Casa MINKA basándonos principalmente en criterios de sustentabilidad (ambiental, social y económica), de adaptabilidad a diferentes situaciones climáticas y topográficas de la provincia de Buenos Aires, y de flexibilidad de usos considerando su posible crecimiento. Hablar de vivienda de interés social en Argentina viene acompañado de la premisa de bajos presupuestos que muchas veces deriva en una mala resolución de los detalles constructivos y un comportamiento energético ineficiente. Entendemos que la propuesta del concurso de llamar a soluciones con estrategias sustentables regionales persigue el objetivo de evitar repetir estos errores, y es en esta misma dirección que nos proponemos como premisa de diseño generar una tipología sencilla y austera en todo sentido. Partimos del desarrollo de una vivienda con dos dormitorios (uno flexible), estar, cocina, comedor y baño. Luego adaptamos la planta a una vivienda con tres dormitorios (uno flexible), y la hicimos crecer con uno o dos dormitorios hacia el fondo de la casa, o hacia el frente. Logramos crear una planta flexible en sus usos, que permite eventualmente alojar espacios productivos interiores o exteriores en caso de que haya necesidad de hacerlo. Casa Minka adopta una solución híbrida entre dos sistemas constructivos tradicionales. La vivienda se materializa con una envolvente en madera maciza y tabiques interiores de ladrillo o adobe. Esta decisión persigue la intención de conjugar los beneficios del comportamiento higrotérmico de las dos materialidades (aislación y masa térmica). La construcción con madera maciza en pisos, muros de la envol-

vente y techos interiores permite calidez y versatilidad en el diseño, con una adaptación sencilla a futuras ampliaciones. El montaje es eficiente tanto como los beneficios que asegura este material analizado en términos de impacto ambiental.

Considerando que el material más utilizado en la construcción de una casa Minka son maderas certificadas de producción local; que durante la obra no se requiere un uso excesivo de agua ni de materiales abrasivos; que en su montaje intervienen menos rubros acelerando los tiempos de ejecución con amplias posibilidades de autoconstrucción; que se reduce el uso de materiales industrializados (como aislantes, revestimientos, ladrillo y hormigón) con la consecuente reducción de emisiones en términos de fabricación y transporte; que es un material de origen natural 100% biodegradable; entonces es posible decir que estamos ante una solución tecnológica sustentable en términos ambientales, sociales y económicos. La estrategia de diseño pasivo más d estacable de casa Minka es la implementación de una habitación solar sobre el área de los dormitorios que funciona como el tradicional invernadero. Generando un movimiento en la posición del sistema de doble techado, se habilita una cámara de aire de mayor dimensión sin necesariamente duplicar superficies. El uso adecuado de los dispositivos que ponen en funcionamiento este espacio no habitable permite regular el clima interior de la vivienda amortiguando las diferencias de temperatura interior/exterior.

COSTO $/M2: $ 1.137.897 / AGOSTO 2024

ZONA FLUVIAL | SEGUNDO PREMIO

AUTOR ARQUITECTO OSCAR VÁZQUEZ.

COLABORADORES/A ARQUITECTOS ARIEL DE LA FUENTE Y LEONARDO HAAGAMAYA Y ARQUITECTA LUCÍA BINETTI

El proyecto está entendido como una guarida en el paisaje, pero a la vez recreando la naturaleza. Un primer único volumen racionalizado, simple y abierto: un espacio galería-terraza, muelle jardín, conforma la estructura principal hacia el río. El invernadero se organiza como patio-jardín, conformando una espacialidad inclusiva desde los sentidos. La caja de madera se conforma con una estructura de madera que se convierte en soporte del verde. El volumen se proyecta de forma racional, de geometrías simples que se toman de las tipologías revisada del lugar. A la casa se accede a través de un invernaderomuelle, puerta principal, atravesando por unos instantes la naturaleza recreada. Todo el recorrido exterior será calificado por un recorridopaseo arquitectónico, a la manera de las casas palafíticas, generado por el elemento rampa, potenciando las visuales del paisaje. El interior encontramos un único espacio articulado según la necesidad de usos (dormitorios que podrán incorporarse al único espacio), potenciando la planta libre. Se ubican los servicios hacia la cara sur, sobre el borde, favoreciendo la integración y fluidez espaciales; se utilizarán paneles móviles para garantizar la flexibilidad. Las ventanas principales están organizadas en función del asolamiento, visuales y función de los espacios, para lograr el máximo aprovechamiento de la luz natural. La terraza expansión en altura equilibrando el consumo del terreno, y equilibrando ambientalmente. Además de la expansión terraza-galería, se propone el uso del nivel +0,0, en los momentos que el nivel del río lo permita, como expansión por debajo del volumen, como espacio de juegos

cubierto, en directa relación con el jardín.

Sobre la platea de hormigón se ubican dados, donde se hincará la estructura puntual liviana de madera. Los cerramientos se proyectan con panales tipo sándwich con terminación de madera exterior y placas de madera contrachapada hacia el interior, con las correspondientes capas de aislación para garantizar el confort térmico y acústico. La cubierta se materializa de madera y chapa. Se busca elegir materiales que sean reciclables, de bajo impacto

Dado de que se trata de un clima templado húmedo, como estrategias bioclimáticas principales, se estudian el asoleamiento, con el objetivo de lograr el máximo aprovechamiento de la luz solar diurna en los espacios, disminuyendo al mínimo el uso de iluminación artificial y las ventilaciones cruzadas, ubicando las aberturas de forma estratégica. Se incorporan parasoles que varían de forma según la orientación, así como los entramados de madera del invernadero y las galerías, que incorporan la vegetación, funcionan para favorecer la disminución del impacto solar sobre la envolvente y refrescar los ambientes. Se pondera el uso de vegetación autóctona de hoja caduca, para permitir las ganancias de calor durante el invierno. Se ubican las aberturas a diferentes alturas, para permitir el ascenso de las corrientes de aire caliente, y la recirculación para refrescar los interiores. La elevación de la vivienda también permite el paso de corrientes de aire por debajo del volumen construido.

COSTO $/M2: $ 1.054.843 / AGOSTO 2024

ZONA MARÍTIMA | PRIMER PREMIO

AUTOR ARQUITECTO GASTÓN JULIÁN CANZANI

COLABORADORES EDUARDO ANDRÉS APPHESBERHO Y TOMÁS GONZÁLEZ GARCÍA

Nuestro prototipo de vivienda individual se concibe como una solución al desafío del déficit habitacional mediante la estandarización de los procesos de diseño y la gestión proyectual. La primera etapa se dedica a establecer un modelo base donde se estandariza el programa de la vivienda para garantizar la rentabilidad y el confort, alineándose con el estilo de vida de los habitantes de la provincia de Buenos Aires. La segunda etapa se enfoca en el crecimiento y expansión del prototipo, permitiendo adaptaciones según las necesidades específicas de los usuarios, lo que asegura una mayor flexibilidad a largo plazo. Para mantener la calidad de la vivienda, las expansiones siguen criterios y estándares usados en el modelo base para su implementación. El modelo base se sitúa en el centro del terreno, siguiendo una matriz que nos permite coordinar los módulos de cuatro por tres metros, proporcionando así una base sólida para la construcción y el crecimiento futuro. Esta disposición deja los espacios del perímetro libres para la expansión flexible de la vivienda, adaptándose a las necesidades de los usuarios a lo largo del tiempo. Para dar una respuesta a la condición climatológica del noroeste de la provincia, la orientación de la vivienda está diseñada para optimizar el asoleamiento y privilegiar la ventilación cruzada aprovechando la brisa marina. Además, se utilizan materiales de construcción ade-

cuados para resistir la humedad y la corrosión provocada por la proximidad al mar.

Ante la creciente problemática ambiental en materia de residuos plásticos en las playas bonaerenses de los últimos años, es necesario un diseño flexible y consciente en el uso de materiales reciclados; por este motivo, la eficiencia constructiva se maximiza mediante la incorporación del sistema de envolvente Muro SIP. Este panel encastrable, compuesto por dos placas de OSB de plásticos reciclados portantes y un núcleo de EPS de densidad estándar, ofrece una solución robusta y de alto rendimiento. La protección contra hongos e insectos garantiza la durabilidad a largo plazo. Esta integración de materiales innovadores no sólo acelera el proceso de construcción, sino que también mejora significativamente el aislamiento térmico y acústico de la vivienda, contribuyendo así a su sostenibilidad y confort habitacional. La materialidad del prototipo se completa con una platea sobre la que se propone un piso de cemento alisado, una estructura resistente compuesta por columnas, vigas y correas de aluminio, revestimiento exterior y cubierta de chapa calibre 27, en tanto que las carpinterías son de PVC.

COSTO $/M2: $ 1.083.552 / AGOSTO 2024

ZONA MARÍTIMA | SEGUNDO PREMIO

AUTOR ARQUITECTO LEONARDO UGUET COLABORADORES ARQUITECTOS GASTÓN BULGARELLI Y LUIS HEVIA

El objetivo principal del proyecto tiene que ver con la reflexión en torno a lo que implica la vivienda contemporánea. Hoy, los tres conceptos fundamentales de una vivienda pensada hacia el futuro son:

• la flexibilidad de uso, en este caso abordada desde la caracterización homogénea de los espacios permitiendo distintas funciones,

• la capacidad de crecimiento desarrollada a partir de una modulación aditiva que proporciona la posibilidad de adaptarse a los cambios en el tiempo: se parte de un módulo (monoambiente) de 35 metros cuadrados hasta completar, en sucesivas etapas, un proyecto de 85 metro cuadrados y cinco ambientes,

• la sostenibilidad, que no es más complejo que entender la vivienda como un espacio de alto confort ambiental materializada de manera consciente y racional respecto de la utilización de los recursos.

Fundaciones y estructura

Sistema de cimientos puntuales con rigidización lineal en hormigón armado para recibir una estructura de columnas y vigas de hierro, que a su vez soportan losas colaborantes.

Sistema y resolución constructiva.

Construcción principalmente en seco, perfilería de acero galvanizado y placas de roca de yeso. Para la cubierta del módulo inicial, se propone una aislación hidrófuga e impermeable convencional, en tanto que, para los módulos posteriores, se opta por una cubierta verde extensiva, de bajo mantenimiento.

Precipitaciones intensas

Controlar y disminuir el impacto de la escorrentía de aguas de lluvias sobre la vivienda por medio de tres operaciones:

• la elevación del nivel de planta baja separándose respecto del nivel de terreno natural,

• la incorporación de drenajes naturales en el proyecto de paisajismo y

• la incorporación de cubiertas ajardinadas.

Humedad

Repeler precipitaciones, a través de la utilización de materiales propiamente impermeables de cerramiento y revestimiento para la definición de la envolvente, específicamente chapas galvanizadas y chapas acrílicas con las necesarias soluciones constructivas de impermeabilización en los respectivos encuentros y, por otro lado, propiciar una correcta ventilación de los ambientes a través de la configuración de aberturas y comunicaciones espaciales.

Energía solar Captación y control para el mejor aprovechamiento, ya sea por medio de métodos pasivos como las decisiones de aventanamientos y alturas de los recintos, como activos, mediante dispositivos de recolección energética, como termotanque y paneles solares.

COSTO $/M2: $ 1.261.709 / AGOSTO 2024

ZONA METROPOLITANA | PRIMER PREMIO

AUTORES ARQUITECTO GONZALO PÉREZ / ARQUITECTO FERNANDO URQUIOLA (ASOCIADO)

COLABORADORA/ES ARQUITECTOS CARLOS BRIZUELA / MAIA TERWISSEN / IVÁN RICO

La propuesta establece como condicionante principal la búsqueda de una tipología que permita dar respuesta a cualquier tipo de situación en términos de orientación y ubicación dentro de la manzana. Así, a partir de una matriz en clave 3.30, se organiza una grilla espacial de nueve módulos que desarrolla la posición de las áreas programáticas según premisas establecidas:

• El módulo central es el vacío: un impluvium. El patio opera en el proyecto como el corazón de la organización y genera la aparición del vacío en la trama modular. Se configura como el colector de las aguas de lluvia y abastece el estanque central que almacena el insumo para usos complementarios.

• Los servicios se concentran en un módulo lateral medio, que se define a izquierda o derecha de acuerdo a la posición del lote en la manzana.

• Las áreas sociales (comedor-estar) siempre buscan las mejores orientaciones. De esta manera, de acuerdo a la ubicación relativa del Norte, se define que aparezcan en el frente o contrafrente del predio según lo indique la variable del asoleamiento.

La parte y el todo / lo cerrado y lo abierto Se propone un sistema, una caja modular adaptable. Un cuerpo inicial con las necesidades básicas que se organiza en 60 metros cuadrados, se transforma en el tiempo y muta hacia la condición de una vivienda en dos niveles que abastece a cualquiera de los diferentes tipos de la diversidad familiar actual. El módulo inicial propone una primera obra húmeda de platea de fundación (con refuerzos) y dos muros de fábrica de ladrillos desfasados entre sí en los bordes laterales del predio. El resto de la vivienda puede ser ar-

mado completamente en taller, o en piezas independientes que se ensamblan en el sitio. Los elementos fijos son de escala pequeña: el cuerpo sanitario, los módulos de equipamiento (integran áreas de servicio y mobiliario configurable). El resto se compone de paneles ciegos, carpinterías y estructuras de transición. El hábitat inicial ofrece una solución primaria (60 m2), que permite el inicio del ciclo, y a partir de esa primera operación, el sistema aporta multiplicidad de variantes acoplando módulos que se adosan hacia el frente tanto como hacia arriba, hasta conformar una unidad de máxima, que ronda los 155 metros cuadrados cubiertos

El tejido propuesto se estructura a partir de una unidad flexible y sustentable, adaptable a los cambios y mutaciones de la vida de los usuarios. Sobre esta premisa surge la idea de sintetizar el cuerpo cerrado y su contraforma en el cuerpo abierto. Un damero en grilla de 3.30 x 3.30 que resuelva las necesidades básicas del habitante con su célula inicial, que además de los usos convencionales, propone espacios de transición y expansión entre interior y exterior. La propuesta considera al patio de la unidad tipológica como una unidad familiar sustentable con manejo de estrategias pasivas de recursos energéticos, recuperación de aguas grises, huerta familiar, gestión de energías geotérmicas y utilización de paneles solares, de manera de constituir no sólo un caso concreto de racionalización de recursos y ahorro energético, sino también una estrategia de concientización y capacitación ciudadana

COSTO $/M2: $ 775.365 / AGOSTO 2024

ZONA METROPOLITANA | SEGUNDO PREMIO

AUTOR/A ARQUITECTA JESICA BAVA Y ARQUITECTO FEDERICO CRAIG

El proyecto parte de la premisa de crear un espacio protegido del sol y las lluvias que afectan a la región. Una gran cubierta independiente cuya sombra envuelve y protege a los habitantes. Este prototipo de vivienda metropolitana retoma antecedentes de larga trayectoria como la vivienda chorizo: un sistema técnico constructivo básico y eficiente que permite la adecuación a distintos lotes urbanos y posibles crecimientos a partir de su desarrollo lineal en relación a la profundidad de la parcela. El proyecto emplea esos aspectos a partir de una materialidad contemporánea.

La estrategia material-estructural se traduce en muros gruesos portantes de ladrillo común, en contraposición a la cubierta liviana. Se combina un sistema estructural de construcción tradicional con un sistema liviano de construcción en seco para la envolvente. El sistema constructivo configura espacios flexibles que pueden ampliarse, reducirse y desplazarse fácilmente, teniendo en cuenta los requerimientos del usuario. La gran cubierta libera dos voladizos que configuran el espacio, determinando un sector de servicios hacia la medianera, un espacio flexible de uso y un gran alero como dispositivo de encuentro entre interior y exterior. Los espacios se organizan a partir del módulo de ancho útil de la

chapa de la cubierta -90 centímetros-, que se separa del volumen habitable haciendo de fuelle entre interior y exterior.

El piso se monta sobre las vigas de fundación, dejando un colchón de aire que evita el contacto con la humedad de la tierra. El cerramiento vertical liviano de capas resuelve la aislación térmica. Estos elementos, sumados al techo ventilado, contemplan que el proyecto responda a condiciones de eficiencia energética según particularidades de las distintas zonas y requerimientos del usuario.

La secuencia constructiva propuesta consiste en la ejecución consecutiva de fundaciones (hormigón armado), estructura de piso (perfiles galvanizados), mampostería portante (ladrillo común visto), tabiquería perimetral (perfiles galvanizados), estructuras de cielorraso y cubierta (perfiles galvanizados) y cubierta (chapa autoportante).

Las posibilidades de crecimiento de la vivienda parten de un módulo básico de 48 metros cuadrados, pudiendo ampliarse a un dormitorio más un baño y con la alternativa de añadir otros dos dormitorios. Se propone otra manera de crecimiento: dos dormitorios más estudio, toilette y lavadero.

COSTO $/M2: $ 1.356.156 / AGOSTO 2024

ZONA PAMPEANA NORTE | PRIMER PREMIO

AUTOR/A ARQUITECTA JESICA BAVA Y ARQUITECTO FRANCISCO CARTASEGNA

En una zona de baja densidad y construcciones dispersas, la presencia paisajística de la llanura pampeana tiene un rol preponderante. Se propone una casa austera y despojada acorde al entorno, con una disposición lineal que potencia la horizontalidad del paisaje.

Una casa de campo donde los espacios de transición entre interior y exterior resuelven la cuestión climática y programática. Protegen el interior del sol en días calurosos de verano y permiten la captación solar directa en invierno, lo defienden de las lluvias abundantes típicas de la región pampeana norte, protegen de los vientos dominantes y estimulan la ventilación cruzada. En cuanto al programa, el espacio social central refuerza la autonomía de todos los espacios de la casa, que se comunican a través de los semicubiertos, consolidando la relación con el exterior.

La materialización busca la eficiencia funcional, económica y ambiental utilizando solo los materiales imprescindibles para la construcción del espacio habitable con los recursos disponibles en cualquier pueblo y tecnología simple de albañilería tradicional: bloques de hormigón celular, tirantes de madera, chapa de zinc,

aislaciones, tabiques divisores livianos.

Las fundaciones adoptan la solución de zapata corrida de hormigón armado, en tanto que un sistema de muros portantes de bloques de hormigón celular HCCA de 20x50x25 resuelve la estructura y garantiza un alto confort térmico durante todo el año, minimizando el uso de energía en climatización, a la vez que define la distribución y la relación con los espacios exteriores. La tabiquería interior se materializa con bastidores de madera de pino.

Todos los materiales conservan sus acabados y texturas naturales. La cubierta de estructura de madera -constituida por vigas y correas de eucalipto- y chapa acanalada a dos aguas, garantiza el rápido escurrimiento. Asimismo, la madera es el material de los aventanamientos, que cuentan con paños fijos o móviles, y con doble vidriado hermético.

Los cerramientos corredizos de chapa acanalada controlan la radiación solar y las lluvias, y permiten cerrar la casa de manera completa en periodos de ausencia.

COSTO $/M2: $ 1.374.471 / AGOSTO 2024

ZONA

PAMPEANA NORTE | SEGUNDO PREMIO

AUTOR ARQUITECTO FEDERICO MIGUEL GARCÍA COLABORADORES/AS MARÍA CONSUELO CALVO ZARLENGA, AUGUSTO CAMPAGNE, TOMÁS ALEJO PICASSO SUÁREZ Y MARTINA WALK

Propuesta

La vivienda que pensamos surge a partir de una serie de muros portantes de mampuesto conformados por ladrillos comunes, los cuales organizan los espacios de la vivienda en dos áreas, una social y otra de descanso.

Un espacio lateral alberga los servicios cocina y baño, concentrando la totalidad de las instalaciones para racionalizar el recorrido de desagües y provisión de agua.

Patios perimetrales se integran en la vivienda, no solo colaborando con la organización espacial, sino también regulando y cualificando la relación entre el interior y exterior. Los patios son parte de este juego de fundir el interior de la vivienda con el exterior, al tiempo que garantizan el asoleamiento y la ventilación natural. El diseño del paisaje exterior busca minimizar la energía destinada a su mantenimiento, limitándose a mantener especies autóctonas. Estas especies colaboran con la protección del sol del oeste en verano y ayudan a disminuir la temperatura estival del viento del noroeste. Es un aporte a la concientización y preservación del ecosistema pampeano.

Materialidad

El sistema de fundación de la vivienda está pensado a partir de una platea de hormigón armado, de donde emergen muros de doble traba de ladrillo común, revestidos en su interior con un sistema tipo balloon frame con aislación y la terminación superficial está dado por tableros OSB (Oriented Strand Board) de pino, lo que garantiza su aptitud térmica. Los muros de ladrillo común están arriostrados con vigas de hormigón armado a modo de dintel.

La cubierta está conformada por un entramado de rollizos de eucaliptos de 8” de diámetro y una estructura secundaria a modo de clavaduras de 2”x 3”. Sobre esta estructura se montan tejuelas de barro cocido, con características similares en color y texturas a los ladrillos de los muros portantes. La cubierta incluye una capa de compresión de hormigón reforzada con malla de hierro de 6mm, barrera de vapor y EPS como aislante térmico. Colaborando con este fin, el contrapiso alivianado con pendiente, un azotado hidrófugo, una carpeta de nivelación dan terminación a la cubierta, para luego poder aplicar una membrana líquida color blanco que aporta reflectividad y reduce la transmitancia térmica. Las carpinterías son de PVC simil madera con vidrios DVH, diseñadas como vanos de piso a techo, compuestas por paños fijos y de abrir. Esto posibilita la fusión con el espacio exterior. Los solados interiores y exteriores se materializan con ladrillo común recuperando la tradición de la vivienda pampeana, ofreciendo durabilidad y coherencia estética con el proyecto. El concepto medioambiental de la propuesta se completa con la incorporación de colectores solares para calentar el agua sanitaria y paneles fotovoltaicos para la generación de energía eléctrica. Además, se utilizan artefactos eléctricos Energy star, lámparas de bajo consumo, artefactos sanitarios de bajo consumo de agua, sistema de captación y reutilización de agua de lluvia y aplicación de pinturas de baja emisividad, elementos que completan el concepto medio ambiental de la propuesta.

COSTO $/M2: $ 1.069.648 / AGOSTO 2024

ZONA PAMPEANA SUR | PRIMER PREMIO

AUTORA ARQUITECTA MARÍA CELESTE FISCH COLABORADORES/A ARQUITECTO PABLO DAMIÁN ÁLVAREZ / JERÓNIMO ÁLVAREZ, MANUEL ÁLVAREZ Y CAMILA MAGGI

La sustentabilidad ya no es un tema ajeno para la población: desde hace años, hemos incorporado la conciencia del futuro del planeta y las generaciones que lo habiten. Desde los niños en el jardín de infantes hasta los tiktockers lo tratan con naturalidad. Sin embargo, es muy difícil incorporarlo en el hábitat y la vivienda, sobre todo para los sectores más vulnerables. De ahí la importancia que el diseño y la ejecución de las viviendas contemple la dimensión sustentable desde el origen y la forma sencilla de incorporarla al uso y mantenerla a lo largo del tiempo. La zona pampeana sur es la que tiene temperaturas más extremas, y recibe vientos durante todo el año. En algunas localidades, además de las fuertes heladas, recibe nieve. Nuestra propuesta

La propuesta está inspirada en los silos que forman parte permanente del paisaje pampeano. Las viviendas responden en la imagen y lógica modular, como en el sistema constructivo. La vivienda se produce y reproduce en módulos funcionales semiindependientes, relacionados a través de un nexo. La tipología básica se compone por un módulo público, estar-comedor-cocina, y un módulo privado, dormitorios-baño. Estos módulos se pueden unir de formas diferentes, adaptándose a las características del terreno, la orientación, los vientos predominantes, los usos requeridos por las familias. La vivienda también pude crecer a través de la repetición de estos módulos o pueden sumarse a alguna construcción existente. Tipología/funcionalidad/flexibilidad. La vivienda se organiza en dos módulos semi-independientes, uno público y uno privado. Implantación/orientación. Estos módulos generan en su relación

flexibilidad y adaptabilidad al terreno, orientación, vientos y requerimientos familiares y funcionales.

Tecnología/fundaciones/materialización. Para esta propuesta se elige la construcción en seco -steel frame-, basada en estructura metálica y cerramiento exterior de chapa, pero incorporando todas las aislaciones y terminaciones que requieren la habitabilidad de una vivienda. Esto permitirá la estandarización de la producción y la fácil incorporación de mano de obra.

Considerando el ambiente y la sustentabilidad, se busca cumplir desde el diseño y la materialidad con las principales condiciones que la vivienda debe cumplir:

• Aislación desde su sistema constructivo.

• Ventilación cruzada, desde la disposición de los aventanamientos.

• Postigos en todas las ventanas (aislación y seguridad).

• El prototipo flexible permite elegir los lados mejor orientados a través de la opción espejo de la propuesta.

Por otro lado, el proyecto incorpora la utilización de termotanque solar con respecto a la energía, y un sistema sencillo de recuperación de agua de lluvia para riego, que funciona por acumulación y gravedad. También se prevé el espacio para un hogar/salamandra (calefacción con combustible renovable). Para completar la propuesta, se recomienda la plantación de un árbol caduco en el patio con orientación norte, de manera que en verano proteja las habitaciones de los rayos del sol y en invierno permita su aprovechamiento.

COSTO $/M2: $ 1.041.477 / AGOSTO 2024

¿POR QUÉ PROMOVER UN CONCURSO DE PROYECTOS DE

PROTOTIPOS

DE VIVIENDA

INDIVIDUAL SUSTENTABLE?

ARQUITECTA MARÍA SOLEDAD DEL CUETO / ASESORA CONCURSO

“La vivienda para el presupuesto mínimo -vivienda mínima- no es simplemente una vivienda pequeña. No significa simple reducción espacial o disminución del número de habitaciones, sino su profunda reforma técnica y económica, la racionalización de todos los procesos vitales que se suman en el concepto ‘habitar.’”

La preocupación por el hábitat, la ciudad y la vivienda en particular, ha sido una constante en la historia de la humanidad. En el origen y en las civilizaciones antiguas la función principal era protegerse de las inclemencias del tiempo y de diversas amenazas, sin hacer énfasis a la funcionalidad y la habitabilidad. Poco a poco, el concepto de habitar fue migrando hacia una concepción más amplia, donde se comenzó a tomar en cuenta factores y actividades que posteriormente definieron los espacios, comer, dormir, encontrarse, así como también la orientación, la iluminación y la ventilación; de aquí surgen elementos clásicos dentro de la arquitectura mundial: estancia, cocina, comedor, recámara y baño. La belleza y la búsqueda de espacios de confort comenzaron a tomar preminencia a partir del desarrollo económico de las ciudades, que no deberían ser exclusivos de una clase o sector social. Como primera aproximación podemos decir que la vivienda ha sido un tema fundamental vinculado a la supervivencia, la protección, el cuidado y el desarrollo y la promoción de la persona humana. En el siglo XIX, la vivienda se convirtió en el elemento arquitectónico principal de las grandes ciudades, siendo ésta la base de la sociedad y alrededor de la cual se desarrollaron las urbes. Para el siglo XX, la vivienda se transformó, producto de los avances tecnológicos, socioculturales y económicos, que influyeron en la arquitectura y el urbanismo, destacándose en las grandes ciudades las tipologías de Edificio Multifamiliar. Sin embargo, debido al crecimiento desmedido de las metrópolis, al cambio climático, las migraciones y a la especulación con el suelo urbano, cada vez es más complicado, para una mayoría creciente de la población, acceder a una vivienda que sea adecuada para sus actividades diarias. La llegada de la pandemia en el año 2020, puso en evidencia la importancia de contar con una vivienda adecuada como primera línea de defensa frente al virus. En el marco de un aislamiento social que forzó a las personas a permanecer en sus hogares de modo preventivo, quienes tuvieron mayores facilidades para transitar la cuarentena fueron aquellos/as que, al momento de ser decretada, habitaban una casa con acceso a servicios básicos y espacio suficiente para todos los miembros del hogar, como así también contaban con infraestructura pública sanitaria y social cercana. No obstante, claro está, que ésta no es la realidad que atraviesa el total de la población de nuestro país. Una gran cantidad de personas que viven en Argentina no cuenta con una vivienda que reúna esas características. Los indicadores dan cuenta de que la situación habitacional no ha me-

jorado: según los últimos datos de la Encuesta Permanente de Hogares (EPH, primer semestre 2024), el 45,5% de los hogares, en los que habita el 50,5% de las personas relevadas en los 31 aglomerados urbanos más grandes del país, no accede por lo menos a uno de los servicios básicos (agua corriente, gas de red y desagües cloacales).

¿A QUÉ NOS REFERIMOS CON “VIVIENDA ADECUADA”?

Basada en la Declaración de los Derechos Humanos y el Pacto Internacional de los Derechos Económicos, Sociales y Culturales, la ONUHábitat ha establecido como un derecho universal el acceso a una vivienda adecuada, para lo cual instituyó una serie de conceptos que deben cumplirse para considerarla como tal, los que forman parte de los Objetivos de Desarrollo Sostenible / ODS para 2030, a saber: Seguridad de la tenencia: los habitantes deben tener la certeza de la propiedad de su vivienda, evitando, entre otras cosas, el desalojo forzoso.

Disponibilidad de servicios, materiales, instalaciones e infraestructura: asegurar que la vivienda cuente con las instalaciones correctas y necesarias para un funcionamiento óptimo.

Asequibilidad: el costo debe ser tal que todas las personas puedan acceder a una vivienda sin arriesgar o eliminar la satisfacción de sus derechos.

Habitabilidad: proporcionar espacios favorables que permitan garantizar la seguridad física y la funcionalidad dentro de la vivienda. Accesibilidad: diseñar la vivienda de tal forma que cualquier persona pueda habitarla, en especial los grupos vulnerables y desfavorecidos, y en particular, las personas con discapacidad.

Ubicación: debe estar situada en un entorno que permita el acceso a servicios básicos, a oportunidades de empleo, a zonas de recreación y esparcimiento, así como estar alejadas de áreas de riesgo o contaminadas.

Adecuación cultural: la vivienda se considera adecuada si se toma en cuenta y se respeta el contexto y la identidad histórico-cultural.

LA VIVIENDA COMO DERECHO HUMANO

La vivienda adecuada fue reconocida como parte del derecho a un nivel de vida adecuado en la Declaración Universal de Derechos Humanos de 1948 y en el Pacto Internacional de Derechos Económicos, Sociales y Culturales de 1966. Otros tratados internacionales de derechos humanos han reconocido o mencionado desde entonces el derecho a una vivienda adecuada o algunos de sus elementos, como la protección del hogar y la privacidad. En la República Argentina, este derecho se encuentra presente en el artículo 14 bis de la Constitución Nacional que determina el deber del Estado de otorgar los beneficios de la seguridad social, que tendrá carácter integral, y entre sus componentes se incluye el acceso a una vivienda digna. La Convención Nacional Constituyente de 1957 incorporó el artículo 14 bis a través del cual se garantiza que

“el Estado otorgará los beneficios de la seguridad social, que tendrá carácter de integral e irrenunciable”. Asimismo, en el ámbito provincial, el derecho a la vivienda se encuentra contemplado por el artículo 36 inciso 7 de la Constitución de la provincia de Buenos Aires, el cual lo contempla dentro del marco de la protección integral de la familia. Es en este sentido que es relevante detenerse en este ámbito geográfico y destacar la existencia de la Ley provincial 14.449, de Acceso Justo al Hábitat, que tiene por objeto la promoción del derecho a la vivienda y a un hábitat digno y sustentable -haciendo eco en los principios establecidos por la Constitución bonaerense-, la cual fue sancionada el 29 de noviembre de 2012 y publicada en el Boletín Oficial en octubre de 2013.

Pero declarar a la vivienda un derecho humano no es suficiente para convertir ese derecho en un hecho real y concreto. La complejidad y las tensiones que se dan en un mundo globalizado, donde la acumulación de los recursos en pocas personas, las tensiones económicas con sus consecuencias en los territorios, la crisis humanitaria, los conflictos bélicos, las migraciones constantes o masivas, la lógica productiva extractivista y las políticas de desigualdad, han provocado que las grandes mayorías poblacionales hoy no puedan accedan a los servicios básicos y a una vivienda digna y adecuada, lo cual torna a ese derecho en una expresión de deseo sin garantía.

Nuestro país y nuestra provincia no son ajenas a estas tensiones y, salvo excepciones, los programas de viviendas no se han podido sostener históricamente en la agenda como parte de una política de estado. Es en este sentido que, como profesionales de la arquitectura, sabemos que vivir en una vivienda adecuada promueve el desarrollo de quienes viven en ella, así como también la equidad y acceso de oportunidades, lo que se traduce en una disminución de la desigualdad urbana.

La evidencia muestra que una vivienda deficiente impacta en varios aspectos del desarrollo humano. En primer lugar, perjudica la salud de las personas, tanto en forma individual como colectiva, ya que aumenta la exposición a enfermedades y, en consecuencia, empeora su calidad de vida. Situación que se agrava en los barrios con carencias estructurales, debido a la falta de condiciones de habitabilidad y de servicios básicos, factores que se pusieron en evidencia durante la pandemia del Covid-19; estas carencias contribuyeron en gran medida a la propagación del virus, aumentando las problemáticas de salud mental y las violencias intrafamiliares. En segundo lugar, la educación también se ve comprometida, no solo porque los perjuicios en la salud pueden afectar la asistencia escolar, sino también porque vivir en espacios reducidos puede disminuir el desempeño académico. Por último, vivir en una vivienda que no sea adecuada en términos de ubicación puede obstaculizar el acceso a oportunidades de trabajo y amenidades (tanto públicas como privadas), factores que son clave para la movilidad socioeconómica.

Es por ello que, para que el derecho a la vivienda y a un hábitat digno y sustentable no sea una mera expresión de deseo que quede plasmada en grandilocuentes textos legales sin aplicación alguna, será necesaria la acción constante y esperanzada de los profesionales comprometidos para que estos derechos sean una garantía y un hecho y no un lastimoso desuetudo.

LA CRISIS DEL CAMBIO CLIMÁTICO PONE EN CRISIS LA SUPERVIVENCIA

“El ambiente humano y el ambiente natural se degradan juntos, y no podremos afrontar adecuadamente la degradación ambiental si no prestamos atención a causas que tienen que ver con la degradación humana y social. De hecho, el deterioro del ambiente y el de la sociedad afectan de un modo especial a los más débiles del planeta”.

Encíclica del Papa Francisco “Laudato si”. Punto 48 La crisis climática nos exige amigarnos con la casa común que es

nuestro planeta y para ello requiere que cada intervención o modificación que realicemos en el espacio construido tenga como premisa la sustentabilidad, que morigere el efecto invernadero en el planeta y realice prácticas en la producción del hábitat que protejan los recursos naturales, sabiendo que no son infinitos y que de ellos dependen nuestras generaciones futuras.

Con el avance progresivo de la urbanización y el consecuente aumento en la necesidad de recursos naturales para abastecer a las poblaciones urbanas, se vuelve apremiante la incorporación de métodos y parámetros de construcción que estén acorde a una visión sustentable del hábitat. Al mismo tiempo, e intentando equilibrarlo con esta concepción ecológica, las circunstancias económicas y sociales actuales imperan sobre las formas en las que un desarrollo sostenible del tejido urbano se materializa.

¿POR QUÉ ES UN DEBATE NECESARIO Y URGENTE?

Esta preocupación es inherente y troncal en nuestra formación y en nuestro quehacer como profesionales de la arquitectura. La producción de hábitat, ciudad y vivienda son uno de los motores fundamentales en la economía de una nación. La construcción de viviendas no solo da respuestas habitacionales a los diferentes sectores sociales, sino que motoriza la producción y el trabajo de vastos sectores de la sociedad. En particular cuando el estado interviene con políticas públicas de viviendas, contemplando una batería de respuestas acorde a cada sector social que impactan en la dinámica de la producción de la construcción y en el trabajo de nuestra profesión

Sabido es que el Estado nacional ha expresado la decisión de no destinar recursos económicos para generar políticas de vivienda mediante operatorias, programas y/o planes, como fueron los Créditos Hipotecarios, los Planes de Vivienda, el Plan Federal de Vivienda, el ProCreAr, el Emergencia Habitacional y tantos otros que hoy no están vigentes y dieron respuesta a vastos sectores de la población, dinamizando la economía y la producción de la construcción. Hoy atravesamos, una vez más, la interrupción que se repite a lo largo de nuestra historia, provocando el freno a la obra pública y la falta de respuesta al déficit habitacional que no hemos logrado revertir.

Del mismo modo que se discute la educación y la salud como política de estado, es necesario que podamos incorporar en la agenda pública el desarrollo de servicios, infraestructura y vivienda. Como Colegio tenemos el desafío y la responsabilidad de dar esta discusión.

CUANTIFICAR EL DÉFICIT HABITACIONAL

En la provincia de Buenos Aires existe un déficit que, según los últimos censos y estudios realizados, entre cantidad y calidad, se estima en alrededor de los 2.000.000 de unidades.

Por las características y el origen diverso de los datos, el déficit habitacional se calcula en base a estimaciones a partir de la información brindada por la Encuesta Permanente de Hogares (EPH) que elabora el Instituto Nacional de Estadística y Censos (INDEC), junto con proyecciones basadas en los últimos censos nacionales. El especialista en planificación urbana y territorial, arquitecto Fredy Garay, en la clase que dictara en el CAPBA -en el marco del “Seminario: El Decreto 8912/1977, bajo la lupa del siglo XXI”compartió un análisis de los datos del censo nacional realizado en el año 2022, que dieron como resultado un déficit habitacional de 3.795.066 hogares (23,82%). De ese universo, 1.024.903 (27%) corresponde a viviendas irrecuperables que demandan una vivienda nueva, y 2.770.163 (73%) concierne a viviendas recuperables que requieren una intervención sobre las mismas. En cuanto a la provincia de Buenos Aires se estima que el déficit habitacional es de 33 % de ese total.

La crisis habitacional sistémica que enfrentamos requiere una gestión multidireccional, teniendo en cuenta tres aspectos a resolver. El primero y más urgente, es revertir el déficit cuantitativo brindando una vivienda a aquellos que no la tienen. En segundo lugar, el

déficit cualitativo representado por viviendas de mala calidad o que carecen de servicios básicos constituye un descenso en la calidad y esperanza de vida de los sectores sociales más vulnerables. Y tercero, preparar la disponibilidad de hogares para ser habitados que se construyen cada año.

NO SER INDIFERENTE Y TOMAR CARTAS EN EL ASUNTO Permanecer indiferentes ante esta situación nos resulta imposible e impensable, razón por la cual el CAPBA declaró el tema vivienda como central en la Bienal que se realizó en abril de 2024. En este contexto también encomendó a la Secretaría de Hábitat y Vivienda la realización del Concurso que permitió abrir la participación del tema a todos/as los profesionales de la arquitectura de la provincia de Buenos Aires.

Con esta decisión, se intentó generar un amplio debate sobre la “célula tipo” que nos permitirá obtener los mejores aportes y contar con material preciso, mensurable y evaluable con nuestros propios parámetros, en todo el amplio territorio de la provincia, considerando sus características regionales, particularidades climáticas, materiales, logísticas y ambientales. Los proyectos galardonados pueden, a su vez, aportar a las distintas operatorias y emprendimientos, interactuando con instituciones gubernamentales, organizaciones intermedias, emprendimientos privados, distintas formas de inserción y, a su vez, tener un verdadero valor y justiprecio de nuestra tarea y su producto.

Estas son las razones por las que el Colegio de Arquitectos de la Provincia de Buenos Aires, en su doble carácter de promotor y organizador, decidió hacer el llamado a Concurso para contar con los prototipos que mejor se adecuen a las diferentes zonas del territorio bonaerense.

¿CÓMO SE PENSÓ EL CONCURSO?

Entendiendo la vasta extensión y la diversidad de climas y geografías que componen la provincia de Buenos Aires y con el fin de dar respuesta a las distintas realidades, se consideró conveniente regionalizar la misma para que las respuestas arquitectónicas de los prototipos propuestos sean los adecuados. Se delimitaron, entonces, cinco regiones: 1/ Pampeana Norte, 2/ Pampeana Sur, 3/ Marítima, 4/ Litoral Fluvial y 5/ Metropolitana.

El objetivo fue también buscar la calidad técnica y proyectual, contemplando a la sustentabilidad, la accesibilidad, la funcionalidad, y la resolución técnica y constructiva como ejes en la respuesta arquitectónica. En base a ello, se definieron cinco ejes, los cuales fueron centrales para los jurados a la hora de avaluar los trabajos presentados.

Accesibilidad Universal. La accesibilidad o accesibilidad universal en la vivienda es el grado en el que todas las personas pueden utilizar un objeto y ocupar un lugar, independientemente de sus capacidades técnicas, cognitivas o físicas y de la manera más autónoma posible, a fin de garantizar no solo el estar y permanecer sino también el llegar y retirarse. Pensar la adaptabilidad de la vivienda desde el proyecto es una forma de prevenir futuras modificaciones frente a cambios físicos que pudieran tener sus ocupantes. Ambiente y Sustentabilidad. Contemplar soluciones eficientes e innovadoras en el campo del diseño pasivo, la eficiencia energética y el desarrollo sostenible, en búsqueda del bienestar ambiental para la vivienda y la ciudad. En síntesis, la propuesta debía generar un ámbito saludable, confortable, constructivamente duradero, eficiente energéticamente y responsable en todos sus aspectos y etapas de construcción.

Resolución Constructiva. Las resoluciones constructivas/estructurales debían permitir acelerar los plazos de obra dentro de costos razonables y acordes al tipo de edificio, posibilitando una rápida ejecución y habitación de la misma. Para ello, era necesario prestar especial atención a la utilización de materiales nobles con bajo mantenimiento, que permitan ser utilizados en los distintos contextos de la provincia y que respondan a las pautas

culturales de los potenciales usuarios, con la posibilidad de crecimiento y/o modificaciones mediante la utilización de las tecnologías disponibles en el mercado. Funcionalidad/Flexibilidad. Potenciar la idea de espacios que puedan transformarse en el tiempo, con capacidad de admitir nuevos usos y adaptarse a posibles cambios familiares, incorporando flexibilidad y funcionalidad en la resolución de la vivienda. La flexibilidad incluirá asimismo la posibilidad de vincular la vida cotidiana con el trabajo en el hogar de forma dinámica y accesible. Aspectos Técnicos. Responder a criterios de racionalidad técnica y viabilidad económica, utilizando materiales y tecnologías que garanticen bajos costos de mantenimiento y de fácil acceso al mercado al cual va dirigido.

Otro de los aspectos que se consideró fundamental fue el cómputo detallado de los insumos por rubro (material y mano de obra) para poder hacer una estimación de costos en los diferentes Distritos que componen el CAPBA, tendiente a tener una información propia que permita a futuro elaborar un índice y, al mismo tiempo, formular una petición ante las autoridades bonaerenses con datos concretos.

CONCLUSIONES

El Concurso de Proyecto de Prototipos de Vivienda Individual Sustentable permitió realizar un debate a toda la matrícula de la provincia de Buenos Aires y contar con un material rico y vasto para presentar ante las autoridades provinciales, entendiéndolo como un aporte de la matrícula colegial al debate y una posible resolución a un problema tan urgente. Esperamos que este Concurso sirva como plan conceptual en pos de un sistema de créditos hipotecarios provincial con similitudes a lo que fuera el ProCreAr a nivel nacional.

Es el deseo profundo de este Colegio y de quienes trabajamos en él, que esta iniciativa sea de utilidad a los fines de contribuir a una política de vivienda adecuada para todos los habitantes de nuestra querida provincia de Buenos Aires.

Turn static files into dynamic content formats.

Create a flipbook