CAPBA Fascículo Nº 020 - 2025

Page 1


FASCÍCULOS

COLEGIO

REFLEXIONAR SOBRE LA PRÁCTICA

ARQUITECTO

Dice la arquitecta Besonías respecto a los concursos, en las Conclusiones del Foro de concursos / XI BAU/CAPBA:

“La riqueza intelectual que aporta la posibilidad de proponer soluciones coexistiendo con diversas respuestas a un mismo problema, escapando a las recetas pre establecidas y reduccionistas, hace también que el hecho de concursar sea una oportunidad de crecimiento, tanto para el participante como para el jurado.”

Agregamos que, también, es una oportunidad de enriquecimiento intelectual para quienes habitan nuestras ciudades, pueblos, parajes, barrios o simplemente están pensando en el proyecto de su nueva casa o una pequeña refacción. Los concursos que auspicia el CAPBA son públicos, y el acceso a sus resultados es libre y gratuito a través de sus distintos medios de comunicación. Es, a nuestro modo de ver, una contribución de enorme valor a la cultura urbana y arquitectónica de nuestra comunidad, contribución que implica, a su vez, la reivindicación clara que no hay una única manera de hacer las cosas. Y allí radica su mejor mensaje. Si quienes participan como proyectistas, jurados o asesores asumen esta condición ante cada línea que trazan u opinión que emiten, aportarán -y mucho- a horizontalizar el conocimiento y, por ende, a fortalecer el debate público.

Las escalas de los cuatro concursos que publicamos a continuación son una buena muestra de esto que decimos. Y entendemos que son las palabras de los autores de cada uno de los proyectos las que mejor explican su génesis y su devenir hasta convertirse en propuestas. Las memorias no son documentos meramente complementarios o de simple cumplimiento formal. Revisemos, si no, las fuentes de la obra de Rafael Iglesia: “Con una singular manera de hacer arquitectura, Rafael Iglesia (1952-2015) propone [transformar al objeto en el proceso de su construcción], expone su inquietud acerca del rol que la estructura tiene en la creación arquitectónica y decide apostar por la experimentación con máquinas simples, a base de palancas, fricciones y contrapesos. De esta forma, construye una poética que es detonada por sus lecturas de literatura y filosofía contemporáneas, sostenida por sus exploraciones estructurales y reafirmada en la reflexión sobre su hacer, que aparece en la escritura de las memorias de sus obras.”

La construcción de una poética: el modo de obrar de Rafael Iglesia en Rosario, Argentina. Claudio Solari.

En el mismo sentido, seleccionamos breves fragmentos de alguna de las memorias de los concursos que encontrarán en las páginas que siguen. Creemos que así serán mejor comprendidas las palabras de Mariví Besonías con las que comenzamos este editorial:

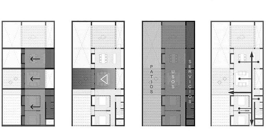
“Esa condición atávica de nuestras ciudades se traslada a la vivienda en un arquetipo que atraviesa la arquitectura, desde la domus romana hasta las casas-patio de Mies van der Rohe, pasando por nuestra casa chorizo. El patio es a la vivienda como la plaza a la ciudad. Es el regulador de la vida social y de la conformación de los espacios íntimos, así como el mediador de las

relaciones entre la calle, el interior y el fondo del lote. La propuesta, más allá, de su adscripción tipológica, de su rigor geométrico-dimensional y de su simplicidad constructiva, es un espacio que facilita diferentes apropiaciones y que apela a una forma ancestral de vivir, que no es otra cosa que un patio a la espera de ser habitado, tal vez a la espera de alguien que mire a través de él, el recorte de un cielo pampeano desde la seguridad de su morada.”

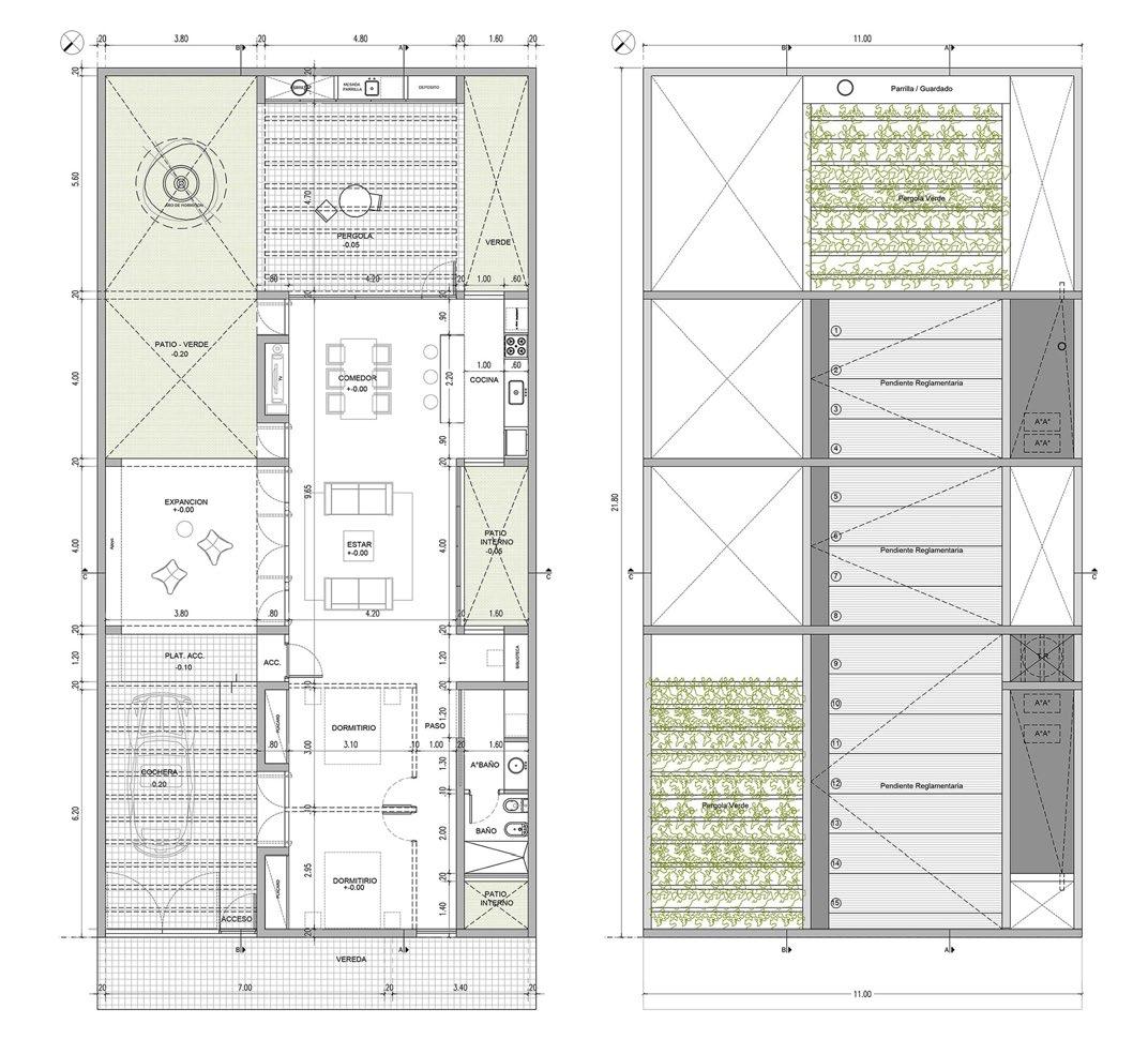
Primer premio. Concurso vivienda/Liga Popular de Lucha Contra el Cáncer/Benito Juárez

“El dispositivo urbano que conmemora el aniversario de la ciudad de Mar del Plata, está definido por la tensión entre el pasado y el futuro. No solo su carácter festivo enuncia la rica historia de la ciudad, sino también debe expresarse sobre un posible futuro. En este sentido, el proyecto será un nodo de memoria (traer al presente la historia), de lugar (el sitio como referencia del hoy, del presente) y de proyecto (una idea lanzada al futuro). Segundo premio. Concurso de ideas conmemoración del 150° aniversario de la fundación de Mar del Plata.

“Los sucesivos textos que se inscriben sobre los edificios, sus vidas pasadas, presentan un enigma. Construir sobre esas huellas implica nuevas lecturas de viejos edificios. Si bien hablamos de un edificio que no forma parte del patrimonio arquitectónico, es parte de un patrimonio emocional que la figura del arquitecto Cova dejó en su derrotero a favor de la toma de conciencia de nuestro acervo patrimonial, no solo por los objetos arquitectónicos propiamente dicho sino también por el reconocimiento de sus constructores, obreros, los linajes familiares que constituyen parte de esa historia de hitos arquitectónicos.”

Segundo Premio. Concurso distrital de anteproyectos refuncionalización y ampliación del Espacio Cova

“Las estrategias contemporáneas para la composición arquitectónica ligan las edificaciones y el suelo, generando ‘topografías’ más que volumetrías.

El suelo es comprendido como arquetipo protagonista del proceso proyectual. Se interpreta y constituye como una superficie maleable y flexible, en el cual las edificaciones no se posan, sino que surge en relación al propio suelo. Se trata del trabajo ‘con’ el suelo, en lugar de sobre el suelo...”

Primer premio. Concurso nacional de ideas Plan urbano nuevo centro multideportivo y social Estadio Juan Carmelo Zerillo.

Cabe preguntarse en cuántas ocasiones nos es posible detenernos a reflexionar en estos términos cuando afrontamos un proyecto, no siendo en el ámbito de un concurso… Seguramente, muy pocas. Los modos en que ejercemos la práctica profesional diaria no dejan mucho tiempo para hacerlo, condición que se agudiza en nuestras pueblos o ciudades pequeñas. Hagamos el esfuerzo -que bien lo vale- y participemos de los concursos.

FORO DE CONCURSOS EN LA XI BAU: IDEAS PARA EL DEBATE

En el transcurso de la Bienal se realizaron diversos foros, con temas vinculados a la vivienda y suelo, que permitieron indagar la opinión de los/as asistentes al evento en torno a esas problemáticas. Uno de los encuentros propuso debatir sobre la consigna: “Concursos de viviendas. ¿Qué estamos jurando?”. En las próximas líneas, las conclusiones elaboradas por la arquitecta María Victoria Besonías, coordinadora del foro, que entendemos pertinentes a la hora de hacer un balance de una actividad colegial que siempre ha tenido relevancia en la agenda de todas las gestiones que se han sucedido desde la creación del CAPBA.

El desarrollo de este foro no se centró en la particularidad de los concursos de vivienda, sino que los participantes mostraron interés en debatir sobre los aspectos generales del sistema de concursos públicos, considerando los actores que participan en el mismo.

Entes organizadores

1/ Elevar, ante la presente coyuntura, la calidad de nuestra arquitectura mediante la promoción de los concursos, que debe ser asumida como genuina tarea por los Colegios profesionales.

2/ Volver a jerarquizar, como objetivo, el sistema de concursos, fomentando y brindando asesoramiento a diferentes instituciones en general y, especialmente, a los organismos encargados de la ejecución de la obra pública.

3/ Propender a que los concursos sean siempre vinculantes en las categorías Anteproyecto y a Dos Vueltas, respetando su genuina finalidad de devenir en obra concreta.

4/ Brindar a los concursantes ganadores el asesoramiento necesario para establecer una relación simétrica con el comitente, especialmente en los casos en que los mismos sean matriculados muy jóvenes.

Asesores

1/ Posibilitar, siguiendo el ejemplo de una práctica del Colegio de Arquitectos de Neuquén, la capacitación de los matriculados jóvenes actuando como pasantes junto a colegas experimentados en la elaboración de las Bases de diferentes concursos. De esta manera, se podrá contar con un cuerpo de asesores altamente idóneo.

2/ Guiar al promotor en un acertado planteo de sus necesidades.

3/ Elaborar bases definidas, tanto en el programa de necesidades como en los objetivos, conteniendo lo justo y necesario, como para no coartar la posibilidad de presentación de variadas alternativas y estableciendo con absoluta claridad aquellas

cuestiones que dejarían a un participante fuera de concurso. 4/ Definir la cantidad de material requerido, su escala y plazos de entrega de acuerdo con la categoría y escala del llamado, con el objetivo de que resulte un concurso sustentable, para los colegas participantes, en la relación premios y tiempo invertido.

5/ Acordar con el promotor un costo aproximado de ejecución de la obra para que la mayor innovación y calidad de diseño puedan resolverse adecuadamente con los recursos previstos.

Jurados

La singularidad del concurso de arquitectura es que, a diferencia de un encargo particular, el resultado se define en un encuentro anónimo entre los participantes y el cuerpo de jurados. El hecho de participar y poder someter la propia producción al juicio y arbitrio del otro, representado en un jurado, tiene un alto valor, ya que en arquitectura no siempre hay convergencia de ideas. La riqueza intelectual que aporta la posibilidad de proponer soluciones coexistiendo con diversas respuestas a un mismo problema, escapando a las recetas pre establecidas y reduccionistas, hace también que el hecho de concursar sea una oportunidad de crecimiento, tanto para el participante como para el jurado. Dada la complejidad de esta tarea, y reconociendo que al igual que en el caso de los asesores no es posible adquirir experiencia ni con la práctica de la profesión ni con el entrenamiento que brinda el ejercicio de la docencia, se hace necesario que: 1/ Los matriculados con experiencia, no sólo en el mundo proyectual de la arquitectura sino también en el de su ejecución, reciban de los Colegios alguna forma de capacitación para desempeñarse en una tarea cuyo resultado puede verse empobrecido si no se valoran debidamente proyectos más creativos que los usuales, o en el otro extremo, que lo premiado sea de despliegue formal y que tras una supuesta innovación no resuelva las necesidades requeridas. 2/ La jura de un concurso, que es una tarea colectiva de la que participan jurados con diferentes visiones e intereses, cuente con un tiempo y un ámbito donde el debate pueda establecerse. En este sentido, con la modalidad virtual de entrega de trabajos, se ha hecho posible la participación de un gran número de propuestas, lo cual es muy beneficioso siempre y cuando el tiempo disponible para resolver la premiación no resulte tan escaso que obligue a los jurados a hacer un descarte previo sin el debido análisis, a tomar decisiones sin agotar el debate, o a realizar una devolución de rutina sin el debido compromiso.

Propietario Colegio de Arquitectos de la Provincia de Buenos Aires Director Arq. Ramón Rojo

Consejo editor Arqs. Juan Carlos Sánchez y Mario Pérez Diseño Estudio RO-K

CONCURSO PROVINCIAL DE IDEAS Y ANTEPROYECTO CONSTRUCTIVO, A DOS VUELTAS, PARA CONMEMORAR EL 150° ANIVERSARIO DE LA CIUDAD DE MAR DEL PLATA

Promotor y Organizador Colegio de Arquitectos de la Provincia de Buenos Aires / Distrito 9

Co-Organizador Colegio de Arquitectos de la Provincia de Buenos Aires / Consejo Superior

Auspiciantes Federación Argentina de Entidades de Arquitectos / Aserradero Jeske (Mar del Plata)

Asesor Arquitecto Darío Héctor Lemmi / Capba D9

Jurados Arquitectos Rubén Zoppi (Capba D9), César David Ray (FADEA) y Alejandro Borrachia (invitado especialista en tecnología de madera) / Arquitectas María Noé Gómez (Municipio de General Pueyrredon) y Rocío Solla (Participantes)

Objetivos

Si bien el carácter del espacio a intervenir será temático, el mismo siempre será de uso público. Entendiendo que la ciudad es un entretejido de usos y espacios que se vinculan y potencian entre sí, siendo este dispositivo parte del sistema.

La propuesta deberá ser parte integral de las ideas de toda el área y además provocar la evocación de “Festejo”.

Se ponderará que la propuesta sea promotora de lo que se denomina “Arquitectura efímera” o “Arquitectura transitoria”.

Se encomiará:

1. El cumplimiento del programa de necesidades estipulado en las bases del concurso.

2. El planteo de una organización funcional-espacial de recorrido y uso que se identifique con la ciudad de Mar del Plata y vincule el objeto con una producción de ideación arquitectónica. Es decir, se promueve la construcción de un objeto arquitectónico y su interrelación con el uso del espacio público.

3. El empleo de sistemas constructivos de madera con tecnología nacional, de fácil y bajo mantenimiento, adaptables a la mano de obra local como así también materiales de producción local o regional a base de reciclados/recuperados.

4. La optimización y racionalización de todos los recursos (insumos, trabajo en taller, montaje, espacios multifuncionales, energía, equipamiento, etc.).

5. Una imagen de conjunto que fortalezca y sintetice la identidad de la ciudad de Mar del Plata.

SEGUNDO PREMIO

AUTORES/AS ARQUITECTOS ANDRÉS TAPIA AVALOS, PABLO FIDEL RESCIA, ALFONSO TRUEBA Y JULIÁN VERÓN / ARQUITECTA MARÍA JOSÉ

DÍAZ VARELA

El dispositivo urbano que conmemora el aniversario de la ciudad de Mar del Plata, está definido por la tensión entre el pasado y el futuro. No solo su carácter festivo enuncia la rica historia de la ciudad, sino también debe expresarse sobre un posible futuro. En este sentido, el proyecto será un nodo de memoria (traer al presente la historia), de lugar (el sitio como referencia del hoy, del presente) y de proyecto (una idea lanzada al futuro).

Así, memoria, lugar y proyecto se enlazan en una propuesta que evita cualquier referencia directa o mímesis de los lugares comunes desde donde Mar del Plata ha sido vista a lo largo de su historia.

La condición efímera del dispositivo refiere a un artefacto que sea ícono de sí mismo, con una profundidad de lectura que implique una pluralidad de situaciones que permitan una reconstrucción histórica a partir de la experiencia de cada visitante. El dispositivo, entonces, es un caleidoscopio de planta circular, buscando no aludir formalmente a ninguna condición arquitectónica, ni del entorno ni de la historia urbano arquitectónica de la ciudad. Es una estructura velada, que invita a ir a su encuentro, buscando una experiencia inmersiva que pueda reconstruir la memoria con el futuro.

MEMORIA DE LO EFÍMERO.

El pasado se instala en el suelo del artefacto evocando el primer plano de Chapeaurouge, con la dicotomía entre ciudad reticular y el perfil costero natural como sustrato de todas las experiencias propias de esta ciudad. Esta trama nos habla de lo repetitivo contra lo singular, de la norma contra la excepción. Esta retícula aparece en la orientación real de la ciudad, coincidiendo con la

dirección costera propia de la intervención en Varese. Este dibujo toma expresión tridimensional en una trama (de módulo de 1,20x1,20 metros), de vigas de placas de OSB estructural de tres secciones de 18 mm., desfasadas para producir las uniones entre tramos de viga. Esta trama está sostenida por ocho módulos cuadrados que hacen las veces de columnas y bases, conteniendo en su tramo inferior “muertos” de arena, que hacen de contrapeso a la estructura de vigas y sin alterar la superficie del sitio de intervención. Esta estructura es de secciones de 3”x 3”, de pino multilaminado secado y estabilizado para columnas, y en secciones de 2”x 4”, para las diagonales. En el tramo inferior se conforma una “caja” en OSB que se llenará de arena, a modo de ancla de la estructura, arriostrada por cables de acero de alma textil con uniones de eslingas guardacabos, tensores y grilletes. Completa el sistema un módulo banco-cajón de arena-macetero, que hace las veces de asiento-fundación-vegetación, ofreciéndose como un elemento de vinculación exterior e interior. Estos módulos son utilizados como soporte para contar una historia que hilvane las etapas de desarrollo de la ciudad y el patrimonio edilicio a través de 15 obras de los 15 decenios de historia de la ciudad. Estas columnas dejan libre el perímetro, que se cierra con una trama textil de cabos trenzados, propios de las artes de pesca, reutilizado de las sobras de esta actividad. Lo textil hace del objeto arquitectónico un “canasto”, en alusión a los “medios mundos” hechos en cestería, o a la típica silla playera marplatense, también utilizando el mismo medio expresivo. El límite alude así al perfil productivo de la ciudad, complejizando la visión común de ciudad turística. Estos cabos están unidos por pitones y tensores a “costillas” de OSB que

“cuelgan” de la trama de vigas. Esta trama no llega al piso, para enfatizar su condición etérea y momentánea, buscando que el interior del artefacto se convierta en un espacio de intercambio sensorial, entre el ámbito generado por él y la historia que cuentan las 15 obras, la retícula originaria envueltos en un lienzo semivelado.

ATRAPAR EL TIEMPO.

El espacio de exposición es apenas un instante dentro de la vida de la ciudad; sin embargo, necesita ser re-construido, donde cada visitante se apropie de esas imágenes, de esa retícula y ese borde en una experiencia espacio-temporal propia, que se amplía al sitio próximo y aún más en la mirada lejana de la ciudad y el mar.

Esa apropiación es un recorrido que sigue el perímetro circular del artefacto, dejando en el centro el sitio de información, donde se proponen acciones más interactivas, con apoyo electrónico. Este lugar es caracterizado por una serie de “periscopios” que trae al sitio la mirada selectiva de ese sector de la ciudad, pormenorizando la confrontación permanente entre lo contemporáneo y el patrimonio construido, como las intervenciones en el Chalet Roesli (1934, intervenido por un edificio en altura de los arquitectos Mariani, Pérez Maraviglia y Cañadas), los chalets Roque Suárez y la Franca (1928, hoy Tío Curzio), el Chalet Ezcurra (1929, con la intervención de Carlos Ott detrás), proponiendo una visión del sitio compleja, que implica pensar en un futuro seguramente contradictorio.

La ubicación de los módulos de sostén, que a su vez son soporte

de las imágenes, permiten delimitar un lugar posible de ser cerrado para actividades de información o consultas. La cubierta de este lugar es de lona acrílica similar al usado en las carpas de playa. La idea es que este sitio permanezca abierto, formando parte de la acción expositora.

UN PROYECTO, MÚLTIPLES LUGARES.

La economía de elementos que componen el dispositivo, su liviandad y su fácil montaje permite su instalación en diferentes situaciones significativas de la ciudad, en combinación con el espacio público, la arquitectura patrimonial o las intervenciones urbano paisajísticas.

La elementaridad y la pureza geométrica de los componentes permiten también adquirir diferentes formas según las circunstancias propias del sitio de implantación, es decir, que los elementos constructivos son los mismos, en tanto la forma arquitectónica puede variar, posibilitando diferentes opciones formales.

RECUERDOS DEL FUTURO.

La construcción de un futuro comienza en el presente, y la Mar del Plata por hacer es una ciudad que inevitablemente construimos hoy, con una memoria, a veces, esquiva y amnésica respecto de su pasado.

Así, este artefacto propone austeridad desde su forma, resiliencia desde lo material y complejidad en su experiencia espacial. En síntesis, se busca desde un artefacto simple en su construcción, en su materialidad y en su forma, una visión compleja de la historia de la ciudad, de su crecimiento y de su porvenir.

DISPOSITIVO

COMPONENTES

TERCER PREMIO

AUTORES ARQUTECTOS CARLOS MAXIMILIANO GONZÁLEZ, FEDERICO LOINAZ Y GUSTAVO GÓMEZ JONES

COLABORADORES INGENIERO FERNANDO REDIVO Y PEDRO CABRERA (CARPINTERO)

El pabellón propuesto es una evocación directa de su entorno histórico arquitectónico. Es un objeto falaz, pero a su vez una figura pura, facilmente reconocible. La obra es, al mismo tiempo, perceptible e imperceptible, densa y etérea. Aparaentemente sencilo, estable y regular, que contiene un interior exgerado e inesperado, un espacio continuo, fluido y abierto que traduce conceptual y perceptualmente, el propio proceso de la ciudad turística, elástica, con esa capacidad de expansión y comprensión según la época.

El ingeniero Chapeaurouge, responsable del trazado del las calles del nuevo pueblo, eleigió el rumbo de la traza paralelo a la capilla. La elección de la capilla como primer mojón de la mensura de Mar del Plata. Patricio Peralta Ramos levanta en la cima de la loma una capilla en recuerdo a su esposa Cecilia Robles, siendo el único edificio de piedra y cal revocado que existía en la época. Se utiliza un módulo constructivo espacial, donde la unidad de medida de cada lado se basa en la “vara”, esa varilla de madera empleada para delinaear ciudades durante la colonización de América.

Igualmente, su posición en el sitio es siguiendo estos principios, Cardo y Decumano.

El pabellón no tiene cimientos sino una carga adicional materializada con piedras distribuidas en su parte inferior, que no solo definen el paisaje natural inmediato del pabellón sino que evocan la actividad minera que sirvió para fundar esta ciudad. La planta del pabellón está compuesta por la repetición aparentemente informal, pero rigurosamente caprichosa de un elemento. Planteando una gran flexibilidad de armados y permitiendo una gran adaptabilidad de distintos modos de uso, tanto dentro como fuera del mismo.

Este objeto es un cubo (quizás un cubo mágico), con todos sus lados socavados, buscando una continuidad visual, funcional y paisajística. La estructura espacial del edificio es la consecuencia de la sustracción de las figuras arquitectónicas significativas de la ciudad. Un aconcepción laberíntica que explora la implicita tensión entre lo íntimo y externo del espacio arquitectónico.

MENCIÓN

AUTOR ARQUITECTO SERGIO SELICKI

COLABORADORES/A ARQUITECTOS LEANDRO DÍAZ Y AGUSTÍN FATA (RENDERS) / ARQUITECTA VICTORIA OTINIANO

El proyecto surge de la comunión de tres dimensiones: a) simbólica, b) morfológica y c) constructiva/material. Estos tres ejes proyectuales conjugan un objeto urbano-arquitectónico que tiene la finalidad de configurarse como un condensador de experiencias, sensaciones y mensajes propios de la ciudad de Mar del Plata, además de cumplir con los objetivos propios del concurso. Haciendo hincapié en las tres dimensiones podemos decir de cada una de ellas lo siguiente.

DIMENSIÓN SIMBÓLICA.

En el marco del 150° aniversario de Mar del Plata, el objeto promueve homenajear a la ciudad, comprometiéndose con el pasado y su historia, a través de una concepción contemporánea de su arquitectura y los usos del espacio público. Desde lo tangible, el objeto evoca las primeras ramblas de estilo academicista francés de los arquitectos Carlos Agote y Alberto de Gainza. Así, recuerda las estructuras de postes y vigas de madera que separaban y elevaban una superficie transitable adaptada al contorno de la costa. Por otro lado, la imagen es representación de un hecho etéreo, poderoso y omnipresente en la historia, el imaginario y quehacer marplatense, que son las olas del mar.

Desde lo intangible, el objeto configura un espacio exterior (abierto) e interior (cubierto), que es capaz de quedarse en la memoria colectiva posicionándose cómo “punto de referencia” por su indudable iconografía metafórica dentro de un poderoso y paradigmático complejo urbano-arquitectónico que es Playa Varese. La identificación del sitio se completa con el planteo de una organización funcional-espacial de recorrido,

interrelacionándose con el uso del espacio público.

Ubicado en un lugar tan significativo, el objeto acompaña una imagen de conjunto que fortalece y sintetiza la identidad de la ciudad. De esta forma, se priorizan y potencian los aspectos paisajísticos actuando sobre una porción de vacío que complementa al macroproyecto y lo hace al paisaje parte de la arquitectura (o viceversa) sin interrumpir las vistas; por el contrario, las potencia.

DIMENSIÓN MORFOLÓGICA.

El proyecto sigue en gran medida la lógica e intención del diseño de Playa Varese, que plantea la desarquitecturación del paisaje. Por medio de una arquitectura topográfica, establece formas y modos organizativos que se alejan de la geometría tradicional y se acercan a la geometría de la naturaleza. Esta morfología surge de la misma naturaleza, del oleaje y las olas del mar, crea lugares alejados de la arquitectura tradicional y se aproxima a modos organizativos más orgánicos.

Esta arquitectura topográfica hace cuestionar las formas de uso y da la posibilidad de reinterpretar nuevos modos. La cubierta podría usarse como playón, grada o mirador; el semicubierto como lugar de encuentro, protección o laberinto. Cualquier opción dará como resultado un sistema de movimiento libre y fluido en el espacio que posibilita nuevas interpretaciones que el público aceptará, creará o, incluso, podrá modificar. La arquitectura se sumará al paisaje y posibilitará que cualquier forma que sirva al encuentro e intercambio social, será válida. Esta morfología, forma o apariencia está relacionada íntimamente con la ciudad: desde lo arquitectónico (moderno), la tradición (rambla), el paisaje (olas) y la movilidad (libre). Se consolida con

un objeto-arquitectura que sirve como ícono y punto de referencia posible de identificar al caminar o movilizarse en auto, bicicleta, o desde la vereda, la playa o la avenida Patricio Peralta Ramos. Es a través de la forma que se prioriza y potencia el paisaje y permite visuales ininterrumpidas a nivel peatón. Crea así nuevas perspectivas por medio del mirador que posibilita su cubierta terraza. Esta accesibilidad al paisaje es especialmente tangible a través de un diseño universal que resuelve los problemas desde una visión holística. Así pues, hay suaves ondulaciones y rebajes en las superficies que eliminan escalones, barandas multi altura, aperturas amplias, señalética con iconografía significante, entre otros diseños, que permiten usar el espacio a personas con capacidades diferentes y reducidas. Estas estrategias y el objeto en su totalidad siguen principios de diseño universal tales como: igualdad de uso, flexibilidad, simpleza e intituividad, información fácil de recibir, tolerancia a errores, escaso esfuerzo físico, dimensiones apropiadas.

DIMENSIÓN CONSTRUCTIVA Y MATERIAL. Para dar cuerpo a las dimensiones simbólicas y formales, y seguir con los requerimientos del concurso, se emplea un

sistema constructivo en madera muy simplificado, compuesto por una estructura de postes, vigas y un deck de tablas. Este sistema surgirá de una modulación tramada de 3,00x3,00 metros entre poste y poste, una medida estándar que permite secciones mínimas aceptables. Serán postes de maderas semiduras accesibles en el mercado local, como el pino elliotis o saligna en secciones de 4”x4”, con tratamiento anti insectos e impregnantes. Las vigas de secciones 2”x6” tendrán los mismos tratamientos.

Los encastres con pernos según dimensionado y el anclaje al suelo con platinas metálicas, se posicionarán previo marcado de la modulación. Tienen como objetivo separar la madera del piso, reducir la cantidad de anclajes a la losa existente y optimizar los tiempos.

Con este sistema es posible reducir los trabajos en el sitio armando las piezas en taller (postes y vigas). Con la debida organización ex situ e in situ, se puede montar la estructura y deck en un solo día, así como también el desmontaje.

De esta forma se logra una sinergia constructiva y sustentable con materiales capaces de reutilizar, de nulo mantenimiento, amigables al entorno y clima marítimo.

MENCIÓN

AUTOR ARQUITECTO MARIANO COTTURA BOSCH / EQUIPO DE PROYECTO: ARQUITECTO FEDERICO RANIOLO, AXEL GARCÍA, MARTINA NULLI Y VALENTÍN JARA

COLABORADORES ARQUITECTO ADRIAN JOSÉ COTTURA E INGENIERO MAURO SEBESTA (ASESORES)

A 150 AÑOS DE SUS INICIOS, MAR DEL PLATA ABRE

SU CAJA NEGRA. ¿CUÁL ES TU MAR DEL PLATA?

La pregunta que marca el tópico es el reflejo de la naturaleza de la ciudad, que tiene un fuerte arraigo en la pluralidad. Sería imposible definir una única Mar del Plata, ya que es una ciudad intensa con un sinfín de hechos urbanos, arquitectónicos y sociales que, en su conjunto, la conforman. Invitamos a los visitantes a identificarse con las porciones de Mar del Plata que tocan sus fibras más profundas, y a conocer las otras, las inexploradas.

CAJA NEGRA.

Un artefacto encargado de condensar y proteger toda la historia en su interior, nos invita a recorrerlo, a hacer una reconstrucción de todos esos episodios que hicieron su aporte para conformar este gran proyecto colectivo que es la ciudad. En un sitio donde existen numerosos datos simbólicos, tipológicos y geométricos en el diseño del espacio público, esta caja silenciosa busca ser lo suficientemente singular para establecerse como hito, pero lo necesariamente abstracta y discreta, con la intención de no competir con su entorno inmediato, y mucho menos, sobrecargarlo.

ARTEFACTO Y TIPOLOGÍA.

En términos tipológicos, el pabellón se conforma por un espacio central -donde habita la pregunta- y un deambulatorio perimetral -donde se halla la información de la historia de Mar del Plata-. Este perímetro recorrible garantiza, además,

mantener la vista multidireccional hacia el paisaje urbano y natural de Playa Varese.

TEMPORALIDAD.

En el sentido más comunicacional, el pabellón actúa como trovador de un siglo y medio de historia de la ciudad.

En cuanto a su uso y apropiación, la instalación puede ser recorrida en el día o en la noche, en cualquiera de las cuatro estaciones -si así se quisiera-.

Puede abrirse y cerrarse parcial o totalmente para dar reparo de los vientos, del sol, o simplemente para dar por finalizada una jornada.

En su voluntad inclusiva, el pabellón apoyado en su carácter de artefacto autónomo, es pasible de ser reubicado en cualquier espacio público de la ciudad -central o periférico, costero, boscoso o serrano, urbano o rural poniendo en valor la idea de «abrir la caja negra de Mar del Plata» con el mayor alcance de participación posible.

¿CUÁL SERÁ LA MAR DEL PLATA DEL FUTURO?

Invitamos a los visitantes, residentes y turistas, a alimentar una conciencia colectiva a partir de un estado de reflexión introspectivo. De esta manera, el pabellón informa y a su vez siembra una pregunta para que este proceso de construcción colectiva siga vivo en la reflexión y en la acción.

¿Cuál es la Mar del Plata del futuro? Futuro que, como lo propone el pabellón, es alimentado por toda la carga de sentido construida hasta hoy.

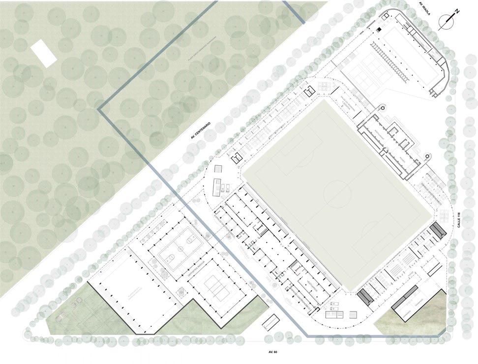
CONCURSO NACIONAL DE IDEAS PLAN URBANO NUEVO CENTRO

MULTIDEPORTIVO

Y SOCIAL ESTADIO JUAN CARMELO ZERILLO

Promotor Club Gimnasia y Esgrima la Plata

Organizador Colegio de Arquitectos de la Provincia de Buenos Aires / Distrito 1

Patrocinante Colegio de Arquitectos de la Provincia de Buenos Aires / Consejo Superior

Auspiciante Federación Argentina de Entidades de Arquitectos

Asesor Arquitecto Alejandro Casas / Capba D1

Jurados Arquitecto Miguel Dueñas (Club Gimnasia y Esgrima de la Plata) / Arquitecta Clara Gallardo y Arquitecto Carlos Emilio Costa (Capba D1) / Arquitecta Leticia Alfaro (FADEA) / Arquitecto Horacio José Morano (Participantes)

Objetivos

El objetivo principal del presente concurso es dotar al Club Gimnasia y Esgrima La Plata, de tres propuestas de ideas que permitan perfilar los lineamientos generales del futuro desarrollo físico del predio del actual Estadio Juan Carmelo Zerillo, a punto de cumplir su primer centenario. Las propuestas elegidas serán puestas a consideración de la masa societaria. Además, las ideas urbanas y arquitectónicas emergentes deberán entender a la pieza específica como una porción de una pieza paisajística de gran calidad ambiental urbana y patrimonial para

la ciudad de La Plata y por ende, deberán generar sinergias que permitan alimentar el funcionamiento del Paseo del Bosque, enclave natural y original del club.

Esto deberá contemplar además las posibilidades de desarrollar una ampliación y puesta en valor del actual estadio, dotándolo de las comodidades, seguridad y características técnicas que hoy requiere una infraestructura deportiva de estas características. Gimnasia y Esgrima La Plata se ha caracterizado en su historia por poseer una gran diversidad de actividades sociales y deportivas que al día de hoy se encuentran fragmentadas de los diversos predios con los que cuenta: su Sede Social -calle 4 entre 51 y 53-, el predio de El Bosquecito -calle 58 y 123, definido como de carácter formativo-, Estancia Chica -de 160 hectáreas, en la localidad de Abasto-, y el predio del Bosque, objeto de este concurso. Es voluntad del club ordenar sus usos para optimizar el rendimiento físico de los mismos y poder dotar a las diversas actividades de las mejores condiciones para su desarrollo. De este modo, en las ideas se deberá contemplar la inclusión de espacios para la práctica del Básquet, Vóley, Patín, Gimnasia Artística, Boxeo, Taekwondo y Karate. Además, contemplar un gimnasio tanto para socios como para público en general y actividades comerciales y de servicios que permitan dar uso al predio los siete días de la semana.

Las ideas deberán considerar estas particularidades y atender al valor patrimonial de las preexistencias, sobre todo las que conforman un grupo edilicio particular definido por la Tribuna Techada René Favaloro, la pileta olímpica y las pérgolas. Este espacio fue declarado Patrimonio Arquitectónico de la ciudad en el año 2006.

PRIMER PREMIO

AUTOR/A OP ARQUITECTOS / MARCELA ORCAJE Y GONZALO PÉREZ / ASOCIADO: FERNANDO URQUIOLA

COLABORADORES/AS ARQUITECTOS CARLOS BRIZUELA Y LUIS SEBASTIÁN TASSARA / ARQUITECTAS FLORENCIA

SANTILLÁN Y KAREN MERIALDO / CARLOS IGNACIO TOMMASI, MARINA OROZ, AGUSTINA RAVETTINO E IVÁN RICO

UN PLIEGUE EN EL BOSQUE.

“… Las estrategias contemporáneas para la composición arquitectónica ligan las edificaciones y el suelo, generando ‘topografías’ más que volumetrías.

El suelo es comprendido como arquetipo protagonista del proceso proyectual. Se interpreta y constituye como una superficie maleable y flexible, en el cual las edificaciones no se posan, sino que surge en relación al propio suelo. Se trata del trabajo ‘con’ el suelo, en lugar de sobre el suelo...”

Lucas Períes. 30-60 topoarquitecturas

Asumimos el concurso como la oportunidad para explorar las posibilidades de intervenir en un área de fuerte carácter paisajístico, que a la vez requiere una compleja y eficiente resolución de usos diversos. Entendemos que el desafío es consolidar un proyecto que resuelva la síntesis de dos universos, en tanto arquitectura y paisaje, en un equilibrio de fuerzas y tensiones que sinteticen la estrategia proyectual.

El análisis y la valoración del sitio constituyen las premisas estructurantes en la toma de decisiones:

g Asumir la escala del Estadio como una pieza de fuerte presencia en el Bosque y, en consecuencia, realizar una intervención en la adición que produzca volumetrías de mínimo impacto en relación al conjunto y la condición del soporte natural.

g Incorporar la presencia del Paseo del Bosque y la potencia del paisaje que lo circunda.

g Establecer estrategias de relación entre elementos preexistentes y las nuevas facturas.

g Conformar un proyecto de adición en clave de arquitectura topomórfica como respuesta a las condicionantes planteadas.

g Constituir un proyecto que se presente en clave vegetal, donde la presencia de la capa verde se incorpore en todas las instancias del diseño.

g Conservar la totalidad de las especies forestales del predio en línea con la propuesta de intervención.

ESTRATEGIA URBANA.

Se trabaja sobre el concepto de estadio abierto, la idea de pensar el predio de forma integral, donde además del uso del progra-

ma original y primario, se posibilite el desarrollo de actividades de carácter deportivo y cultural para toda la comunidad. Se pretende incorporar al predio del club Gimnasia y Esgrima La Plata como un nuevo enclave dentro de la estructura de espacios públicos de la ciudad, como un ámbito de gran interacción, donde las actividades programáticas de la Institución, se complementen con usos vinculados al barrio y a la vida social integrada

El Estadio se remodela de acuerdo a los aforos solicitados y se trabaja la adición sobre la idea de un pliegue en el territorio, con la finalidad de generar un nuevo cero elevado, una gran terraza que permite un impacto mínimo en la pisada de nuevos volúmenes sobre el espacio del Bosque. El paisaje se quiebra y se acuesta, y en ese gesto define una nueva superficie de uso a otro nivel que posibilita una nueva percepción del entorno, a la vez que define, por debajo, los espacios que los nuevos programas demandan.

La estrategia de intervención urbana define dos elementos primarios que permiten el vínculo ciudad-bosque y consolidan el predio como el elemento articulador que la fortalece. Se organizan dos

explanadas (Norte y Sur), que constituyen la conexión del espacio público del conjunto en relación con los bordes del predio.

ESTRATEGIA MORFOLÓGICA.

Se define el conjunto en la comprensión que el predio no requiere la presencia de nuevos volúmenes, sino la aparición de una nueva topografía, la conformación de un plano inclinado artificial en el paisaje. Así, el territorio se quiebra y produce una respuesta en clave de arquitectura topomórfica en relación a las premisas y condicionantes planteadas. El proyecto se constituye como un pliegue en el bosque

“La lógica compositiva se vale de acciones morfológicas que transforman los edificios en topografía o el suelo en edificio generando una nueva topografía artificial, tan real como la natural…

Se generan así, espacialidades de morfología alternativa, las que denominamos topomórficas, por la atribución de características y cualidades topográficas naturales a espacios artificiales.

El proyecto arquitectónico como unidad aislada expande sus límites, los dilata y desdibuja para conectarse a la ciudad, para generar

paisajes fluidos en lugar de ‘objetos habitables’ aislados. La discontinuidad entre planos superpuestos y entre muros y techos es reformulada y reemplazada por la fusión de múltiples suelos plegados…”

“… Cuando el suelo plano o inclinado se pliega para transformarse de modo contínuo en muro y en techo, la envolvente se configura como unidad, sin interrupciones ni fisuras.

“…El espacio también adquiere analogía formal con ciertas espacialidades naturales, como grutas o cavernas…”

Lucas Períes. 30-60 topoarquitecturas

Los cuerpos arquitectónicos se presentan como articuladores de las cotas de nivel del parque, donde la fusión entre arquitectura y paisaje permite que solo emerjan parcialmente. Las cajas programáticas se constituyen como elementos referenciales a través de sus propias terrazas que producen una sucesión de miradores directos a las vistas privilegiadas del lugar.

La producción de dos planos de uso define las cubiertas como terrazas de contemplación y el plano inferior como soporte de los usos interiores programados.

Se piensa el proyecto como un parque urbano donde la topografía es la capa que define la propuesta. Se mantienen la totalidad de las especies forestales y las nuevas arquitecturas se adaptan de manera de consolidar el carácter verde de la intervención. Las estrategias sustentables complementan la propuesta y se de-

fine que toda la terraza del plano inclinado funcione como un gran recolector de las aguas de lluvia de manera de atenuar el impacto hídrico de la pisada del nuevo conjunto y para su reutilización.

ESTRATEGIA PROGRAMÁTICA.

El proyecto define una remodelación del Estadio con un completamiento y reorganización de algunas piezas preexistentes (platea Favaloro y platea H. Néstor Basile), la construcción de los laterales de la platea Favaloro con dos plateas menores en clave contemporánea (que recrean las originales demolidas), y una estrategia de reconversión de las cabeceras a dos estructuras nuevas que permiten aumentar el aforo y hacerlo en etapas. Estas tribunas cabeceras se proyectan con tecnología nueva, pero mantienen la condición de transparencia en su nueva versión, a fin de conservar las características de estadio permeable al bosque que le dan su atmósfera tan especial. Por debajo se conforman los nuevos espacios de uso en cajas exentas y autónomas que le otorgan gran flexibilidad de armado y cambios de configuración en el tiempo. Los accesos a cabeceras superiores y a los niveles altos de la platea H se realizan a través de escaleras trepadoras que se presentan creciendo en el espacio y permiten la observación de la ciudad y del bosque según su posición en el Estadio. El paquete de las nuevas actividades que complementan las funcio-

nes específicas del Estadio (actividades indoor) se organiza dentro de la estructura del plano inclinado. Se materializan los cuerpos de los gimnasios de basquet y volley por fuera del pliegue, de manera que emergen sobre la terraza principal, y el resto de las piezas se acomodan dentro del espacio interior y se define una serie de estructuras de apoyo (servicios y depósitos), que están comprendidos en la trama modular del conjunto en métrica de tres metros.

ESTRATEGIA TECNOLÓGICA.

El carácter del tema define la búsqueda de austeridad en la respuesta tecnológica y material. A partir de una estructura que combina tabiques y columnas de hormigón amado, se dispone de una grilla modular que permite el armado de todas las áreas del proyecto con un criterio de adaptabilidad y flexibilidad a los cambios. La piel exterior se define como una estructura etérea en tecnología de acero perforado y constituye una fachada con espesor que posibilita la incorporación de elementos vegetales en su configuración. Las divisiones interiores, con tecnología en seco y carpinterías modulares, complementan el sistema. El proyecto compatibiliza una eficiente solución funcional con una propuesta constructiva económicamente viable, basada en la selección de materiales y tecnologías que permiten la reducción de los costos de construcción y el futuro mantenimiento.

PLANTA NIVEL COCHERAS -200 MTS
PLANTA BAJA
ESQUEMAS DE USO

PRIMER PREMIO

AUTORES ARQUITECTOS GUSTAVO PAGANI Y HERNÁN QUIROGA

COLABORADORAS/ES ARQUITECTA VANESA BISBAL / ELIÁN CORONEL, LOURDES ANDUAGA, MILAGROS CANELAS, MILAGROS MENCEGUE, GERÓNIMO TURINETTO, CANDELA CRISAFULLI Y CAMILA ETCHEBERRY

ASESORES: ARQUITECTA AGUSTINA FAE (PAISAJE) / INGENIERO ROBERTO SCASSO (ESTRUCTURAS)

“…Además las ideas urbanas y arquitectónicas emergentes, deberán entender a la pieza especifica como una porción de una pieza paisajística de gran calidad ambiental urbana y patrimonial para la ciudad de La Plata y por ende, deberán generar sinergias que permitan alimentar el funcionamiento del Paseo del Bosque, enclave natural y original del club…”

De las bases del Concurso

“…El doctor Favaloro dice “fulbo” y dice “cuadro”, y si es muy bueno será un “cuadrazo”. Así lo aprendió en el barrio El Mondongo de La Plata, y ni los 69 años vividos, ni las prestigiosas universidades caminadas, ni nada de nada le hará cambiar esos términos. Porque mantiene inalterable su espíritu campechano y porque hay una pasión que forma parte, tanto como la medicina, de su esencia y de su origen: el deporte. Y sobre todo el “fulbo”, como a Favaloro le gusta decir. …Bueno, usted sabe... Gimnasia está en el único lugar posible dentro de mí: el corazón.

René Favaloro

EL BOSQUE Y LA CIUDAD / PAISAJE CULTURAL / ESPACIO ECOLÓGICO.

Desde la mirada de urbanistas y arquitectos, se ve al bosque de la ciudad de La Plata como un espacio que en el transcurso del tiempo ha ido perdiendo su carácter recreativo y de pulmón verde urbano, para conformar un área fragmentada, ocupada con demasiadas construcciones y privatizaciones otorgadas en el tiempo. De un total de casi 250 hectáreas iniciales, hoy el espacio libre apenas llega a las 50 hectáreas para aportar al uso social, cultural y de esparcimiento de la sociedad en su conjunto. Un importante requerimiento postergado es el de atender como

reservorio ecológico natural de verde y permitir un drenaje hídrico fundamental a la ciudad.

Estas observaciones compartidas en el ámbito profesional implican un profundo respeto y valoración en la nueva propuesta del Plan Urbano y Nuevo Centro Multideportivo y Social. Afrontamos el desafío.

EL ESTADIO / PERTENENCIA.

Caminando por la Avenida Iraola desde la ciudad, o viniendo desde Berisso y cercanías por la Avenida 60, o los vecinos del barrio “El Mondongo” llegando por diagonal 113 o Avenida Centenario, comienza la rutina de la llegada a cada partido que se juega de local. Los colores se van sumando en banderas y camisetas azules y blancas y la expectativa en cada uno de los hinchas, que cuando levantan la vista, allá al fondo aparece el Estadio, “la cancha”, para casi todos. Los de más edad recuerdan otras épocas, los tablones de madera y menos capacidad con tribunas más pequeñas, con menos equipamiento y luces más tenues.

Hoy el llamado a Concurso Nacional de Ideas, proyecta hacia adelante nuevas y ordenadas instancias de crecimiento y nuevas actividades. La esencia es la misma, la de siempre. El sentimiento no se cambia.

PROPUESTA URBANA CONCEPTUAL / INCLUSIÓN SOCIAL.

Con una mirada amplia que se hace evidente, el borde consolidado de la ciudad llega, toca y hace borde sobre la diagonal 113. La avenida 122, por el lado opuesto, ofrece un freno de fuerte movimiento y consolidación. Entre ambas instancias, una sutil entrada

al bosque con edificios aislados en el verde, muchos de la Universidad Nacional de La Plata, para llegar al jardín botánico y cruzar la avenida 60, propicia el acceso al bosque desde la ciudad. El proyecto del Multideportivo y Social Estadio Juan Carmelo Zerillo que proponemos es la puerta jerarquizada de entrada al bosque.

Dos cuñas que se elevan desde Avenida 60 desdoblan el nivel 0 del proyecto. La parte superior verde, con estares y miradores con inéditas vistas al bosque desde la altura de las copas de los árboles, potencian al paisaje y a la sociedad en su conjunto, que hace uso del espacio público y verde de la ciudad y se articula con patios que toman las dos alturas y vacíos que facilitan el drenaje y el uso de las aguas para servicios y riego. La situación inferior alberga áreas deportivas indoor relevantes para la institución (básquet / vóley / patín), conformando con la contrafachada de la tribuna H, un pasaje de usos múltiples con actividades deportivas y gastronómicas de comidas rápidas, potenciando usos y horarios diversos los siete días de la semana. Un basamento lineal articula paralelo a la avenida Centenario a nivel + 3.00 con la explanada que recorre todo el complejo con visuales largas al bosque y articulando con nuevas actividades de gimnasios y las canchas de tenis, pileta y acceso a la tribuna Favaloro, donde se jerarquizan los accesos y enriquecen con la propuesta del museo de la institución. El nivel cero propone actividades comerciales y gastronómicas. La cuña sobre la calle 118, también verde y con su carácter de mirador, contiene en su nivel 0 el ingreso a cocheras preferenciales, dando prioridad a la actividad del fútbol con espacios de auditorios y salas de conferencias.

PROPUESTA MULTIDEPORTIVO Y SOCIAL CONCEPTUAL. Proponemos una Arquitectura Apropiada en su más amplio concepto. Que el usuario encuentre la contención y el confort de vida que necesita y desea para desarrollar las actividades planteadas en el ámbito deportivo y social. Que se apropie de los espacios. El concepto también alcanza a la real posibilidad de materializarlo y que los proyectos se formalicen en realidades construidas. Escalas apropiadas, buenas proporciones acompañadas de vistas largas al bosque aportan calidad espacial. Un encuadre sustentable como concepto de la buena arquitectura es parte de la estrategia propuesta y definen su materialización.

La idea de consolidar los bordes del estadio como recurso de cargar de actividades variadas para el uso intenso del complejo, optimiza y garantiza su uso todos los días de la semana. La contraforma de las tribunas del actual estadio, carentes de actividad y con espacios residuales, se consolidan en nuevas propuestas cargadas de actividades que se complementan con el bosque, potenciando su uso de carácter cotidiano. Sobre la avenida Centenario se proponen actividades gastronómicas con restaurantes, comercios y gimnasios con alcance a los socios del club y a la sociedad en general. Se suma a esas actividades el lateral de la cuña elevada con visuales al área deportiva de básquet, vóley y patín, ofreciendo este último un amplio playón seco para actividades múltiples. Cruzando el boulevard con diseño y tratamiento que enrase el nivel del solado permeable recurriendo a materiales absorbentes, se plantea la plaza “Diego Maradona”, que conjuga actividades de estar y expansión con un equipamiento apropiado -bancos, pérgolas, lugares de estar- y que, en las instancias de partidos de futbol, se configure como el espacio “previo” al ingreso del encuentro.

Una sutil cinta azul recorre el conjunto y articula las cercanías del complejo, sumando propuestas al bosque. Sobre la calle 118, también con desdoble del nivel 0, se aporta un verde mirador al bosque, configurando con el anfiteatro preexistente y el memorial, la generación de la plaza “René Favaloro”. En el nivel 0 se proponen espacios relacionados a las actividades deportivas y gimnásticas y de reunión, destinado al apoyo de jugadores y otras actividades relacionadas con las delegaciones deportivas de fútbol.

El pasaje “10 de diciembre”, día del pueblo tripero, articula generando un espacio gastronómico de comidas rápidas y cafetería y también de carácter comercial. Se complementa, al igual que sobre la avenida Centenario, con visuales y acceso al área deportiva indoor. En un nivel soterrado bajo el pasaje, se propone una amplia cochera que distribuye con ubicación cercana a las diversas actividades del complejo. Estas cocheras, dado su acceso y control, pueden ser comercializadas en alquiler, colaborando al tema de la falta de estacionamiento en esa zona los días de semana. Un convenio con la UNLP puede ser un camino propicio, ya que en la zona se encuentran varias casas de estudio con una importante concurrencia.

En la plaza verde elevada “Carlos Timoteo Griguol” y en las cocheras soterradas, se prevé patios de iluminación y drenaje generando aguas para diversos usos. Se contempla en etapas posteriores el diseño interdisciplinario para una ajustada resolución. La aparición de árboles y paisaje cultural en el pasaje, se proyecta con el mismo sentido de sustentabilidad y de potenciar el verde, consigna primordial del proyecto. Los días de eventos deportivos de fútbol, los senderos materializados con conchilla -homologando a los preexistentes del bosque- generan una alternativa más de acceso y salida del estadio, aportando a la fluidez y orden. El borde sobre la avenida Iraola se mantiene en sus valoradas condiciones, conservando su jerarquía y valor patrimonial.

PREEXISTENCIAS VALORADAS.

Un valor destacado y singular requiere la tribuna René Favaloro, dado el muy buen estado actual de mantenimiento en sus principales y originales características. Proponemos el respeto por el edificio y su contexto, como parte de una unidad inescindible del lugar. Proporciones, accesos, pérgolas, vegetación, actividades y costumbres serán puestas en valor, y de ser necesario, recurrir a alguna restauración para mantener su esencia original. En el “acercamiento” sensible de las nuevas tribunas, se proponen actividades compatibles y amigables con el lugar. Tareas de gestión y administración del complejo, el Museo que guarda la historia del club y servicios de cafetería que armonicen con el conjunto. Sobre la avenida Centenario, se incorpora un nuevo acceso con un hall distribuidor que aporta el ingreso al área deportiva de pileta y tenis y articula a través de una rampa que complementa con el nivel de costura de todo el multideportivo. Un nuevo gimnasio oficia de remate sobre esa situación proponiendo una expansión a la pérgola existente sobre los vestuarios de la pileta, aportando actividades de carácter deportivo.

A la pileta existente le proponemos una sutil cubierta de arcos telescópicos, que no interfiera con su esencia ni la del su entorno inmediato y que promueva durante todo el año su uso prolongado, facilitando a los usuarios un mejor servicio en el doble uso de abierto-cerrado de acuerdo a la época y climas del año.

MATERIALIDAD / ECONOMÍA CIRCULAR / TECNOLOGÍA / SEGURIDAD/ SUSTENTABILIDAD.

La idea de un edificio sustentable en su concepción aporta mejor calidad de vida a los usuarios y a la ciudad. Buscamos en su materialidad la conjunción de elementos cercanos a la economía circular, proponiendo materiales nobles, conscientes de disminuir la huella de carbono. Pensamos en una materialidad realizada con elementos de tecnologías probadas y apropiadas con bajo mantenimiento a futuro, respetando las calidades y cualidades acordes a la importancia de la obra y al esfuerzo económico a realizar por la Institución. Se propone el hormigón armado como soporte estructural, con requerimientos lógicos en sus componentes, proporciones y luces acordes a los espacios y usos programáticos, prefigurando acciones futuras de adaptación a nuevos requerimientos y flexibilidad, capacidad ineludible en una obra de la contemporaneidad. Superficies llanas y limpias posibilitan variadas alternativas. La tabiquería interior se plantea en construcción en seco, acompañando y concretando la propuesta. La piel exterior y techo se proponen con materiales textiles, de fabricación nacional, que suman bondades sustentables, aportando una buena calidad visual, adoptada como solución integral que resuelve requerimientos tanto estéticos como de protección actuando como filtro lumínico, control visual y climático, y contribuyendo con interesantes efectos lumínicos durante la noche, que jerarquizan el estadio. Se contemplan medidas

PLANTA NIVEL +0.30

apropiadas acordes a un correcto mantenimiento y reemplazo en caso de ser necesario. La estructura metálica nueva y la que surja de las ya existentes y reutilizadas de las tribunas removidas, se proponen con terminación de pinturas epoxis que, mediante el uso de los colores del club y los verdes del bosque, logren una estética moderna y moderada, de acuerdo al pensamiento y sentimiento de la generalidad gimnasista. Las instalaciones de máxima seguridad y tecnologías modernas y apropiadas a los muchos requerimientos, definen el alcance de la propuesta. En instancias posteriores, el trabajo interdisciplinario conformará las alternativas posibles.

CRITERIO ESTRUCTURAL. En referencia a la estructura del estadio, se puede mencionar que el cierre lateral y de cubierta se realiza a través de una modulación de costillas metálicas reticuladas a lo largo de toda la extensión perimetral. La cubierta metálica modifica su perfil en pos de adaptarse a la cubierta existente, generando un plano aleatorio como adaptación al entorno del bosque. Una sub estructura de perfiles metálicos y celosías de menor dimensión es la encargada de sujetar y tensar la tela que actúa como cerramiento del estadio. Aparte de las cuestiones formales, se decidió utilizar el sistema textil debido a la capacidad de absorción y reflexión acústica que tiene, ya que de esta manera el sonido ambiente del estadio queda concentrado dentro del mismo, no afectando al barrio aledaño. Las nuevas bandejas de tribuna realizadas en hormigón in situ, apoyados con una modulación coincidente con la estructura metálica, permiten conformar un anillo central de palcos. La estructura de cubierta inclinada con lucarnas para lograr la iluminación cenital diurna, que cubre los sectores deportivos auxiliares, se sustentan por medio de una modulación de pórticos.

PAISAJE CULTURAL.

El paisaje es memoria, una acumulación de recuerdos, con un simbolismo determinado y de relaciones con los ciudadanos, que también deja huella en los visitantes.

La historia de la ciudad es la historia ciudadana. El Paseo del Bosque es una pieza paisajística de gran calidad ambiental urbana y patrimonial para la ciudad de La Plata; teniendo en cuenta las consideraciones paisajísticas en las que se implanta, es que la propuesta se basa fundamentalmente en que el paisaje continue con su impronta natural, sin incrementar el impacto de la huella de carbono que emitimos como sociedad. Las intenciones de proyecto abordan al paisaje mediante dos propuestas principales.

La primera se trata de un basamento con actividades programáticas a nivel peatonal que, al funcionar simbólicamente como cuña, genera una plaza verde elevada de acceso a la cancha. Dicha plaza tiene como premisa principal la constitución de toda su superficie con césped natural. De este modo, aporta al medioambiente contribuyendo a mejorar la calidad del aire absorbiendo dióxido de carbono, reduciendo la contaminación acústica, reteniendo y purificando las aguas pluviales, y mitigando el efecto isla de calor urbano. La segunda propuesta se basa en el concepto de la escena perceptiva del observador desde un recorrido dinámico, percibiendo a la ciudad y construyendo significados. Se basa en ofrecer sendas implementadas como “cintas azules” que vayan tramando el movimiento fluido por todo el predio, creando así una unicidad de conjunto con posesión flexible y dinámica de las actividades educativas, recreativas y deportivas. Los enclaves actúan como hitos urbanos, transformándose en puntos de encuentro sociales para los visitantes. Por ello, dentro de esta idea, se propone, sobre la avenida Iraola, la plaza Maradona como hito que evoque a la memoria a través de estímulos sensoriales perceptivos. El propósito de la propuesta paisajista es estimular los sentidos hacia un paisaje como expresión natural del hábitat.

CORTE LONGITUDINAL

CORTE TRANSVERSAL

PLANTA NIVEL +7.70
PLANTA NIVEL +19.20

PRIMER PREMIO

AUTORES ARQUITECTOS DIEGO MANUEL GARCÍA Y MATÍAS ZOPPI

COLABORADORES/A ARQUITECTO LAUTARO SESSA / SEBASTIÁN SAYAR, JOAQUÍN GUEVARA, FACUNDO ROLANDI

En el borde del Bosque de la Ciudad de La Plata, se plantea la creación de un nuevo centro deportivo para el Club Gimnasia y Esgrima de La Plata en el sitio actualmente ocupado por el Estadio Juan Carmelo Zerillo. Este proyecto busca integrar armoniosamente el espacio en el entorno urbano, mientras se preserva la identidad del club. El área circundante, marcada por la presencia de la Universidad de La Plata, añade complejidad al proceso. El concurso urbano y arquitectónico ofrece una oportunidad para transformar el sitio en un punto de encuentro comunitario, promoviendo el desarrollo social y cultural en la ciudad y nos presenta dos desafíos fundamentales. Por un lado, implica la concepción de un proyecto arquitectónico urbano capaz de satisfacer las necesidades espaciales del club para el desarrollo futuro de sus actividades, todo ello mientras se preserva su legado histórico. Se trata, además, de una oportunidad para re-significar el lugar, otorgándole una nueva dimensión que resguarde su potente carga simbólica e identitaria para la comunidad gimnasista. Es importante destacar que, para los seguidores del equipo, asistir a los encuentros no es simplemente “ir a la cancha para ver a Gimnasia”; es más bien “ir al bosque”, donde se encuen-

tra su verdadero hogar. Este desafío implica, por lo tanto, no solo la creación de espacios funcionales, sino también la captura y conservación del espíritu y la esencia del club en cada aspecto de la propuesta urbano arquitectónica.

Por otro lado, el proyecto debe integrarse armónicamente con su entorno inmediato: el Paseo del Bosque de La Plata, un parque público de escala regional que junto a la traza urbana constituye uno de los elementos más emblemáticos de la Ciudad Capital de la Provincia de Buenos Aires.

Este espacio desempeña un papel social fundamental en la región, atrayendo a una gran cantidad de personas que disfrutan de la diversidad de actividades que ofrece, Museo de Ciencias Naturales, Anfiteatro del bosque, Planetario de la U.N.L.P., a la Laguna del bosque, hasta la contemplación de su exuberante paisaje, caracterizado por una amplia variedad de especies vegetales y una riqueza de escalas que lo convierten en un lugar de encuentro y recreación para la comunidad.

1. PROPUESTA URBANA.

Respondiendo a estas condicionantes funcionales y simbólicas proponernos un conjunto edilicio que busca relacionarse

con el entorno distribuyendo accesos y programa comercial sobre los bordes del predio. Dos pasantes urbanas semi públicas zonifican el nuevo campus deportivo en tres sectores que independizan las áreas principales del programa (Social, Deportes in-door y Estadio).

Los accesos privados que garantizan el correcto funcionamiento del estadio los días del partido se dan por calle 60 y el acceso peatonal a tribunas populares, plateas y palcos se da desde las pasantes que tendrán acceso desde Av. Centenario, Av. 60 y Calle 118.

Sobre Av. Centenario se ubican los accesos de los socios y publico general al Polideportivo, Sector pileta y Área social. De esta forma Av. centenario toma un nuevo rol revitalizado, lejos del carácter de servicio que existe en la actualidad.

2. PROPUESTA ARQUITECTONICA.

Así es que se propone un basamento de cinco metros altura que articula la gran complejidad de flujos de personas, resolviendo la independencia entre público y privado, accesos peatonales y vehiculares. A través de un sistema de grandes escaleras permite derivar rápidamente al primer nivel recorrible el movimiento del público del estadio, de esta manera el perímetro del zócalo se libera para recibir el programa comercial y gastronómico asociado a las plazas y pasantes. De este organismo emergen tres volúmenes. Estos albergan los programas de mayor porte, el polideportivo (deportes indoor), el natatorio, y el conjunto de tribunas del estadio. Se busca, a partir de la resolución material de la envolvente de cada volumen aportar una identidad común que permita igualar la diferencia de escala entre cada uno. El programa de necesidades y la nueva configuración del estadio y sus tribunas plantean una de las complejidades más desafiantes del proyecto, esto tiene que ver con la necesidad de articular las preexistencias (Platea H “Nestor Basile” y Platea Patrimonial René Favaloro). También se suman búsquedas relativas la identidad, el sentido de pertenencia del hincha y la necesidad de otorgar unidad al conjunto.

Se toma la decisión de reemplazar las populares existentes para incorporar nuevas con mayor capacidad de público con

la premisa de garantizar la percepción dentro de la cancha de estar en el Bosque. Así es que se limita la altura y las plateas se organizan en dos estratos verticales que favorecen la transparencia entre un nivel y otro, reinterpretando la condición actual de permeabilidad visual que históricamente poseen estas gradas. A los lados del edificio correspondiente a la platea techada -de carácter patrimonial- emergen otras dos nuevas plateas que abrazan y enmarcan la preexistencia.

La platea H se completa extendiendo hacia sus laterales y se “enchapa” la cara posterior para contener programa y “hacer” fachada hacia la pasante urbana. Un sistema de escaleras trepadoras exteriores permite resolver el acceso a las tribunas y palcos sin impactar dentro del volumen, maximizando la superficie interior capaz de absorber programa específico. Contemplando al mismo tiempo los diferentes flujos circulatorios correspondientes a los distintos participantes del evento deportivo. Esta canalización de públicos posee un correlato de uso durante los días en los que no hay partidos, ofreciendo un recorrido en altura con vistas hacia los nuevos espacios de recreación, que desemboca en una serie de edificaciones “en voladizo” del programa de co-working. Otorgándole de esta forma un nuevo sentido a los espacios de uso de la platea H durante los días hábiles.

El sector correspondiente a piletas se reestructura conformando un área propicia para el desarrollo de actividad deportiva en el natatorio -ahora climatizado- y las actividades veraniegas asociadas a la colonia de vacaciones.

Un volumen de vidrio y estructura metálica envuelve la pileta olímpica despegándose del perímetro en una relación de “respeto” con las edificaciones patrimoniales conformando una construcción desarmable que posibilite la reversibilidad de la propuesta.

Por último, el polideportivo funciona como un edificio que permite su funcionamiento autónomo con acceso privado desde Av. Centenario y público desde la plaza sobre Av. 60. El volumen emergente del zócalo apila una serie de explanadas de gran extensión donde se desarrollarán los deportes indoor. En su perímetro aparecen servicios y aéreas de programas complementarias a las actividades deportivas.

PLANTA GENERAL
CORTE LONGITUDINAL
VOLUMETRIA
ACCESOS
FUNCION
ESTACIONAMIENTOS
CALLES PEATONALES

MENCIÓN

En el corazón de La Plata se erige el majestuoso estadio Juan Carmelo Zerillo, hogar del club Gimnasia y Esgrima La Plata. Este ícono de la ciudad se apresta a una profunda metamorfosis, dando paso al nuevo Centro Multideportivo y Social, un complejo deportivo integral, moderno, sostenible y accesible, diseñado como un faro de encuentro y disfrute para toda la comunidad.

UN LEGADO DE ACTIVIDAD SOCIAL Y DEPORTIVA.

A lo largo de su rica historia, el club Gimnasia y Esgrima de La Plata se caracterizó por su amplia y diversa actividad social y deportiva. Desde sus inicios, la institución ha sido un motor fundamental del desarrollo cultural y deportivo de la ciudad. Ha sido un escenario constante de participación, fomentando el espíritu de equipo, la inclusión y el sentido de pertenencia. Sin embargo, hoy en día estas actividades se desarrollan en distintos predios del club, dispersando su potencial y limitando las posibilidades de interacción entre todos los socios de la institución.

UN HOMENAJE AL PASADO, UN PUENTE

HACIA EL FUTURO.

“No creo en destruir todo para construir, prefiero ser hilo conductor de una historia.”

Álvaro Siza

El corazón del estadio conservará la emblemática tribuna techada René Favaloro, así como también se conservarán la pileta olímpica y glorieta, declaradas Patrimonio Arquitectónico de la ciudad en 2006. Estas estructuras no solo serán un recordatorio de la rica historia del club, sino que también se convertirán en un

símbolo de la unión entre el pasado y el futuro, un lugar donde se podrán escribir nuevas páginas de la historia deportiva del club.

Un polideportivo emblemático de innovación y sustentabilidad El polideportivo se alza como un paradigma de innovación y sustentabilidad. Su cubierta verde ofrece múltiples beneficios ambientales, incluyendo aislamiento térmico, reducción del consumo energético y mejora de la calidad del aire. Esta se configura como una nueva topografía que va más allá de su función primaria de resguardo. Su diseño se compone de tres franjas diferenciadas que articulan el ingreso a las distintas zonas del estadio.

● Franja 1. Acceso a la tribuna Centenario, altura 4,1 metros.

● Franja 2. Acceso a la platea H, altura 7,7 metros.

● Franja 3. Acceso a la tribuna 60, altura 11,35 metros.

Las tres franjas diferenciadas de la cubierta no solo facilitan la accesibilidad a las distintas zonas del estadio, sino que también contribuyen a un ingreso más ordenado y a la implementación de controles sectorizados, permitiendo una circulación más fluida y eficiente.

LUZ NATURAL Y VISUALES.

La diferencia de altura entre las franjas de la cubierta del polideportivo permite la entrada de luz solar de manera controlada hacia las distintas canchas, mejorando la calidad de la iluminación durante el día y reduciendo el consumo de energía artificial. Además, la configuración de la cubierta del estadio permite visuales desde las canchas hacia el bosque, generando una conexión con el exterior y una mayor sensación de amplitud

en el espacio interior.

La plaza de acceso al polideportivo se convertirá en un punto de encuentro y recreación, con áreas verdes, cafés y espacios para el esparcimiento.

VERSATILIDAD ESPACIAL: TRIBUNAS RETRÁCTILES

PARA UN SIN FIN DE POSIBILIDADES.

Las canchas cuentan con tribunas retráctiles, permitiendo su transformación en un espacio híbrido de gran amplitud. Esta configuración flexible posibilita albergar entrenamientos, partidos, asambleas, eventos sociales y cualquier actividad que requiera un espacio diáfano y adaptable.

APERTURA HACIA LA AVENIDA 60 Y EL BOSQUE.

El polideportivo del Estadio GELP se posiciona como una infraestructura urbana de gran relevancia en la revitalización de la avenida 60 y su integración con el Bosque. Esta arteria vial, actualmente caracterizada por su función de circulación rápida, se verá enriquecida por la presencia del Polideportivo, convirtiéndose en un espacio de mayor vitalidad y dinamismo. La apertura del mismo hacia la avenida 60 se materializa a través de una fachada permeable y transparente, que invita a la interacción entre el espacio interior del complejo deportivo y el entorno urbano. Esta transparencia arquitectónica permite que la actividad interior del polideportivo se proyecte hacia la avenida, generando una conexión visual y sensorial que atrae a los peatones y ciclistas. Asimismo, se abre hacia el Bosque, estableciendo un diálogo fluido entre el espacio construido y el entorno natural. Grandes ventanales y aberturas estratégicamente ubicadas permiten que la luz natural y las vistas del Bosque penetren en el interior del complejo, creando una experiencia inmersiva en la naturaleza para los usuarios.

UN DISEÑO EN SINERGIA CON EL PULMÓN VERDE DE LA CIUDAD.

El nuevo complejo deportivo se concibe como una extensión del Bosque, integrando armoniosamente la arquitectura con el entorno natural. El diseño busca minimizar el impacto ambiental de la construcción, utilizando materiales y técnicas de construcción sostenibles. Además, se crearán nuevos espacios verdes que se conecten con el Bosque existente, expandiendo el área verde de la ciudad y generando un corredor verde continuo.

La cubierta del nuevo estadio se eleva majestuosa sobre el complejo, desprendiéndose de las tribunas para convertirse en una estructura esbelta y ligera.

Esta configuración permite mimetizar la edificación con su entorno natural, generando una conexión visual fluida y armoniosa entre la ciudad y su pulmón verde.

La piel microperforada del estadio acompaña el recorrido del hincha, invitándolo a descubrir el entorno natural a través de sutiles transparencias. Esta materialidad permite el paso de la luz natural, creando una atmósfera cálida y confortable en el interior del complejo, a la vez que ofrece vistas panorámicas del Bosque.

AHORRO ENERGÉTICO.

La integración de un sistema fotovoltaico en la cubierta del estadio representa una oportunidad significativa para reducir costos energéticos, aumentar la independencia energética y contribuir al cuidado del medio ambiente.

Se propone obtener ahorro energético en calefacción e iluminación mediante el ingreso de luz natural para ganancia solar directa, con dispositivos de oscurecimiento, en caso de ser necesario. Asimismo, recuperar el agua de lluvia para alimentar los sanitarios del edificio y contribuir con el riego.

UN ESPACIO PARA TODOS: ACCESIBILIDAD Y DIVERSIDAD.

El nuevo estadio y polideportivo estarán diseñados para ser accesibles a todas las personas, independientemente de su edad, condición física o capacidad. Se implementarán medidas como rampas, ascensores, baños adaptados y señalización inclusiva para garantizar que todos puedan disfrutar de este espacio de manera segura y cómoda.

CONEXIÓN VISUAL Y ESPACIAL CON EL BOSQUE.

El diseño de la pileta climatizada y techada se concibe en estrecha armonía con el entorno natural del Bosque, manteniendo una conexión visual y espacial permanente. La arquitectura se orienta cuidadosamente hacia el Bosque, permitiendo a los usuarios disfrutar de las vistas panorámicas del follaje mientras realizan actividades acuáticas o se relajan en el espacio. La cubierta se diseñará con la misma identidad que la del estadio, creando una cohesión estética y funcional entre ambos espacios

PRESERVACIÓN DEL PATRIMONIO.

Las pérgolas patrimoniales existentes se conservarán cuidadosamente dentro del techado de la pileta climatizada. Se integrarán de forma respetuosa al nuevo diseño, manteniendo su valor histórico y cultural mientras se adaptan a las necesidades

MENCIÓN

AUTORES/A ARQUITECTOS EZEQUIEL SPINELLI, ANDRÉS FRANCESCONI, JULIÁN KELIS E IGNACIO CARON / ARQUITECTA MIRELLA VILLANUEVA COLABORADORES

El proyecto para el nuevo centro multideportivo y social Estadio Juan Carmelo Zerrillo, de Gimnasia y Esgrima de La Plata, se inserta en un enclave paradigmático de la ciudad de La Plata, con características únicas y singulares desde el punto de vista urbano, paisajístico, ambiental y social. Es por eso que el proyecto propone integrar el predio a su entorno de manera clara y contundente, mediante una serie de estrategias proyectuales. Por un lado, se plantean dos paseos peatonales en los extremos norte y sur del predio, que no solo sirven de comunicación este-oeste del sector sino que ofician de plaza de acceso a las diferentes actividades del club. Por otro lado, en el perímetro del predio se ubican actividades comerciales y gastronómicas que dan vida a las calles perimetrales, complementado esto con pequeñas plazas en las esquinas este y sur. Estas estrategias apuntan a que el bosque ingrese al conjunto y, a su vez, abrir el club hacia el bosque, dotándolo de nuevas actividades que potencien su uso.

Se plantea un conjunto urbano arquitectónico de dos componentes claros. Un basamento que va cosiendo todas las actividades desarrolladas en planta baja, y posado sobre éste, un volumen más permeable y liviano que contiene el resto de las funciones. El área de deportes indoor y el coworking se plantean adosados a la volumetría del estadio de fútbol, buscando así generar un edificio único con una imagen compacta y unificadora en términos de percepción.

Dada la complejidad programática y de usos muy diferentes (uso cotidiano de socios y de espectadores de los partidos de futbol), se estableció una estrategia de dividir en altura dichos usos mediante un circuito privado que transcurre en planta baja y otro circuito elevado que rodea al estadio, que

permite ingresar al mismo sin interferencias y de manera clara, tanto para acceso como para evacuación.

A este último circuito se accede mediante tres escaleras ubicadas en las esquinas del predio y permite recorrer el estadio en su totalidad por este nivel, facilitando así el acceso masivo del público. A su vez, esto permite redescubrir el bosque desde otra perspectiva y tenerlo siempre presente en todo el recorrido. Los diferentes espacios para las canchas de deportes indoor se plantean en dos niveles, ubicando tres canchas por nivel, con la posibilidad de unificarlas para determinadas actividades, generando así flexibilidad de usos en dichos espacios. En términos de imagen, el proyecto plantea, por un lado, un basamento sólido y pesado que unifica todas las actividades que se desarrollan en planta baja, reuniéndolas formalmente, y por otro lado, un gran volumen liviano que contiene al estadio de futbol, el coworking y los deportes indoor. Este elemento se plantea más liviano y abierto, buscando permearse con el bosque y en cierta manera recuperar ciertos rasgos de la imagen de las antiguas tribunas metálicas del estadio.

En cuanto a su etapabilidad, el proyecto plantea la posibilidad de desarrollo en etapas variables sin interferencias entre sí, lo cual otorga una variada gama de posibilidades según los intereses y recursos disponibles.

Como estrategia general ambiental se propone una “intervención sostenible”, de bajo consumo energético y fácil mantenimiento, sacando ventaja de los sistemas pasivos de energía, ventilación cruzada, orientación, captación de agua de lluvia y aguas grises y paneles solares, y a su vez, ser construida con materiales simples, de bajo mantenimiento y de uso corriente en el lugar.

IMPLANTACIÓN

PLANTA BAJA
PLANTA 1º PISO
PLANTA 2º PISO
CORTE TRANSVERSAL
CORTE LONGITUDINAL
VISTA SOBRE AVENIDA CENTENARIO
VISTA SOBRE AV. 60

MENCIÓN

AUTORAS/ES ARQUITECTAS MARÍA LAURA GARGANTA, MARÍA JULIETA ETCHART MANDON Y PATRICIA LORENA BELLONI / ARQUITECTOS MARTÍN ESTEBAN BILEVICIUS Y FRANCISCO TINEO

COLABORADORES/AS MAURICIO POLVERIGIANI, FRANCISCO COMELLI, VICTORIA GOMIS, AGUSTÍN ARIEL REGULSKY, JULIETA QUINTERO, ISABEL LUPARIA (ASESORA ESTRUCTURAL), NURIA CICIARELLI (ASESORA PAISAJISTA. FLUX), CRISTIAN WALLACE (ASESOR SUSTENTABILIDAD)

“Nuestra actitud corresponde a una visión de la arquitectura en y hacia la ciudad, es decir, del objeto chico ir elevándose cada vez más hasta encontrar la visión del objeto grande, la ciudad, pero manteniendo los rasgos formales propios del concepto de arquitectura, es decir, las formas tangibles. En esta noción de ensanche, la arquitectura-ciudad no es la invalidación de la arquitectura-objeto, no es la negación de la arquitectura del objeto, es sólo un modo conceptual, más integral, de valorar el objeto.” Marcos Winograd

DIAGNÓSTICO: ANTECEDENTES DE VALOR Y ESTADO ACTUAL.

El bosque, como unidad territorial, recibió un trazado con significado y lógica cuya coherencia involucra a los edificios históricos, al equipamiento y mobiliario original y a las especies arbóreas. La evolución de la ciudad y la ausencia de un Plan que regule y guíe la vida, usos y propuesta del bosque, nos enfrenta hoy con situaciones de avasallamiento, degradación y falta de adaptación a las necesidades e intereses de los usuarios cotidianos y potenciales de este espacio público que es distintivo de la ciudad capital, modelo de urbanismo y, en oportunidad de este concurso de ideas “el anfitrión” de las actividades deportivas, recreativas y sociales del Club Gimnasia. Es, a su vez, el escenario de su visión y vocación como institución deportiva que conjuga pasiones, cultura y compromisos sociales y del cual recibe el complemento de su identidad; por esto, cobra sentido que ambos,

“Club y bosque”, se re-definan conjuntamente de cara a un futuro cuya edificación recíproca recupere para el futuro una identidad perdurable y la jerarquía del Decano de América.

PREMISAS DE PARTIDA.

Fusionar y Suturar el entorno permitiendo que la naturaleza-forestación, los circuitos peatonales y los elementos artificiales introducidos por el proyecto recompongan la unidad del bosque. Proponer nuevas dinámicas de usos, apropiación e interpretación del Bosque, mediante la continuidad de la copa de los árboles, la reinterpretación de una red de circuitos peatonales y la incorporación de las cintas.

Incluir armónicamente los edificios emblemáticos, tanto existentes como nuevos, reconociendo y poniendo en valor las cualidades institucionales y patrimoniales.

Sustentabilidad: la renovación de las condiciones naturales del bosque, la reducción de contaminación y la incorporación de tecnología para el ahorro energético.

PROPUESTA URBANA: CONCEPTO E INSERCIÓN

EN EL SITIO.

En cuanto al sitio, la propuesta promueve la integración funcional y programática, buscando re-equilibrar las relaciones entre el estadio y sus inmediaciones mediante la utilización de tres elementos: la ampliación y continuidad del follaje de la arboleda, una red de senderos que estructuran nuevos circuitos para el recorrido interno al bosque y las «cintas». Se propone “enrai-

zar” las instalaciones históricas y las nuevas, los espacios naturales y las construcciones en un conjunto integrado indivisible que recupere la condición de accesibilidad y reconocimiento desde cualquier punto del perímetro, incorporando diferentes propuestas de contemplación y apropiación más sensible. En los antiguos bordes del club, el muro perimetral se redefine, abandona la forma de barrera vertical y se convierte en «cintas», galerías capaces de articular las escalas, y que al elevarse, brindan pasarelas que ofrecen al usuario nuevas visuales, una mejor segmentación en el ingreso al estadio, y la posibilidad de recorrer el conjunto reconociendo los vacíos del bosque y experimentando la naturaleza.

DIÁLOGOS CON EL VACÍO.

Desde la visión que medio natural y medio artificial conforman una unidad, se generan dos pasajes de jerarquía., a partir de las cuales se resuelve la totalidad del sistema de aproximación y accesos a cada área del complejo, ofreciendo al usuario nuevos espacios de encuentro y convivencia en cada específica situación de uso.

El Pasaje del Centenario toma un valor preeminentemente institucional, mientras que el Pasaje de los Deportes resuelve la complejidad de accesos a eventos masivos. Conjuntamente, además de organizar el programa, permiten el funcionamiento

autónomo y en simultáneo de todas las áreas. Como contrapunto a la dimensión peatonal se proponen, en las cuatro esquinas del estadio, los portales, identificables a la distancia por su escala y definidos como umbrales dentro del vacío general de la continuidad agreste del bosque, aportando fluidez espacial y resolviendo los picos de demanda circulatoria.

ACCIONES PÚBLICO-PRIVADAS PARA UNA

RECUPERACION URBANA EFECTIVA.

Progresiva integración y sustitución de usos de las piezas catastrales 84b, 86, 112a y 112b más definición de zonas de servicios con infraestructura mínima pero suficiente para la instalación y reubicación de pequeños edificios móviles o de materialidad reversible (“puertos” para food-trucks, chiringuitos, pequeños equipamientos como baños, puestos de recarga, estaciones de hidratación para deportistas y mascotas, espacios de interpretación, memoriales y monumentos, etc.).

Caracterización y re-diseño de la estructura circulatoria sumada a la progresiva “des-motorización” de los movimientos dentro del bosque, promoviendo (en la periferia) espacios para la detención y estacionamiento de transporte público y privado, diseñando y adaptando las avenidas 122, 1 y 60 para el cambio modal, proponiendo nuevos modos de accesibilidad general y accesibilidad adaptada a todos los sectores del bosque, en particular aquellos

IMPLANTACIÓN

que integran los usos especiales de toda escala y tipo. Sustitución del diseño de vías “vehiculares” por senderos de velocidad e impacto menor, con propiedades absorbentes, libres de barreras y disrupciones y, de ser posible, mutables (por estacionalidad y verificación del uso).

LOS BORDES.

Las tres avenidas (122, 1 y 60), requieren adecuaciones para ordenar los sistemas de movilidad públicos y privados, garantizar seguridad vial y accesibilidad para los usuarios de los edificios de la UNLP, así como para viabilizar intervenciones integrativas del tejido y la continuidad urbana.

ESQUINAS CARACTERÍSTICAS.

Las tres esquinas del conjunto serán hitos dentro de la red de conexión, con programas que alimenten el diálogo con la ciudad y su gente, un museo, la recuperación del antiguo “Chaparral” y la pérgola con equipamiento saludable. Propuestas de uso permanente, con significado de historia propia abiertos a la comunidad.

La esquina de avenidas 60 y Centenario, con un restaurateparrilla muy especial para nuestra ciudad y particularmente para los hinchas de Gimnasia, volviendo a instalar «El Viejo Chaparral», con un área de expansión en la esquina contenida por los grandes árboles existentes.

La esquina de avenida 60 y calle 118, ubicada en la posición estratégica frente a Plaza Canadá, alojará el Museo del Lobo,

con una propuesta más interactiva y una experiencia sensorial para el usuario.

Por último, la esquina sobre avenida Iraola, dentro de una estructura patrimonial, el programa de servicios y equipamiento disponible para turistas y deportistas del bosque incluye a un nuevo grupo de usuarios invitando al uso de las instalaciones.

EL CLUB: LA CASA DEL LOBO.

La propuesta hace foco en el usuario, reconociendo en el diseño del programa la prioridad de una oferta ampliada de servicios y el deseo de «vivir el Club», concentrando todas las actividades deportivas y elevando las condiciones de servicios y equipamiento.

Apertura, funcionalidad, sensibilidad y factibilidad de realización son cualidades que se transfieren a la propuesta como marco equilibrado para destacar la expresión de la identidad gimnasista.

«La 22», «La banda del pasillo», la hinchada familiar, los plateítas, palquistas, dirigentes, periodistas y árbitros, los trabajadores del club, los jugadores de todos los deportes (locales y visitantes), cuerpo técnico, seguridad, policías, autoridades, cuerpo médico, visitantes del museo, turistas, usuarios del bosque, runners, ciclistas, estudiantes de la UNLP, todos convocados para co-diseñar los espacios.

ESTADIO. SERVICIOS DEL FUTBOL.

El nuevo Estadio conserva y valoriza el edificio histórico, aumentando el número de espectadores, tantos en tribunas,

PLANTA +- 0.00 MTS
CORTE LONGITUDINAL

plateas como palcos, generando movimientos claros en días de partidos o en eventos masivos. El usuario que se dirige a las tribunas circula por una pasante elevada sobre las cintas, mientras que los usuarios de las plateas y palcos circulan por el 0.00 y debajo de la cinta. Los usos dentro del estadio se reorganizaron de una manera más flexible y funcional. En el edificio patrimonial se mantuvo el programa más institucional y de prensa de trasmisión. La prensa se reubicó en la platea H junto con vestuarios y movimiento de los jugadores. En las plantas 0.00 de tribunas y plateas se planteó un programa más social y de apoyo tanto al Estadio como al bosque, gastronomía, co-working-evento, Lobo Shop. Para el 2030, el Estadio va a tener una capacidad total de 41.262 espectadores (tribunas: 30.122 y plateas 10.140) y 100 palcos, teniendo como futura opción sumar palcos vips sobre dos portales de acceso: avenidas Centenario y 60, y avenida 60 y calle 118.

AREA MULTIDEPORTES / POLIDEPORTIVO.

El área Mulltideportes-Polideportivo logra la flexibilidad de la función de diferentes deportes y el funcionamiento diurno y nocturno de diferentes eventos.

ESTACIONAMIENTO.

El estacionamiento se desarrolló en dos sectores del complejo en forma subterráneas, dos sectores estratégicos para el uso del conjunto: uno ubicado debajo de Polideportivo conectado con el

núcleo de la platea H, y el otro, en la esquina de la calle restringida Carlos Timoteo Griguol (estacionamientos vips y usuarios que utilice el co-working).

LA ACCESIBILIDAD Y LA ADAPTACIÓN.

A partir de considerar que todas las personas puedan hacer uso y disfrute de todos los espacios del proyecto en igualdad de condiciones, se establecen distintas estrategias de intervención garantizando que la morfología y estructura general de funcionamiento posea base/marco de referencia y soporte para que la mayoría de los espacios sean accesibles y/o potencialmente adaptables.

ENTORNO URBANO.

Delimitado a través de las avenidas. 60, 122, 52 y 1, se propone para el sector establecer cinco Circuitos Peatonales Accesibles que vinculen el entorno con el predio y que, a su vez, sean los circuitos que alimentan los flujos de movimiento de estudiantes que asisten a las universidades del entorno. En estos circuitos se propone: Rediseño de refugios de colectivos: paradas accesibles (actuar sobre niveles, señalética, iluminación, tecnología).

En veredas, trabajar sobre el ancho y niveles de solados diferenciando espacios de circulación peatonal que garanticen un ancho de circulación de 3.00 metros mínimo y un sector por fuera del mismo para equipamiento urbano y arbolado. Se propone la recolocación de solados de texturas uniformes y

PLANTA +4.50 MTS
CORTE TRANSVERSAL

antideslizantes, utilizando el solado podotáctil como “lenguaje” urbano de orientación en el espacio. Ejecución de rebajes en esquinas (o elevación con mesetas según sea necesario), contemplando el ancho total de circulaciones. Niveles de circulaciones rebajados o elevados según surja del planteo general (por ejemplo, unificar nivel de calzada de Centenario y calle 118).

ENTORNO INMEDIATO: PASANTES PÚBLICAS.

Solados: se trabajaron los niveles, anchos y materialidad. Se incorpora tratamiento paisajístico y equipamiento teniendo en cuenta el concepto de “espacio de los sentidos” mediante la vegetación y elementos que, por su aroma, sonido o textura, ayuden en la orientación y uso de los mismos invitando a la reunión, descanso, permanencia y uso.

Plazas de Acceso: se nivela la calzada con veredas sobre Centenario para captar y canalizar la circulación más masiva hacia los puntos de acceso principal y núcleos verticales. Igual tratamiento para sector de calle 118 y Museo. Se propone incorporar señalética/infografía orientativa del espacio y accesos.

Estacionamientos: se ejecutan bajo nivel con núcleo vinculando a nivel 0.00 y desde allí a todo el resto de los sectores accesibles del espacio.

EDIFICIOS.

Se identifican claramente tres flujos principales de movimientos a partir de la definición de los grupos de usuarios: deportistas/jugadores (cuerpo técnico, personal del estadio involucrado en la asistencia durante el evento, personal de seguridad), periodistas/prensa en general, y público general (público de plateas, público vip/invitados). Los anchos y niveles de circulaciones y pasos, y las dimensiones de los locales garantizan la accesibilidad de los mismos.

Los núcleos sanitarios se trabajan con conceptos de baño universal (accesible y de familia) y se plantea un núcleo por nivel para garantizar el acceso, la permanencia y el egreso de manera autónoma para todas las personas.

Estadio: garantiza el acceso, la permanencia y el egreso de manera autónoma para todas las personas en “casi” todos los niveles; en aquellos que no se accede, es una decisión de proyecto y tiene que ver con cuestiones de seguridad y masividad. Se establece un sector de cada platea para la ubicación de personas con movilidad reducida integrado con su grupo familiar y con el público de platea. Se otorga accesibilidad a una parte de las bandejas de tribunas populares mediante núcleos verticales, aunque no se recomienda su uso para usuarios de sillas de ruedas o movilidad reducida por cuestiones

de seguridad y masividad. Los nuevos palcos son 100 % accesibles para movilidad reducida y usuarios de sillas de ruedas y adaptables para personas con TEA.

Polideportivo: posee un acceso, núcleos de circulaciones y sanitarios claramente definidos y accesibles; permite realizar deportes adaptados.

Museo: se jerarquiza dicha actividad y se garantiza la accesibilidad a la misma mediante el adecuado diseño del espacio y la incorporación de tecnología.

Pileta: se dota de climatización a la misma, garantizando su uso todo el año. Se adecuan los vestuarios para que sean accesibles y se garantiza una circulación accesible y segura alrededor de la pileta; se incorporan, además, elementos tecnológicos para el traspaso de personas con movilidad reducida hacia el espejo de agua

Edificio histórico: se incorporan rampas de acceso, ascensor y núcleo sanitario de manera de adecuar el espacio a fin de lograr la mayor accesibilidad.

Aporte extras del proyecto: propone y garantiza un programa con actividades recreativas y de esparcimiento accesibles para todas las personas, más allá de su condición física, sensorial o cognitiva.

MATERIALIDAD.

Los edificios preexistentes del bosque platense, con su impronta muraria, blanca, exenta, se reinterpretan en el tratamiento de los edificios del predio: tres volúmenes exentos, puros, sistematizados, materializados con estructura prefabricada de hormigón y envolvente horizontal y vertical metálica. Las cintas también se materializan en hormigón prefabricado.

PLANIFICACIÓN Y DISEÑO DEL PAISAJE.

En una implantación icónica como el bosque de nuestra ciudad, donde abunda la estructura arbórea diversa y añosa, existe también una degradación a nivel de escala humana, tanto de la vegetación como de la organización espacial-funcional. Consideramos fundamental desde lo bioambiental, y también desde lo paisajístico, la incorporación de especies arbustivas y herbáceas. A partir de esta premisa, en el entorno inmediato al predio de estudio, se propone trabajar con tres tipos diferentes de cobertura vegetal: 1/ Arbustivas y herbáceas (0.40 a 2.50 m altura), 2/ Cubresuelos (hasta 30 cm de altura), 3/ Césped o mulch natural (dependiendo del asoleamiento).

A nivel de lineamiento general y con desarrollo apenas conceptual, se establecen circulaciones que organizan el espacio y dan lugar a grandes “manchones” con diferentes tipos de cobertura vegetal, incorporando las herbáceas sobre todo en torno a la infraestructura y equipamiento propuestos.

Dentro del predio de estudio, el bosque penetra y da lugar a dos grandes pasajes y conectores verdes que incorporan tanto especies arbóreas, como arbustivas y herbáceas. En cuanto a las especies arbóreas, se propone la incorporación de nativas (centro y norte argentino). El foco del diseño está en el juego de texturas y escalas, y en las distintas tonalidades de verdes. En cuanto a la floración, se limita al color blanco mayormente, y se sugieren algunas especies herbáceas de acento azul para el desarrollo del proyecto. Especies arbóreas propuestas dentro del predio de estudio: Enterolobium contortisiliquum (Timbó), Schinus areira (Aguaribay), Salix humboldtiana (Sauce criollo), Bauhinia candicans (Pezuña de vaca), Solanum granulosum-leprosum (Fumo bravo).

Algunas especies arbustivas y herbáceas sugeridas para el desarrollo del proyecto de paisaje (nativo y exótico): de pleno sol (Baccharis trimera, Nassella tenuissima, Paspalum haumanii, Paspalum exaltatum, Cortaderia selloana, Eragrostis curvula, Poa iridifolia, Eryngium elegans, Glandularia platensis, Petunia axillaris, Achillea millefolium, Watsonia borbonica, Chondropetalum tectorum, Salvia uliginosa, Salvia pallida, Salvia greggii, Pavonia hastata), de mediasombra y sombra (Philodendron bipinnatifidum, Thelypteris decurtata, Neomarica candida, Salvia guaranitica, Salvia procurrens, Setaria poiretiana, Melianthus major).

La cubierta verde, con algunas especies pioneras elegidas, está pensada para desarrollarse con especies de crecimiento espontáneo, aprovechando el banco de semillas de la tierra de desmonte del mismo terreno. Algunas especies sugeridas: Poa iridifolia, Nasella tenuissima, Glandularia platensis, Petunia axillaris

SUSTENTABILIDAD.

Objetivos: mejorar las ganancias/mejorar el ciclo de vida del edificio/mejorar el bienestar.

Estadio sustentable-amigable con el medio ambiente:

Logra establecer la Certificación EDGE (Green Business Certification): sistema de certificación de construcción sostenible que se enfoca en hacer edificios más eficientes. Este tipo de certificación tiene una presencia más fuerte en mercados emergentes y en desarrollo (menos costosa y menos compleja).

Cumplir con un ahorro mínimo del 20% de energías/20% en agua/20% energías incorporadas en los materiales del edificio para poder obtenerla.

Plan de administración eficiente de la energía.

Forestación de espacios exteriores y terrazas verdes. Priorización de materiales reciclados en las terminaciones y contratación de proveedores con certificación ISO 14001. Uso de Luces LED.

Reciclado de residuos. Colocación de cestos de basura con clasificación de residuos. Disminución de generación de residuos por elementos descartables (trabajo en conjunto con CEAMSE). Reutilización de aguas de lluvia. Pluviales para riego de la cancha y de los espacios exteriores. La recolección se llevará a cabo por la cubierta del estadio (populares + H), obteniendo una acumulación aproximada de 5.500m3/año. Colectores solares para agua caliente sanitaria (baños públicos, duchas de los vestuarios del complejo -estadio/polideportivo/pileta-, pileta climatizada). Colocando 200 colectores de agua caliente en cubierta de polideportivo y pileta, con sus tanques de acumulación se podría obtener un ahorro del 30%/40%. La inversión en energía solar sanitaria tendría un valor de 300.000 dólares, aproximadamente. Energía solar fotovoltaica-on grid, con conexión a la red. Teniendo una superficie libre entre la cubierta del polideportivo y pileta de 3.000m2, se podrían colocar 1.500 paneles fotovoltaicos, generando 600 KWP y 900MWH/año. Es un sistema modular que se puede desarrollar en partes; la colocación de 1.500 paneles implica una inversión total aproximada de un millón de dólares.

ESTRATEGIA DE INTERVENCIÓN / ETAPABILIDAD.

1. Completamiento de la Platea H (reformular usos y núcleos de movimiento) / Pileta techada (intervención en la esquina y reformulación de usos del edificio patrimonial) / Fundaciones del primer tramo de la cinta sobre Centenario (70ml aproximadamente) / Desarrollo del Pasaje Centenario (Inicio: 08/2024 / 8 meses).

2. Construcción de plateas alineadas a la platea techada René Favaloro (reformular usos de la patrimonial y de las nuevas plateas) / Construcción de canchas exteriores y acondicionamiento de espacios exteriores / Desarrollo del primer tramo con las escalinatas / Desarrollo del Pasaje de los Deportes (Inicio: 01/2025 /15 meses).

3. Movimiento de suelo y construcción de estacionamiento subterráneo sobre Centenario, bases y losa del polideportivo / Movimiento de suelo y construcción de estacionamiento subterráneo sobre calle 118, bases y losa (Inicio: 01/2026 / 24 meses).

4. Remodelación tribuna 60 sobre calle 118 / Núcleos de movimientos / Nuevos usos / Completamiento de la cinta sobre calle 60 / Museo (Inicio: 08/2027 / 24meses).

5. Remodelación tribuna del bosque sobre Centenario / Núcleos de movimientos / Nuevos usos / Completamiento de la cinta sobre Centenario. (Inicio: 01/2028 / 18 meses).

6. Construcción polideportivo / Construcción de cubiertas del estadio (Inicio: 01/2029 / 18 meses).

CONCURSO DISTRITAL DE ANTEPROYECTOS, VINCULANTE,

A UNA VUELTA, PARA LA REFUNCIONALIZACIÓN Y AMPLIACIÓN DEL ESPACIO

COVA-ANEXO DE SEDE DISTRITAL

Promotor y Organizador Colegio de Arquitectos de la Provincia de Buenos Aires / Distrito 9

Co-Organizador y Auspiciante Colegio de Arquitectos de la Provincia de Buenos Aires / Consejo Superior

Asesores Arquitectos Fernando Ariel Galera y Leonardo Hipólito Jáuregüi / CAPBA D9

Jurados Arquitecto Gabriel Ciannamea (CAPBA D9/ Organizador) / Arquitecta Adriana Lucchetti y Arquitecto Diego Domingorena (CAPBA D9 / Promotor) / Arquitecto Diego Riva (CAPBA) / Arquitecta Rocío Solla (Participantes)

Objetivos

Se espera que el concurso genere un espacio de encuentro para la comunidad arquitectónica y el público en general, promoviendo la innovación y el desarrollo de proyectos de arquitectura de calidad en la ciudad. Se valorarán aquellos

proyectos que contemplen las siguientes premisas:

● Integración con el espacio existente. El proyecto debe considerar la integración del sector a intervenir con el existente, permitiendo la conexión y el flujo de personas entre ambos.

● Accesibilidad. Se debe garantizar la accesibilidad universal en todo el predio (a nivel de planta baja).

● Sostenibilidad y economía. Se valorará el uso de materiales y tecnologías sostenibles (locales) y viables de construcción.

● Flexibilidad. Deberá poder adaptarse a modificaciones futuras. Se valorarán positivamente aquellas propuestas que sumen usos complementarios a la propuesta gastronómica, por ejemplo, espacios de lectura, librería, escucha y venta de discos de vinilo, etc.

● El acceso lateral deberá mantenerse como paso vehicular y peatonal hacia el fondo del predio. Esta superficie podrá incorporarse a la propuesta respetando esta condicionante.

● La superficie existente podrá intervenirse en su totalidad aunque se valorarán propuestas que aprovechen muros portantes existentes en pos de una economía en la construcción.

PRIMER PREMIO

AUTORES

“En realidad, todo problema de intervención es siempre un problema de interpretación de una obra de arquitectura ya existente, porque las posibles formas de intervención que se plantean siempre son formas de interpretar el nuevo discurso que el edificio puede producir. Una intervención es tanto como intentar que el edificio vuelva a decir algo y lo diga en una determinada dirección…” Ignasi Solá Morales. Teorías de la intervención.

El proyecto para el Anexo de sede distrital CAPBA9, se presenta como un desafío en virtud de aportar una solución clara y precisa al tema de ampliación y refuncionalización del espacio, resolviendo el vínculo de lo que existe con lo que existirá y sus relaciones espaciales, tecnológicas y de uso. Entendemos que nuestra propuesta debe comunicar un equilibrio que permita reconocer y comprender la historia del edificio y aportar la definición de la arquitectura de nuestra época. El proyecto busca, así, identificar la tipología original y relacionarla con la vereda y el patio, centro del Espacio COVA. Un ágora que habilite la interacción de quiénes lo visiten, más allá de las cuestiones funcionales propias del hacer disciplinar. Ubicado en un barrio de perfil urbano bajo, siendo la vereda un lugar común de encuentro, la fachada, con su particular impronta, forma parte del palimpsesto del barrio. Una casa chorizo intervenida; fue vivienda, comercio, y a partir del concurso, espacio de encuentro.

La estrategia adoptada surge de las premisas dictadas por el sitio, su clima y su realidad económica, social y cultural. El programa, con el polo gastronómico como corazón, nos llevó a buscar la posibilidad de exceder dicho requerimiento: generar un punto de encuentro y referencia fue entonces la búsqueda,

pudiendo desarrollarse usos mixtos y complementarios, con la posibilidad de disponer de las instalaciones en todo momento.

LA CONSTRUCCIÓN DEL VACÍO, MORFOLOGÍA Y TECNOLOGÍA.

La primera operación que se propone está vinculada a la puesta en valor del volumen original y su escala. Se produce la liberación de su interior, quitando muros, poniendo en valor el vacío entre éste y la medianera norte, transformándolo en un espacio semicubierto capaz de albergar diversas actividades, en relación directa con el interior de la preexistencia, la vereda y el patio central. La esencia de la intervención es la relación franca entre la calle y el patio. El volumen original cede para invitar a ingresar. La terraza, en su carácter de espacio conformado por límites pretendidamente virtuales, oficia de conector del nuevo volumen y el patio

La síntesis formal presenta un prisma que emerge desde la caja original, en donde los espacios exteriores se manifiestan dentro de otra caja, construida por vegetación.

El proyecto desarrolla la construcción de los espacios en dos instancias concretas: 1/ el volumen tecnológico, se resuelven los usos y 2/ el espacio vacío, como estructura espacial independiente. La caja tecnológica oficia como un huésped, en contraste a la caja muraria del anfitrión. El espacio vacío es quien conecta los diversos usos existentes del Anexo con los nuevos, a partir de la refuncionalización y ampliación.

ORGANIZACIÓN.

La escala de la intervención, de acuerdo a la necesidad planteada, supera el nivel original de planta baja, y se resuelve en dos plantas superiores, las cuales se retiran de la

vereda mimetizándose con la escala barrial.

La secuencia organizativa responde a la premisa de introducir al transeúnte al complejo, con visuales que permiten reconocer tanto el patio como los espacios ya existentes. El espacio gastronómico, ubicado de manera estratégica en el corazón del edificio, es parte de la calle, el edificio y el patio. La sala de reuniones dispone de privacidad y contemplación. El resto del programa, las instalaciones, disponibles en cualquier contexto.

DISEÑO. IMAGEN.

La estrategia para la imagen del Espacio COVA propone el restauro de la fachada actual y el reconocimiento de su característica reja de rombos, figura geométrica que será incorporada en la materialización de los vacíos. Los vanos de la preexistencia hacia el patio semicubierto rememoran módulos tipo de las casas chorizo, la piel del edificio recuerda los patios con parras de las viviendas de dicha tipología, siendo parte de la estrategia bioclimática de la obra. Las carpinterías son resueltas en aluminio DVH. La chapa blanca reconoce el lenguaje del Espacio, los interiores de madera recuerdan que allí hubo una carpintería.

ESTRUCTURA. SISTEMA CONSTRUCTIVO. TECNOLÓGICO.

El carácter institucional del tema implicó la búsqueda de austeridad en la respuesta tecnológica y material. Una estructura independiente de perfiles de hierro y losas tipo Steel deck, son quienes soportan la caja de uso, el volumen lleno. Materializado ello, tecnología en seco, tipo Steel deck, para cerramientos interiores

AMBIENTE Y DISEÑO SOSTENIBLE.

La idea arquitectónica contempla desde sus inicios, criterios de sustentabilidad y ahorro energético, definiendo no sólo aspectos formales del edificio (orientación, sombras proyectadas, estructura principal, envolventes, etc.) sino también la calidad ambiental de los espacios (iluminación natural, ventilaciones cruzadas y selectivas, protección solar, etc.). Los cerramientos exteriores regulan la radiación solar y tamizan la iluminación y ventilación natural. Dichas estrategias de climatización pasiva minimizan el consumo de energía de las redes convencionales y forman parte de la propia arquitectura desde su concepción. El edificio regula el consumo exterior y genera parte de la energía que consume mediante el uso de la radiación solar para calentar el agua sanitaria.

IMPLANTACIÓN

MOVIMIENTOS
ESTRATEGIAS DE USO
VISTA FRENTE
VISTA CONTRAFRENTE
CORTE TRANSVERSAL
CORTE LONGITUDINAL
DETALLE CONSTRUCTIVO

SEGUNDO PREMIO

AUTORAS/ES ARQUITECTAS MARÍA JOSÉ DÍAZ VARELA Y MARÍA MACÍAS / ARQUITECTOS

PABLO RESCIA, ANDRÉS TAPIA AVALOS Y ALFONSO TRUEBA

COLABORADOR/A ATAHUALPA LASTA Y CAMILA SPADA

“…el pormenorizado conocimiento de las circunstancias permitiría descubrir -y completar- el enigma de lo inacabado: el arquitecto escribiría al dictado del contexto al que voluntariamente se somete…”

Rafael Moneo. Apuntes sobre 21 obras Los sucesivos textos que se inscriben sobre los edificios, sus vidas pasadas, presentan un enigma. Construir sobre esas huellas implica nuevas lecturas de viejos edificios. Si bien hablamos de un edificio que no forma parte del patrimonio arquitectónico, es parte de un patrimonio emocional que la figura del arquitecto Cova dejó en su derrotero a favor de la toma de conciencia de nuestro acervo patrimonial, no solo por los objetos arquitectónicos propiamente dicho sino también por el reconocimiento de sus constructores, obreros, los linajes familiares que constituyen parte de esa historia de hitos arquitectónicos. El completamiento de este conjunto edilicio reclama decodificar ese enigma y reformular una nueva vida para el edificio, que implica ser selectivo en lo que se mantiene y preciso en la nueva intervención, conformando un conjunto donde se pueda leer las vidas pasadas y las nuevas, buscando resolver el enigma.

UN NUEVO POLO CULTURAL.

Completar el conjunto edilicio conformado por el Espacio Cova, el patio interno y la construcción sobre la calle, implica consolidar la idea de dos edificios, opuestos en su materialidad pero que conforman una unidad. Así, la planta baja se define con el programa más público, incentivando la permeabilidad funcional y espacial en el uso gastronómico. En cambio, la planta alta es

un espacio flexible, sin perder continuidad visual con la planta baja. La propuesta se basa en mantener la envolvente de ladrillo, llevándola a su estado más primitivo, dándole carácter al espacio gastronómico que ocupa la planta baja. En la articulación con el patio interior del conjunto, aparece la escalera hacia la planta alta. En tanto, la cocina se abre al espacio gastronómico y se conecta, además, con el resto de las instalaciones del predio, permitiendo su uso alternativo en eventos u otras instancias. El espacio exclusivo para el CAPBA se encuentra en planta alta. Este volumen asume el carácter de ser “la huella de lo nuevo”. Es un paralelepípedo que se manifiesta en contraposición a la materialidad ladrillera. La precisión de su forma es acentuada por la estructura metálica que lo sostiene, manteniéndose exento de apoyarse en las paredes existentes. Entre la precisión del volumen y la envolvente de ladrillo, se genera una doble altura, que remata en el vacío del comienzo de la escalera, alineada con el árbol que domina el patio interior. El espacio del primer piso se presenta como una planta libre que balconea sobre el espacio gastronómico y sobre la pasante hacia el interior del lote. Este volumen se proyecta hacia un segundo piso, dejando definido un posible crecimiento, con un mínimo esfuerzo constructivo. Esta pasante se cierra con sendas carpinterías hacia la calle y el interior, incorporándose al uso gastronómico (con equipamiento móvil, que permita el pasaje vehicular hacia el Espacio Cova). Este techado con chapa traslúcida y un cielorraso abierto de secciones de madera que lo asimilan a un espacio exterior, está caracterizado por plantas trepadoras, bañadas en la luz natural del techo translúcido.

PLANTA DE TECHOS
PLANTA BAJA
PLANTA ALTA
PLANTA TERRAZA
VISTA CALLE DEAN FUNES
VISTA CONTRAFRENTE
CORTE A-A
CORTE C-C
CORTE B-B
ESTRATEGIAS DE SUSTENTABILIDAD

DETALLE CONSTRUCTIVO

MENCIÓN

COLABORADORES

MARCOS

MARCO DE ACCIÓN.

La propuesta se basa en establecer tres objetivos claves para transmitir los valores del arquitecto Cova y continuar su legado. 1) Compromiso por la Historia

El objetivo es redescubrir el pasado a través de la preservación de la estructura original del edificio, manteniendo su huella como pieza central de la intervención y construyendo una identidad cultural.

Toda intervención implica una modificación de lo existente, bien sea a la hora de realizar una reforma, una ampliación o una edificación nueva. El lugar siempre sufre una modificación y el arquitecto no debe caer en el error de ignorar este hecho. La esencia del proyecto reside en generar una reformulación reflexiva que respete el legado histórico o huella del ayer. En este caso, se ha decidido conservar la masa muraria principal, resaltando su materialidad al neutralizar algunos ornamentos de la fachada, y así preservar y revalorizar el vínculo con el pasado, logrando un equilibrio entre lo existente y lo nuevo. La intervención pretende ser complemento de la histórica construcción inicial; sostiene, conserva y mantiene la lógica proyectual del antiguo taller -respetando y replicando el módulo estructural existente, encontrando una matriz geométrica como soporte, donde el nuevo edificio a proponer se exprese en consecuencia, con carácter sintético y elegante a la vez-, y se ofrece versátil y flexible a los usos que se requieren, todo esto por medio de una nueva espacialidad logrando relaciones

que otorgan identidad y representatividad.

2) Solidaridad por la comuna

Resaltando el espíritu del Espacio Cova de transformar y fortalecer el vínculo entre el Colegio de Arquitectos y el público en general, se propone un espacio convocante.

Potenciar la relación con la comunidad, proponiendo un espacio convocante, permeable, abierto que se integra con la ciudad y sus habitantes.

Este concepto no solo busca la construcción de un nuevo edificio, sino enriquecer un pequeño segmento urbano, promoviendo la transformación del entorno.

El libre acceso al corazón de la manzana permitirá crear la configuración de un ámbito vecinal y social que se convierta en un hito para el uso de la misma. Una gran apertura permitirá que la ciudad fluya hacia el interior, creando así una continuidad urbana traducida en una propuesta de uso público. El nuevo espacio servirá como punto de encuentro para la comunidad, integrándose como conjunto con el edificio existente, el patio y la ampliación.

3) Entrega de conocimiento

La institución apuesta a la inclusión a través del trabajo solidario y sustentable. Este espacio conforma un Polo de Innovación Educativo y Cultural, dinámico y multifuncional diseñado para servir a la comunidad como un punto de encuentro dedicado al aprendizaje, la creatividad y el desarrollo cultural. Crear un ámbito apropiado para proponer acciones educativas y culturales extensivas a toda la sociedad.

La flexibilidad y versatilidad de usos, que ofrece el conjunto en sus diferentes espacios, permiten la realización de una amplia gama de actividades, resignificándose a modo de Polo de Innovación Educativo Cultural, brindando la oportunidad de contener actividades creativas, talleres, exposiciones, huerta comunitaria, hasta compartir el aprendizaje de tecnologías sustentables aplicadas en su quinta cara, como remate de este recorrido de transferencia de conocimiento.

LINEAMIENTOS DE LA PROPUESTA.

El proyecto se enfoca en aprovechar los muros portantes existentes, maximizando las relaciones entre el frente y el fondo del edificio. Propone incorporar el programa en dos plantas, organizando la estructura metálica a través de una grilla geométrica tridimensional. El área de servicios se concentrará en una pieza destacada, diseñada casi como una instalación independiente. Esta pieza, situada dentro de otro espacio, organiza y estructura las distintas funciones del programa, actuando como un elemento articulador que centraliza los servicios.

Desde el punto de vista urbano, se mimetiza con la escala de su entorno inmediato, logrando una imagen neutra en su expresión y forma, empleando líneas simples, utilizando operaciones de adición y sustracción, así como contrastes entre abiertos y cerrados, luz y sombra.

La selección de tecnologías, materiales y técnicas para resolver las distintas instancias del proyecto -como solados, entrepisos, cerramientos y cubiertas- se basa no solo en sus características estructurales y funcionales, sino también en su capacidad para expresar el lenguaje del proyecto. Esta elección busca garantizar que cada componente no solo cumpla con sus requisitos técnicos, sino que también contribuya al carácter y capacidad de expresión en su totalidad.

Este espacio educativo y cultural tiene como objetivo ser un catalizador para el crecimiento personal y colectivo, proporcionando recursos y oportunidades para que los miembros de la comunidad exploren, desarrollen habilidades y participen activamente en la vida cultural y educativa. Su diseño y funcionamiento están orientados a facilitar la inclusión, la sostenibilidad y el enriquecimiento

cultural, creando un entorno en el que el aprendizaje y la creatividad sean accesibles y estimulantes para todos.

USOS COMPLEMENTARIOS.

Sala de talleres y creatividad. Destinadas a la realización de talleres creativos y educativos en áreas como arte, música, escritura, y manualidades. La versatilidad de estos espacios permite su transformación según las necesidades específicas de cada actividad. Exposiciones. Espacios dedicados a la exhibición de obras de arte, proyectos comunitarios y eventos culturales, ofreciendo un lugar para que los artistas locales y regionales presenten sus trabajos, promoviendo el intercambio cultural y el acceso a la cultura para todos.

Huerta comunitaria. Un área dedicada al cultivo de plantas y vegetales, donde los miembros de la comunidad pueden participar en actividades de jardinería y aprender sobre prácticas sostenibles. Esta huerta sirve como un recurso educativo sobre agricultura ecológica y alimentación saludable, además de dotar a la cocina del espacio gastronómico de Cova, garantizando obtener verduras frescas y naturales.

Centro de tecnologías sustentables. Un espacio innovador para la educación en tecnologías verdes y sostenibles. Aquí se ofrecen talleres y cursos sobre energías renovables, eficiencia energética y prácticas medioambientales, promoviendo la conciencia y el conocimiento en temas cruciales para el futuro. Ubicado en la quinta cara como espacio soporte, se erige como un faro de innovación, de aplicación y aprendizaje, actuando como punto de referencia en los sistemas de gestión del uso del agua de lluvia, mientras que los paneles fotovoltaicos integrados en el diseño del edificio maximizan la eficiencia energética mediante el control de iluminación. Además, la cubierta verde contribuye a mejorar la calidad del aire y proporciona un nuevo espacio verde para el sector.

Áreas de encuentro y formación. Zonas diseñadas para reuniones, conferencias y actividades formativas. Estos espacios flexibles pueden adaptarse para facilitar desde charlas y seminarios hasta eventos comunitarios y colaborativos, ofreciendo un entorno propicio para el aprendizaje y el intercambio de ideas.

PLANTA ALTA
PLANTA BAJA
CORTE A-A
VISTA FRENTE
CORTE B-B
DETALLE CONSTRUCTIVO

MENCIÓN

AUTORAS/ES ARQUITECTAS MARÍA JOSÉ DÍAZ VARELA Y MARÍA MACÍAS / ARQUITECTOS PABLO RESCIA, ANDRES TAPIA AVALOS Y ALFONSO TRUEBA COLABORADOR/A ATAHUALPA LASTA Y CAMILA SPADA

ALMA DE DIAMANTE (LUIS ALBERTO SPINETTA, 1980).

La ciudad, Mar del Plata, crece, se reinventa, muchas veces olvidando su historia, derribando su patrimonio construido, de valor arquitectónico o incluso su patrimonio doméstico, que caracteriza algunos de sus distritos históricos.

El barrio, donde se localiza la propuesta, es considerado dentro del macrocentro de la ciudad, cuyo paisaje refuerza la idea de un lugar en constante renovación, sobre todo por su estratégica situación respecto del propio centro administrativo de la ciudad, del complejo universitario, de la estación ferro-automotora y de otros nodos comerciales y culturales que dan historia y sentido al sitio. Es, sin embargo, la figura del arquitecto Cova y la toma de posesión del lugar por parte del Colegio de Arquitectos, las que permiten encontrar un rumbo que posibilite la recuperación de una arquitectura doméstica de indudable valor, no por su preciosismo arquitectónico, sino como refugio del alma de un barrio, en un proceso incierto de cambio. El desafío de la intervención es entender cómo se mantiene el “alma” de un lugar, que necesita un ajuste programático y una consiguiente adecuación constructiva.

La propuesta enfatiza la idea de la potenciación del vacío, del patio interior, como articulador de los dos volúmenes construidos del predio, haciendo que el vacío penetre en el interior de la intervención, como también cala dentro de la construcción recientemente restaurada del Espacio Cova.

DONDE PONGO LO HALLADO (SILVIO RODRÍGUEZ, 1978). Lo hallado es un patio revitalizado, un galpón que sutilmente se transformó en lugar de encuentro, de charlas y exposiciones, y una pequeña construcción sobre la línea municipal, pensada como un pequeño local comercial de escala barrial. Su materialidad es una piel de ladrillo, propia de los barrios periféricos del centro, lejos de artificios ornamentales o constructivos.

Es ese anonimato el que se pretende mantener, siendo la “caja” de ladrillo mantenida como valor material, relacionado también con la memoria del lugar. La propuesta surge de potenciar el vacío de esa caja, donde posar la intervención a modo de un “mueble” que se coloca dentro de ella.

Ese mueble cumple con los condicionamientos programáticos actuales, y se manifiesta como una caja dentro de otra, donde

cada una marca su momento, donde lo hallado es de ladrillo, es limite y es memoria, en tanto lo nuevo es de madera, es liviano y propone articularse siendo a su vez respetuoso con lo hallado, pero también precisando su momento.

La caja de madera cubre la zona de cocina, definida como un “take away” sobre la calle, abierta al pasaje, que se cubre con un techo traslucido, generando un espacio interior, que ocasionalmente, puede ser paso vehicular hacia el fondo del lote. También cubre todos los servicios sanitarios, tanto los públicos como los de personal, y la sala de bombas.

Esta caja es un “mobiliario” dinámico, es un aterrazado, orientado hacia el patio (alma del sitio) que es lugar gastronómico, de exposición, de reunión, de lectura, dentro de un concepto espacial de unidad y continuidad que remate en la planta alta en el lugar exclusivo para el Colegio de Arquitectos, que también puede abrirse hacia el aterrazado interior o hacia la calle y la ciudad desde la planta alta.

De la misma manera que el Espacio Cova se manifiesta en una constructividad simple y austera -que refiere también a una forma sobria-, la nueva intervención está cubierta por un techo liviano de chapa de pendiente única (con sectores traslúcidos) que sintetiza la propuesta, compleja espacialmente, pero sintética en cuanto a forma y construcción.

PEQUEÑAS ANÉCDOTAS SOBRE LAS INSTITUCIONES

(SUI GENERIS, 1974).

Las instituciones encierran historias que se traspasan a sus espacios construidos, siendo el caso del Espacio Cova una muestra cabal de esa relación, que engrandecen la figura del

arquitecto Cova y su legado escrito y oral.

Tratar de “guardar” ese legado en este nuevo mueble, creemos, implica ser cuidadoso con lo existente pero también audaz, permitiendo nuevos usos en un sitio que se asume con una espacialidad compleja, pero también sugerente en su forma de interpenetrar usos, aquellos consignados en el programa del concurso, y otros inciertos, que vendrán en el devenir del futuro de nuestra profesión.

Esta flexibilidad que exige la incertidumbre de un futuro próximo, determina que el mueble contenga dos tarimas móviles, que deja el aterrazado en superficies de anchos aptos para una mesa de café y circulación o, en caso de mover estos “cajones”, generar superficies más grandes para usos relacionados con reuniones o talleres.

Cuando el aterrazado tiene las tarimas móviles en situación de uso, todo el espacio se conforma como un anfiteatro, apto para conferencias, proyecciones, representaciones teatrales, etc., con un fuerte contacto con el patio interior.

Sobre el lateral que conforma la medianera de ladrillo existente, aparece un equipamiento de estantes y anaqueles, que son a su vez aptos para exponer dibujos, maquetas, pequeños objetos de arte, o para esconder columnas estructurales, canalizaciones, ventilaciones, etc., tanto del sector de cocina como del sector de sanitarios.

Sobre el frente hacia la calle, se completa la fachada existente de ladrillo con un sistema de postigos que se pliega de la misma manera que el portón existente. Estos postigos son de estructura metálica y chapa lisa y perforada, según su ubicación en el tablero de ajedrez en que se transforma la fachada.

CONTRAFRENTE

PLANTA BAJA
PLANTA ALTA
VISTA FRENTE
CORTE A-A TARIMAS EXTENDIDAS
CORTE A-A
DETALLE CONSTRUCTIVO

MENCIÓN

AUTORAS/OR ARQUITECTAS LAURA ELENA AUTINO Y LUCIANA GUADALUPE ÑANCUCHEO / ARQUITECTO

LEANDRO SBARRA / ASOCIADA: EUGENIA MINOLI

COLABORADORES FEDERICO NAHUEL ALBO GUITIAN Y JULIÁN GALLINARES

Llevar adelante la propuesta para un edificio público como es la refuncionalización y ampliación del espacio Cova -anexo de sede distrital del Colegio de Arquitectos de la Provincia de Buenos Aires-, conlleva un desafío especial, ya que pertenece a la institución que nos acoge y donde llevamos a cabo parte de nuestras actividades como arquitectos, lo que significa que debemos realizar un esfuerzo máximo de objetividad para llevar a cabo un desarrollo proyectual que debe resolver los cambios de un programa variable, que va mutando según las necesidades de los profesionales y su comunidad, y para que su concreción se adapte a las condiciones de preexistencia de alto valor histórico y de pertenencia. Significa entonces en cierta medida (re)pensar los usos, que actualmente se adecúan a una forma / edificación ya dada, a una nueva organización que, por el contrario, se amolde a un correcto sistema de relaciones con las ya existentes. Siempre pensando la visión a futuro, y a una apertura a la comunidad toda, para crear fusión entre la ciudad, sus habitantes, y el Espacio Cova en su totalidad. El espíritu de la intervención del Espacio Cova es transformarlo en un polo cultural. Este nuevo espacio a intervenir en contacto directo con la calle configura una propuesta abierta a la ciudad y se enlaza junto con otros dos polos de referencia a nivel urbano a través de un eje que los vincula y los consolida en una tríada de alto valor arquitectónico histórico y cultural para la ciudad de Mar de la Plata. Este eje vincula el Museo del Mar, el Espacio Cova y la Casa sobre el Arroyo, en el barrio parque Peralta Ramos. Acompaña a este eje cultural, en forma paralela, un sistema de espacios verdes públicos articulados en dos ejes que cosen el actual espacio de las vías del ferrocarril -que atraviesa la manzana donde se encuentra el Espacio Cova- y una serie de plazas de referencia: Peralta Ramos, Dardo Rocha y Pueyrredón, rematando en el espacio público contiguo al Museo del Mar como gran mirador de la ciudad

El proyecto responde a la necesidad de refuncionalizar y ampliar el Espacio Cova, además de plantear una nueva imagen

cultual e institucional, posibilitar y fomentar la interacción entre profesionales, generando una mayor apertura hacia la comunidad y fortaleciendo la inserción e integración de la estructura urbana en un modo directo.

Las condicionantes sobre las preexistencias y condiciones específicas del actual edificio y el lote, nos llevó a repensar estrategias que cumplan con los requisitos y necesidades planteadas, manteniendo y modificando lo menos posible su estructura original. Así, el proyecto demuele y reforma mínimas superficies en planta baja y, al mismo tiempo, extrae ventajas de los vacíos que quedan sobre el lateral, frente y contra frente.

Una de las principales características del proyecto es romper con el esquema típico de edificio cerrado a su contexto inmediato; por el contrario, en una actitud urbana, el espacio construido principal (espacio gastronómico) se abre a la ciudad, creando un espacio lateral/público que actúa de fuelle y permite el intercambio ciudadano o el encuentro entre profesionales. Esto mismo sucede con la incorporación de un espacio de expansión/terraza en planta alta, que dialoga desde las visuales con el espacio urbano.

El punto de partida es simple: un techo, un elemento de cubierta que unifica, integra y le da carácter a la propuesta. Es un elemento que le da escala al ingreso pasante y que genera un semicubierto/ un espacio abierto a la calle; se configura como articulador formal entre exterior e interior. Esa primera instancia espacial de ingreso al lote a través de un espacio semicubierto en doble altura, marca la transición entre la calle y el nuevo Espacio Cova, a partir del cual es posible acceder al interior del espacio gastronómico o seguir transitando al corazón de manzana. Este gran techo se expresa como una experiencia espacial para los visitantes y enmarcar un momento de cambio antes de ingresar al salón Cova y luego en el regreso, al despedirse. El elemento/cubierta está cargado de un simbolismo cromático que le aporta una atmósfera de luces y sombras, reflejos y colores, que genera una activación con el verde predominante del parque. Es una propuesta arquitectónica que

apela a la ligereza, el paso del aire y la frescura de una sombra resguardo de las actividades al aire libre. Convive con el espíritu formal y funcional del salón de usos múltiples, de los recuperados y viejos galpones/taller de carpintería del señor Cova.

En un gesto inicial, la gran cubierta define el acceso y enmarca a modo bienvenida lo que se configura como el espacio de confluencia. Desde una condición dual, este elemento/cubierta estructural que toma forma y cuerpo constructivo en voladizo, anuncia, por un lado, la generación de un espacio de acceso al interior del predio y, por otro, una apertura hacia el espacio público. Se convierte así en un dispositivo de transición entre la arquitectura y la ciudad.

El proyecto se expresa para construir las relaciones entre lo público y lo privado, optando por una planta baja que resuelve lo más público con acceso directo desde la calle o desde la pasante lateral. La transparencia desde la calle hacia el corazón de manzana facilita el encuentro entre lo que sucede afuera y lo que aguarda adentro. La flexibilidad de esta planta baja interior a partir de las decisiones proyectuales de lateralizar los servicios y apoyos otorga la posibilidad de diversos usos relacionados y actividades. El desarrollo programático de la propuesta, tanto en planta baja como en planta alta, contempla el uso de nuevas actividades, planteando áreas para la celebración de reuniones, capacitaciones, exposiciones, sectores para actividades administrativas y para el procesamiento de expedientes, archivo y salas de reuniones, etc. Asimismo, se tiene en cuenta cuestiones tales como la flexibilidad, permitiendo un futuro de cambios y transformaciones de los espacios y la readaptación del edificio a través del tiempo. Por esta razón decidimos dar prioridad a una planta baja de programa más público con la incorporación del espacio gastronómico, que permita relacionarse de forma directa con el patio lateral y el patio entre las edificaciones. La decisión de mantener la caja existente como antecedente y memoria del viejo edificio nos permitió optar por un aventanamiento controlado en su perímetro, pero rítmicamente armónico, manteniendo así el carácter original del mismo. Dicha planta está acompañada de un eje/costilla de apoyo que concentra los servicios (cocina y baño) y la escalera al nivel superior. Ésta última está pensada como un elemento angosto a modo de amortiguador programático o fuelle sobre la circulación que dará respuesta a las diferentes instancias previas de las respectivas

funciones. La escalera, elemento protagónico, distintivo y espacial se desarrolla como un plegado continúo despegado del suelo que invita al visitante a subir al nivel de la terraza y reconocer las nuevas vistas sobre la ciudad. Ofrece en su corto recorrido un evento espacial diferenciado que será enfatizado a través del ingreso de la luz cenital que llega desde un gran lucernario lineal ubicado sobre la cubierta.

Por sobre el nivel de lo público, pero en diálogo, se encuentra el espacio específico para actividades del Colegio: sala de reunión y archivo con una gran terraza de uso público. Esta última se integra de manera directa con el espacio de sala pudiendo configurarse como un espacio flexible y de usos variados. La propuesta descansa sobre la idea de un edificio sustentable en el uso racional del espacio existente minimizando la superficie solicitada, pero optimizando su relación con el entorno existente. La impronta urbana del edificio se acomete mediante dos estrategias: la primera, generar un reconocimiento directo desde la calle espacio-público que permita convencer la inmersión al interior del edificio para descubrir su interior y, a su vez, que se convierta en un umbral entre el interior del edificio y la calle urbana. Se trata de un espacio con una gran cubierta/umbral que se asoma desde la fachada existente como nuevo acceso jerarquizado y que permite la relación directa con la comunidad. La segunda estrategia es la conformación volumétrica propuesta: la generación de un plano despegado de la edificación existente con una definición material clara y contundente capaz de hacer ciudad. Este nuevo edificio se propone marcar un hito visible desde el espacio urbano. Por lo tanto, el proyecto, con un partido simple, aspira a conservar la estructura edilicia original, anexando un gran techo e incorporando el patio pasante lateral como nuevo espacio recuperado de expansión.

Se aspira a la concreción de un edificio institucional y cultural de usos mixtos, que provea de los espacios necesarios para que, tanto trabajadores de la región como matriculados, puedan llevar adelante sus tareas, pero que a su vez se transforme en un edificio icónico, como debería serlo el de nuestra institución, que además sea ejemplo de cultura, urbanidad y que genere fricción entre los usos públicos y privados. Un espacio que invite a ser recorrible y reconocible, que permita el encuentro de los profesionales y de la comunidad, y que principalmente fomente un diálogo cultural.

PLANTA TECHOS
PLANTA BAJA
PLANTA ALTA
VISTA FRENTE
VISTA LATERAL C1
VISTA CONTRAFRENTE
CORTE C2
DETALLE CONSTRUCTIVO

CONCURSO DISTRITAL DE ANTEPROYECTOS VIVIENDA UNIFAMILIAR LIPOLCC 2024

Promotor LIPOLCC / Liga Popular de Lucha contra el cáncer -Benito Juárez

Organizador Colegio de Arquitectos de la Provincia de Buenos Aires / Distrito 8

Coordinación general Secretaría de Concursos / CAPBA

Auspiciante Federación Argentina de Entidades de Arquitectos

Asesoras Arquitectas Lucila Fittipaldi y Ana Julia Bellocchio

Jurados Arquitecto Rodolfo Frolik (CAPBA D8) / Arquitecta Carla Lastra (LIPOLCC) / Arquitecto Lisandro Gonzalez Ojinaga (Participantes)

Objetivos

LIPOLCC es una entidad de gran trayectoria de la localidad de Benito Juárez. Es una institución intermedia, sin fines de lucro que realiza su accionar a nivel privado, pero en muchas ocasiones vinculado con organismos oficiales. El principal objetivo, desde sus comienzos, fue realizar la divulgación sanitaria para prevenir el cáncer.

LIPOLCC se maneja con fondos propios de las recaudaciones que realiza, sorteos, remates, venta de almanaques de la institución, donaciones, cuotas de socios, tarjetas de afecto y esperanza, fogones y la Rifa Anual del Teléfono, cuyo primer premio, desde hace más de una década, consiste en una Vivienda Unifamiliar, cuyo anteproyecto resulta

de este concurso que ya cumple 21 años.

Se trata de una vivienda del tipo “unifamiliar” de la serie que se vienen desarrollando en los sucesivos concursos de LIPOLCC, cuya materialización debería implicar un plazo de obra estimado de alrededor de ocho meses, de manera que sea posible cumplir con los tiempos necesarios del sorteo y entrega de la misma dentro los plazos establecidos. Cabe señalar que como la obra de la vivienda transcurre principalmente en época invernal, tanto las bajas temperaturas a nivel local como la duración de los días son factores que inciden sensiblemente en los tiempos de construcción.

La propuesta de anteproyecto debe plantearse utilizando sistema de construcción tradicional (construcción de tecnología de mampuestos), e incluir: a): estar-comedor; b): dos dormitorios; c): cocina con equipamiento completo, lavadero, independiente o integrado a la cocina; d) baño completo; e) espacio para cochera (opción de cubrirse en el futuro).

Toda la propuesta debe ser resuelta en una superficie de aproximadamente noventa y cinco metros cuadrados cubiertos, pudiendo utilizar de ser necesario quince metros cuadrados adicionales de semicubierto. Todo el programa solicitado debe desarrollarse en planta baja y se valorará contemplar normas vigentes de accesibilidad.

La planta de techos debe tener un porcentaje no menor al 80% materializado con cubierta de chapa, el 20 % restante puede materializarse con losa, quedando este último porcentaje a criterio de cada participante utilizarlo o realizar el 100% del proyecto con cubierta de chapa. No deberán desarrollarse canaletas embutidas.

PRIMER PREMIO

AUTOR ARQUITECTO ALFONSO TRUEBA COLABORADORES/AS ARQUITECTO PABLO RESCIA, ANDRÉS TAPIA ÁVALOS Y JULIÁN VERÓN / ARQUITECTAS MARÍA MACÍAS Y MARÍA JOSÉ DÍAZ VARELA (ARQUITECTOS/AS ASOCIADOS/AS)

Las ciudades pampeanas, sus barrios y sus casas, representan una tradición basada en una geometría austera que permite su adaptación al paso del tiempo y, por consiguiente, a los cambios en los diferentes modos de vida. Esa geometría es caracterizada por la manzana cuadrada o rectangular (en este caso), por la plaza fundacional, rodeada de sus correspondientes edificios que representan los poderes públicos y religiosos, ordenados según una sobria cuadrícula, que independientemente de su sencillez, es el escenario ideal de la multiplicidad de usos de una plaza, y de los rasgos distintivos de las viviendas que miran, desde la intimidad, la vida urbana. Esa condición atávica de nuestras ciudades se traslada a la vivienda en un arquetipo que atraviesa la arquitectura, desde la domus romana hasta las casas-patio de Mies van der Rohe, pasando por nuestra casa chorizo. El patio es a la vivienda como la plaza a la ciudad. Es el regulador de la vida social y de la conformación de los espacios íntimos, así como el mediador de las relaciones entre la calle, el interior y el fondo del lote.

El patio excede así su función primitiva, es decir, la de posibilitar la iluminación y ventilación, en tanto que en la propuesta adquiere una dimensión organizativa de la planta definiendo la sectorización entre áreas públicas y privadas, con instancias intermedias, como el acceso y la cocina, esta última, entendida como un sector de articulación con el exterior, tanto hacia la calle como hacia el patio de fondo.

En este sentido, el acceso, el patio y el área pública ocupan la misma crujía que relaciona la calle y el fondo, siendo el comedor una

extensión del espacio cocina, abogando por la continuidad visual que implica la transparencia a los cuatro lados del patio, pero posibilitando la doble circulación entre áreas privadas y públicas, facilitando la dinámica familiar, pudiendo incorporar actividades diferenciadas (por ejemplo, el dormitorio sobre el frente puede ser utilizado como oficina o local al exterior) sin alterar la privacidad doméstica. En cambio, el dormitorio que da al fondo del terreno, se abre lateralmente al espacio de estar, pudiendo flexibilizar los usos, generando así, un escenario adaptable a diferentes modos de habitar.

En definitiva, el patio es la síntesis de la vida privada, y actúa asimismo como un regulador ambiental en cuanto al asoleamiento de los espacios interiores, la ventilación cruzada y la recolección del agua de lluvia. Además, también define las condiciones dimensionales de los elementos constructivos tradicionales, como mampostería de ladrillos, estructura de madera a la vista y cubierta de chapa galvanizada. Sobre el fondo del terreno, la casa se abre hacia el exterior con un espacio de transición a modo de pérgola metálica que contiene también el tanque de agua, cuya materialización apela a la memoria de los paisajes rurales.

La propuesta, más allá, de su adscripción tipológica, de su rigor geométrico-dimensional y de su simplicidad constructiva, es un espacio que facilita diferentes apropiaciones y que apela a una forma ancestral de vivir, que no es otra cosa que un patio a la espera de ser habitado, tal vez a la espera de alguien que mire a través de él, el recorte de un cielo pampeano desde la seguridad de su morada.

PLANTA BAJA
PLANTA DE TECHOS
VISTA FRENTE
CORTE A-A
CORTE B-B

COLEGIO

PROGRAMA

SILUETAS DE SUPERFICIES

ADAPTABILIDAD: AMPLIACIÓN ÁEREA

ADAPTABILIDAD: ESPACIO DE TRABAJO

PATIOS

SEGUNDO PREMIO

AUTOR ARQUITECTO GERMAN

COLABORADOR/AS ARQUITECTO LEANDRO SBARRA / ARQUITECTAS EUGENIA MINOLI Y LUCIANA GUADALUPE ÑANCUCHEO

Concepto general. La propuesta parte de la premisa de integrar el diseño de la vivienda dentro de un gesto urbano que considere las medianeras como límites del terreno, la orientación y las edificaciones vecinas. La idea es crear una vivienda que “abrace” el lote, expandiendo los límites impuestos por las normativas urbanísticas. Este enfoque se materializa mediante la incorporación de cuatro vigas de hormigón que abarcan la totalidad del ancho del terreno, definiendo la propuesta arquitectónica. A partir de estas vigas, se estructura una secuencia de llenos y vacíos que conforman el diseño de la vivienda.

La vivienda. La vivienda se entiende como un prototipo flexible, adaptativo y vinculado a sus usuarios. Su estructura permite diversas configuraciones funcionales que pueden ajustarse a las necesidades de diferentes familias o contextos de uso. Es un modelo versátil que responde a la evolución del espacio habitacional y las preferencias de quienes lo habitan.

Estrategias de distribución. La disposición de los espacios se organiza en tres bandas programáticas a lo largo del lote, siguiendo su eje longitudinal:

Primera banda. Ubicada en la medianera sur, esta banda alberga los servicios (cocina, antebaño y baño) y se articula con una serie de patios de servicio que garantizan una correcta ventilación y relación con el exterior.

Segunda banda. Es el núcleo central de la vivienda, un gran

espacio continuo que integra tanto los usos públicos como privados. Esta banda está libre de interferencias estructurales, permitiendo una gran flexibilidad en su organización interna. Las tabiquerías son flexibles y pueden adaptarse o eliminarse según las necesidades del usuario. Tercera banda. De carácter mixto, esta banda define el acceso vehicular y peatonal a la vivienda, rematando en un patio verde que conecta la vivienda con el entorno natural. Pero también incorpora un espacio de expansión principal de carácter flexible, pudiendo absorber usos varios como ampliaciones, espacio para fogones, semicubiertos, espacio de trabajo/estudio, etc.

Conexión espacial. La vivienda se abre generosamente hacia el lateral y al fondo del terreno, mientras que en el frente mantiene una condición más privada, cerrándose hacia la ciudad y fomentando un diálogo interior protegido. Las secuencias de patios exteriores potencian el espacio interior expandiendo a ellos. El eje de acceso a la vivienda se sitúa en el punto medio del lote, funcionando como un espacio articulador y hall integrado. Este eje divide claramente los espacios públicos de los privados y conduce la circulación principal a lo largo de la vivienda, estableciendo un flujo continuo.

Versatilidad. La vivienda está pensada como un módulo habitacional flexible que puede adaptarse a diferentes tamaños de terreno y necesidades programáticas. Las bandas programáticas pueden ampliarse o modificarse según las exigencias del

usuario, y los espacios de expansión (patios y pérgolas) adquieren un carácter jerarquizado y de gran valor paisajístico, otorgando a cada sector una identidad diferenciada.

Materialidad. La materialidad de la vivienda expresa su carácter privado no solo en la fachada, sino también en todo el perímetro del lote. Se utiliza una serie de muros de ladrillo pintados de blanco que funcionan como planos verticales de altura constante. Estos muros se articulan con carpinterías de aluminio retranqueadas sobre la fachada, generando espacios de guardado y apoyo al interior. La combinación de estos muros de ladrillo con las vigas de hormigón gris establece una armonía cromática que define el lenguaje arquitectónico de la vivienda. La elección del ladrillo y el hormigón responde a una reflexión sobre la versatilidad de estos materiales, que ofrecen propiedades únicas para la arquitectura contemporánea. Los materiales tradicionales se combinan para sintetizar la idea de hogar, creando un ambiente acogedor y eficiente.

Estructura y sistema constructivo. El concepto estructural es simple y eficiente: los techos de chapa están definidos rít-

micamente por las vigas, que estructuran y definen el sistema constructivo en las áreas principales de la vivienda. Esto permite una gran flexibilidad espacial. La estructura está formada por vigas y columnas de hormigón armado, combinadas con una cubierta liviana de chapa (80%) que facilita la construcción y contribuye a la eficiencia energética del hogar. Sostenibilidad. Este prototipo se concibe como una estructura sostenible de rápido despliegue, basada en una tecnología tradicional que mantiene un equilibrio entre los aspectos ambientales y económicos. Se complementa con sistemas pasivos de climatización, lo que optimiza el confort interior y la eficiencia energética, minimizando el impacto ambiental y el consumo de recursos.

Conclusión. La vivienda diseñada, de no más de 95 metros cuadrados, no solo satisface las necesidades funcionales requeridas, sino que también refleja un compromiso con la sostenibilidad y la integración armónica con su entorno. El diseño, junto con la elección de materiales y la organización espacial, crea un hogar confortable y eficiente, pensado también a las variables del paso del tiempo.

PLANTA BAJA
PLANTA TECHOS
VISTA FRENTE
CORTE TRANSVERSAL C-C
CORTE VISTA B-B
CORTE VISTA A-A

ASOLEAMIENTO

EXPANCIONES DIRECTAS

ESPACIO CERRADO

ADICIÓN

FLEXIBILIDAD

FLEXIBILIDAD DE USOS

PIEZAS ARTICULADAS

FOGON
PATIO
GARAGE
TALLER - QUINCHO - ESTUDIO - INVERNADERO

MURO CONTENEDOR

ESPACIO INTEGRADO
PATIOS + PERGOLA VIGAS ESTRUCTURALES
CUBIERTA DE CHAPA MODULO FLEXIBLE
BANDAS PROGRAMATICAS CIRCULACIÓN INTERNA

MENCIÓN ESPECIAL

AUTOR ARQUITECTO ANDRÉS PEÑA COLABORADOR ARQUITECTO MARCOS MONJES

El proyecto se encuentra emplazada en la ciudad de Benito Juárez, provincia de Buenos Aires, en un lote de 11,02x21,80 metros. Toda la vivienda se desarrolla en planta baja: el sector social comprendido por la cocina-lavadero, comedor y estar se resuelve a lo largo del terreno, mientras que el sector privado se ubica hacia el frente con un fuelle (patio) para lograr la privacidad de los dormitorios.

Lo público y privado de la vivienda está articulado por un espacio intermedio que no solo es paso sino función; este espacio incluye un área de trabajo (barra) que puede ser utilizada para diferentes actividades, además de permitir visuales y ventilaciones cruzadas hacia el patio. En este mismo lugar, es posible incorporar una puerta corrediza para brindar mayor privacidad a los ambientes íntimos con respecto al resto de la vivienda.

La vivienda se proyecta con un sistema de construcción tradicional: mampostería de ladrillo hueco revocado ambas caras, tabiquería interior liviana -logrando de esta manera que los espacios sean flexibles-, columnas de refuerzos, encadenado perimetral de hormigón y cubierta de chapa en la totalidad de la vivienda, excepto en la galería que se plantea con un sistema de pérgola de madera. Carpinterías de aluminio color negro con doble vidriado hermético.

Todos los ambientes de la vivienda tienen expansión a los diferentes espacios verdes que se generaron en el anteproyecto, además de lograr ventilación e iluminación natural de los mismos Hacia el frente de la vivienda se plantea un muro de bloques de hormigón calado que filtra la luz y las vistas, generando un juego de luz y sombra que tamiza la relación entre la vivienda y el espacio público, en el cual se integra un banco de hormigón armado reviviendo las épocas en que las familias al atardecer se sentaban en la vereda para “tomar aire”, es una de estas costumbres que no

mueren, pero de a poco comienzan a desaparecer.

En la cubierta se instalará un sistema de paneles y termotanque solar para que la vivienda genere su propia energía. Instalación de termotanque solar. El equipo a instalar consiste en el aprovechamiento de la energía irradiada por el sol para generar agua caliente sanitaria; a la vez, la vivienda cuenta con un termotanque a gas natural que va a funcionar como sistema de apoyo. Estos equipos solares permiten reducir hasta en un 70% el consumo.

El equipo se instalará en la cubierta de chapa orientada al norte donde se encuentra ubicado el tanque de reserva y las bajadas de agua hacia el termotanque de gas instalado, que funcionará como sistema de apoyo cuando el sistema solar no alcance la temperatura de agua deseada en la vivienda. Instalación de paneles solares. Instalación de paneles solares sobre la cubierta de chapa de la vivienda, orientados al norte, libres de sombras para maximizar su eficiencia, para transformar la luz del sol en electricidad. Esto se traduce en la vivienda en ahorro de energía que se va a ver reflejada en las boletas. Este sistema permite que, en el caso que genere más energía de la que se consume, se pueda inyectar el excedente a la red eléctrica para recibir una compensación económica. Elementos a instalar en la vivienda. Paneles solares: se encargan de captar la energía solar. / Regulador de carga: controla el proceso de carga de las baterías. el cual va a estar ubicado donde se encuentra el tablero principal de la vivienda. / Banco de baterías: su función es almacenar la energía eléctrica generada por los paneles solares para usarla cuando estos no producen electricidad debido a la ausencia de radiación solar. / Inversor: convertir la corriente continua en alterna, que es la que requieren los dispositivos y electrodomésticos de la vivienda (televisor, lavarropas, heladera, aire acondicionado).

PLANTA
PLANTA TECHOS
VISTA FRENTE
CORTE TRANSVERSAL
CORTE LONGITUDINAL
ESTRUCTURA PRINCIPAL - MUROS
ESPACIO PÚBLICO - PRIVADO
CIRCULACIÓN PRINCIPAL - SECUNDARIA
PATIOS EXTERIORES
VENTILACIONES CRUZADAS
ESPACIO SEMI CUBIERTOS

MENCIÓN

AUTORAS ARQUITECTAS MARÍA LUZ

ROMERO Y MARIANA TELLERIA

La propuesta para esta vivienda unifamiliar se desarrollada teniendo en cuenta el entorno, las dimensiones del terreno, el asoleamiento, las ventilaciones, la relación entre llenos y vacíos. Se desarrolla con una tipología en L, diferenciando dos volúmenes bien marcados, uno sobre el frente del terreno que contiene el área social, y el otro, el área privada, conectados a través de una circulación principal uniendo estos volúmenes y circulaciones secundarias.

El área social es un espacio que constructivamente se destaca por tener grandes ventanas que permite la apertura y la continuidad espacial entre el interior-exterior y la conexión entre los dos patios, el de acceso de carácter público y el del fondo privado, potenciando las visuales y la relación con el verde como parte integral del diseño arquitectónico, aportando equilibrio, bienestar, pasante, ventilación cruzada y calidad de vida. Creando una experiencia sensorial que conecta al usuario con su entorno a través de la luz natural, las visuales y el confort térmico.

PLANTA BAJA
PLANTA TECHO
VISTA FRENTE
CORTE A-A
CORTE B-B

SUPERFICIE CUBIERTA

ESPACIOS VERDES SERVICIOS

AMPLIACIONES

PUBLICO - PRIVADO CIRCULACIÓN

MENCIÓN

AUTOR ARQUITECTO WALTER PAOLETTA

INTRODUCCIÓN

Ubicada en Benito Juárez, Argentina, esta vivienda modular es un ejercicio arquitectónico que encuentra en la austeridad y la simpleza sus valores rectores.

Diseñada para resolver las necesidades esenciales del habitar, el proyecto opta por una arquitectura honesta, donde cada elemento tiene una función específica y prescinde de adornos innecesarios. Inspirada en un enfoque racional y funcional, esta vivienda se desarrolla íntegramente en planta baja y se apoya en principios de modulación, ventilación cruzada y flexibilidad para responder a los desafíos de un terreno limitado y un presupuesto controlado.

La propuesta se enmarca en una búsqueda de equilibrio entre economía, estética y funcionalidad. La austeridad no es entendida como carencia, sino como una decisión consciente de diseñar con lo justo y necesario, asegurando al mismo tiempo un espacio digno y confortable para quienes lo habitan. Esta visión dialoga con los postulados de Mies van der Rohe, quien sostenía que “menos es más”, y encuentra en la simplicidad la clave para la durabilidad y la claridad arquitectónica.

AUSTERIDAD.

La austeridad como principio de diseño no implica una limitación, sino una exploración profunda de los recursos mínimos necesarios para crear un espacio habitable. Cada decisión en este proyecto busca optimizar materiales, costos y energía, alineándose con un pensamiento arquitectónico que prioriza la eficiencia y la honestidad.

Desde la elección de los materiales hasta la distribución espacial, todo responde a un criterio de simplicidad que privilegia la funcionalidad. La vivienda se construye con ladrillos, techos de chapa inclinados y aberturas estándar, materiales locales de bajo costo y fácil mantenimiento. Este enfoque permite reducir los gastos de construcción y también asegurar la durabilidad de la vivienda a largo plazo.

La estética del proyecto no busca llamar la atención, sino integrarse silenciosamente al paisaje de Benito Juárez, respetando el entorno y las tradiciones constructivas locales. La galería y el patio trasero, elementos comunes en las viviendas argentinas, se reinterpretan aquí como extensiones naturales de la zona pública, conectando interior y exterior de manera fluida. Esta propuesta enfatiza el equilibrio entre economía, funcionalidad y estética, mostrando cómo la arquitectura puede alcanzar lo sublime a través de la simplicidad.

MODULACIÓN.

La vivienda está compuesta por módulos regulares, diseño que es el núcleo conceptual del proyecto, permitiendo organizar el espacio de manera eficiente y garantizar la flexibilidad. La modulación establece un ritmo claro en la composición de la vivienda, donde cada módulo cumple una función específica.

• Estar y cocina-comedor integrados, pensados como el núcleo social de la vivienda, donde la familia puede convivir en un ambiente amplio y luminoso.

• Dos dormitorios de dimensiones contenidas, diseñados para asegurar privacidad y descanso.

• Un baño completo, compacto pero funcional.

• Espacio exterior utilitario, que funciona como extensión natural del interior, permitiendo actividades al aire libre. La planta es compacta y eficiente, minimizando recorridos y aprovechando al máximo la superficie disponible. La relación entre los espacios interiores y exteriores refuerza la idea de continuidad y apertura. Este sistema modular permite proyectar una vivienda no como un objeto cerrado, sino como un organismo abierto y adaptable. La flexibilidad del diseño modular hace posible que, ante cambios en las necesidades familiares, la vivienda pueda crecer sin comprometer su coherencia arquitectónica.

CONFORT CLIMÁTICO.

El clima de Benito Juárez, con veranos cálidos y una gran amplitud térmica, exige soluciones bioclimáticas eficientes; entonces, el diseño prioriza una orientación óptima que maximice la entrada de luz natural en invierno y controle la incidencia solar en verano, reduciendo la dependencia de sistemas mecánicos de climatización.

La vivienda, al no estar diseñada para un lugar ni usuario específico, adquiere un carácter flexible que le permite adaptarse a diversos contextos geográficos y climáticos.

La ubicación estratégica de las aberturas permite que el aire circule libremente a través de la vivienda, reduciendo

PLANTA BAJA
PLANTA TECHOS CORTE
VISTA CONTRAFRENTE
VISTA FRENTE

la acumulación de calor en verano. Esta estrategia, complementada con el uso de patios interiores y exteriores, asegura una ventilación e iluminación naturales, maximizando el confort con un bajo impacto ambiental.

El patio central no solo aporta luz a los ambientes interiores, sino que también actúa como un regulador climático, reduciendo las temperaturas internas al generar corrientes de aire. Este diseño dialoga con principios de la arquitectura vernácula, donde los patios han sido históricamente utilizados para mejorar las condiciones de habitabilidad en climas cálidos.

CONCLUSIÓN.

La propuesta de esta vivienda modular y expandible refleja una nueva manera de concebir la arquitectura residencial, especialmente en el contexto contemporáneo de concursos que priorizan la eficiencia, la flexibilidad y la respuesta a las necesidades particulares de los usuarios. Este tipo de proyectos no solo se limita a construir espacios habitables, sino que plantea una reflexión más profunda sobre la relación entre la arquitectura, los recursos disponibles y las expectativas cambiantes de las personas que habitarán estos espacios. En este sentido, el diseño modular se convierte en una herramienta clave para abordar los desafíos sociales, económicos y espaciales de las viviendas actuales.

La modularidad no es simplemente una estrategia constructiva, sino un concepto que responde a la idea de una arquitectura dinámica y adaptable. En el caso de esta vivienda, el uso de una modulación precisa no solo permite optimizar los recursos en la etapa de construcción, sino que establece

un marco claro y ordenado que facilita futuras ampliaciones o remodelaciones. Esto resulta especialmente valioso en un contexto como el de Benito Juárez, donde las condiciones económicas y las necesidades habitacionales pueden variar significativamente a lo largo del tiempo.

Por otro lado, el hecho de que esta vivienda se desarrolle como parte de un concurso introduce una dimensión colectiva y participativa al diseño arquitectónico. Este tipo de iniciativas no solo exploran nuevas formas de habitar, sino que también abren la puerta a debates sobre el acceso a la vivienda y el papel de la arquitectura en la mejora de la calidad de vida de las personas. En este caso, la elección de un sistema modular y expandible no solo responde a las necesidades individuales del usuario sorteado, sino que plantea un modelo replicable, adaptable a distintas situaciones y contextos, convirtiéndose en una herramienta valiosa para abordar el déficit habitacional en otras regiones.

En conclusión, esta vivienda modular y expandible es una declaración de principios sobre cómo deberíamos diseñar en el presente pensando en el futuro. Su capacidad para adaptarse, crecer y transformarse en función de las necesidades del usuario final la convierte en una pieza de arquitectura profundamente humana, donde la técnica y la estética se ponen al servicio de la funcionalidad y la habitabilidad. Este tipo de propuestas no solo construyen viviendas, sino que generan ideas, reflexiones y posibilidades para repensar la arquitectura como una disciplina que responde, de manera ética y sostenible, a las necesidades cambiantes de las personas y su entorno.

Turn static files into dynamic content formats.

Create a flipbook
Issuu converts static files into: digital portfolios, online yearbooks, online catalogs, digital photo albums and more. Sign up and create your flipbook.