


























































































































































































“El barrio de Itaim, cercano a la Avenida Faria Lima, está experimentando una profunda transformación. La antigua ocupación de pequeñas casas de dos plantas ha sido sustituida por torres. El proyecto busca insertarse en este contexto como una forma de mediación entre diferentes tiempos (…) Establecer un nuevo padrón de urbanización, deseable en una ciudad cuyos espacios públicos están descuidados, podría ser una regla” _De la memoria de los autores del edificio residencial Huma Itaim
“El edificio materializa un modelo de densificación urbana que, desde un posicionamiento contemporáneo, integra y ecualiza las demandas de una ciudad mediana en crecimiento con las tradiciones e inercias sociales de sus habitantes, los potenciales usuarios del edificio.
A través de la proposición de patios terrazas el edificio recupera y actualiza, para la tipología de vivienda en altura, las formas del habitar propias de las ciudades de provincia donde el disfrute del exterior y la interacción entre vecinos caracterizan el estilo de vida”
_De la memoria de los autores del edificio Damero
Utilizar recortes de las memorias de los autores de las obras que se publican en cada fascículo mensual, se ha convertido ya en una práctica habitual. Lo hacemos sabiendo que no hay mejores palabras que las elegidas por los propixs proyectistas para comunicar ideas, inquietudes, miradas sobre la ciudad que se construye sin pausa día a día. Estos recortes no son aleatorios, desde ya. Expresan, invariablemente, una toma de posición de quienes integramos el Consejo Editorial de la publicación. Es este sentido, la pertinencia -física y programática- de una obra a un sitio específico, la economía en el uso de recursos -proyectuales y materiales- y la reflexión cuidada respecto del devenir de la ciudad son, a nuestro criterio, parámetros inescindibles de la eficacia de cualquier propuesta disciplinar. Creemos que estos tópicos están presentes, con mayor o menor intensidad, en cada una las obras que estamos publicando, que sus proyectistas han comprendido que la dinámica del mercado inmobiliario no puede -ni debe- entrar en contradicción con las demandas de un mejor vivir urbano. Edificios altos -o muy altos-, solitarios en entornos residenciales de uno o dos pisos -a lo sumo- son parte de un paisaje al que estamos acostumbrados desde hace ya mucho tiempo. Son disruptivos ciertamente, pero como hechos instalados, nos interpelan acerca de cómo operar con ellos -y sobre ellos-, asumiendo que ya no hay ciudadanxs indiferentes o mal informados que acepten sin más el deterioro de sus entornos más cercanos, y no tanto. Cabe preguntarse -no sin ironía-si es aceptable que un árbol añoso sea reemplazado por una torre de viviendas o que la super-
ficie absorbente de cada solar se reduzca más y más, en nombre de la necesidad de ampliar las capacidades de estacionamiento; y todo ello, sin contraprestación alguna. No se trata de ocultar el sol con las manos y desconocer que nuestras ciudades crecen a ritmo veloz. Se trata, más bien, de encontrar un marco razonable para que ello suceda sin que sea solo la ley de la oferta y la demanda la que decide. Seguramente muchxs de ustedes dirán que para ello es necesario un nuevo marco normativo como condición única e indispensable. Parte de la razón los asiste, sin lugar a dudas, pero solo en parte. Hay un mientras tanto al que dar respuesta, que debe ocupar nuestra práctica profesional y que ya no puede ceñirse solo a los límites de las parcelas en que nos toca operar. Desde la envolvente diseñada para el edificio Damero, en la ciudad de Campana, pasando por el edificio Royal Park, que recupera un viejo proyecto inconcluso en el centro de la ciudad de Mar del Plata, hasta el edificio Huma Itaim en San Pablo, comparten una lógica similar en cuanto a las estrategias que utilizan para abordar sus contextos urbanos. Unos con más recursos, otros con menos, comprenden que la ciudad es un entramado en delicado equilibrio, construido con más sabiduría de la que se admite, que es patrimonio de todxs, y como tal, no admite intervenciones arbitrarias. En este punto, si bien la vivienda colectiva en altura ha ido incorporando -hacia su interior- los nuevos programas contemporáneos del habitar con relativa facilidad, no ocurre lo mismo cuando le toca dialogar con los entornos urbanos que inevitablemente altera. Como sabemos, las innovaciones tecnológicas y materiales están al orden del día en nuestra práctica profesional, como lo muestran los edificios que hoy publicamos. Nos resulta más difícil cuando se trata de entender demandas sociales de nueva generación, vinculadas al uso contemporáneo del espacio público y al acceso universal a los servicios básicos urbanos. Es allí donde la formación técnica convencional no alcanza, si no está asociada a intercambios interdisciplinares más intensos, que permitan ampliar el horizonte de comprensión, no ya a los especialistas, sino a los arquitectos de a pie, quienes tienen la responsabilidad de la construcción cotidiana de nuestras ciudades.
Hemos publicado hasta aquí seis fascículos CAPBA en este nuevo formato digital, con más preguntas que certezas, satisfechos por la aceptación que han tenido. Como todo proyecto que comienza, requiere revisarse paso a paso para conservar -y ampliar- los espacios de comunicación e intercambio con nuestros matriculadxs. En eso estamos, en eso seguimos, en eso seguiremos, convencidos que la práctica profesional en nuestra provincia es mucho más rica que lo que suponemos, que requiere revisitarse para tomar conciencia de su valor, que lo nuevo que se está construyendo anticipa un futuro auspicioso, si es que no olvida sus referencias previas y el sentido crítico sobre esa experiencia.
STAFF CAPBA FASCÍCULOS
Propietario Colegio de Arquitectos de la Provincia de Buenos Aires
Director Arq. Ramón Rojo
Consejo editor Arqs. Juan Carlos Sánchez y Mario Pérez
Direccion de arte y diseño Estudio RO-K
Producción publicitaria Arq. Máximo Frederic
En 1948, se sanciona la ley que habilita la subdivisión en propiedad horizontal y la adquisición de unidades propias en los inmuebles de vivienda multifamiliares. Hasta ese momento, el Código Civil prohibía expresamente dicha posibilidad y solo se admitía un solo dueño por edificio, provocando el auge de los conventillos y casas de renta que, para distintos sectores sociales, ofrecían cuartos o departamentos en alquiler. A partir de mediados del siglo pasado, entonces, la expansión urbana en altura, la intensa densificación de áreas centrales en todo el territorio bonaerense -si bien inició con la nueva normativa- es un proceso que el incremento poblacional, el aumento del valor del suelo y las consecuentes inversiones inmobiliarias, y los cambios culturales en cuanto a las modalidades de habitar se encargaron de multiplicar en forma exponencial.
En los años ´50 y ´60, las manzanas céntricas de las localidades del AMBA comienzan a poblarse de edificios que rondan los diez pisos, con basamentos comerciales y nuevas tipologías y características para los edificios -torres entre medianeras y, más tarde, exentas- y para sus unidades funcionales -espacios mínimos, deficientes condiciones de ventilación e iluminación, baja calidad constructiva en muchos casos-. El desarrollo es intenso hasta los años ´70: a partir de esta década, se ralentiza, y hacia los años ´90, el auge de las urbanizaciones cerradas competirá en algunos municipios con la densificación de las centralidades.
Con el crecimiento económico que acompaña los primeros años del nuevo siglo, después de la crisis de 2001, la ocupación de las áreas centrales por la vivienda multifamiliar de alta densidad es una tendencia definitivamente consolidada en toda la Región Metropolitana. Esta transformación, positiva en algunos aspectos, también provoca conflictos: aumento exponencial de vehículos particulares, escasez de estacionamientos, desplazamientos lentos y engorrosos en las manzanas del casco céntrico. La polución ambiental, los ruidos molestos, el exceso de peatones en horas pico, son problemáticas que también afectan a los residentes de los edificios en altura.
No se trata de una singularidad propia del Buenos Aires metropolitano: la torre o el bloque de alta densidad ocupan rápidamente un lugar central en el desarrollo urbano de las ciudades bonaerenses más populosas, e incluso, son tipologías con presencia cada vez más significativa en la trama urbana de ciudades medias de 50.000 a 150.000 habitantes.
Valga un ejemplo paradigmático. Mar del Plata cambia rápidamente su fisonomía urbana en dos décadas, de los ´50 a los ´70: en este último año, ya se había demolido más del 70% del casco céntrico y construido miles de departamentos, utilizados especialmente en la temporada veraniega: en 1970, cincuenta mil departamentos estaban desocupados en invierno. La edificación en altura bordeando la costa se repite en muchas ciudades turísticas atlánticas, provocando falta de asoleamiento en las playas céntricas e inconvenientes con el tránsito automotor. Por otro lado, con el auxilio de Google, se puede obtener una impresión respecto a las ciudades medias de la llanura y las sierras pampeanas: la propiedad horizontal aparece disper-
sa, en muchas ocasiones, en el tejido central, sin indicios que tienda a consolidarse en un área determinada. En algunos casos, los edificios en altura rodean la plaza central y/o se localizan sobre un boulevard o una avenida. En las ciudades pequeñas, la vivienda multifamiliar en altura es mucho más escasa, y solo en algunas de ellas es posible encontrar uno o dos edificios de este tipo.
PROPIEDAD HORIZONTAL BONAERENSE.
En las páginas que siguen, se presentan cinco obras -una sexta localizada en San Pablo- que intentan representar, con las limitaciones del caso, el despliegue geográfico de la propiedad horizontal de alta densidad en una provincia como la bonaerense: los proyectos se sitúan en el Conurbano y en ciudades del interior provincial de distinta magnitud.
Más allá de su localización y alguna impronta particular, las obras presentan una serie de búsquedas comunes que aportan a una caracterización contemporánea, aquí y ahora, de la vivienda multifamiliar de alta densidad.
En primer lugar, los autores destacan la singularidad de la multivivienda: es un negocio inmobiliario, del cual los desarrolladores intentan obtener la máxima renta. En algunos casos, la pequeñez del lote y los límites que imponen los códigos -no siempre actualizados como sería de esperar-, agregan desafíos a la hora de proyectar.
Sin embargo, hay unanimidad: debe haber un equilibrio entre la buena arquitectura y las mejores condiciones de habitabilidad posibles, la rentabilidad y la normativa. Y con esta intención inicial, los proyectos desarrollan ideas que, se presume, representan expectativas e intereses de un usuario que, en este caso y como una dificultad más, es anónimo.
En segundo término, en las obras que integran este fascículo, el departamento, la unidad funcional, ofrece, o se acerca al menos, la calidad de vida de una casa unifamiliar: correctas condiciones de iluminación y ventilación natural, expansiones exteriores -balcones y terrazas de dimensiones generosas-, con el plus de buenas visuales, instalaciones y espacios comunes, variables según los casos, que suplantan lo que la superficie acotadas de un departamento no puede atender: el gimnasio para una rutina diaria, el SUM para un evento familiar, la piscina que se agradece en un clima casi subtropical, la cochera bien a mano.
Un tercer punto es la materialidad. Si bien el hormigón es la alternativa estructural excluyente, las estéticas resultantes son disímiles: hormigón visto y vidrio, texturas de llenos y vacíos en ladrillo también visto, paramentos revocados o revestidos, placas exteriores corredizas. Todo un repertorio que, en conjunción con la morfología adoptada, dialoga con el entorno urbano, de acuerdo con lo que manifiestan los proyectistas en las memorias.
La vivienda multifamiliar en altura parece constituirse, con miras a futuro, como la tipología residencial más flexible para introducir innovaciones que mejoren la calidad de vida de sus usuarios y contribuir a construir una ciudad densa y compleja, una ciudad que proponga mejores y más sustentables estándares de vida a sus ciudadanos.
ARQUITECTAS
FICHA TECNICA
SEÑORITAS CAROLINA ROUAUX Y FLAVIA ORTIZ /
INGENIEROS JORGE Y SANTIAGO MAIZTEGUI (ESTRUCTURALISTAS) /
ARQUITECTO LUIS BARANDIARAN (FOTOGRAFIA)
Pensar en vivienda es pensar en ciudad, como un par indisoluble. Como estudio, nos preocupa pensar la vivienda contemporánea con todo lo que ello implica: conformar nuevos programas, entender nuevas formas de apropiación y uso acordes a los nuevos modos de habitar, encontrar nuevas articulaciones, en síntesis, ir en búsqueda de mejores proyectos que interpreten y traduzcan en “arquitectura” las necesidades del mercado sin que ello implique una renuncia a búsquedas arquitectónicas y urbanas que aparecen como obsesiones o marcas a lo largo de toda la producción del estudio.
UBICACION CALLE 50 N°1426 /
PARTIDO DE LA PLATA
SUPERFICIE LOTE 220,27 M2
SUPERFICIE CUBIERTA 1165,25 M2
SEMICUBIERTA 237,21M2
FECHA DE FINALIZACION 2018
A lo largo de estos años, hemos llevado a cabo “tácticas de infiltración”, entendiéndolas como maneras de actuar dentro de la ciudad existente, intentando sacar ventajas de oportunidades desaprovechadas, completando tejido urbano y colaborando en la consolidación de nueva vida en barrios adormecidos. Pensamos al edificio como una superposición de viviendas urbanas en altura francamente relacionadas con el exterior a través de grandes ventanales, balcones y terrazas, entendiendo el potencial espacial más allá de la envolvente exterior, superando así la encrucijada claustrofóbica del típico departamento urbano. Buscamos que el proyecto trascienda la necesidad de maximizar la rentabilidad económica y las limitaciones que las regulaciones imponen hoy. La búsqueda espacial, la contundencia formal, la rigurosidad geométrica, la racionalidad estructural, el trabajo de luz y la perfección del detalle aparecen como constantes que se verifican a lo largo de ésta y de todas las obras del Estudio. Esta visión de la obra construida, muestra los principios que han definido y definen nuestro accionar arquitectónico y que
sustentan la concreción de los proyectos. Por un lado entendemos como punto determinante para la concreción del proyecto y como invariante en el proceso de diseño, al desarrollo exhaustivo del proyecto ejecutivo, que abarca los aspectos constructivos, de programación y de ejecución de obra, como único instrumento que garantiza la adecuada materialización de las ideas.
Por otro, apuntamos a la priorización del detalle en su sentido más amplio: por un lado, aquel que se independiza de las cuestiones más generales del edificio al que pertenece, y por otro, aquel que parece inseparable de él. Ambos aspectos hacen posible la factibilidad técnica de la obra, evitando arbitrariedades e improvisaciones.
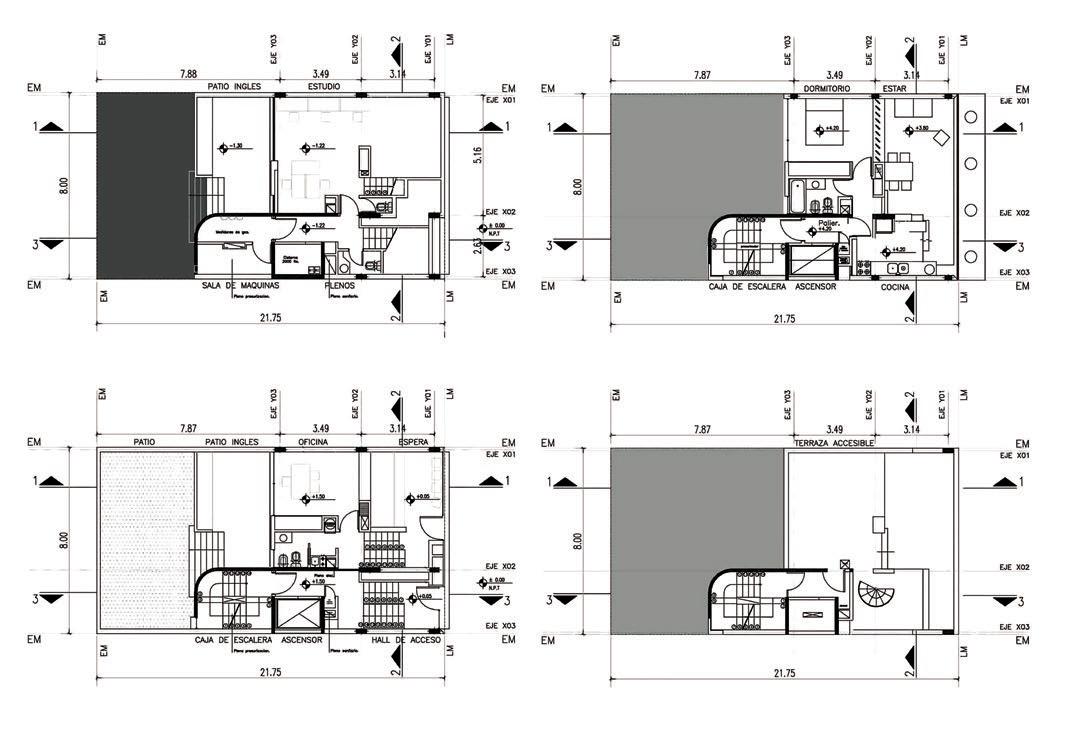
El edificio de viviendas está ubicado en un lote con características particulares dentro del casco de la ciudad de La Plata: primero, por tratarse de un lote triangular en esquina, y segundo, por la presencia del Parque San Martín como importante vacío urbano o área de valor paisajístico.
Una de las primeras decisiones fue la creación de un patio o atrio de entrada, de forma de crear un umbral urbano entre lo público y lo privado.
Ante este planteo de liberar la esquina, sumado a la condición natural del patrón urbano (consolidación de la línea municipal), una de las primeras acciones fue la yuxtaposición de un volumen central que contiene el núcleo circulatorio con bandejas horizontales que alojan las viviendas y que se adueñan de las
vistas privilegiadas del lugar. Esta operación no solo abre la perspectiva al parque como principal protagonista sino también ayuda a aligerar su presencia en la visión que se obtiene desde el parque al edificio (la visión desde allí es de un cuerpo anguloso que aumenta la verticalidad y el carácter plano del edificio). Entre ambos volúmenes se conforma otro vacío definido como pulmón verde del conjunto, potenciado por la permeabilidad visual que la planta libre genera entre ambas calles. El proyecto está organizado a partir de una planta baja libre que oficia de ingreso y cocheras, un desarrollo de siete plantas que concilian cinco niveles de semipisos y dos niveles de viviendas de mayor metraje. Como remate, se propone una planta pública que aloja un salón de usos múltiples, solárium y pileta.
El diseño estructural adoptado responde a una estructura independiente, que resuelve grandes voladizos a partir de considerar que la estructura trabaje espacialmente y no como elementos aislados. Los voladizos se resolvieron a partir de losas apoyadas en vigas y ménsulas, planteo que resultaba más rígido que si las losas fueran en voladizo, en tanto que el tabique del ascensor es el elemento principal que toma los esfuerzos laterales originados por la acción del viento.
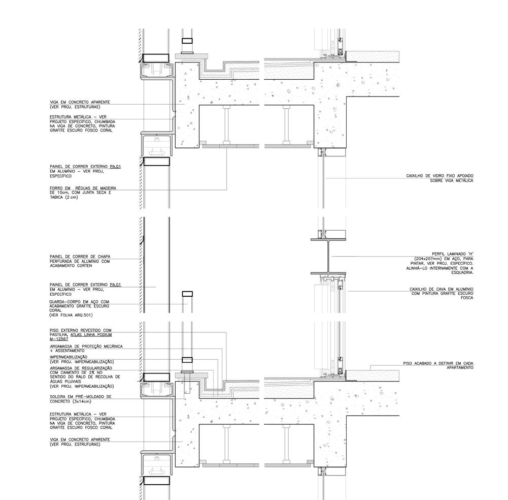
La imagen del edificio está confinada entre las vigas perimetrales, que por momentos se convierten en parapetos, y una combinatoria de carpinterías y postigos de chapa, que le otorga al edificio una imagen evanescente.
Estos paneles controlan la luz, la privacidad y el registro desde la calle, configurando una fachada siempre cambiante en función de los usos generados por los habitantes.
AUTOR ARQUITECTO FRANCISCO S. M. CADAU
COLABORADORES PATRICIO CANTLON, VICTORIA DELLA CHIESA, ANDRES MILOS, DIEGO
VALENZUELA, FEDERICO CIONE, ANDREA LANZIANI Y JORGE PRIETO
FICHA TECNICA
UBICACION SAN MARTIN 777 / CAMPANA
SUPERFICIE LOTE 599,96 M2
SUPERFICIE CUBIERTA 1.649,20 M2
SEMICUBIERTA 184,82 M2
FECHA FINALIZACION 2012
El programa de una vivienda multifamiliar de 20 unidades se desarrolla en un lote céntrico, ubicado sobre una de las calles paralelas a la avenida principal, con frente a un gran vado urbano que permite visuales largas desde la parcela y vistas francas desde la avenida.
El edificio Damero se organiza a partir de un basamento extendido en todo el terreno y de un cuerpo principal, de cinco niveles, concentrado sobre la parte frontal de la parcela. El basamento presenta dos sectores: sobre el frente, resuelve los accesos vehiculares y peatonales, y sobre el fondo, organiza dos niveles de cocheras (cubiertas semi soterradas y descubiertas semi elevadas).
El cuerpo principal es un volumen exento con retiros perimetrales variables: sobre el frente, un jardín de acceso, que preserva el pino existente, retira el volumen aproximándolo a las líneas de edificación de las casas linderas y atenúa su impacto a escala peatonal; sobre los laterales, retiros mínimos posibilitan iluminar y ventilar servicios y circulaciones comunes; y sobre el contra-frente, un amplio patio- plaza recrea las condiciones del espacio urbano y permite conservar un añoso árbol de palta. Internamente, el volumen se estructura a partir de una doble crujía de viviendas con patios-terrazas sobre el este y al oeste, que aprovechan las vistas a la avenida y al centro de manzana, y con el núcleo de circulaciones verticales, escalera y
ascensor, sobre el lateral norte. Una serie de operaciones indexan las diferencias programáticas y contextuales, complejizando la volumetría inicial: sobre el frente y contra-frente, la repetición vertical alternada de las viviendas organiza un patrón en damero de patios-terrazas y vanos que enfatiza el carácter masivo del volumen, a la vez que configura una textura a escala urbana; sobre los extremos diagonalmente opuestos de estas caras, dos ligeros chanfles le hacen lugar a los arboles existentes y suavizan las esquinas del volumen.
Sobre el lateral norte, la mitad delantera del plano se orienta ligeramente hacia el este, permitiendo visuales hacia la calle desde las circulaciones comunes, a la vez que estiliza la proporción de esa cara; en la parte superior del volumen, el achaflanado perimetral del paramento configura una suerte de mansarda que resuelve la baranda de la azotea y da coronamiento al edificio contra el cielo.
La envolvente se resuelve íntegramente en ladrillo, material de amplia y extensa difusión en la cultura de la región, que constituye una solución técnicamente confiable, económicamente asequible y ambientalmente sustentable.
El mampuesto utilizado es un ladrillo macizo tipo vista de geometría regular y color naranja rojizo con partículas de mica, que le imprimen sutiles brillos superficiales. Sus dimensiones
son 24 centímetros de soga, 11 de tizón y 5 de grueso. El trabajo de las mamposterías a la vista se organiza a partir de variaciones sobre el aparejo tradicional de soga y transiciones entre los aparejos tradicionales de soga y tizón, configurando una envolvente continua de textura y permeabilidad variable. Esta envolvente sistematiza e integra, sin solución de continuidad dentro de un patrón complejo, muros macizos de soga y muros cribados de soga y soga y tizón alternados, así como toda la gama de organizaciones intermedias descriptas en el pasaje continuo entre unos y otros.
Las variaciones de textura y permeabilidad permiten controlar diferencialmente las visuales y el asoleamiento sobre muros y ventanas y, por otra parte, al incorporar transparencias, luces y sombras, matizan las superficies a la vez que describen virtualmente figuras que se complementan con las oquedades de los patiosterrazas, complejizando el patrón en damero del edificio.
La obra materializa un modelo de densificación urbana que, desde un posicionamiento contemporáneo, integra y ecualiza las demandas de una ciudad mediana en crecimiento con las tradiciones e inercias sociales de sus habitantes, los potenciales usuarios del edificio.
A través de la proposición de patios-terrazas, el edificio recupera y actualiza, para la tipología de vivienda en altura, las formas del habitar propias de las ciudades de provincia, donde el disfrute del exterior y la interacción entre vecinos caracterizan el estilo de vida.
CORTE LONGITUDINAL
AUTOR ARQUITECTO GABRIEL DE LEON
COLABORADORES/AS ARQUITECTO MARCOS
MARGNI Y ARQUITECTA MIRELLA VILLANUEVA
FICHA TECNICA
UBICACION 41 E/ 13 Y 14, Nº 923 / LA PLATA SUPERFICIE LOTE 119,50 M2
SUPERFICIE CUBIERTA Y SEMICUBIERTA 405 M2 FECHA FINALIZACION 2012
Desde el inicio, el deseo arquitectónico fue cómo elaborar una obra que tenga calidades espaciales y estéticas sobre un pequeño lote de la zona peri-central de la ciudad de La Plata, los que normalmente son utilizados para especulaciones inmobiliarias o meros apilamientos de departamentos.
La estrategia de diseño fue recurrir a nuestras herramientas como arquitectos, para poder conceptualizar y sintetizar cada tema; en este caso en particular, donde los márgenes son acotados, tratar de ser equilibrado en cada una de las decisiones de proyecto. Como primera medida, “el corte espacial-tecnológico” (donde se utilizan los 40 centímetros de la viga central, llevando la losa del dormitorio a su filo superior y la del estar al inferior) generó un desnivel de dos escalones que permitió captar la mejor orientación, ventilaciones cruzadas y transparencias, que filtradas por unas tablillas móviles de madera, permiten una fluidez controlada del espacio de la vivienda.
Por otro lado, “la planta funcional”, donde la posición del núcleo vertical permite que los usos de la vivienda sean más concentrados, para convocar las relaciones planteadas entre los espacios, potenciadas por el aporte del exterior, donde la liberación de los ocho metros de frente hacen del sector social un gran mirador a la ciudad.
La materialidad está planteada por medio de esta estructura arquitectónica dominante, expresando sus componentes en el exterior con elementos autónomos, permitiendo descomponer la masa del edificio en planos de hormigón visto, mampostería y cristal, caracterizando su perímetro. En los interiores, con el mismo concepto, incorporando elementos de madera y los cortinados para darle un clima de calidez, donde la planta abierta le incorpora una sensación de amplitud que es muy importante para el espacio doméstico.
En planta baja, un pequeño hall de acceso y el local están unificados por una losa perforada que vuela sobre la vereda para controlar la escala peatonal y, a la vez, le da autonomía al nivel cero semipúblico, del desarrollo del edificio en altura. En el contrafrente, un pequeño jardín dominado por el volumen curvo de la escalera, que a la vez es un elemento expresivo por su condición plástica. Este edificio, aparte de lo anteriormente expuesto, fue pensado como una propuesta de vivienda en altura para el mercado platense, donde “austeridad formal, solidez constructiva y una espacialidad particular” sean los parámetros de diseño que lo caracterizan.
AUTORA/ES ARQUITECTA MARIA HAYDEE PEREZ MARAVIGLIA Y ARQUITECTOS JERONIMO MARIANI Y OSCAR CAÑADAS, CESAR DAMONTE Y OSCAR DI CESARE
COLABORADORA/ES ARQUITECTA CHARO RODRIGUEZ
JUNQUERA Y ARQUITECTOS CARLOS STANTIEN, DIEGO
JUAREZ Y SERGIO SELICKI / INGENIEROS JUAN PABLO SANMARTANO VIÑUALES Y ROBERTO CARRETERO
La manzana del proyecto está ubicada en un sitio geográfico de la ciudad de superlativa significación histórica y alto valor urbano. Precisamente, la loma donde Patricio Peralta Ramos construyera, entre 1865 y 1873. una capilla en memoria de su mujer, que no solo bautizaría a la loma, sino que con su fachada delinearía una de las direcciones con las que el ingeniero Chapearouge trazaría las calles del nuevo pueblo de Mar del Plata. La densidad histórica de esta área fundacional, la ubicación estratégica de la manzana del proyecto en cuestión, frente a la huella del arroyo Las Chacras, hoy Diagonal Alberdi, y su cercanía respecto del centro cívico, como de las playas, le otorgan características singulares y valiosas. Las calles Santiago del Estero, Santa Fe y 9 de Julio, completan los límites de la misma. Han existido secuencialmente, distintos emprendimientos hasta que aparece en el año 1903 la familia Rubertis, y refunda el lugar con un edificio, al que nombra Hotel Royal. Nombre que atraviesa el siglo XX, con distintas intervenciones, como la que sin concluir, y abandonada desde fines de los 70, hiciera la UOM. Esta estructura con 40 años de existencia, paralela a la calle Santiago del Estero, con un nivel de deterioro en apariencia significativo, es donde el estudio centra su primera actuación, y desde la que moldea el proyecto denominado por los actuales desarrolladores “Royal Park”. Con la dinámica incierta y compleja del momento histórico de la construcción, para el desafío de intervenir sobre una manzana completa, el estudio originó una serie de esque-
FICHA TECNICA
UBICACION MANZANA DELIMITADA POR DIAGONAL
J. B ALBERDI Y CALLES SANTIAGO DEL ESTERO, SANTA FE Y 9 DE JULIO / MAR DEL PLATA
SUPERFICIE LOTE 5.930 M2
SUPERFICIE CUBIERTA Y SEMICUBIERTA 26.673 M2
FECHA DE FINALIZACION 2021
mas conceptuales y proyectos que trazaban distintos mix de usos, que decantaron en una propuesta de viviendas con amenities similares a los de un hotel y un frente de locales comerciales y oficinas hacia la Diagonal Alberdi. Básicamente, el proyecto puede ser analizado en cinco movimientos o arquipartes, entendiendo este último concepto como una forma de nombrar y separar partes de un todo que se explotan como unidades a proyectar, para luego re ensamblarse, verificar y ajustar, conformando una dinámica que posibilita potenciar en ese ejercicio la totalidad del proyecto. Proyectos de esta escala, de tipología clásica, torre-basamento, permiten gestionar los paquetes programáticos y los resultados morfológicos con mayor control y claridad, entendiendo que un concepto puede ser aplicado a otra parte, como es el de sustentabilidad o la estructura, que en este proyecto era un hecho físico que precedía a nuestra intervención.
El proyecto de la estructura que fuera pensado para un hotel, estaba estructurado con una concepción tipológica moderna de basamento y torre. Se desarrolló una ingeniería de diagnóstico, para conocer el estado de una estructura de más de 40 años y las acciones de remediación, que gravitaron en torno a optimizar la función de la estructura con reparaciones y refuerzos tendientes a poner a la misma bajo la normativa que incorpora el viento como una de las variables de cálculo. El diseño de la planta estructural se ajustaba al programa arquitectónico
hotelero, con una grilla modular en doble crujía, con habitaciones con sus baños, un pasillo infinito y un núcleo vertical.
2/ VOLUMEN DE VIVIENDAS
Este volumen tiene catorce pisos, un largo pasillo y un único núcleo. La primera decisión fue organizar una planta de arquitectura reglamentaria, sumando otro núcleo de circulación vertical. Esta configuración produjo dos torres apareadas, situación que jerarquizó los departamentos y determinó plantas de ocho departamentos a cada lado. La modulación previa y ocho tabiques estructurales determinaron una constricción proyectual a priori, que sin embargo posibilitó el diseño de unidades de distintos metros, repartidas entre las mono-ambiente y las de dos y tres ambientes.
3/ BASAMENTO
Determinado por alturas y espacios para las funciones de un hotel, se reconvirtió y refuncionalizó por completo. El nivel cero del proyecto, dispuesto frente a Santiago del Estero, se convirtió en el hall de acceso a los departamentos. Y en el frente del basamento, que da a Diagonal Alberdi, se dispusieron una secuencia de locales comerciales/oficinas. El gran hall de 350 metros cuadrados, con una marquesina de 35 metros que lo enmarca, ha sido espacializado en base a practicar unas perforaciones en la losa del nivel +3.10, que permiten jerarquizarlo y dotarlo de la escala que requiere el mismo. La pretensión de emular un lobby de hotel, conformó un tándem entre diseño y un gran objeto/instalación que actuará como unificador de espacios fragmentados y pieza de arte en sí misma. Esta relación amable con el frente urbano, intenta generar una cuadra que se distinga por su discreción y aporte a una valorización cualitativa de la misma. Completan este basamento una serie de amenities distribuidos en tres niveles. El lavadero y sanitario/vestuarios de personal en el nivel +5.50. Un gimnasio en el nivel -3.00. Y un espacio de relax en doble altura, frente a una pileta semi-olímpica (25 metros) con una batería por sexo de sanitarios, duchas y vestuarios. Completa este nivel -6.30, un baño UMR, un espacio para tratamientos de relax y un salón de usos múltiples. Se destaca que todo el proyecto tiene accesibilidad absoluta a todos sus niveles.
La solución del proyecto necesitaba desarrollar un número determinado de cocheras, relacionar niveles a los que originalmente no se llegaba con vehículos y espacios que, por la disposición del hall de acceso, quedaban cortados al medio por su presencia. Para ello se dispuso un volumen de rampa que completa el basamento, enlazando estos niveles y generando un by-pass allí donde el hall del edificio había seccionado la continuidad de la misma. El desarrollo de la totalidad del proyecto, futura etapa, implicará asimismo la necesidad de nuevas cocheras, que serán servidas desde este mismo elemento de proyecto.
5/ SUSTENTABILIDAD Y COMPROMISO URBANO
La re-utilización de un edificio mediante estrategias de re-habilitación, o la conservación de su estructura base es más sostenible. El uso de la fachada ventilada como sistema complementario de las carpinterías con DVH, confieren a la propuesta un índice de compromiso ambiental en línea con los fundamentos de diseño que el estudio ha puesto en práctica desde los años 70´. Urbanamente, esta pieza busca reconvertir el sino de abandono de la manzana, transformando el pasivo urbano en que había decantado.
El proyecto en números o metros interviene sobre un total de 26.000 metros cuadrados: 11.000 de viviendas distribuidos en 14 pisos de 16 departamentos, 1.000 de espacios comunes, cocheras y servicios, más locales comerciales sobre la Diagonal Alberdi. La fachada ventilada desplegó 7.000 metros cuadrados.
AUTOR ARQUITECTO PABLO PHATOUROS
COLABORADORES HERNAN DE LOS RIOS, PABLO POLACEK Y NICOLAS BENEDETTI
FICHA TECNICA
UBICACION PUEYRREDON Nº 3476
PARTIDO DE SAN MARTIN
SUPERFICIE LOTE 132,09 M2
SUPERFICIE CUBIERTA 616,72 M2
SEMICUBIERTA 184,81 M2
FECHA FINALIZACION 2017
Domo Pueyrredón se sitúa en el centro del partido de San Martín, en un pequeño lote de 10 x 13 metros entre medianeras, con orientación noroeste en su frente. El barrio presenta la zonificación de mayor densidad habitacional del partido, una trama regular con manzanas típicas de 100 x 100 metros y un tejido irregular producto de un incipiente crecimiento de edificios de vivienda entre las construcciones preexistentes de planta baja y un piso. La composición de nuestro edificio es producto de un lote reducido e indicadores urbanísticos densos; sin embargo, estas dos variables por sí solas no producen dicha obra, claramente. La obra es la suma de contrapuntos que pretenden un cierto equilibrio, es un edificio destinado a la inversión inmobiliaria pero no por ello deja de lado la búsqueda de una forma de vida más confortable, respondiendo a principios funcionalistas, entorno y orientaciones. Es simple y complejo a la vez, es racional y moderado, pero plástico, osado y exuberante. Es económico y “costoso”, es de fácil ejecución pero complicado según los carpinteros, es de medidas reducidas pero espacioso. Son múltiples las formas de entrar al proyecto y entre todas ellas se va tejiendo este edificio. La composición del mismo, como decía, es producto de un desarrollo inmobiliario, ajustado por el Código de edificación y sus indicadores urbanísticos, y como el lote es muy pequeño, su optimización marcó algunas pautas que se tradujeron en esta arquitectura. Partiendo de la base de proyectar un edificio de viviendas, la primera decisión proyectual es la de crear una unidad funcional por piso. Esto determina ciertas libertades que, utilizadas
eficazmente, nos brindan espacialidades múltiples, continuidades, luz y ventilación cruzada como principios básicos. Podemos ubicar primero la caja de escalera y ascensor, al fondo del lote, desplazada de ambos ejes medianeros, pero no equidistante, provocando dos patios de características bien diferentes. Hacia el frente dividimos el ancho del lote en tres franjas: la primera, correspondiente al estacionamiento vehicular doble, la segunda, formando una unidad funcional/local comercial, y la tercera definida por el ancho libre resultante que conforma el acceso peatonal.
La ubicación del núcleo va a definir cómo vamos a acceder a cada piso, y esto conllevará la organización de la unidad funcional. La unidad tipo queda recostada sobre la medianera suroeste, formada por dos bahías de 3 a 3,5 metros de ancho, dejando libre una tercera que termina conformando terrazas pasantes, dando al patio y al frente de manera intercalada, orientadas en el cuadrante que toma la luz de la mañana, el mediodía y el atardecer. Estas terrazas de 11 metros cuadrados, “el tercer ambiente”, generan seguramente el acento en el proyecto, ya que su desplazamiento hacia adelante y hacia atrás proporciona un cambio de escala en las mismas al conformarse una doble altura. Más allá de estos desplazamientos, la fachada del edificio mantiene su plomo y con la reducción del tabique de hormigón medianero en pisos intercalados se crea un movimiento inusual en fachada y permite estirar las vistas diagonales desde las unidades. El segundo patio de aire y luz provocado por el desplazamiento de la caja de escalera permite la apertura de un tercer y cuarto cuadrante en la unidad, perteneciente a los lavaderos,
proporcionando ventilaciones cruzadas y el ingreso del reflejo de la luz del atardecer.
La búsqueda constante de sorprender, de motivar los sentidos cuando uno recorre la obra, de tratar de romper los límites establecidos para un departamento tipo de dos ambientes inserto en el tejido urbano tradicional, podríamos decir que son el motor de nuestra constante investigación.
Seguramente, los puntos destacables son la estructura y el lenguaje despojado que proporciona, producto del entendimiento de una economía de recursos más allá de los modismos del hormigón armado, la composición de las unidades funcionales con sus terrazas de doble altura, pasantes y desplazadas, que generan un movimiento atípico en fachada. Se agrega la medianera constituida como parte integral de la estructura, que determina una fachada más hasta que el tejido de la ciudad se complete. También podemos destacar detalles no menores como los maceteros que permiten restringir las visuales cruzadas entre pisos y mantener la privacidad entre terrazas, las bautizadas “hogarrillas”, que incorporan el fuego como el elemento de reunión típico de nuestra cultura, una puerta ventana que se esconde detrás de un tabique, un mismo solado que continua su camino cubriendo toda la superficie del piso hasta la terraza, una viga y su baranda metálica que viajan por todo el frente del lote, y hasta un elemento muy particular como el monta vehículos séxtuple, que permitió cumplir con el Código de edificación, densificar el pequeño lote y que con su caja de aire interior necesaria empuja desde adentro los espacios del edificio y los determina junto con su expresión en fachada, con un muro casi ciego, como si se tratara de un basamento.
AUTORES UNA ARQUITETOS / CRISTIANE MUNIZ, FABIO VALENTIM, FERNANDA BARBARA
Y FERNANDO VIEGAS
COLABORADORES JOAQUIN GAK, JULIA
JABUR, LARISSA URBANO, MANUELA RAITELLI, MARIE
LARTIGUE Y MATHEUS PARDAL
FICHA TECNICA
UBICACION BARRIO ITAIM / SAN PABLO
SUPERFICIE LOTE 1.184,95 M2
SUPERFICIE CUBIERTA 6.943,92 M2
FECHA FINALIZACION 2021
CREDITOS FOTOGRAFICOS BEBETE VIEGAS Y MAIRA ACAYABA
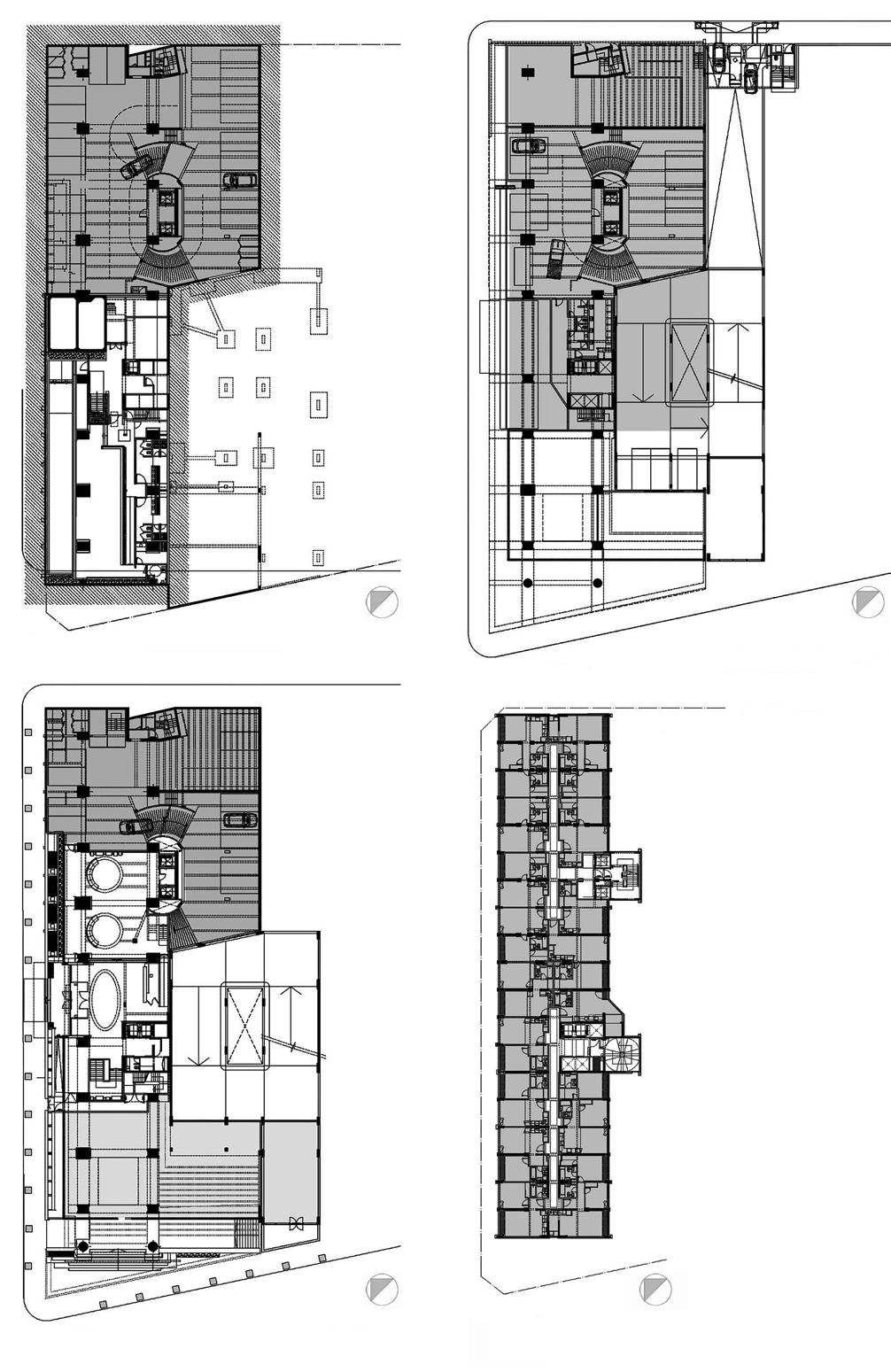
El barrio de Itaim, en San Pablo, cercano a la avenida Faria Lima, está experimentando una profunda transformación. La antigua ocupación de pequeñas casas de dos plantas ha sido sustituida por torres. El proyecto busca insertarse en este contexto como una forma de mediación entre diferentes tiempos. El terreno tiene una ubicación especial: se abre a tres calles e incorpora dos esquinas. En el predio vecino, se localiza una construcción residencial de más de veinte pisos.
La torre propuesta -Huma Itaim- es similar en escala al edificio lindero, pero está apartado de las esquinas. En planta baja, la estrategia de ocupación deja casi el 50% del lote privado como área pública, configurando una plaza que conecta los tres frentes y establece continuidad con las aceras del barrio. La plaza, mitad cubierta y el resto descubierta, está animada por una cafetería, jardines, bancos y una línea de agua. Establece un nuevo patrón de urbanización, deseable en una ciudad cuyos espacios públicos están descuidados, y podría implantar una regla. Se valoran las actividades colectivas: se distribuyen verticalmente y establecen
una comunicación directa con la ciudad.
Sobre la plaza, a una cota de 5,40 metros, hay una planta libre con un huerto colectivo y un jardín para los vecinos. En la misma se instaló un sistema fotovoltaico, generador de energía para el consumo de luz de la plaza, combinado con el sistema solar de calentamiento de agua. El agua desechada en las duchas de las unidades, por otro lado, es captada y llevada a un reservorio subterráneo, donde es tratada para su uso en riego general.
El jardín comunitario fue diseñado por un ingeniero agrónomo especializado en jardines urbanos. El riego por goteo ahorra agua, en tanto que las especies han sido plantadas considerando su ubicación y asoleamiento. Todo el abono se produce con residuos orgánicos de los habitantes del edificio, que se depositan en dos composteras; las tandas de reposición se originan en el vivero.
La torre residencial parte del nivel mencionado, y desde allí se distribuye el resto de usos colectivos. En el sexto piso, frente a la calle comercial más concurrida, se encuentra el gimnasio de doble altura, visible desde la acera. En el piso 18 se localiza un
salón de eventos, también con doble altura, un espacio para reuniones a 55 metros de la calle, abierto a la ciudad. Desde la distancia, visto desde muchos puntos de la metrópolis, es posible observar, cuando se da la ocasión, que en la cúspide se desarrolla un evento. Por último, piscina y sauna en la azotea, en la parte superior, donde hay más sol, cielo y vistas.
La organización de los pisos permite flexibilidad para diferentes configuraciones de los departamentos, previamente diseñados. Unidades individuales pequeñas, dúplex más grandes, ambas tipologías unidas horizontalmente -una individual con un dúplex-, o incluso dos individuales. Con estas posibilidades, es factible acomodar a familias de diferentes tamaños.
En el lado oeste, junto al edificio en altura vecino, se instaló la torre de circulación; las otras fachadas, abiertas a la calle, son balcones continuos. El clima de San Pablo hace apropiado este espacio intermedio entre el interior y el exterior: protege del sol excesivo y permite una ventilación permanente en días de lluvia. Esta protección se ve reforzada por los paneles deslizantes de chapa perforada, que configuran la fachada en función de su propio movimiento y la variación de altura de las viviendas.