

![]()



November 17, 2025
Attn: Blue Cross of Idaho; Specialty Pharmacy Project Selection Committee
Re: Blue Cross of Idaho Specialty Pharmacy
Statement of Qualification for Architects Design Professional Services
Dear members of the selection committee,
Hummel Architects is pleased to submit our statement of qualifications for professional design services for consideration for the Blue Cross of Idaho Specialty Pharmacy Project.
Hummel Architects specializes in the design of healthcare facilities. Our resume includes a large portfolio of hospitals, surgery centers, and clinic /medical office projects of a variety of sizes with many projects that include both Outpatient and Inpatient Pharmacy departments with experience in both new builds as well as renovations. Our portfolio includes multiple projects that include infusion departments as well as well as staff office programs.
Hummel Architects is a Boise Idaho based architecture and interior design firm that has a strong reputation for delivering successful projects and exceptional services to clients extending back to our firm’s founding in 1896. Hummel has a deep portfolio of completed projects throughout Washington, Idaho, and around the Northwest. The firm’s core markets which we specialize in include healthcare, federal/ state/ local government, university, K-12 education, and the corporate as well as private commercial market sectors.
Hummel’s healthcare team is a group of staff made up of experienced medical planners, architects, and interior designers whose main day-to-day focus is working on healthcare projects. In the last 10 years alone, Hummel’s healthcare team has completed over 1.3 million square feet of healthcare projects for various clients. These include projects across multiple project types and department types of both large and small scales. These include and are made up of pharmacies, labs, office, surgery, imaging, ED, inpatient, central sterile processing, rehab, OB, cardio- respiratory, clinic, as well as other support and ancillary department programs.
Hummel regularly works on projects in the I-2 hospital, B-medical office, and B-ambulatory care occupancy settings and is well versed in navigating all the regulatory aspects, building engineering system aspects, and medical equipment aspects of those similar but unique project types. Our healthcare team regularly navigates and implements the requirements of numerous regulations including NFPA, FGI, CMS, and other federal, state, and local codes that govern healthcare facility design, licensing, and operations.

Our healthcare team actively participates in all stages of project design and delivery spanning from initial space programming, schematics, through the contract documents and construction administration phases. We recognize the importance of effectively collaborating with the various project stakeholders including the client’s team, the engineering consultants, and the various contractors through all project stages. We are experienced in the variety of project construction delivery methods including construction management, design build, as well as the more traditional design – bid- build methodologies.
The information included in this document includes our qualifications and provides you with a detailed overview of Hummel and our healthcare design team’s capabilities. We apricate your consideration and welcome any opportunity to work with Blue Cross of Idaho in the future.
Sincerely,

Zacharia Lester,
AIA | NCARB | Hummel Principal Hummel Architects PLLC
205 N. 10th Street Suite 300 Boise Id 83702
208.830.5549 zlester@hummelarch.com



Originally established as Tourtellotte and Hummel in 1896, Hummel Architects has 129 years of design experience. To this day, we continue to be driven by a standard of precision and excellence, as set up by our founders.
Throughout the decades, Hummel Architects has built a reputation on the design of government, educational, university, municipal, healthcare, and corporate facilities for clients such as Boise State University, Idaho State University, St. Luke’s Health System, and private clients throughout the State of Idaho. Most notably our lineage includes the Idaho State Capitol Building and our work continues to dot nearly every Idaho community and northwestern state.
As responsible leaders with a focus on the future, our functional and high-performance buildings set the example for environmentally conscientious and technologically advanced construction.
Our continued success in the State is a testament to our ability to form relationships and maintain communication with our connections in the building industry—owners, decision-makers in the counties, cities, school districts, universities and institutions, professional consultants, zoning officials, plan reviewers and inspectors, manufacturers, contractors and construction managers. We understand that everyone has a role to play and realizing public projects requires a high level of dedication and commitment to listen, communicate and work collaboratively.
Hummel has developed special expertise in a wide variety of areas that we bring to projects of all sizes. Over the decades, we’ve successfully provided services such as concept design, feasibility studies, interior design, master planning, and architectural visualization.
Our breadth of special expertise includes:
» Planning and Zoning
» Architectural Design
» Interior Design
» Programming
» Sustainable Design
» Master Planning
» Building Evaluation/Code Analysis
» Bond Assistance
» Feasibility Studies
» Energy Efficiency Studies
» Cost Estimating
» Tenant Improvements
» Construction Administration
» Graphic Design
We have experience in a wide range of project types, including healthcare, civic/governmental, higher education, K-12, commercial, and residential/mixed-use.
Boise – Head Office
205 N. 10th Street, Suite 300
Boise ID 83702
Idaho Falls Office
482 Constitution Way, Suite 211
Idaho Falls, ID 83402





ZACH LESTER, AIA, NCARB
PRINCIPAL HEALTHCARE PLANNER
27 Years of Healthcare Experience
» Healthcare design expert
» High quality designs based on patient centered care
» Expert in hospital, surgery center, and clinic project types
» Skilled in healthcare programming, healthcare planning, NFPA life safety, FGI codes
» Excels in finding creative solutions of higher quality and greater value
» With three decades of experience, has completed 70+ healthcare projects across the Northwest

BRIAN COLEMAN , AIA, NCARB
PRINCIPAL
10 Years of Healthcare Experience
» Skilled in healthcare programming and planning
» Specializes in clinics, central sterile processing, surgery
» Leads and coordinates the work of our internal team and all consultants
» Leads project detailing and quality control of our construction documents

MANDY BOAM , NCIDQ, AIA
PRINCIPAL INTERIOR ARCHITECT
19 Years of Healthcare Experience
» Expert in functional space planning and healthcare interior design
» Registered Architect and certified Interior Designer
» Provides high-level leadership for interior design team
» Specialties include community outreach, master planning, programming, space planning adaptive reuse, interior finishes, furniture, and artwork


SCOTT STRAUBHAR , AIA, NCARB PARTNER
20 Years of Healthcare Experience
» Oversees Hummel’s healthcare studio
» Assures projects are properly scheduled, adequately staffed and meeting our client’s expectations
» Specializes in healthcare entitlements
» Responsible party for owner/architect agreements

KRISTEN PATTANI , NCIDQ
INTERIOR
DESIGNER
» Certified Interior Designer
» Specialties include clinics, imaging, pre/post PACU, dental
» Coordinates design with healthcare best practices incorporating FGI regulations, infection prevention, material maintenance, and durability considerations
» Leads interior design on projects from schematic design through construction administration
» Coordinates branding, furniture fixtures, appliances, and signage
» More than 4 years of experience working with large, institutional clients
Hummel’s Healthcare Team includes a bench of a dozen staff dedicated to the healthcare market sector, whose focus is to assist our healthcare clients in planning, designing, and building medical facilities based on a design philosophy of patientcentered care. Our healthcare team brings multiple decades of experience in designing medical facilities. The team has expertise across a broad range of department types and facility occupancy types. The Hummel healthcare team includes staff in architecture, interiors, as well as project coordinator staff.



RENÉE ARTIS
PROJECT MANAGER
BIM DIRECTOR
10 Years of Healthcare Experience
» Specializes in clinics, imaging, surgery, central sterile processing, physical therapy, outpatient pharmacy
» Provides leadership and BIM management for many of our healthcare projects
» Manager of medical equipment models, plans, and schedules
» Leads and coordinates the work of our internal team and all consultants

MEGAN BEDKE , AIA ASSOCIATE
PROJECT MANAGER
9 Years of Healthcare Experience
» Focuses on clinics, imaging, dental, life safety
» Leads and coordinates the work of our internal team and all consultants
» Manages projects from schematic design through construction administration

JOSH HOFFER , AIA ASSOCIATE
PROJECT MANAGER
8 Years of Healthcare Experience
» Leads projects in the Eastern Idaho region
» Focuses on clinics, dental, surgery, central sterile processing, inpatient
» Manages document procurement from schematic design through construction documents


LINDSEY EGBERT , AIA
PROJECT MANAGER
8 Years of Healthcare Experience
» Skilled in the design of surgery and pre/post PACU, clinics, imaging
» Leads small-scale healthcare projects
» Supports staff leadership on projects
» Manages document procurement from schematic design through construction documents


SAMIA AMINA
PROJECT MANAGER
6 Years of Healthcare Experience
» Skilled in life safety & IBC codes, clinics, imaging, surgery, central sterile processing
» Brings expertise in environmental services, conveying equipment, and supply chain distribution and logistics
» Manages document procurement from schematic design through construction administration

ISSAC PRADO
PROJECT COORDINATOR
6 Years of Healthcare Experience
» Manages the construction administration phase of healthcare projects
» Competent with all construction delivery methods, including CM/GC, competitive (hard) bid, CM as advisor, and design/build
» Verifies quality completion and delivery to client
» Well-versed in cloud-based construction software such as Procore and Newforma
» 10 Licensed Architects
» 6 Project Managers
» 11 Architectural Designers
» 3 Interior Designers
» 2 Project Coordinators
» 3 Job Captains
» 4 Operations and Administration
» 1 Technology Specialist
Many of our staff work in multiple disciplines

St. Luke’s Health System
Boise Surgery Center Boise, ID
Temporary MRI Boise, ID
Medical O ce Plaza Fruitland, ID
Cardiac Rehabilitation Facility Boise, ID
Downtown Campus Master Plan Boise, ID
Downtown Medical Center Campus Phase 2 DCIP Boise, ID
Idaho Elks Children’s Pavilion
Center for Orthopedics & Sports Medicine
ID
Critical Access Hospital Replacement Facility McCall, ID
Allen Nokes McCall, ID
Ambulance Shelter McCall, ID
South Meridian Medical O ce Building Meridian ID



We design pharmacies that enable healthcare professionals to reliably and safely provide medications that help patients recover, heal, and manage health conditions.
Whether it’s a robust inpatient pharmacy within a hospital or a small outpatient retail pharmacy, we apply the following design features to create high-quality pharmaceutical spaces:
» Hood Compounding Cleanrooms: Hood compounding cleanrooms contain sophisticated equipment for pharmacists to prepare safe, quality compounding medications for patients. We design cleanrooms to prevent contamination through protective hoods, complex mechanical systems, special surfaces, and proper ventilation. We understand the code requirements when designing these cleanrooms to keep medications safe and sterile.
» United States Pharmacopeia Regulations: Following specific codes and requirements from the United States Pharmacopeia (USP) is critical to adequately protect healthcare workers and patients.
» Storage Solutions: In a pharmacy, every square foot matters. Pharmacies must minimize their footprint, especially within a hospital, while providing ample storage for a variety of medications and products. We design pharmacies with innovative storage solutions, such as mechanized carousels and dense shelving to support a highdensity system that maximizes capacity within a space.
» Automation: To facilitate efficient processes in a pharmacy, we apply automation in certain pharmacy designs. Special technology and automated systems help speed up the process of filling prescriptions. For example, automatic vial dispensers can be implemented to fill and label pill bottles, freeing up time for pharmacists to focus on other important tasks.
» Infection Prevention: Pharmacies must emphasize flow, adjacency, and flexibility to prevent the spread of infections. We always incorporate infection-resistant surfaces throughout the pharmacy.


McCall Memorial Hospital
Inpatient Pharmacy Department

Typically found within hospital environments, inpatient pharmacies are heavily relied on to provide patients with the necessary medications they need for successful treatment or recovery.
For example, inpatient pharmacies play an essential role in oncology departments by providing vital chemotherapy drugs to patients. The medicines used for oncology patients are particularly delicate with short expiration timelines, requiring special equipment and procedures to prepare and administer.
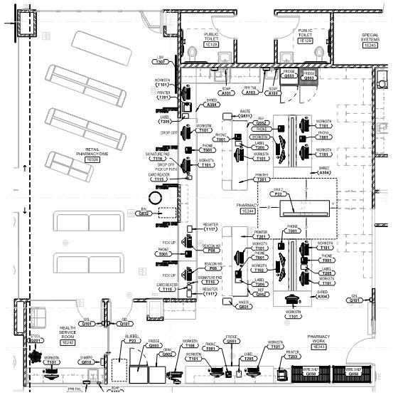
Outpatient pharmacies offer an accessible, convenient option for patients to obtain prescriptions and other medical goods outside the hospital environment. Some hospitals and medical facilities choose to include an outpatient retail pharmacy within their own facility. This service creates additional convenience for patients by eliminating additional stops once they leave the facility. For example, St. Luke’s Health System integrated an outpatient retail pharmacy within their new Center for Orthopedic and Sports Medicine. Patients can obtain their prescriptions, over-the-counter medications, and durable medical goods without leaving the facility, which reduces stress and improves patient outcomes.
Drive-through pharmacies can also provide additional convenience to patients, such as the one we designed for Desert Sage Health Center in Mountain Home, Idaho. Patients can drive up to a window, speak with a pharmacist, obtain their prescriptions, and leave the facility without stepping foot outside their vehicle.

Center for Orthopedic Sports Medicine
Outpactient Pharmacy / Retail Pharmacy







Desert Sage Medical Center
Outpatient Pharmacy / Drive Through Pharmacy


Center for Orthpedic Sports Medicine
Outpatient Pharmacy / Retail Pharmacy





Center for Orthpedic Sports Medicine
Outpatient Pharmacy / Retail Pharmacy


Satellite Pharmacy

Memorial Hospital Inpatient Pharmacy Department
PHARMACY PROJECTS:
Desert Sage Medical Center, Mountain Home ID.
•New 32,000 sf multi-specialty clinic
-Including Outpatient Pharmacy Department 1,420 sf
-Including Drive Through Pharmacy window
St Lukes Downtown Hospital, St Luke’s Health Systems, Boise ID.
•DCIP Existing Hospital East Tower hospital renovation
-Including Inpatient Pharmacy Department renovation 8,797 sf
-Including Outpatient Pharmacy Department renovation 5,908 sf
-Including Inpatient Satellite Pharmacy 709 sf
McCall Memorial Hospital, St Luke’s Health Systems District, McCall ID
•Critical Access Replacement Hospital 80,000sf facility
-Including new Inpatient Pharmacy Department. 1,119 sf
Center for Orthopedic Sports Medicine, St Luke’s Health Systems, Boise, ID.
•Project management and space planning for a new 230,000 sf Surgery center and Medical Office Building facility
-Including Outpatient Pharmacy Department 1,377 sf
-Including Retail Pharmacy 827 sf
Magic Valley Hospital, St Luke’s Health Systems, Twin Falls ID.
•Existing hospital renovation
-Including renovation of Inpatient Pharmacy
Wood River Hospital, St Luke’s Health Systems, Hailey ID.
•Existing hospital renovation
-Including renovation of Inpatient Pharmacy Department 3,663 sf
Genoa Pharmacy, Pittsburg, PA
•Pharmacy tenant improvement 400sf
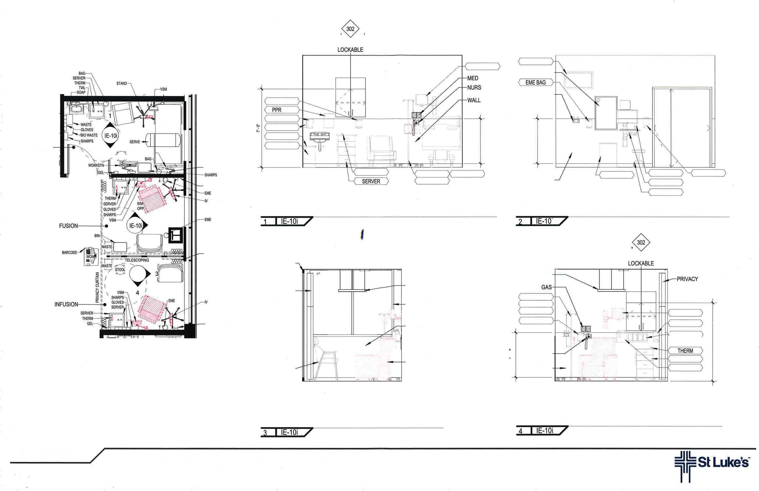
INFUSION PROJECTS:
McCall Memorial Hospital District, St Luke’s Health Systems,
•Critical Access Replacement Hospital 80,000sf facility
-Including Infusion Department 940 sf with three
Magic Valley Hospital, St Luke’s Health Systems, Twin
•Existing hospital renovation
-Including renovation of Infusion Department
Wood River Hospital, St Luke’s Health Systems, Hailey
•Existing hospital renovation
-Including renovation of Infusion Department
Systems, McCall ID
facility three treatment bays Falls ID.
OTHER RELEVANT PROJECTS:
College of Pharmacy Renovation, Idaho State University, Idaho Falls ID.
•Pharmacy/ Lab renovation project 17,500 sf
Leonard Hall Pharmacy Building, Idaho State University, Idaho Falls ID.
•Pharmacy Lab Renovation 2,850 sf

Desert Sage Medical Center
Outpatient Pharmacy / Drive Through Pharmacy


Infusion and oncology treatments are essential for patients battling cancer and other serious conditions, offering life-saving therapies such as chemotherapy, immunotherapy, and intravenous medications. These treatments play a critical role in managing diseases, improving patient outcomes, and offering hope for recovery.
The environment in which infusion and oncology treatments are delivered greatly impacts the comfort, safety, and overall experience of the patient. Hummel’s healthcare design team specializes in designing infusion and oncology rooms that support efficient treatment delivery, enhance patient comfort, and foster a calming, effective atmosphere for both patients and providers.





Steve Sell, Director of Planning, Design and Construction sells@slhs.org, 208.381.7861
Brian Sagendorf, Vice President of Operations sagebria@isu.edu, 208.373.1700
Bernie Babcock, Owner’s Authorized Representative bbabcock@tvcc.cc, 541.881.8822
Matt Mclaughlin D.O matt5757@live.com, 208.667.0621









