Yiben Business Weekly Vol.237

Page 1


红墙映翠意,雅室蕴温馨

Corinda Avenue联排别墅之魅

复式雅境,勾勒惬意生活蓝图; 华居馨域,铺陈逸趣人生锦章

海岸附近计划建造近 500 套新住宅,大规模抢地

房地产学:房价有望在 2025 年疯狂的澳大利亚城市

全国房价两年来首次下跌

AI 可视化 50 年后典型的澳大利亚房屋

阿德莱德房价两年来首次下跌

南澳区域解读 Hazelwood Park SA 5066

昆州区域解读 Sheldon QLD 4157

Copyright Statement

免责声明

Unless otherwise stated, Guiding Star Group reserves all copyright in the content and design of this magazine. Guiding Star Group owns all suck copyright or uses it under license or applicable law. You must not link to, publish, or make any commercial or public use of this magazine or its content, except as permitted by statute or with Guiding Star Group prior written consent. Advertising Terms and Conditions must be in writing 48 hours before copy delaine. All editorials or advertisements appearing in Yiben Weekly magazine are subject to copyright, and cannot be reproduced in whole or in part. No views of information contained in articles and advertisement appearing in Yiben weekly magazine are endorsed by the publisher. The publish reserves the right to refuse, withdraw or amend article or advertisements without explanation. Artworks are accepted on condition that publisher cannot guarantee their safe return, the publisher will not be liable for any damage or loss caused by late publication, error of failure of advertisement to appear. Part of contents from Internet may be credited in Yiben weekly magazine under the creative commons deed ( CC BY-SA 3.0). Should there be any object, please contact Guiding Star Group. Appropriate royalties would be made to the verified author in accordance with relevant laws.

红墙映翠意,雅室蕴温馨

Corinda Avenue联排别墅之魅

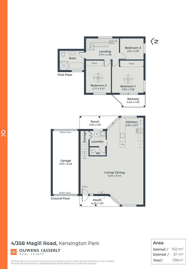
4/358 Magill Road, Kensington Park, SA 5068 隐匿于古雅的住宅群中,这栋坐落于 Corinda Avenue 的联排别墅,以其经典的红砖外立面与 精妙的空间布局,散发出一种低调的优雅与独特 的魅力。红墙外观历久弥新,沉稳中透着温馨, 与周围环境和谐交融,仿佛将现代生活与怀旧气 息完美结合。住宅整体设计巧妙,将功能性与美 观性融为一体,共设三间舒适的卧室,一间宽敞 明亮的浴室,以及一间室内车库,为居住者提供 便利与私密兼具的生活体验。这里既满足了城市 生活的高效节奏,也在繁忙的日常中保留了一份 难得的静谧和安宁。无论是年轻的都市新贵,还

是寻求温馨居所的小家庭,这里都能为他们提供 理想的归宿。

门前的庭院绿意盎然,与古朴的红砖外墙形成鲜 明对比,增添了几分生机与诗意。步入其中,豁 然开朗的内部空间与错落有致的布局,令生活的 每一处细节都显得从容而讲究。这栋联排别墅宛 如城市中的隐秘绿洲,为居住者提供了超越住所 本身的生活方式,一处静心之所,一方温暖家园。

一楼是由餐厅、客厅、厨房组成的开放式生活空间, 宽敞的空间沐浴在柔和的光线之中,每一寸角落

都洋溢着通透与舒适的气息。抬眼看向客厅,一 组优雅的蓝色布艺沙发,正以其简洁大方的线条, 静静地诉说着主人的品味。全屋通铺的木质地板 仿佛古老的琥珀,与整个空间的风格相得益彰, 浑然一体。阳光透过百叶窗的缝隙,洒下斑驳的 光影,为客厅披上了一层朦胧而迷人的面纱。

餐厅位于客厅、厨房之间,一张木制餐桌格调雅 致,最多能够同时容纳数十人就餐。开放式厨房 以浅色为主,与餐厅和客厅完美融合,展现出一 种现代而时尚的家居设计理念。橱柜和台面都采

用了易于清洁的材料,既实用又美观。整个厨房 区域设备齐全,从冰箱、烤箱到微波炉,一应俱全, 满足了日常烹饪的各种需求。在这样的厨房里, 无论是准备一顿简单的家庭晚餐,还是举办一场 盛大的朋友聚会,都能轻松应对,游刃有余。

二楼设有三间卧室,一间浴室。每间卧室都散发 着一种静谧与温暖交织的氛围,好似人们心灵栖 息地。卧室整体以柔和的浅色系为基调,墙壁的 色调平和素雅,搭配简约的装饰画,使空间既清 新又不失格调。床位于房间的核心位置,床铺的

布置干净整洁,覆盖着柔软的床品,浅色的床单 和抱枕与房间整体色调融为一体,给人一种宁静 的舒适感。

在卧室这方独立的小天地之中,无论是清晨被阳 光唤醒,还是夜晚在温暖灯光中入眠,都能给人 以极致的舒适与放松。这里不仅是休息的场所, 更是让心灵沉淀的静谧角落,展现出主人对优雅 与宁静生活的独特追求。

这栋位于 “Corinda Avenue” 的联排别墅,凭

借其恰到好处的设计与氛围,将温馨与品质完美 结合,为居住者创造了一种理想的生活方式。在 这片古雅宁静的住宅群中,远离喧嚣,拥抱温暖, 生活的每一刻都显得如此从容而美好……

详细的住宅参数:

-占地139平方米

- 3间卧室

- 1间浴室

-室内车库

-售价72.5-79.5万澳元

-一楼:设有大型独立洗衣房&卫生间

-低维护花园

-步行即可抵达公园/网球场

-靠近多所学校,包括 Pembroke School

有意请联系:

Will Fitridge:0423479866

Ellie Swan:0403577261

复式雅境,勾勒惬意生活蓝图

华居馨域,铺陈逸趣人生锦章

38 Stadcor Street, Wavell Heights, Qld 4012

-名邸鉴赏-

在繁华都市的一隅,隐匿着一座宛如世外桃源般 的复式住宅,它坐落于郁郁葱葱、风景如画的绿 洲之中,宛如一颗璀璨的明珠,散发着独特的魅力, 将优雅与宁静完美融合,为现代生活重新定义了 舒适与惬意的新标准。别墅占地为647平方米, 拥有3间卧室,2间浴室,4车位,足以满足绝 大多数家庭的需求。

轻推院门,木制步道与繁茂的绿植相互映衬,每 一寸空间都弥漫着静谧的气息,瞬间便扫去了俗 世的烦忧。

移步向前,宽敞的客厅与花园仅一门之隔。透过 实木双折门,客厅全貌尽显。客厅整体风格偏向 现代简约,地面铺设着浅色瓷砖,不仅质感细腻, 还为空间增添了一份清冷而不失高雅的格调。客 厅中摆放着一组皮质沙发,搭配白色圆几与木制 电视柜,色调和谐有致。此外,客厅还与宽敞的 半露天娱乐区紧密相连。露台上设有木制长桌与 户外沙发,可供聚会使用。

拾阶而上,便来到了二楼,首先迎接主人的是餐 厨区域。厨房内20mm厚的石质台面泛着细腻光 泽,宽敞且易于打理。白色2pac橱柜简约时尚, 与燃气灶具、900mm独立式烤箱等高端厨具搭

配,烹饪变成了一种享受。

毗邻的餐厅风格简约大方,为主人提供了舒适自 在的就餐环境。明亮的光线洒下,映照出餐桌上 的欢声笑语,让每一顿饭都充满家的味道。

继续往里,便来到静谧的休息区。主卧室空间开阔, 高高的天花板搭配内置衣柜,满足收纳需求。其余 两间卧室同样温馨,设施与主卧室相似,为每位家 庭成员打造专属的宁静空间。柔软的床铺、温暖的 灯光,让疲惫一天的身心在此得到充分放松。

除了主要空间,住宅还有诸多贴心设计。曼哈顿

风格的洗衣房,配备洗衣盆与储物柜,方便日常 使用。2车位车库搭配独立电源板,车棚与大型 车道组成安全大院。此外,太阳能系统、5摄像 头安全系统、空调等设施,全方位保障了主人的 生活品质。

在教育资源上,Virginia State Primary School、Wavell State High School、O.L.A Primary School等学校将为孩子的成长提供优质 教育环境。

日常休闲与生活购物同样便捷。仅243米外就

是Hamilton Rd巴士站,轻松畅达城市各处。 397米处的Kalisto咖啡馆,是享受慵懒午后 的好去处。ARC Hill公园、Downfall Creek 自行车道等休闲场所,让生活充满活力。 1.66公里外的Westfield Chermside购物 中心,满足各类购物需求;2.55公里处的 Prince Charles Hospital,为健康保驾护航。

这座复式住宅,每一处空间都承载着生活的美好。 无论是在花园漫步、客厅小憩,还是在厨房烹饪、 卧室安睡,都能感受到家的温暖与舒适。周边完 善的配套,更为生活增添便利。在这里,时光变

得缓慢而悠长,每一刻都值得珍藏……

详细的住宅参数:

-占地647平方米

- 3间卧室

- 2间浴室

- 4车位

-厨房:20mm厚石质台面、白色2pac橱柜、 燃气灶具、900mm独立式烤箱等

-主卧浴室:浴缸、淋浴、瓷砖通铺

- Rheem 燃气热水系统

-太阳能系统

-景观花园

-教育资源:Virginia State Primary School、

Wavell State High School、

O.L.A Primary School

-近ARC Hill Park、7th Brigade Park、

Chermside Dog Park -近 Prince Charles Hospital

有意请联系: Tristan Rowland:0411572970

注:图文版权归原作者所有

原文链接:https://www.realestate.com.au/property-house-qld-wavell+heights-146936236

海岸附近计划建造近

500套新住宅,大规模抢地

在阳光海岸 33.1 公顷的土地上规划建造近 500 套住宅,预计将在未来六年内投入使用。房地产 开发商 Peet 于 2024 年 12 月就 Palmview 的 土地达成了协议。这笔交易的价值约为 5600 万 澳元减去商品及服务税,可开发土地能够建造至 少 470 套住宅。

这片土地毗邻“Village Green”,这是 Peet 之 前在该地区进行的开发项目。Peet 董事总经理 兼首席执行官 Brendan Gore 表示,Village Green 的现有设施将为未来的居民提供更快、更 便宜的住房。

“对我们来说,购买相邻的土地是有意义的,因 为实际上我们已经建立了基础设施,”他说。“这 使我们能够降低开发成本,这使我们能够提供更

实惠的住房。”为了帮助满足全州不断增长的住 房需求,戈尔先生补充说,他们正在考虑不同的 地块大小以容纳更多居民。

“会有一些不同之处,但它将与 Village Green 保持一致,并且很可能是该社区的延伸,”他说。 “利用我们已经取得的成功是有意义的。”

当人们开始搬进来时,Peet 将为该地区的建筑项 目制定设计指南,并可能与他们以前合作过的建 筑商提供套餐。预计价格点将与 Village Green 相似,但针对不同的价位提供“不同的产品组 合”。这片土地是由 Peet 和 Brown-Neaves Investments 投资收购的,结算将于 2025 年 6 月 30 日至 9 月 30 日进行。从 2026 年开始, 开发预计需要五年时间。

房地产学:房价有望在

2025 年疯狂的澳大利亚城市

汤斯维尔有望在 2025 年成为澳大利亚最热 门的房地产市场,预计房价将飙升至 30%。

Propertyology 的 2025 年房地产市场展望预测, 美国 25 个最大的城市中有 11 个将经历繁荣状 态,定义为年增长率超过 8%。该公司的研究主管 Simon Pressley 表示,在升级者和首次购房者激 增的情况下,20 个人口在 100,000 或以上的城 市有望实现正增长。

但悉尼和维多利亚的卖家还有更多的痛苦,后者被 称为“澳大利亚的问题儿童”。据预测,阳光海岸 将成为澳大利亚表现第二好的城市,到 2025 年 可能会增长 12-16%。

阿德莱德、布里斯班和珀斯也有望实现两位数的增 长。该报告指出,霍巴特的房价涨幅较为温和, 分别为 1-3% 和达尔文 3-6%,而悉尼、墨尔本

和堪培拉的房价预计将下滑。房地产学研究主管

Simon Pressley 表示,汤斯维尔在过去五年中成 为澳大利亚进步最大的经济体,并从中受益。预计 的增长可能会在目前的 156,000 澳元房价中位数 的基础上增加 520,000 澳元。

“更令人印象深刻的是汤斯维尔最近在便利设施、 生活方式改善及其庞大的经济发展计划管道方面的 重大投资,”普雷斯利先生说。“这个国家没有其 他地方能比得上它。”住房供应紧张继续推动阳光 海岸的价格增长,在过去五年中,该海岸通过内部 移民增加了 57,876 名新居民。

另一方面,墨尔本同期录得 82,000 名净人口下 降。普雷斯利先生表示,尽管过去十年全国人口增 加了 400 万,但待售房屋数量下降了 25%,为大 多数市场创造了良好的条件。然而,悉尼的高挂牌 数量预计将导致 2025 年价格下跌高达 5%。

“悉尼目前的房地产挂牌量正迅速接近创纪录的住 房供应量,在截至 2019 年 7 月的两年里,悉尼 的房价中位数下跌了 18%,”Propertyology 说。

房屋提升者有望成为明年最活跃的买家,预计会有 更多首次置业者进入市场。

在全国范围内,到 2024 年,首次置业者增长 9% 至 117,000 人,如果澳大利亚央行降息,这一数 字预计将增长到 150,000 人。

普雷斯利先生表示,2025 年也标志着澳大利亚 480 万 X 世代中的许多人进入“投资最佳点”的 开始。“这些家庭中的大多数目前在他们的房屋中 坐拥良好的资产净值。但他们的员工队伍只剩下 10 年左右的时间,而且投资相对适中,“他说。

“我们预计,在未来一年左右的时间里,创纪录的 X 世代将成为无国界的房地产投资者。”

全国房价两年来首次下跌

沉重的生活成本、疲软的经济状况和日益加剧的 购房者疲劳终于打破了全国房价连续两年的增长。

PropTrack 最新的房价指数显示,12 月全国房 价两年来首次下跌,平均房屋价值下跌 0.17%。

首府城市的跌幅更大,据报道,这些城市的房价 平均比 2024 年 10 月的水平低 0.35%,这是首 府城市价格的最后一个峰值。

Flaherty 女士补充说,疲软的经济开始拖累房地 产市场。“虽然 7 月生效的第 3 阶段减税的影响 增强了一些买家的借贷能力,但这已被疲软的经 济状况所抵消,”她说。“特别是,最初预计在 2025 年之前降息的降息现在已被推迟。”

PropTrack 经济学家 Anne Flaherty 表示,较 高的库存水平缓和了市场。国家和首都城市的平 均价格掩盖了各个市场价格变动的巨大差距。

PropTrack 经济学家 Anne Flaherty 将市场放 缓归因于房产挂牌量的增加,这缓解了买家抬高 价格的压力。“2024 年下半年的待售房产数量相 对较高,尤其是与 2023 年同期相比,”Flaherty 女士说。“这为买家提供了更多选择,我们看到 他们在购买时需要更多时间。”

墨尔本 (-0.53%)、堪培拉 (-0.61%) 和悉 尼 (-0.29%) 的房价跌幅是本月最大的。布里 斯班房价小幅下跌 0.04%,而阿德莱德房价下 跌 0.18%,这是自 2022 年以来这两个市场首次 出现全市房价下跌。珀斯是本月唯一一个房价上 涨的主要首都。珀斯的房价上涨了 0.39%,并在 2024 日历年上涨了 17.6%。

Flaherty 女士说:“由于负担能力限制打压了买 家需求,并且广告中的供应水平呈上升趋势,因此 住房价值的增长在今年下半年一直处于疲软状态。

“虽然 12 月是两年来全国房价首次下降,但 自 2024 年 3 月以来,价格增长势头一直在放 缓。”“这种放缓在首府城市和偏远地区都出现了, 大珀斯等表现出色的市场也经历了这一趋势。”

PropTrack 表示,墨尔本、堪培拉、达尔文和霍 巴特的价格仍低于储备银行在 2022 年进行 13 次加息中的第一次加息之前的水平。维多利亚州 偏远地区也有类似的趋势——价格尚未恢复到加 息前的水平。

SQM Research

的建模预测,在储备银行宣布降 息之前,大多数地区的价格将继续下跌——现在 贷方普遍预计将在年中降息。该研究公司补充说, 如果全年保持费率不变,价格可能会以更大的幅 度下跌。

AI 可视化 50 年后

典型的澳大利亚房屋

智能家居并不是一个特别新的概念——相关术语 “智能家居”于 1984 年由美国房屋建筑商协会 首次创造。但根据 Chat GPT 的说法,智能家居 的运行方式正在发生重大变化——在未来 50 年内 将更加如此。人工智能聊天机器人清楚地描绘了 澳大利亚人在 2074 年对他们家的期望,结果肯 定会引起一些人的注意。根据 AI 的数据,以下是 50 年后典型的澳大利亚住宅的样子。

根据 AI 的说法,时尚、极简的建筑将是前进的方 向。房屋将采用节能材料建造,并配备由智能玻璃 制成的墙壁,该玻璃可根据阳光调整其不透明度。 太阳能电池板将集成到屋顶,也可能安装在墙壁上, 与小型风力涡轮机一起利用可再生能源。墙壁上将 装饰有垂直花园和水培系统的环保景观。2074 年

外部

也将是电动、自动驾驶汽车之年,当然还有配备充 电站和自动车棚的智能车道之年。

内部

如果您认为您未来家的外观会令人印象深刻,请等 到您踏入室内。根据 AI 的说法,2074 年的典型 澳大利亚住宅不仅将是完全自动化的,而且还将配 备机器人助手来处理日常家务。房屋还将配备先进 的电器,包括用于照明、气候控制和娱乐的语音控 制系统以及用于显示器和互动墙的增强现实表面。

厨房将配备节水系统和智能垃圾处理系统。最令人 印象深刻的是,他们还将配备烹饪机器人、为家庭

成员提供的个性化 AI,并专注于健康和可持续性。 技术创新

如果您现在还没有猜到,未来的技术将决定我们 在 2074 年如何生活和享受我们的家。这包括用 于快速数据传输的集成 5G 或更高版本,以及我 们家中内置的健康监测系统,以跟踪健康状况并 根据家庭的需求自动调整条件。据 AI 称,用于工 作和休闲的全息娱乐系统和虚拟现实空间也将是 一个常见功能。

无论未来如何,AI 都让我们不再做家务!

阿德莱德房价两年来首次下跌

预计房价将在 2025 年再次上涨——但对于那些 希望打入南澳市场的人来说,有一个短暂的希望 之窗。PropTrack 最新的房价指数显示,阿德莱 德的房价在 12 月两年来首次下跌,平均房屋价 值下跌了 0.18%。这意味着买家在售价中位数为 793,569 澳元的地铁房上至少节省了 1431 澳元。

在全国范围内,房价比 12 月下跌了 0.17%, 而澳大利亚大部分地区的房价保持相对稳定,但 南澳地区上涨了 0.6%。PropTrack 经济学家

Anne Flaherty 将市场放缓归因于房产挂牌量的 增加,这缓解了买家抬高价格的压力。“阿德莱 德的房价在 12 月下跌了 0.18%,但与 12 个月 前相比仍上涨了 13.53%,”她说。

“供需失衡导致了价格的强劲增长,阿德莱德的 房屋中位价现在高于墨尔本。”“尽管如此,阿 德莱德的价格增长势头已经放缓。此外,在疫情 期间转为正值的州际净移民现在为负值,这可能 对需求产生影响。”“另一个可能抑制价格增长 的因素是新住房供应,新住宅审批和开工率有所

回升。”

Flaherty 女士表示,除珀斯和霍巴特外,几乎所 有首府城市的价值都出现了下跌。在墨尔本,房 价下跌了 0.53%,堪培拉下跌了 0.61%,悉尼下 跌了 0.29%,布里斯班下跌了 0.04%。与此同时, 珀斯的房价在 12 月上涨了 0.39%,霍巴特上涨 了 0.03%。

Flaherty 女士说:“由于负担能力限制打压了买 家需求,并且广告中的供应水平呈上升趋势,因此 住房价值的增长在今年下半年一直处于疲软状态。

“虽然 12 月是两年来全国房价首次下降,但自 2024 年 3 月以来,价格增长势头一直在放缓。”

尽管首次购房者涉足市场的机会短暂,但总体而 言,预计今年仍将是房价增长的积极一年。根据 PropTrack 房地产市场展望,预计未来一年全国 房价将上涨 1% 至 4%。虽然这一规模的高端仍 高于工资增长,但低于 2024 年记录的 5.5% 和 2023 年记录的近 7% 的增长。

区域 解读

Hazelwood Park SA 5066

历史概况:

Hazelwood Park是南澳大利亚阿德莱德Burnside的一个上层阶级郊区。Hazelwood Park是这个郊区的主要景 点,也是阿德莱德山脚下阿德莱德平原平坦乡村的起点。Hazelwood Park有Burnside游泳中心,这是夏季 的热门景点。郊区的其余大部分是住宅区,但东部边缘的Glynburn Road沿线有一个小型购物区。1848年 欧洲人率先定居该地区,但多年来这里已经发生了许多变化。

1.区域概况/概述

Hazelwood Park位于南澳州首府阿德莱德的东南部,常住人口为1,863(2016 Census)。Hazelwood Park的 西部紧邻Linden Park,东部面向Burnside,北部紧邻Hazelwood Park,南部面向Beaumont。此区归Burnside Council管辖。

2.学区情况/学校介绍

周边公立学校

Burnside Primary School,Burnside 5066

公立小学,1-7年级,男女同校,813名在校生

Linden Park Primary School,Linden Park 5065

公立小学,1-7年级,男女同校,951名在校生

Marryatville High School,Marryatville 5068

公立中学,8-12年级,男女同校,1315名在校生

Marryatville Primary School,Kensington 5068

公立小学,1-7年级,男女同校,519名在校生

周边私立学校

St Peter's Collegiate Girls' School,Stonyfell 5066 1-12年级,663名在校生

Pembroke School - Senior School Campus

男女同校

Pembroke School - Junior School Campus,Kensington Park 5068

男女同校

Loreto College,Marryatville 5068

1-12年级,572名在校生

St Joseph's Memorial School - Junior Primary Campus

私立小学,男女同校

Seymour College,Glen Osmond 5064 1-12年级,758名在校生

3.人口构成

Hazelwood Park的面积约为0.9平方公里。2011年,Hazelwood Park的人口为1,969人。到2016年,人口为 1,863人,在此期间该地区的人口下降率为5.4%。Hazelwood Park的主要年龄组是40-49岁。Hazelwood Park 的家庭主要是有孩子的夫妇,每月可能偿还1400澳元至1799澳元的抵押贷款。一般来说,Hazelwood Park 的人从事专业职业。2011年,Hazelwood Park有76.9%的房屋是自住房屋,而2016年为79.6%。

(资料来源:澳大利亚统计局)

4.配套设施

Hazelwood Park区内公共配套设施齐全,满足日常 生活需求。有购物中心、公园、餐厅等。

Hazelwood Park区附近有酒店、咖啡厅、餐厅、足 球俱乐部等。

Hazelwood Park距离Adelaide市中心约6.2公里,开 车需11分钟即可到达市中心。公交线路围绕整个 Hazelwood Park,公共交通十分便利。

5.行情观察

独栋房屋

在过去的12个月里,Hazelwood Park已经卖出了16套独栋房屋,售价中位数为$1.4M,同比增长2.4%。平 均需要40天即可售出,房东减价为-12.0%。

单元房

在过去的12个月里,Hazelwood Park已经卖出了6套单元房,售价中位数为$509k,同比增长12.8%。平均需 要38天即可售出。

数据来源:

关于学区情况/学校介绍、人口构成、行情观察:

https://www.propertyvalue.com.au/suburb/hazelwood%20park-5066-sa#Unit

Sheldon QLD 4157 区域 解读

1.区域概况/概述

Sheldon郊区以前是一个基本上无人居住的农村地区,于 1980 年正式命名。它分别结合了邻近郊区 Capalaba 和棉花山(Mount Cotton)的南部和北部部分。Sheldon这个名字很可能起源于英国德文郡的同名村 庄,该村庄本身源自古英语单词,意思是“陡峭的山丘和木质山谷”。Sheldon是澳大利亚昆士兰州布 里斯班市的郊区.Sheldon的西部紧邻Rochedale,南部面向Mount Cotton,东部紧邻Thornlands,北部面向 Capalaba。此区归Brisbane Council管辖。

2.学区情况/学校介绍

周边公立学校

Coolnwynpin State SchoolCapalaba 4157

公立小学,1-6年级,男女同校,398名在校生

Capalaba State CollegeCapalaba 4157

1-12年级,男女同校,783名在校生

Hilliard State SchoolAlexandra Hills 4161

公立小学,1-6年级,男女同校,740名在校生

Alexandra Hills State High SchoolAlexandra Hills 4161

公立中学,7-12年级,男女同校,1484名在校生

Vienna Woods State SchoolAlexandra Hills 4161

公立小学,1-6年级,男女同校,234名在校生

Alexandra Hills State SchoolAlexandra Hills 4161

公立小学,1-6年级,男女同校,184名在校生

周边私立学校

St Luke's Catholic Parish SchoolCapalaba 4157

私立小学,1-6年级,男女同校,324名在校生

Sheldon Collegenull null

1-12年级,男女同校,1367名在校生

The Sycamore SchoolAlexandra Hills 4161

男女同校,62名在校生

Sinai CollegeBurbank 4156

私立小学,1-6年级,男女同校,28名在校生

3.人口构成

Sheldon的面积约为22.8平方公里。2011年,Sheldon的人口为 1,688 人。到2016年,人口为 1,709 。在 此期间,该地区的人口增长率为1.2%。Sheldon的主要年龄组是50-59岁。Sheldon的家庭主要是有孩子 的夫妇,可能每月偿还 1800 至2399 澳元的抵押贷款。一般来说,Sheldon的人从事专业职业。2011 年,Sheldon 90.9%的房屋是自住的,而2016年为 90.9%。(资料来源:澳大利亚统计局)

4.配套设施

Sheldon区内公共配套设施齐全,满足日常生活需 求。有美发沙龙、汽车修理厂、日托中心、公园、 学校等。

Sheldon区附近有房车营地、酒厂、宠物美容院、 体育俱乐部、理发店等。

Sheldon距离Brisbane市中心约26.7公里,开车 需28分钟即可到达市中心。公交线路包围整个 Sheldon,公共交通十分便利。

5.行情观察

House部分市场价格:

在过去的12个月里,Sheldon已经卖出了13套独栋房屋,售价中位数为$1.5M,同比增长2.6%,平均需要 34天即可售出,房东减价为-2.9%。

单元房部分市场价格:

数据来源:

关于学区情况/学校介绍、人口构成、行情观察: https://www.propertyvalue.com.au/suburb/sheldon-4157-qld#Unit

Turn static files into dynamic content formats.

Create a flipbook
Issuu converts static files into: digital portfolios, online yearbooks, online catalogs, digital photo albums and more. Sign up and create your flipbook.