








Manhattan 66502
HOA(Y/N) Yes
HOADues $19.00


Manhattan-Ogden USD 383
Oliver Brown
Dwight D Eisenhower
Manhattan High School


INTERIORAMENITIES Eat-in Kitchen, Eating Bar, JettedTub, Kitchen Island, Primary Bath, Prim Bdrm-Walk-in Closet, Pantry,Tiled Floors, Wet Bar , Ceiling Fan, Formal Dining
FIREPLACE One, Gas Logs
EXTERIORAMENITIES Covered Deck
OUTBUILDINGS Storage Buildings FENCING None
Bedroom 5
Don't miss this spacious 5 bedroom, 3 bath home in sought-after Nelson's Ridge. Built in 2017 and features an open floor plan with a spacious kitchen, center island, granite countertops and plenty of cabinet space along with a hidden pantry with access to the laundry room and garage. Main level features 3 bedrooms, the primary suite has an ensuite bathroom and large walk-in closet. The fully finished walk-out basement has 2 additional bedrooms and 1 bathroom. The large family room is complete with a wet bar that's perfect for hosting. Upstairs walk out to a partially covered deck – perfect for grilling or relaxing. The basement walks out to a paved patio with an unobstructed view to the west and amazing sunsets. With a well-manicured 12,000 sq ft lawn, upgraded landscaping, automatic sprinkler system, hard-wired outdoor lighting, 3-car garage with an extended third bay, this home has everything you need!
PERSONALPROP. INCLUDED Dishwasher, Garbage Disposal, Microwave, Oven/Range, Refrigerator Pers.Prop.Included Detail See Seller's Disclosure Personal Prop. Excluded
EXTERIOR Hardboard Siding, StoneAccent
CONSTRUCTION TYPE Site Built
BASEMENT/FINISH Full-Finished
BASEMENT LIGHT EXPOSURE Walk Out
ROOF Less than 10 years
WATER TYPE/SEWER TYPE City Sewer
FUEL Electric
HEATING TYPE Electric
COOLING TYPE Central
GARAGE TYPE Triple,Attached
Subdivision Nelson's Ridge Zoning Home Warranty
Seller Legal Name Keith & Kristin Blanding (AMC) Legal NELSON'S RIDGE SUBDIVISION UNIT 4, S03,T10, R08, Lot 111, ACRES 0.29
Title Company Charlson and Wilson
LAType SellersAgent
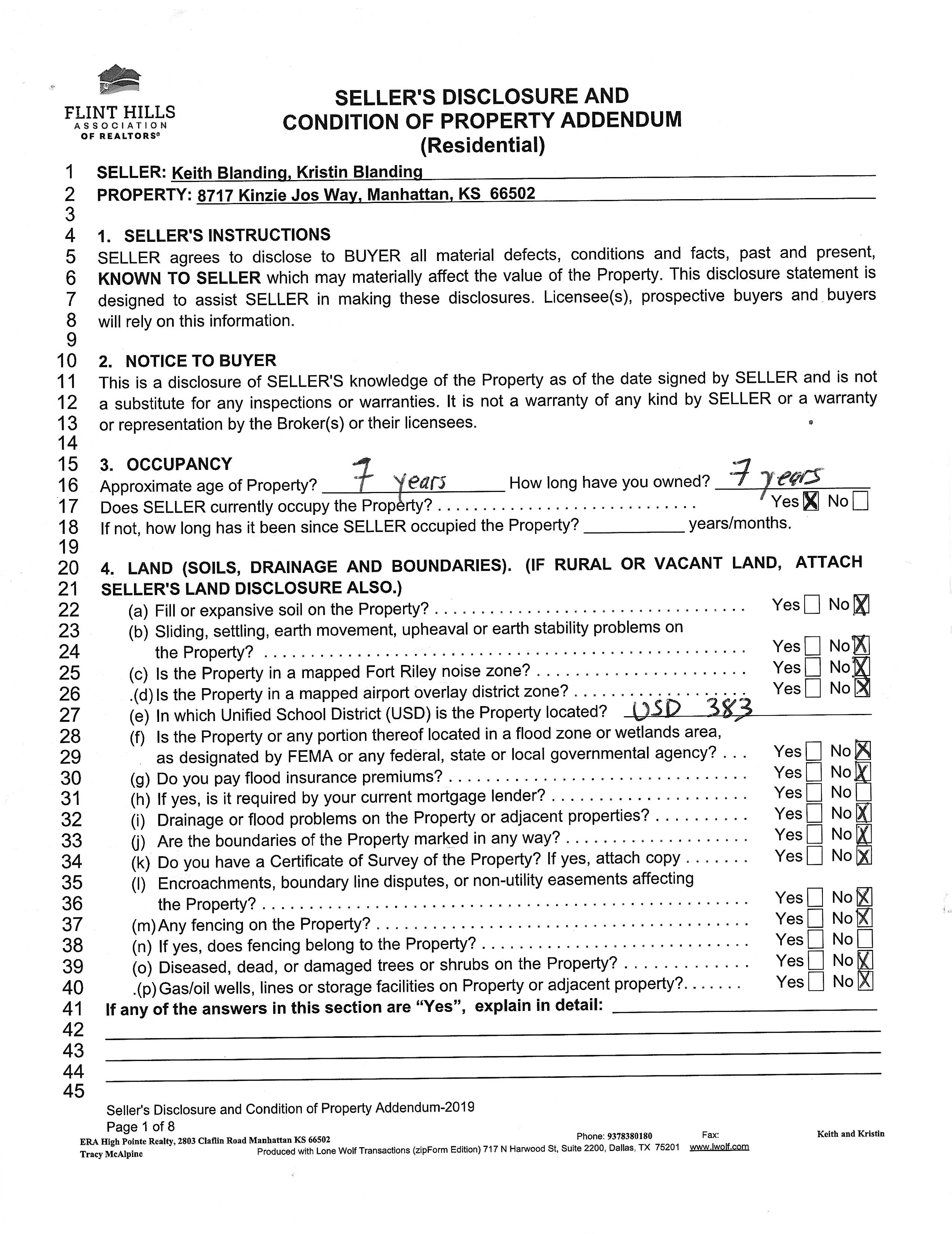
SELLER agrees to disclose to BUYER all material defects, conditions and facts, past and present, KNOWN TO SELLER which may materially affect the value of the Property. This disclosure statement is designed to assist SELLER in making these disclosures. Licensee(s), prospective buyers and buyers
will rely on this information.
This is a disclosure of SELLER'S knowledge of the Property as of the date signed by SELLER and is not a substitute for any inspections or warranties. It is not a warranty of any kind by SELLER or a warranty
or representation by the Broker(s) or their licensees.
OCCUPANCY
Approximate ageof Property?
years How long have you owned?
Does SELLER currently occupy the Property?

yeers
No 18 If not, how long has it been since SELLER occupied the Property? years/months.
(a) Fill or expansive soil on the Property?
(b) Sliding, settling, earth movement, upheaval or earth stability problems on the Property?
25 (c) Is the Property in a mapped Fort Riley noise zone?
26 .(d) Is the Property in a mapped airport overlay district zone?
(e) In which Unified School District (USD) is the Property located? USD 383
No
NoX
No
No
(f) Is the Property or any portion thereof located in a flood zone or wetlands area, 29 as designated by FEMA or any federal, state or local governmental agency? Yes No
30 (g) Do you pay flood insurance premiums?
(h) If yes, is it required by your current mortgage lender?
(i) Drainage or flood problems on the Property or adjacent properties?
(j) Are the boundaries of the Property marked in any way?
(k) Do you have a Certificate of Survey of the Property? If yes, attach copy
(I) Encroachments, boundary line disputes, or non-utility easements affecting the Property?
No
No
No
No X
No
No
37 (m) Any fencing on the Property? Yes No 38 (n) If yes, does fencing belong to the Property?
(o) Diseased, dead, or damaged trees or shrubs on the Property? .(p) Gas/oil wells, lines or storage facilities on Property or adjacent property?.
If any of the answers in this section are "Yes", explain in detail:
No
No
No






