Fredrik Bajers Vej 3B, 9220 Aalborg Ø

Page 1


▪ Udlejes for FREJA Ejendomme

▪ Hele ejendommen er indrettet som laboratorium

▪ Mulighed for køb af ejendommen

▪ Ejendommen er opført i 2005

ADRESSE

Fredrik Bajers Vej 3B, 9220 Aalborg Øst

Laboratorie/kontor

3.189.450 kr.

3.224 m2

IntroVelkommen til Fredrik Bajers Vej 3B i Aalborg Øst. I dette prospekt får du et klart overblik over lejemålets potentiale for din virksomhed.

Vi præsenterer de vigtigste aspekter, så du kan træffe en informeret beslutning og se, hvordan lejemålet kan understøtte din virksomheds fremtid.

Infrastruktur

REGIONALTOG7,2 km.

BUSSTOP0,3 km.

MOTORVEJ3,3 km.

AALBORG LUFTHAVN14,7 km.

Kom indenfor på Fredrik Bajers Vej 3B

Til leje
Fredrik Bajers Vej 3B | 9220 Aalborg Øst

Fredrik Bajers Vej 3B

Lejemålet

Ejendommen udbydes som domicilejendom oplagt til laboratorievirksomhed til leje for FREJA Ejendomme, og ejendommen kan ligeledes købes. Forhør nærmere om muligheder for køb ved kontakt til Nordicals Aalborg.

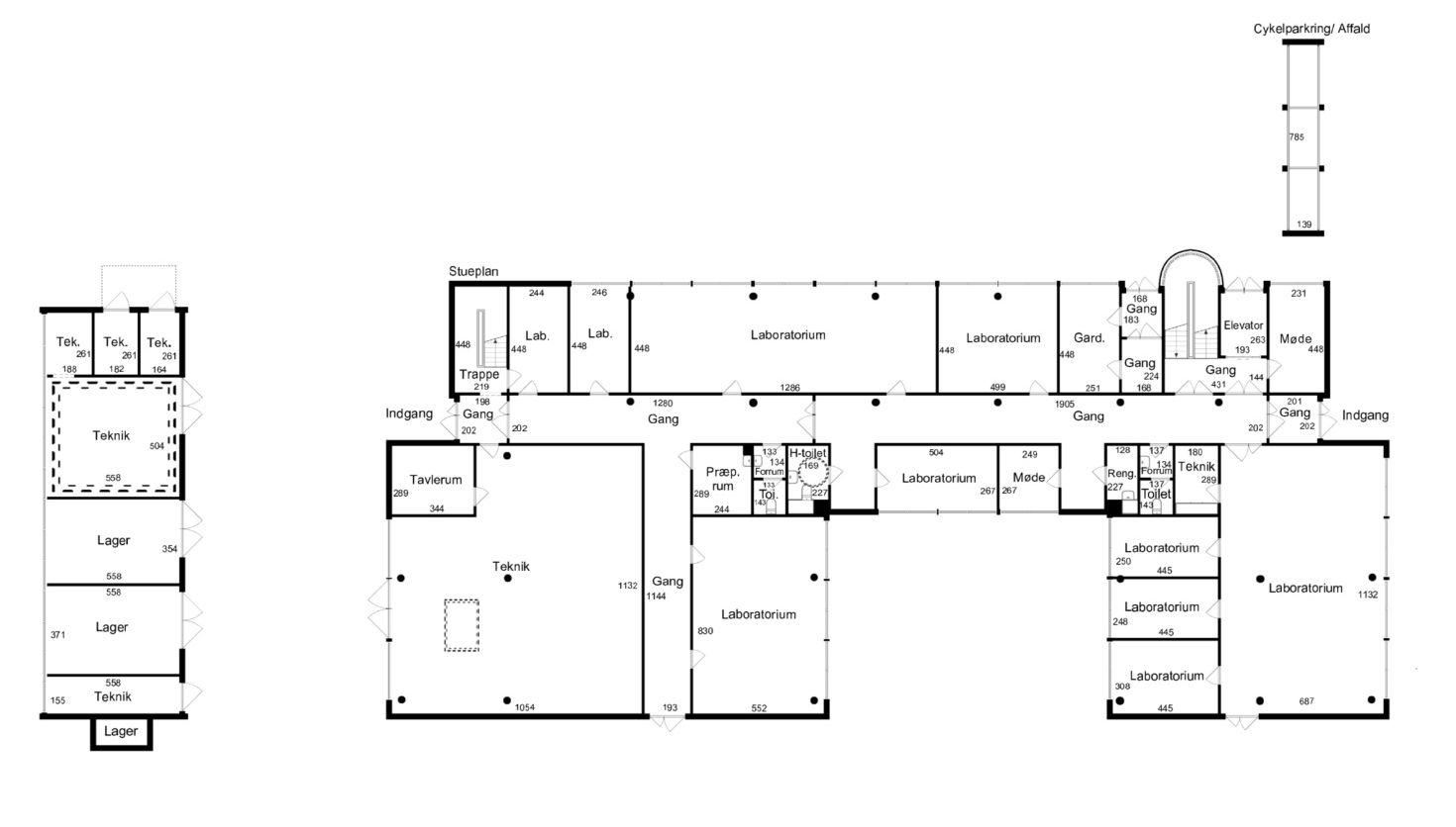
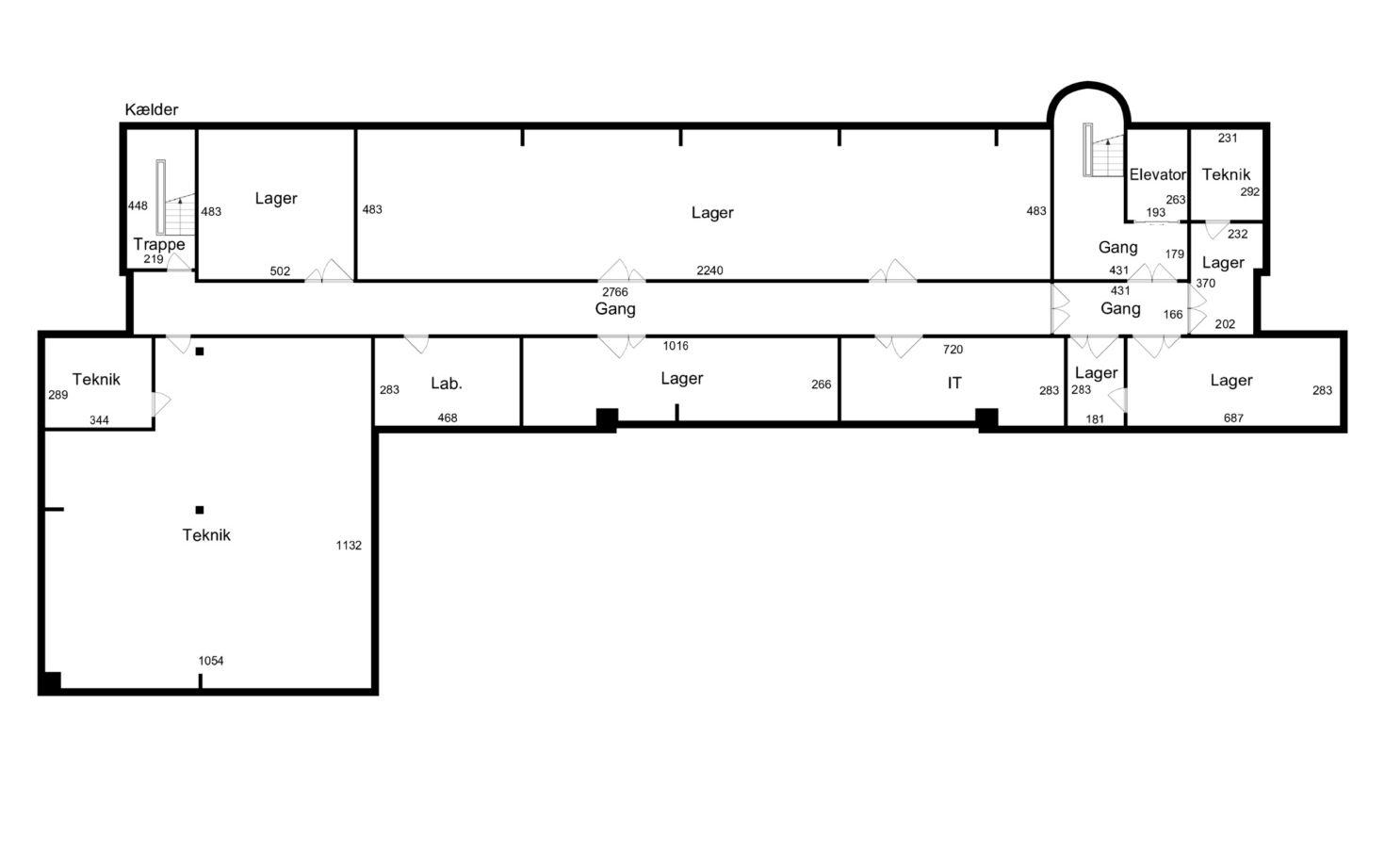
Ejendommen på 2.575 m² er indrettet i 3 fulde etageplan med ca. 858 m² pr. etage samt med fuld anvendelig og højloftet underetage (kælder) på yderligere 649 m². Ejendommens etager forbindes med trappetårne i både ejendommens sydlige og nordlige ende, ligesom ejendommen er udstyret med stor elevator fra kælder til øverste etage.

Ejendommen fremstår i særdeles velholdt og funktionsdygtig stand specialapteret til laboratoriebrug, og er beliggende midt i Aalborgs absolutte centrum for videnskab og forskning i Aalborg Universitets campusområde tæt ved det nye Universitetshospital og NOVI Science & Businesspark.

Ejendommen er som nævnt hidtil anvendt til

bioteknisk laboratorium til Aalborg

Universitet, og ejendommen er indrettet med laboratorie- og forskningsmiljø med rumopdeling og laboratorier i varierende størrelser. Ejendommens kælder er indrettet til lagerbrug. Der henvises til plantegninger i nærværende lejeopstilling.

Aalborg Universitet anvendte bygningen til laboratorium for stamcelleforskning og immunologi og neurobiologisk forskning samt laboratorie for medicinsk mikrobiologisk patogenese.

Ejendommen er tekniske særdeles godt apteret til laboratorie med punktudsugning, ventilationsanlæg, antistatisk gulvbelægning og inventar, der gør ejendommen ideel til fortsat brug som laboratorie.

For supplerende informationer om tekniske installationer, kontakt venligst Nordicals Aalborg.

Forhør nærmere om parkeringsmuligheder ved ejendommen.

Plantegning

Plantegning

Plantegning

Plantegning

Plantegning

Lejevilkår for Fredrik Bajers Vej 3B

Til leje
Fredrik Bajers Vej 3B | 9220 Aalborg Øst

Lejevilkår

I de følgende sider nder du en detaljeret gennemgang af lejevilkårene for dette lejemål. Her kan du få indsigt i de praktiske forhold, der er vigtige at kende, før du beslutter dig. Lejevilkårene giver dig et klart billede af de rammer, der følger med lejemålet.

DEPOSITUM

1.594.725 kr.

ÅRLIG LEJE 3.189.450 kr.

OPSIGELSE LEJER 6 måneder

ENERGIMÆRKE A2010

Lejevilkår

AREALER / ØKONOMI

DRIFTS- OG FORBRUGSUDGIFTER Á CONTO

Fællesudgifter

564.200 kr.

Driftsudgifter omfatter bl.a. ejendomsskatter, bygningsforsikring, udvendig renholdelse, fælles el, vedligeholdelse af fællesarealer samt almindelig husholdningsrenovation m.v.

I det omfang det er muligt, tilmeldes lejer direkte hos forsyningsselskaberne og betaler sit forbrug af varme, vand/kloak, el og renovation dertil.

Lejer sørger for den udvendige renholdelse.

DRIFT / FORBRUG
mleje

LEJEVILKÅR

Overtagelse og afståelse

REGULERING

Regulering af leje NPI, min 2,0% og maks 4,0%

Regulering stigning i skatter og afgifter Ja

Regulering stigning i forsikringspræmie Ja

Regulering depositum Ja

DEPOSITUM OG MOMS

Depositum 1.594.725 kr. svarende til 6 måneders leje.

Momsregistrering Nej

Lejebetaling Lejen betales kvartalsvis forud

Lejemålet er momsfri.

OVERTAGELSE / OPSIGELSE

AFSTÅELSE / FREMLEJE

Lejestart

Efter nærmere aftale

Afståelsesret Ja

Afståelsesret Nej

Opsigelsesvarsel udlejer

6 måneder

Fremlejeret Nej

Fremlejeret Nej

Opsigelsesvarsel lejer

Uopsigelighed udlejer

Uopsigelighed lejer

6 måneder

Tidsbestemt lejemål Nej

Efter nærmere aftale

Efter nærmere aftale

Tidsbestemt lejemål Nej

Lejevilkår

VEDLIGEHOLDELSE

Udvendig vedligeholdelse Udlejer

Udvendig renholdelse Lejer

Vintervedligeholdelse Lejer

Indvendig vedligeholdelse Lejer

Renovation - forpligtelse / betaling Lejer

FORSIKRING

Lejer betaler andel af ejendommens bygnings-/brandforsikring via driftsudgifterne. Øvrige forsikringer påhviler lejer, herunder glas- og kumme, driftstab etc. og skal tegnes direkte af lejer.

Den til enhver tid værende ejer af matr.nr. 2ad, 60a, 60e og 60r, alle Sdr. Tranders By, Sdr. Tranders forpligter sig til at stille parkeringspladser til rådighed. Parkeringspladserne stilles til rådighed som offentlig områdeparkering. De til enhver tid værende ejere, brugere og øvrige med ærinde til matr.nr. 2bo kan anvende parkeringsarealerne.

Parkeringsnormen inden for området er 1 parkeringsplads pr. 100 m², det er ikke muligt af leje afmærkede parkeringspladser .

Zonestatus
Byzone
Vejforhold
Offentlig
PLAN- / OFFENTLIGE FORHOLD
PARKERING

Planforhold

Følgende lokalplan er gældende for ejendommen: 08-061 - Universitetsbebyggelse ved Fredrik Bajers Vej - Universitetskvarteret

Ejendommen er omfattet af Aalborg Kommunes rammebestemmelser 4.4.O5 - AAU Fredrik Bajers Vej.

Rammebestemmelser og lokalplan kan rekvireres i kopi hos Nordicals.

Ovenstående omkring planforhold er oplyst uden ansvar for erhvervsmæglerrmaet, og køber opfordres til at rette henvendelse til den pågældende kommune angående konkret planforhold i forhold til købers fremtidige anvendelse.

Til leje
Fredrik Bajers Vej 3B | 9220 Aalborg Øst

Nordicals Aalborg

Nordicals Aalborg er Region Nordjyllands største erhvervsmæglerforretning med mere end 30 års erfaring på markedet for erhvervsejendomme i Danmark. Vi tænker større som en del af Danmarks stærkest repræsenterede erhvervs-ejendomsrådgiver med forretninger over hele landet.

Vi har egen analyse- og Capital Markets-afdeling samt eget datadrevet univers, Nordicals Foresight, som giver et 360° perspektiv på dagens og morgendagens ejendomsmarked – nationalt og lokalt på tværs af hele Danmark. Vi har dermed et indgående kendskab til den lokale og regionale markedsudvikling, og vi har indsigt i de politiske beslutninger, som præger udviklingen regionalt og lokalt.

Vi ved derfor før de fleste andre, hvor væksten sker, og hvor markedet bevæger sig hen - og vi kan dermed skabe markante resultater i markedet for erhvervsejendomme.

OM OS

Nordicals

Som Danmarks største, partnerdrevne erhvervsmæglerkæde forløser vi vores kunders forretningspotentiale – hvad enten de skal sælge eller investere i ejendomme, og hvor end i landet de driver deres forretning.

Derfor møder vi dem med et 360° perspektiv på, hvor ejendomsmarkedet står i dag, og hvor det bevæger sig hen i morgen. Vi møder dem således med en dyb dedikation til at forstå deres verden og være forudseende på deres vegne, som har gjort os til Danmarks største, partnerdrevne erhvervsmæglerkæde med 24 forretninger og mere end 170 eksperter over hele landet.

Vi kender derfor hvert et hjørne af markedet og ved, hvor det

bevæger sig hen. Det gør vi med vores lokale forankring i hele landet og med vores datadrevne analyseunivers, Nordicals ForesightTM. Vi kombinerer således lokal indsigt med et globalt udsyn, så vi holder vores kunder opdateret på de internationale markeds- og samfundstendenser, analyserer dem og perspektiverer dem til deres verden og markedsmuligheder.

Så uanset om vores kunder skal sælge, udleje eller investere i ejendomme – og uanset hvor i landet det er – så rådgiver vi dem på et solidt, fagligt fundament. Det gør vi med lige dele indsigter og prognoser, og vi gør det med det klare, kompromisløse mål at stille dem stærkest muligt i såvel dagens som morgendagens marked.

Nordicals er Danmarks største, partnerdrevne erhvervsmæglerkæde med 24 forretninger og 170 eksperter over hele landet. Vi kender derfor ejendomsmarkedet og ved, hvor det bevæger sig hen – både nationalt og helt ned på lokalt byniveau.

Kontakt

Nordicals Aalborg

Skibbrogade 3, 2.

Tlf. 98 13 40 00

Mail: 9000@nordicals.dk

Disclaimer. Dette dokument er udarbejdet af Nordicals Aalborg I/S Aalborg. Med mindre andet er angivet, gælder følgende for oplysningerne i dette dokument: Oplysninger, herunder tal, data og tidsplaner, er foreløbige og bør udelukkende betragtes som et oplæg til diskussion. Nordicals indestår ikke for at oplysningerne er nøjagtige eller fuldstændige. Oplysningerne er ikke uafhængigt vericeret. Oplysningerne dette dokument er tilvejebragt under den forudsætning, at Nordicals og enhver partner eller medarbejder ikke er ansvarlig for fejl eller unøjagtigheder i dokumentet, som måtte være forårsaget af uagtsomhed eller lignende eller for tab eller skade som følge af sådanne fejl, udeladelser, eller unøjagtigheder. Det er ikke tilladt at anvende eller kopiere nogen form, hverken tekst, grak eller billeder, uden forudgående accept fra Nordicals.

Turn static files into dynamic content formats.

Create a flipbook
Issuu converts static files into: digital portfolios, online yearbooks, online catalogs, digital photo albums and more. Sign up and create your flipbook.