Elasticité_PFE 2022

Page 1

ÉLASTICITÉ

PFE Fragments

Élise Geoffroy

2

Les humains ont toujours eu cette nature flexible. Nous bougeons selon nos envies, manipulons les objets et agissons dans des environnements très variés. Nous évoluons continuellement, au grès de notre contexte, de nos besoins, nos envies et surtout des contraintes. La modernisation ainsi que les nouveaux moyens de constructions et les préoccupations environnementales remettent en question la notion de bâtiments inamovibles, ou encore monofontionnel ou monotemporel. C’est dans cette voie que l’architecte doit savoir créer et répondre a ces enjeux, notamment, au travers d’une recherche qui s’adapte aux nouveaux modes d’habitation comme aux nouveaux usages. Il doit apporter une nouvelle approche de l’acte de construire qui s’inscrit dans une démarche d’architecture adaptative, flexible, évolutive.

On peut citer Jonathan Hill qui nous décrit dans son livre « Action of architecture » (2003), trois types de flexibilité en architecture: la flexibilité par le plan libre de Le Corbusier, la flexibilité par redondance (définie par une succession de pièces similaires, plus ou moins petites) et enfin la flexibilité technique (caractérisée par une innovation technologique qui permet de modifier l’agencement intérieur d’un bâtiment).

Dans cette recherche de flexibilité, on identifie le besoin et on applique la modification pour s’adapter aux contraintes futures. Pourtant, dans nos préoccupations environnementales actuels et avec notre société moderne « paradoxale ». Il ne faut pas seulement penser les besoins futurs, mais également imaginer la possibilité de revenir aux nécessités antérieures. L’architecture moderne souhaite abandonner sa matérialité béton pour un retour au bois ; les espaces ne sont plus individuels, mais de plus en plus collectifs, etc.

Ainsi, sa nouvelle approche de l’acte de construire doit correspondre à une élasticité architecturale. Nous allons voir dans ce manifeste comment se définit et se caractérise cette élasticité au cœur de l’architecture.

3
4

Notions

5
Elasticité Aarhus université le concours facultés et programmes éducatifs comprendre l’îlot comprendre l’élasticité de l’îlot typologie universitaire scénario : création ou réhabilitation?
Sommaire
l’élasticité bâtiment et réversibilité éxistant enveloppe architecturale espace public absence d’identité Le projet le lieu idéal problématique une porte entre deux mondes le sens du détail 6 - 9 10 - 19 10 - 11 12 - 13 14 - 15 16 - 17 18 19 20 - 27 20 - 21 24 25 26 28 - 40 28 29 30 - 31 34 - 40
de

« Phénomène qui implique une augmentation de son aire ou de son périmètre.»

« Pour moi l’élasticité, c’est jusqu’à où un matériau peut bouger, forcer sans se déformer.»

« Quelque chose qui se déforme sur lequel on peut appliquer une traction.»

« C'est quelque chose avec une grande résistance, très étirable, mais qui revient à sa forme initiale.»

« L’élasticité, c’est la capacité de quelque chose a s’étendre et a revenir a son état d’origine.»

« L’élasticité, c’est le contraire de la rigidité, c’est un terme qui veut dire que quelque chose est extensible, qui peut se tendre et se retendre.» réponses de mon entourage

Phénomène d’extension par une force limite atteinte = rupture

sous différentes (élasthanne), phénomène tendue). élastique omniprésente phénomène d’emménagement)

schématisation d’une extension d’un noyau, d’un espace 2D

le n’est de une

6

Mais comment concrétiser ce retour en arrière ? Pour offrir une architecture réversible, elle doit avant tout évoluer. Nous nous devons d’aller vers l’avant pour ensuite aller vers l’arrière. C’est ce cheminement qui permet de concrétiser l’élasticité architecturale : évolutive et réversible.

7

Elasticité à Aarhus ?

Quel lieu à Aarhus offre cette possibilité d’évolution et de réversibilité architecturale ?

Fondée à partir de 1928, l’université d’Aarhus se démarque par sa matérialité singulière et par sa croissance toujours d’actualité. Elle s’est à la fois forgée une réputation d’institution de recherche de premier plan, au niveau mondial, et une identité architecturale par des murs en briques jaunes. Les proportions et la matérialité donnent un air massif aux édifices. L’homogénéisation des façades met en évidence un maintien culturel de l’université. Au grès des années, l’université a évolué et s’est transformée par des réhabilitations, des modulations, et même des constructions. Pourtant, le caractère minéral a perduré. On retrouve un maintien historique malgré l’évolution qui persiste. Comme si un retour en arrière serait toujours possible.

« Le campus de l’université d’Aarhus représente un symbole majeur de l’architecture moderne danoise. Les historiens considèrent l’aménagement du parc de l’université (Universitetsparken) comme une étape essentielle dans la formation d’une tradition moderne de l’architecture danoise au XXe siècle, visant à adapter les méthodes constructives traditionnelles aux nouveaux styles de provenance internationale. »1 La force de l’université réside dans la manière avec laquelle ses architectes (Christian Frederik Møller, Kay Fisker et Povl Stegmann) se sont appropriés le langage du Mouvement Moderne et l’ont harmonisé avec le caractère local, régional, voire vernaculaire, du Danemark. Faisant de l’université d’Aarhus une symbolique de l’architecture nationale.

8
1 Tobias Fader, Dansk arkitektur, København, Arkitektens Forlag, 1963 Plan masse de l’université 4 000ème Plan masse Aarhus au 25 000ème

Aarhus université

Le concours

En 1931, les architectes Kay Fisker, CF Møller et Paul Stegmann remportent le concours pour concevoir l'université d’Aarhus avec une proposition qui met en avant une expression uniforme par des formes minimalistes et modernes ainsi que des matériaux traditionnels. La volonté d’utilisation homogène de la brique jaune et une adaptation au paysage créé un jeu par la brique jaune et le parc fleurissant.

Le plan directeur regroupait vaguement des bâtiments individuels alignés orthogonalement les uns par rapport aux autres. Ces premiers bâtiments sont le département de chimie, de physique et d’anatomie. Ensuite, le bâtiment principal sera inauguré en 1946 et la grande tour des livres en 1962. Paul Stegman a quitté le partenariat en 1937 et Fisker en 1942, laissant ainsi CF Møller Architects en charge du développement architectural jusqu’à aujourd’hui.

De nos jours, l’ensemble du site, avec le parc, comprend des salles d’enseignement, des bureaux, des bibliothèques, des ateliers et des logements étudiant. On comprend rapidement que tout le campus s’est développé autour de la matérialité si singulière. « Les bâtiments sont des variations d’un même volume prismatique net avec des toits en pente, orientés orthogonalement pour former des groupes architecturaux individuels partageant le même vocabulaire.»

10
Dessins architecturaux de l’université d'Aarhus, 1942-63, CF Moller, Kay Fisker et Povl Christian Stegmann

Ce dessin fait partie de la proposition de concours qui a remporté le premier prix et montre la première étape de la construction.

Le plan montre le Département de chimie-physique et anatomie, qui a été construit en 1932-33 et a été le premier bâtiment achevé de l’université.

L’université possède également des serres qui sont rassemblées dans un unique et grand bâtiment à l'allure très moderne, au sud du campus.

11

Université d’Aarhus

Facultés et programmes éducatifs

1. Bâtiment administratif et Maison des étudiants

2. Bibliothèque royale danoise

3. Musée d’art ancien

4. Département de droit

5. Département économique

6. Département de psychologie

7. Département de science politique

8. Centre d’analyse de la recherche

9. Département de physique chimique

10. Département de chimie

11. Département de biochimie et physiologie

12. Département de biomédecine Est

13. Maison de la médecine

14. Département de biomédecine Ouest

15. Département de physique et astronomie

16. Faculté des sciences

17. Département de mathématiques

18. Musée d’histoire naturelle

19. Bâtiment de l’Université Bartholin

20. Département de biologie moléculaire

21. Maison de la biologie

22. Amphithéâtres au bord du lac

23. Bâtiment Victor Albeck, ancienne maternité à Aarhus, reconvertie en bibliothèque

24. Département de biomédecine Sud

25. Département anatomique

26. Institut des géosciences

27. Département de la santé publique

28. Musée Sténon

29. Département de biomédecine

30. Centre de recherche en bioinformatique

31. Département de médecine dentaire et de santé bucco-dentaire

32. Institut d’études avancées d’Aarhus, AIAS, institut de recherches

33. Centre international et son dortoir

34. Bâtiment de l’Institut des géosciences

Bachelor of Science = BSc Master of Science = MSc

BSc en économie et administration des affaires

BSc en sciences cognitives

Master en anglais

Master en études européennes

Master en études interculturelles

Master en gestion durable du patrimoine

Master en linguistique

MSc en administration des affaires

MSc en anthropologie - Anthropologie visuelle

MSc en bioinformatique

MSc en biologie moléculaire

MSc en biotechnologie et génie chimique

MSc en chimie médicinale

MSc en Mathématiques - Economie

MSc en développement de produits

MSc en écologie et évolution de la biodiversité

MSc en ingénierie - Développement commercial basé sur la technologie

MSc en nutrition moléculaire et technologie alimentaire

Master en journalisme, médias et mondialisation (Erasmus Mundus)

Master en littérature jeunesse, médias et culture (Erasmus Mundus)

MSc en administration des affaires - psychologie des affaires

MSc en agriculture biologique et systèmes alimentaires

MSc en nanosciences

MSc en génie civil et architectural

MSc en études scientifiques

MSc en génie électrique

MSc en génie informatique

MSc en génie mécanique

MSc en géologie

MSc en géophysique

MSc en gestion agro-environnementale

MSc en informatique

MSc en mathématiques

MSc en nanosciences

MSc en physique

MSc en sciences cognitives

MSc en sécurité humaine

MSc en sols et changement global

MSc en statistique

MSc en économie

MSc en chimie

MSc en biologie

MSc en agrobiologie

MSc en astronomie

12

Il existe cinq facultés principales à l'université d'Aarhus : commerce et sciences sociales, santé, sciences naturelles, biologiques et techniques, avec plus de 38 000 étudiants et 8 000 personnels.

13 4 1 28 25 26 22 31 27 2 3 5 6 7 8 9 10 11 12 13 14 15 16 17 18 19 20 21 23 24 30 29 32 33 34 Musée Logement étudiant Bâtiment d’éducation Zone de restauration (cantine) Plan programmatique de l’université 4 000ème

Université d’Aarhus

14
Comprendre l’îlot bâtiments arbres places urbaines chemins piéton routes parkings eau ponts topographie plan 10 000ème plan 10 000ème plan 10 000ème plan 10 000ème plan 10 000ème plan 10 000ème plan 10 000ème plan 10 000ème plan 10 000ème plan 10 000ème
15 plan 10 000ème zones vertes 3D hors îlot contour accès extension flux externe plan 10 000ème flux interne ensemble plan 23 000ème plan 23 000ème plan 23 000ème plan 23 000ème plan 23 000ème plan 23 000ème

Université d’Aarhus

Comprendre l’élasticité de l’îlot

Flux matinal interne et externe

On observe un fort flux migratoire des logements étudiant du campus aux facultés. Ceci montre une activité importante des logements la nuit et une activité négatives des facultés la nuit. Les logements étudiant se situant particulièrement dans la partie Nord-Ouest et Est, induit aucune activité dans les parties Sud-Ouest et Est.

On distingue également beaucoup d’apports de densité de l’extérieur du campus dû aux étudiants externes de l’îlot. Ceux-ci, arrivent par Aarhus Ø, le Nord-Ouest ou encore l’Ouest de l’îlot, là, où se trouve la majorité des logements étudiant urbains.

Le parc n’est utilisé que pour ses accès rapides aux facultés.

Flux du soir interne et externe

Lors de la fin de journée, les facultés se vident petit à petit vers différentes directions. On retrouve une minorité des flux externe du matin qui repartent dans leurs logements à l’extérieur de l’îlot. Une majorité du flux matinal, externe quant à lui, se déplace vers le parc.

Ainsi, le parc se retrouve submergé par un flux interne important arrivant des différentes facultés. Cette migration est composée d’étudiants habitant à l’extérieur de l’îlot comme à l’intérieur. Le parc va petit à petit se vider de ce flux appartenant à l’extérieur.

Ainsi, laissant comme seule activité de l’îlot, les logements étudiant internes.

plan 25 000ème flux interne flux externe

plan 25 000ème

16
flux interne flux externe
îlot
îlot

Intensité d’activité de l’îlot

Dans cette suite de plans au 10 000ème, on distingue fortement ce que les flux externe et interne nous ont montré. Les logements étudiant sont en activité du soir au matin, tandis que les facultés sont dynamiques la journée.

Le parc se retrouve à sa plus forte intensité dans l’après-midi comme dans la soirée, témoignant d’une appréciation de cette zone boisée par l’ensemble des habitants hors îlot.

La question se pose de l’activité hors période scolaire. Le parc sera toujours en activité, les facultés partiellement en activité et les logements sans trop d’activité.

intensité forte

intensité faible

Représentation de l’intensité de l’îlot par ces caractéristiques.

Représentation spatiale de l’intensité des activités de l’îlot des schémas précédents. On remarque que les facultés sont les espaces les plus sollicités du campus suivis du parc et toute zones vertes. Ceci permet de mettre en valeur des zones où l’élasticité est assez peu présente comme la partie Sud-Ouest de l’îlot.

17 activité début matinée activité milieu matinée activité activité
plan 10 000ème plan 25 000ème

Université d’Aarhus

Typologie universitaire

Pour comprendre l’architecture de l’université il faut remonter aux origines de la « tradition moderne » danoise. Dans les années 20, les architectes danois s’intéressent aux conceptions du mouvement Bauhaus.

« Les architectes s’inspirent tout particulièrement de l’école de la confédération syndicale Bundesschule des Allgemeinen Deutschen Gewerkschaftsbundes (ADGB) à Dessau, construite en 1928-1930 par Hannes Meyer et Hans Wittwer. Les bâtiments résidentiels se présentent comme des blocs décalés en cœur d’îlot, dont les murs de briques jaunes sont rythmés de fenêtres carrées. [...] Les architectes y ajoutent, dans le projet final, des toitures à deux versants, surmontées de pannes flamandes jaunes. » 1

La question de l’identité dans cette architecture se balance entre : une affirmation de l’architecture danoise avec la préservation continuelle de la forme architecturale et de ses composants (même bâtiment, même murs plein, briques jaunes, caractère anti-urbain). Face à l’évolution du campus et aux maintiens dans le temps de la typologie universitaire aarhusienne.

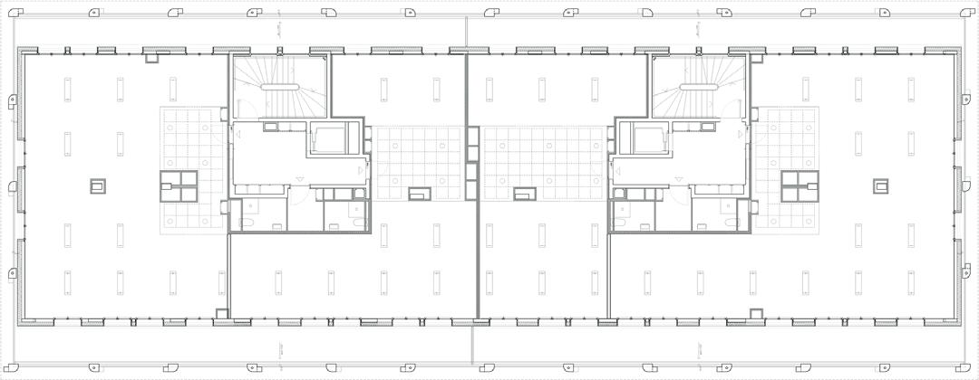
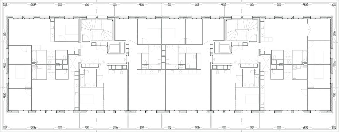
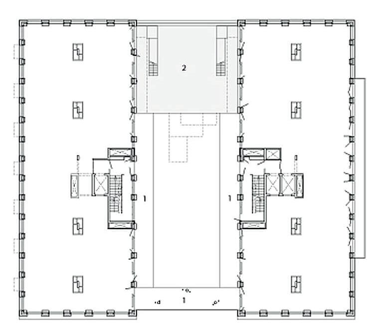
Département de mathématiques

Plan Rez-de-chaussée au 1 000ème
Bâtiment éducatif Logement étudiant base bâtiment brique jaune couloir répartition espaces circulation
1 Le campus de l’université d’Aarhus au Danemark(1992-2018), entre architecture héritée et création contemporaine, Bianco Dorian, 2018, p. 145.

La question qui se pose sur l’intervention à venir sur le campus est la suivante : Faut-il (rigoureusement) reproduire le schéma originel ?

De là, deux scénarios s’offrent à nous. Dans un premier temps, la possibilité d’une réhabilitation d’une des barres parallèles de l’université peut être envisagée. Ici, le caractère évolutif peut s’effectuer par une réhabilitation puis d’un retour en arrière. Cependant, cela ne semblerait pas régler la nécessité de reconnecter le campus à la ville. Dans un second temps, créer un nouveau bâtiment universitaire, aux même caractéristiques architecturales afin de connecter l’îlot urbanistiquement et de répondre à la question de l’élasticité architecturale : évolution et réversibilité.

Evolution et réversibilité du projet

Scénario : création ou réhabilitation? Elasticité

programmatique

pôle édutatif logement

circulation au fond

brique jaune

Reconnecter l’îlot à la ville

abscence d’identité distinctive accès marqué ?

place urbaine ?

programme urbain ?

19
architecturale à l’université d’Aarhus

Notions de l’élasticité

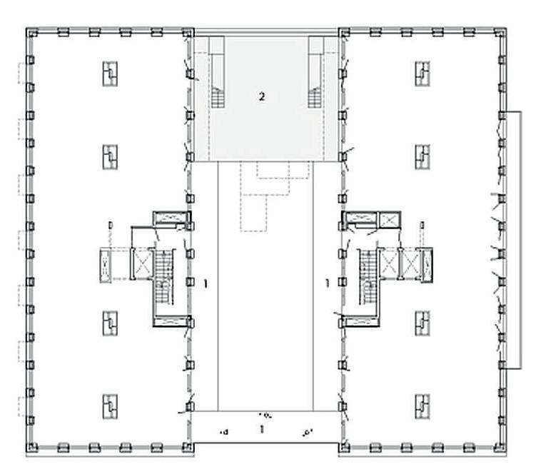
Bâtiment et réversibilité éxistant

L’élasticité architecturale se fait d’une part, par l’évolution du bâtiment et d’autre part, par sa capacité réversible. Ici, le caractère réversible est la faculté de reconversion de l’édifice ; contrairement à la « réversibilité », qui elle est une solution programmatique anticipée permettant à un ouvrage neuf de pouvoir accueillir des logements ou des bureaux, au moyen de modifications minimes. Pour parfaire ceci, il faut mettre en place des outils à l’évolution, mais surtout à la réversibilité du bâtiment.

Îlot B2, Lyon Confluence, Immeuble réversible bureaux-logements, 2015 - 2021, 181 logements + 2 339 m² de bureaux + commerces/crèche

L’anticipation de la seconde fonction est la base du projet. Sa reconversion est le cœur même de sa conception. On retrouve dans ce bâtiment une enveloppe architecturale qui se détache du cœur de l’édifice. Le rez-de-chaussée est mis en avant par sa forte hauteur. Les circulations sont centralisées.

Black Swans, 2019, à Strasbourg, par l’architecte Anne Démians et ICADE promotion avec 15 000m² de bureaux transformables en 180 logements, et inversement.

Le projet est composé de trois tours noires, de 8 étages à l’esthétique mystérieuse. Celle-ci offre des questionnements dus à l’absence d’identité qui ne permet pas de distinguer les fonctions intérieures. Cette façade permet de s’approprier à la fois les logements et les bureaux.

20
Plan
Plan
enveloppe
RDC mis en valeur
d'étage bureaux
d'étage logements
architecturale circulation
Plan d'étage bureaux Plan d'étage logements bureaux logements

Solid 11, Tony Fretton Architect, 2010 - 2011, AMSTERDAM, Pays-Bas, un espace modulable pour diverses activités, notamment des appartements, des espaces de travail, un hôtel, des magasins et des cafés.

Le bâtiment se compose de deux volumes rectangulaires parés de briques. L’espace intermédiaire, fermé par des parois de verre, forme un atrium ceinturé de coursives. Celui-ci accentue cet effet de rue dans le bâtiment. La sensation d’une place urbaine est plus que palpable. Le rez-de-chaussée est plus ouvert que jamais vers la rue. On y retrouve une structure poteau-dalle en béton, une redondance des réseaux minimisent.

Bien que la réversibilité de l’élasticité architecturale ne peut être prédite, elle peut être imaginée et travaillée à l’aide de divers scénarios possibles qui verront peut-être le jour. Ici, ces exemples permettent de mettre en avant des outils à la conception de l’élasticité architecturale comme une enveloppe architecturale qui permet de détacher le plan et la structure ; ou encore l’absence d’identité architecturale qui permet au bâtiment de se marier au contexte et aux futurs scénarios. Nous pouvons également évoquer l’importance des espaces publics afin de permettre à celui-ci de s’approprier l’espace qui lui est dédié.

En outre ces trois notions peuvent constituer le chemin de fer du projet à venir :

- enveloppe architecturale

- absence d’identité

- espace public / RDC ouvert

21
Enveloppe architecturale
22

Enveloppe

architecturale

Outils de l’élasticité : évolution et réversible

Espace public / RDC ouvert

Absence d’identité

23

Notions de l’élasticité

Enveloppe architecturale

L’enveloppe est l’élément d’élimitation entre l’«intérieur » et l’«extérieur ». Elle joue le rôle d’interface entre les deux, car elle est la première vision d’un édifice. Elle contient un « enveloppé » directement ou indirectement. L’enveloppe indirecte permet ainsi une continuité possible d’un vide urbain ou d’un espace public.

L’enveloppe architecturale est cruciale afin de concevoir une élasticité architecturale. Bien que l’absence d’identité permet de ne pas distinguer clairement les fonctions d’un bâtiment et ainsi, créer une adaptabilité constante. L’enveloppe va accentuer cet effet et renforcer la liberté du plan et des fonctions possibles. Elle induit au préalable l’emplacement de plusieurs éléments fixes comme les circulations, les gaines techniques, les points d’eaux, etc.

Typologies

Evolution de l’enveloppe architecturale au fil du temps source : Enveloppant, Enveloppé, Emilie, 18 mars 2009

Enveloppe directe Enveloppe indirecte

Références architecturales

Enveloppe architecturale

École de gestion et de design Zollverein, SANAA, Essen, 2003-2006

24

Espace public

L’espace public est un endroit libre à l’usage de tous, permettant de rassembler, d’unifier, de fusionner et de se réunir. C’est une organisation publique de la ville, qui se manifeste par des espaces libres planifiés, équipés et ponctués d’interventions symboliques ou monumentales.

L’espace public permet à l’élasticité urbaine de se rattacher à son contexte. Elle offre une liberté fonctionnelle, fondamentale, pour mener à bien les différentes phases de l’élasticité du bâtiment : évolution et réversibilité. Ceci peut se manifester par une place publique urbaine distincte, faisant un lieu de rendez-vous ; ou/et par un rez-de-chaussée ouvert afin d’offrir une sensation d’appartenance urbaine et de possibilité d’appropriation.

Référence graphique

Typologies

espace public espace privé

Références architecturales

25
Le grand plan de Rome par Giambattista Nolli, 1748 Musée Sao Paolo par Lina Bo Bardi, 1968 Centre National d’Art et de Culture Georges Pompidou, Piano Rogers et Ove Arup & Partners, 1971-77. Coupe schématique, Octobre 1971 Situation actuelle du Centre National d’Art et de Culture Georges Pompidou

Notions de l’élasticité

Absence d’identité

L’identité englobe tout ce qui permet d’identifier le sujet de l’extérieur. En architecture, cela induit la compréhension directe du bâtiment dès la visualisation de l’enveloppe. L’absence d’attributs catégoriques permet d’offrir différentes possibilités de compréhension du bâtiment et donc de ne pas laisser paraître son utilité. Ainsi, il peut convenir à de nombreuses transformations.

L’absence d’identité permet au bâtiment de ne pas se focaliser sur une seule typologie d’édifice. Ainsi, il pourra facilement s’adapter avec son évolution et revenir aisément à son état de base. Il faut que le bâtiment soit libre aux éléments distinctifs. L’université d’Aarhus offre déjà ce cas de figure par sa brique jaune pour une bibliothèque, des logements ou encore des facultés.

Typologies

Abandon : balcons, volets = logements fenêtre régulière, grade façade vitré = bureaux -> enveloppe architecturale

Références architecturales

langage de formes minimaliste et moderne utilisant des matériaux traditionnels : bâtiment en brique jaune, baies vitrée et store en tissu.

Académie

Bibliothèque Logements

Université d'Aarhus par Kay Fisker, CF Møller et Paul Stegmann en 1931

26
Arche de la Défense, Johan Otto von Spreckelsen, 1989
27

Le projet

Le lieu idéal

Afin de reconnecter l’îlot à la ville, il faut agir sur le territoire même et y apporter un nouveau dynamisme. Depuis de nombreuses années, l’université se développe dans la ville. On retrouve dans un périmètre proche de nombreuses résidences universitaires qui ont su réhabiliter d’anciens pôles médicaux et industriels. Situés aux alentours de l’îlot, ils permettent une extension et une accroche urbaine ferme. Ainsi, une périphérie universitaire se dessine et se développe de plus en plus, afin d’offrir de nouveaux espaces aux étudiants. Depuis une dizaine d’années, de nouveaux quartiers voient le jour comme Aarhus Ø, qui répond à l’expansion de la zone portuaire en offrant plus de résidences, nouvelle zone résidentielle, éducative, commerciale et récréative, notamment pour les étudiants ou encore la nouvelle école d’architecture avec ses logements étudiant à proximité.

Ecole d’architecture

Périmètre proche

Expansion

Connexion lointaine

Malgré cette expansion urbaine, la partie Sud de l’îlot ne s’est pas étendue au même titre que les autres pôles réhabilités. Cette zone aux maillages très urbanisés et diverses renforce la déconnexion de l’îlot à la ville. Bien que la connexion avec la nouvelle école d’architecture est présente, elle est trop récente et bien trop éloignée. Afin de poursuivre l’extension de l’université et de reconnecter l’îlot, le projet doit se situer dans la partie Sud du bloc universitaire.

28
Plan masse Aarhus au 25 000ème Aarhus Ø

Problématique

Cette analyse théorique sur l’élasticité architecturale et sa matérialisation ainsi que l’analyse urbanistique de la ville d’Aarhus à permis de mettre en évidence de nombreux points problématiques que possède l’université. La volonté de reconnecter le pôle universitaire et d’apporter une réponse à l’élasticité architecturale permet de résoudre ses problèmes par l’initiative d’un projet architectural.

Ainsi, la question suivante émerge :

Comment l’élasticité peut reconnecter l’université d’Aarhus à la ville ?

Le projet :

• Encourager la mixité sociale : étudiants, travailleurs, commerces, etc.

• Reconnecter l’îlot à la ville par le Sud

• Offrir une réponse à l’élasticité architecturale : évolution et réversible

- Espace public

- Absence d’identité

- Enveloppe architecturale

29
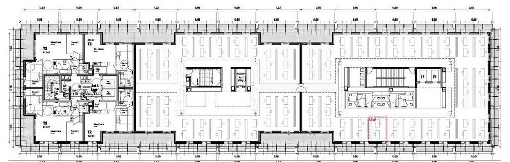
Plan masse 5 000ème

La volonté de reconnecter la ville et le campus, les habitants et la commune, les travailleurs et les étudiants est plus que primordiale. Offrir un espace pour Aarhus et ses habitants, jeunes comme actifs. Un bâtiment aux deux mondes, une porte architecturale entre le campus et la ville.

Pour répondre à tout cela, le bâtiment propose une structure de grande capacité, permettant d’inventer un dispositif capable de créer un ensemble de situations riches et diverses. La structure phénoménale et performante détermine des plateaux libres, flexibles et évolutifs, sans contrainte structurelle offrant une élasticité maximale. Le projet superpose indistinctement :

Plan masse 2 000ème

- Une place publique en son rez-de-chaussée

- Des ateliers, des locaux, salle de cours avec espaces de conférences et de restaurations

- Un espace d’exposition, d’événementiel, de représentation scénographique libre

- Une bibliothèque médiathèque commune avec espaces privatifs.

31
Plan RDC 1 500ème

Le projet

La base structurelle se compose de poutres à forte capacité de type HEA connectées à 4 piliers. Ceux-ci renferment les circulations verticales et constituant les piles du système de pont.

Ce système de hauban de pont permet d’alléger la poutre de 60 m afin de la réduire à 30 m, permettant ainsi à l’ensemble de résister.

32 Plan 1er étage 500ème
Plan mezzanine 1er étage 500ème Plan 2ème étage 500ème Plan 3ème étage 500ème Plan mezzanine 3ème étage 500ème
Schéma de structure et d’assemblage

Profil de type HEA de hauteur 390mm longueure du profil choisi est de L = 10 000mm en porte a faux

Matière du profil : acier = Mv = 7. 85kg/dm3

Limite élastique = 24daN/mm2

Module d’Young : E = 21000 daN/mm2

Il a pour moment d’inertie : Ix 45 070 cm4

Le poids propre de la poutre est de 1 250 kg Contrainte de charge technique de 500daN ( répartie)

Profil de type HEA de hauteur 390mm longueure du profil choisi est de L = 30 000mm sur deux appuis

Matière du profil : acier = Mv = 7. 85kg/dm3

Limite élastique = 24daN/mm2

Module d’Young : E = 21000 daN/mm2

Il a pour moment d’inertie : Ix 45 070 cm4

Le poids propre de la poutre est de 6 988.8 kg Contrainte de charge technique de 500daN ( répartie)

Profil de type HEA de hauteur390mm longueure du profil choisi est de L = 22 200mm sur deux appuis

Matière du profil : acier = Mv = 7. 85kg/dm3

Limite élastique = 24daN/mm2

Module d’Young : E = 21000 daN/mm2

Il a pour moment d’inertie : Ix 45 070 cm4

Le poids propre de la poutre est de 2737.5 kg Contrainte de charge technique de 500daN ( répartie)

La contrainte de la poutre est de 4.80 daN/mm2 pour un maximal admissible de 5.04 daN/mm2

La contrainte de la poutre est de 5.04 daN/mm2 pour un maximal admissible de 5.04 daN/mm2

La contrainte de la poutre est de 5.03 daN/mm2 pour un maximal admissible de 5.04 daN/mm2

33
Calcul de structure
Schéma de force

Le projet

Le sens du détail

34
Détail en plan de la structure poteau / baie au 10 ème
35 Même détaile en coupe 10 ème
36 Coupe perspective latérale échelle graphique 0 5 10
37 Coupe perspective longitudinale échelle graphique 0 5 10
38
39
40

Turn static files into dynamic content formats.

Create a flipbook
Issuu converts static files into: digital portfolios, online yearbooks, online catalogs, digital photo albums and more. Sign up and create your flipbook.