

IN FOCUS OUR DESIGN ETHOS IN DEPTH THE SOCIAL NETWORK
LIMITED EDITIONS THE WELLBEING EFFECT IN PERSON NEXT IN DP DESIGN
ISSUE 16.1
DP DESIGN ISSUE

![]()


IN FOCUS OUR DESIGN ETHOS IN DEPTH THE SOCIAL NETWORK
LIMITED EDITIONS THE WELLBEING EFFECT IN PERSON NEXT IN DP DESIGN
ISSUE 16.1
DP DESIGN ISSUE

Dear Readers,
“Design creates culture. Culture shape values. Values determine the future.” These are famous words by Robert L Peters and words that we deeply resonate with. Across our interior design works, we recognise the capacity design holds in effecting transformative change to the community it serves through the shaping of their physical environment.
Provisioning for a women-only section in a medical centre has the effect of not only sensitively catering to the need for privacy among female patients but also serves as a physical reminder among medical staff to practice a patient-centric outlook. Equally, design interventions for wider walkways within a mall renders it more inclusive, opening it to a wider consumer-group and thoughtfully-conceived third spaces within a workspace engenders greater engagement and collaboration between employees, which has the potential to encourage employees to build community and positively shape workplace culture. Each of these is evidenced in the body of works that we share in this special issue of Design in Print
This issue is also a reflection on how the massive socio-economic and political shifts of recent years have transformed the way we practice. The pandemic brought on a different way of working and living that has made employers reevaluate their corporate policies and culture; ultimately leading to a rethinking of the workplace as we know it (see The Social Network on page 16).
Socio-cultural movements have raised awareness across a spectrum of issues from diversity to mental health;
effectively challenging us to sensitively consider the lens with which we view spaces and approach their designs (see The Wellbeing Effect on page 108). The advancement of technology and its increasing integration into all aspects of our lives is transforming the way we interact and experience people, places and things; inherently demanding new landscapes in retail-entertainment and hospitality, and transforming our approach to design in these typologies (see Limited Editions on page 60). And at the centre of it all, climate-related emergencies around the world have been a rude awakening for us collectively. In acknowledging that business as usual is a one-track path to irreversible climate breakdown and loss of biodiversity, we have embarked on making systemic changes; beginning at home, within the DPA group.
Navigating the changes and challenges that lie ahead of DP Design alongside me are IDr. Allan Wang and IDr. Kenny Chia, our next generation of directors with a dynamic and revitalised team. Deeply rooted in DP Design’s ethos while bringing their unique perspectives and forward-thinking direction to the table, they have enabled our interior design practice to effectively recalibrate for better synergies in our structure, processes and workflows (see Next in DP Design on page 130).
Together, I believe DP Design will not only continue to hold true to designing for positive change but will do so with greater impact; propelling our interior design practice to aspire more boldly and reach greater heights.
Mike Lim Director, DP Design
04 Translucent Spaces | Odeon 331
05 HDB Workplace Transformation | Paragon Ceiling
06 The Light City - Waterfront Shoppes & Penang Waterfront Convention Centre
07 Alexandra Integrated General Hospital | Singapore Management University Administration Building
08 Two of DP’s Healthcare Projects Win at the 2025 MOHH Infrastructure Excellence Awards 09 Singapore Pavilion Opens to the Public at Expo 2025 in Osaka, Kansai, Japan
10 Paya Lebar Green Achieves Temporary Occupation Permit 11 Pullman Singapore Hill Street Wins IDA and LIV Hospitality Awards | Pencils by the Water
12 Our Design Ethos
THE SOCIAL NETWORK
20 Penn Color Technology Center | 30 A Verdant Workplace | 44 The Work Suite
LIMITED EDITIONS
64 Lotte Flagship Store at Changi Airport T3 | 74 Lotte Flagship Store at Changi Airport T2 |
86 Singapore Airlines Incheon SilverKris Lounge | 98 Singapore Airlines Perth SilverKris Lounge
THE WELLBEING EFFECT
112 Parkway MediCentre | 124 Regency Medical Care Centre
130 Next in DP Design
142 Synthesis And Synergy: Architecture For Community
EDITOR IN CHIEF Seah Chee Huang | GUEST
EDITORS Mike Lim, Allan Wang, Kenny Chia | EDITOR Belle Chung
CONTENT Belle Chung, Jobelle Tee, Thou Jia Qi | GRAPHICS Amelia Agustine, Buena Tan, Kirsten Wong | CONTRIBUTORS Lai Ann, Claudia Nam
PHOTOGRAPHERS Amelia Agustine, Bai Ji Wen, Finbarr Fallon, Drishti Kulshreshtha, Mazterz, Dion Robeson, Dominique Savio, Buena Tan, Juliana Tan, Thun KongSub, David Yeow


SINGAPORE COMPLETED
A newly completed workspace sited at the Marina Bay Sands, Translucent Spaces reveals an intersection of design within its context of retail and fashion, expressed through detailed, aesthetical elements with sensitive consideration of its users and functionality.
The three meeting rooms, anchored and connected by the lounge area, are envisioned as meeting galleries that also function as space for seminars, collaborative work and leisure. An integral design element is its translucent glass partitions. Their textured surfaces subtly divide the spaces while introducing more light, porosity and visual connectivity.
It further creates fluidity and dynamism within a workplace, rethinking the conventional office model that traditionally favour silo, boxedin spatial design and programming. Curated furnishings of eclectic colours and textures layer and work with the base palette to create an inviting atmosphere. As you move through the workspace, the view outside the windows blends with the exhibits, plants, and movement of visitors, harkening to the evolving landscape of commerce with the increasing integration of the real and virtual worlds.
SINGAPORE COMPLETED
The revamped Odeon 331, previously known as Odeon Towers, provided DP Design with the opportunity to reimagine the office lobby as a vibrant third place where work and leisure intersect. Guided by a ‘less is more’ concept, the design scheme proposed stripping back the lobby’s façade for an open and naturally-ventilated area. Greenery and timber elements are generously introduced into the lobby, creating an atmosphere of being nestled in an urban park while lending the office lobby a sense of place and arrival. The blurring of boundaries between the indoors and outdoors is also a key strategy in transforming the once-cramped and enclosed lobby so that it is more than a transitional space. Porous and welcoming, the improved visibility and accessibility to existing amenities and F&B stores effectively re-engages Odeon 331 with its locale while inviting end-users to dwell, connect and relax.


COMPLETED
SINGAPORE
The addition and alteration (A&A) work to the office spaces and frontof-house at the Housing & Development Board (HDB) Hub was a design exercise in creating an employee-focused and client-first environment that fosters community and connection. The design scheme was derived in response to stakeholder feedback for a less siloed and more inspired office setup, and an improved front-of-house that allows for better engagement with customers.
The design mediates the needs and demands by harnessing a distinct characteristic of HDB developments–the open-plan void decks, which introduced non-discriminatory third spaces into Singapore’s unique multi-racial and multi-cultural neighbourhoods with the aim of creating opportunities for meaningful interactions. Similarly, the service area and offices embrace an open-plan concept in which a carefully curated material and colour palette is incorporated to reflect the sturdy and utilitarian elements of HDB architecture while maintaining a sense of warmth and welcome, and flexible spaces, specifically shaped to their needs, are integrated to break down silos. By re-programming the floor plan, the design provisioned for more collaborative spaces and meeting rooms, catering for both spontaneous and formal discussions.
All of the elements work in tandem to encourage longer dwell time; engendering a sense of belonging in the workplace among employees and facilitating authentic outreach to visiting customers.
COMPLETED
SINGAPORE
The ceiling of the high-end luxury mall Paragon Shopping Centre, located in Orchard, has been meticulously refined to meet the requirement for smoke extraction. This design not only enhances the mall’s aesthetic appeal but also addresses its functional needs. Embracing the concept of a “Romantic Garden”, the ceiling features intricate floral motifs and classical grids, immersing shoppers in the luxurious experience offered by the diverse designer stores within the mall.
The central feature of the ceiling — a circle adorned with elaborate floral patterns — acts as a focal point, creating a sense of grandeur within the space. The soft, diffused lighting forms a delicate balance of illumination that highlights the depth and intricacy of the floral patterns without overwhelming the space, offering shoppers a luxurious experience.

The Light City – Waterfront Shoppes & Penang Waterfront Convention Centre is a premier integrated waterfront development designed to redefine retail, lifestyle and MICE (Meetings, Incentives, Conferences, and Exhibitions) experiences. Blending modern architecture with Penang’s rich heritage, the essence of Georgetown’s iconic streetscapes is a key inspiration for the design, harmonising its colonial heritage, multicultural influences, and modern urban aesthetics to create a unique mix of nostalgia and innovation.
Comprising the Waterfront Shoppes and the Convention Centre, The Light City adopts a flexible approach to accommodate the multi-disciplinary, multi-functional and multi-sensory aspects contemporary users demand from lifestyle spaces. Meticulously
planned to serve evolving needs in the ever-changing retail experience, the spatial design incorporates landscaped terraces and a waterfront promenade for community engagement and cultural exchange. In addition, the state-of-the-art Convention Centre offers adaptable spaces, advanced audiovisual technology, and seamless connectivity for large-scale exhibitions, conferences and corporate events, positioning Penang as a leading MICE destination.
Balancing innovation with sustainability, the development’s design integrates advanced strategies in energy efficiency, carbon reduction, site ecology and water conservation — ensuring longterm urban resilience. The Light City is a true embodiment of Green-Well-Tech (GWT) principles with its sustainable, humancentric and technologically future-proofed design.




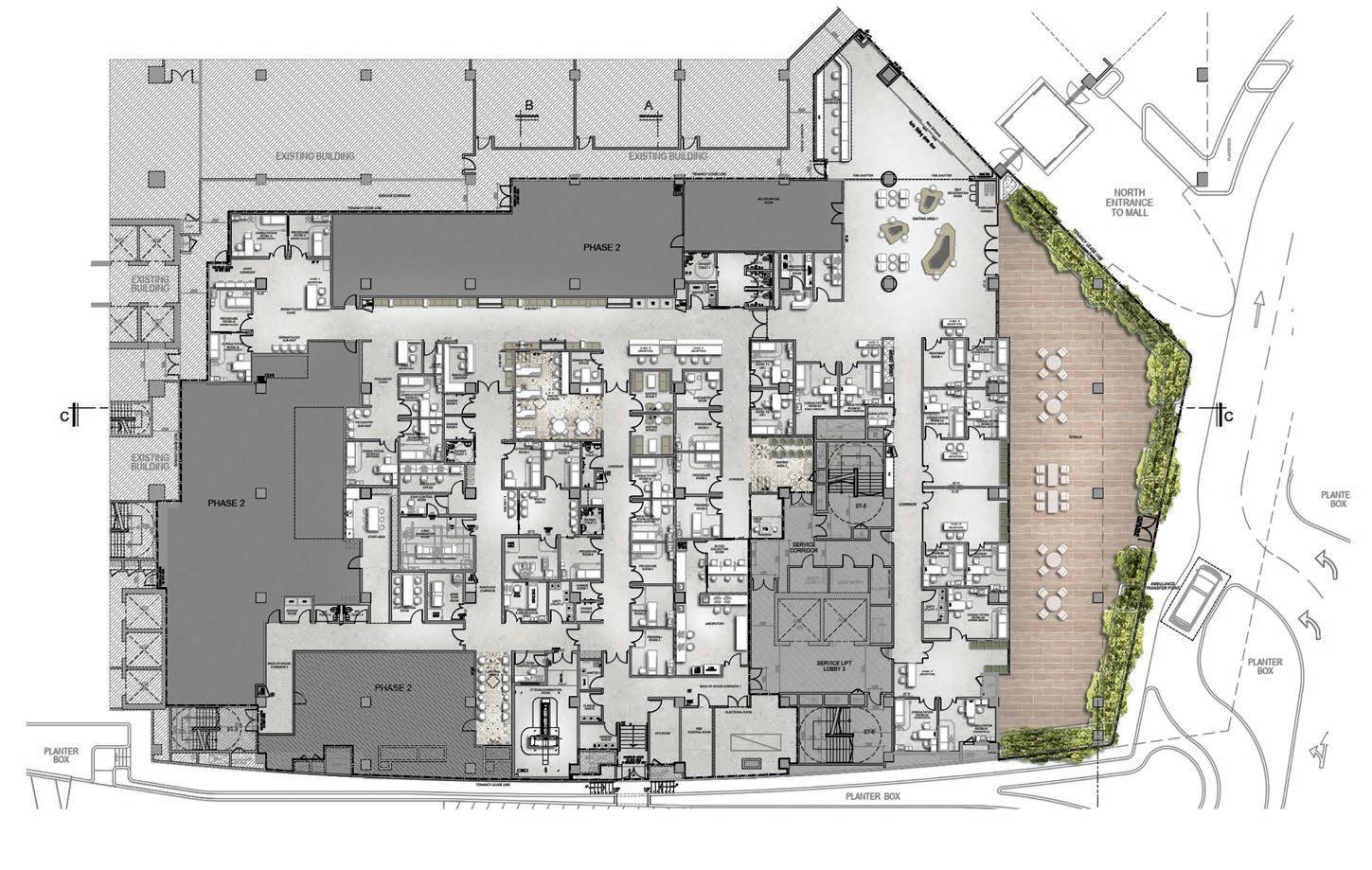
The design brief for the A&A of the Administrative workspace for Alexandra Integrated General Hospital (AIGH) is to create a unified and efficient workplace that serves 1,400 healthcare professionals across multiple floors and two distinct towers.
Recognising the varied needs of this large and diverse user group, a user-centric design approach which entails careful analysis of the hospital’s operations and close collaboration with the stakeholders to understand preferred working habits and future aspirations has been adopted. The design scheme navigates the myriad of requirements, proposing a system of modular yet adaptable components that are meticulously tailored to accommodate the unique dynamics and preferences of each team. This ensures an optimal balance between consistency and customisation across the workspace.
The heritage of AIGH formed the cornerstone of the design concept. Known as the ‘Hospital in a Garden’ and as a designated National Heritage site, it drew on the rich tapestry of botanical heritage, translating it into tangible design elements throughout the interiors.
The design for the SMU Administration Building merges urban and natural worlds to create a unique workplace fostering connection, collaboration and productivity among staff and students. Integrating biophilic elements and natural lighting, the design reflects the outdoors, forming a ‘vertical garden’ that gradually transitions through greenhouses, gardens and courtyards as users ascend the building. This approach aims to enhance proximity to nature and improve the wellbeing of staff and students to create a more productive and harmonious environment. This wellness focus is complemented by sustainable design strategies, integrating energy-efficient systems for air-conditioning and lighting as well as utilising renewable energy from solar panels to support the building’s needs.
Transforming the building into a flexible workplace, open-plan spaces catering to different modes of work are incorporated to encourage interaction and collaboration. The emphasis on adaptability is also reflected in the multi-functional public spaces on the lower floors, serving as both reception spaces and event venues for diverse needs. A refreshing interpretation of conventional offices, the design for the SMU Administration Building offers dynamic environments promoting wellness and collaboration.


DP Architects is honoured that its projects, the Alexandra Integrated General Hospital (AIGH) and the Elective Care Centre & National Dental Centre Singapore (ECC & NDCS), have been recognised at the MOH Holdings (MOHH) Infrastructure Excellence Awards.
Accorded the Gold Award, AIGH was praised for its well-thought, patient-centric and wellbeing-focused design and planning strategies to reinvigorate the hospital’s existing heritage buildings and infrastructure, improve its connectivity to adjacent communities and transport nodes and enhance its accessibility to and integration with green spaces. The redevelopment plans align with and support Alexandra Hospital’s Integrated General Hospital care model and multi-disciplinary programme, enabling patients to receive acute and rehabilitative care from the same care team at a single location.
The ECC & NDCS earned the Merit Award. The project was recognised for its strategic design, which supports the future expansion of the new Singapore General Hospital while prioritising operability, scalability, adaptability and flexibility within the re-imagined Outram Medical Campus.
The award wins affirm DPA’s commitment and capabilities to deliver quality healthcare designs that not only uplift its patients but also sensitively cater to the complex functions of the medical institutions and the diverse needs of its staff. The award ceremony was held at JW Marriott Hotel on 17th March and attended by DPA director Chan Hui Min for AIGH and Ar. Timothy Tan for ECC & NDCS, and CEO of DPA, Ar. Seah Chee Huang, who received the awards on behalf of the design practice.

The Singapore Pavilion at Expo 2025 Osaka opened to public on 13th April and despite a full day of rain, saw a wonderful turnout. Set against the grey skies and in geometric symmetry to the iconic Grand Ring by Sou Fujimoto, the Dream Sphere with its strong form, and striking and tactile envelop of over 17,000 recycled aluminium discs made for a stunning visage.
As a homegrown design practice, the Singapore Pavilion project has been a deeply meaningful one for DP. The opportunity to represent Singapore and to communicate the country’s national story, spirit and aspirations to the world has been an immense honour. Inspired by the term “the little red dot”, the pavilion is a larger-than-life experiential Dream Sphere that reflects the bold spirit of Singapore’s aspirations. More than just a symbol, it invites everyone to dream
together and to imagine new possibilities, believe in humanity’s shared potential and shape a better tomorrow. Aligned with the Expo theme, Designing Future Society for our Lives, it celebrates the power of collective dreaming and commitment to building a more hopeful, inclusive and better-than-sustainable future.
This successful realisation of our architectural vision would not have been possible without the collaborative effort of our partners, the Singapore Tourism Board, Kingsmen Exhibits and KR+D along with multimedia partners, Finding Pictures, Milla & Partner GmbH, and creative consultant, Presplay, and the collective work of DP’s own multidisciplinary team of façade engineers, civil and structural engineers, environmentally sustainable design specialists, landscape architects, interior designers and lighting designers.

Paya Lebar Green (PLG) has achieved Temporary Occupation Permit (TOP). Five years in the making, the completion of Paya Lebar Green marks a milestone for DP as the design practice continues to rethink liveability and to push towards better-than-sustainable outcomes in its projects.
Working in close collaboration with Certis, the multidisciplinary design team comprising DPA, DPD, DPG and DPSD, proposed a bold design plan for the refurbishment of the Certis Cisco Centre at Jalan Afifi (now PLG’s North block) to meet BCA’s super low energy criteria and the addition of a newly-built South block; all of which were conceived with peoplecentricity, health and wellbeing and sustainability centred at the heart of DP’s design scheme.
DP’s vision and plan, carefully executed, delivers a Grade-A office development that is one of the greenest, smartest and healthiest workplaces in Singapore. The project was certified BCA’s Green Mark Platinum - Super Low Energy and the first of its type to receive all five sustainability badges in the areas of Health & Wellbeing, Whole Life Carbon, Resilience, Intelligence & Maintainability. Its South block also received the International WELL Building Institute WELL Core PrecertifiedTM Silver and WiredScore Platinum. Its North block received WiredScore Gold for digital connectivity.




DP Architects is delighted to announce that Pullman Singapore Hill Street has won the LIV Hospitality Design Awards in the Interior Design Hotel – Luxury category and accorded Gold at the International Design Awards in the Hospitality category, Interior Project Development.
The project is celebrated for its daring vision and elegant execution of its design scheme, which was inspired by the George Pullman train car. It blends modern luxury with historical charm, featuring warm tones, delightful details and timeless elements; effectively delivering a unique and immersive hospitality experience that embodies the Pullman brand.
DP Green’s Pencils by the Water was revealed at Punggol Waterway, Singapore during the Community Walk and Launch of PLAY@Punggol, held on 15th March. Comprising 12 delightfully assembled, larger-thanlife colour pencils, their creative intent was to deliver urban art that is at once a unique community touchpoint and a space that sparks curious learning and exploration of Punggol’s heritage and identity.
Pencils by the Water emerged as one of three winners out of 81 submissions to the PLAY@Punggol design competition, which was organised by the Urban Redevelopment Authority (URA) of Singapore and supported by the National Parks Board and JTC Corporation.


DP DESIGN PURSUES DESIGN OUTCOMES THAT EXTEND BEYOND AESTHETIC APPEAL. HERE IS A CLOSER LOOK AT WHAT OUR ETHOS AND APPROACH ENTAIL.
DP Design, in alignment with DP Architects’ founding mission, has always been concerned with spatial quality and design excellence. Anchored in our belief in the transformative power of purpose-driven design to inspire positive change, our practice goes beyond aesthetics to create uplifting interior environments that resonate deeply with the emotions and unique experiences of their end-users. To us, the true aspiration of design is to foster authentic connections and lasting bonds where every space is thoughtfully crafted into well-loved place, both memorable and meaningful.
We take a holistic, investigative and non-linear approach to interior spaces; formulated in direct response to a building’s intrinsic architectural relationships and the socio-economic landscapes that our clients and their brands reside within. In doing so, our design process goes beyond visual appeal to critically consider extrinsic factors such as brand perceptions
and culture, and intrinsic elements like that of layout and functionality. It harnesses cross-typology expertise and wellpurposed strategies to derive dynamic solutions and values proposition for all our projects with creative synergy and agility.
This has enabled us to deliver a sterling international body of works over the decades; including Singapore’s Esplanade –Theatres on the Bay, Yotel Singapore, Paragon Shopping Centre, HDB Hub and the recent addition and alteration (A&A) works to its Atrium on Level 3, the A&A of Orchard Central, LOTTE’s flagship Duty-Free Shop at Changi Airport Terminals 2 and 3, and the award-winning workplace transformation of Penn Color Technology Center and Odeon 331 as well as overseas projects including The Exchange TRX in Kuala Lumpur, Malaysia, Emaar Square Mall in Istanbul, Turkey, Yotel Ginza in Tokyo, Japan, and SilverKris Lounges at Perth International Airport, Australia and Incheon International Airport, South Korea.
We apply a non-linear approach to creativity that harmonises between intentions, possibilities and outcomes to bring positive change to our world.
observe, analyse and challenge assumptions of current perceptions of a brand and its market landscape
enable identities to stand the test of time while staying true to their essence
parameters and strategic inquiries that are led by a combination of empathic design and critical thinking
develop and implement relevant touchpoints between culture, patron and place that will bring about measurable impact


The design development across every project is an intimate participation and exchange between our designers, interior architects, clients and consultants; allowing for the character and functionality within any given space to be realised to its fullest potential. However, the creative process does not end here. Each finished project stands as an open-ended narrative that invites its occupants to forge memories and foster a sense of community and belonging. We expound on these guiding principles behind our design philosophy and their generative outcomes through three key narratives in this issue:
1. The Social Network rethinks the conventional office layout and spatial design through the reimagining of workplace culture; engendering a more communitycentric environment that cultivates connections, fosters collaboration and sparks creativity.
2. Limited Editions explores design and programmatic strategies in relation to brand positioning across retail and hospitality spaces; crafting bespoke touchpoints and high value service experiences that will build consumer following.
3. The Wellbeing Effect pushes for better healthcare environments through a patient-centric and crossdisciplinary approach in design; leveraging wellbeing design strategies that support healing, empower staff and connect medical centres to the communities they serve.
The outcomes of our designs are assessed against the Attributes of Purposeful Design (APD) framework. The design tool was revised by DP Architects’ Green-Well-Tech domain experts to set eight major sustainability outcomes in alignment with the goals of the SG Green Plan 2030. Institutionalised as DP’s groupwide key performance indicators (KPIs), it helps us understand and analyse the impacts of our designs in truly achieving a more liveable and inclusive tomorrow.
ANCHORED IN OUR BELIEF IN THE TRANSFORMATIVE POWER OF PURPOSE-DRIVEN DESIGN TO INSPIRE POSITIVE CHANGE, OUR PRACTICE GOES BEYOND DECORATION TO CREATE UPLIFTING INTERIOR ENVIRONMENTS THAT RESONATE DEEPLY WITH THE EMOTIONS AND UNIQUE EXPERIENCES OF THEIR END-USERS. TO US, THE TRUE ASPIRATION OF DESIGN IS TO FOSTER AUTHENTIC CONNECTION AND LASTING BONDS WHERE EVERY SPACE IS THOUGHTFULLY CRAFTED INTO WELL-LOVED PLACE, BOTH MEMORABLE AND MEANINGFUL.

Breaking the mold of workplace design to regenerate that office buzz; enabling connection and collaboration, community and culture, creativity and productivity.


The nature of work has long shaped the design of the work space. From the open plan office with work desks in factory-like grids to the ultra-modern co-working office, the narrative that has underpinned the evolution of office design is one of greater space efficiency, better employee productivity, lower costs and higher profits.
While this continues to hold true today, the corporation is no longer the only author writing the script. The COVID-19 pandemic has given rise to new models of work and with it, employee demands for a different way of work. We see this in hotly debated topics on the ‘death of the office’, presentism and performance, burnout and workplace culture. What has since ensued, is perhaps, the greatest workplace experiment to date. And experimentation requires strategy; a deliberate addressing of deep-rooted causes to manipulate outcomes without stifling room for growth and change.
In understanding this, our strategy in workplace design anchors in on the theory of the office as being more than a place for productive work; retrofitting it into a social network. Corridors are functional third spaces where employees can hot-spot ideas and pantry-esque nodes are communal points for meaningful engagement and deeper dialogue. To do so, we acknowledge the current push for hybrid work arrangement by amplifying the pull of collaboration and community in the workplace. It is our belief that when well strategised, design can create office spaces that are egalitarian, human and community-focused, thereby affecting a very necessary and transformative change in workplace culture.
We echo this breakdown of silos in our design process which is investigative and collaborative. Beginning on a blank slate (and floor plan), we find out what we do not know, test what we think we know, and anticipate that we will not know everything. In doing so, we understand the people we design for and the experience they desire. Within this process, the employees are as much a co-creator as their employers are in envisioning their ideal office environment. From here, our design schemes become highly bespoke; each curated to the unique needs of the end-users and the characteristics of the space yet purposefully designed towards a progressive and welcoming workplace for building strong social capital and nurturing effective employees.
Through it all, we also believe in white space – some emptiness and flexibility in the canvas for the occupants to “live-in” to the space and create a sense of place. This simultaneously allows room for our clients to make design – spatial edits –to address future needs down the line. After all, change is the only certainty that we can predictably expect to occur.

SINGAPORE INTERIOR DESIGN AWARDS 2024 \ SILVER AWARD Best in Workspace Design – Floor Area ≤ 500sqm
SINGAPORE INTERIOR DESIGN AWARDS 2024 \ LUMINARY AWARD Best in Workspace Design – Floor Area ≤ 500sqm
WORLD ARCHITECTURE FESTIVAL 2024 \ WINNER
INSIDE: Workplace (Small)
IFI DESIGN DISTINCTION AWARDS 2024 \ BRONZE Work
IDCS DESIGN EXCELLENCE AWARDS 2023 \ GOLD Best Workplace Design ≤ 2,000sqf
Headquartered in Hatfield PA, USA, Penn Color is a leading global supplier of colours and functional additives in masterbatches and compounds for thermoplastics, as well as high performance pigment dispersions for inks and coatings. With a diversity of technologies and expertise that are unique in the industry, Penn Color serves applications for consumer goods, building and construction, transportation and infrastructure industries.


IDENTIFICATION OF WORKFLOW
SCENARIO 1 FIRST SESSION WITH CLIENT SCENARIO 2 INTERNAL STAFF PROCESS
SCENARIO 3 FOLLOW UP SESSION
SCENARIO 4 FEEDBACK AND CLOSE OFF

The creation of a well-purposed and meaningful workplace involves thoughtful orchestration of elements that extend beyond curation of furnishing and materiality alone. It examines spatial planning and design strategies that simultaneously facilitate productivity and collaboration, engendering deep work, fruitful connections and creative outcomes.
This formed the crux of our design thinking and concept behind Penn Color’s first design centre in Asia: a colour technology centre that embodies the brand’s longstanding reputation in innovation, collaborative and transparent approach, and quality products. Understanding the client’s brief, we recognised the opportunity that Penn Color’s vision offers to break the industrial-office archetype and worked synchronously with the client to investigate what a creative-meets-technologist space would be. Through this process, we arrived at a strategy that sensitively collages the various spaces by functionality (i.e. meetings, team discussions and deep work) and outcomes (i.e. creative collaboration, cross-pollination of ideas and optimal productivity).
NON-LINEAR RELATIONSHIP OF SPACES
SAMPLE TESTING AND VIEWING OF MOCK-UPS OR PRODUCTS

PRESENT PRESENTATION AND SHOWCASING OF WORKS. FORMAL MEETING SETUP TO PROSPECTS.
CO-CREATE BRAINSTORMING COLLABORATIONS
CREATE STAFF WORKSPACE AND FABRICATION OF MOCKUPS AND PRODUCTS.
CONSULT INFORMAL & COSY SETTINGS FOR DISCUSSIONS LOUNGE SOCIALISING WAITING









“EVERY DAY, WE LISTEN TO CUSTOMERS TELLING US THAT IT IS NOT ENOUGH TO SIMPLY HAVE GOOD PRODUCTS: A GREAT EXPERIENCE IS WHAT MAKES A DIFFERENCE.”
NICOLAS RIVOLLET, PENN COLOR’S VP OF MARKETING
Our zonal approach leverages the V-shaped, single level floor plan to create a dynamic composition of co-working spaces, discussion pods and enclaves for quiet work. Deliberately borderless, our intent in alignment with Penn Color’s vision, was to maintain visibility and fluidity of space and movement; thereby, engendering an environment for authentic collaboration and creative ideation.
Iterating this vision and translation of Penn Color’s brand experience, our design scheme prioritised three things–simplicity, sustainability and user-centricity–and drew inspiration from nuances of Asian hospitality. The aesthetic outcome is altogether unassuming, honest and warm; achieved through the use of simple, unembellished materials that demonstrate a prosaic and organic quality. This is captured in the workspace’s central feature, the rotunda or Central Drum. For its capacity to imbue a space with a sense of warmth and authenticity, intentionally untreated wood and raw concrete screeded flooring form the core materials. Its concentric form of slatted wood is conceived and assembled with a precision that resonates with Penn Color’s own colour design process and outcome. Grand yet unobtrusive, porous but private, it anchors the workspace and sets the tone for open collaboration and meaningful partnerships.

Just within sightline from the Central Drum are the Landscape Pods. Low concentric seats set against a lush wall of greenery and in adjacency to a self-serve pantry in neutral tones accented by a wall of Penn Color’s products, they serve to extend the collaborative zone for easy ad-hoc meetings with clients and/or between colleagues and are complemented by formal conference rooms located deeper within the floor plan. The conference rooms double up as deep work zones, fulfilling Penn Color’s need for spatial flexibility for its diversity of uses and achieving longevity of design.
By marrying user-centrism, organic simplicity and sustainability, this is where science-meets-arts, technologists and designers come together facilitated by well-meaning collaborative spaces. In turn, we were afforded an opportunity to craft a delightful space for creativity and to allow the endless potentialities for design to effect powerful, purpose-driven change for all.







SINGAPORE 2023 3,600SQM
AWARDS IDCS DESIGN EXCELLENCE AWARDS 2024 \ SILVER Best Workplace Design ≥ 5,001sqft
GOLDEN PIN DESIGN AWARD 2024 \ MARK WINNER Spatial Design (Office Space)
SINGAPORE GOOD DESIGN (SG MARK) 2024 Spatial Design
SINGAPORE INTERIOR DESIGN AWARDS 2023 \ BRONZE AWARD Best in Workspace Design ≥ 500sqm
Dissecting the current trends and typicality of work spaces, it was realised that new models of work have emerged with the shift in landscape towards a more flexible and collaborative environment. Workplace wellbeing has increasing importance (which goes beyond an organisation’s wellbeing incentives and programmes) in facilitating connection, community and collaboration, and in contributing to greater creativity and productivity.
A Verdant Workplace was designed with this in mind. The client’s brief called for a new working setup for its employees, and better integration and synergy of its various office departments and functions, including a new Academy area. LOCATION YEAR




The office sits on a singular level, spread across three separate units. To create continuum of space, we applied an open office plan and adapted our spatial zoning approach from the park typology to deliver an office environment rich with social touchpoints and delightful to meander through. Our design of the Reception and Waiting Area sets the tone. It echoes a ’walk in the park’ experience with its generous green wall, arch detailing and hang-out spots for quick meets and impromptu discussions.
This approach carries into the office, where space is zoned into three core programmes: co-work, co-create and commune. The Journey with work stations in open-plan format forms the main co-working area. A favourite feature here are the loft decks for deep work and/or discussions. Designed for both formal and casual use, meeting rooms for collaboration and co-creation, and training rooms for learning and sharing are clustered at the Playground. Last but not least, the pantries are conceived as ‘Cafés in the Park’ with a tranquil gardeninspired alfresco dining area. Its material palette of sustainablysourced wood and carpeting creates a warm atmosphere that invites employees to rest and/or to commune. Belying this, is also a sense of versatility to the space which allows for it to serve as an ad hoc meeting spot or a refreshing refuge for quiet work.


THIS MULTITUDE OF MULTI-USE SPACES CATER TO EMPLOYEES’ VARIOUS NEEDS OF REFRESH, FOCUS AND SOCIALISATION, CENTRED AROUND PRIORITISING AND SUPPORTING THEIR MENTAL WELLBEING.
Our design scheme strategically co-locates these zones in adjacency to one another and seamlessly weaves its social spaces via a distributary of communal pathways. This thoughtful collage of spaces encourages dynamic and active employee engagement; thereby, deeply nurturing the spirit of collaboration and authentically fostering a sense of belonging that are transformative for its workplace culture and productivity. In fact, it was observed that levels of socialisation have increased without detriment to productivity. Staff wellbeing has also reportedly improved as the multitude of spaces better cater to their needs.
Biophilic and wellbeing design strategies are layered into our spatial programming to ensure that the design scheme truly delivers on employee wellbeing. Borrowing from and connecting to its surrounding outdoor spaces, we introduced an enveloping landscape throughout the workspace. This use of and proximity to nature immediately imbues the workplace with a sense of calm and wellness; thereby, positively contributing to the mental and emotional wellbeing of employees. In fact, employee feedback has been that the presence of greenery throughout the office has given the workplace a soothing ambience, conducive for work. Beyond the choice of material and colour palette, other wellbeing design strategies we’ve applied includes the reduction of light glares in the doublevolume, high glazing space with the installation of circadian lighting system which automatically and intuitively adjusts its lux level and lighting temperature throughout the day.








ROLLERBLINDS

THE MATERIAL PALETTE CHAMPIONS SOOTHING TIMBER TONES PAIRED WITH LUSH CHAMPAGNE METAL TRIMS. LINED HOMOGENEOUSLY ON THE WALLS, THEY ARE COMPLEMENTED BY NATURE-ESQUED CARPET AND VINYL FLOOR TILES.
For both of its sustainability design and initiatives, A Verdant Workplace was awarded with a Green Mark Platinum by the Building & Construction Authority of Singapore. It utilises energy efficient HVAC equipment, motion-sensor circadian lighting and an integrated HEPA air-condition system to achieve a sustainable and wellbeing-first workplace.
An atypical workplace defined by wellbeing and collaborative spaces, it breaks away from the conventional layout of the client’s former office which lacked strategic space-planning and was deeply siloed; thereby, discouraging inter-department communication as well as creating a disconnect between employee and the organisation. A Verdant Workplace creates, instead, an opportunity to allow an employee-first environment and in doing so, stands as testament to the power of design to effect real, positive change.

THE RETHINKING OF AN OFFICE SETTING AS WE KNOW IT, ENABLED A RE-SHAPING OF THE WORKPLACE ENVIRONMENT AND CATALYSED LASTING AND PURPOSEFUL CHANGE IN THE BEHAVIOURS AND MINDSETS OF ITS END-USERS.


An outdoor patio is a multi-functional space ideal for socialising, team gatherings and office events. It provides a tranquil environment for employees to take respite, fostering collaboration and wellbeing in a relaxed atmosphere.
Water-efficient wares and fixtures, coupled with a water monitoring system, ensure optimised water use and early leak detection, promoting sustainability and conservation.
Modulation of planning and system furniture and rooms systems that can be fabricated off-site. Material and adhesive used are of local and sustainable sources.
In addition to the social and psychological aspects of the workplace, we prioritise wellbeing, believing that a healthy environment begins with thoughtful interior design. We incorporate horticulture and art to provide positive distraction and relief.
Energy-efficient LED and circadian lights with automated/ sensor lighting and ACMV control.
Prioritised ergonomic furniture, ample natural light, and green spaces, creating an environment that promotes wellbeing, productivity, and collaboration.

All circulation widths are designed for handicap and pedestrian access in tandem.
We focus on social sustainability by making sure it is a barrier-free, inclusive, collaborative and welcoming place for all.
Designated spaces offer a tranquil environment for rest, reflection or prayer. This area provides a peaceful respite, promoting relaxation and supporting overall wellbeing.
The air conditioning system is an energy-efficient solution that integrates with the Building Management System (BMS). It provides live readings and real-time information, optimising comfort while reducing energy consumption.

AWARDS IDCS DESIGN EXCELLENCE AWARDS 2024 \ SILVER Best Workplace Design ≥ 5,001sqft
SINGAPORE INTERIOR DESIGN AWARDS 2024 \ HONOURABLE MENTION Best in Workspace Design – Floor Area ≥ 500sqm
SINGAPORE GOOD DESIGN (SG MARK) 2024
Spatial Design
We broke away from the sterile office stereotype; working together with the client to re-envision their new office space. Drawing from their hospitality business and our expertise in hospitality and commercial typologies, we applied a cross-disciplinary approach to this workplace project. The Work Suite, completed in 2023, is more than just a stunning hotel-inspired office. It is a transformative workplace that catalyses better brand resonance and positive change in work culture among its employees.
The brief called for an office design that aligned with their business in hospitality and brand. An examination of the client’s old office fit-out allowed us to gain insights into its main challenge: communication deficiency.
Rethinking conventional office templates, The Work Suite creates a people-centric workplace through creative, function-based configuration of space within an open floor plan. This design strategy prioritises adjacencies and generates collaborations between departments while respecting the confidentiality of its stakeholders and catering to hybrid work arrangements. The mechanics of the spatial programming across the three floors were derived from a distillation of functions across the different departments into three key categories: Socialise, Innovate and Huddle.
Our goal was for an office environment that enables human, community-focused experiences and that can help re-shape employees’ mentality of and approach to work. To realise this, each floor is zoned into quadrant ‘neighbourhoods’ with its own set of amenities — meeting rooms for Huddles; focus rooms and work booths for Innovating; and, open collaborative spaces for Socialising. These ‘neighbourhoods’ are anchored by the heart of the office, which forms a central spine down all three floors. It houses a diverse spread of delightfully designed collaborative setups such as scalloping vaulted ceilings in the conference rooms and landscaped huddle spaces.
A standout feature is the tubular pantry; its design inspired by underground linkways. Integrated as a key thoroughfare within the central zone of the office, it offers colleagues opportunities to commune, foster inclusivity, build relationships and nurture a sense of community within the workplace. At its opposite end, the lift lobby design draws nuances from hospitality projects, transforming into a dynamic third space that not only facilitates chance encounters but also caters room for solo work.
Fluid and adaptable, the division of the office by functions instead of walls, enabled spatial programmes to be incorporated in surprising but delightful ways.

HUDDLE, INNOVATE –BY RETHINKING THE FUNCTIONS OF THE OFFICE, WE REINVENTED THE WORKPLACE AND ITS CULTURE FOR OUR CLIENT.


SOCIALISE ARRIVAL MEET AND GREET
PRESENTATIONS MODES BUSINESS LOUNGE

HUDDLE INFORMAL & COSY SETTINGS
DISCUSSIONS
SMALLER GROUP VIP ROOMS


INNOVATE ALL-DAY TOWNHALL / FUNCTION CO-CREATE TRANSFORMATION SPACES





PLAYING TO THE CHARACTERISTICS OF THE OFFICE SPACE, WE CONFIGURED UNIQUE PANTRY DESIGNS ON EACH FLOOR AND TRANSFORMED THIRD SPACES INTO HOTSPOTS FOR SOCIALISATION AND MEETING HUDDLES.

The Work Suite infuses the warm and welcoming tones of hotels within a corporate setting. On the office’s first level, staff and visitors are greeted by a grand arched-ceiling lift lobby, before being ushered into the daylight-filled reception lounge. Envisioned as a space for huddling, the lounge with breakout rooms accommodates for different meeting formats. Its mirrored ceiling further captures and enhances the dynamism of the space. The use of tapestry is reminiscent of hotel lobbies, accentuating the hospitality nature of this unique workplace.
The melding of hospitality and corporate elements is also reflected in the carefully curated material palette that offers a diversity of textures. Upholsteries with floral patterns introduce a soft luxury associated with hotels, while reflective and sophisticated metal finishes in champagne tones used for fixtures and details provide a contemporary corporate edge. These are paired with light timber elements that contribute towards a warm atmosphere. By balancing the two distinct yet complementary ambiences, a harmonious blend is created.









Biophilic design is incorporated through the many indoor planters located across the workplace. Paired with natural light filtering into the office, the aspiration was to create a more productive work environment and to benefit staff members’ wellbeing via a connection to nature and the outdoors while in the office.
Sustainable features are also weaved into the design, including energy-efficient light fixtures, circadian lighting, and automatic and heat sensors for lighting. Together with daylight harvesting, they work to reduce the reliance on artificial lighting and offset the office’s energy consumption. Sustainable products, such as WELS 3-tick sanitary features, and sustainably-sourced materials, like timber ply and veneers, are also used; reducing emissions in both its build and operations.
A hub for collaboration and connection, The Work Suite delivers a holistic space that benefits its people, whether in terms of their work environment, relationships with colleagues or their own wellbeing.


An acoustically treated office with noise dampening materials, tailored to different levels of collaboration and ensures the provision of an environment conducive for deep work.
All circulation widths are designed for handicap and pedestrian access.
Emphasised a people-centric approach that humanises shared spaces and craft experiences, connections and meaning associated with the the organisation’s brand and operations.
Open plan and without siloed spaces, the design is inclusive and welcoming, engendering collaboration and community.
Water-efficient wares and fixtures, coupled with a water monitoring system, ensure optimised water use and early leak detection, promoting sustainability and conservation.
Every level features designated spaces that offer a tranquil environment for rest, reflection or prayer, promoting relaxation and supporting overall wellbeing.

Modulation of planning and system furniture and rooms systems were designed for off-site fabrication. Material and adhesive used are from local and sustainable sources.
In addition to the social and cultural aspects of the workplace, we prioritised wellbeing, believing that a healthy environment begins with thoughtful interior design. We incorporated horticulture and art across all three levels to provide positive distraction and relief.
Ergonomic furniture, ample natural light, and green spaces, create an environment that promotes wellbeing, productivity, and collaboration.
Energy-efficient LED and circadian lights with automated/sensor lighting and ACMV control across the entire office.
All meeting spaces feature equal screen viewing angles, ergonomic seating and handicap-friendly provisions, supporting DEIA principles.

Elevating brand narratives to generate high value retail-tainment and service experience that build consumer following.


The sum of life is made up of a compilation of moments; each moment is defined by a unique memory; and every memory is a short story of experiences that extend beyond things that are visual and tangible to that which are emotional. Space facilitates this. And it is from this perspective that we view our projects, approaching each as a narrative journey, where interior and spatial design has the capacity to help shape memorable moments – “Limited Editions” as we term it.
Whether it is the comfort of a cup of familiar brew, the quiet thrill of watching an aircraft take off, the delights of customised retail or the excitement of a VIP experience, our approach is not decorative. Instead, we place people at the heart of it. From retail to hospitality design, we seek to understand both the clients’ and end-users’ needs, and relate to them through thoughtful curation of space, materials and form. Our methods are at once intuitive and empirical; leveraging data and human behaviourial science to inform brand positioning, spatial programming and design strategies while leaning into our senses to guide nuances in brand and visual appeal.
Each project, meticulously and sensitively crafted, is a bespoke edition. At once a stunning iteration of the client’s brand identity and an unforgettable experience for its end-users, our designs deliver a fan-based journey in which we consider the end-users as active players in the narrative and offer white spaces in the canvas for their participation and evolvement. The outcome is designs that convert consumers and delight followers; effectively building brand following and long-standing patronage.

The brief for Lotte’s duplex store at Changi Airport Terminal 3 was to create a retail space that offers consumers an immersive brand experience. As the lead designer for the project, DP Design leveraged its deep capabilities in interior architecture and theming to deliver a shopping experience that rings true to Lotte’s retail reputation and carries international appeal. The fusion of high-tech elements and interactive experiences create a sense of wonder and excitement, leaving a lasting impression on customers.




In/Out
1. DUPLEX INWARD MASSING
FROM ITS BESPOKE INTERIOR DESIGN TO ITS EXCLUSIVE LOUNGE SETTING ON THE SECOND FLOOR AND CUSTOM-ORDER LIQUOR, ‘ONE-OF-A-KIND’ FORMS THE CORE OF LOTTE’S RETAIL EXPERIENCE AND SETS IT APART FROM ITS COUNTERPARTS.


3. ARRIVAL AND VIEW ASPECT BRANDING


EXPERIENCES



The site, with its voluminous height, offers unique opportunities. Capitalising on this, our design scheme proposed a tiered interior with an all-glass façade to match and a shop-in-a-shop concept.
From the outside, the duplex store stands like a beacon. Its façade of sleek frameless glazing offers a full view of its star interior feature — the curvilinear upper floor verandah — and a glimpse into the products and activities within; effectively, capturing interest and drawing visitors in. This borderless expression also allows the retail activity of the shop to blend with its surrounding atrium, creating a seamless buzz of movement and happenings. It imprints upon the visiting traveller, an unforgettable worldclass retail and airport experience.
Tiering the interior serves to maximise floor space and retail capacity, allowing for Lotte to showcase the brand’s diverse offerings. This, combined with strategically curated multisensory experiences through a mix of media, smell and touch elements, enabled us to set the stage for a delightful retail journey for shoppers.



Carefully choreographed through intuitive space and product planning and wayfinding, the aim is to embed shoppers in a narrative-driven exploration in which they meander seamlessly from one luxury category to another. We thoughtfully considered the various product categories the duplex store carries, and created a floor plan that allows for product categorisation by level and the integration of premium mini boutiques throughout; all of which, synergises to make for purposeful but delightful shopping.
This design intent is carried forward onto the upper floor of the duplex store where traditional duty-free fit-out gives way to an intimate and uniquely Lotte retail experience. Here, Lotte fosters a deeper relationship with their clientele through direct brand engagement and we provisioned for it via a technology-integrated lifestyle lounge where customers are invited to customised cocktails with its convivial setting. Their orders can be placed through interactive touch screens or personally ordered from the Robotic Bartender, Toni from Makr Shakr. The option to custom-order liquor or wine in accordance to one’s taste preference presents Lotte’s patrons with a one-of-a-kind retail experience and product discovery.


The installation and store layout create inclusive and welcoming retail spaces for all people, regardless of their unique needs.
Energy-efficient LED lights with automated/sensor lighting and ACMV control.
Air conditioning and lighting solutions for an interior lounge focus on energy efficiency, considering environmental impact while enhancing occupants’ wellbeing and health.

BUILDABILITY
Modulation of planning and product display were designed for off-site fabrication. Material and adhesive used are locally and sustainably sourced.
The design responds to the fabric of Terminal 3 and connects with its wider dynamic retail environment to enhance sense of place for the airport community.
The approach combines the airport’s interior master planning, design and retail strategy. It breaks away from cookie-cutter DFS fit-outs and elevates the airport as a retail destination.

While the idea of fusing retail and entertainment is not new, the sum of the two yields infinite creative possibilities and outcomes limited only by one’s imagination. The vision for Lotte’s second Flagship Duplex store in Changi Airport thus, found its genesis in the concept of a retail dreamscape; captivating and immersive yet abuzz with the thrill of shopping exclusives.
Strategic space planning belies the lush aesthetics. We began with a radial floor plan which places product and promotional gondolas in a circular arrangement. Thus orchestrated, it achieves two things. For one, it guides customers deeper into the retail space and facilitates a comprehensive exploration of offerings. The corners of the layout are anchored by an exquisite selection of liquors and spirits, creating focal points that invite customers to explore each section. Secondly, it integrates spaces of entertainment at the heart of the store, creating the unforgettable Lotte shopping experience.
A suspended media hoop in the atrium void becomes a dynamic canvas for immersive storytelling and adds to the sense of the spectacle. Showcasing the captivating tale of Li Bai Forest, the use and contrast of technology and nature presents an extra-ordinary retail setting that is sensorial and multi-dimensional.

Re-interpreting Branches into Geometric Forms




IN THIS DUPLEX STORE AT TERMINAL 2, THE CENTRAL ATTRACTION–A ROBOTIC BARTENDER, LIES IN THE ATRIUM SPACE. THIS INNOVATIVE FEATURE NOT ONLY SERVES AS A VISUAL SPECTACLE BUT ALSO OFFERS A UNIQUE AND INTERACTIVE ELEMENT TO THE SHOPPING EXPERIENCE. CUSTOMERS CAN WITNESS THE ART OF MIXOLOGY FIRST HAND, CREATING A MEMORABLE AND ENGAGING ATMOSPHERE.

SUBTLE LIGHTING, DESIGNED TO MIMIC SUNLIGHT DIFFUSING THROUGH, ADDS TO THE VISUAL NARRATIVE AND EXPERIENCE; EFFECTIVELY CREATING AN AMBIENCE THAT CAPTURES THE POETIC ALLURE OF LI BAI’S VERSES AND TRANSPORTING GUESTS INTO A SPACE REMINISCENT OF A HIDDEN OASIS.
On the second level of the retail floor, we created a stunning experience for Lotte’s VIP customers. Here, the design scheme leans more intentionally into the use of multi-media while expanding on the sylvan-inspired theme that customers glimpsed on the first floor atrium. LED screens line the ceiling and mirror the canopy of a majestic forest with lush greenery, cascading vines and earthy hues. Subtle lighting, designed to mimic sunlight diffusing through the leaves, adds to the visual narrative and experience; effectively creating an ambience that captures the poetic allure of Li Bai’s verses and transporting guests into a space reminiscent of a hidden woodland oasis. In the heart of the space stands slender tree trunk-inspired interactive media. This gamified installation serves a dual purpose – functionality and aesthetics. Customers can interact with it to customise their own photos, creating Instagrammable moments that capture the magic of Lotte and the Sylvan experience.









THE DESIGN OUTCOME IS BESPOKE. METICULOUSLY CRAFTED, ITS MATERIAL AND COLOUR PALETTES ARE A HARMONIOUS BLEND OF CHAMPAGNE METALS THAT EXUDE SOPHISTICATION, TIMBER FOR WARMTH, AND MARBLE FOR A TOUCH OF TIMELESS ELEGANCE; ALL OF WHICH IS DELIGHTFULLY JUXTAPOSED BY THE INCORPORATION OF MEDIA TECHNOLOGY ACROSS THE RETAIL FLOOR TO AMPLIFY ITS RETAILTAINMENT VALUE AND EXPERIENCE.
Modern retail luxury explores blending formality with freedom of self-service. Customers and VIP members are able to explore the world of premium wines at the digital self-tasting station. Equipped with state-of-the-art technology, this station provides an interactive journey through a curated selection of wines. Guests can delve into informative infographics, discovering the nuances of each product and enhancing their appreciation of the art of winemaking. For a more intimate experience, VIPs can indulge in the lounge seating, where comfort meets other-worldly experience created by tech. For more exclusivity, private tasting rooms offer an escape into a world of personalised luxury, where connoisseurs can delve deeper into the nuances of their chosen beverage.
CEILING LED
Leveraging large, interactive display and contents that can be recognised from afar to generate hype.
It also creates a memorable atmosphere in the lounge and provide immersive experience.

‘EYE-CATCHING’
To be attracted
Welcomed into the store

‘MEMORABLE’
To be remembered
Provide new & fun experience

‘SELLING’
To be purchased
Give unique lounge benefits
SELF-SERVE DISPENSERS
Created a lounge mood and appealing marketing points of each beverage at the tasting bar.
Promote tasting and support customers by providing instructions for dispenser use.
INFOGRAPHIC MEDIA
Generate appeal for products though brand promotion video and product introduction. These serve as marketing touch points.

SMART MIRROR KIOSK
Creates interactive fun that generate word-ofmouth hype via SNS.
Magazine LDF model shooting with K-Pop Stars or PR model for whiskey brand.
ATRIUM LOOP LED
Intentionally visible from the second floor, it creates thematic continuity and a deeply immersive retail experience.
ENTRY KIOSK
Lounge info and benefits are displayed to attract customers’ attention and to invite them in.



CLIENT
Singapore Airlines’ (SIA) SilverKris Lounge projects at Incheon International Airport and Perth International Airport were challenging but delightful design exercises in branding and placemaking. The five-star airline has long been renowned for its world-class flight experience and service, which its SilverKris Lounges around the world serve as extensions of. When conceptualising the design of the two lounges, we wanted to create interiors that not only illustrate luxury and elegance synonymous with the carrier’s brand, but also evoke delight.
At Incheon International Airport, we envisioned the SilverKris Lounge as a ‘home away from home’ but with an elevated hospitality experience that maintains the brand’s signature feel. The concept had its genesis in SIA’s position as the flag carrier of Singapore, and was realised through four key design actions.
We took SilverKris’ traditional brand template and explored fresh ways of articulating it in the interior design; specifically, the presentation of its iconic batik motifs and corporate colour palette. This modern refresh is immediately perceptible from the outset. Instead of a conventional wall mural, we introduced media walls at the foyer, from which the batik motifs are displayed.
Our design scheme carries the motif into the passageway located to the right of the foyer; decorating its ceilings rather than walls. This subtle yet playful twist, complemented by contemporary lighting design, is not only elegant in its outcome. It also effectively creates visual intrigue and draws SilverKris patrons into the folds of its five-star hospitality.
In the main lounge, we drew inspiration from the deep blue and yellow of its brand colours, and applied a cooler palette of soft blues and lush gold. This updates the vibe of the lounge from strictly corporate to classy lifestyle, refreshing its brand appeal.









A CUSTOM-DESIGN BAR, PLACED BETWEEN THE DINING AND LIVING AREAS, FORMS THE CENTREPIECE OF THIS SOCIAL SPACE. IT CREATES STRONGER DEFINITION OF THE TWO SPACES WHILE ENCOURAGING MOVEMENT, HUMAN CONNECTION AND PEOPLE-WATCHING WITHIN THE LOUNGE, WHICH FORM PART OF THE TRAVEL EXPERIENCE.
THE LOUNGE AS A SOCIAL SPACE
Here, we distilled the concept of ‘home’ down to two key elements –creature comforts and a sense of community; which further inspired the conception of SilverKris Lounge as more than a luxurious rest stop.
Our design thus proposed the reconfiguration of the space into two complementary zones within an open-concept floor plan. The ‘dining room’, where livelier activities and social interactions take place, is sited at the front of the lounge; effectively creating a welcoming buzz for members as they come through the passageway. At the same time, the sight and smells of much-loved local cuisines and finger food from Singapore enhance the sense of familiarity and home-coming. The ‘living room’ is allocated after the dining space and offers sanctuary for long-haul travellers seeking respite and restoration. A custom-design bar forms the centrepiece of this social space. Placed between the dining and living areas, it simultaneously creates stronger definition of the two spaces and encourages movement, human connection and people-watching within the lounge, which are part of the travel experience.




Design elements elevating wellbeing are prevalent across the lounge, creating a comfortable space that contributes to the overall wellbeing of the travellers.
The spatial planning takes advantage of the lounge’s floor-to-ceiling windows, such that the view of the runway and airplane take-offs is unobstructed. This also allows natural light to stream into the lounge, rejuvenating the space and travellers. The placement of green planters around the lounge also brightens up the atmosphere, while the iconic orchid injects colour into the luxurious, cool palette. Delivering on the design concept and tagline of ‘home away from home’, the SIA Incheon SilverKris Lounge brings the Singapore experience abroad, providing international travellers a glimpse of the country, and a sense of nostalgia for Singapore travellers.
Outside the main lounge, a unique café-cum-shop space is carved out to cater to travellers with a shorter transit time, offering a brief enjoyment of retail, drinks and desserts. A pioneering addition to SilverKris Lounges, it presents a luxurious, modern fit-out of a traditional Singapore kopitiam, a coffee shop prevalent across the heartlands.
Tables, chairs and stools in the café are oriented around the centre, where the KrisShop displays and retails familiar memorabilia associated with Singapore, including the iconic miniature Singapore Airlines plane. Batik ornaments and motifs also decorate the café’s walls.
An infographic on the Asian-style coffee and tea variants is also a fun addition to the collection of Singapore-related items. The café’s design not only nurtures the familiar, warm ambience of home and a sense of nostalgia for Singaporean travellers. It also anchors Singapore Airlines’ international lounges in its home-grown identity.



Singapore Airlines (SIA) opened the doors of its SilverKris Lounge at Perth International Airport to travellers in Quarter 1 of 2024. The project is our second foray with Singapore’s illustrious five-star national carrier and follows closely our thoughtful conceptualisation of its SilverKris Lounge at Incheon International Airport, refreshing its brand appeal and iterating SIA’s world-class experience.
THE WARMTH AND HOSPITALITY OF SINGAPORE MEETS WITH THE NATURAL AND CONTEMPORARY VIBES OF WESTERN AUSTRALIA, REFRESHING THE LOUNGE TO PROVIDE A UNIQUE EXPERIENCE, IN WHICH THE RICH CULTURAL TAPESTRIES OF SINGAPORE AND PERTH ARE CELEBRATED.
Beloved for its exceptional service standards, it was vital that our design proposal captures the brand’s essence within the business lounge. Thus, with the Singapore Airlines Perth SilverKris Lounge, we further explored means to elevate its hospitality offerings and to create a spatial canvas that is distinct to its location while carrying forward the ‘home away from home’ theme. This meant not only designing for wellbeing but also ensuring thoughtful space planning to incorporate enhanced amenities such as a bar with barista and shower facilities–daily luxuries that are not easily accessible for the long-haul traveller–all within a 480 square metres lounge.




The offerings and spatial programming of this SilverKris Lounge were informed through the feedback of SIA’s patrons on their experiences with previous lounges as well as their desires. Studying the data collected, we proposed an open-concept lounge with adaptable zoning areas that accommodate various groups of travellers and their needs. Sectioned into three main areas – Bar, Dining and Living, the lounge intuits dedicated spaces for different activities and varying levels of socialisation across different group sizes. This layout also afforded wider pathways for universal accessibility and unencumbered movement, making the lounge a well-considered and inclusive space.
Allocating the bulk of the buzz and activity to the outer periphery of the lounge, our space planning organises the dining and bar within the same zone and is seamlessly accessible upon entry. The open space concept immediately envelopes SilverKris patrons in a threedimensional experience with clear sightlines to the ‘live’ food station, and the sounds and smells wafting from the bar and kitchen; thereby, elevating the sense of welcome and easing them into tantalising respite. This active space is sectioned from the ‘living room’, which we have allocated to the inner folds of the lounge space for enhanced privacy and quiet. Here, the design creates room for a range of traveller profiles–from the solo business traveller to the group of holidaying family/friends–and their various needs. SIA’s signature productivity pods allow for some quiet and deep, focused work while the wingback chairs, another signature furnishing, stand as luscious little nooks for patrons seeking respite.
GENERAL WALLPAPER
LEATHER FOR LIVING ROOM LOUNGE CHAIR
LEATHER WALL PANEL AT BANQUET SEATING
LEATHER FOR BANQUET SEAT & BACKREST
LIVING ROOM TUB CHAIR LEATHER (BACK)
LIVING ROOM TUB CHAIR SEAT & BACKREST FABRIC
GENERAL FLOOR FINISH
TIMBER FINISH
BRONZE
SIGNATURE POD SEAT & BACKREST LEATHER

SIGNATURE POD INNER PANEL FINISH
SIGNATURE POD OUTER PANEL FINISH
FLUTED GLASS FOR DIVIDER SCREEN
GENERAL CARPET AT LIVING ROOM
SIDE TABLE & DINING TABLE TOP FINISH LEATHER FOR CHAIR AT COMMUNAL TABLE LEATHER FOR HIGH STOOL
SIGNATURE WINGCHAIR LEATHER (BACK)
SIGNATURE WINGCHAIR LEATHER (SEAT &BACKREST)
ACCENT WALLPAPER FOR RECEPTION AREA
IN A NOD TO ITS GENIUS LOCI, LOCALLY SOURCED MATERIALS FEATURE IN THE SIA PERTH SILVERKRIS
THE LOUNGE INTERIOR IS DESIGNED AS A HOLISTIC GROUND EXPERIENCE IN LINE WITH SINGAPORE AIRLINES’ PREMIUM AIR EXPERIENCE.
On top of functionality and wellbeing, our design scheme also sought to contextualise this SilverKris Lounge within its location in Perth through a nuanced and thoughtful blend of elements iconic to Singapore and materials locally-sourced from Western Australia. Elegantly interwoven, the distinctive batik motif and native timbers celebrate the rich cultural tapestries of Singapore and Australia.
Passers-by and passengers alike are greeted by the iconic vibrant batik motif against a wall of SIA’s signatory blue at its entrance. For those home-bound, it is the very visual reminder of home. We extended this into the ‘living room’ of the lounge where the batik motif makes for elegant accents on the walls of the social pods. Adjacent to this, is a feature wall of fluted native Blackbutt timber panels. The richness of tone and tactility adds depth to the space while visually anchoring the winged-back chairs and productivity pods as an alternative zone from the social pods within the ‘living room’. Throughout the business lounge, we opted for Australianmade decorative finishes and colourful native flower arrangements, simultaneously contextualising the lounge within its locale and distinguishing it from its counterpart at Incheon International Airport.
On fostering the sense of home-ground at Perth International Airport, Singapore Airline Perth SilverKris Lounge encapsulates the allure and congeniality of the Singapore brand to the world, and for Singaporeans, the warm embrace of home.






Creating spaces and curating an environment that deliver care and comfort to patients, and enables effective efficiency from healthcare providers.


The healthcare landscape is evolving. With unprecedented awareness (heightened by the pandemic) of the factors influencing our physical and mental wellbeing, people are taking a proactive approach to maintaining and improving their health. This shift in mindset has led to a significant change in the way healthcare is perceived and delivered. No longer just a restorative service, it is now approached as a preventative measure, with individuals seeking to avoid illness and pursue overall wellness, and patients increasingly opting for elective procedures and on-demand care.
Simultaneously, the healthcare industry has been pushing towards greater operational flexibility and resiliency, as well as delivering a more versatile, wellbeing-focused and person-centred experience. The latter has seen the Contemplative Healthcare movement gaining momentum, in which healthcare providers recognise the importance of curated placemaking with empathy in the healing process. This integration of design and science has enabled us to create a more holistic approach to healthcare; exploring wellbeing design strategies and cross-disciplinary applications for spaces that are more personalised and compassionate within the medical centre and hospital projects that we undertake.
The benefits of doing so have been significant. For patients, hospitality-inspired healthcare spaces aid recovery by considering components such as room views, social interaction areas, soothing color schemes, biophilic elements and design details such as art installations, and intuitive layouts to reduce stress levels. This integration of wellbeing design strategies into the wider design scheme serve to boost patients’ mental outlook. For staff, the work environment can be transformed for better employee wellbeing, enhanced operational efficiency, improved productivity and reduced stress levels through the strategic combination of thoughtful spatial design solutions with medical planning. A welldesigned workspace instils professional pride and boosts staff morale, leading to improved performance and positive patient interactions. This, in turn, fosters better patient outcomes and a committed workforce.
Ultimately, by integrating the comfort and style of hospitality design with the functionality of medical spaces, we facilitate healthcare experiences that prioritise patient wellbeing, staff efficiency and enhance visitor comfort. We craft environments that not only support clinical excellence but also promote emotional healing and wellbeing. The result is a holistic healthcare experience that truly puts people first.

ENGENDERING CONTEMPLATIVE HEALTHCARE: A WELLBEING-FOCUSED, PATIENT-FIRST APPROACH
Parkway MediCentre is the client’s first foray into the heartlands of Singapore. It is also the healthcare provider’s first medical centre to be located within a shopping mall, specifically on the second floor of The Woodleigh Mall in the housing estate of Woodleigh.
Though relatively new, this suburban town is already home to a wide demographic ranging from young families to the elderly of varying economic backgrounds. Embedded within this context, the client understands that Parkway MediCentre must be able to serve the diverse needs of the Woodleigh community. The ambulatory care centre, thus, houses comprehensive healthcare services which include an urgent care centre, an executive health screening with a dedicated radiology department, a rehabilitation centre, specialist outpatient clinic and a pharmacy.



Our aim was to create interiors for the medical centre that support effective synergy of its operations without neglecting a sense of care for both its patients and staff; and we achieved it by harnessing the potentialities of its location within the mall. This meant identifying the site limitations and strategically designing around them so that they may be transmuted into opportunities to realise the design vision for Parkway MediCentre.
One key limitation was a restriction of the retail development, which states that the toilet/wet zones of the clinic must not be stacked directly above any Food & Beverages establishments on the floor below. The second–more a challenge than limitation–is the spatial characteristic of the unit Parkway MediCentre occupies. The 960sqm space is deep-pocketed, making daylighting and views of the greenery outside limited.
Our design formulation began with tackling these challenges first. With the clear zone for the restrooms and wet zone located in the middle of the unit, it created opportunity for spatial porosity and efficiencies that are advantageous for effective synergy of workflow between departments and end-user wellbeing. The medical planning and patient experience of Parkway MediCentre were, therefore, designed around this with a large, open-concept central waiting area anchoring the organisation of all the functional spaces. Priority access to the windowed areas was given to the Rehabilitation and Health Screening departments as their patient groups were identified to have the longest dwelling time at the medical centre. The access to outside views and daylighting may help ease anxieties, uplift their spirits and make the duration of their time spent at Parkway MediCentre more comfortable.



A PALETTE OF EARTH COLOURS AND NEUTRAL TONES COMPLEMENTED BY WOOD FURNISHINGS, INDOOR GREENERY AND PLUSH FURNISHINGS, IS APPLIED THROUGHOUT THE MEDICAL CENTRE; IMBUING IT WITH A TANGIBLE SENSE OF HOSPITALITY.
The medical centre is truly designed to welcome. Responding to this context, we carefully considered the healthcare provider’s wider brand identity and how it can be meaningfully translated to its locale and the community it serves through design. A palette of earth colours and neutral tones is applied throughout the medical centre. It is complemented by wood finishings, indoor greenery and plush furnishings to imbue the centre with a tangible sense of hospitality. This is amplified by our unconventional design decision to blur the boundary of the mall and the medical centre with a barrier-free entrance. Conveying openness, warmth, transparency and inclusivity, it reaches out to the Woodleigh community as if inviting them into its open-concept waiting area; translating a readiness to serve and help those with medical needs.






PATIENT WELLBEING IS A PRIORITY IN THE DESIGN SCHEME; AND IS ACHIEVED THROUGH ACCESS TO OUTSIDE VIEWS AND DAYLIGHTING WHICH HELP EASE ANXIETIES, UPLIFT THEIR SPIRITS AND MAKE THE DURATION OF THEIR TIME SPENT AT PARKWAY MEDICENTRE MORE COMFORTABLE.


Barrier-free central waiting area anchors the medical centre’s various programmes and creates a sense of openness, transparency and inclusivity between medical staff, patients and the Woodleigh community.
Selection of low VOC material throughout the space to promote the wellbeing of staff and visitors.
Biophilia is introduced into the waiting area, offering patient proximity to greenery to support stress reduction and wellbeing.
Offer daylight access and connection to nature by maximising direct outdoor view.

ENERGY EFFICIENT SYSTEM
Careful planning of energy efficient lighting fixtures that adhere to Green Mark lux level requirement.
MENTAL AND SPIRITUAL WELLBEING
Soothing earth tones applied throughout the medical centre contributes to creating a soothing environment.
HEALTH AND WELLBEING
Daylight access with outdoor view at back-of-house staff office promote staff’s wellbeing.

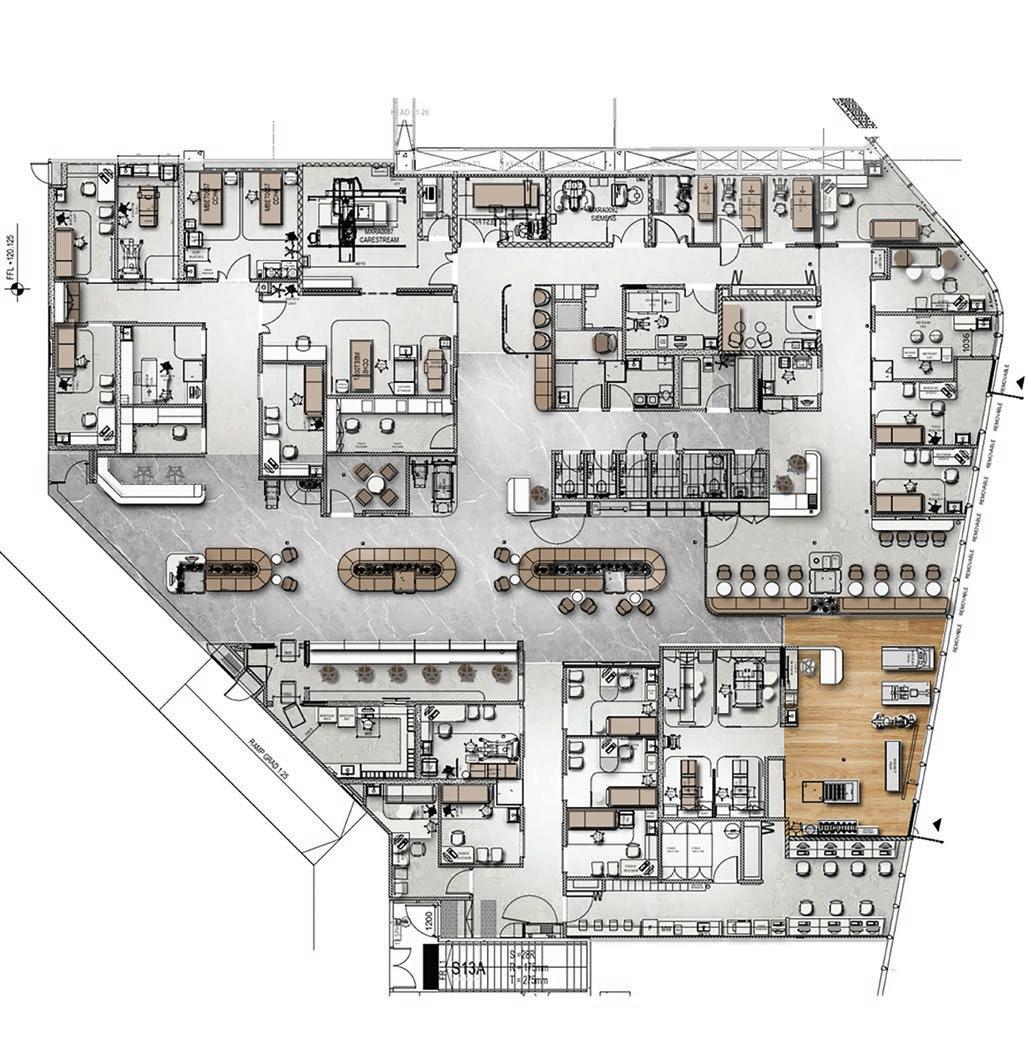
The Regency Medical Care Centre (RMCC) represents a new approach to urban healthcare by offering a comprehensive and accessible medical hub strategically located within the bustling Mid Valley Southkey Shopping Centre in Johor Bahru, Malaysia. Designed to house an integrated healthcare experience, RMCC consolidates six essential medical departments under one roof: Specialist Outpatient Clinics, Health Screening, Radiology and Imaging, Psychiatry, Dermatology and a Day Surgery Centre. This ensures that patients can access a wide spectrum of medical services seamlessly, enhancing convenience and reducing the stress often associated with navigating multiple healthcare facilities.

The client’s brief posed a unique challenge aimed at maximising space utilisation and enabling phased operations, all while preserving flexibility for future expansion and departmental realignment. The need to balance efficiency, adaptability and patient-centred care required a meticulous design strategy that considers potential synergies across the medical services to inform departmental adjacencies and to optimise operational functionality without compromising comfort levels and privacy requirements. Demonstrating a shared commitment to patient-centric design, our proposal capitalises the generous floor plan to accommodate specialised lounges. An example is the dedicated women’s area within the Radiology department, offering female patients added comfort and convenience.
The interior aesthetics utilises a harmonious palette of warm, earthy tones interwoven with calming blues and greens. This is complemented by natural materials such as wood laminates and stone, and by harnessing views and access to the outdoor spaces; effectively creating tactility and maximising exposure to daylight which imbue the space with a sense of warmth. Each of these elements work synergistically to deliver a supportive environment and contribute to a positive healthcare experience.
A healing environment goes beyond addressing physical ailments; it actively supports the mental and emotional wellbeing of patients. RMCC exemplifies how a profound understanding of medical professional and patient needs, meticulous planning and empathic design can converge to create a truly transformative healthcare experience.







“DESIGNING CHANGE” FOR ME IS ABOUT CONCEPTUALISING AGILE DESIGNS THAT INVITES END-USERS TO TAKE OWNERSHIP OF THE SPACE BY CO-CREATING A SENSE OF PLACE AND COMMUNITY THAT THEY CAN TRULY DELIGHT IN AND IDENTIFY WITH, RESPECTIVELY.
IDR. ALLAN WANG, DIRECTOR, DP DESIGN

I THINK A CRUCIAL PIVOT WE HAVE MADE AS A WHOLE IS MOVING FROM EFFICIENT TO EFFECTIVE; LEVERAGING TECHNOLOGY NOT TO JUST BE FASTER THAN THE NEXT COMPETITOR BUT TO ADVANCE INNOVATION IN OUR DESIGN THINKING FOR OUTCOMES THAT ELEVATE WELLBEING, CELEBRATE PEOPLE AND COMMUNITIES, STRENGTHEN SENSE OF PLACE AND GENUINELY DELIGHT END-USERS.
KENNY CHIA, DIRECTOR, DP DESIGN
ON HOW THE INTERIOR DESIGN SPECIALIST ARM HAS REFINED ITS DESIGN APPROACH AND RECALIBRATED ITS PROCESSES, ALIGNING WITH DP’S WIDER GREEN-WELL-TECH THRUST. WE ALSO DELVED INTO ITS FORAY INTO WORKPLACE TYPOLOGY AND WHAT LIES AHEAD FOR THE INTERIOR DESIGN PRACTICE.
DP DESIGN’S LAST PUBLICATION, DESIGNING CHANGE , WAS PUBLISHED IN LATE 2019. IN IT, THE DESIGN PRACTICE LAID OUT ITS ETHOS AND BELIEF IN THE POWER OF DESIGN TO EFFECT POSITIVE CHANGE AND ENCOURAGE SOCIAL GOOD. AS THE NEW GENERATION OF DIRECTORS IN DP DESIGN, CAN YOU EXPOUND ON HOW THIS ETHOS RESONATES WITH YOU?
Allan: This is something that remains very much a part of our practice’s design DNA because the people, the communities and a deep concern for their wellbeing and for the spirit of place remains central to the work that we do – the designs that we put out.
The landscape in which we design, however, has evolved and the designers are no longer the sole conductors of how spaces should be crafted. I’ll explain. This age of information technology and social media has engendered a generation of consumers and end-users that have far greater exposure to trends and such all around the world. As a result, clients, stakeholders and end-users bring their own desires and conditions for a specific space — an office, a mall, a café — to the vision board. What this means is that our designs must now incorporate a level of ‘white space’ — a partial blank canvas — where the community finds room for self-expression or personalisation.
So, ‘designing change’ for me is about conceptualising agile designs through our unique interpretation and design expertise, that invites endusers to take ownership of the space by co-creating a sense of place and community that they can truly delight in and identify with, respectively.
Kenny: I’m a firm believer in our innate need to connect; it is what drives our desire to form communities. Designs that understand this need and are able to articulate spaces that support community-based activities and facilitate social bonding tend to stand the test of time.
At baseline, our aim with every project across type and scale, is to create and introduce an environment that is better than how we found it and will evolve with its community/end-users such that it becomes better than how we left it. This, to me, is the essence of our ethos of ‘designing change’, which guides the human-centric design approach that we champion and practice in DP Design.
‘BETTER THAN’ — SPECIFICALLY, BETTER-THAN-SUSTAINABLE — IS THE STANDARD OF DESIGN EXCELLENCE THAT THE DPA GROUP IS PUSHING FOR VIA ITS GREEN-WELL-TECH THRUST, POST-PANDEMIC. IN WHAT WAYS HAS DP DESIGN RECALIBRATED AND REALIGNED ITSELF?
Kenny: The pandemic, on hindsight, was a forced but necessary pause. DP Design had been wanting to scale new heights and explore new markets but without much headway. The almost two-year lockdown afforded us time to take stock, to reflect on our entire operations and
to review our approaches. By questioning how we can restructure for greater resilience, we recognised the absolute need to renew our internal processes, prioritising agility and adaptability.
Allan: Interestingly, we found that the one thing that had mired our efforts is also the key to paving a new way forward: specialisation. DP Design has built such a breadth of experiences and depth of expertise across typologies, ranging from residential and institutional through to retail and hospitality; but we have become mired in being specialisation-specific. So, we began to look at how we can further breakdown silos in our structure, workflow and design processes across the DPA group to converge expertise and knowledge in a transdisciplinary manner. In simpler terms, we are approaching our work with a holistic mindset, embracing total design.
Allan: It has been quite the adventure. When we re-mapped our structure and reviewed where our expertise and capabilities converge, we were able to not only further refine our design approach (see page 12) but also identify new markets.
One of this is the workplace typology. There was a lot of buzz back then about how the pandemic will impact not just where we work but how we work, and when we assessed this against the full spectrum of our experiences from residential and healthcare through to hospitality, we realised that we have both the knowledge and resources to create meaningful and transformative designs in the workplace typology.
We have also better integrated sustainable practices and intelligent design through a deeper collaboration with our sustainability partners.
Kenny: I think a crucial pivot we have made as a whole is moving from efficient to effective; leveraging technology not to just be faster than the next competitor but to advance innovation in our design thinking for outcomes that elevate wellbeing, celebrate people and communities, strengthen sense of place and genuinely delight end-users.
We especially see this in retail design. DP Design was already onboard the Changi Airport Terminal 5 project for retail planning but over the course of the pandemic, questions of design for better wellbeing and greater resiliency were raised. We worked in close collaboration with the client to re-examine planning strategies and how they can be improved for socio-economic resiliency without compromising on experiential value. Today, it is exciting to see how we continue to evolve this knowhow to deliver effective designs in The Exchange TRX in Kuala Lumpur, Malaysia which officially opened to public in Q4 2023 and the Promenade Mall in Goa, India which is slated for completion in 2026.
THERE ARE CLEAR GOALS THAT DP DESIGN SETS OUT TO ACHIEVE ACROSS ITS BODY OF WORKS. HOW IS DP DESIGN MEASURING DESIGN EFFECTIVENESS?
Allan: We are utilising DPA’s Attributes of Purposeful Design (APD) framework for this. The design tool/practice guide sets eight major sustainability outcomes for social, environmental and economic value with sub-categories to guide the prioritisation of sustainability KPIs.
Realistically, as interior architects and designers, the areas that we have direct impact on and must therefore, flourish in, are Social & Community and Health & Wellbeing. We are actively expanding our knowledge to ensure alignment with national and international benchmarks, including BCA’s Universal Design Index and the International WELL Building Standard.
ABOUT SUSTAINABILITY?
Kenny: This is a two-fold problem. Awareness is not evenly distributed among end-users; sustainability matters to some but not others. This affects the degree to which we are able to advocate for green-conscious design choices such as low-carbon materials and upcycled furnishings.
Allan: I share similar thoughts to Kenny. As a practice, however, we do advocate for sustainability in our projects through a simple manifesto:
1. Minimise the demolition of existing structures whenever possible and construct only what is necessary to support the design;
2. Prioritise locally-sourced and/or sustainability-certified materials to reduce the carbon impact throughout the project’s entire lifecycle; and,
3. Align with sustainable goals that promote the wellbeing and health of people, ensuring environments that support physical, mental, and emotional health.
BUT NOT LEAST, WHAT’S NEXT FOR DP DESIGN FROM HERE?
Allan: People and projects. We have great designs in the works from the retail planning for Changi Airport Terminal 5, Alexandra Integrated General Hospital and a workplace project for the Singapore Management University here on home ground to Promenade Mall in Goa, India and Grand Hi Lai hotel in Taipei, Taiwan.
Kenny: And in regards to people, we are placing an emphasis on nurturing our young designers through mentorship while continuing to build a purpose-driven community of designers and a rich culture of collaboration.




FRANCESCO MORSIANI ASSOCIATE DIRECTOR, DP DESIGN
TYPOLOGY: Hospitality
PROJECTS: JDV Hyatt at The Light City, Malaysia; Dubai Mall Grand Drive Expansion, UAE; Salhia Residential Complex, Kuwait; Capitol Kempinski Bar & Restaurant, Singapore; K Hotel, Africa.
I FEEL THAT WHEN AN INTERIOR IS COMPLETED AND OPEN, SUDDENLY A NEW LIFE-FORM IS PHYSICALLY BORN. AND BECAUSE INTERIORS CAN HAVE SO MUCH CHARACTER AND SO MUCH IDENTITY, PEOPLE WILL EXPERIENCE IT IN A DEEPLY PERSONAL WAY. THE IDEA THAT INTERIORS CAN INFLUENCE BEHAVIOR AND MEMORIES IS FASCINATING.
Outside of work, I like to immerse myself in the creation of handmade design pieces like floor or pendant lights crafted from recycled materials such as wood and metal. Handmade design is a great exercise for practising creativity and experimentation. It is also a wonderful way to unwind while challenging yourself.
My journey with interior design began when I made the transition from architecture about a decade ago. I was fascinated by how spaces influence emotions and interiors; specifically, how it can carry so much character and identity which really allows people to experience spaces in a deeply personal way.
Today, I specialise in lifestyle and hospitality interiors. My work entails finding cohesive design solutions that align with the brand’s standards and DNA while also reflecting the local culture and environment. Together with my team, I develop layouts, select materials, furniture and lighting to ensure functionality, comfort and luxury for guests.
Three things guide my approach:
1. Immerse yourself in the local culture before starting anything because only then you are ready to create a meaningful sense of place;
2. Start with a story because the narrative serves to shape every layer of design from initial concept to completion; and,
3. Challenges can be hidden opportunities that often lead to the most innovative and unexpected statements.
A design superpower I would love to have is the ability to harness nature to create sustainable and autonomous architecture — imagine growing buildings from living materials that purify the air, regulate temperature and adapt seamlessly to the natural environment.

KYITHA KHIN ASSOCIATE DIRECTOR, DP DESIGN
TYPOLOGY: Workplace
PROJECTS: Central Manpower Base, Singapore; Tengah Airbase Expansion, Singapore; Depot Project, Singapore.
I AM DRIVEN BY THE BELIEF THAT THOUGHTFUL DESIGN HAS THE POWER TO TRANSFORM LIVES. WHETHER IT IS ENHANCING A WORKPLACE, CREATING SPACES FOR RELAXATION, OR FOSTERING CONNECTIONS, I AM MOTIVATED BY THE ABILITY OF DESIGN TO ENHANCE WELLBEING, CREATE A SENSE OF BELONGING AND GIVE PURPOSE TO THE SPACES WE INHABIT.
Outside of work, I participate in design forums and activities that promote knowledge-sharing and continuous learning within the design community.
My journey with design began first, in architecture. I later found a love for interior architecture. There is something that feels a lot more immediate and intimate in designing and transforming interior spaces; knowing and seeing how I can directly influence environments that shape environments that enhance the human experience.
My design approach is a user-centric one that is concerned with sustainability, adaptability and authenticity; balancing form and function, and socio-cultural identity with socioeconomic needs.
Today, my work involves leading design teams and managing stakeholders in complex projects with the singular goal of keeping the design integrity intact and delivering cohesive, purposeful environments.
What continues to excite me about design is the firm belief that thoughtful design has the power to be transformative. Whether it is impacting group culture, elevating wellbeing, creating a sense of belonging or enhancing productivity – the opportunity to see a project come to life and serve its users in meaningful ways is something I will never take for granted.

SEAH YING QI ASSOCIATE, DP DESIGN
TYPOLOGY: Workplace and Institutional PROJECTS: MBS Executive Suite, Singapore; SoDrama!, Singapore; SMU Administration Building, Singapore; Marine Parade Community Building, Singapore.
TO SEE THE DESIGN VISION AND CONCEPT COME TO LIFE AFTER IT IS CONSTRUCTED, AND THAT YOUR DESIGN IMPACTS THE EXPERIENCES OF REAL USERS.
Outside of work, I enjoy attending design conferences and exhibitions. It helps keep me informed about new materials, technologies and innovative design solutions while providing new inspiration that can push my creative boundaries.
My journey with design began with an early curiosity towards spatial configuration. I loved tuning in to programmes on interior design and renovations, and was constantly experimenting with different layouts in my own bedroom. Studying interior design and entering the industry was a natural step for me.
Today, my work involves space planning so that it maximises site potential; design concept development to effectively translate ideas and visions from the mood board; and, project coordination with specialist consultants and stakeholders to ensure successful project completion.
What excites me is the multidisciplinary environment in which we have the privilege to create in; challenging me to rethink norms and re-examine design approaches.
Through my work, I hope to effectively utilise the power of design to create well-intended spaces that positively impact the way people live, work and play, fostering connections and uplifting communities.

SYAHIDAH MAZLAN ASSOCIATE, DP DESIGN
TYPOLOGY: Hospitality
PROJECTS: Dubai Mall Grand Drive Expansion, UAE; Salhia Extension, Kuwait; The Light Exchange, Malaysia.
GROWTH. I CHALLENGE MYSELF TO LEARN AT LEAST ONE NEW THING EVERY DAY. WHETHER IT IS A DESIGN TRICK, A NEW MATERIAL OR EVEN JUST A RANDOM FUN FACT.
Outside of project work, I am part of a team of four in the newly-minted group, Design Play Dates (DPD) where we cook up events and inspiring talks tailored for interior designers. Think of it as a creative playground where we geek out over design, share ideas and maybe sneak in some good snacks along the way. Because, let’s be honest, great design discussions are even better with food!
My journey with design began when playing with dollhouses as a kid got way too serious – kidding! I’m a trained architectural designer who took the scenic route. I had the chance to dabble in architecture, interior design, landscape and lighting design before realising that interior design is my jam. If architecture is the bones and skin, then ID is the icing on the cake.
I love being an artist, bringing ideas to life and that creative spark fuels me every day.
Today, my work involves design conceptualisation. I support my director and associate director in crafting design narratives that captivates and convinces. Along the way, I anticipate challenges and find solutions before they even become problems.
What excites me is great design. I’m a firm believer that great design stems from passion and curiosity. If a concept does not spark joy or challenge me in a good way, it is a sign to rethink and push boundaries. After all, the best spaces are the ones created with heart and enthusiasm.
Through my work, I hope to challenge myself to learn at least one new thing every day. Whether it is a design trick, a new material or even a random fun fact.

GOH JIA MIN ASSOCIATE, DP DESIGN
TYPOLOGY: Retail and Residential
PROJECTS: Expo City, Dubai, UAE; Morocco Mall of Marrakech and its Residential Tower, Africa.
I ASPIRE TO INNOVATE IDEAS THAT OTHERS MAY NOT HAVE CONSIDERED, BRINGING ME A TRUE SENSE OF ACHIEVEMENT.
Outside of work, I find joy in travelling – seeking out architectural landmarks and studying designs that shape and are shaped by the socio-economic and cultural heritage of their surroundings.
My journey with design began in childhood. I have always been obsessive about my personal space – how it looks, how it flows, how it feels. Over time, I realised that I could harness this desire to shape my experience through space and forge a career out of it.
I have learnt not to overthink design, but to trust the process. Designing with empathy – stepping into the shoes of the endusers has consistently led to meaningful outcomes.
Today, my work involves developing design concepts through close collaboration with fellow team mates and partnering consultants. The latter requires me to coordinate with clients, architects and consultants to align design goals and execution.
What excites me about design is the room for innovation and the boundless possibilities we can create through the attention to details, materials, finishes and furniture. Seeing how we rethink space, challenge programming and transform empty plots into vibrant retail destinations brings me a deep sense of achievement.
Through my work, I hope to enhance everyday life. I believe that when design is thoughtfully executed to engage our senses, it has the capacity to inform the intangible and transform our experiences for the better.

INTERIOR DESIGNER, DP DESIGN
TYPOLOGY: Residential and Retail
PROJECTS: Expo City Dubai, UAE; Morocco Mall Marrakech, Africa; Bouskoura Mall, Africa.
THE KEY MOTIVATING FACTOR THAT DRIVES ME IN MY WORK IS THE OPPORTUNITY TO CREATE SPACES THAT IMPROVE THE WAY PEOPLE LIVE AND WORK. I TAKE SATISFACTION IN TRANSFORMING CONCEPTS INTO FUNCTIONAL ENVIRONMENTS THAT ALSO CONSIDER THE EMOTIONAL IMPACT ON THOSE WHO USE THEM.
Outside of project work, I make it a point to attend design expos, trade shows, and local design meetups whenever possible. These events provide valuable opportunities to connect with peers, potential collaborators and industry leaders, helping me stay informed about the latest trends and developments in the field.
My journey with design began with a deep interest in art and design which has evolved into a fascination with how we interact with and experience spaces, and how they hold meaning as physical representations of our perceptions and emotions.
Today, my work involves project coordination and documentation to ensure alignment across all partnering consultants. I also assist in the conceptual phase of project, which includes sketching and basic modelling to help bring ideas together.
What drives me in my work is the opportunity to see our design visions to fruition. I take satisfaction in transforming concepts into functional environments that also consider the emotional impact on those who use them.
Through my work, I hope to support the project’s development, ensuring all aspects come together effectively for the creation of successful spaces and meaningful places.




After three years of curation and development, DP Architects (DPA) shares its sixth publication, Synthesis and Synergy: Architecture for Community. The book launch, which saw a splendid turnout of approximately 500 guests, was more than an evening of celebration and cheer. It marks a milestone in our practice with the innovation and pioneering of complex integrated lifestyle hubs and new models of recreation clubs in Singapore. It is an affirmation of our belief in the capacity of architecture and design to create positive change. And crucially, it is a contribution to the discussion on the generative potential of architecture to engender thriving communities through a collection of essays by fellow professionals and thought leaders and an examination of our projects, practice and research, with the aim to encourage greater discourse on designing for more vibrant and inclusive cities, for a better-than-sustainable tomorrow.
Graced by former Deputy Prime Minister, Mr Heng Swee Keat, the book launch was celebrated with DP’s clients, partners, fellow practitioners and DPians. The evening was opened by DP Architects’ CEO and the book’s editor-in-chief, Ar. Seah Chee Huang, who reflected on the enduring importance of designing with and for the community, emphasising architecture’s role in shaping inclusive and resilient urban futures.
In his Opening Address, Mr Heng emphasised the importance of public spaces in fostering community wellbeing, especially in a compact city like Singapore; citing his time serving the Tampines community and the bold, collective vision behind Our Tampines Hub (OTH). Today, the pioneering model of integrated lifestyle and community hub is a vibrant social plinth of sporting, civic and community facilities and services that welcomes some 14.5 million visitors annually. Commending DP Architects’ approach to community-centric design, reflected not only in OTH but also in other projects that the firm has designed, he concluded by expressing confidence that the book will inspire future architects and planners, and reiterated that good architecture plays a vital role in building stronger, more connected communities.
A key highlight of the evening was the thought-provoking panel session moderated by Ar. Seah. Six of the book’s contributing essayists — fellow professionals and thought leaders — joined him:
1. Dr Chong Keng Hua, Provost and Vice President (Academic) at the Nanyang Academy of Fine Arts (NAFA), Adjunct Professor and Social Programme Coordinator at the Singapore University of Technology and Design (SUTD). Dr Chong is also the Founding Partner of COLOURS, where his research on ageing, health and data-driven collaborative design has contributed significantly to the field of social architecture and community design. His award - winning works raised the urgency of rethinking eldercare typology and impactful solutions for ageing-in-community.
2. Dr Georgios Christopoulos, Associate Professor, Provost’s Chair in Organisational Neuroscience and Director of the Decision, Environmental and Organisational Neuroscience Lab (DEONLab) at the Nanyang Business School, Nanyang Technological University (NTU). His research integrates traditional methods (e.g. surveys) with advanced techniques — including neuroscience, wearable sensors, virtual reality and environmental metrics — to study how indoor and outdoor urban environments impact the human brain, cognitive performance, mental fatigue, wellbeing and mental health.
3. Dr Srilalitha Gopalakrishnan, Landscape Architect and Associate Director (Research) at the Future Cities Laboratory Global, Singapore ETH Centre, whose work is focused on the performance of integrated landscape design in high-density urban environments for resilient and sustainable urban design solutions.
4. Prof Khoo Teng Chye, Director of NUS Cities and Practice Professor at NUS College of Design and Engineering. The former Executive Director of the Centre for Liveable Cities; Chief Executive of the Public Utilities Board, Singapore’s National Water Agency, and Chief Executive Officer/Chief Planner at the Urban Redevelopment Authority, is known for his contributions to Singapore’s urban planning and development.
5. Dr Gillian Koh, Senior Research Fellow at the Institute of Policy Studies, National University of Singapore (NUS), whose research interests are in the areas of the development of civil society, state-society relations, party and electoral politics, state governance and citizen engagement in Singapore.
6. Dr Eun Hee Lee, Assistant Professor at the School of Psychology, University of Nottingham Malaysia. Her research interests are in sustainability and liveability, and the psychosocial factors that are linked with physical (built environment, climate change) and digital (new media) environments.
Together, the panel delved into critical themes explored in the book, ranging from urban governance and participatory design to the social and spatial dimensions that shape inclusive, peopleoriented environments. Through this dialogue, the audience was offered insights into DPA’s evolving practice in community-centric architecture, tracing both the challenges and milestones that have defined our commitment to designing spaces that foster connection, care and collective wellbeing.
The book’s other contributing essayists are:
1. Dr Jeffrey Chan, Assistant Professor of Humanities, Arts and Social Sciences/Design and Artificial Intelligence at SUTD. His research focuses on design eithics in the context of large-scale sociotechnical systems and urbanisation.
2. Ar. Shawn Teo, Senior Associate at DP Architects. He has been active in academic research and architectural publications since university, focusing on history, theory and design exploration.
3. Dr Zhang Ye, Associate Professor at the School of Architecture, Tsinghua University, and Adjunct Associate Professor at the Department of Architecture, College of Design and Engineering, NUS. His principal research interest resides in synergising different approaches to describing, analysing and assessing urban form and its association with various social and economic activities in the city.
The process of crafting Synthesis and Synergy: Architecture for Community has been an invaluable opportunity to reflect on and consolidate DPA’s knowledge and expertise gained over the years. In examining our projects, practice and research through the external lens of the essays, it underscores how collective effort can produce outcomes where the whole is greater than the sum of its parts.
The evening ended on a high note with the unveiling of Synthesis and Synergy: Architecture for Community, and a renewed commitment towards creating architecture of excellence that uplifts lives and contribute towards a better-than-sustainable future; one that is more resilient, inclusive and liveable for all.
The book launch was held on 26th June at the Sands Expo Convention Centre, conjoint with Archifest 2025.


All Rights Reserved. No material may be reproduced without prior permission. DP Architects accepts no responsibility or liability for any errors, omissions or resultant consequences including any loss or damage arising from reliance on information in Design in Print. Any opinions in Design in Print are solely those of the named authors of the article in which they appear. Unless named as author, DP Architects, Editorial Panel and other Contributors do not endorse any such views and disclaim all liability from their publication.
Copyright © DP Architects Pte Ltd
All photos and diagrams belong to DP Architects unless otherwise stated.
MDDI (P) 052/03/2025
Printed by:
Naili Print Media Pte Ltd
L L201404002
L008/05/2025
Published by
DP Architects Pte Ltd
6 Raffles Boulevard
#02-249 Marina Square
Singapore 039594
T: +65 6338 3988 F: +65 6337 9989
E: designinprint@dpa.com.sg www.dpa.com.sg
OF ARCHITECTURAL EXCELLENCE
ARCHITECTURE & URBAN PLANNING
PROJECT MANAGEMENT CONSULTANCY
INTERIOR DESIGN & SPATIAL PLANNING
ENGINEERING & BUILDING SERVICES DESIGN
BUILDING ENVELOPE DESIGN
LANDSCAPE & ARBORICULTURE CONSULTANCY
LIGHTING DESIGN & VISUAL PLANNING
ENVIRONMENTALLY SUSTAINABLE DESIGN
PLANNING & URBAN DESIGN
SPECIALISTS: FOLLOW US ON INSTAGRAM:


SINGAPORE (Headquarters)
6 Raffles Boulevard #02-249
Marina Square Singapore 039594
T +65 6338 3988
F +65 6337 9989
E dparchitects@dpa.com.sg
CHINA | DP Architects Pte Ltd (Shanghai) Shanghai shanghai@dpa.com.sg Guangzhou guangzhou@dpa.com.sg Shenzhen shenzhen@dpa.com.sg
INDIA | DPA Consultants Pvt Ltd Mumbai mumbai@dpaconsultants.in Bengaluru bengaluru@dpaconsultants.in Hyderabad hyderabad@dpaconsultants.in
INDONESIA | PT DP Architects Indonesia Jakarta jakarta@dpa.com.sg
MALAYSIA | DP Architects Sdn Bhd Kuala Lumpur kualalumpur@dpa.com.sg Johor Bahru johorbahru@dpa.com.sg
MYANMAR | DP Architects Pte Ltd (Myanmar Branch) Yangon yangon@dpa.com.sg
Thailand | DP Architects (Thailand) Ltd Bangkok bangkok@dpa.com.sg
United Arab Emirates | DP Architects Pte Ltd (Dubai Branch) Dubai dubai@dpa.com.sg
United Kingdom | DP International (UK) Ltd London london@dpa.com.sg
VIETNAM | DP Architects Vietnam Co., Ltd Ho Chi Minh City hochiminhcity@dpa.com.sg Hanoi hanoi@dpa.com.sg

WORKPLACE | 4,180SQM | SINGAPORE
The consolidation of DP Architects’ offices at Marina Square presented the design practice the opportunity to rethink and design for betterment of workplace culture, improved wellbeing and sustainability, and enhanced efficiencies. Conceived in collaboration with its specialist arms, DP Design, DP Green, DP Lighting and DP Sustainable Design, the design scheme championed an open plan concept that engenders interdisciplinary collaboration while offering flexibility for easy reconfiguration and space maximisation; an eco-conscious approach through the use of sustainablysourced materials, energy-efficient light fixtures and reuse of 50% of its existing furniture stock; and, wellbeing design strategies with thoughtful space enhancements for its employees’ various needs.