Design in Print 16.2 | Hospitality Architecture and Design

Page 1


CONTEMPORARY HOTELS MODERN HOTELS IN PERSON

PROFILING OUR HOSPITALITY TYPOLOGY GROUP

ISSUE 16.2

HOSPITALITY ARCHITECTURE AND DESIGN

CONTENTS

INDUSTRY

06 Pullman Singapore Hill Street Impresses at CREDAward 2025 |

DPA Appointed Design Architect for First Avani Hotel in Singapore

07 Three Projects From DP Architects and DP Design Among WAF and WAF Interiors 2025 Shortlist

08 The Standard, Singapore Recognised at GPDA 2025 and BLT Built Design Awards 2025

09 DPE Director Er. Tan Chin Hock Honoured with BCA Design and Engineering Safety Award (Commercial Category) for Groundbreaking Project in Singapore

10 YOTEL Tokyo Ginza and Conrad Singapore Orchard Excel at MUSE Hotel Awards 2025

11 Among Singapore’s 30 Influential Spatial/Interior Designers: DP Design Directors IDr. Mike Lim and IDr. Allan Wang

IN FOCUS

12 Architectural Hospitality

18 Our Hospitality Journey

IN DEPTH

HERITAGE

22 Hotel Fort Canning | 28 Mövenpick Heritage Hotel Sentosa

34 An Overview of our Local Portfolio

CONTEMPORARY

37 The Standard, Singapore | 45 Pullman Singapore Hill Street 53 Raffles Sentosa Singapore | 57 The Clan Hotel Singapore 61 Mondrian Singapore Duxton | 65 Novotel Goa Panjim | 71 YOTEL Tokyo Ginza

76 Our Accomplishments in Numbers

MODERN

79 Conrad Singapore Orchard | 83 ibis Styles Singapore Albert | 87 Mercure Singapore Tyrwhitt 91 Hilton Garden Inn | 95 Pan Pacific Serviced Suites Kuala Lumpur | 99 KINN Studios

IN BRIEF

100 Hotel Waterloo – A Handwritten Collection 101 Mövenpick Singapore | Millenium Hotel London

102 The Light City Hotel

103 Grand Hi Lai Taipei | À La Carte Resort

IN PERSON

105 Profiling Our Hospitality Typology Group

DESIGN IN PRINT TEAM

EDITOR IN CHIEF Seah Chee Huang | GUEST EDITORS Jacqueline Pong, Jeremy Tan | EDITOR Belle Chung

CONTENT Belle Chung, Debbie Tan, Jobelle Tee, Thou Jia Qi, Renee Yeo | GRAPHICS Amelia Agustine, Kirsten Wong

CONTRIBUTORS Shawn Teo | PHOTOGRAPHERS Bai Ji Wen, Rory Daniel, Finbarr Fallon, Mazterz, Shiya Creative Studio, Darren Soh, Juliana Tan, Jerome Teo, Marc Tey, Visual Verve, Kirsten Wong, David Yeow

GUEST EDITORS’ NOTE

Dear Readers,

In asking “what is a hotel”, we invite a moment of reflection on how design shapes these special environments, attuned to their own unique sense of place. Hotels live not only in cities but in a rich variety of contexts, each one calling for a thoughtful balance of heritage, innovation and day-to-day operational needs. From the cosy quiet of a guest room to the behind-the-scenes rhythm of back-of-house, design is a careful, deliberate craft—one that creates meaningful, authentic experiences while adapting to ever-evolving guest expectations. This approach goes beyond architecture as mere shelter, turning hotels into immersive places where environment, history and community come together naturally.

As we navigate the evolving parameters of hospitality, we remain grounded in DP’s design ethos of architectural excellence that enriches the human experience and spirit, guided by our GreenWell-Tech thrust and interdisciplinary approach. These pillars inspire us to be progressive, collaborative and holistic—values you will find reflected in the hospitality projects showcased in this Design In Print issue, which highlights sensitive, inclusive and forward-thinking design.

The diverse projects featured here span a wide spectrum of hospitality typologies, each thoughtfully responding to its environment and operational demands. Luxurious resorts such as Raffles Sentosa Singapore, designed in collaboration with Yabu Pushelberg (USA/Canada), blend brand heritage with

topography to create serene, artful retreats. Heritage-led hotels including Hotel Fort Canning, Mövenpick Heritage Hotel Sentosa, and KINN Studios celebrate adaptive reuse, harmonising history with fresh simplicity. Boutique hotels with stand-out architectural and lifestyle designs like The Standard, Singapore and The Clan Hotel Singapore tell engaging brand stories that invite guests into immersive cultural experiences.

Urban hospitality landmarks such as Mondrian Singapore Duxton, Conrad Singapore Orchard and Pullman Singapore Hill Street balance modernity and legacy, reinterpreting place within vibrant cityscapes. Efficient and thoughtfully designed hotels like YOTEL Tokyo Ginza and ibis Styles Singapore Albert create spaces that prioritise flow and social connection. Meanwhile, properties such as Novotel Goa Panjim and Pan Pacific Serviced Suites Kuala Lumpur bridge the dynamic energy of the city with peaceful refuge, demonstrating a diverse range of spatial and experiential ideas.

Together, these projects embody a shared commitment to purposeful design—grounded in context, responsive to heritage, and attuned to the ever-changing needs of guests. They remind us that hospitality is at once a sanctuary and a stage, a place where human connection is cherished and the spirit of travel is celebrated. This both anchors and inspires us to continue creating hospitality architecture and design that are outstanding, enduring and memorable.

AR. JEREMY TAN DIRECTOR AT DP ARCHITECTS
AR. JACQUELINE PONG DIRECTOR AT DP ARCHITECTS

PULLMAN SINGAPORE HILL STREET IMPRESSES AT CREDAWARD 2025

The jurors for the 2025 CREDAward accorded Pullman Singapore Hill Street Gold in the Comprehensive Commercial Project Brand Hotel category, impressed by its creative translation of Pullman’s brand heritage into a unique and immersive hospitality experience.

Our design scheme drew inspiration from railways and George Pullman train cars. From the walnut-coloured hardwood flooring to the textured wall coverings, the materials and details were meticulously curated and layered, creating an interior environment that harks back to a time of vintage locomotives. The outcome evokes the charming, luxurious train journeys of a bygone era while offering modern comforts and delights, including a pool deck with stunning views of Marina Bay and Fort Canning.

Architecturally, the hotel responds to its surrounding urban fabric. The hotel tower is designed in a U shape, which allows it to expound on the internal courtyard and be oriented towards the city skyline, as if embracing the modern world amidst old-world charm. Here, history and modernity are artfully balanced and seamlessly blended, immersing guests in a distinctly Pullman brand experience (Read the complete design narrative on page 45).

DPA APPOINTED DESIGN ARCHITECT FOR FIRST AVANI HOTEL IN SINGAPORE

The new 200-key lifestyle property, located in the heart of Tanjong Pagar, is poised to become part of the Historic District’s next chapter. Working in collaboration with Meinhardt Group, WSP, White Jacket, DP Green (our specialist arm in landscape architecture), Lightbox Lighting, coOKiesedYNAmo* and DP Façade (our specialist arm in building envelope design), our architectural design scheme creatively marries Singapore’s shophouse heritage with Avani’s contemporary flair. The vision is to deliver an elevated urban escape where both business and leisure guests are immersed in a beautifully curated, culture-rich hospitality experience.

Developed through a strategic partnership between Minor Hotels, Singapore-based Kajima Development and Abu Dhabi-based Al Wathba Investment, the 14-storey hotel broke ground in early August and is slated for completion in 2027.

THREE PROJECTS FROM DP ARCHITECTS AND DP DESIGN AMONG WAF AND WAF INTERIORS 2025 SHORTLIST

Amidst stiff competition, three of our projects have been shortlisted for the 2025 World Architecture Festival (WAF) and WAF Interiors. They are the:

• HOUSE OF TAN YEOK NEE

IN THE COMPLETED BUILDINGS – RETROFIT CATEGORY

The restoration and adaptive reuse of this 1882 traditional Chinese mansion architecture in Singapore sensitively achieves heritage preservation while adapting its spaces for contemporary programmes, such as offices, cafés, restaurants and a heritage gallery, that delight, gather and educate end-users.

• SINGAPORE PAVILION

IN THE COMPLETED BUILDINGS – DISPLAY CATEGORY

Bold, tactile and experiential, the design of the pavilion— realised through our interdisciplinary approach in conjunction with the Singapore Tourism Board and Kingsmen Exhibits— distils the aspirations of the Republic for a more inclusive, sustainable and liveable future into a singular, stunning form, offering unique experiences and spatial narratives.

• HOUSING & DEVELOPMENT BOARD WORKPLACE TRANSFORMATION PROJECT

IN THE WAF INTERIORS – WORKPLACE (LARGE) CATEGORY

The Addition & Alteration (A&A) works by our interior architecture and design specialist, DP Design, transformed this workspace into an employee-focused and client-first environment that fosters community and connection.

Although vastly different in nature, scale and type, our approach to all three projects is underpinned by our pursuit of design excellence, advocacy for sustainability and dedication to outcomes that increase social capital, create economic value and contribute to a greener, more liveable Built Environment.

SINGAPORE PAVILION OSAKA, KANSAI, JAPAN
HOUSE OF TAN YEOK NEE SINGAPORE
HDB WORKPLACE TRANSFORMATION SINGAPORE

THE STANDARD, SINGAPORE RECOGNISED AT GOLDEN PIN DESIGN AWARDS 2025 AND BLT BUILT DESIGN AWARDS 2025

The Standard, Singapore, which debuted with a bang on 5th June, has delighted the jurors at this year’s cycle of Golden Pin Design Awards and BLT Built Design Awards as much as it has thrilled its guests. Beating stiff competition, the project emerged as one of 17 Mark winners in the Spatial Design – Architecture category at the 2025 Golden Pin Design Award and as one of 12 winners in the Architecture –Hospitality category at the 2025 BLT Built Design Awards.

The hotel’s architectural design has been recognised for its bold and well-thought-out Tropics-meets-American-Billboard abstraction of The Standard’s brand ethos and experience within its local context. This is reflected in three key design elements:

• The static yet expressive lenticular façade of the hotel tower, which distinctively drew inspiration from The Standard’s West Hollywood origins in the 1990s.

A lush yet quirky sunken courtyard creates a lively contrast with the façade and offers a playful complement to the pool deck.

The innovative configuration of its social spaces at the top of the podium. Envisioned as the nexus of the hotel’s social activities, it is both visually and physically accessible from the pool-bar check-in through the sunken courtyard.

Our architecture design team achieved this by tucking the massing to the side, effectively creating space for this hidden tropical oasis that leads up to the adjacent pool deck. Seamlessly integrated, each of these design elements and spatial features engages in playful dialogue with its genius loci, offering guests an intimate and jazzy sanctuary of sensory delight that remains true to the celebrity-studded ambience of The Standard brand experience (Read the complete design narrative on page 37).

The BLT Built Design Awards is an annual global awards programme that identifies and promotes outstanding projects in the building industry.

THE STANDARD, SINGAPORE HAS BEEN RATED AS ONE OF CONDÉ NAST TRAVELER’S TOP 10 HOTELS IN SINGAPORE BASED ON THEIR READER’S CHOICE AWARD 2025, RANKING 4TH ON THE LIST

DPE DIRECTOR ER. TAN CHIN HOCK HONOURED WITH BCA DESIGN AND ENGINEERING SAFETY AWARD (COMMERCIAL CATEGORY) FOR GROUNDBREAKING PROJECT IN SINGAPORE

One of four engineers to be accorded this year’s Design and Engineering Safety Award (DESA), Er. Tan Chin Hock, director of DP Engineers (C&S), was commended for his exceptional contribution to the iconic Pan Pacific Orchard. Its ambitious architectural design, conceived by WOHA Architects, on a highly constrained urban site demanded a complex and innovative structural system, which he led and delivered.

To maximise underground space, Er. Tan reused and rehabilitated the original basement diaphragm walls as a sustainable and economical solution. He gave them a new waterproof concrete lining, effectively recycling massive structural walls instead of demolishing them. This reduced wastage allowed excavation to be done in a “semi-top-down” manner – carefully demolishing and rebuilding while keeping the site and adjacent buildings safe and stable.

Above ground, Er. Tan introduced long-span steel trusses and precast reinforced concrete to support the hotel’s four distinct sky terraces stacked vertically. By applying Design for Manufacturing

and Assembly (DfMA), many components were prefabricated off-site and assembled like a kit, improving safety and efficiency. To enhance long-term durability, the design integrated specialised bearings (like heavy-duty joints) and partially prestressed concrete, ensuring the tall structure could safely bear the unique loads of sky terraces and greenery. The result is a structurally efficient, sustainable and safe landmark that realises an ambitious architectural vision in the heart of Orchard Road.

The Award, organised by Building and Construction Authority (BCA), celebrates structural and geotechnical engineering ingenuity across five categories – Civil Engineering, Commercial, Industrial, Institutional and Mixed Development. Since its launch in 2008, the Award has honoured engineers and their teams for innovative designs and construction solutions that ensure Singapore’s built environment remains safe, resilient and future-ready.

ER. TAN CHIN HOCK DIRECTOR, DP ENGINEERS
PAN PACIFIC ORCHARD WOHA ARCHITECTS

YOTEL TOKYO GINZA AND CONRAD SINGAPORE ORCHARD EXCEL AT MUSE HOTEL AWARDS 2025

Our hospitality design teams at our interior design and spatial planning arm, DP Design, are proud recipients of the recently concluded MUSE Hotel Awards.

YOTEL Tokyo Ginza was awarded the Platinum Winner in the Interior Design – Compact & Capsule Hotel Interiors category. The project was recognised for its site-sensitive, human-centric approach to a tech-forward hospitality brand. Key design strategies include contrasting modern minimalism with the rich hues of Japanese art and harmonising the concept of compact living with Japan’s aesthetic sensibilities to deliver a fresh perspective on YOTEL’s signature tech-enabled accommodation and enhance its brand of communal hospitality (Read the complete design narrative on page 71).

Conrad Singapore Orchard clinched Gold in the Interior Design –Lobby Interior category. The elegant refresh of its interiors blends

creative brilliance with historical reverence, effectively lending the hotel development contemporary relevance while celebrating Portman’s original architectural vision of the atrium as an “internal lung”. The interior refresh was part of the hotel’s wider rebrand from the Regent Singapore and was designed in collaboration with our architecture team at DPA (Read the complete design narrative on page 79). Conrad Singapore Orchard has also been rated one of Condé Nast Traveler’s Top 10 Hotels in Singapore based on their Reader’s Choice Award 2025, ranking 8th on the list.

In its second edition, MUSE Hotel Awards has been establishing itself as the cornerstone of global hospitality and design excellence across boutique destinations and luxury global hotel groups. It recognises architects, designers and hoteliers whose works elevate the standards of international hospitality.

YOTEL TOKYO GINZA TOKYO, JAPAN
CONRAD SINGAPORE ORCHARD SINGAPORE

AMONG SINGAPORE’S 30 INFLUENTIAL SPATIAL/INTERIOR

DESIGNERS: DP DESIGN DIRECTORS IDR. MIKE LIM AND IDR. ALLAN WANG

For their transformative design works across typology and scale, IDr. Mike Lim and IDr. Allan Wang have been named by the Singapore Interior Designers Society (SIDS) as Singapore’s 30 Influential Spatial/ Interior Designers. The award, more than a personal triumph, is a testament to the strength of DP Design’s leadership, design thinking and excellence.

IDr. Mike was recognised not only for his humanist approach in design across a wide range of projects including the integrated community and lifestyle hub, Our Tampines Hub (OTH), the Tampines Regional Library at OTH, and the award-winning Penn Color Technology Center and YOTEL Singapore, Cinemaxx Junior in Jakarta, Indonesia and Project Keiko in Kobe, Japan, but also for his success in leading DP Design into the international arena. To date, he has worked on projects at a scale that few interior designers are familiar with— the Dubai Mall in UAE, Emaar Square Mall in Istanbul, Turkey,

Perennial International Specialist Medical Center in Chengdu, China and currently, the retail planning and design of Terminal 5 for Changi Airport.

IDr. Allan was awarded for his cross-disciplinary, people-centric approach and push for design excellence across his portfolio of works which include the award-winning A Verdant Workplace and Singapore Airlines’ SilverKris Lounge at Perth International Airport. From workplace through to retail projects, Allan explores the capacity of design to shape the human experience and connect people to places.

This inaugural award, organised by SIDS as part of their 30th anniversary celebrations this year, seeks to raise the profiles of outstanding professionals and highlight their remarkable achievements in the field of interior and spatial planning.

IDR. MIKE LIM DIRECTOR, DP DESIGN
IDR. ALLAN WANG DIRECTOR, DP DESIGN

ARCHITECTURAL HOSPITALITY

Rethinking our approach to hotel architecture and design through the lens of Levinas’ ethics of hospitality.

Singapore’s pursuit of global presence and economic growth in the early post-independence years saw her leverage existing infrastructure, such as the civil international airport constructed in 1937 at Kallang, and positioning herself as a “burgeoning postcolonial nation ready to welcome business travellers and tourists alike.”1 In creating premises to travel to our island state for business and pleasure, the hospitality industry experienced a boom with “hotels being built at a rapid speed all over Singapore – from just 16 hotels in 1963, the country was home to 71 hotels by 1974.”2 Among them are the renowned 39-storey Mandarin Hotel at Orchard Road, the Hyatt Hotel on Scotts Road, the Shangri-La Hotel and the redeveloped Cockpit Hotel.

Intermediaries of a new cosmopolitan city, hotels embodied the national image we desired for the world to see and for all who came to experience, and vice versa. They not only “offered tourists a comfortable stay and facilitated business ventures in the newlyindependent nation”. They also, notably, “became leisure venues whose restaurants and shopping arcades brought the tastes and treasures of the world to Singapore’s growing middle class.”3 This fluid social and economic exchange has since become characteristic of the nation’s open, market-oriented and pro-business environment.

Sixty years on, as we progress through our pipeline of local hospitality projects amid the enthusiasm of our nation’s diamond jubilee, we find ourselves revisiting the questions: But what is a hotel? Herein lies what fascinates us about this building type. Premised on the need for travel and shaped by the architecture of hospitality and hosting, it embodies dichotomies that simultaneously challenge design thinking and inspire design possibilities. From John Portman’s monumental hotel atria to Philippe Starck’s avant-garde blends and Jean-Michel Gathy’s emphasis on comfort as luxury, modern hotels are far removed from the humble inns of the 1700s. By re-examining

the key tensions, movements and economics unique to the typology through the lens of Levinas’ ethics of hospitality, we argue that hotels that offer meaningful, authentic experiences that foster patronage are those that place their tourists and travellers—the Other—above Self, characterised by an excessive commodification of local culture and heritage.

THE ETHICS OF HOSPITALITY: OTHERS BEFORE SELF

For French philosopher Emmanuel Levinas, hospitality embodies an ethical obligation that transcends traditional notions of politeness or charity, extending beyond simple acts of generosity or kindness. Within this framework, there is also a tension between hospitality and domesticity. He articulates this eloquently in his 1961 essay, Totality and Infinity, on exteriority: “Hospitality is not a matter of welcoming a guest into our house. Hospitality is first and foremost a welcoming of the other as Other, and it is precisely in this way that hospitality becomes an act of justice.”

While domesticity is central to the idea of hospitality, Levinasian hospitality implies that true hospitality involves crossing the threshold of ‘home’, where privacy and comfort for the self are de-emphasised. Instead, a radical duty of care and service takes precedence over self-interest, requiring openness in one’s relationship and response to the Other, without attempting to assimilate or impose our understanding onto them.

1 Chua, Priscilla, Shuyi Kan, and Miriam Yeo. 2023. Now Boarding : Experiencing Singapore through Travel, 1800s-2000s. Edited by Stephanie Yeo. Singapore: National Museum of Singapore. p67

2 Chua, Priscilla, Shuyi Kan, and Miriam Yeo. 2023. Now Boarding : Experiencing Singapore through Travel, 1800s-2000s. Edited by Stephanie Yeo. Singapore: National Museum of Singapore. p90

3 Chua, Priscilla, Shuyi Kan, and Miriam Yeo. 2023. Now Boarding : Experiencing Singapore through Travel, 1800s-2000s. Edited by Stephanie Yeo. Singapore: National Museum of Singapore. p90

“HOSPITALITY IS NOT A MATTER OF WELCOMING A GUEST INTO OUR HOUSE. HOSPITALITY IS FIRST AND FOREMOST A WELCOMING OF THE OTHER AS OTHER , AND IT IS PRECISELY IN THIS WAY THAT HOSPITALITY BECOMES AN ACT OF JUSTICE.”

— TOTALITY AND INFINITY (1961)

/ Mini Bar

DIAGRAM FOR CALCULATION OF MINIMUM SURFACE NORMS FOR HOTELS IN SINGAPORE (TOP), INSPIRED BY U.I.O.F. PROPOSITION DE SURFACES MINIMA IN TECHNIQUES ET ARCHITECTURE, 19(2) IN 1959 (BOTTOM)

Effectif de la famille

Indice de capacité d’occupation

Séjour Table de famille

Cuisine

Chambre à coucher parents

Chambre à coucher enfants, n° 1

Chambre à coucher enfants, n° 2

Chambre à coucher enfants, n° 3 (et 4)

Bain - Lavabo - W.C.

Débarras

Pièce supplémentaire

DIAGRAM FOR THE CALCULATION OF MINIMUM SURFACE NORMS FOR APARTMENTS IN POST-WAR FRANCE, FIRST PUBLISHED IN 1959 IN TECHNIQUES ET ARCHITECTURE, 19(2). SOURCE: CUPERS (2014).

SOURCE:

THE ART(S) OF HOSPITALITY: SHIFTING THRESHOLDS

An example of Levinas’ view of hospitality in urban settings is the rise of Airbnb, a personalised guest-stay service that grew out of Vacation Rentals by Owner (VRBO) in the late 1990s. Forgotten spaces from San Francisco’s historic urban development demonstrated “how small and typically underused secondary spaces can be reinterpreted as domestic environments and shift the culture of housing ownership towards more permanent and shared spatial arrangements”.4 Among hoteliers, this sparked a movement in hospitality architecture and design to create perceptions and experiences of the hotel as a home away from home, both stylistically and functionally.

On the other end of the scale, new avant-garde hotel brands in Asia are redefining hospitality by shifting focus from a space of standardised luxury to a place—a touchpoint—of experiential, culturally embedded living. Rather than selling rooms, they curate identities that merge art, design and lifestyle into holistic environments. Brands like NoMad and Artyzen exemplify this trajectory: their emphasis lies not merely in physical comfort, but in positioning the hotel as a cultural stage where design, gastronomy and storytelling converge. This reflects a growing rejection of the hotel as a neutral backdrop for tourism and instead frames hospitality as an active agent shaping urban culture.

Such hotels deliberately blur the boundary between guest and local community. In doing so, they challenge the perception of the hotel as an insular luxury enclave. The integration of heritage architecture,

local artistic practices, and neighbourhood immersion pushes against “touristic consumption” in favour of authentic discovery—though authenticity itself becomes a curated product. At the extreme end, SOF Hotel in Taichung brutally challenges the concept of hospitality by repurposing an old historic building while embracing its raw aesthetic. In their terms, it “emphasises less on the surface, instead focusing on the design space, order and form” with reference to old Taichung. Similarly, Seattle architecture studio Hybrid and Mexico City-based Palma have created NICO Loma Alta, a hotel that features elements of brutalism and vernacular architecture.

The proliferation of experiential promises, however, raises further questions: Are these hotels genuinely fostering cultural dialogue? Or are they aestheticising local identity for global consumption? The avant-garde position is, therefore, paradoxical. In seeking to liberate hospitality from homogeneity, it simultaneously codifies ‘alternative living’ as another marketable lifestyle. These brands, especially in Asia’s urban centres, undeniably reshape hospitality architecture, but their cultural sincerity remains contested. Sustainability and mindful travel are often foregrounded, yet this too can be critiqued as branding rhetoric as much as ethical stance.

FERDINAND KRAMER, HOUSING IN FRANKFURT, BEDS IN POSITION IN THE LIVING ROOM.
BORNGRAEBER (1978, P. 377).
4 Neeraj Bhatia and Christopher Roach, Urbanism From Within in MONU – Domestic Urbanism (ed. Bernd Upmeyer), Rotterdam, The Netherlands, Apr 2016. P94
MONDRIAN SINGAPORE DUXTON
SINGAPORE
PULLMAN SINGAPORE HILL STREET SINGAPORE
PULLMAN SINGAPORE HILL STREET SINGAPORE
IMAGE COURTESY OF ACCOR - PULLMAN SINGAPORE HILL STREET
IMAGE COURTESY OF ACCOR - PULLMAN SINGAPORE HILL STREET

more spatially efficient double-loaded corridor planning to maximise revenue generation may have led to the loss of Portman’s singleloaded guestroom corridors and voluminous atriums, but it may not necessarily dim its intent and spirit.

THE ARCHITECTURE OF HOSTING: FOR DESIGN AUTHENTICITY

Levinas’ ethics of hospitality challenges contemporary trends in hospitality to move beyond efficiency, profit and convenience. His philosophy offers a critique of an overly transactional, commodified understanding of hospitality and calls for a deeper, more ethical engagement with the Other. Whether in terms of inclusivity, sustainability or intercultural respect, Levinas’ ideas urge the hospitality industry to place human dignity, vulnerability and respect at the heart of its practices, recognising that genuine hospitality is not about serving a customer, but about ethically responding to the presence and needs of the Other.

Perhaps then, John Portman’s approach to hospitality architecture as a pure celebration of travel—the desire to see and be seen—is where design authenticity and cultural sincerity lie. The push for

Within DP’s anthology of hospitality architecture, we have aimed for a respectful balance between the experiential and the economic, between the Other and the Self. Our approach to hospitality architecture promotes porosity between the thresholds of hospitality and domesticity, shifting the focus from assimilation to immersion, with the goal of highlighting the magic of travel and the joy of being on holiday. By translating the brand and heritage of the George Pullman train cars, Pullman Singapore Hill Street (page 45) delivers an elegantly stunning hotel concept and a luxuriously immersive hospitality experience. Similarly, our architectural design for The Standard, Singapore (page 37) draws from the brand’s origins while engaging with its genius loci to create a distinctly Standard and uniquely Singaporean hospitality experience. While the spatial planning of its hotel tower follows a double-loaded corridor layout, the architectural scheme cleverly introduces a sunken courtyard that functions as the hotel’s hub of activity, where guests can see and be seen. Hotel Waterloo – A Handwritten Collection (page 100), on the other hand, is designed to provide hospitality spaces that both draw from and extend into the vibrancy of the local street culture and art scene. Here, the publicly accessible spaces form the “atrium”. The aim, far from assimilation, is to gently immerse tourists and travellers, allowing them to retain agency as observers or participants.

We hold that by integrating these ideas into contemporary hospitality practices, we can create spaces that are not only welcoming but also ethically responsible, genuinely humanising and rooted in a more profound sense of mutual respect and care.

DESIGN & REPORT BY JOHN PORTMAN & ASSOCIATES

OUR HOSPITALITY JOURNEY

SINGAPORE, 1978 TO PRESENT

HOTEL FORT CANNING

UNDERPINNED BY A DESIRE TO HIGHLIGHT THE BUILDING’S HISTORICAL LEGACY, THE RECONFIGURATION OF

Granted conservation status in 2005, Hotel Fort Canning (now rebranded as The Suite METT) sits in a site deeply infused with history. Once home to Sir Stamford Raffles’ first residence and botanical garden in the 1820s, Fort Canning Hill owes its current name to a later Governor-General who transformed the hill into a fort and military command headquarters. Its history of military use continued as the site became home to the Singapore Armed Forces following the nation’s independence in the 1960s. Originally a Command and Staff College used by both the British Forces and the Singapore Armed Forces, our 2011 reconfiguration of this British Colonial-style building to a contemporary hotel carefully considered the structure’s evolution with reference to that of its site, while also creatively reframing the past through new functions.

Developed in close consultation with the Conservation Department of the Urban Redevelopment Authority (URA), the design of Hotel Fort Canning was underpinned by a desire to highlight the building’s historical legacy. Formerly an austere military building, the architecture featured subdued lines of articulation in its façade and interior elements, with simple chamfering of the columns and modest expressions in the balustrades of its grand staircase. Preserving the genius loci of the space, extensive restorative measures played a major role in the design of Hotel Fort Canning. Respectful of the building’s original architectural qualities, the design featured the revival of the façade and stripped away supplemental cladding to reveal its earliest structure. Timber elements at the grand central staircase, cross balustrades, beams and trusses were repaired, while a closed lobby was once again programmed as an outdoor porte-cochère.

IN

CONTRAST

TO THE CONCEPT OF

CONSERVATION AND TRADITION

EXEMPLIFIED IN THE BUILDING’S FAÇADE

AND

ARCHITECTURAL STRATEGIES, FINISHES AND INTERIOR ELEMENTS WERE INTENTIONALLY KEPT SIMPLE AND MODERN, CREATING A UNIQUE BALANCE BETWEEN HERITAGE AND MODERNITY.

Juxtaposing these preservation strategies were interior layout alterations to accommodate new hospitality functions. Partition walls were rearranged to incorporate 86 guestrooms within the existing column grid, and outdoor verandahs were creatively transformed into bathrooms and sitting areas to counter the narrow transverse dimensions of the building. Colours and tones chosen for the interior scheme were subtle and soothing, evoking an air of elegance and luxury that corresponds to the status of the building as a colonial landmark, while harmonising with the greenery of Fort Canning Hill. In contrast to the concept of conservation and tradition exemplified in the building’s façade and architectural strategies, finishes and interior elements were intentionally kept simple and modern, creating a unique balance between heritage and modernity.

In this interplay of contrast and juxtaposition, the use of lighting and glass served to position the building’s original architectural elements against new visual and functional details. Lit coffers opened up the ceiling to frame underlying beams, while lights embedded in the floors transformed each column into a feature on display. The asymmetry of the 1920s central hall was retained and emphasised by a lit cove designed along one edge of the ceiling. This purposeful use of lighting extends to the exterior, foregrounding the building’s original horizontal and vertical façade segments.

LIVING ROOM
PREMIUM SUITE A
PREMIUM SUITE B
CHANGING ROOM
LIVING ROOM
BATHROOM
BATHROOM
THE UNIQUE

APPROACH

OF ‘FRAMING THE FRAME’ ESTABLISHES STRIKING MOMENTS OF TRANSITION BETWEEN NEW AND OLD.

In addition, glass detailing was meaningfully incorporated to establish striking moments of transition between new and old. On the exterior, window glazing units added atop the balustrades were recessed to highlight the rich architectural façade elements and establish hierarchies between the historical and the contemporary. In the guestrooms, the doorways that formerly opened into the verandahs were framed by glass to highlight the once-existent transition from inside to outside—this unique approach of ‘framing the frame’ becomes the room’s focal point, exposing the space’s altered function by means of architectural detailing. At the lobby, frameless, electric glass doors were framed by heavy timber to contrast the historic with the modern while placing the building’s central column on display as a specialised feature. Four glass-enclosed archaeological pits were embedded into the floor of the reception space to showcase 14th- and 19th-century pottery and earthenware excavated from the hill, referencing the close relationship between the hotel and its surroundings.

Capturing the minimalist characteristics inherent to the building’s initial use for military operations, the use of glass and lighting posed a unique contrast to the building’s rich history that was preserved in its architectural façade, communicating the evolutionary nature of the building’s development.

MÖVENPICK HERITAGE HOTEL SENTOSA

IMBUING THE HOTEL WITH A MIX OF TRADITION AND MODERNITY, THE DESIGN SCHEME DELVED

In 2012, we completed a sensitive and dedicated conservation of two three-storey pre-war buildings located on Sentosa Island which re-opened its doors as Mövenpick Heritage Hotel Sentosa. With a rich history of housing military forces, the compound was part of an existing military barracks built in 1940, and also held the distinction of housing the First Malay Artillery Regiment of Singapore. Our design scheme delved deep into Singapore’s rich colonial history to derive an aesthetic and hospitality experience that at once celebrated the site’s heritage and embraced the modern influences and traveller trends of its time.

We worked with the original floor plan and through creative programming of space and function, renewed the development. The uninterrupted flow of space throughout the food and beverage areas on the first storey brought back the communal atmosphere of the colonial barracks, while the introduction of lattice patterns inspired by rice grains (a local and regional staple) revitalised the former link between these two barracks into a triple-volume space. These patterns were brought through the linkway galleria, where light percolated through the screens, creating a soft, dappled effect and the spatial and visual experience culminated in a grand 8-metre green wall.

Reinterpreting colonial architecture, conservation doors were given new life and ventilation grilles were restored and used to conceal services. The floor joists of old tropical houses were introduced as ceiling rafters in the living area, echoing shophouse designs of the past. This was complemented by the building’s pitched roof, reminiscent of homes in the 1940s. The alignment of the balcony glass paid respect to the colonial façade while keeping the elements and bustling noises at bay. Additionally, the selection of plants for display throughout the hotel deviated from the typical stately centrepiece arrangements used in contemporary hotels. Instead, local plants of hardy, backyard garden variety were featured in clustered settings.

With close attention to detail, the interior scheme sought to recreate a sensory experience redolent of the luxurious lifestyles of the 1940s. Conveying timeless elegance in the language of our forefathers, artefacts of our rich local heritage were introduced into the design, evoking a sense of sentimentality and familiarity. This approach was similarly manifested in the unique room types, offering guests the novelty of a different room experience with each visit.

KITCHEN MAIN KITCHEN FUNCTION ROOM VERANDAH THE MALT ROOM
THE DELI TABLESCAPE
WHISKEY BAR LOUNGE GALLERIA
GYM
THE CELLAR VERANDAH

CONVEYING TIMELESS ELEGANCE IN THE LANGUAGE OF OUR FOREFATHERS, ARTEFACTS OF OUR RICH LOCAL HERITAGE WERE INTRODUCED INTO THE DESIGN, EVOKING A SENSE OF SENTIMENTALITY

AND FAMILIARITY.

For interior furnishings, patchwork blankets from our grandmothers’ time were reinterpreted and incorporated into the design of the bed’s headboard, which doubled as acoustic panelling. Additional touches included thoughtful details such as dim sum carriers for toiletries, moss-framed mirrors that brought verdant green into the interior, as well as antique phones and accessories carefully curated across the property, with vintage bicycle chairs displayed at the entrance and galleria recapturing a bygone era. Old rustic roof tiles were reinvented as room signage, while the corridor carpet featuring intricate batik patterns drew reference to the local Peranakan culture.

The whiskey bar, with its large wooden table honed from a singular native tree trunk, offered an alternative space for casual dining. Tablescape, the hotel’s all-day dining restaurant, utilised low partitions to dichotomise the dining experience, offering terrace views for families and pool-front dining with cosy, private booths. Featuring colonial pillars, greenery and sculpted stone, the design fused hardscape with softscape—creating a unique atmosphere that portrays the interplay between tradition and modernity.

Our architecture and interior design of Mövenpick Heritage Hotel Sentosa wove context and culture to celebrate the genius loci of the property. The resultant scheme thoughtfully preserved the building while offering guests a unique experience—a delightfully luxurious blend of comfort, familiar local identity and five-star appeal.

1 PARK HOTEL ALEXANDRA | 2015 22, 300SQM | 13 FLOORS WITH 6 FLOORS COMMERCIAL AND CAR PARK PODIUM 450 KEYS

2 HOTEL FABER PARK SINGAPORE – A HANDWRITTEN COLLECTION | 2023

4,300SQM | 5 FLOORS | 194 KEYS

3 TRAVELODGE HARBOURFRONT | 2022

7,400SQM | 10 FLOORS | 336 KEYS

4 RESORTS WORLD SENTOSA | 2012 IN COLLABORATION WITH MICHAEL GRAVES & ASSOCIATES, USA 342, 700SQM | 6 HOTELS | 1,840 KEYS

5 RAFFLES SENTOSA SINGAPORE | 2025 IN COLLABORATION WITH YABU PUSHELBERG, USA/CANADA

9,600SQM | VILLA RESORT | 62 KEYS

6 MÖVENPICK HERITAGE HOTEL* | 2012

13,100SQM | 3 FLOORS | 191 KEYS

7 CAPELLA SINGAPORE* | 2009 IN ASSOCIATION WITH FOSTER AND PARTNERS, SINGAPORE 47,760SQM | MULTIPLE 2 TO 6 FLOORS HOTEL BLOCKS | 113 KEYS

8 CONRAD SINGAPORE ORCHARD | 2023 (FORMERLY REGENT SINGAPORE)

42,400SQM | 12 FLOORS | A&A OF KEY PUBLIC-ACCESS SPACES INCLUDING THE BALLROOMS AND POOL SIDE.

9 THE STANDARD, SINGAPORE | 2024 5,400SQM | 8 FLOORS | 143 KEYS

10 NOVOTEL & MERCURE SINGAPORE ON STEVENS | 2017

29,600SQM | 10 FLOORS | 772 KEYS

11 YOTEL SINGAPORE | 2017

31,200SQM | 30 FLOORS | 610 KEYS

12 ROYAL PLAZA ON SCOTTS ROAD REFURBISHMENT | 2007

47,200SQM | 15 FLOORS | A&A OF KEY PUBLIC-ACCESS SPACES

13 OASIA HOTEL & NOVENA SPECIALIST CENTER | 2011

26,000SQM | 18 FLOORS HOTEL TOWER ABOVE 7 FLOORS PODIUM | 428 KEYS

14 DAYS HOTEL AND RAMADA SINGAPORE (MIXED DEVELOPMENT AT ZHONGSHAN PARK) | 2013

39,100 SQM (OVERALL) DAYS HOTEL: 14 FLOORS | 405 KEYS RAMADA SINGAPORE: 17 FLOORS | 382 KEYS

15 GRAND PARK ORCHARD | 2011

23,200SQM | 11 FLOORS | 308 KEYS

16 PULLMAN SINGAPORE ORCHARD | 2023 (FORMERLY GRAND PARK ORCHARD)

22,830SQM | 11 FLOORS | 326 KEYS

17 LE MERIDIEN ORCHARD SINGAPORE | 1984 IN ASSOCIATION WITH DANIEL, MANN, JOHNSON AND MENDENHALL, USA

50,700SQM | 7 FLOORS WITH 2 FLOOR RETAIL COMPLEX | 408 KEYS

18 PARK HOTEL CLARKE QUAY | 2009 11,000SQM | 10 FLOORS | 340 KEYS

19 HOTEL FORT CANNING* | 2011 11,200SQM | 3 FLOORS | 86 KEYS

20 RENDEZVOUS HOTEL | 2023 (FORMERLY ORCHARD PARADE HOTEL)

34,160SQM | A&A OF EXTERNAL FAÇADE AND COMMERCIAL DEVELOPMENT

21 IBIS SINGAPORE ON BENCOOLEN | 2009 15,000SQM | 16 FLOORS | 538 KEYS

22 HOTEL WATERLOO – A HANDWRITTEN COLLECTION | 2025

11,300SQM | 14 FLOORS | 502 KEYS

23 PULLMAN SINGAPORE HILL STREET | 2023

12,900SQM | 10 FLOORS | 350 KEYS

24 CARLTON HOTEL | 2002, 2013 9,800SQM | 16 FLOORS EXTENSION TO EXISTING 26 FLOORS | 169 KEYS

24 CARLTON HOTEL PREMIER WING | 2011

17,200SQM | 16 FLOORS | 287 KEYS

25 INTERCONTINENTAL SINGAPORE | 1994 (INTEGRATED COMPLEX WITH BUGIS JUNCTION)

119,200SQM (OVERALL) | 50,000SQM | 16 FLOORS | 400 KEYS

26 HERITAGE @ CITY HALL* | 2014 620SQM | 6 FLOORS | 18 KEYS

27 MARINA MANDARIN, PAN PACIFIC SINGAPORE AND MANDARIN ORIENTAL | 1986 IN COLLABORATION WITH JOHN PORTMAN ASSOCIATES, USA MARINA MANDARIN: 46,080SQM | 21 FLOORS | 480 KEYS

PAN PACIFIC SINGAPORE: 68,000SQM | 37 FLOORS | 796 KEYS MANDARIN ORIENTAL: 44,400SQM | 21 FLOORS | 475 KEYS

28 THE RITZ-CARLTON, MILLENIA SINGAPORE | 1997 IN COLLABORATION WITH KEVIN ROCHE 110,000SQM | 32 FLOORS | 612 KEYS

29 CONRAD CENTENNIAL SINGAPORE | 1997 IN COLLABORATION WITH PHILIP JOHNSON AND JOHN BURGEE ARCHITECTS, USA 80,000SQM | 31 FLOORS | 525 KEYS

30 ANDAZ SINGAPORE (AT DUO) | 2017 IN COLLABORATION WITH BURO OLE SCHEEREN 28,500SQM | 16 FLOORS | 342 KEYS

30 ANDAZ SINGAPORE (AT DUO) | 2023

24,000SQM | A&A TO EXISTING 2ND, 25TH , 26TH AND 38TH FLOORS

ADDITIONAL 6 KEYS

31 PAN PACIFIC SERVICED SUITES | 2013 79,500SQM (OVERALL) | 23,600SQM (NEW HOTEL BLOCK) | 15 FLOORS | 180 KEYS

32 DESTINATION SINGAPORE BEACH ROAD | 2016 8,500SQM | 15 FLOORS | 300 KEYS

33 WANDERLUST | 2010 1,240SQM | 4 FLOORS | 29 KEYS

34 ONE FARRER HOTEL | 2014 (INTEGRATED WITH CONNEXION) 7,000SQM | 20 FLOORS | 252 KEYS

35 HOTEL YAN | 2015 1,950SQM | 6 FLOORS | 69 KEYS

36 THE FULLERTON HOTEL | 2001 50,800SQM | 8 FLOORS | 400 KEYS

37 THE FULLERTON BAY HOTEL | 2010 11,200SQM | 6 FLOORS | 400 KEYS

38 CAPRI HOTEL | 2019 66,500SQM (OVERALL) | A&A TO EXISTING COMMERCIAL DEVELOP AND ADDITION OF NEW HOTEL TOWER | 16,000SQM (HOTEL) | 16 FLOORS | 304 KEYS

39 AMOY HOTEL* | 2013 2,100SQM | 4 FLOORS | 37 KEYS

40 THE CLAN HOTEL SINGAPORE | 2020 13,000SQM | 29 FLOORS | 352 KEYS

41 KINN STUDIOS | 2023 760SQM | 3 FLOORS | 23 KEYS

42 MONDRIAN SINGAPORE DUXTON | 2023 11,900SQM | 13 FLOORS | 302 KEYS

43 THE MAJESTIC HOTEL | 2006 2,000SQM | 3 FLOORS | 30 KEYS

44 DUXTON HOTEL | 1991

6,200SQM | 3 FLOORS | 49 KEYS

45 AVANI HOTEL AT PECK SEAH STREET | 2027 6,420SQM | 15 FLOORS | 200 KEYS

46 SOFITEL SO SINGAPORE | 2014 7,500SQM | 5 FLOORS | 134 KEYS

47 OUE DOWNTOWN 1 | 2017 (OAKWOOD SERVICED RESIDENCES)

25,100SQM | 24 FLOORS | 268 KEYS

48 CARLTON CITY HOTEL | 2013 20,300SQM | 29 FLOORS | 386 KEYS

49 MÖVENPICK SINGAPORE | 2026

28,800SQM | 30 FLOORS | 845 KEYS

50 SIMS AVENUE CONSERVATION | 2023 1,450SQM | 6 FLOORS | 44 KEYS

51 HOTEL KATONG PLAZA | 2028

9,500SQM | 14 FLOORS | 374 KEYS

52 CHANGI COVE HOTEL | 2012 12,900SQM | 3 FLOORS | 112 KEYS

53 VILLAGE HOTEL CHANGI | 2004 22,800SQM | 9 FLOORS | 380 KEYS

THE STANDARD, SINGAPORE

First opened on the Sunset Strip in West Hollywood in 1999, The Standard has cultivated an unorthodox brand marked by its casual, celebrity-studded ambience and penchant for the unexpected. In December 2024, The Standard, Singapore officially opened its doors, revealing an architectural, landscaping, interior and hospitality design that, true to its name, is anything but standard.

Located along Orange Grove Road, The Standard, Singapore sits among the city’s most prestigious addresses—a stone’s throw from the 150-year-old UNESCO-honoured Botanic Gardens and Nassim and close to the bustle of Orchard Road, the local counterpart to New York’s Fifth Avenue. Amidst the demure volumes of mostly residential blocks between Nassim and Orchard Road, the hotel asserts its presence through a lenticular façade. The articulation of its eightstorey form shimmers against its surroundings, coyly beckoning visitors towards the surprising twists of amenities concealed within the hotel podium below.

The design scheme took cues from the brand’s unconventional ethos. In a nod to its American origins, the building references the billboard as inspiration. This inspiration culminated in a lenticular façade, a surface that is visually static yet expressive. Beyond this visual spectacle, the architecture embodies the site’s inherent duality. Situated at the edge of Orchard Road, Singapore’s bustling retail belt, yet within walking distance of the Botanic Gardens and the Nassim estate, long regarded as the epitome of ultra-luxury living and prestige, the hotel is positioned between two contrasting urbanscapes. The design weaves the vibrancy of the urban with the serenity of nature to create a sanctuary of sensory pleasures hidden in plain sight.

OUR ARCHITECTURAL DESIGN OF THE STANDARD, SINGAPORE WAS FORMULATED IN CELEBRATION OF THE HOTEL’S ORIGINS IN 1990 s HOLLYWOOD AND ITS PATRONAGE TOWARDS ALTERNATIVE POP CULTURE; RESULTING IN AN ARCHITECTURAL ABSTRACTION OF THE TROPICS-MEETSAMERICAN BILLBOARD, WHERE PATRONS ARE IMMERSED IN A DELIGHTFULLY TRANQUIL YET QUIRKILY CONTEMPORARY AND LUXURIOUSLY LUSH EXPERIENCE.

At the heart of The Standard, Singapore lies a lush, whimsical courtyard, a living, breathing core that connects the arrival lobby below to the elevated poolside dining terrace above. A transitional space, it unfolds as a multi-sensory journey where tropical planting, staggered levels and shifting light and shadow guide guests through a layered tapestry of nature. At its centre, a pop-biophilic experience emerges, a bar check-in leads to stepped platforms designed to cradle visitors in greenery, revealing a hidden courtyard, a semisecluded cave and tiered terraces that become expressive, living stages. This expression carves out hidden spaces that house a secret courtyard, a semi-secluded cave room and stepped terraces that allow for various modes of self-expression before climaxing at the landscaped pool deck, which forms the nexus of the hotel’s social activities.

Inside, the hotel’s narrative continues to unfold. The interiors, designed by Ministry of Design, complement the expressive architecture with spaces that intrigue and delight. Lighting concepts by Klaasen Lighting Design, together with The Standard’s in-house design and operations teams, shape an environment that is both dynamic and intimate. Reflecting the site’s contrasts and bridging East and West, The Standard, Singapore enlivens the city’s hospitality landscape through thoughtful design and experiential layering. For landowner Invictus Developments, the project represents more than the arrival of a global brand; it marks the first step in shaping a burgeoning hospitality portfolio. Positioned to be the island’s most alluring social club, The Standard, Singapore sets a new benchmark for lifestyle hospitality, blending leisure, culture and design innovation into one destination.

GARDEN WALK
TERRACE SEATING
JULIET BALCONY

Behind its seemingly effortless appearance, structurally, the development presented key challenges, compounded by the stringent requirements of multiple regulatory authorities. The building’s massive cantilevers and structural transfers, while central to its design, tested the limits of engineering within the city’s regulatory framework. Key challenges included compliance with Building and Construction Authority (BCA)’s Complex Structure Design Requirements, FSSD ESCS provisions and the Urban Redevelopment Authority (URA) Sky Terrace Redefinition. Each condition introduced layers of complexity, demanding careful negotiation between compliance, design intent and commercial viability.

The project team, comprising DPA alongside its specialist arms, DP Engineers for structural and MEP consultancy, DP Green for landscape architecture and DP Façade for façade design, worked closely to devise effective solutions that maximised floor area for commercial viability while upholding the design intent.

GEOMETRIC LAYOUT OF RECTILINEAR TOWER ABOVE A TRAPEZOIDAL PODIUM WITH EXTENSIVE CANTILEVERS ON BOTH SIDES OF THE TOWER.
THIRD

USE OF SUSTAINABLE MATERIALS (GREEN PRODUCTS)

OPTIMAL MASSING & ORIENTATION

Main elevations are north-south facing to reduce solar heat gain and allows for wind flow into the sunken courtyard at grade.

BUILDING ENVELOPE PERFORMANCE

Reflective and lenticular façade reduces direct solar gain, while achieving the desired ETTV rating.

BUILD CLEVER

Buildability Score for modular MEP bracket modules in typical guestroom corridor, with drywalls for all partition walls for future flexibility.

DESIGN FOR MAINTAINABILITY & SAFETY

Design for Maintainability and Safety compliant

ECONOMIC RESILIENCY

Part of owner’s extensive network of hospitality, F&B and entertainment network locally and regionally. The Standard is also part of Hyatt Hotels Corporation which manages multiple luxury and business hotels worldwide, and is now part of World of Hyatt.

FLOOD RESILIENCY

Over and beyond PUB’s required Minimum Platform Level (MPL) with multiple cut off drains for substation in the basement.

WALKABLE, LIVEABLE

Within 5 minutes walking distance to Orchard Road and Tanglin Road.

WATER RECYCLING

A rainwater detention tank of approximately 200m3 to mitigate changing weather patterns and increase rainfall, where a part of the water collected is used for irrigation of plants and general cleaning.

CLIMATE AND LOCALE SENSITIVE LANDSCAPE DESIGN

Good curation of local and tropical plants to achieve a cohesive planting palette that is suitable for our context and microclimate.

BIOPHILIA / ACCESS TO NATURE

Large extensive sunken courtyard and sky terrace with extremely lush landscaping which is also themed for programmes.

MAXIMISE GREEN PLOT RATIO

Green Plot Ratio of 5.48, with Greenery Provision of close to 42% (minimum requirement only 35%).

UNITED NATIONS SUSTAINABLE DEVELOPMENT GOALS

PUB WELS 3-TICK

ACCESS TO DAYLIGHT

All FOH spaces have immediate access to daylight.

ACOUSTIC COMFORT

Over and above required STC ratings to ensure privacy and serenity.

MENTAL & SPIRITUAL WELLBEING

Spaces allow for extensive and varied programmes, including brand activations and partnerships with Lululemon, Dior and The Liquid Lab.

PLACEMAKING

The Standard, Singapore is regarded as one of the newest social clubs that celebrates diversity and alternative cultures.

URBAN HARMONY

Massing is congruous with stellar architecture around, designed by Jean Nouvel, UNStudio, Carlos Zapata and WOHA Architects.

UNIVERSAL ACCESSIBILITY

BCA Universal Design compliant

INCLUSIVE, AGE-FRIENDLY DESIGN

Inclusive partnerships with various civil society groups such as Pink Fest 2025 and Moulmein-Cairnhill Residents Network.

DP ARCHITECTS:

(Design) Angelene Chan, Chua Zi Jun, Shawn Teo

(Project) Leonard Cheok, Zulsairi bin Sarib, Chong Mei Yan, Eldon Ng

DP ENGINEERS: Jeffrey Ng, Rufino Carisma, Leslie Kwan, Tan Boon Heng

DP FAÇADE: Mathieu Meur, Christopher Anoso

DP GREEN: Yvonne Tan, Poornima Bargotra

INTERIOR DESIGN CONSULTANT: Ministry of Design

LIGHTING DESIGN CONSULTANT: Klaasen Lighting Design

PULLMAN SINGAPORE HILL STREET

LOCATION SINGAPORE

YEAR 2024 GFA 12,900SQM

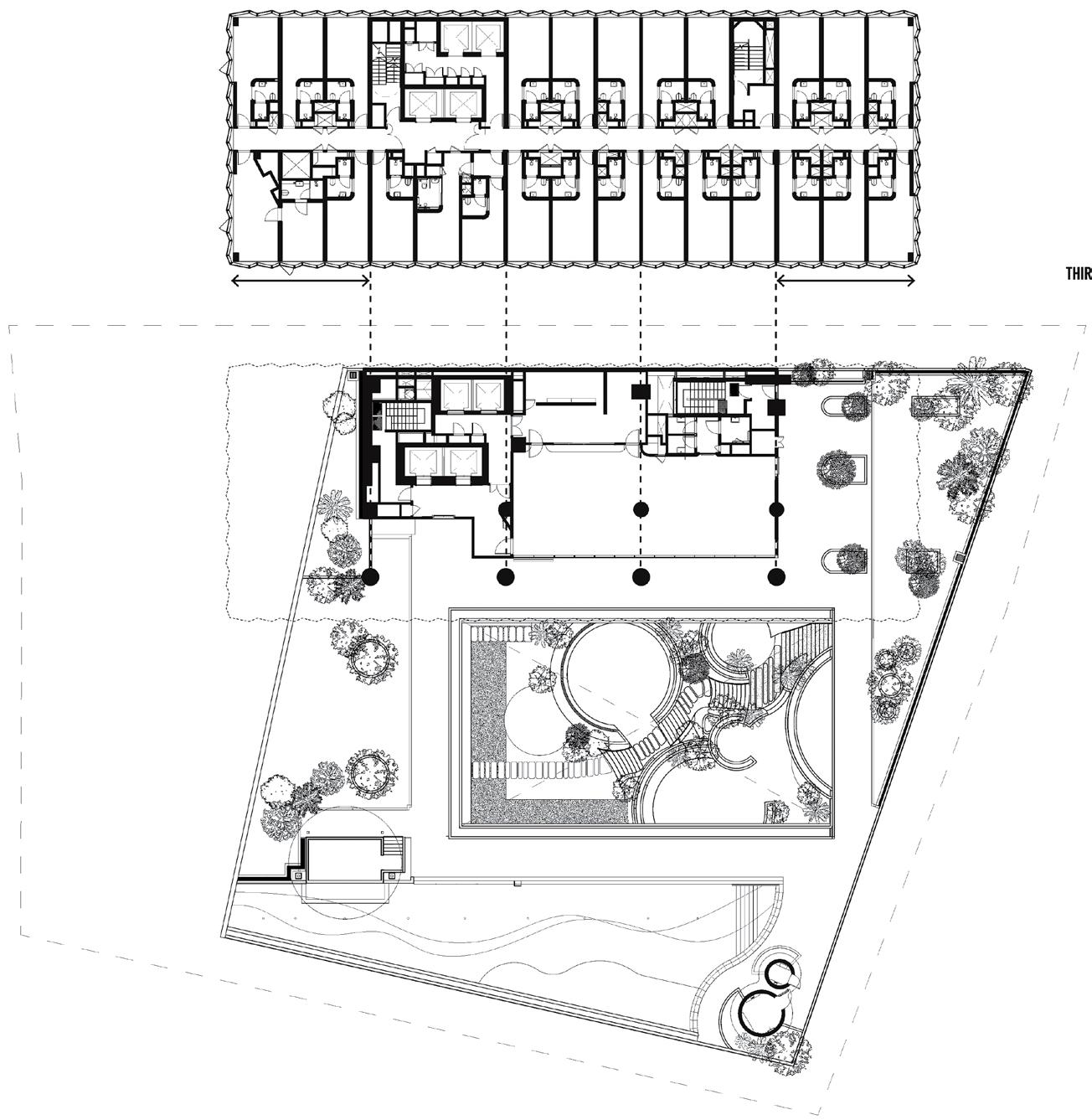
Pullman Singapore Hill Street, with its podium façade of terracottahued aluminium and tower curtain wall of vertical fins, is a refreshingly contemporary companion to the collection of historic buildings at Fort Canning. Embarking on the project, our design aim was to deliver an immersive hospitality experience inspired by the rich heritage of both its locale and its brand, and tailored to offer all the delights of modern, urban luxuries. Our design scheme was, therefore, formulated in sensitive response to its urban fabric and an artful abstraction of its brand origins—the George Pullman train car and railway. The outcome, more than a sophisticatedly themed hotel, is the world’s first representation of the brand through its design.

CONCEIVED AS AN ODE TO THE BRAND’S

HERITAGE, IT BALANCES SITE SENSITIVITIES WHILE CREATING A UNIQUE PULLMAN HOSPITALITY EXPERIENCE FOR THE CONTEMPORARY TRAVELLER.

Architecturally, the hotel is divided into a podium and a tower, with the datum being the height of the adjacent conserved shophouses, reinterpreting the five-foot way. Reminiscent of the terracotta roof tiles, the similarly coloured podium façade is profiled in the form of railway sleepers. This, along with the vertical elements of the tower façade, aligns with the railway theme. The hotel tower, influenced by the vibrant surroundings, features a U-shaped form that achieves two key experiential outcomes:

1. It expounds on the internal courtyard, where guests can enjoy inviting lounges and curated spaces for relaxation by the swimming pool; and

2. It maximises views of the city. Thus, oriented towards the city skyline, Pullman Singapore Hill Street provides stunning views of Marina Bay, the serene greens of Fort Canning, and the historic sights of Chinatown, all within its own old-world charm.

Inside the hotel, guests are transported into the world of George Pullman train carriages. The colour and material choices, thoughtfully selected and tastefully combined, evoke a bygone era of vintage locomotives. Designed to conjure images of luxurious train journeys, the guestrooms feature walnut-toned hardwood flooring and textured wall coverings that resemble train cabins. Corridors draw inspiration from Singapore’s railway map. At the roof level, a second swimming pool provides a fitting conclusion to the journey, reminiscent of a friendly exchange with Marina Bay’s infinity pool.

History and modernity are seamlessly blended to offer guests of the Pullman Singapore Hill Street hotel a uniquely memorable and wonderfully immersive hospitality experience.

ON-SITE PV PANELS to offset energy usage.

SMART INDOOR CONTROLS to optimise A/C operation timings and light fitting use.

CURTAIN WALL GLASS specified to lower heat gain and counter the urban heat island effect, effectively lowering A/C use.

ACCESS TO NATURE at Amenities Deck and Lower Roof.

ESTABLISHING FOOD RESILIENCY with on-site herb gardens.

100% LANDSCAPE REPLACEMENT

Immersive landscaping being integral to the duality of space.

FLOOD-RESILIENT FIXTURES

REDUCE / REUSE / RECYCLE is encouraged through easily accessible recycle bins

UNITED NATIONS SUSTAINABLE DEVELOPMENT GOALS

PUB WELS 3-TICK water efficient fittings.

UNIVERSAL DESIGN implemented throughout the hotel aligning with inclusive, age-friendly design.

ADEQUATE DAYLIGHTING to all living spaces.

ACCESS TO HYDRATION with all rooms fitted with filtered water taps.

ADEQUATE MAINTENANCE ACCESS space for both MEP and Architectural elements.

HERITAGE AND CULTURAL PRESERVATION through maintaining the genius loci of the site through massing and materiality.

GREEN MOBILITY enhanced through covered linkways and cycling paths.

USE OF SUSTAINABLE PRODUCTS

DP ARCHITECTS: Ti Lian Seng, Wu Tzu Chiang, Lesley Lim, Jeremy Tan, Loh Hai Yew, Pinson Lim, Anwar Rashid, Jessica Chow, Indra Arif Rachman, Mahisa Narendra, Wu Wenwei, Ser En Min, Reynaldo Castillo

DP ENGINEERS: Goh Yong Ping, Leslie Khuan

DP GREEN: Yeong Weng Fai, Ong Siew Leng, Iffa Haziqah Abu Jalal, Akif Azaman

DP LIGHTING: Kevin Sturrock, Victor Valera

RAFFLES SENTOSA SINGAPORE

Opening its doors to the public in March 2025, Raffles Sentosa Singapore marks the second Raffles property in the country and the newest addition to the cluster of world-class hospitality developments on Sentosa Island. Elegantly elevated and luxuriously verdant, the resort offers an immersive tropical retreat that sets itself apart from its contemporaries.

The design of Raffles Sentosa Singapore was conceptualised by Yabu Pushelberg (USA/Canada), with whom our multidisciplinary team collaborated as the design development and project architect, landscape architect, and engineers. The brief was to craft a hospitality destination that reinterprets the brand’s origins as a beachfront property, dating back to its establishment on Beach Road in 1887, while contributing to Singapore’s evolution as a global destination. Drawing on both brand heritage and the unique topography of the site, the scheme thoughtfully integrates a sense of place, contemporary elements, and signature Raffles touches into a refined collection of 62 villas, each with its own outdoor terrace and private pool, the first of its kind in Singapore.

Integration with the natural landscape was central to the design vision. The aim was to create a nature-immersed hospitality experience that respects biodiversity and remains in harmony with the site’s topographic character. Landscape architects from DP Green curated a selection of local plant species that would thrive on the site and enrich surrounding biodiversity. Architecturally, the villas’ timeless, simple forms, neutral palette and use of natural materials allow them to blend seamlessly into the lush greenery. Their clean contemporary lines and generous living spaces invite guests to luxuriate in the tropical environment rather than compete with it.

The resort comprises 56 one-bedroom villas averaging 200sqm in compound area, and four two-bedroom villas averaging 300sqm. In the northern zone, villa clusters are arranged around the Heritage Tree and its 15-metre Tree Protection Zone, allowing the tree to remain a prominent focal feature visible from the single-storey villas. In the southern zone, villas are terraced and oriented southwards, benefitting from the cooling sea breeze that typically occurs in the morning and late afternoon. From the one-bedroom and twobedrooms villas to the Presidential and Royal villas, privacy and optimal views were prioritised and successfully achieved. Each villa features its own private pool, daybed, pool deck, and curated landscaping, creating a seamless interplay between indoor and outdoor living.

IMAGE COURTESY OF RAFFLES SENTOSA SINGAPORE
IMAGE COURTESY OF RAFFLES SENTOSA SINGAPORE
IMAGE COURTESY OF RAFFLES SENTOSA SINGAPORE

AN ELEGANTLY ELEVATED AND LUXURIOUSLY VERDANT OASIS AMONG THE TROPICS, IT OFFERS

AN IMMERSIVE HOSPITALITY EXPERIENCE UNLIKE ITS CONTEMPORARIES.

Guided by a careful reading of the site’s undulating terrain, the masterplan strategically organised the villas and landscaping to optimise privacy, views, and connection to nature. The gently terraced gardens extend the visual continuity of Sentosa’s coastal forest, heightening the sense of being enveloped by greenery. Complementing the villa experience, the resort offers six F&B establishments that further enhance its hospitality experience.

Synonymous with the Raffles brand, this distinctive sense of luxury is evident from the moment guests arrive at the Arrival Hall, which houses the Raffles Room and Chairman’s Room. The preserved Heritage Ficus trees form a defining element of the arrival landscape, lending grandeur while paying homage to the brand’s history. Meandering landscaped pathways guide guests through the resort, revealing panoramic views of the infinity pool and valley.

At the heart of the resort sits the Raffles Ballroom, All-Day Dining and the Main Pool area. The Raffles Ballroom accommodates up to 400 guests, while the Garden Room seats up to 120 guests in a banquet configuration. Both spaces provide flexibility for weddings, meetings, and conference events, and are served by a commercial kitchen offering tailored menus for different occasions.

Adjacent to the pool deck, the All-Day Dining, named the Empire Grill, offers a relaxed dining environment for guests enjoying breakfast, lunch and dinner, with the dining area configurable into private zones via sliding doors.

The Speciality Restaurants building, a two-storey structure housing Royal China and Iyasaka by Hashida, provides distinctive dining experiences complemented by scenic views of the Singapore Strait.

Raffles Sentosa Singapore was also designed with sustainability as a priority, integrating multiple green strategies. A Green Plot Ratio (GnPR) exceeding 5 ensures extensive landscaped areas that support biodiversity and offer visual respite. Permanent measuring instruments monitor the energy efficiency of Variable Refrigerant Flow (VRF) condensing units and air-distribution subsystems. Rainwater harvesting and a water-efficient irrigation system equipped with sub-soil drip irrigation and rain sensors further reduce water usage, complemented by water-efficient fittings and smart remote meters that track major water consumption points.

Framed by its natural surroundings and rich heritage, the development’s thoughtful site planning and sensitive architectural approach harmoniously balance modern operational efficiency, ambience and comfort, delivering an exceptional five-star hospitality experience.

DP ARCHITECTS: Teoh Hai Pin, Lew Chin Kwan, Alvin Foo, Zhao Ze Chuan

DP ENGINEERS: Goh Yong Ping, Dhany Harjanto

DP FAÇADE: Mathieu Meur, Mac Tan

DP GREEN: Yvonne Tan, Tay Kwang Liang, Gu Liyuan

DP SUSTAINABLE DESIGN: Helen Yan

THE CLAN HOTEL SINGAPORE

The Clan Hotel Singapore, a contemporary luxury business hotel, is situated within the China Place precinct, an area identified for redevelopment and renewal. Set within this context, the concept of ‘clan’ is central to the brand of the hotel, serving as an ode to its past as a settlement for the ethnic Chinese immigrant community in the 1800s, while also embracing the broader meaning and value of belonging. This duality informs the guest experience, where exclusivity and community converge to relay a universal sense of kinship, time-honoured traditions and transcending of cultural confines.

It also extends into our architectural design scheme which was conceived to inject fresh energy and vibrancy into the precinct without alienating the development from the rich cultural and historical identity of its locale. Encapsulating this design intent, our façade design for the hotel seamlessly fuses urban aesthetics with Chinese cultural nuances. The resultant envelope of glazed bronze curtain wall with subtle integration of contemporary Chinese character in its window subdivision pattern, is a sensitive blend of old and new, authentic and fresh. Through materiality and motif, we achieved a sleek and modern building that stands in complement to its surrounding architecture while paying homage to its past; effectively appealing to international sensibilities and expectations.

IMAGE COURTESY OF FAR EAST ORGANIZATION
IMAGE COURTESY OF FAR EAST ORGANIZATION
THE CONCEPT OF ‘CLAN’ IS CENTRAL TO BOTH THE DESIGN AND BRAND OF THE HOTEL, SERVING AS AN ODE TO ITS PAST AS A SETTLEMENT FOR THE ETHNIC CHINESE IMMIGRANT COMMUNITY IN THE 1800 s , WHILE ALSO EMBRACING THE BROADER MEANING OF KINSHIP AND BELONGING.

L1:

Executed as a unitised curtain wall system, the design ensures consistent quality control and efficiency in installation, optimising both precision and construction speed. All vision panels are double-glazed with low-emissivity (low-e) coating, effectively minimising solar heat gain and improving indoor thermal comfort. The façade thus serves not only as an aesthetic statement but also as a high-performance envelope that responds to the environmental demands of the tropical climate, reducing energy consumption while enhancing spatial wellbeing within.

Public space design within the development was guided by a strong community-oriented approach. By leveraging and retaining existing pedestrian pathways and transport infrastructure, the design created room for an open plaza on level one. This effectively functions as an active intersection, a vibrant marketplace and a view corridor to the shophouses in the vicinity. Directly connected to Telok Ayer MRT Station via the basement link, the plaza acts as a sheltered passage for both hotel guests and the public, linking seamlessly to surrounding nodes such as Nankin Street, Great Eastern Centre,

China Square and Far East Square; thereby, reinforcing the hotel’s role as an active and porous delegate in the precinct.

On the fourth level, the spatial narrative unfolds into a landscaped sky terrace. Serving as a break in the massing, this elevated garden provides a communal vantage point overlooking the tiled roofscape of traditional shophouses against the high-rise backdrop of the central business district. Dedicated hotel facilities are integrated on the 30th floor of the hotel tower, leveraging its height to offer unparalleled views of the city skyline from the sky gym and the sky pool.

Bridging the old and the new, The Clan Hotel Singapore exemplifies how contextual sensitivity and contemporary design can coexist. It stands as both a landmark destination and a revitalising presence as a high-rise architecture in the low-rise conservation setting

DP ARCHITECTS: Chan Sui Him, Dadi Surya, Suneeth Changaroth, Lee Shee Koeng, Syahirah Abbas, Sharifah Nurul Huda, Bengie Laguerder, Doan Quang Hiep (DPA alumni)
L30: SKY GYM & SKY

MONDRIAN SINGAPORE DUXTON

LOCATION SINGAPORE

YEAR 2023

GFA 11,900SQM

An exercise in generating new socio-economic vibrancy, our design of Mondrian Singapore Duxton in the Tanjong Pagar Conservation Area is as much concerned with how the development stands in dialogue with its urban grain as the architectural expression itself.

Mondrian Singapore Duxton sits among a row of conserved Peranakan shophouses at the junction of Neil Road and Craig Road, within the triangular enclave of Duxton Hill. Its proximity and accessibility to Kreta Ayer and Chinatown to its north and the Central Business District at Tanjong Pagar to its south-east provided prime opportunity to reconnect the famous Keong Saik Road to the vibrant heart of Duxton Hill and to extend the vibrancy of the precinct during both day and night. From the conception stage, Mondrian Singapore Duxton was designed to exude a spirit of community, achieved by creating an axial avenue of interesting, multi-level spaces where people can connect and interact. Among these were the introduction of a through-block link, seamlessly connecting visitors to the surrounding areas, and a thoughtfully designed oasis on the 3rd storey.

The dense urban build-up over the decades has led to little landscaping within the site. Seeking to transform the urban experience, green zones were thus thoughtfully designed and interwoven throughout the hotel development, including its through-block link. This creates an inviting pedestrianised boulevard that softens the otherwise harsh façade of retail spaces while offering an intentional visual wayfinding cue for traversing through to Duxton Hill. The oasis on the 3rd storey, where the main lobby is located, serves the dual purpose of providing respite within a very built-up area surrounding the site and of creating a lush event space. Here, hotel guests may also find pause and refuge amidst perennials and seasonal blooms.

MORE THAN JUST A HOTEL DEVELOPMENT, MONDRIAN SINGAPORE DUXTON

ENABLED US

TO RE-ESTABLISH THE SITE AS A VITAL NEXUS CONNECTING

DUXTON HILL TO THE WIDER CHINATOWN DISTRICT, THEREBY REGENERATING VIBRANCY AND DYNAMISM FOR IMPROVED ECONOMIC

AND SOCIAL RESILIENCE.

Architecturally, the hotel is a charming blend of tradition and modernity. Its design scheme abstracts from the urban heritage and embraces the contemporary elegance of its locale. The façade design echoes the datum of scale and proportion of the adjacent shophouses, while common decorative elements are abstracted as architectural features, deriving a form true to its time. The traditional shophouse design language is carried into the Food & Beverages and retail wing of the hotel, facing Neil Road. Inside Mondrian Singapore Duxton, the design continues to honour tradition. Scalloped arches reminiscent of five-foot walkways grace the ceilings, linking Neil Road and Craig Road in a stylistic homage. These architectural motifs extend into the hotel rooms, creating a seamless blend of past and present.

Practicality meets sustainability in every aspect of the design. A centralised service core optimises space efficiency, while selfcleaning glass and low-maintenance cladding ensure effortless upkeep. Landscaping features low-maintenance flora and permeable paving, promoting efficient water drainage and reducing maintenance needs. Sustainable solutions include the integration of energy-efficient HVAC systems and water-saving fixtures, as well as renewable energy sources. By prioritising sustainability, Mondrian Singapore Duxton minimises its environmental footprint

and optimises operational performance, achieving a balance between luxury and climate responsibility.

Our design vision for this 302-key hotel development pushed the intent of its brief. Officially opened in July 2023, Mondrian Singapore Duxton thoughtfully integrates the precinct’s eclectic mix of commercial offerings and community activities. It has re-established the site as a vital nexus connecting Duxton Hill to the wider Chinatown district and regenerated the vibrancy and dynamism for better economic and social resilience.

DP ARCHITECTS: Dadi Surya, Suneeth Changaroth, Widyanto Hartono, Kiki Raditya, Yanuar Kristanto, Iman Ashar, Steven Tjokrokentjono, Lucky Manuell, Franco Dominico, Mark Wong, Gieto Sugianto (DPA Alumni)

QUANTITY SURVEYOR: Asia Infrastructure Solutions Singapore Pte Ltd

FAÇADE CONSULTANT: Building Façade Group

LANDSCAPE ARCHITECT: SHMA Company Limited

C&S CONSULTANT: TW-Asia Consultants Pte Ltd

M&E CONSULTANT: United Project Consultants Pte Ltd

INTERIOR DESIGN: Studio Carter / Hirsch Bedner Associates

LIGHTING CONSULTANT: Lighting Planners Associates (S) Pte Ltd

ARTWORK: The Artling

ACOUSTIC: Acviron Acoustics Consultants Pte Ltd

NOVOTEL GOA PANJIM

Accor Group’s third establishment in the region, Novotel Goa Panjim sets itself apart from its counterparts with an upscale urban resort design concept. It blends the elegance of a city hotel with the relaxed ambience of a resort, offering patrons a luscious oasis in the densely populated and bustling city of Panjim.

Our design approach was drafted in response to site constraints and characteristics—adjacency to a main roadway, strict height limitations and lack of natural vistas. These circumstances informed an inwardlooking environment while maximising usable programmatic space, achieved through three key architectural strategies.

The hotel’s architectural style, for one, is deliberately crafted to soften the harshness of its urban surroundings with a façade of curvilinear balconies inspired by the movement of waves. Its undulating lines, complemented by landscaping, provide a delightful contrast to the predominantly rectilinear forms in the area and establish a unique identity. The fluidity of form also conveys a sense of movement and relaxation typically associated with resort settings and the welcoming nature of hospitality itself.

The second strategy combines setting the room tower back from the road and introducing a sunlit courtyard within the lobby, effectively mitigating the effects of external noise and traffic to create a serene environment and ensure privacy. A key spatial feature, the sunlit courtyard frames views of the sky and allows natural light to penetrate deep into the building. In the lobby, visitors are immediately immersed in a peaceful and uplifting space.

NATURAL LIGHT, FLUID FORMS, AND CAREFULLY ORCHESTRATED SPATIAL SEQUENCES COME TOGETHER TO CREATE NOT JUST A STAY, BUT AN EXPERIENCE—ONE THAT BALANCES THE VIBRANCY OF CITY LIFE WITH THE CALMNESS OF A RESORT ESCAPE.

This poignant sense of tranquillity is thoughtfully crafted throughout the hotel development, with the rooms oriented to overlook a lushly landscaped pool deck. Each room, designed as a sanctuary, extends into a generous balcony featuring further planting and seating areas for a more immersive outdoor experience.

The height restrictions presented additional challenges for accommodating the extensive programme. To address this, the banquet hall, operational areas and parking facilities were incorporated into two basement levels. This involved significant structural modifications to manage sub-soil water pressure, which were effectively handled using shore piles and MS strutting to support the retaining walls.

Additionally, the hotel expands its hospitality offerings with a versatile ballroom that can be divided into two separate venues, along with multiple meeting rooms that cater to various event sizes. The inclusion of a casino, which has its own private entrance on the stilt level, introduces an entertainment element that boosts the hotel’s appeal while maintaining guest privacy.

Natural light, fluid forms and carefully orchestrated spatial sequences come together to create not just a stay, but an experience—one that balances the vibrancy of city life with the calmness of a resort escape. Novotel Goa Panjim successfully combines the energetic spirit of an urban environment with the tranquillity of a resort, offering guests a distinctive blend of luxury and comfort.

REGULATING SOLAR GAIN

GRC (Glass Reinforced Concrete) material on the façade helps regulate solar gain, reducing heat ingress and enhancing thermal comfort.

FAÇADE OPTIMISATION

Semi-unitised glazing optimises thermal efficiency and cuts energy demand.

EFFICIENT IRRIGATION

The façade planters & lower landscape incorporates smart irrigation systems in the landscape design to minimise water waste.

ACOUSTIC COMFORT

The combination of glass, GRC, planters on the façade & façade design creates a buffer that helps reduce noise pollution within the project.

STORMWATER MANAGEMENT

The design integrates water features seamlessly with surrounding green spaces.

UNITED NATIONS SUSTAINABLE DEVELOPMENT GOALS

ENERGY EFFICIENT COOLING

Employs a VRF (Variable Refrigerant Flow) system for energy-efficient cooling, significantly reducing overall building energy consumption.

DP ARCHITECTS: Charles Chandra Putera, Smruti Pednekar, Vivek Sinnarkar

STRUCTURAL CONSULTANT: Mahintura Consultants

MEP CONSULTING ENGINEERING: ThinkBIM & Grey&White

FAÇADE CONSULTANTS: Nitson Amitsu

BOH CONSULTANT: Universal Consultants

LANDSCAPE CONSULTANT: Oracles

INTERIOR DESIGNER: Studio HBA

SOLAR PANEL FOR RENEWABLE ENERGY

Integrates solar panels to significantly reduce the carbon footprint and operational costs.

SUSTAINABLE MATERIAL

Incorporates sustainable, recycled and local materials.

URBAN HEAT ISLAND

The curvilinear façade and recessed placement reduce heat absorption and retention.

COMMUNAL GARDEN

The spillover courtyard extends the restaurant with a pool and landscape that foster social interaction.

PROJECT MANAGER: WALL

ACOUSTICS CONSULTANTS: T2 Consultants

CONSTRUCTION COMPANY: Bhate & Raje Construction Co.Pvt.Ltd.

HOSPITALITY GROUP: Accor

DEVELOPER: Sierra Gold Heights Pvt. Ltd., New Delhi

RENDER CREDITS: DPAC In-house, Oracle Landscape

YOTEL TOKYO GINZA

YOTEL Tokyo Ginza, which officially debuted in June 2025, is positioned to set a new benchmark in hospitality offerings and experience in Japan. The brief was to design a hospitality development that captures YOTEL’s signature tech-forward approach and compact efficiency into a space that that also resonates with the spirit of its location. Acknowledging its proximity to the renowned Kabuki-za Theatre and famed high-end retail street in Ginza (Japan), we saw that an interior design scheme that is at once playfully restraint and thoughtfully indulgent would create a differentiated, stand-out hospitality experience. The outcome foregrounds a harmonious blend of contemporary notes and timeless Japanese aesthetics.

Drawing cues from traditional Japanese architecture, the design features a restrained palette of natural materials, including timber and gravel. Utilised across the hotel, this understated palette serves as the foundation of the design aesthetic, while providing a canvas for vibrant accents, echoing the dynamism of Tokyo and Ginza itself. On the ground floor, the double-volume space seamlessly integrates the reception area (“Mission Control”) and all-day dining (“Komyuniti”). Central to the design scheme of these two spaces is the use of colours—adopted as visual signifiers to differentiate between spatial zones while lending each area a particular ambience specific to its source of inspiration. At “Mission Control”, YOTEL’s signature purple is a main feature, with the brand’s colour punctuating the pared-back materiality of the space. Aptly applying the brand’s signature element at the entry point, the design creates a striking and welcoming space that vividly foregrounds the brand’s identity.

In the case of “Komyuniti”, the vibrant colour scheme mirrors the autumn foliage, celebrating the ever-changing Japanese seasons with rich yellows and reds contrasted against intermittent splashes of deep turquoise reminiscent of summer. This dynamic interplay of colours, further enriched by a collaboration with a local Japanese artist, anchors the design firmly within the Ginza context. Building upon its season-inspired colour palette, the design of “Komyuniti” extends its relationship with nature through the use of timber materials and the strategic placement of indoor greenery. Beyond this, large windows—accentuated by sleek, black rectangular grids—serve as a transparent divide between the dining space and the outdoor greenery along the streets. Introducing ample natural light, these elements work in tandem to create an open, warm and inviting area for dining and socialisation, connecting the space with its surrounding streetscape.

EFFICIENCY

AND

FUNCTIONALITY

ARE

CENTRAL TO THE HOTEL’S DESIGN—CLEAN LINES AND A MINIMALIST STYLE ENSURE THAT EVERY ELEMENT SERVES A PURPOSE,

MAXIMISING SPACE UTILISATION WHILE EMPHASISING

THE BRAND’S IMMERSIVE EXPERIENCE.

Additionally, the curated selection of simple and contemporary furniture provides a comfortable dining experience for visitors and guests, simultaneously conveying a modern aesthetic that is characteristic of the brand. Efficiency and functionality are central to the hotel’s design—clean lines and a minimalist style ensure that every element serves a purpose, maximising space utilisation while emphasising the brand’s immersive experience. Continuing this modernist approach, the design of “Komyuniti” utilises curvilinear shapes and lines that effectively lend a softer tone to the space. Particularly, the featured chandelier—taking the form of a long, twisting line—offers itself as a prominent statement piece at the bar area. In comparison, lighting at “Mission Control” plays a strategic role, where vertical wall elements in the reception area are effectively highlighted through the use of purple lighting, heightening the volumetric space visually. In the guest rooms, this perception of space is cleverly manipulated through the use of mirrors and ceiling design, both working in conjunction to expand the space in a manner akin to optical illusion.

Throughout the hotel, the interior scheme deeply connects with its surrounding context while preserving the brand’s signature style. Creating a blend of traditional Japanese art and contemporary design, YOTEL Tokyo Ginza is a testament to the innovative integration of modern hospitality with the unique cultural and aesthetic sensibilities of Japan.

YOTEL SINGAPORE

The first YOTEL hotel designed by the firm, YOTEL Singapore offers a tailored hospitality concept that delivers convenience, sustainability in design and artistic spaces by focusing on function and technology. Navigating spatial constraints in a confined, high-density urban area, the design introduces space and depth through strategised volumetric height. Emphasising the brand’s futuristic style, smart features are integrated into the design for optimal comfort and immersive experience, such as a ‘Tech Wall’ and an automatic adaptable bed in the guest rooms, fully-automated self-check-ins and robot butlers. Beyond technological innovation and digital connectivity, open co-living spaces offer ease of offline interactions, enhancing a sense of community. All-day dining facilities blend and overlap with the pool and gym areas to create opportunities for informal work meetings and social gatherings, blurring the boundaries between elements of work and play.

DP DESIGN: Mike Lim, Dessy Budhianto, Louise Law, Samantha Soh, Sharlyn Villalon, Jonathan Chew

OUR ACCOMPLISHMENTS IN NUMBERS

DP ARCHITECTS

58

NUMBER OF HOTELS COMPLETED IN SINGAPORE (INCLUDING DESIGN AND/OR PROJECT MANAGEMENT)

45

NUMBER OF HOTELS DESIGNED IN SINGAPORE

20,200

NUMBER OF ROOMS DESIGNED AND BUILT IN SINGAPORE

1,769,714SQM

TOTAL GFA OF ALL HOSPITALITY PROJECTS IN SINGAPORE

DP DESIGN

21

NUMBER OF HOTELS COMPLETED GLOBALLY (INCLUDING DESIGN AND/OR PROJECT MANAGEMENT)

26

NUMBER OF HOTELS DESIGNED GLOBALLY

7,190

NUMBER OF ROOMS DESIGNED AND BUILT GLOBALLY

903,233SQM

TOTAL GFA OF ALL HOSPITALITY PROJECTS GLOBALLY

CONRAD SINGAPORE ORCHARD

A sensitively conceived refresh, the design scheme of Conrad Singapore Orchard pays homage to its architectural heritage.

Conrad Singapore Orchard is a rebrand of the former Regent Singapore, designed by renowned American architect John Portman and originally completed in 1982. It is the second Conrad hotel in Singapore following Conrad Centennial Singapore and part of the Hilton Honor’s portfolio.

While not gazetted for conservation, the building’s rich quality of spaces offers a meaningful connection to the urban landscape, driving the AEI project to preserve its architectural and sentimental value. The adaptation of the building embraces the prevailing notion of the SG Green Plan 2030, employing a thoughtful balance between innovation and preservation to craft new spaces and experiences within the existing development. By working with the current massing and site conditions, we minimised demolition and carbon emissions. Our design scheme also addressed operational carbon through the

installation of new photovoltaic (PV) panels and extensive upgrading of its Mechanical, Electrical and Plumbing (MEP) systems for a more environmentally-responsible hospitality scene.

Tasked with revamping the common spaces, our team of architects and interior designers were careful to preserve Portman’s signature architectural style and to retain key features. These include the voluminous atrium, central passenger lifts, sky bridges across the 12 storeys, as well as the terraced balconies and planters at the east and west wings which are crucial reminders of Portman’s original design intent—to bring in nature. Thus, led by the architectural heritage of the hotel development, each decision intervention was thoughtfully considered and implemented with the aim of enhancing the rich quality of the spaces and renewing meaningful connection; all while aligning with the Hilton brand.

“I HAD THOUGHT A LOT ABOUT HOTELS—DIM, DARK LOBBIES WITH A DESK AND NEWSSTAND. I WANTED TO DO SOMETHING DIFFERENT. I WANTED TO CREATE ALMOST A RESORT, A CHANGE OF PACE, TO BRING IN NATURE.”
– JOHN PORTMAN, 1975

Modern fittings in a gentle palette of beige fabrics and leather tones were meticulously chosen to complement and harmonise with the new carpet design. Another notable feature was the revitalisation of the function rooms using new wall panels and a Barrisol ceiling system, composed of delicate bronze metal profiles in a geometric grid. Sleek and contemporary, this innovative approach enhances aesthetic appeal and serves as a creative solution to circumvent the constraints posed by the limited ceiling height, a challenge that arose from the need to maintain the integrity of the hotel’s interior form.

Conrad Singapore Orchard officially opened its doors in January 2024, revealing luxuriously modern interiors that are elegantly clean and understated. Playing to the generous volume of its architecture, its interior design delivers welcoming, inclusive social spaces for all.

The AEI of Conrad Singapore Orchard is at once a celebration of the architectural excellence of the past and an offering of a refreshed, sustainable hospitality environment for visitors of today.

DP ARCHITECTS: Chua Zi Jun, Shawn Teo, Leonard Cheok, Jiang Wenhuan, Tiffany Becker, Syahirah Binte Abbas, Chong Mei Yan
DP DESIGN: Mike Lim, Louise Law, Francesco Morsiani, Samantha Soh, Raymond Cheong, Jason Chen

REWORKING 175 ALBERT STREET

ibis STYLES SINGAPORE ALBERT

With minimal demolition and creative abstraction of its genius loci, the design scheme repositioned the hotel and renewed its competitive edge.

Global Premium Hotel Limited (GPHL) and Accor Group announced their partnership in 2019, which saw the franchise of 15 GPHL hotels – including Parc Sovereign on Albert Street – to Accor. The change in operators called for a rebranding of the hospitality development, and the brief given was to transform the existing classic interior with minimal budget and time, refreshing its appeal as a mid-tier hotel for international guests. Tasked with reworking the common spaces for ibis Styles Singapore Albert, the project demonstrates that well-placed interventions can have a dramatic impact on changes in brand identity.

ibis Styles Singapore Albert is situated in the Jalan Besar Conservation Area, rich in history and old-world charm. A vibrant mix of eating houses, long-standing clan associations, entertainment outlets, boutique offices, hostels and hipster cafes occupies its shophouses. This is further bolstered by Jalan Besar’s proximity to

the famed Orchard Road and iconic Marina Bay area, which sets it in a modern context, lending the precinct a truly unique energy.

Our design scheme, formulated on the basis that demolition and dismantling of existing structures would be kept to a minimum, drew its inspiration from this genius loci and abstracted from Singapore’s broader positioning as a tropical city. From its reception through to the restaurant, we juxtaposed classic nuances against modern elements and created texture through a playful contrast of colours, materials and graphics. The floor is laid with vinyl, and the wall is clad in black wood strips inspired by the black-and-white colonial architecture. Against this canvas, we introduced a quirky blend of furnishings such as vintageinspired chairs and sofa seats in bold tones, fun forms and plush materiality, set in dialogue with graphic art showcasing cultural icons, city grid and plants.

RE-THINKING THE HOSPITALITY EXPERIENCE AS A SOCIAL MOMENT, WE IDENTIFIED SPATIAL OPPORTUNITIES TO INTEGRATE THIRD PLACES INTO OUR DESIGN SCHEME.

Further to this, the reception counter was also reduced and relocated. This enabled us to maximise space, transforming a part of it into a social hub and a library living room, which now forms the central spatial feature of the hotel. The intent goes beyond aesthetics. It sets the tone of the space as a place to dwell in either gentle solitude or easy social exchanges. This same atmosphere extends to the restaurant space. Applying the same design measures, but with a nod towards old-school eating/coffee houses, the vibe is fun and casual, inviting guests to dine in and indulge in good company.

The addition and alteration work to the former Parc Sovereign hotel has entirely transformed the spaces and given it a necessary refresh. Youthful, vibrant and affordable, the relaunch as ibis Styles Singapore Albert allows the hotel development to re-engage with its locale and a renewed competitive edge.

DP DESIGN: Mike Lim, Louise Law, Raymond Cheong
IBIS STYLES SINGAPORE

MERCURE SINGAPORE TYRWHITT

Taking a zero-demolition approach, the redesign and rebranding of Mercure Singapore Tyrwhitt leaned into place, people and history.

The addition and alteration (A&A) work of the common spaces at Mercure Singapore Tyrwhitt for the Accor collection was a mindful makeover, inspired by the rich, layered expressions of the vibrant precinct in which it is located. Tyrwhitt Street, named after Admiral Reginald Yorke Tyrwhitt, was an industrial area and the go-to place for hardware supplies. A rezoning exercise as part of the 2013 Master Plan led to the urban transformation of Tyrwhitt Street for hotel development. Today, the area is well-known for its hipster cafes, bars and restaurants – a trendy hangout for creative types.

The redesign, by our interior design specialists at DP Design, invites hotel guests into an urban retreat that charms with industrial character and subtle heritage references. Drawing on present-day, we have also delivered a place where hospitality – more than just a service – becomes a social experience. This promotes creative thinking about spatial functions, aesthetics and efficiencies, leading to a design scheme that emphasises the communal and accommodates multifunctional use.

The hotel lobby, presented as a ‘living room’, offers guests a space where they may dwell in comfort. Its open floor plan is deliberate, allowing the ‘living room’ to extend into the corridor that leads guests to the lift lobby, thus creating an opportunity to re-imagine it as a third place. Bold geometric flooring unifies the entire reception

and lobby, while a varied seating arrangement prepares the space for alternative uses, such as a secluded corner for reading or working and a gathering space for family and friends. Conversely, the reception area is entirely free of furnishing, prioritising smooth flow of people and luggage and supporting an efficient check-in experience.

The café and bar similarly embody this spirit of connection. As the hotel’s social centre, the space is centred around a striking main bar characterised by grid shelving, greenery and versatile seating. During the day, it operates as a bright and informal café where guests can work, meet or relax. In the evening, the same environment transforms into a lively bar; its ambience changes with lighting and use. This intentional flexibility maximises space efficiency while offering guests a range of experiences within a single framework.

Across the hotel’s communal area, its industrial-style detailing is a nod to its urban heritage while contemporary elements highlight its relevance to its current site context. The juxtaposition of hard and soft, raw and refined, creates an environment that feels approachable and lived in. In the lift lobby and corridors, the design continues its place-making and storytelling. Patterned flooring, laminate panelling and curated artworks enhance its atmosphere, infusing otherwise transitional spaces with visual interest and moments of discovery.

FROM THE LOBBY AND THE BAR TO THE CORRIDORS, EVERY SPACE IS PLANNED AND PROGRAMMED TO PERFORM MULTIPLE ROLES. THIS ACCOMMODATES THE FLUID WAYS IN WHICH GUESTS USE AND INHABIT HOTELS WHILE ALSO ALLOWING THE FRONT-OF-HOUSE TO BE ABUZZ WITH SOCIAL ACTIVITY, WHICH GENERATES A WARM AND WELCOMING HOSPITALITY EXPERIENCE.

A minimal-to-no-demolition approach underscores our design ethos for addition & alteration projects. The intent is to reduce waste and embodied carbon emissions where possible through thoughtful integration of the building’s existing structure. Retaining the original floor and ceiling, for example, we were able to add to the character of interior spaces. And where operational carbon is concerned, energyefficient LED lighting is employed throughout public areas, reducing energy consumption while maintaining ambience and comfort. Through this intervention, the hotel lowers its environmental footprint and aligns with broader goals of responsible hospitality.

Beyond its guest experience, the design also prioritises durability and inclusivity. Finishes are chosen for their longevity and capacity to withstand high-frequency use, ensuring the hotel’s sustainability in terms of lifecycle performance. Circulation areas are spacious and inclusive, supporting accessibility and comfort for all guests. These attention to detail and practical considerations highlight the hotel’s positioning as a four-star destination, reflecting its dual responsibility to create a welcoming environment for travellers while enabling operators to manage the property efficiently and sustainably over time.

Redefining urban hospitality at Tyrwhitt Road, Mercure Singapore Tyrwhitt’s interior design illustrates how thoughtful design can enhance everyday experiences, generate value for all stakeholders and positively influence the evolving cityscape.

DP DESIGN: Mike Lim, Louise Law, Samantha Soh, Jason Chen, Raymond Cheong

HILTON GARDEN INN

A familiar presence, the revamped Hilton Garden Inn at Jalan Tuanku Abdul Rahman North now stands as a renewed landmark among the Kuala Lumpur skyline.

The transformation of Hilton Garden Inn, located at the northern end of Jalan Tuanku Abdul Rahman, was one that arose from the need to rejuvenate a building that was already a familiar presence within Kuala Lumpur’s urban fabric. Over the last three decades, the 24-storey tower has evolved alongside the city, adapting to its changing urban landscape with two major transformations before 2016 and a third undertaken by our design team in 2016.

In response to the ever-changing dynamic cityscape, the design brief called for a comprehensive refurbishment of the hotel tower to achieve three key things: a functional update to support hotel changing operational needs; re-invigorate brand identity; and, re-establish its presence as a refreshed player within the city’s competitive hospitality landscape. Our design scheme, while embracing modern design sensibilities, was developed with a keen respect for the local context and cultural heritage, and to meet the standards of a three-star hotel under the Hilton Garden Inn brand.

At the podium level, a new façade was conceptualised; a necessary facelift that not only re-inserts Hilton Garden Inn as a key landmark within Jalan Tuanku Abdul Rahman but also rejuvenates the surrounding neighbourhood. The architectural language is bold but simple, expressing verticality that visually lends a leanness to the building’s massing and communicating modernity and prominence. Where the façade faces the main thoroughfare, we introduced a second skin of aluminium panels that enhances aesthetic value and delivers improved environmental performance as a sunshade mitigating heat gain.

To elevate the hotel’s value proposition, we made sense of the internal layout to maximise the number of hotel rooms and create space for new amenities that elevate the guest experience and bolster its market standing. The latter includes a welcoming dining area, a fully-equipped fitness centre, a Pavilion Pantry for quick snacks and essentials, a self-service laundry area and a business centre that caters to the modern corporate traveller and its intended clientele.

The interior design concept drew from the rich heritage of Malaysian batik with its timeless motifs of leaves and flowers and re-interpreted them with a contemporary flair. Avoiding heavy ornamentation as is found in traditional aesthetic, these were abstracted into geometrical and organic patterns that were woven into wall treatments, flooring designs and soft furnishings. The final spatial composition is subtle and minimalist yet distinctive and uniquely Malaysian.

The scope of services for the design team was extensive and multifaceted. It encompassed the development of the concept design into schematic and detailed design stages, undertaken in collaboration with Sunray Construction & Interior Sdn Bhd (SCI) and their appointed consultants. Specifications were carefully prepared, including finishes schedules and outline architectural specifications, to identify major materials and establish quality standards. Drawings were produced in compliance with the various relevant authority requirements, and the necessary submissions were made to obtain approvals.

INFORMED BY MODERN DESIGN SENSIBILITIES AND A DEEP RESPECT FOR ITS LOCALE’S CULTURAL HERITAGE, THE REFURBISHMENT DELIVERS

A REFRESHED, MODERN HOSPITALITY EXPERIENCE BEFITTING OF THE INTERNATIONAL BRAND AND COSMOPOLITAN TRAVELLER.

Throughout the construction process, we supported SCI by reviewing specialist sub-contractors’ shop drawings, inspecting works periodically to ensure compliance with both authority requirements and good construction practices, and reviewing materials and finishes for adherence to the agreed standards. Our design team also took responsibility for applying for the Certificate of Completion and Compliance (CCC) and attending site coordination meetings, ensuring seamless communication across all stakeholders. It should be noted, however, that the preparation of the programme of works, cost estimates, shop drawings and contract administration during the construction stage remained the responsibility of SCI.

The refurbishment, which brought together local cultural motifs, modern design sensibilities and the operational requirements of an international hotel brand, successfully repositioned the building as a vital asset in Kuala Lumpur’s hospitality landscape. Completed and officially handed over to the tenant in December 2017, the project stands as a testament to how thoughtful design and strategic collaboration can breathe new life into an ageing structure, ensuring its continued relevance for years to come.

DP ARCHITECTS: Lesley Lim, Shawn Teo, Syahirah Abbas

DP DESIGN: Mike Lim

DP FAÇADE: Mathieu Meur

BUILDING ON GOOD BONES PAN PACIFIC SERVICED SUITES KUALA LUMPUR

LOCATION KUALA LUMPUR, MALAYSIA

Guided by the philosophy of harmonising urban density with human comfort, the project demonstrates that even in the most compact sites, architecture can foster luxury, wellbeing and meaningful connections.

An asset enhancement initiative, Pan Pacific Serviced Suites Kuala Lumpur expands the hospitality offerings of the adjacent PARKROYAL COLLECTION Kuala Lumpur with 210 fully furnished suites tailored for both short- and long-term stays. Taking on the project, the brief was to convert a six-storey car park that served the PARKROYAL hotel into a modern serviced apartment tower.

The catch, however, was in its site constraints. At a little over 1,200 square metres and with the original car park building no more than 8 metres from the neighbouring façades, the site is compact and demolition posed a tricky problem which our team carefully navigated

and managed over six months. The successful clearance of both the superstructure and the substructure was achieved with minimal dust, noise and disruption.

In response to the site’s unique characteristics and genius, the architectural concept was conceived with an emphasis on verticality and the celebration of continuity. Slender fins and vertical lines draw focus to the tower’s height while establishing dialogue with the adjacent 40-year-old PARKROYAL hotel. The latter is further encapsulated in the column-free Pan Pacific Ballroom located on Level 2. Supported by a major transfer structure, it seamlessly

AN EXTENSION OF THE PARKROYAL BRAND, PAN PACIFIC SERVICED SUITES KUALA LUMPUR RAISES

THE BAR FOR URBAN HOSPITALITY BY BLENDING THE REFINEMENT OF FIVE-STAR HOSPITALITY WITH THE COMFORT AND FLEXIBILITY OF PRIVATE RESIDENCES.

connects to the Collection Ballroom (which can accommodate up to 475 guests) in PARKROYAL COLLECTION, with both sharing a pre-function area that allows for either independent or combined use. Together, the twin ballrooms elevate the project’s public realm, offering adaptable spaces for events of all scales. Despite its small footprint, the tower achieves a remarkable 83% efficiency. The serviced suites are arranged across 14 floors, each housing 15 units in nine configurations, ranging from one-bedroom layouts to dual-key options that measure between 47sqm and 80sqm. All suites are orientated to maximise panoramic views of Kuala Lumpur’s skyline and furnished with dry kitchens, dining areas and living spaces, blending the refinement of five-star hospitality with the comfort and flexibility of private residences. Complementing the suites and ballrooms are lifestyle amenities that complete the guest experience. A rooftop swimming pool, technology-equipped fitness centre and communal lounges provide opportunities for recreation, wellness and social interaction high above the city.

Situated in Kuala Lumpur’s Golden Triangle, Pan Pacific Serviced Suites Kuala Lumpur raises the bar for urban hospitality with innovative approaches to density and successful outcomes for liveability.

DP ARCHITECTS: Chin Thoe Chong, Ellina Rahman, Hafifi Kahar

CIVIL & STRUCTURAL ENGINEER: Asia Pacific Engineering

Consortium Sdn Bhd

MECHANICAL & ELECTRICAL ENGINEER: MEG Consultant Sdn Bhd

QUANTITY SURVEYOR: RLB Bersepadu Sdn Bhd

LAND SURVEYOR: Juruukur Sutera Sdn Bhd

LANDSCAPE ARCHITECT: WDI Design Sdn Bhd

INTERIOR DESIGNERS: KKS International(s) Pte. Ltd.,

FDAT Architects Pte Ltd

ACOUSTIC CONSULTANT: Perunding HTA Sdn Bhd

LIGHTING CONSULTANT: MYNA Lighting Pte Ltd

REVAMPING 69 KEONG SAIK KINN STUDIOS

The preservation of the building’s cultural and architectural value informed every design decision, restoring its presence and relevance within the urban fabric of Chinatown.

Following a change in ownership, new life was injected into the former Keong Saik Hotel, which reopened in 2023 as the highly-anticipated KINN Studios. The addition and alteration works on the threestorey plus attic conservation shophouse included a redesign and a façade refresh by interior design consultant, Hjgher Studio, with our architecture team serving as the QP (Qualified Person) for the project to ensure that the works adhered to all regulatory and conservation standards whilst honouring the building’s place in Singapore’s collective memory.

KINN Studios, located at 69 Keong Saik Road in Chinatown, is situated within one of Singapore’s most historically rich conservation districts. The bustling quarter was once renowned for its diverse range of traditional trades, and later, for its transformation into a vibrant lifestyle destination. Here, the rows of shophouses reflect the layered narratives of the precinct’s past while adding to its changing identity.

The project carefully balanced respect for this history with the need for contemporary renewal. The works are primarily concentrated on the first storey, where the lobby, common areas and back-of-house facilities were redesigned to serve modern hospitality functions

better. Subtle internal adjustments, including the removal of nonstructural walls, were complemented by sensitive fit-out works on the upper storeys and attic guest rooms. This ensured that the essential fabric and circulation of the building—not excluding its staircases and passenger lift—remain intact.

As part of the enhancement, the façade of the conserved shophouse was repainted in colours thoughtfully curated to respect the building’s heritage character while introducing a refreshed identity. The proposed façade colours were developed by Hjgher Studio, whose design intent emphasised continuity with tradition and contemporary elegance. Besides this, the iconic five-foot way was also given a new flooring treatment, and the signage was repositioned to better integrate with the architectural composition of the shophouse.

From concept to completion, each design intervention was guided by the principle of preserving the cultural and architectural value of the building while elegantly uplifting its presence within the urban fabric.

Chua Zi Jun, Wong Shan Shan, Gao Xuelu, Tan Yuan Wei

HOTEL WATERLOO – A HANDWRITTEN COLLECTION

SINGAPORE

The vision for the Hotel Waterloo – A Handwritten Collection is a hotel development that stands in dialogue with its genius loci. Our focus on creating hospitality spaces that draw the vibrancy of the street in allows the hotel to add to the local arts and culture scene while enhancing its own value proposition.

Programmatically, we leveraged the Urban Redevelopment Authority (URA)’s Privately-Owned Public Space (POPS) framework and provisioned for a well-landscaped, sheltered public space for performance and/or events on the first floor. The lightweight canopy keeps the naturally ventilated space comfortable and accessible for public use at all times. Front-facing, it is complemented by other activity-generating amenities such as a café and outdoor refreshment area on the first floor, which activate the street and enhance streetlevel vibrancy.

Architecturally, the podium façade is adorned with timber-like fins, trellises and cladding, and a material palette of earthy tones has been selected for the wall and floor finishes to create a tropical aesthetic that complements the vernacular character of the heritage masonry buildings with terracotta pitched roofs along Waterloo Street. The form and massing of Hotel Waterloo – A Handwritten Collection have been designed to sensitively respond to the intimate scale of its adjacent low-rise developments and bungalows. To achieve this, the commercial podium is kept to two storeys, while the hotel tower is substantially set back from the street, allowing it to blend in with the high-rise buildings along the parallel Bencoolen Street.

MÖVENPICK SINGAPORE

SINGAPORE CONSTRUCTION

The redevelopment of 15 Hoe Chiang Road presents an opportunity for a unique, verdant commercial development through a natureinclusive design. Two things underpin the formulation of our design concept: the integration of hospitality and residential components – Mövenpick Singapore (the largest in Asia Pacific at 808 keys) and Mövenpick Living Singapore (a 37-key accommodation for travellers seeking an extended stay) within a single development, and its highly dense, urban site.

Our key moves were to create a 35-storey vertical garden: in plan by interweaving greenery from the ground up to the podium roof, and in elevation by strategically placing perimeter façade openings. In this way, we created an environment that would immerse hotel guests and residents in a rich, layered and sensorial experience while delivering a stand-out architecture amidst the urban build-up in Singapore’s Downtown Core.

Retail and restaurants are allocated along the frontage on the first storey to synergise the public areas and enhance street vibrancy. Programmatically, this leans into the wider redevelopment plans for the precinct which has been undergoing a transformation into a dynamic and accessible mixed-use neighbourhood with walkable streets and public spaces.

COMPLETED

MILLENIUM HOTEL LONDON

LONDON, UNITED KINGDOM

Re-envisioned as a premium hospitality development, the addition and alteration (A&A) works to the Millennium Hotel London are more than just skin deep. The design scheme took cues from the historicity of Grosvenor Square and was conceived in sensitive response to the conserved building that the hotel occupies, while incorporating design interventions that would enable the brand and the hotel development to re-establish their currency.

Not atypical of our low-demolition approach in A&A projects, we capitalised on the existing building structure and transformed the spatial character and spirit with a modern reinterpretation of classical European interiors. The light, neutral palette with crisp detailing is chic and contemporary, a refreshing change that highlights the building’s symmetrical layouts and sculptural features. The latter is complemented by ornate materiality, such as luxurious marble flooring and gold accents on furnishings, retaining a distinguished and genteel air that harks back to the British Empire’s elite.

Refurbishment works were carried out while the hotel remained operational. To prevent disruptions, the bespoke design was strategically modularised to enable off-site manufacturing and on-site assembly, ensuring efficiency as well as a cleaner construction site.

THE LIGHT CITY HOTEL

Located within The Light City mixed-use development, the Light City Hotel integrates itself within a masterplan that promotes work, live and play. The hospitality development, slated for completion in June 2026, is positioned as an urban frame and a seafront vista with maximised view oriented towards George Town.

Its 31-storey hybrid building houses two hotel brands and a workplace component; both of which are expressed in the towers as individual volumes, reflecting its hospitality and workspace functions. The development is also composed to allow for ground level connection to the adjacent retail mall, residential blocks, the waterfront promenade and the convention centre, thereby encouraging programmatic synergies and complementing the entire development.

The architectural scheme features a restrained colour palette, echoing the light reflections off the waters of the Penang Strait. The façade’s glass adopts a nautical blue hue, contrasted with white frames that aptly echo its surrounding seascape – befitting of a waterfront hotel. Serving both functional and aesthetic purposes, the vertical fins and framing elements accentuate the tower’s silhouette. This adds layers and rhythm to the otherwise monolithic block while providing sun shading. The tower is also carefully proportioned to complement the scale of the adjacent retail podium blocks, ensuring cohesiveness within the large urban fabric of The Light City Development.

COMPLETED

GRAND HI LAI TAIPEI

TAIWAN

The Grand Hi Lai has made its first foray into Taipei’s hospitality scene with Grand Hi Lai Taipei. Located in adjacency to the Nangang Exhibition Center and Nankang Software Park, Grand Hi Lai Taipei unlike Grand Hi Lai Kaohsiung, is housed in a glass clad building.

The hotel, which officially opened in late 2023, is distinctly anchored in its strong brand heritage, bringing a differentiated hospitality experience as a business luxury with its renowned service excellence and F&B offerings. Our interior design concept achieved this through a thoughtful distillation of the essence of the original Grand Hi Lai Kaohsiung and mindful relation to its site context. This is encapsulated in a material palette and colour scheme that are soft, cozy and fresh with its play on geometries and textures. Technology is also fully integrated into both the rooms and common areas keeping in pace with today’s lifestyle.

The outcome is a well-balanced modern mid-century approach, where the overall design language is clean yet luxurious, modish and young without disconnecting from Grand Hi Lai’s longstanding brand reputation of immaculate service and hospitality experience of opulent comforts.

DESIGN DEVELOPMENT

À LA CARTE RESORT

QUANG BINH, VIETNAM

À La Carte Resort is a 249-key sanctuary complemented by eight exclusive villas. Sited between the dramatic karst landscapes and the pristine coastal edge of Quang Binh, it is designed to offer a richly immersive hospitality experience curated through an architectural language that abstracts from its surrounding natural landscape.

Organic forms, sweeping curves and carved-out spatial volumes echo the sculptural formations of the underground limestone caverns, with the villas specifically drawing their design inspiration from the renowned beauty of the Son Doong Caves. Throughout the resort development, sunlight filters through voids and courtyards, mimicking the dappled light that comes through the cave openings. The façades, in tactile relation to the surrounding cliffs, feature textured surfaces and natural tones, while the infinity pool is shaped like a natural lagoon, overlooking the coastal horizon.

Tailored for young families and the adventurous, the À La Carte Resort is envisioned as a serene yet playful holiday escape. The family suites offer adaptable sleeping arrangements, while the villas provide private plunge pools and expansive terraces that open to panoramic views of the mountains or sea. Its spaces, modularly conceived, prioritise function and comfort without compromising on the imaginative and luxurious—a seamless extension of its awe-inspiring setting.

PROFILING OUR HOSPITALITY TYPOLOGY GROUP

Passions, purpose, delights and inspirations –conversations with the key people driving our design practice’s Hospitality Typology Group.

AR. JEREMY TAN

DIRECTOR, DP ARCHITECTS

From The Ascott in Bangkok, Thailand to the award-winning Pullman Singapore Hill Street, director Ar. Jeremy Tan has been in the realm of hospitality design for over two decades. Detailed, immaculate and articulate, he embodies the same air of layered expression and excellence that one sees across his portfolio of works.

HOSPITALITY IS THE EMBODIMENT OF SOCIOLOGY, PSYCHOLOGY, GEOGRAPHY, ART, LITERATURE, POETRY, THEATRE… THE ELEMENTS

OF MY SOUL THAT HAD DRAWN ME INTO THE ARCHITECTURAL ROUTE AEONS AGO…

What sparked the leap into the world of Hospitality Design?

Jeremy Tan: There was no ‘leap’. It was a gradual process of the course of work that leads to a typology that allow gratuitous interactions with clients, with users, with residents… etc… to see how architecture, interior architecture, interior design, landscape, software and hardware all come together in a harmonious synthesis of abstraction and expression that allows a reflection of the soul, of the place and of the genius loci…

Hospitality is the embodiment of sociology, psychology, geography, art, literature, poetry, theatre…The elements of my soul that had drawn me into the architectural route aeons ago…

You have also been involved in institutional projects such as The Greenhouse at Dulwich College and the Lee Kong Chian School of Medicine. How does hospitality differ from the other typologies you have designed for?

JT: It is inclusive, all-encompassing. It allows abstraction and expression. It relates to all target audiences and at the same time provides an order, delight and joy to those who come into being in the spaces that we have created collaboratively with them!

How do you navigate design within this fluid, all-encompassing, poetic yet dynamically evolving canvas and typology?

JT: We need to be abreast. We need to feel more, connect more and articulate more.

Travel helps with this.

JT: Yes…

You will travel for…

JT: … for passion, obsession, creation, research, case studies.

Any favourite or go-to destinations?

JT: Cities and locations with design inspirations, design motivations and design movers.

Occupational hazards must be rife on your travels.

JT: Oh yes… The work chatter and clutter in the mind, on the screen and through the phone. They disrupt and filter the perception of the genius of the place, the being of the moment, the essence of the conversation, the encounter of the experience…

I sense a but...

JT: But travel is also to attain balance of the mind, to restore the harmony of the body, to reflect on the wonderings of the mind…

I like having with me an empty book with a pen to write or draw, a book to read that inspires, and an empty mind to absorb the encounters, experiences, ambience and people I have yet to meet. Travel, then, is ultimately about achieving the reinvigoration of the soul.

Tell us a little about your design process.

JT: See; feel; gather; collate; filter… be invoked, be provoked. And then dream, express, enunciate, sketch!

You’ve led DP’s Hospitality Typology group for more than a decade and towards the second now. Why was it necessary then and why is it (perhaps, more) essential now?

JT: Within the firm, we have various teams doing different aspects of Hospitality. The typology was established as a consolidator of

information, knowledge and know-how learnt and gleaned. It is also established to inspire aspirations, spark interests and acquaint those who are doing other typologies with the idea of ‘enriching’ their spiritual content as a DPian.

It is certainly essential now, as it enables understanding, information sharing and mutual learning amidst a world propelled by technology and the speed of media sharing and communication.

What is the latest discourse within the group?

JT: We are exploring how ‘hospitality’ can be distilled and made accessible to everyone who can experience it. This could be a guest room that goes beyond a simple home away from home, a space that inspires dreams and encourages exploration of the locale while savouring life! It also includes social spaces and rooms that ignite conversations leading to collaborations, pivotal moments or the meeting of like-minded strangers. Food and Beverage areas that foster convivial sharing and meaningful conversations, as well as landscapes that are not just about visual relief with blue and green but also about encouraging communal activities and energising life across all generations.

In short, we aspire to look at hospitality beyond its traditional confines and to enhance its pertinence through its relevance to all generational groups.

How do you recruit members for the typology group?

JT: Everyone has a talent, BUT perhaps pertinent talent, persona and personality need to be apparent and perceivable as clients of Hospitality would have expectations of our DPians to be relatable to them and their project. Clients have views on the way we talk, the way we present, the way we think, the way we feel, and the way we express ourselves through Design!

In all your years working on this typology, is there a most memorable project to date?

JT: It is always the next one, where we can develop the brief with the client and the team – hand in hand to inject interactivity, have robust analysis, embellish the creative thinking process with the consideration of possibilities and the eventual expression to bring joy and delight to the user and resident. THE BEST IS YET TO BE!

On ‘next ones’, what is stirring the creative depths of your soul these days?

JT: A five-star serviced residence where the brief is for the Architect to be pre-emptive and intuitive in provisions through the understanding of branding, the target market and the anticipated ROI.

A five-star business hotel where the challenges lie in creating a five-star ambience with the perimeters of cost and tight site constraints, whilst still balancing the expression of this country and her people with the branding.

And a five-star resort that celebrates the sun, sand and sea with enticement for international traveller and yet compel the domestic sojourner.

AR. DARREN YIO

A rigour and ferocity for excellence belie director Ar. Darren Yio’s seemingly laidback façade. It makes sense when he shared that his design ethos is guided by the concept of Gesamtkunstwerk, as adopted by the Viennese Secessionists. Defined as a “total work of art”, Darren commits to realising meaningful and impactful projects through a cohesive creative vision where multiple art forms and design elements converge into a unified whole.

THE CHALLENGE LIES IN CREATING A THRILLING AND IMPRESSIVE EXPERIENCE WITHOUT COMPROMISING THE ESSENCE

OF HOLISTIC DESIGN, WHERE THE HUMAN EXPERIENCE

IS CENTRAL AND SPATIAL
ARE VITAL.

ENCOUNTERS

What runs through your mind when designing?

Darren Yio: What do I see? How does the materiality translate? What inspires? And how do these inspirations invoke mood, atmosphere and tone of space?

Hotels – the outstanding ones – are an absolute dream to be in, and the experience stays with you. As a creator, designer and architect, is there one project that holds a special place in your heart?

DY: Park Hyatt Maldives Hadahaa. The interaction with the locals sparked an interest in vernacular design and a focus on the forefront – people, humility, living and tradition. Learning about local arts and crafts, boat-building and traditional construction techniques opened the mind and eyes to a plethora of opportunities that eventually informed subsequent approaches to design with a much broader mindset. The project also evoked an interest in holism, taking architectural design into interior and landscape design.

Has it always been hospitality design for you?

DY: It was a focus from the outset to delve into the world of hospitality and residential design. Architectural design is ultimately the construct of spatial experiences, and hospitality design provides the basis for spatial experiences with the added notions of comfort, luxury and pamper.

How do the two typologies contrast and/but/also complement?

DY: The worlds of hospitality design and residential design do not differ too much from each other. An understanding of one informs the other. Those who can successfully design a residential home can certainly design a good hospitable accommodation. After all, hospitality is essentially a home away from home and experiences in both enhance a designer’s mindset.

Speaking of ‘experiences’, what do you seek on your travels?

DY: Exotic nature, and ironically, the complete opposite – tallest urban skyscrapers! Oftentimes, I end up staring at buildings instead of the people and culture.

Any favourite destinations?

DY: Currently, China (and Asia), where I’m exploring one new city at a time – observing the blend of old and new, drawing connections and inspiration from both.

Sounds like you catalogue these a great deal.

DY: I’m never without my phone (with a camera) for the incidental shots and my DSLR for the composed ones, which means I end up with countless photos of buildings and architectural details, and none of the people travelling along.

Society has become increasingly well-travelled and savvy. Has that challenged you as an architect and designer?

DY: Expectations and managing expectations. Ephemerality has become common lately, with expectations often taken for granted. The challenge lies in creating a thrilling and impressive experience without compromising the essence of holistic design, where the human experience is central and spatial encounters are vital.

You are one of the newest members of DP’s Hospitality Typology Group. What has stood out to you, and what do you hope to bring to the table?

DY: The boundless experiences of the group put together. The cohesive efforts through banter generate the concepts we propose, the end products we realise and the visions we achieve for projects.

My goal is to lean into and harness the experiences I’ve accumulated over the past 20 years of work and travel –designing from Asia to Africa and America – and bring to the table the plethora of influences and inspirations that can enrich future projects.

Can we have a peek into what you are currently working on and what excites you about it?

DY: That’s the surprise, and the intrigue will excite.

AR. JACQUELINE PONG

There is a remarkable ease and warmth in director Ar. Jacqueline Pong’s persona. Equal parts listener and communicator, she effortlessly sets the pace, tone and environment for effective collaboration. Her track record of timely completion and delivery of hospitality projects across various scales, including the Crockfords Tower at Resorts World Sentosa, stands as a testament.

IN HOSPITALITY DESIGN, THE ARCHITECT MUST SKILFULLY BALANCE AND INTEGRATE THE OFTEN-DIVERGENT NEEDS OF THREE KEY STAKEHOLDERS: THE OWNER/DEVELOPER, THE HOTEL BRAND AND THE HOTEL OPERATOR... HARMONISING THESE POTENTIALLY CONFLICTING REQUIREMENTS INTO A COHESIVE, FUNCTIONAL AND BRAND-ALIGNED ENVIRONMENT

THAT ELEVATES GUEST

EXPERIENCE WHILE ENSURING COMMERCIAL SUCCESS AND SEAMLESS OPERATIONS.

You describe yourself as a project architect. What does that entail?

Jacqueline Pong: In a nutshell, it involves working closely with clients and consultants to ensure the accuracy of design intent while making optimal decisions at every stage.

What shapes your work ethos and client experience?

JP: Collaborative, evolving and enjoyable – it reflects the spirit of partnership I bring to the table, the continuous learning and growth I gain from every project, and the genuine joy found in the journey.

The focus of DP’s Hospitality Typology Group, I’m sure, is not solely on design. How and where do your years of experience in project management come into play?

JP: To me, the spirit of project management is about reaching the finish line together—working hand in hand with all partners while staying as faithful as possible to the original design intent. Hospitality projects are unique because they primarily serve a transient group of users seeking memorable experiences, alongside the hotel operations team dedicated to creating those experiences daily. This requires a comprehensive understanding of both perspectives to ensure we deliver a project that not only meets design aspirations but also supports operational success, ultimately achieving a mutually beneficial outcome for everyone involved.

What led you onto the path of Hospitality Design?

JP: Working on Resorts World Sentosa’s Crockfords Tower in 2005, followed by a chance introduction to Fragrance Group in 2018.

Crockfords Tower was particularly memorable. I participated in the RFC and RFP stages in 2004, so it was a very sweet victory when we secured the bid! I then had the privilege of leading this project with a young but committed team, and we grew and learned together throughout the journey. The collaboration with Michael Graves and Associates, especially Patrick Burke and his team, made the entire experience genuinely enjoyable. The outcome is a hotel designed for high-rollers, featuring exquisite finishes that speak for themselves in luxury and sophistication.

What sets this typology apart for you?

JP: Hospitality design is a distinct project typology because the architect must skilfully balance and integrate the often-divergent needs of three key stakeholders: the Owner/Developer, the Hotel Brand and the Hotel Operator. The architect’s challenge lies in harmonising these potentially conflicting requirements into a cohesive, functional and brand-aligned environment that elevates guest experience while ensuring commercial success and seamless operations.

How do you approach clients who are well-travelled and the constantly evolving trends within the world of hospitality?

JP: It really is a constant learning journey, and working with savvy, well-travelled clients is always an eye-opening and enriching experience. As the world rapidly changes and trends spread almost instantaneously through social media, we, as architects, are continually pushed to improve and innovate the ways in which we deliver the original design intent. Open-mindedness and adaptability lie at the heart of my approach.

Personally, do you have a favourite travel destination?

JP: Oh, too many! But the best ones are those taken with my family.

Travel highlights?

JP: I will travel for good food and even better wine! And lugging my family along to architectural landmarks in between.

Pet peeves?

JP: No transferring of toiletries into 100ml bottles for me! They have to remain in their original packaging.

Final question! What is next in your portfolio, and what excites you about it?

JP: The three hospitality projects I’m currently working on are Hotel Waterloo – A Handwritten Collection, targeting TOP in Q4 2025; Mövenpick Singapore, which will be TOP-ready in Q2 2026; and Hotel Katong Plaza, which will commence demolition soon.

What excites me most about these projects is the continual problemsolving at every stage. Each challenge that arises pushes us to find better solutions and ultimately deliver a better project for the client.

AR. SHAWN TEO

Beneath his genteel manner, senior associate Ar. Shawn Teo possesses an unyielding passion for academic research. The pursuit of design excellence is, for him, intrinsically tied to rigour in architectural practice research, which he firmly advocates within DP.

INCREASINGLY, THERE HAS BEEN A BLURRING OF THRESHOLDS AND DEFINITIONS BETWEEN HOSPITALITY AND RESIDENTIAL, WHERE EACH TYPOLOGY LIVES OFF ONE ANOTHER.

What do you do within the Hospitality Typology group?

Shawn Teo: Championing for design research through the study of hotel and wellness types, in relation to evolving societal norms and perceptions.

Is hospitality design your first love?

ST: I have a deep interest in it, but heritage Chinese houses hold a special place in my heart. I’d travel just to see it.

Do you presently have any on your bucket list?

ST: Oey Djie San Plantation Home in Tangerang, Indonesia

Any one destination that you’ve been to that satisfies your love for this architecture?

ST: Penang, where the historic fabric remains largely intact – not to mention the quality of hawker and Peranakan food in Georgetown.

So, why hospitality design? When did you get into it?

ST: September 2019, when the team was involved in a closed competition for 12 Orange Grove Road, which is now The Standard, Singapore. Of the prospective hotel operators, The Standard really stood out to me as a quirky brand which embodied alternative cultures and lifestyles. Singapore really needed this hotel brand to set up shop and shift the hospitality and social mindsets.

The Standard, Singapore was completed in Q3 2024 and officially launched this June. Five years from concept to completion, what were your expectations of the world of hospitality design then versus the reality now?

ST: I expected hotels to embrace the architecture of spaces, affording a sense of awe, nostalgia and comfort. Reality hits when we discuss floor plan efficiency. Gone are the days when we could have

elaborate atriums like those in John Portman’s hotels, which truly celebrated the essence of travel.

As someone who has a deep appreciation for architectural heritage, working on a John Portman hospitality project would be a dream

ST: Yes, and I’ve been fortunate in this regard.

Conrad Singapore Orchard, formerly The Regent Singapore, was the closest I have come to John Portman. Working from his original design while giving the property a new lease of life in a short span of time was invigorating and extremely meaningful.

Why do you think that is – the bygone of the Portman era of hospitality design? And which direction might the hospitality scene be headed in?

ST: Under the financial pressures for floor plate efficiency, single-loaded corridors surrounding a large atrium are almost impossible from a commercial standpoint. Yet, travellers are craving for alternative experiences. This is where largely independent brands, such as Ace Hotel, The Hoxton and Eaton, are filling the demand.

What excites you about this shift in the tourism sector and hospitality design?

ST: The blurring of thresholds and definitions between hospitality and residential, where each typology lives off one another.

Last but not least, what is your travel essential?

ST: A good bar.

Poison of choice?

ST: Old Fashioned.

JESSICA CHOW

Driven by a deep passion for hospitality design, associate director, Jessica Chow approaches each project with a resolute desire for excellence—one that is characterised by thoughtful aesthetics and effective functionality.

I BELIEVE THOUGHTFUL HOTEL DESIGN HAS THE POWER TO TRANSFORM A SPACE AND SHAPE THE GUEST EXPERIENCE. EVERY ELEMENT, FROM LIGHTING AND MATERIALS

TO SPATIAL

LAYOUT AND AMBIENCE, CONTRIBUTES TO HOW A GUEST FEELS, MOVES AND CONNECTS WITH THE ENVIRONMENT.

Can you expand on your views of and approach towards hospitality design?

Jessica Chow: I believe thoughtful hotel design has the power to transform a space and shape the guest experience. Every element, from lighting and materials to spatial layout and ambience, contributes to how a guest feels, moves and connects with the environment.

How did you find yourself in the work of hospitality design?

JC: I entered the field when working with Jeremy and Hai Yew, and learnt that hotels are so much more than the aesthetics. They are immersive experiences, reflecting local culture while creating moments that will linger in the memory of the traveller. Designing these immersive experiences is what makes hospitality design both challenging and deeply rewarding.

Sounds like there has been no regrets.

JC: No, none at all. There is a degree of naivety when I first started, thinking that conceptualising hotel interiors was going to be all about the look and feel, space planning and furniture selection. I realised very quickly that beyond aesthetics, we must design and plan for functionality, operational flow and sustainability. Everything in tandem goes towards making every guest feel at home.

Pullman Singapore Hill Street is a project that reinforced this core belief for me. Visually, its spaces are stunning, rich and textural. What made it possible and such a successful design is the deep dive we took to understand the brand’s legacy and in translating that, crafted spaces that told its story. Guest experience is further enhanced through the detailed planning we carried out for flawless operational efficiency. Seeing the concept come to life, knowing that every detail we pored over contributed to this unforgettable hospitality experience, made the process truly rewarding.

You’ve been in this work for a while now. What shifts within the industry and building type have you observed that personally excites you?

JC: There is a growing focus on authenticity and sustainability. The discourse on how architects and designers should create meaningful experiences rooted in local culture, craftsmanship and conscious design has been thought-provoking and inspiring. I’m excited to see how hospitality design will evolve as a bridge between people and place.

Speaking of place, do you have a favourite travel destination?

JC: Japan. I love its balance of tradition and modernity, achieved with intentionality and sensitivity. It always inspires my own approach to design.

It sounds like you share a common occupational hazard with Jeremy while travelling.

JC: Really? Haha. Personally, I can’t help but observe every space I enter, studying the interior detailing, material selections and spatial alignment.

Choice of hotel must be among your top considerations when planning your travel.

JC: Yes, I would travel for uniquely designed hotels, beautitful craftsmanship, art museums, authentic local cuisine and deep-rooted culture.

What are your travel must-haves?

JC: My sketchbook, earphones and phone for capturing beautiful things along with a good cup of coffee to keep me inspired wherever I go.

JESSICA CHOW

FRANCESCO MORSIANI

Francesco Morsiani, associate director at DP Design, has two passions: interior design, which he transitioned to a decade ago from architecture, and hospitality design, in which he has built an international portfolio. Today, the two come together as a splendid love affair through his work in DP Design, where he specialises in lifestyle and hospitality interiors.

I FEEL THAT HOSPITALITY TODAY IS ALL ABOUT EASE, CARE AND MEANING FROM THE GUEST’S SIDE. PEOPLE EXPECT PERSONAL TOUCHES THAT SHOW THEY’RE KNOWN AND WELLNESS BUILT INTO EVERY DETAIL. THEY SEEK AUTHENTIC LOCAL FLAVOUR RATHER THAN GENERIC SPACES, AND ARE INCREASINGLY CHOOSING BRANDS THAT DEMONSTRATE THEIR COMMITMENT TO SUSTAINABILITY.

When did you get into hospitality design and why?

Francesco Morsiani: It was in my early career because it allowed me—and still does—to merge my love for travel, culture and design. I feel that hotels are more than just places to stay; they’re cultural touchpoints that inspire exploration, reflection and a sense of belonging.

You’re an avid traveller, then.

FM: Yes, I would travel for discovery, learning, tranquillity and peace of mind.

Which places are your ultimate escape these days?

FM: Southeast Asia. It has the perfect mix of warm water surf, lush jungles, wildlife and biodiversity, stunning resorts and ancient temple architecture.

When two loves are so intertwined, occupational hazards abound, I’m sure.

FM: True. Whenever I travel, I can’t step into a resort or hotel without instinctively studying its layouts, details and local craftsmanship.

It almost sounds like you never tire of hospitality design. How have your perceptions of this field of design changed over the years?

FM: I expected it to be purely about creating comfortable, luxurious spaces. The reality is far richer; it’s about storytelling, cultural interpretation and explorations of local materials and craft traditions.

Take us through one of your favourite or most memorable projects to date

FM: Hilton in Jakarta. It was conceived as a sanctuary of the senses, a place to unwind and rejuvenate. The lush greenery, integrated in every space, is a living interpretation of relaxation and renewal.

This is thoughtfully juxtaposed with expressions of Indonesian heritage, from intricate timber carvings to woven rattan structures floating in the space, evoking a sense of belonging and cultural connection. Every element, down to the rug patterns and carved panels, is a tribute to local craftsmanship.

What is one trend/shift you’ve observed in the tourism sector and hospitality design that excites you?

FM: I feel that Hospitality today is all about ease, care and meaning from the guest’s side. People expect seamless tech to skip queues, personal touches that show they’re known and wellness built into every detail. They seek authentic local flavour rather than generic spaces and they are increasingly choosing brands that demonstrate their commitment to sustainability.

In DP Design, you specialise in lifestyle and hospitality interiors. What does that entail?

FM: Together with my team, I create guest experiences that span from initial design narratives and layouts to custom furniture and materials, collaborating with lighting and art specialists to deliver inspiring and bespoke journeys.

Besides Darren, you would be the newest member of DP’s Hospitality Typology group. How has your experience been, and what do you hope to bring to the table?

FM: It has been a great experience so far—I’ve felt welcomed and already learned a lot from the team. I hope to bring fresh ideas, a collaborative spirit and a strong eye for detail to contribute meaningfully to our projects

One final question: what are your travel essentials?

FM: A good pair of sneakers, my camera and surfboard.

INTERIOR DESIGN & SPATIAL PLANNING

ENGINEERING & BUILDING SERVICES DESIGN

BUILDING

LIGHTING

Sustainable Design

SINGAPORE (Headquarters)

6 Raffles Boulevard #02-249

Marina Square Singapore 039594

T +65 6338 3988

F +65 6337 9989 E dparchitects@dpa.com.sg

CHINA | DP Architects Pte Ltd (Shanghai) Shanghai shanghai@dpa.com.sg Guangzhou guangzhou@dpa.com.sg Shenzhen shenzhen@dpa.com.sg

INDIA | DPA Consultants Pvt Ltd

Mumbai mumbai@dpaconsultants.in Bengaluru bengaluru@dpaconsultants.in Hyderabad hyderabad@dpaconsultants.in

INDONESIA | PT DP Architects Indonesia Jakarta jakarta@dpa.com.sg

MALAYSIA | DP Architects Sdn Bhd Kuala Lumpur kualalumpur@dpa.com.sg Johor Bahru johorbahru@dpa.com.sg

MYANMAR | DP Architects Pte Ltd (Myanmar Branch) Yangon yangon@dpa.com.sg

Thailand | DP Architects (Thailand) Ltd Bangkok bangkok@dpa.com.sg

United Arab Emirates | DP Architects Pte Ltd (Dubai Branch) Dubai dubai@dpa.com.sg

United Kingdom | DP International (UK) Ltd London london@dpa.com.sg

VIETNAM | DP Architects Vietnam Co., Ltd Ho Chi Minh City hochiminhcity@dpa.com.sg Hanoi hanoi@dpa.com.sg

All Rights Reserved. No material may be reproduced without prior permission. DP Architects accepts no responsibility or liability for any errors, omissions or resultant consequences including any loss or damage arising from reliance on information in Design in Print. Any opinions in Design in Print are solely those of the named authors of the article in which they appear. Unless named as author, DP Architects, Editorial Panel and other Contributors do not endorse any such views and disclaim all liability from their publication.

Copyright © DP Architects Pte Ltd

All photos and diagrams belong to DP Architects unless otherwise stated.

MDDI (P) 052/03/2025

Printed by:

Naili Print Media Pte Ltd L L201404002 L008/05/2025

Published by

DP Architects Pte Ltd

6 Raffles Boulevard #02-249 Marina Square

Singapore 039594

T: +65 6338 3988 F: +65 6337 9989

E: designinprint@dpa.com.sg www.dpa.com.sg

1984 LE MERIDIEN ORCHARD SINGAPORE

50,700SQM | 408 KEYS | SINGAPORE

Le Meridien Orchard Singapore (now rebranded as Concorde Hotel Singapore) was located at the city end of the prime shopping belt and hotel precinct of Orchard Road. Upon its completion in 1984, the hotel revealed an impressive exterior finished in an off-white cladding of polished crystallised glass panels and signature interim walls clad in marble.

This project was undertaken in association with Daniel, Mann, Johnson and Mendenhall of Los Angeles.

Turn static files into dynamic content formats.

Create a flipbook
Issuu converts static files into: digital portfolios, online yearbooks, online catalogs, digital photo albums and more. Sign up and create your flipbook.