The Dublin Bubble Restaurant Project

Page 1


KONA CRAFT KITCHEN

NEW AMERICAN RESTAURANT

MEZZO RESTAURANT AND BAR SPIRITED CUISINE AND LOCAL TASTE

DUBLIN, OHIO

DUBLIN, OHO

A ROOFTOP EXPERIENCE AND UNIQUE SPANISH-STYLE TAPAS MENU

DUBLIN VILLAGE TAVERN WHERE LOCALS GATHER AND VISITORS ARE ALWAYS WELCOME

DUBLIN, OHIO

DUBLIN, OHIO

VASSO

Entrance

Lounge Sitting soft green linen fabric

Tall bar stool that swivel

Traditional table seating and seats

Round swivel stools no seat back

Bakery with glass case

Community Fire Pit and Community Booth

Restrooms

Private and/or Conference Room

Kitchen or Barista Area

Bar and Seating

Area – Main Focus

Leather Booths

High fabric backs with leather seats

Entrance

This sketch shows only one area of the main floor. This sketch does not include the top balcony level or the lower floor.

Main Bar and focal point

Old wood tables and traditional seating Entrance

Restrooms

Glass Railing and main focus

Leather seats and sitting area. The sitting area continues along the glass railing.

Cabana Area Seating

Entrance

Bar Area with Tall White Bar Stools Fire Pit with Lounge chairs. There are two more fit pit areas to sit.

Flooring example

White leather Seating
Tall round white tables

The Dublin Bubble A Dine-In Cafe

The Design Project Restaurant

ART2620, Studio II

Week Two Kim Burns

This Photo

Concept and Sample Menu

Concept:

Gather here beneath a shady tree to live and play where bubbles tickle your nose, culinary treats surprise your mind and backyard tastes delight your mouth. This is a place for the very young and old to engage, interact and be enchanted from beginning to end.

Sample Menu:

• Bubble drinks (alcoholic and nonalcoholic)

• Bubble Breads and sandwiches

• Bubble Sides

• Bowls of Backyard hotdogs, hamburgers and pork Sandwiches

• Bowls of Vegetables

• Bowls of Fruit

The Dublin Bubble
Dublin, Ohio
Corner of 161 and Riverside A Dine-In Cafe

Restaurant Logo and Location

The Dublin Bubble

Dublin, Ohio

Corner of 161 and Riverside

A Dine-In Cafe

Additional Information:

Location: Dublin, Ohio

Type of Restaurant: Neighborhood Communal and Open

Target Market: Children and Families

Square Footage: 3,782 sq. ft

Suite 119 and 120

Existing Restaurant: Montgomery Inn

Seating Capacity: 75

Inspirational Images: The Dublin Bubble

Dublin, Ohio

Corner of 161 and Riverside

A Dine-In Cafe

The Dublin Bubble

A Dine-In Café

Owner: Andy Doll Dublin, Ohio

Art2620 Restaurant Bubble and Block Diagrams

Week Three Kim Burns, July 2022

Block Diagram One

Bubble Diagram
Block Diagram
Bubble Diagram

Block Diagram

Occupancy Ratings: 76.92%

• 13 (Total Rooms/Areas) divide

10 (Total Rooms Occupied at any given time) = .7692 X 100 = 76.92%

Occupancy Square

Footage for Restaurants: 160

• Waiting Area (256) + Take Out/Pick Up Merch Area (128), standing = 384 @ 15” per standing occupant = 32

• Dining Room, 1600 sq ft (fixed and non fixed seating) = 112

• Bubble Play Area, 256 sq ft (standing) = 16

• Kitchen, 448 to 600 sq ft = 2 to 4 (200 sq ft per occupant = 1)

Plumbing Fixture

Calculations for Restaurants: IPC

• Water Closets: Male – 1 per 75

• Female – 1 per 75

• Lavatory: Male/Female – 1 per 200

• International Plumbing Code: 1 per 500

• Service Sink: 1

The Dublin Bubble

A Dine-In Café

Owner: Andy Doll Dublin, Ohio

Art2620 Restaurant Schematic Plan

Week Four

Kim Burns, July 2022

Three Furniture Protypes

= 1’.0”

Furniture Plan Test to Scale

The Dublin Bubble A Dine-In Café

Owner: Andy Doll Dublin, Ohio

Art2620 Restaurant RCP Week Five Kim Burns, July 30, 2022

The Dublin Bubble Ceiling
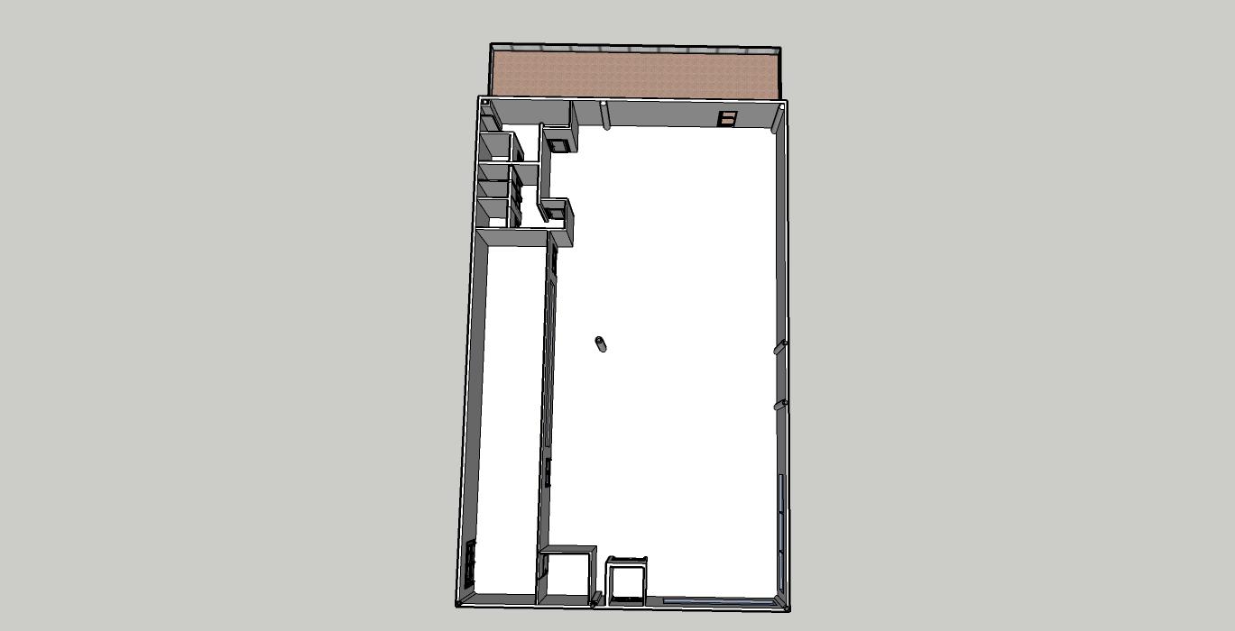
The Dublin Bubble Floor Plan

Ceiling Plan:

Ceiling is made up of absorbent ceiling tile and painted circles. The pink, grey and teal circles are made of wood. (colors tbd)

Ceiling Height: 12 ft.

Legend:
a. Ambient Lighting (40)
b. Pendent (3)
c. Pendant (1)
d. Pendant (5)

Floor

Dining Areas

Front Entrance View East Side View

Dimensions:

The light plan has meets some if not most of Andy Doll’s lighting needs by offering an eclectic array of pendants and ambient lighting. Andy wants fun bright lighting as well as natural lighting. (more windows will be installed).

There are 40 ambient lighting, three pendent lighting over bench seating, five pendent lighting over table seating, one pendent for the carryout and merchandise counter. An additional pendant lighting will be decided for the lounge area.

All lighting will be controlled from a dimmer switch.

The Dublin Bubble A Dine-In Café

Owner: Andy Doll

Dublin, Ohio

Art2620 Three Digital Perspective

Week Six

Kim Burns, August 3, 2022

Digital Perspective One: View from entrance. (South to Norh)

Digital Perspective Two: View West to East

Digital Perspective Three: View from back door (North to South)

Additional Digital Perspective: View from kitchen (East to West)

The Dublin Bubble Dine-In Cafe

Owner: Andy Doll

Ohio

Gather at the backyard with family and take a journey in one of the three dine-in seating areas. Sit in a leather booth and watch culinary experiences as seen from a chef’s point of view.

Sit at a wood grain picnic table and enjoy bubbling oozing drinks. Or sit close to the “Bubble Dome” and see a fun-filled room pop with pure joy.

Any seat you take you will be surrounded by glass windows, beautiful cement flooring and delicious hanging artwork from the community.

Concrete Floors Booth Paneling
Concrete Walls
Wood panel on Carry Out Counter
Chair Fabric
Bubble Pla y Area
Bar Stool Fabric Couch and Booth Fabric
Dublin
ART2620, Studio II

Turn static files into dynamic content formats.

Create a flipbook
Issuu converts static files into: digital portfolios, online yearbooks, online catalogs, digital photo albums and more. Sign up and create your flipbook.