
▪
![]()

▪
BUILDING AREA
LAND AREA
468 sqm*
174 sqm*
ZONING Industrial 1 Zone (IN1Z)
TENANCY Challenge Networks Pty Ltd
METHOD OF SALE Private Sale
SALE TERMS
10% deposit, balance 60/90 days

“A tri-level architectural triumph, blending functionality with an innovative design ethos in the dynamic heart of Abbotsford.”
IAN ANGELICO MANAGING DIRECTOR - AGENCY

Duke Street: A bustling hub where the best of brews, breads, and business opportunities converge for those who dare to dream big.
New 1 year lease to Challenge Networks Pty Ltd
Suitable for investors or future owner occupiers
476 sqm* total building area
160 sqm* ground floor lock-up garage for storage or vehicles with roller door
154 sqm* across each the first and second floors
Solar power
174 sqm* total land area
Industrial 1 zoning
1.3 km* to Hoddle Street and Victoria Parade
1.9 km* to the Eastern Freeway
2 km* to the Citylink

“From the practicality of ground-floor storage to the luxury of a topfloor balcony - this is where business dreams materialise.”
JARROD MORAN DIRECTOR - AGENCY
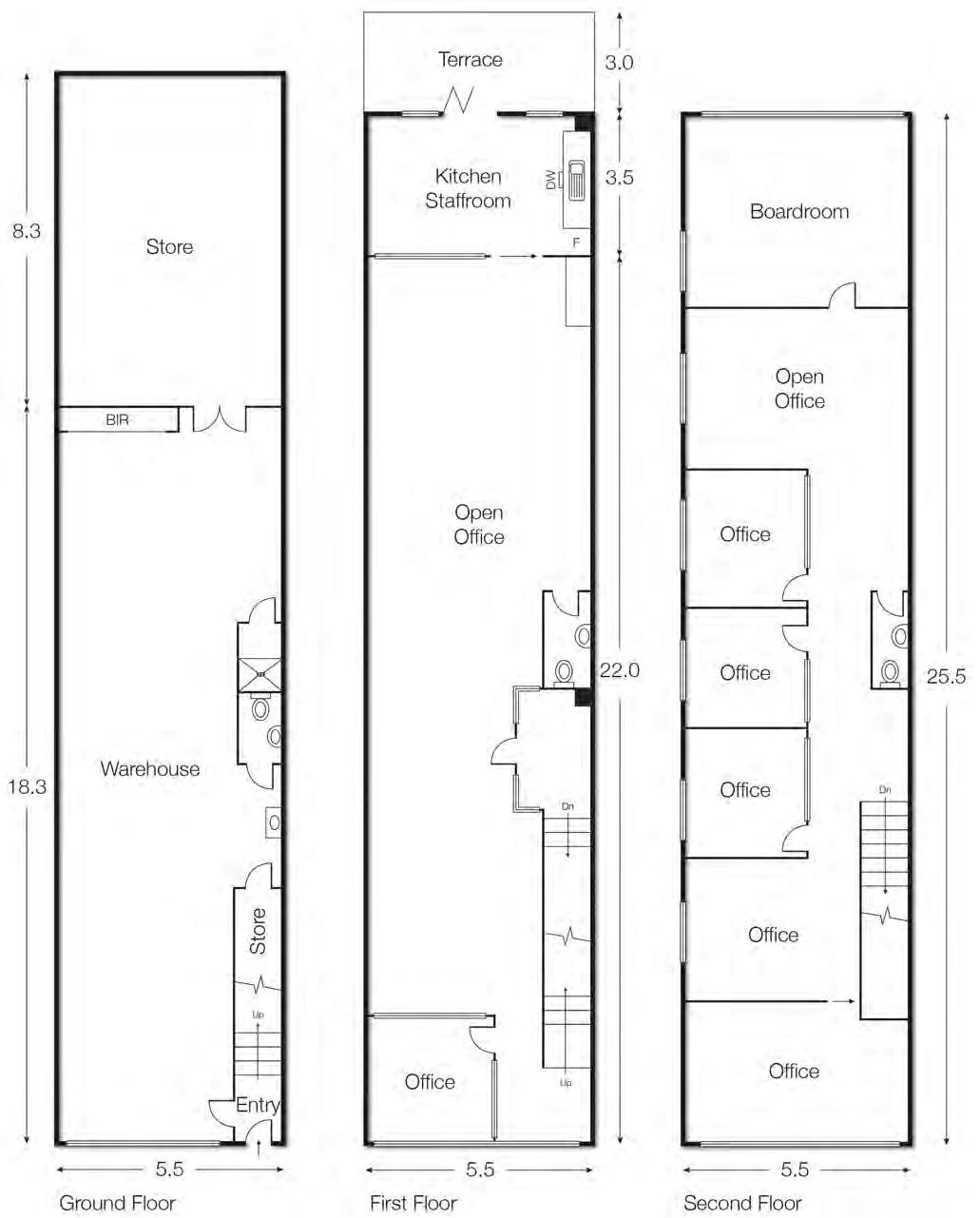
This architecturally designed marvel spans three functional levels in the heart of the action. The ground floor sets a practical tone with storage capacity, complemented by a roller door, and essential end-of-trip facilities including bathroom and shower amenities. Ascend to the first floor to discover a modern office space, embracing an open plan blueprint that inspires productivity and creativity. The pinnacle, the second floor, showcases a balcony, four partitioned offices, and a boardroom, making it the ideal setting for both focus and collaboration. Each level is equipped with air conditioning and dedicated toilet facilities, ensuring comfort and convenience. It’s also ecoconscious, and features solar power.
Ground Floor: 160 sqm*
First Floor: 154 sqm*
Second Floor: 154 sqm*
Total: 476 sqm*








Nestled in a precinct famed for its mix of industrial chic and vibrant business scene, Duke Street is the epitome of inner-city living and working. With the likes of Carlton and United Breweries, Moon Dog OG, and Dench Bakers as neighbours, it’s clear this location is a magnet for the best in the business. Accessibility is a breeze; the property is just a 300 m* stroll from the Yarra city trail, 400 m* from Victoria Gardens, and moments away from pivotal tram stops. Not to mention, the proximity to IKEA Warehouse, Honeywell, and Starpharma underscores the commercial allure of the area. Plus, the annual Duke Street Block Party transforms the locale into a hub of foot traffic and visibility. Adding to its connectivity, the property is conveniently located 1.3 km* from Hoddle Street and Victoria Parade, ensuring seamless access to key city corridors. It’s also just 1.9 km* to the Eastern Freeway for expedited travel to and from the city, and a mere 2 km* to Citylink, linking Duke Street directly with Melbourne’s extensive freeway network.
Vibrant. Nexus. Empowered.
Street: A dynamic crossroads where urban vitality and entrepreneurial strength converge.



Abbotsford, Victoria, just 3km east of Melbourne’s CBD, is a vibrant inner-city gem undergoing a remarkable transformation. Once an industrial hub, it now attracts a diverse mix of residents and businesses, particularly in design, technology, and the arts. The Abbotsford Convent serves as a cultural hub, hosting galleries and studios. Culinary delights abound on Victoria Street and Smith Street, while specialty shops cater to residents and visitors. Annual events like the Johnston Street Latin Festival and the Duke Street Block Party add to the lively atmosphere. Abbotsford’s future is promising, with ongoing residential development and a focus on creative industries. Key infrastructure projects, like the Yarra River Trail upgrade, promise enhanced accessibility. In summary, Abbotsford is a dynamic suburb with a rich history, bustling present, and bright future.
PRINCIPLE OUTGOINGS
Council rates: $4,741.55 per annum
Land tax: $4,410.00 per annum
SITE DETAILS
TITLE PARTICULARS
ZONING
PLANNING OVERLAYS
Frontage to Duke Street: 6.06 metres*
Western side boundary: 27.78 metres*
Eastern side boundary: 28.73 metres*
Southern side boundary: 6.03 metres*
Total site area: 174 square metres*
Certificate of Title — Volume 4740 Folio 967
Lot 1 on Title Plan 744364
Industrial 1 Zone (IN1Z)
Development Contributions Plan Overlay - Schedule 1 (DCP01)
MUNICIPALITY
City of Yarra
TENANT Challenge Networks Pty Ltd
CURRENT RENTAL
$128,700 p.a. + outgoings & GST
LEASE TERM 1 year expiring 30th June 2026
FURTHER TERM Nil
COMMENCEMENT DATE 1st July 2024
OUTGOINGS
Payable by Tenant
With a reputation for excellence in the Australian telecommunications sector, this award-winning company stands out for its innovative approach to both mobile and fixed networks. Their depth of knowledge and expertise underpins the creation of bespoke solutions that not only meet but exceed client expectations, offering an unparalleled level of service. Internationally recognised for their unwavering commitment to quality, they deliver a range of products and services that emphasise their stability and value. Their unique value proposition combines technical prowess with a steadfast dedication to excellence, marking them as a distinguished presence in their industry.




POINT OF INTEREST:
In more than 30 years, Ian has witnessed the successful signing of more than two thousand commercial real estate transactions – which is more of a legacy, than a track record. And it’s one that has been achieved by adopting a methodical approach amongst a myriad of changing variables. It’s one that has been sharpened through his holistic exposure to commercial projects across all points of Melbourne. By focusing on maximising each property’s profitability, Ian ensures that at the end of the day, it’s maximising value that determines his success.
POINT OF VIEW:
“Business, similar to commercial property, comes down to economics — the all-important dollar. And so, those in the market must recognise that when providing platforms for businesses to transition from ideas to implementation, the price must be right not just today but tomorrow, too.”

M: 0413 251 621
E: jarrod.moran@cva.melbourne
POINT OF INTEREST:
The key word you’re looking for is knowledge. It’s Jarrod’s established market understanding, extensive business experience and strong work ethic defined by motivation and dedication, that makes him a seasoned asset not just to CVA but to your day to day. And it’s this energy that amplifies opportunity — in Melbourne, in the market and in the minds of his clients.
POINT OF VIEW:
“The commercial and industrial property market is made up of two key elements: opportunities and requirements. In identifying and negotiating the right fit for each client, it is not just our ambition to achieve the best possible outcomes, but a way of ensuring the complete picture.”

POINT OF INTEREST:
It’s old school work ethic meets new school adaptability. The diligence that Stan brings to your property transaction is one that cannot be taught — only developed over time. He’s a specialist in project work, offthe-plan sales and the current status of the market. It’s his willingness to share this professional advice with you that has Stan’s customers transitioning to clients before final contracts are signed.
“Commercial property is an excellent way to increase your wealth both as an owner-occupier and/or investor. In 35 years of real estate, it’s been those in the market who can not only advise, but educate, who have seen consistent client return and referral.”



