Information Memorandum_5-21 Onslow Avenue, Campbellfield

Page 1


As Melbourne’s leading independent commercial property agency, we take pride in creating worth across all four points of this city.

01. Point of Interest 02. Point of View 03. Property Features

04. Property Particulars

05. Location

06. Sales Process

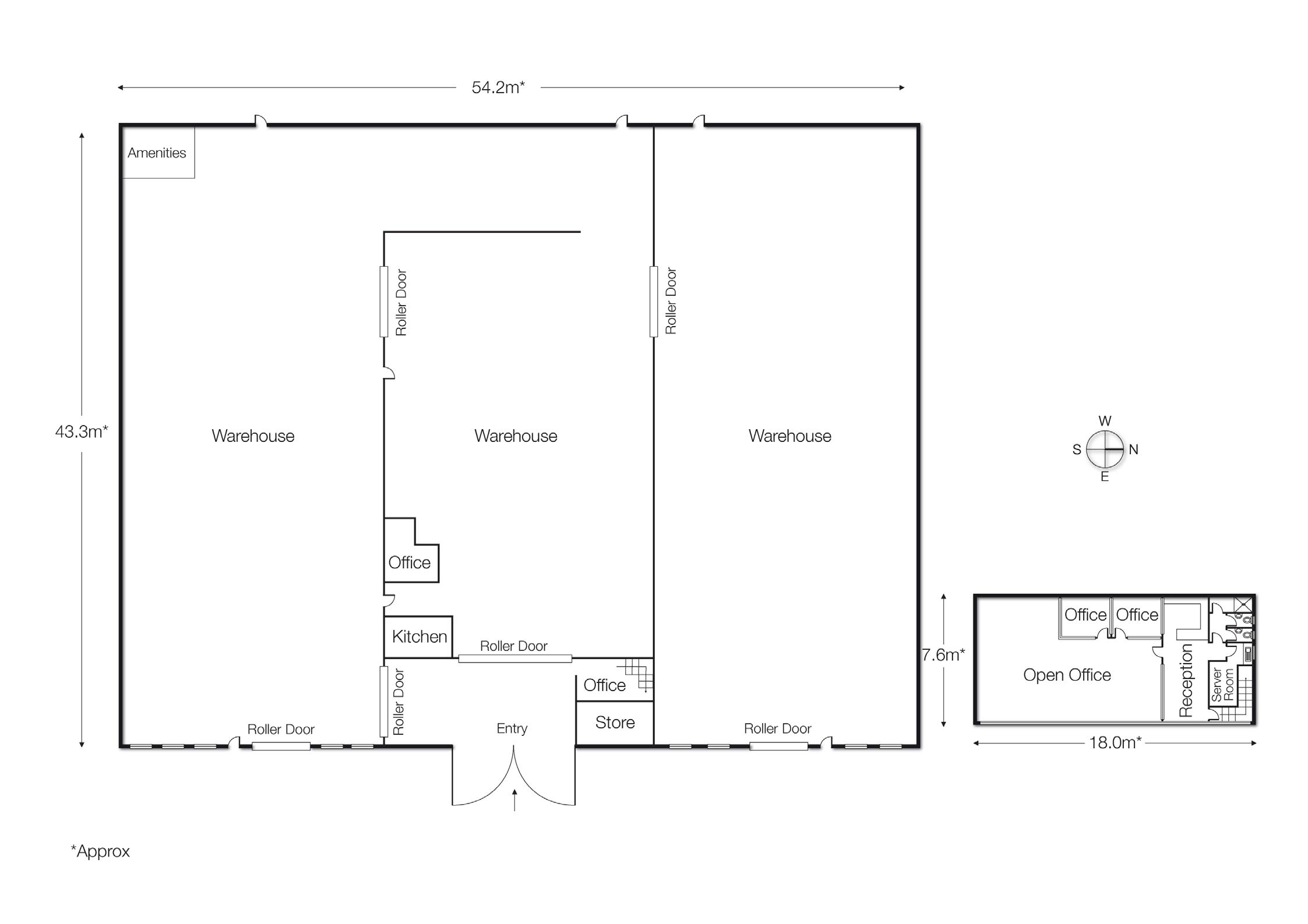
07. Appendices Floor Plan

Triple the warehouse, an extra-wide frontage, and the entrance to Metropolitan Ring Road as an extension out of your driveway — this significant industrial heavyweight offers serious scale, power, and exposure. Spanning 2,450 sqm* of building on a 3,177 sqm* landholding, this sizeable older-style brick factory is tailormade for the owner-occupier looking to plug straight into production.

With 400-amp* power, natural gas, three roller doors aligning with three warehouse sections, and a loading dock, the setup is ideal for manufacturing, fabrication or any operation needing space, strength and infrastructure. The site also includes functional office areas with heating and cooling in place, ideal with the concrete flooring throughout. Zoned Industrial 3 and strategically positioned moments from both the Hume Highway and Metropolitan Ring Road, this Campbellfield asset offers seamless connectivity across the north and beyond.

2,450 sqm*

Total building area.

Ample

Allocated car spaces.

Industrial 3 Zone

3,177 sqm*

Three warehouse sections with triple roller door access.

1.8 km* Tri-access

Total land area.
To Metropolitan Ring Road.
Zoning.
To the Hume Freeway.

An extra-wide frontage of over 54 m* isn’t just for (double) looks — it’s for trucks, turning circles, signage, and a setup that takes your business from humming along to running circles around the rest.

Leo Mancino | 0418 343 147 leo.mancino@cva.melbourne

“With three roller doors, a 400-amp* punch, and nearly 55 metres of frontage, this property doesn’t just talk business — it moves it.”

It’s the expertise accumulated over three decades paired with a realistic outlook on life, that makes Leo not just a seasoned director to the CVA team, but a significant asset when it comes to dealing with yours. From personable first impressions to successful business transactions, he has not just built a solid and loyal client base, but developed negotiation techniques that have earned him great respect in this city’s industry.

Luca Angelico | 0447 772 782 luca.angelico@cva.melbourne

“Campbellfield has long been Melbourne’s industrial stronghold — and this is one of the last remaining sites with the bones to prove it.”

With an interest in commerce and experience in construction management, Luca has both the creativity and practical problem-solving skills needed to cut it in this industry. Enthusiastic. Committed. Diligent. Having joined CVA in 2017, it was 2020 that saw him become a Sales and Leasing Executive. A role in which Luca is able to showcase his enthusiastic side, fixated on even the smallest of details which make all the difference in helping both developers and investors alike. It’s all of this that will keep you interested in working with him, well beyond the point at which your transaction concludes.

A serious offering for manufacturers, warehousing operators, and logistics-based businesses, 15–21 Onslow Avenue delivers the scale, infrastructure, and frontage rarely found together in a single industrial holding. Set on a generous 3,177 sqm allotment*, the property is improved by a 2,450 sqm older-style brick factory*, intelligently divided into three separate warehouse sections, each serviced by its own roller door for seamless loading, unloading, or operational segregation.

Boasting a substantial 54.95 m frontage*, the property presents significant signage opportunity, wide turning circles for trucks, and a commanding street presence. Internally, the improvements include a dedicated loading dock, full concrete flooring, and a 400-amp* power supply — ideal for heavy manufacturing, fabrication, or large-scale production. The facility is also connected to natural gas, with heating and cooling servicing the office areas, ensuring both comfort and functionality.

The office component provides a dedicated frontof-house and administration zone, positioned to support customer access and internal workflow. Zoned Industrial 3, the property allows for a wide range of permissible uses under council guidelines, while ample on-site car parking supports workforce efficiency. For those looking to own and operate, scale up, or reposition an industrial enterprise with arterial connectivity at their doorstep, this is a valuepacked asset that delivers from every angle.

Site Details Frontage to Onslow Avenue

Title particulars

Certificate of Title — Volume 9687 Folio 441

Plan of Consolidation 162552F

Zoning Industrial 3 Zone

Municipality

City of Hume

All signs point to: Onslow Avenue

An exceptional industrial opportunity offering scale, flexibility, and exposure in a tightly held location. Here are some notable aspects and benefits of buying property in this area:

Strategic Location with Exceptional Connectivity:

Positioned within moments of the Metropolitan Ring Road and Hume Freeway, Onslow Avenue offers unmatched access to Melbourne’s key freight and arterial routes. This location drastically reduces travel times across the city and beyond, streamlining supply chains and boosting delivery efficiency. Whether servicing metropolitan Melbourne, regional Victoria, or interstate networks, this location keeps your business moving.

Large Land Holding:

The expansive 3,177 sqm* allotment offers ample room for large-scale operations, heavy vehicle movement, and potential yard use. Investors and developers will appreciate the rare size, which allows for future upgrades, extensions, or redevelopment — subject to council approval. With industrial land becoming increasingly scarce in key areas, owning a parcel of this size positions you ahead of the curve.

Versatile Facility Design:

The existing 2,450 sqm* brick factory is intelligently configured into three self-contained warehouse sections, each with their own access points and infrastructure. This layout supports multi-tenancy, enabling multiple income streams or varied operational use under one roof. It’s ideal for businesses that require segmented storage or production zones — or for investors looking to lease out to different occupants.

Strong Street Presence:

Boasting wide frontage and triple roller door access, the property offers excellent visibility and convenient ingress/egress for trucks and large vehicles. The well-exposed façade adds to your business branding opportunities and enhances the professional image of any operation based here. Easy maneuverability also supports seamless loading and unloading, increasing productivity.

Undersupplied Market Segment:

Quality industrial assets with size, functionality, and flexible zoning are in short supply in this region. Onslow Avenue fills that gap — offering a solution that appeals to owneroccupiers, tenants, and investors alike. With rental demand for industrial properties on the rise, this asset is well-positioned to benefit from strong yields and capital growth in the coming years.

Industrial. Arterial. Advantageous.

Positioned for performance with major roads on the doorstep and exposure that moves your business forward. AND THE POINT?

All signs point to: Campbellfield

Located approximately 17 km north of the Melbourne CBD, Campbellfield stands as one of the city’s most important and enduring industrial heartlands. Historically anchored by legacy manufacturers like the Ford Motor Company, the suburb has evolved into a diverse commercial ecosystem home to heavy industry, automotive services, food manufacturing, and large-scale logistics providers.

Its strategic positioning, flanked by the Metropolitan Ring Road, Hume Freeway, and Sydney Road, makes Campbellfield a preferred choice for operators servicing both the metropolitan area and regional Victoria. Major brands such as Scania Trucks, Capral Aluminium, Nestlé Chocolates, and Rocla maintain a presence here, underlining the area’s importance to national distribution networks and industrial production lines.

The local population sits just under 5,000 residents, with a median age of 38 and a working demographic well-aligned to the industrial and trade workforce. The median house price of $710,000 reflects steady growth in the area, driven by increased demand for proximity to employment zones and key transport links.

With limited residential encroachment and robust zoning protections in place, Campbellfield offers a stable platform for industrial occupiers and investors seeking scale, infrastructure, and longterm certainty in a tightly held location that continues to anchor Melbourne’s northern growth corridor.

Private Sale Process

At CVA, we are dedicated to providing a professional and transparent experience throughout the private sale process.

To ensure clarity and fairness, we have outlined the key steps below, allowing prospective purchasers to fully understand the process when submitting an offer.

1. Submitting Offers

Offers can be submitted at any point during the private sale period, as there is no fixed closing date. We recommend that all interested parties submit their strongest offer using the provided documentation, ensuring all fields are completed and the form is signed. Once submitted, your offer will be promptly presented to the vendor for consideration.

2. Review Process

Upon receipt, all offers are carefully reviewed by the vendor. We will communicate any feedback or decisions regarding your offer in a timely manner. Unlike auctions or formal Expressions of Interest campaigns, the private sale allows the vendor the flexibility to accept, negotiate, or decline offers at their discretion as they are received.

3. Contract and Settlement

Should your offer be accepted, a formal contract of sale will be prepared. At this stage, a deposit may be required to secure the property. The agreed terms of the contract, including the settlement period, will then be finalised between the buyer and vendor.

We strive to maintain open communication and provide professional guidance throughout the private sale process, ensuring a seamless experience for all parties involved.

For more information, contact

Leo Mancino

0418 343 147

leo.mancino@ cva.melbourne

Luca Angelico

0447 772 782

luca.angelico@ cva.melbourne

Turn static files into dynamic content formats.

Create a flipbook
Issuu converts static files into: digital portfolios, online yearbooks, online catalogs, digital photo albums and more. Sign up and create your flipbook.
Information Memorandum_5-21 Onslow Avenue, Campbellfield by CVA Property Consultants - Issuu