Information Memorandum - Warrandyte Road, shop 11a, Ringwood North - Final IM

Page 1


As Melbourne’s leading independent commercial property agency, we take pride in creating worth across all four points of this city.

Point of Interest

Point of View

Property Features

Tenancy Schedule 05. Property Particulars 06. Location 07. Sales Process

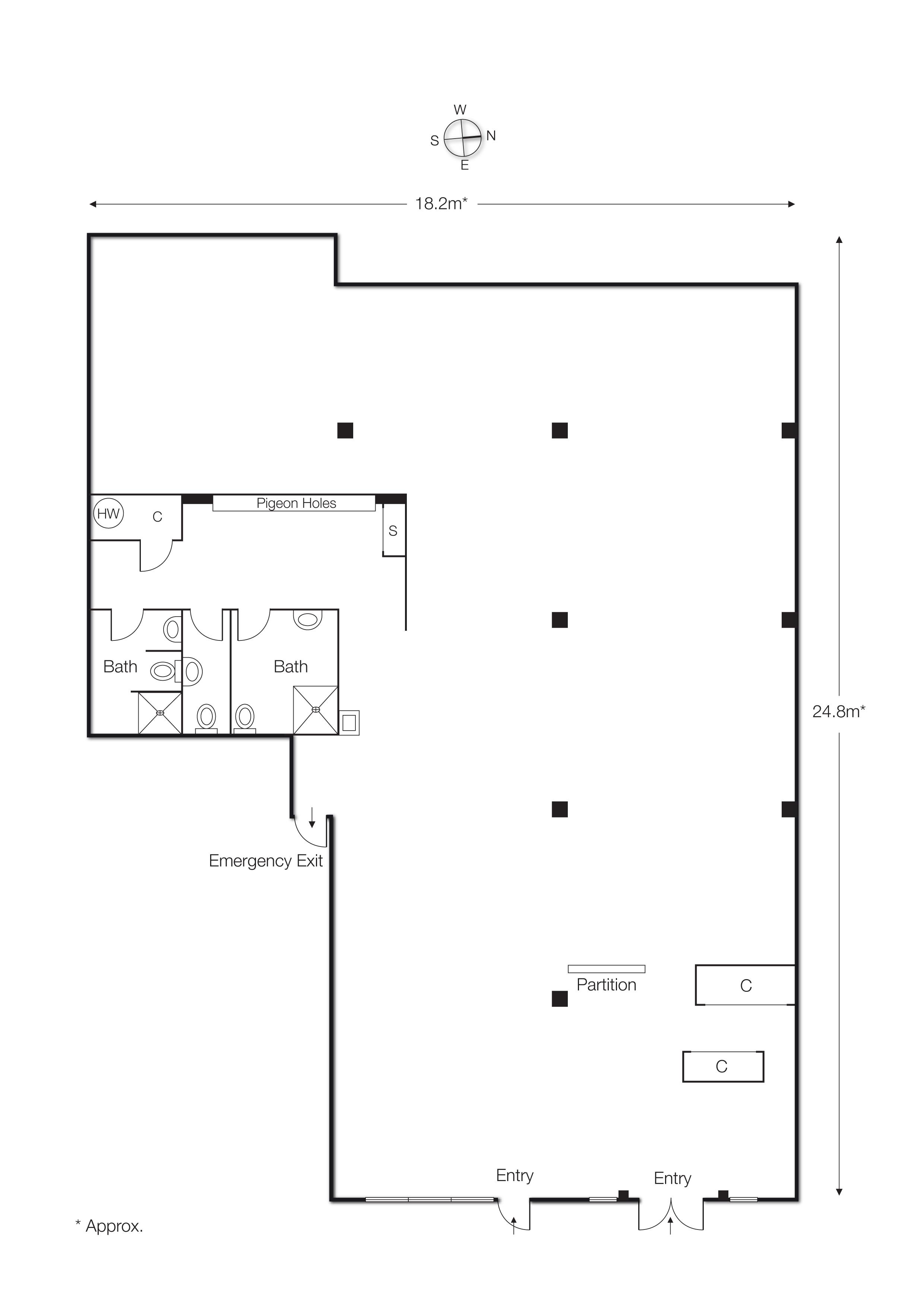
08. Appendices Floor Plan

POINT OF INTEREST

Private Sale Campaign

A double frontage and great brand name tenant are features of this large retail property, operating as Anytime Fitness. The tenant has invested significantly in the fitout—including the latest fitness equipment. A renewed 5-year lease plus options confirms their commitment to the site, with over a decade of continuous operation. This investment opportunity offers a truly set-and-forget income stream.

Situated within the thriving North Ringwood Shopping Centre, the property is surrounded by national retailers including Ritchies Supa IGA, Domino’s Pizza, Greencross Vet & Bakers Delight —positioning this opportunity in a tightly held, well regarded local centre.

365 sqm*

$125,000 271 & 364 Routes

2.7 km*

1

km* Maroondah Highway.

km*

3.1 km*

Total building area.
Leased to Anytime Fitness.
Public Tranport.
To Eastland Shopping center.
Surrounded by cafes, schools, and walking trails.
Ringwood Station. Zoning.
To Eastlink.

Anytime Fitness is a 24-hour fitness franchise with 3,000+ locations globally. The North Ringwood location is one of three centres operated by the tenant, further strengthening the long-term lease covenant.

Ian Angelico | 0418 336 088 ian.angelico@cva.melbourne

“Double frontage, triple strength, and an income stream that’s fit to last.”

In more than 30 years, Ian has witnessed the successful signing of more than two thousand commercial real estate transactions – which is more of a legacy, than a track record. And it’s one that has been achieved by adopting a methodical approach amongst a myriad of changing variables. It’s one that has been sharpened through his holistic exposure to commercial projects across all points of Melbourne. By focusing on maximising each property’s profitability, Ian ensures that at the end of the day, it’s maximising value that determines his success.

Stan Dawidowski | 0400 448 755 stan.dawidowski@cva.melbourne

“A prime retail spot with a long-term lease— proof that financial fitness starts with a strong foundation.”

It’s old school work ethic meets new school adaptability. The diligence that Stan brings to your property transaction is one that cannot be taught — only developed over time. He’s a specialist in project work, off-theplan sales and the current status of the market. It’s his willingness to share this professional advice with you that has Stan’s customers transitioning to clients before final contracts are signed.

Located in the heart of Ringwood North, 11A/204 Warrandyte Road is a well-positioned retail property within the established North Ringwood Shopping Centre. The property is currently leased to a longstanding tenant who has occupied the premises since 2015, reflecting over 10 years of continuous operation. The tenant has undertaken a significant investment in fit-out and equipment, supporting the property’s strong ongoing use.

The centre is anchored by well-known retailers including Ritchies IGA, Domino’s, and Bakers Delight, attracting steady foot traffic to the area. The property benefits from excellent accessibility via Warrandyte Road, Oban Road, and Maroondah Highway, with Ringwood Station and Eastland Shopping Centre just minutes away. A large council car park adjacent to the shopping centre provides ample parking for visitors.

The surrounding area is supported by local amenities including parks, walking trails, and a growing mix of cafes and eateries such as The Firehouse and Rubiki Café, making this a vibrant and well-connected suburban location.

Principle Outgoings

Council rates

ESVF Levy

Owners corporation Land Tax

Title particulars

$4,092.25 p.a

$2,602.50 p.a

$33,788.16 incl GST (1st Jan 2026)

$1,620 (estimate - single holding)

Certificate of Title — Volume 11824 Folio 81 Lot 11A PS346800

Zoning Commercial 1 Zone (CIZ)

Planning Overlays

Significant Landscape Overlay (SLO4)

Municipality City of Maroondah

All signs point to: Warrandyte Road.

Warrandyte Road, Ringwood North offers a high-exposure location with strong community ties and long-term growth potential. Here are some notable aspects and benefits of buying property in this area:

Prime Local Arterial:

As one of the main connecting roads in the area, Warrandyte Road offers continuous traffic flow throughout the day. Businesses positioned here benefit from exceptional signage opportunities and a constant stream of passing vehicles, maximising visibility.

Affluent Catchment Area:

Ringwood North is home to established residential neighborhoods with strong household incomes. This creates a customer base that values quality goods and services, making it an attractive location for both retail and professional businesses.

Accessible Transport Links:

The road enjoys easy access to Eastlink and Maroondah Highway, while also being serviced by public transport routes. This ensures that businesses are highly accessible not only to locals but also to customers and clients traveling from surrounding suburbs.

Balanced Business Mix:

The surrounding area already supports a variety of successful local shops, cafés, medical clinics, and service-based businesses. New operators benefit from an established ecosystem while still finding room for growth and niche opportunities.

Long-Term Growth Potential:

Ongoing development across Ringwood, including residential upgrades and infrastructure improvements, continues to strengthen the appeal of Warrandyte Road as a commercial destination. Its positioning guarantees long-term business sustainability and investment security.

Doing business in Ringwood North means tapping into an affluent, community-focused suburb with steady customer demand. Its prime location near Eastlink, Maroondah Highway, and Eastland ensures both strong local support and long-term growth potential. AND THE POINT?

All signs point to: Ringwood North.

Ringwood North presents an exceptional environment for doing business, combining a strong local community with outstanding connectivity. The suburb is home to an established, family-oriented demographic with above-average household incomes, creating a solid customer base for both everyday services and premium offerings. With schools, childcare centres, parks, and sporting clubs nearby, the area experiences steady traffic throughout the week and fosters loyalty to local businesses. The vibrant community atmosphere supports a wide mix of enterprises, from retail and dining to healthcare, professional services, and lifestyle businesses.

Beyond its local advantages, Ringwood North is strategically positioned near major arterials such as Eastlink and Maroondah Highway, ensuring seamless access across Melbourne’s eastern corridor and into the CBD. Its close proximity to Eastland Shopping Centre and the Ringwood

Activity Centre allows businesses to tap into one of the region’s fastest-growing commercial and retail hubs, capturing both local and visiting customers. Ongoing infrastructure upgrades, rising property values, and continuous residential demand all reinforce the suburb’s stability and growth potential. Together, these factors make Ringwood North not just a convenient and customer-friendly location, but also a secure and future-focused choice for business operators and investors seeking long-term success.

Private Sale Process

At CVA, we are dedicated to providing a professional and transparent experience throughout the private sale process.

To ensure clarity and fairness, we have outlined the key steps below, allowing prospective purchasers to fully understand the process when submitting an offer.

1. Submitting Offers

Offers can be submitted at any point during the private sale period, as there is no fixed closing date. We recommend that all interested parties submit their strongest offer using the provided documentation, ensuring all fields are completed and the form is signed. Once submitted, your offer will be promptly presented to the vendor for consideration.

2. Review Process

Upon receipt, all offers are carefully reviewed by the vendor. We will communicate any feedback or decisions regarding your offer in a timely manner. Unlike auctions or formal Expressions of Interest campaigns, the private sale allows the vendor the flexibility to accept, negotiate, or decline offers at their discretion as they are received.

3. Contract and Settlement

Should your offer be accepted, a formal contract of sale will be prepared. At this stage, a deposit may be required to secure the property. The agreed terms of the contract, including the settlement period, will then be finalised between the buyer and vendor.

We strive to maintain open communication and provide professional guidance throughout the private sale process, ensuring a seamless experience for all parties involved.

For more information, contact

Ian Angelico

0418 336 088

ian.angelico@cva.melbourne

Stan Dawidowski

0400 448 755

stan.dawidowski@cva.melbourne

Turn static files into dynamic content formats.

Create a flipbook
Issuu converts static files into: digital portfolios, online yearbooks, online catalogs, digital photo albums and more. Sign up and create your flipbook.