Information Memorandum - 4/101 Tram Road, Doncaster

Page 1


As Melbourne’s leading independent commercial property agency, we take pride in creating worth across all four points of this city.

Think Doncaster, think Westfield. Which is exactly what thousands of people do every single day, as they drive, tram, or walk straight past this strata retail/medical suite sitting opposite the centre. That’s builtin exposure to 31,000 cars daily** you don’t have to buy. The current tenant has turned the 165 sqm* of ground-floor indoor/outdoor space into a modern maternity health hub, tapping into a sector that’s booming with demand. They’re on a 5-year lease since September 2022 with the option to extend by another five years, and securely deposit $89,123.84 gross per annum (approx. $76,500 net per annum) straight into your pocket. With 3% annual increases, a quality tenant, and consistent capital growth in the neighbourhood, it’s the kind of long-term, low-maintenance income you’ll remember as a smart decision for years to come.

Medical today, beauty therapy tomorrow, accounting office down the track: the retail suite itself has the flexibility to adapt as the market evolves. And with shared amenities, on-site car parking, and 210 apartments directly above, you’ve got a captive audience on the doorstep, plus the pull of one of Melbourne’s busiest retail destinations across the road.

165 sqm*

$89,123.84

2 1 km* Prime Activity Centre

Visible Tenanted

Currently leased on a 5-year lease + 5-year option.

Total land area.
Gross income.
Secure car spaces.
To Eastern Freeway.
Directly opposite Westfield Doncaster. Zoning.
Frontage onto Doncaster Road & Tram Road Junction.

With income locked in and exposure on loop, this is the kind of investment where missing the stop isn’t an option. Are you on board?

“A secure, high-exposure investment opposite Westfield Doncaster — strong tenant, steady returns, and long-term growth all in one.”

Tim Cooney | 0468 860 737 tim.cooney@cva.melbourne

After nearly two decades of experience across Australia and London, Tim brings a global perspective to local deals — paired with a distinctly Melbourne sense of approachability. Since joining CVA in 2021, he’s become known for his attention to detail, proactive mindset, and long-game thinking. For Tim, commercial real estate isn’t about chasing transactions, but building partnerships. He thrives on developing genuine, long-term relationships and takes the time to understand not just what clients want now, but what they’ll need next. Tim blends strategic thinking with day-to-day diligence, whether he’s running a campaign, structuring a deal or mapping out a multi-year leasing strategy, his goal is the same: deliver value, build trust, and exceed expectations.

“Unbeatable location, reliable income, and lasting flexibility — this is the kind of asset every investor wants to hold.”

Charlie Hicks | 0420 643 202 charlie.hicks@cva.melbourne

Naturally business and strategy minded, but with the credentials to back it up — Charlie has a Bachelor of Business and Arts that keeps his processes sharp and campaigns organised. In saying that, his intuition has driven a large part of his success, from his relationship-building to the trust he fosters between colleagues and clients alike. It’s why CVA knew they had a leading Property Executive on their hands, and why Charlie channelled his media experience into creating worth across all points of Melbourne. Hardworking. Organised. Reliable. But those around him for more than a moment would say that he has a way of getting along with everyone. And while the saying ‘fail to plan, plan to fail’ is used by many, they’re words Charlie lives by — and it’s exactly how he got here.

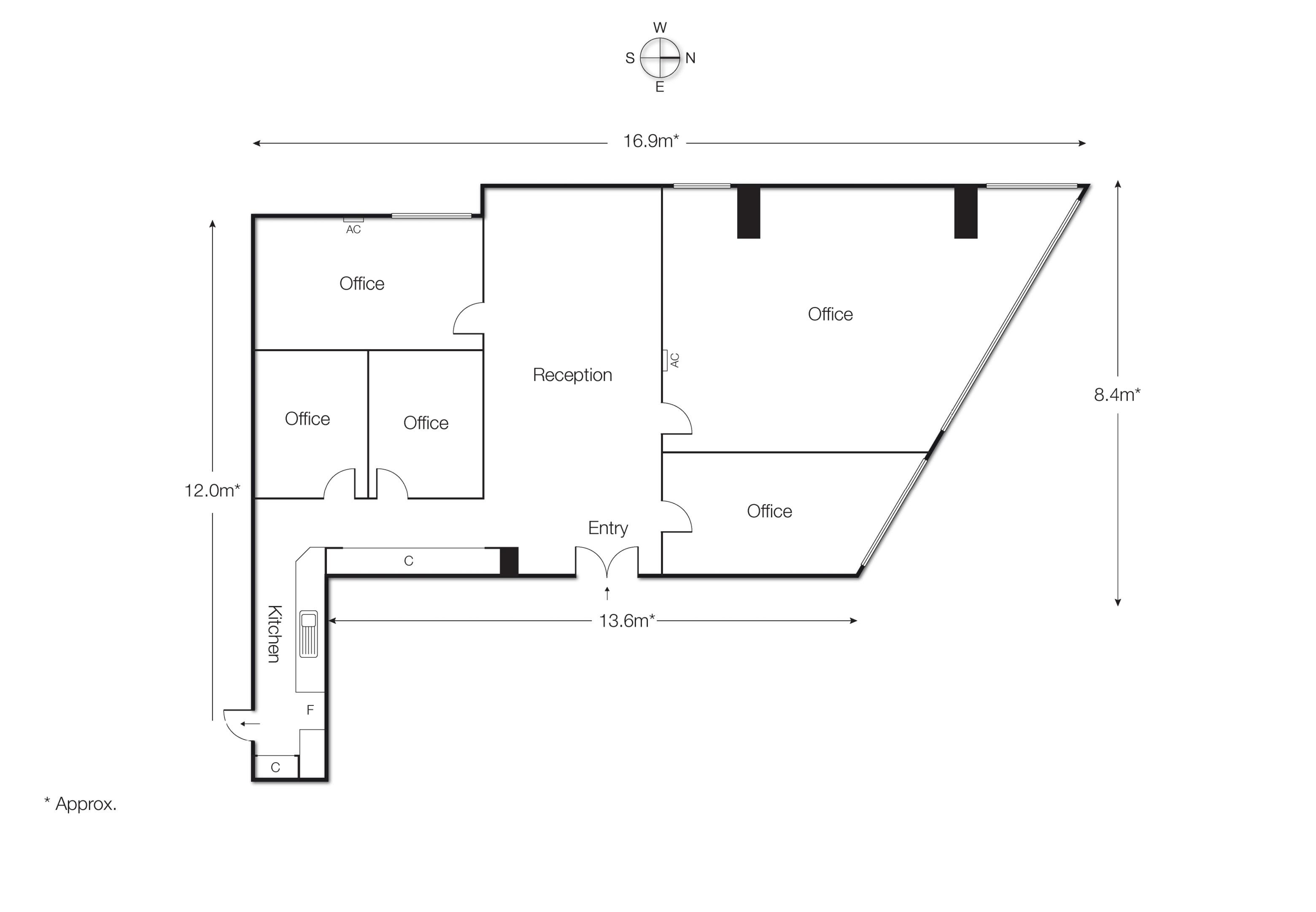
This recently upgraded property at 4/101 Tram Road, Doncaster offers a refined and contemporary setting ideal for medical, office, or professional use. The interior presents a welcoming reception area featuring premium timber flooring, sophisticated marble finishes, and modern feature wallpaper that immediately conveys a sense of professionalism and style. The space is designed with functionality in mind, offering a seamless flow between the reception, consulting, and workspace areas.

The kitchenette has been fitted with elegant stone benchtops, sleek cabinetry, and quality fixtures, providing both practicality and visual appeal. The open-plan layout offers excellent flexibility, complemented by full-height mirrored walls and large windows that flood the space with natural light. LED downlights and ambient ceiling strip lighting further enhance the bright and spacious atmosphere.

High ceilings, warm timber tones, and frosted glass doors add a touch of sophistication, while every detail has been thoughtfully selected to create a comfortable and professional environment. Perfectly suited for medical specialists, beauty clinics, or office professionals, this property is impeccably presented and movein ready, offering a premium workspace in one of Doncaster’s most desirable commercial locations.

Principle Outgoings

*approx

Site Details

Title particulars

$3,000 p.a.

$1,244 p.a.

$7,352 p.a. Land tax

to street

$975 p.a.

Certificate of Title — Volume 12231 Folio 802 Lot. 4R PS724918

Zoning Activity Centre Zone - Schedule (ACZ1)

Planning Overlays

metres*

sqm*

Development Contributions Plan Overlay - Schedule 1 (DCPO1) Parking Overlay - Precinct 1 (PO1)

Municipality City of Manningham

All signs point to: Tram Road.

High Street in Kew East is a prominent and bustling commercial and retail thoroughfare, situated within one of Melbourne’s well-regarded suburbs. Here are some notable aspects and benefits of buying property in this area:

Prime Connectivity:

Tram Road offers seamless access to major routes including Doncaster Road and the Eastern Freeway, connecting you directly to Melbourne’s CBD and key suburban areas. This makes it easy for clients, employees, and suppliers to reach your business, reducing travel time and improving convenience for everyone.

High Exposure:

With thousands of cars passing daily, Tram Road provides outstanding visibility for signage and brand presence. Businesses located along this busy thoroughfare benefit from continuous exposure, helping attract walk-in clients and enhancing brand recognition throughout the Doncaster area.

Proximity to Westfield Doncaster:

Situated directly opposite one of Melbourne’s most visited retail centres, attracting over 15 million visitors annually, this location guarantees a steady flow of potential customers. Being near Westfield also means easy access to dining, retail, and lifestyle amenities, adding to the area’s professional appeal.

Established Commercial Precinct:

Surrounded by thriving offices, medical specialists, and service-based businesses, Tram Road fosters a supportive and professional environment. This cluster of established operators not only builds credibility but also encourages cross-referrals and collaborative opportunities among businesses.

Growing Local Economy:

Doncaster continues to see strong population growth and major infrastructure investment, fueling demand for commercial spaces. The area’s evolving skyline, upgraded transport links, and ongoing urban development ensure long-term business sustainability and capital appreciation potential.

AND THE POINT?

Tram Road is a prime business location with high visibility, strong foot traffic, and easy access to major roads, making it ideal for growth and investment.

All signs point to: Doncaster.

Doncaster is a highly sought-after location for businesses, offering a vibrant commercial environment and excellent connectivity through major roads and public transport. The area attracts consistent foot traffic from local residents and visitors, providing a strong customer base for retail, office, and service businesses. With established shopping centers, national retailers, and a growing business community, Doncaster presents ample networking and growth opportunities. The suburb also benefits from ongoing development projects, which continue to enhance its appeal and economic potential. Flexible leasing options and modern commercial spaces make it accessible for both new and established enterprises. Doncaster’s strategic location near major highways and public transport hubs ensures easy access for employees, clients, and suppliers alike. The area boasts a mix of residential and commercial growth, creating a balanced ecosystem that supports long-term

business sustainability. Additionally, the supportive local government and business associations provide resources and guidance for entrepreneurs, making it easier to navigate regulations and expand operations. Its thriving community, dynamic economy, and strong infrastructure make Doncaster an ideal choice for businesses seeking visibility, growth, and lasting success.

And the point?

Doncaster is an ideal place to do business thanks to its prime location, high foot traffic, and proximity to major shopping centers and national retailers. The area offers modern commercial spaces, strong infrastructure, and a supportive business community, providing excellent opportunities for growth, visibility, and long-term success.

Private Sale by Closing Date Process

At CVA, we provide prospective purchasers full transparency, fairness, and respect during the Private Sale process. To make our point, we’ve defined and outlined the process below so you’re across it prior to submitting an offer.

1. Submitting Offers:

Offers are due no later than the date and time advertised for the Private Sale campaign. They must be submitted through this form with every section completed, signed and emailed to the relevant contact persons by campaign closure. Any offers submitted after this time will be deemed as non-compliant.

Our point of view: we recommend all interested parties submit their best offer, as the vendor reserves the right to accept an initial offer or to deal exclusively with certain offers in a second round. If you can do so, we strongly encourage submitting an offer signed on a Contract of Sale as this may influence the vendors feedback and/or decision.

2. Review Process:

All offers will be compiled and presented to the vendor for their consideration after the closing of the Private Sale campaign. Upon feedback, we will contact all parties promptly to communicate the vendors instructions relating to their offer. In the event of a second round, we will request all offers to be provided on a contract of sale with a deposit payable to the CVA Trust account, for the vendor’s consideration.

3. Contract and Settlement

Following the acceptance of an offer, a contract of sale will be prepared. At this stage, a deposit will typically be required to secure the property. The terms of the sale, including the settlement date, will then be finalised between the vendor and the successful buyer.

We are dedicated to maintaining clear communication and ensuring that all participants are fully informed throughout the private sale process by closing date. Our goal is to provide a seamless and respectful transaction for all parties involved.

For more information, contact

Tim Cooney

0468 860 737

tim.cooney@ cva.melbourne

Charlie Hicks

0420 643 202

charlie.hicks@ cva.melbourne

Imaged Document Cover Sheet

The document following this cover sheet is an imaged document supplied by LANDATA®, Secure Electronic Registries Victoria.

Document Type

Document Identification

Number of Pages

(excluding this cover sheet)

Document Assembled

22/10/2025 10:51

Copyright and disclaimer notice: © State of Victoria. This publication is copyright. No part may be reproduced by any process except in accordance with the provisions of the Copyright Act 1968 (Cth) and for the purposes of Section 32 of the Sale of Land Act 1962 or pursuant to a written agreement. The information is only valid at the time and in the form obtained from the LANDATA® System. None of the State of Victoria, LANDATA®, Secure Electronic Registries Victoria Pty Ltd (ABN 86 627 986 396) as trustee for the Secure Electronic Registries Victoria Trust (ABN 83 206 746 897) accept responsibility for any subsequent release, publication or reproduction of the information.

The document is invalid if this cover sheet is removed or altered.

Turn static files into dynamic content formats.

Create a flipbook
Issuu converts static files into: digital portfolios, online yearbooks, online catalogs, digital photo albums and more. Sign up and create your flipbook.