As Melbourne’s leading independent commercial property agency, we take pride in creating worth across all four points of this city.
01. Point of Interest 02. Point of View
Property Features 04. Property Particulars 05. Location
06. Sales Process
07. Appendices Sale Process Private Sale Form Floorplan

Coburg might just be commercial real estate’s next big headline, and this is your opportunity to write your own growth-filled chapter. Sitting squarely on the suburb’s busiest arterial, Sydney Road sees over 19,000+ passing cars daily, and your frontage could be a welcome distraction from morning traffic. The versatile space takes up 416 sqm* of land with an 800 sqm* building spread across two levels and offering dual entry points. The ground floor offers spacious office space plus access to 500 public car parks at the rear, while the upstairs floor is currently leased as a studio/warehouse hybrid. Whether you’re after substantial space or the buzz of multiple tenancies, you’ll find it right here.
And if your household-name neighbours — Woolworths, Coles, and Chemist Warehouse — are anything to go by, you’ll be joining a hub that pulls in serious foot traffic. Getting around is easy: CityLink is one turn away via Bell Street to the north or Moreland Road to the south, and if you’re PT-inclined, tram 19 stops right outside, travelling to Flinders Street, while Coburg Station is a 6-minute* walk.



Suburb trajectory: growing. Daily passers-by: steady. Rental yields: up year on year. If you’re in the market for a commercially savvy investment in a buzzing environment, all signs point to the north.


Luca Angelico | 0447 772 782 luca.angelico@cva.melbourne
“Opportunities like this don’t come up often on Sydney Road. With 19,000+ cars passing daily and Woolworths, Coles, and Chemist Warehouse as your neighbours, this property sits at the heart of Coburg’s growth corridor — a proven formula for strong visibility and tenant demand. ”
With an interest in commerce and experience in construction management, Luca has both the creativity and practical problem-solving skills needed to cut it in this industry. Enthusiastic. Committed. Diligent. Having joined CVA in 2017, it was 2020 that saw him become a Sales and Leasing Executive. A role in which Luca is able to showcase his enthusiastic side, fixated on even the smallest of details which make all the difference in helping both developers and investors alike. It’s all of this that will keep you interested in working with him, well beyond the point at which your transaction concludes.

Craig McKellar | 0431 892 780 craig.mckellar@cva.melbourne
“This is more than just a building — it’s a foothold in one of Melbourne’s most dynamic activity centres. Offering scale, versatility, and exceptional connectivity, it’s the kind of asset that delivers immediate returns with long-term growth upside.”
Craig has been transacting commercial real estate in Melbourne’s north for more than a decade. And in that time, he’s marvelled at how the properties within this point of the city have adapted to the burgeoning urban landscape. It’s a transformation he has witnessed not just as a real estate agent but a property consultant, too. He’s equipped with the resources to think beyond today and forecast

Luca Angelico | 0447 772 782 luca.angelico@cva.melbourne
Leo Mancino | 0418 343 147 leo.mancino@cva.melbourne
“Opportunities like this don’t come up often on Sydney Road. With 19,000+ cars passing daily and Woolworths, Coles, and Chemist Warehouse as your neighbours, this property sits at the heart of Coburg’s growth corridor — a proven formula for strong visibility and tenant demand. ”
“Whether you’re chasing substantial space or a multi-tenancy investment, this property delivers flexibility in one of Melbourne’s most in-demand corridors.””
It’s the expertise accumulated over three decades paired with a realistic outlook on life, that makes Leo not just a seasoned director to the CVA team, but a significant asset when it comes to dealing with yours. From personable first impressions to successful business transactions, he has not just built a solid and loyal client base, but developed negotiation techniques that have earned him great respect in this city’s industry.
With an interest in commerce and experience in construction management, Luca has both the creativity and practical problem-solving skills needed to cut it in this industry. Enthusiastic. Committed. Diligent. Having joined CVA in 2017, it was 2020 that saw him become a Sales and Leasing Executive. A role in which Luca is able to showcase his enthusiastic side, fixated on even the smallest of details which make all the difference in helping both developers and investors alike. It’s all of this that will keep you interested in working with him, well beyond the point at which your transaction concludes.

Mikayla Duffy | (03) 9623 2587 mikayla.duffy@cva.melbourne
“This is more than just a building — it’s a foothold in one of Melbourne’s most dynamic activity centres. Offering scale, versatility, and exceptional connectivity, it’s the kind of asset that delivers immediate returns with long-term growth upside.”
Craig has been transacting commercial real estate in Melbourne’s north for more than a decade. And in that time, he’s marvelled at how the properties within this point of the city have adapted to the burgeoning urban landscape. It’s a transformation he has witnessed not just as a real estate agent but a property consultant, too. He’s equipped with the resources to think beyond today and forecast
Assistance by nature, executive in presence — Mikayla is a crucial part of the campaign process that sees CVA’s processes only heading north. Her five years of experience in the residential real estate market spanning both the Gold Coast and Victoria has fuelled her enthusiasm for the industry, however her team would say it’s her drive to learn more that makes her a valuable asset. Knowledgeable, flexible and organised, she goes beyond the usual. Mikayla’s communication is the thread that stitches all moving parts together, but

Second Stitch is a social enterprise that empowers women from diverse backgrounds economically and socially through textiles. Second Stitch offers alterations, and training. The training is accredited textile training and were they offer workshops and seamstreses bring your beloved items back to life.


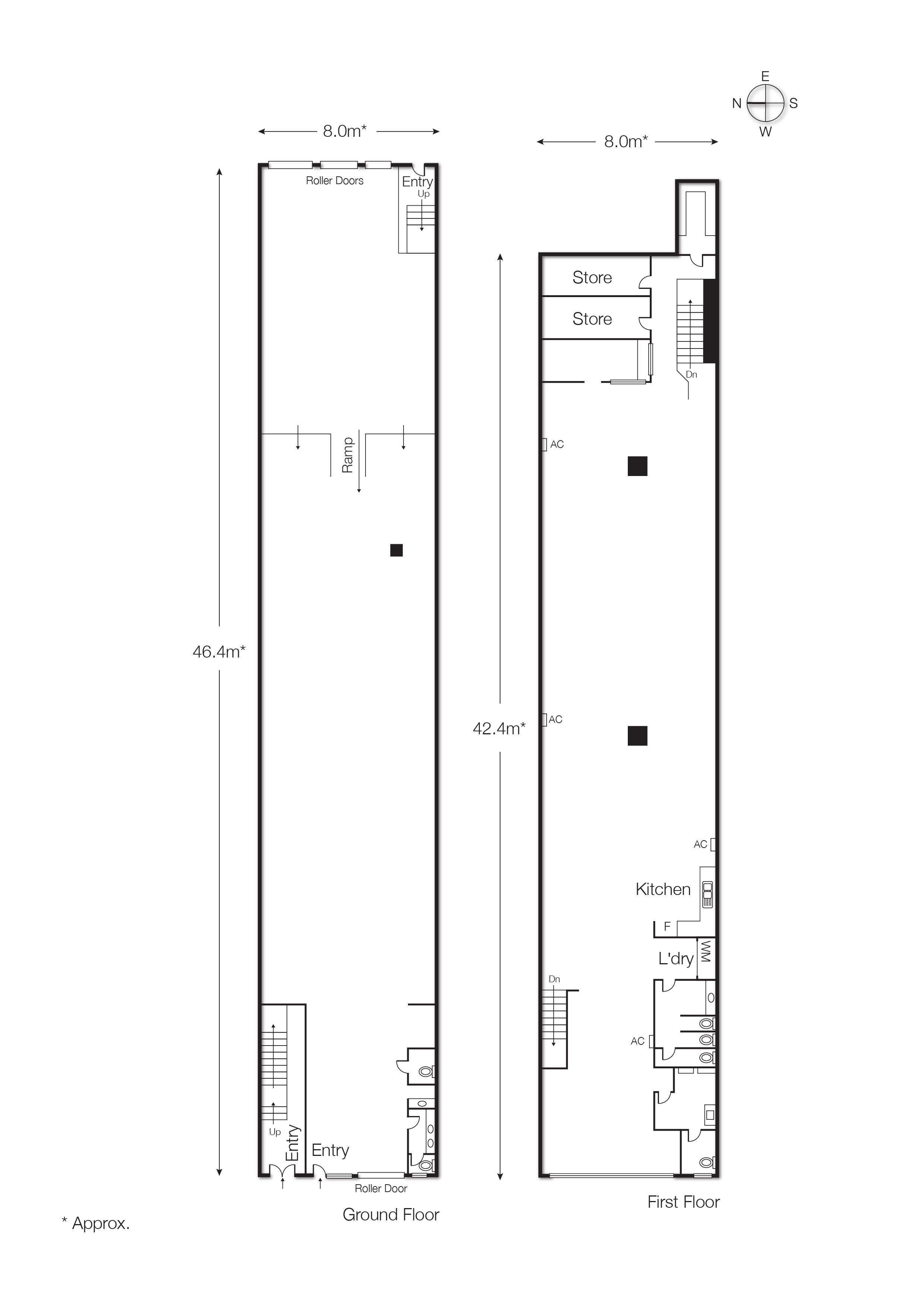
The property boasts a total building area of 800 sqm* spread across two versatile levels, positioned on a 416 sqm* landholding. With dual entry points, the layout is designed to accommodate a wide range of commercial uses under its Activity Centre Zoning (ACZ).
On the ground floor, spacious office space is complemented by direct access to over 500 public car parks at the rear, ensuring convenience for both staff and customers. The upper level is currently configured as a leased studio/warehouse hybrid, providing valuable income-generating potential or flexibility for future reconfiguration.
Positioned for maximum exposure, the property enjoys a prominent frontage along Sydney Road, where more than 19,000 vehicles pass daily. Surrounding anchors such as Woolworths, Coles, and Chemist Warehouse further enhance the site’s profile, drawing strong and consistent foot traffic to the area.
Connectivity is another highlight. Public transport access is effortless with tram 19 stopping at the doorstep and Coburg Railway Station just 380m* away. Major road links are equally accessible, with Bell Street only 490m* from the site, Moreland Road 1.2km* to the south, and CityLink just 3.2km* away. The Melbourne CBD is a straightforward commute, located approximately 13 km* from Coburg.

Principle Outgoings
Site Details
Title particulars
Zoning
Planning Overlays
Municipality
Total site area
Certificate of Title — Volume 04411 Folio 047
Lot 1 on Plan of Subdivision 232183G
Activity Centre Zone - Schedule 1 (ACZ1)
metres*
sqm*
Development Contributions Plan Overlay - Schedule 1 (DCPO1)
Parking Overlay - Precinct 1 (PO1)
City of Merri Bek


