MFH PHX Architecture brochure

Page 1


Multi-Family Housing

C&S Multi-Family Housing Studio

At C&S, our Multi-Family Housing Studio is dedicated to creating innovative, community-driven living environments that enhance quality of life and elevate urban and suburban landscapes. With a deep understanding of evolving housing trends, sustainability, and modern living needs, our team of architects and designers craft spaces that are functional, aesthetically compelling, and built to stand the test of time.

Our expertise spans a diverse range of multi-family housing typologies, from urban infill developments and mixed-use communities to planned community housing, student housing and assisted living / memory care facilities. We approach each project with a commitment to thoughtful design, integrating smart planning, energy efficiency, and high-quality materials to foster both comfort and long-term value.

Collaboration is at the core of our process. We work closely with developers, municipalities, and community stakeholders to ensure that every project reflects the unique identity of its surroundings while meeting market demands. By prioritizing innovative solutions, resident well-being, and responsible urban growth, we create housing that is not just a place to live but a foundation for vibrant communities.

At C&S, we don’t just design buildings— we shape lifestyles, strengthen neighborhoods, and redefine what multi-family housing can be.

Our Professional Services

♦ Planning & Feasibility Studies

♦ Architectural Design

♦ Engineering Services

♦ Interior Design

♦ Construction Administration & Project Management

♦ Specialized Housing Solutions

♦ Sustainability & Resilience Consulting

♦ Digital & Technological Integration

Let’s build something remarkable together!

Daniel Marinaro AIA, NCARB

Dan, with 38 years of experience, infuses multi-family housing with a sharp design vision and aesthetic sensibility, ensuring projects align with client expectations through collaborative execution.

Nate Brown

Nate, a dynamic leader in multi-family, excels in client relationships, market trends, and partnerships, ensuring project success and firm growth with a client-focused approach.

Linsay Royer

Patrick Gordon

Patrick, a skilled architect, excels in multi-family housing with technical prowess in BIM, code compliance, and construction, ensuring projects are on time, budget, and quality.

Linsay, an expert in veteran’s and affordable housing, leverages her passion and knowledge to deliver projects that are both sustainable and community-focused, ensuring accessibility and quality.

The Leadership Team

Market Rate

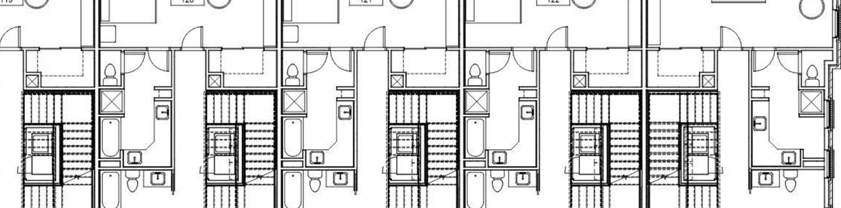
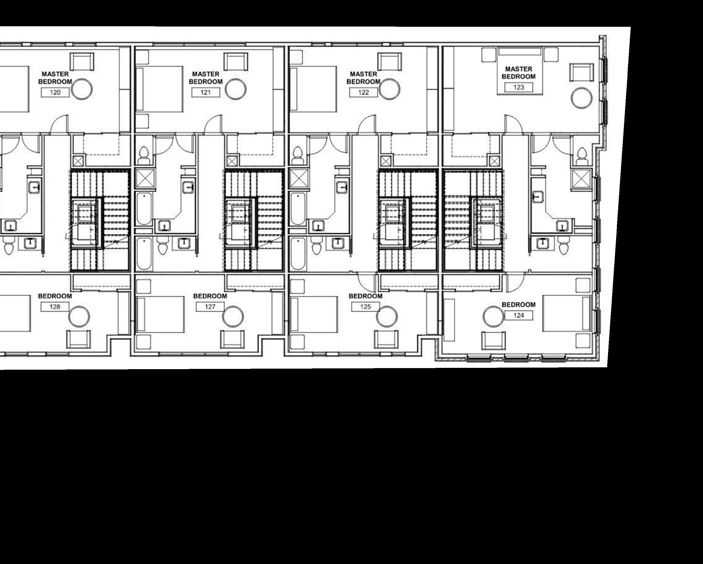
Urban, mixed-use infill development located on the site of the former Women’s and Children’s Hospital at the corner of Elmwood and Bryant, connecting the eclectic Elmwood Village with the Delaware District.

The Pardee consists of 81,000 square feet over five stories and is home to 26 residential units ranging in size from 1,200 to 2,600-square-feet. The first floor is dedicated to retail space, the second floor has office space and four apartments, and the third through fifth floors are dedicated to the remaining 22 apartments. As part of the project, an 8,900-square-foot basement was excavated which is used as storage space.

Note: This project was designed by Dan Marinaro,

the architect of record, during his tenor as director of Multi-Family Housing at the Wendel Companies.

Adaptive Re-Use

A major redevelopment project transformed a group of vacant industrial buildings in Buffalo’s historic Cobblestone District into a vibrant mixed-use space. This $15 million project converted a five-story warehouse at Mississippi and Perry into 30 to 40 luxury apartments or condominiums, with a high-end restaurant occupying the ground floor. To enhance accessibility, a one-story building behind the main development was demolished to make way for private garages for residents. A separate four-story building was re-purposed into a modern office complex, while a centrally located one-story brick building was adapted for retail use.

The Cobblestone District, once a primarily industrial area, had long been poised for revitalization following the construction of the $127 million HSBC Arena. However, significant redevelopment projects were slow to emerge. This initiative served as a catalyst for further investment, bringing new energy to the area. The project re-purposed five historic buildings, some dating back to the early 1900s, integrating residential, commercial, dining, and office spaces to create a self-sustaining urban hub.

Senior Housing

I am so happy to have found Stonegate apartment homes! I feel like I am still living in a house! I didn’t want to give up 2 things: my attached garage or my laundry room. Here, I didn’t have to. The attached garage makes me feel safe and adds lots of storage.
—Anonymous

Post on Stonegate Management website

Stonegate of Clarence

Nestled in the heart of Clarence, NY, Stonegate of Clarence offers a refined and enriching senior living experience. Designed for comfort, independence, and community, this thoughtfully planned development provides modern, accessible residences complemented by a wealth of amenities.

Elegant apartments and townhomes feature open layouts, energy-efficient designs, and smart-home technology, ensuring ease and convenience. At the heart of the community, a beautifully appointed clubhouse fosters social engagement, while scenic walking trails, fitness facilities, and wellness programs support an active lifestyle. Lush green spaces, shaded seating areas, and a welcoming atmosphere make every day feel like home.

Conveniently located near shopping, dining, and healthcare, Stonegate blends smalltown charm with modern conveniences. It’s a place where seniors can thrive, enjoying a maintenance-free lifestyle surrounded by comfort, connection, and opportunity.

04 Special Needs Housing

NYS Office of Temporary & Disability Service—Term Contract

With over two decades of Architectural/Engineering Services with NYS Office of Temporary & Disability Services, C&S has supported the construction, adaptive reuse, and rehabilitation of multi-family housing through our partnership with HHAC.

Cumulatively, C&S has overseen over $125million in construction dollars, with projects ranging from $100,000 shelter repairs, to $24 million gut rehabilitation.

Our comprehensive services span the entire project lifecycle—from pre-construction through post-construction, and include the following:

Capital Needs Assessments

Building Code Analysis

Construction Cost Estimating

Technical Documentation

Contractor Pre-qualification

Bidding

Feasibility Studies

“I can’t say enough about the level of service and professionalism from the C&S team. I’ll probably spend the rest of my working life saying this, but we are deeply grateful and humbled by the support and the improvements to the space.”

2018

Over 100 Reviews 2020

First Architectural Design

Populations Supported

There are diverse populations supported by this these types of housing projects including victims of domestic violence, adolescents aging out of foster care, people in recovery, veterans, people living with HIV/AIDS, substance abusers, the chronic homeless, and those suffering from mentally illnesses.

2022

C&S Supports the Construction of over 50 projects across the NYS

Camp Duffield Master Plan & Cabin Renovation

Our mission is to provide camping and retreat experiences for campers within a natural setting of God’s beautiful creation as we seek to nurture individual growth in faith and build communities of love, caring, and acceptance.

—Camp Duffield Mission Statement

Nestled within the serene woodlands of Delevan, NY, Camp Duffield is a cherished retreat dedicated to spiritual reflection and outdoor adventure. The recent master planning initiative revitalized the camp’s accommodations and introduced thoughtfully designed “bluffs” for spiritual journeys, enhancing the camp’s natural beauty and purpose-driven mission.

The design process was deeply immersive— stakeholders lived on-site, walking the land together to identify the most meaningful locations for the new bluffs. These elevated spaces, carefully positioned within the woods, offer places of solitude and connection, inviting visitors to pause, reflect, and engage with the landscape on a spiritual level.

The existing cabins were in desperate need of transformation—cluttered, outdated,

and filled with old metal bunks that left little room for meaningful interaction. The new design embraces simplicity, functionality, and warmth. Using cost-effective wood products, carefully sanded and stained for a natural yet refined aesthetic, the interiors were reimagined to create a more inviting and flexible space. Bunk beds were relocated to the perimeter, opening up the center of each cabin for group dialogue, activities, and communal connection.

This master planning effort ensures that Camp Duffield remains a place of renewal and fellowship, where visitors can engage in spiritual exploration while enjoying the beauty of the natural surroundings. Through thoughtful land planning and innovative yet budget-conscious design, the camp’s legacy as a sanctuary for retreat and discovery continues to thrive.

Affordable Housing

Brekenridge Place

Breckenridge Place, Ithaca, NY is a thoughtfully designed, sixstory affordable housing development spearheaded by INHS and PathStone Corp, and designed by HOLT Architects. Completed in early 2014 at 100 W Seneca Street, this 55,000 sq ft, 50-unit building offers one- and two-bedroom apartments alongside ground-floor office and community spaces. Anchoring downtown Ithaca, Breckenridge Place embraces urban context with streetlevel glazed storefronts and brick-clad upper floors featuring residential-scale windows, while stepping back on the northern edge to respect adjacent homes. LEED Platinum and Energy Star certified, the project incorporates triple-pane windows with sun shades, passive solar design, low-VOC finishes, and a foundation featuring power-plant slag concrete—earning accolades from the AIA Southern NY, ACI, and CNY Business Journal . More than just housing, the development fosters pride and integration, delivering dignified, resilient urban living without visually signaling affordability. It stands as a premier example of energy-efficient, context-sensitive urban infill that elevates both its residents and the broader community.

Note: This project was completed by Nathan Brown under a previous firm.

210 Hancock Apartments

210 Hancock Apartments in Ithaca, NY is a landmark example of sustainable, mixed-income, mixed-use redevelopment. Transforming a full city block, the project includes 59 affordable and market-rate apartments, 12 townhomes for rent and sale, and 6,400 sf of community-serving commercial space—home to an Early Head Start program and hands-on STEM education through the Free Science Workshop. Sustainability is embedded throughout the design, from rooftop solar panels that offset common-area energy use to electric vehicle charging, energy-efficient systems, and green infrastructure. The project achieved LEED Gold, ENERGY STAR, and Enterprise Green Communities certifications, supporting long-term performance, resident health, and environmental responsibility. A model of publicprivate collaboration, the $20 million development was funded through a layered mix of Low-Income Housing Tax Credits, state housing incentives, local government support, utility grants, and both construction and permanent financing. 210 Hancock exemplifies how smart design, strategic funding, and a commitment to sustainability can deliver vibrant, inclusive, and resilient communities.

Note: This project was completed by Nathan Brown under a previous firm.

Stone Quarry Apartments

Stone Quarry Apartments is a 35-unit affordable housing development in south Ithaca, offering a mix of one-, two-, and three-bedroom apartments and townhouses. The development includes two rows of two-story townhomes and a three-story apartment building arranged around a central green space that serves as a shared courtyard and community gathering area. This space features rain gardens that manage stormwater from the roofs and is complemented by a larger playground and basketball court. Architecturally, the buildings reinterpret traditional neighborhood forms with single-pitch dormers and varied rooflines that blend contemporary and classic elements. The design emphasizes walkability and neighborhood integration with sidewalks, fences, and landscaping.

Stone Quarry Apartments is LEED® for Homes

Platinum certified, incorporating sustainable features like high-efficiency windows, spray foam insulation, and on-site water management systems that enhance energy performance, comfort, and environmental stewardship.

Note: This project was completed by Nathan Brown under a previous firm.

Watkins Glen Apartments

Watkins Glen Apartments is a 34-unit, three-story affordable housing complex located between downtown Watkins Glen and Seneca Lake. It offers a mix of 1- and 2-bedroom units (700–950 sf), all designed for adaptability with select units fully ADAaccessible. The building features large windows, outdoor patios for ground-floor units, and design elements that blend with the surrounding neighborhood.

Amenities include a community room, a leasing office, space for the Arc of Schuyler County, and a 7,000 sf daycare center for infants through pre-k, complete with classrooms, a motor skills area, and an outdoor playground. Rooftop solar panels provide power to common areas, and the overall design emphasizes indoor-outdoor connections and community integration.

Note: This project was completed by Nathan Brown under a previous firm.

Village Grove Apartments

Village Grove, located in Trumansburg, NY, is an awardwinning 46-unit affordable housing development designed for Ithaca Neighborhood Housing Services (INHS). As the first multi-family project in Tompkins County to achieve Passive House Certification, Village Grove sets a new standard for sustainable, high-performance housing. The development features a mix of apartments and townhomes arranged around a central green space and is part of a larger mixed-use, mixed-income neighborhood that includes for-sale affordable homes, market-rate lots, and a stand-alone nursery school. The project integrates a variety of community supports, including units for veterans and domestic violence survivors, and amenities such as EV charging, a community lounge, and on-site management offices. Fully electric and Net Zero-ready, Village Grove utilizes ground-source heat pumps, airtight construction, and energy-recovery ventilation to reduce energy use by up to 80%, with power supplied by off-site community solar.

Supported by nearly $7 million in state funding, including NYSERDA’s Buildings of Excellence award, the project was completed in 2024 and now serves as a model for resilient, inclusive, and environmentally responsible development in New York State.

Note: This project was completed by Nathan Brown under a previous firm.

Master Planning

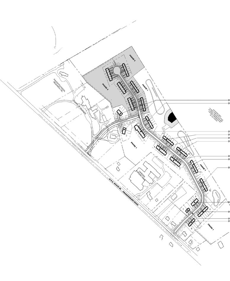
The Grand Island Town Center is a transformative mixed-use development designed to create a vibrant, walkable community blending residential, commercial, and recreational spaces. Strategically within the town center, it is a hub for living, working, and connecting.

The project includes 319 residential units—288 modern apartments, 15 townhouses, and 16 patio homes— designed for accessibility and scenic appeal. Townhouses and patio homes overlook a 2-acre pond, while market-rate apartments anchor the eastern section. Phase 1 will introduce six residential buildings with 178 multifamily units, a state-of-the-art indoor athletic facility, and 338 parking spaces, fostering a pedestrian-friendly environment.

A key feature is the commercial district with up to 65,000-square-feet of retail and office space, including a 33,000-squarefoot athletic facility and a 12,000-squarefoot Senior Center. The pedestrianfocused Town Center corridor will serve as a social and commercial hub, integrating storefronts, active streetscapes, and green spaces.

Designed for sustainability and walkability, the project includes multi-modal pathways, nature trails, and green spaces, connecting Baseline Road to Grand Island Boulevard while preserving natural features like the pond and wooded areas. The layout balances high-density mixed-use areas with lower-density patio homes to complement surrounding neighborhoods.

It’s

meant to create a walkable, active environment that’s blending a mix of uses and also includes publicly accessible green spaces.

——Roger

Trettle, Grand Island Town Center Developer

Note: This project was completed by Nathan Brown under a previous firm.

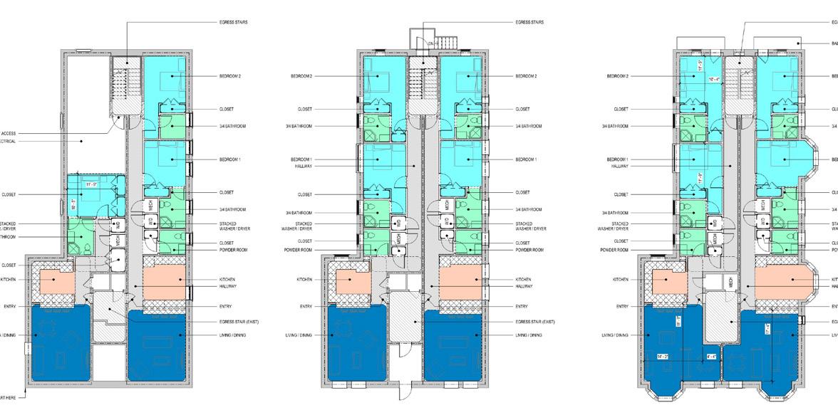
The Ithaca Townhouses

The Ithaca Townhomes project delivered a thoughtfully designed affordable housing community that balances function, accessibility, and neighborhood character. The development includes 14 townhouse buildings totaling 69 residential units and a dedicated clubhouse, encompassing approximately 88,835 GSF. A mix of one-, two-, and three-bedroom homes was provided to meet a broad range of housing needs, with a strong emphasis on accessibility and inclusivity. Ten percent of the units were designed for mobility-impaired residents, four percent for hearing- and visually-impaired residents, and three units were specifically designated to support victims of domestic violence.

The design draws inspiration from the Finger Lakes’ historic rail stations and the adjacent Black Diamond Trail, once home to the Lehigh Valley Railway. Low-sloped roofs, bracketed eaves, and carefully considered architectural details create a modern community that honors local history while offering residents a welcoming environment.

The project began with a design charrette, bringing together the client group and design team to establish the vision, goals, and functional priorities. C&S then guided programming, conceptual studies, and site analysis, ensuring zoning, circulation, and neighborhood context were fully addressed. The result is a community-oriented development that enhances quality of life, strengthens connectivity, and reflects Ithaca’s rich heritage.

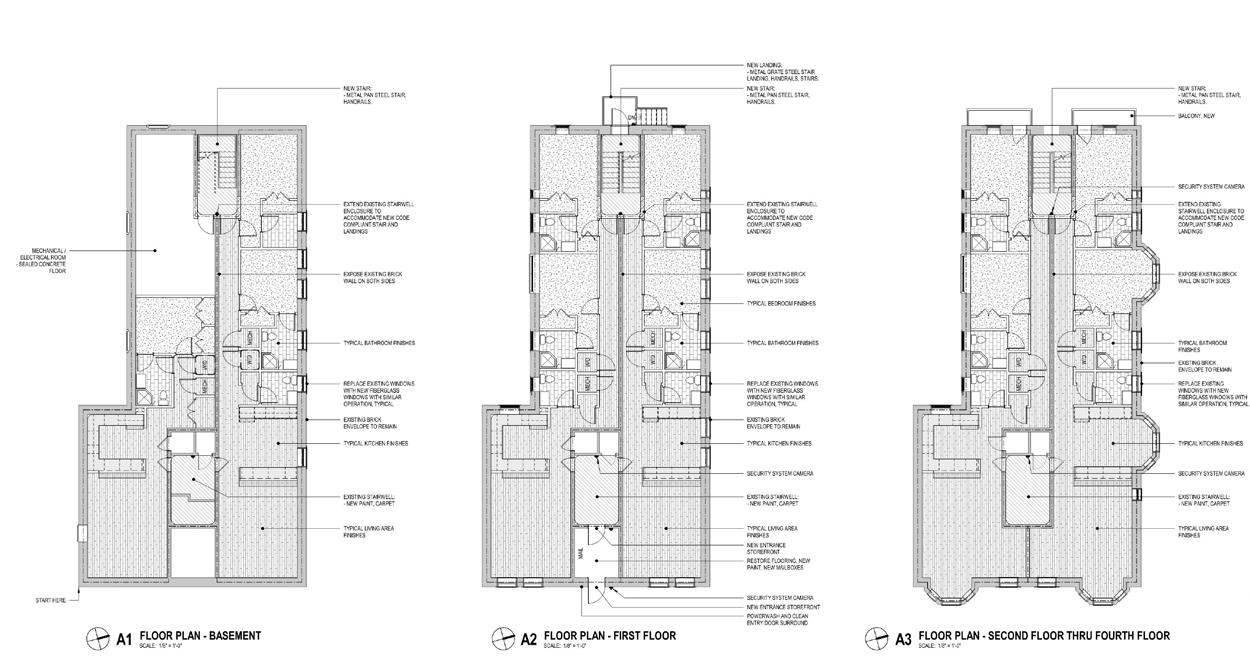
Fireman’s Park Apartments

Fireman’s Park Apartments is a transformative mixed-use project, creating a vibrant residential and commercial hub overlooking the adjacent Fireman’s Park. The development combines new construction with the adaptive reuse of the historic S&W Building, originally built in 1925 as the Syracuse Boys Club. The new four-story building will feature ground-floor retail and office space, a central residential entrance, and community gathering areas, with approximately 42 thoughtfully designed apartments on the upper levels. The residential program includes a mix of one- and two-bedroom units, complemented by modern amenities such as fitness rooms, laundry facilities, and a roof terrace offering expansive views of the park. Designed at approximately 70,000 gross square feet, the building also incorporates 14,000 square feet of structured parking to support residents and visitors.In tandem, the five-story S&W Building will be fully rehabilitated into an additional 35 residential units, seamlessly connected to the new construction. The redevelopment will preserve the architectural character of this landmark structure while modernizing it for contemporary living. Together, these two components will deliver 65–85 total units, enriching downtown Syracuse with new housing, retail energy, and a dynamic link between history and future growth.

Note: This project was completed by Nathan Brown under a previous firm.

The Wallingford Apartments

Campus Apartments, in partnership with the University of Pennsylvania, pursued the repositioning of the historic Wallingford Apartments in Philadelphia, PA. Built in 1925, the building originally contained eight large 4- and 5-bedroom units. The vision was to transform the property into a more efficient, market-responsive residential community by reconfiguring the interiors into a mix of one-bedroom/one-bath and two-bedroom/two-bath units with modern layouts, finishes, and amenities.The goal was to create approximately 10 apartments designed to appeal to today’s student renters while preserving the building’s historic character. This was achieved by removing non-structural walls, reorganizing floor layouts, and redesigning units to include modern kitchens, in-unit laundry, and efficient living spaces.

C&S supported the project through conceptual studies, 3D scanning, and the preparation of base plans, elevations, and block layouts. Preliminary code research confirmed compliance with safety, accessibility, and egress requirements, providing a clear framework for advancing design and feasibility.

Note: This project was completed by Nathan Brown under a previous firm.

801 Erie Boulevard Concept

ReDev CNY, in collaboration with C&S, advanced a transformative redevelopment project that brought new housing and commercial opportunities to the neighborhood. The process began with a design charrette, a collaborative session between both teams to define the project vision, refine the program, and establish goals that balanced current needs with long-term community growth. This visioning effort set the foundation for design, documentation, and ultimately, a built product that reflected the project’s aspirations.

Preliminary testing of the site identified capacity for approximately 139 residential units in a mix of one- and two-bedroom apartments, paired with active ground-floor commercial space that could accommodate shops, cafés, or dining venues. The plan also included a 3,600 SF pad-ready parcel designed to host one or two tenants with a drivethru and associated parking. In total, 139 on-site parking spaces were incorporated to support residents and visitors. With an estimated development value of $40–$50 million, this project represented a significant investment in neighborhood revitalization. C&S provided comprehensive planning and design services, including programming, site and zoning analysis, and conceptual block studies, ensuring the vision was achievable, cost-conscious, and well-integrated into the surrounding community.

Note: This project was completed by Nathan Brown under a previous firm.

Student Housing

Student housing is no longer viewed as a cheap place for students to live. They are intentionally and purposefully designed communal centers providing recreation, activity centers, technology, and an array of amenities. They offer a lifestyle previously unseen in the student housing market.

Student housing developments are provided both on and off campuses across the country. Urban and suburban colleges and universities are embracing the needs and benefits of great student housing.

The Knuckle Tompkins Cortland Community College

To meet the modern needs of student life, Tompkins Cortland Community College transformed two aging residence halls into a vibrant, unified community hub. A new 10,000 square foot, three-story connector brings students together with flexible spaces for relaxing, studying, and engaging with peers. From sunlit lounges to quiet study rooms, every detail encourages connection, collaboration, and a stronger sense of campus life—day and night.

With a bold new main entrance, panoramic views of the surrounding landscape, and direct links to hillside greenspace, the addition turns TC3 into a true residential destination.

Note: This project was completed by Nathan Brown under a previous firm.

The Ruby

The Ruby is a bold new addition to the neighborhood, designed to bring vibrancy, energy, and contemporary student living to the heart of the community. This four-story, 25,817 GSF residential building sits gracefully atop a concrete plinth, skillfully responding to the site’s challenging grade change by stepping into the hillside. The result is a dynamic form that not only meets functional needs but also enhances the streetscape. Inside, The Ruby offers 40 efficient studio units thoughtfully designed for student lifestyles. Each home balances privacy and independence with access to shared outdoor and communal spaces. The building’s front patio opens directly to the street, creating an active, welcoming edge where residents and neighbors can connect. A highlight of the project is a striking mural by a local artist, celebrating creativity and anchoring the building as a cultural landmark. The mural transforms The Ruby’s façade into a canvas that reflects the spirit of the community, ensuring the project is more than just housing—it’s a point of pride. Through careful design and collaboration, The Ruby demonstrates how modern housing can blend function, art, and context, creating a lasting impact on the neighborhood while offering students a vibrant place to live and thrive.

Note: This project was completed by Nathan Brown under a previous firm.

Mixed Use 08

Gates Circle Redevelopment

The Gates Circle Redevelopment is a transformative, multi-year project aimed at revitalizing the former Millard Fillmore Gates (MFG) Hospital site and adjacent city-owned parking ramp in Buffalo, NY. Spearheaded by TM Montante Development LLC and Gates Circle Holdings LLC.

The project introduced up to 531 residential units, alongside 136,000-square-foot of retail, 66,000-squarefoot of office space, and a host of community amenities. The development is anchored by Canterbury Woods at Gates Circle, a state-of-the-art Continuing Care Retirement Community offering independent and assisted living options, as well as a full continuum of care. A centerpiece of the project, Building Two, will feature a YMCA health and wellness center, an urban grocery market, and a mix of residential and office space. To enhance connectivity, the plan includes the Lancaster Avenue Extension and the Lafayette Connector, improving access and walkability within the site.

Note: Dan Marinaro led the architectural design efforts for this project during his tenor as director of Multi-Family Housing at the Wendel Companies.

09 Urban Infill

St Louis Place, is a quaint, tucked away street in the theatre district of Buffalo NY. Adjacent to the site, is a historic three-story brick building, which is historically significant. The Historic Preservation Board of Buffalo, required a detailed study of the horizontal lines and fenestration shape, size and configuration, so they could be applied to the massing, shape and configuration of the proposed new townhome project. Brownfield tax credits were used to fund the project.

Where the Journey Begins

Buffalo Office

141 Elm St.

Suite 100

Buffalo, NY 14203

Phoenix Office

2575 E Camelback Rd.

Suite 740

Phoenix, AZ 85016

Syracuse Office

499 Col. Eileen Collins Blvd.

Syracuse, NY 13212

Orlando

225 E. Robinson St.

Suite 145

Orlando, FL 32801

www.cscos.com

Turn static files into dynamic content formats.

Create a flipbook
Issuu converts static files into: digital portfolios, online yearbooks, online catalogs, digital photo albums and more. Sign up and create your flipbook.
MFH PHX Architecture brochure by cscompanies - Issuu