CX Stage 2 Architecture portfolio

Page 1

Species and Spaces

ARCHITECTURE DESIGN PORTFOLIO

STUDY GROUP F3

BY
XIWEN XU 180605899
CONTENT /01 Introduction 3 /02 Making Habitat 4-6 /03 Habitat & Settlement 7-10 /04 Working with Place 11-12 /05 Visual Brief 13 /06 Form Concept 14-16 /07 Design Process 17-22 /08 Plan & Section 23-26 /09 Circulation Analysis 27 /10 Tower Museum & Corridor 28-43 /11 Material & Moments 44-48

INTRODUCTION

The project of ‘Species and Spaces’ is located at the North Shield in the UK. Aiming to create a public gathering place. As the rising concern of environmental issues around the world, the design brief require building could offer a habitat place to a selected species. In my design, I choose the “air” site, which is an abandoned old ice factory tower, served for fish industry back to 19-20th century. The reason I choose this site is because of the ice tower. It is not only the building provide many opportunities to renew, but it has significant connection to the fish industry past of North Shield.

The studio F theme is to create a facade that offer inhabitant space for chosen species. Which is emphasis the concept of co-exiting.

The species I choose to focus is HOUSE MARTIN, which is a kind of swallow. It is on the list of North Tyneside biodiversity action plan. Therefore, I decide to offer an inhabitant place of swallow as well as help people to learn more about the species.

The final outcome is the ice tower is redesigned into a museum that focus on the fish industry past, and a new structure is made for swallow inhabitant, as well as strength the connection between the existing building block.

3

MAKING HABITAT

-SWALLOW RESEARCH

4
North Tyneside biodiversity action plan part of house martin.

North Tyneside biodiversity action plan part of house martin. In the task of making drawings and collage of the chosen species. I focused on the ideally feeding and breeding condition of swallow. The conclusion is that swallow is at the middle of the food chain and need a rather quiet and undisturbed place to nesting and breeding. They usually swallows are insectivorous, taking flying insects on the wing. So there is no point to set anything to feed them.

5

This sculpture is inspired by swallow nest. Due to the covid lockdown at that moment, I used pasta and glue gun to make this sculpture. The result is rather surprised, it helped me a lot to understand the construction process of nesting.

6

HABITAT & SETTLEMENT

7
Site model axonometric view F3 group collaborate work of biodiversity and wildlife F3 group collaborate work of site analysis

According to the research the North Shield used to be called 'Shields'. In 1390, it changed its name to North Shields to distinguish between other shields across the river. Part of the North Shields Fish Quay is surrounded by the moat of Clifford’s Fort which was constructed in 1672 for defensive purposes during the Anglo-Dutch wars. After 1700s North Shields has expanded due to the shipbuilding. From the historical literature and photographs, we learned that the neighborhood of North Shields connected by the shared fish industry and trade. For me it is an opportunity to support my design proposition.

8
Historical map in 1860s Historical map in 1890s Historical map in 1920s Historical map in 1950s

Although there is no chance to enter the ice tower, a few images from internet shows the possible interior atmosphere inside the ice tower, before and after the abandonment.

9
10 Site collage

WORKING WITH PLACE

11
plan
Site
Site axonometric view Site axonometric view Site axonometric section

The air site is located at the river bank of Tyne. Pedestrian usually access the site by the road which is next to the site. People around the site are mainly local people from the residential block at the top of the bank.

12
Site elevations Site photo shoot by Arc2001 tutors

VISUAL BRIEF

The client for this project is the owner of the old ice tower. The owner mentioned that he wanted to change the old ice tower into a place to offer street food in an online report. Therefore, the building will have a place for small-scale event.

The building would have a place for exhibited the historical object, mainly focus on the fish industry collection as well as some art painting. It also will provide a coffee and small workshop that allows 5-7 people in at the same time. The workshop is focus on the research about swallow inhabitant.

13

FORM CONCEPT

The original form concept is developed from the sculpture task. The form of bird nest become the architecture language that is fit in the site (see the sketches). The idea of imitation the bird nest iterated into the fan shaped structure. I believe I could use a new structure to intervene the existing site, to encourage people use this abounded site.

14

Iteration of the original form

15
16
Photograph of the hand made model

DESIGN PROCESS

The first attempt on the new structure is to use it as a part of circulation. It would offer visitors another way out of the tower after they finish the journey inside of the tower. The circle shape would offer a courtyard space that could use as holding small scale event.

17
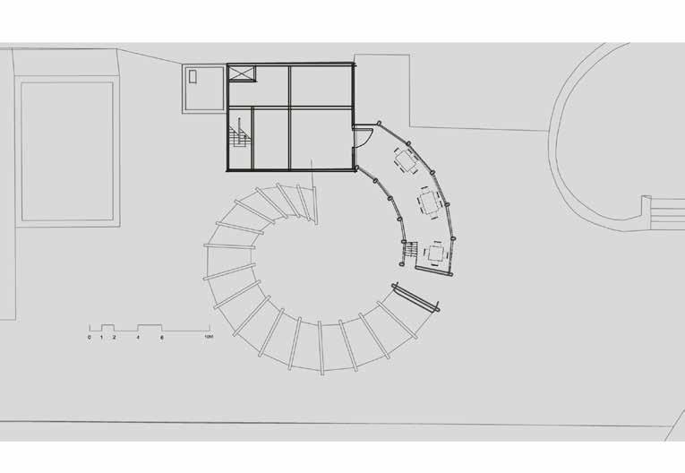
18 1F plan GF plan Circulation analysis Spatial analysis

The second version of the new structure is changed into a semi-circle. It connects the existing building block and the ice tower. It integrates the two building block as well as provide circulation between them. Inside the tower, I choose to keep the original steel beams and columns only add some floor panel. Some space left void to create a double height that might allow the museum to put some larger piece of exhibit.

19
Section Floor plans and annotation

At this point I choose the material of the semi-circle structure is mainly CLT. To provide a rather warm and welcoming atmosphere around the site. At the same time, the timber structure could offer swallow a better nesting condition.

20

The final version developed the idea that connect two building blocks. The new structure would intersect the ice tower’s first floor, at the end of the circle, a stair case would lead people back to the ground floor. The most of the ground floor would be lite up, allowing pedestrians to walk through the new structure.

21
22
Model axonometric view
Digital modeling
23 PLAN & SECTION GF plan
24 1F plan
25
2F plan
3F plan
4F plan
26 Section

CIRCULATION ANALYSIS

27

THE TOWER MUSEUM

The tower museum is base on the original structure of the old ice tower. Adding some floor panel between the old structure. But left few space voids so that some large object could be placed in as well as increase the visual connection between each level. The old stair case is removed so the museum could have larger space. The new circulation is placed to the right of the tower which include lift access.

28
Interior rendered photo GF
29
Interior rendered photo
1F
Double height space
30
Interior rendered photo Double height space 3F & 4F

THE CORRIDOR

As I mentioned before, the corridor is a part of the circulation that connect two existing building blocks. In the corridor I choose to apply the original concept language, which is imitate the form of bird nest. The language would apply on both side of the facade, for human and none-human user, co-existing under the same architectural language.

31

The precedent study I choose is Botanical Pavilion designed by Kengo Kuma. The way he built this pavilion is prefabricated large mount of small timber broads and assemble them in the museum. The construction process is very similar to swallow nesting.

32
Photography: Installation view of Kengo Kuma & Associates and Geoffrey Nees’s work Botanical Pavilion by Tom Ross. Hand made model

The interior cladding provides a opportunity to hanging some drawing as well as art pieces. It offers people a gallery space as well as shapes the interior atmosphere.

33
Photograph of hand made model
34
Photograph of hand made model

ELEVATION STUDY

The F studio theme is to create a building facade for none- human user.

The initial idea of my facade is to imitation the ideally nesting condition for swallow, which is provide a 90-degree angle at interior facade. The eave is extended to provide extra shelter for swallows.

35
36
Digital modeling facade in Sketch up

However, the exterior facade has been developed by applying the similar language in interior facade, the timber broads is designed and placed by swallow size, providing ideally nest place on exterior facade.

37
Photos of the exterior facade Elevation of the exterior facade

swallow inhabitant area

observation opoint/work shop

In order to ensure the quality of swallow’s living condition, the interior wall of the gallery space is completely closed without any windows on the wall. Only the observation point has few windows that allow people to observe the nesting.

38
Annotation of the inhabitant area Collaging on the digital model glass timber wall without windows

Ideally, the swallow would take part in the construction of the exterior facade, as they build the nest in their way, and the facade would show different form by the time passing.

39
Possible form after nesting on the elevation. Photo of the exterior facade facing inwards
40
Collage to show the relationship between human and none-human user. The building was shaped by coordination of two species which have influence on each other, but co-existing under a same place.

OBSERVATION POINT

At the opposite side of the gallery space, a workshop is placed at the end of the new structure. The workshop is an observation point that provide visual connection to the swallow inhabitant place. The work allows 5-7 people in at the same time, and provide some private lesson to help people to understand more about the swallow. This space could access directly from the 1st floor of ice tower museum.

41

At the end of the corrido, there is a stair case that leads people back to the ground level. People could access the court yard space by walking through the cafe shop, where might hold some small scale event or some street food during the weekend.

42
CAFE & COURTYARD
Rendered photo of the cafe shop
43
Rendered photo of the court yard

MATERIALS

44
The tower museum is keeping the most part of original material. Over lapping some concrete floor panel between the original structure and add some timber board to cover it.
45
Hand made model to show the construction process of semi-circle structure.

MATERIALS

46

MOMENTS

Double height museum interior

Observation point

47

3D axonometric view with site

48

THANK YOU!

49

Turn static files into dynamic content formats.

Create a flipbook
Issuu converts static files into: digital portfolios, online yearbooks, online catalogs, digital photo albums and more. Sign up and create your flipbook.