

![]()


The City of Boynton Beach began Fiscal Year 2025–2026 with a strong start, advancing development efforts that support economic vitality and community well-being.
During the first quarter, our focus centered on thoughtful growth, improved coordination, and progress aligned with the City’s long-term goals. The Development team worked proactively to support quality investment and ensure development activity delivers meaningful value to the community.
As we move forward, we remain committed to responsive, efficient development that creates lasting benefits for residents and businesses. This report highlights our early momentum and the work shaping a resilient, vibrant Boynton Beach.





Effective February 1, 2026
The City of Boynton Beach has adopted updates to its parking regulations (Chapter 14, Section 14-5, Ordinance 25-018) to enhance public safety, improve traffic flow, and maintain neighborhood tranquility.
Under the updated ordinance, vehicles may be parked only in driveways and driveway aprons when sidewalks remain unobstructed. Parking in yards, swales, or along residential streets is no longer permitted.
Limited exceptions allow temporary parking during open houses, social events, or short-term maintenance or construction activities, provided parking does not obstruct traffic and does not exceed twelve hours within a 24-hour period. These updates provide clearer guidance for residents while supporting safer, more orderly streets citywide.
For exemptions and full details, visit the City’s website: boyntonbeach.org/368/Code-Enforcement




The planning process for the City’s Public Art Master Plan is progressing. A series of outreach meetings were held between October and December with City staff, small businesses, the art community, the Art Advisory Board, and residents to gather input and shape priorities for the plan. Staff is now compiling this feedback into actionable recommendations for the draft plan
For news and future updates, please visit: boynton-beach org/875/Public-Art-Master-Plan

Boynton Beach is advancing creative placemaking through its Traffic Control Box Public Art Program, transforming everyday infrastructure into engaging public art.
On December 10, 2025, the Art Advisory Board selected 24 local artists to design wraps for 35 traffic control boxes at key intersections citywide. Centered on themes such as We Are Boynton, Abstract Tropical Nature, and Bright Beach Vibes, the program enhances the public realm, elevates local artists, and reinforces the City’s visual identity.
Installation timelines and additional updates will be shared as the project progresses



Public outreach for the City of Boynton Beach Comprehensive Plan update was conducted on October 20 and November 13, 2025. The update includes revisions to all Comprehensive Plan elements, including the development of a new Economic Development element
Engagement activities included public workshops, an ongoing citywide survey to capture additional input, and targeted outreach through an informational booth at Pirate Fest, providing multiple opportunities for continued community participation in the planning process.
Visit https://www.boynton-beach.org/857/Comprehensive-Plan-2045 for more information.


Surveyremains opentothe public.



Safe Streets 4 All Grant


The City of Boynton Beach has been awarded a Safe Streets for All grant from the U.S. Department of Transportation to develop a comprehensive Safety Action Plan. The $216,000 grant, combined with a $54,000 City contribution, represents a $270,000 investment in safer, more connected streets.
The plan will identify programs and projects to reduce crashes and injuries, with a focus on complete streets, pedestrian and bicycle safety, ADA improvements, traffic calming, and multimodal connectivity. The Safety Action Plan is scheduled for completion by Spring 2027.








The Division Director received the Platinum Business Educator Award from SCORE Broward, and the City of Boynton Beach was recognized at PROSPERA USA Annual Success Stories Event for its continued partnership and support of small business growth.
Attended the Business Development Board (BDB) event to strengthen connections with technology leaders and innovators to support economic growth

Expanded community Outreach through direct engagement increasing awareness of programs and resources.
Facilitated a SCORE mentors convening to strengthen partnerships and position the City as a trusted resource
The Workforce EDGE Program successfully graduated its second cohort, focused on soft skills training, equipping 16 City residents with in-demand competencies sought by today’s employers Facilitated in partnership with Palm Beach State College, the program emphasized workplace readiness, communication, and professional development To support continued career advancement, one participant was awarded a laptop courtesy of Baptist Health, reinforcing the program’s commitment to removing barriers and investing in long-term workforce success Workforce

WORKFORCE EDGE GRADUATION
November 19, 2025

Two Business Over Brews networking events were hosted during the quarter one at Park Avenue BBQ and a Holiday Edition at El Ático. These gatherings brought local businesses together to strengthen connections, increase awareness of the host businesses, and spark meaningful conversations that foster collaboration and relationship-building within the business community
Park Avenue BBQ
October 09, 2025


Ribbon cuttings this quarter celebrated several new businesses choosing to locate in Boynton Beach, reinforcing the City’s growing and diverse business landscape Ruocco’s and Antonacci expanded the local restaurant scene, adding new dining options that enhance the City’s culinary offerings. Adicul’s Learning Academy increased childcare options for families, supporting workforce participation and early education needs. Auravie Wellness & Spa further diversified the City’s service sector, contributing to health, wellness, and lifestyle offerings.

Together, these openings reflect continued confidence in Boynton Beach as a place to invest, operate, and grow a business, while addin




During the quarter, the Economic Development Division maintained an active and timely social media presence focused on keeping residents, businesses, and visitors informed of programs, development activity, events, and City initiatives Content emphasized clarity and relevance, ensuring information was accessible and easy to act on
Social media continued to function as a practical communication tool, prompting inquiries and direct contact with City offices regarding posted opportunities. This approach supports community awareness, reinforces transparency, and positions Economic Development as a responsive and reliable resource.






City View
2410 S. Federal Highway & S.E. 5 Avenue th
Building SF: 126,837 SF
Building 122,000 SF of Residential (90 Dwelling Units) + 4,837 SF of Commercial
The City View project proposes a 6-story mixed-use development in Boynton Beach under the Live Local Act It includes 90 residential units, 4,837 SF of retail/commercial space, and incorporates increased density and height allowances The design promotes walkability, economic development, and housing diversity while meeting zoning requirements
Josie’s Restaurant
3047 N. Federal Highway
Building SF: 4,733 SF
Building SF: 4,733 SF
The project proposes the redeveloping a 1 34-acre site at 3047 N Federal Highway into two parcels, including a new 4,733-square-foot Josie’s Restaurant The proposal involves amendments to the Future Land Use Map and Zoning, aiming to enhance pedestrian connectivity and contribute to the economic revitalization of North Federal Highway while preserving a local business
High Ridge Country Club
2400 Hypoluxo Road
Site Area: 234 12 Acres
Lot Acreage:
2347.12 ac
This Minor Site Plan Amendment aims to consolidate various past and current applications into a ‘composite’ plan while enhancing the golf course lake experience No new buildings are proposed; however, the proposal includes excavation and land filling to modify the lake layout. The proposed lake expansions will impact areas designated as Environmentally Sensitive Lands (ESL), specifically 1.06 acres within A-rated ESL and 7.31 acres within B-rated ESL.
United States Postal Service
401 E. Boynton Beach Boulevard
Site Area: 0 11 Acres
Building SF: 3,490 SF
The project proposes a new building (3,490 SF) to relocate the USPS Retail Services currently operating from the Boynton Beach Blvd & Seacrest Blvd location The new building will have self-service stations, full-service stations where associates can attend to customers, and a space to assemble and deliver packages

Building SF: 61,467 SF Building SF: 61,467 SF

American Countertops & Design LLC
Address: 1900 Corporate Drive
Use: Industrial
Total Site Area: 632,371 SF
Building SF: 61,467 SF
Unique Features: The project proposes a countertops fabrication shop within PID (Planned Industrial Zoning) district. Such a use requires Conditional Use approval because the adjacent residential properties at Leisureville are within two hundred (200) feet.
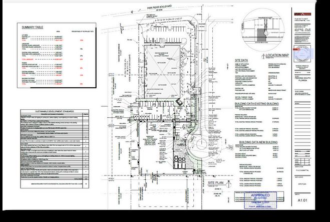
Feeding South Florida
Address: 4925 Park Ridge Boulevard
Building SF: 32,000 SF
SF: 32,000 SF

Use: Industrial
Total Site Area: 94,518.33 SF
Building SF: 32,000 SF
Unique Features: This project is located on the southwest corner of Park Ridge Boulevard and Beta Drive within Quantum Corporate Park. The site consists of two parcels that will be unified through a recorded Unity of Title. The southern parcel, currently vacant, is approved for the development of a new 32,000square-foot warehouse facility that will serve as an expansion of the existing 25,775-square-foot Feeding South Florida warehouse on the northern parcel.
Claren Architecture + Design
Address: 112 S.E. 23 Avenue rd
SF: 2,107 SF
Building SF: 2,107 SF

Building SF: 74,847 SF Building SF: 74,847 SF
Use: Office
Building SF: 2,107 SF
Unique Features: This project depicts façade renovation of an existing building, including the installation of new impact-rated aluminum door and windows; addition of architectural features; construction of a new metal canopy structure; repainting and finishes. No modifications are proposed to the site plan or to the building footprint.

Seacrest Sound Apartments
Address: 1390 N. Seacrest Boulevard
Use: Multi-Family Residential (Live Local Act – 100% Affordable Units)
Total Site Area: 129,255 SF
Building SF: 74,847 SF
Unique Features: The Seacrest Sound Apartments project is a 89-unit, threestory multifamily community developed under the Live Local Act, offering 100% income-restricted housing. The 2.97-acre site includes residential buildings, a public linear park along the canal, 155 parking spaces, and sustainable design elements. It features a landscape buffer, enhanced streetscape, and CPTEDbased lighting and security features.
IN PERMITTING
$1,520,000
Estimated Construction Value
Address: 3047 N Federal Highway
Submittal Date: December 17, 2025
Relocation and construction of the new Josie’s Restaurant Josie’s Restaurant
$130,000,000
Estimated Construction Value
$10,000,000
Estimated Construction Value
Town Square South Parcel Project
Address: 120 S.E. 1 Avenue st
Submittal Date: October 16, 2025
Construction of a new 8-story, mixed-use multifamily building Included are 465 residential units, 6,392 sq ft of commercial space, clubhouse, pool, sports center, fitness center, and multiple other amenities
Seacrest Sounds Apartments
Address: 1390 N. Seacrest Blvd.
Submittal Date: December 9, 2025
Construction of two new 3-story apartment buildings with a combined total of 89 residential units
$1,500,000
Estimated Construction Value
Foundry Warehouse Tenant Buildouts
Address: 3850 S Congress Avenue Suite. 106, Suite. 111, and Suite. 113
Submittal Date: March 23, 2023
Permit Issued: July 16, 2025
Speculative tenant buildouts of three warehouse suites within building 1 of the new Foundry warehouse

$30,000,000
Estimated Construction Value
$3,000,000
Estimated Construction Value
The Dune
Address: 2703 S Federal Highway
Submittal Date: April 30, 2024
Permit Issued: December 12, 2025
Construction of a new 8-story, mixed-use multifamily structure, featuring 298 residential units (including 119 workforce housing units), 2,476 sq ft of commercial space, a parking garage, and various amenities
The Dune Residences
Address: 2607 S. Federal Highway
Submittal Date: April 30, 2024
Permit Issued: December 12, 2025
Construction of 38 new townhome units, of which, 15 will be workforce housing units
$10,265,320
Estimated Construction Value

Foundry Tenant Buildout
Address: 3850 S. Congress Avenue Suite. 101
Submittal Date: September 8, 2025
Permit Issued: December 5, 2025
A 75,848 sq ft tenant buildout to accommodate the manufacturing company Tite-Dri in building 1 of the new Foundry warehouse.
The Inn at Boynton Beach Demo Value
Address: 480 W. Boynton Beach Boulevard
Submittal Date: December 11, 2025
Permit Issued: December 12, 2025
Total demolition of the structure previously known as the Inn at Boynton Beach.
Lawrence Road Beautification
Includes median improvements, installation of landscape, and installation of irrigation
Seacrest Blvd. Streetscape
Includes median installation, pedestrian improvements + new crosswalks, and a proposed roundabout
W. Ocean Ave. Streetlight Improvements
Installation of 50 new streetlights Design complete, construction tentatively to begin in February 2026
S.E. 1 Street st Milling & Resurfacing
Includes milling & resurfacing, drainage, signing and pavement marking improvements


258 BUILDING RECERTIFICATION SUBMISSIONS
7 BUILDING RECERTIFICATION IN PROGRESS
94 NEW BUSINESSES
2,092Total Permits $277,515,516
6,496 Phone Calls
TOTAL PERMIT VALUATION
3 minutes Average Wait Time Customer Service
5,271 Reviews Inspections 9,309 1,462 In-Person Customers 90% Answer Percentage
91% HAPPY INDEX 4 370 49 30 1 7















Each third Friday, our Code Enforcement team rolls up their sleeves to refresh a different spot in the community. Whether it’s collecting litter or clearing debris, we are committed to keeping Boynton Beach beautiful



2,130
Our House of the Month program honors homeowners who make a positive difference across our city. Their hard work encourages everyone to care for their homes and the spaces around them. Winners receive a custom sign for their yard, a $25 restaurant gift card - courtesy of Bailey’s Blendz, and a photo to remember the moment. Thank you for keeping Boynton Beach bright.














