3302
20A Street, Vernon

![]()

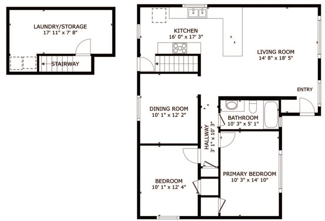
This East Hill charmer is bursting with character and style but loaded with modern upgrades! This home blends vintage charm with today’s comforts. The bright, openconcept main floor is flooded with natural light, and the dining area, once used as a third bedroom, could easily be converted back if a formal dining room isn’t on your wish list. Step out onto the sunny balcony and sip your morning coffee in peace while overlooking the spacious and private backyard.
Two bedrooms and a beautifully tiled 4-piece bath round out the main level. Downstairs, a spacious one-bedroom walkout suite offers its own entrance, large living area, gas range, in-suite laundry, and a cozy natural gas fireplace—ideal for a mortgage helper, extended family or guests.
The single-car garage is currently used as a workshop but can easily be used for a vehicle, and the generous yard sits on two legal lots. The Multi-Unit Small Scale zoning offers exciting potential with additional development flexibility and the bonus of a well kept laneway access. Major system updates include plumbing, electrical, and central air, hot water tank, additional attic insulation, roof and gutters. Located on a peaceful street with space to breathe, this is East Hill living at its best!


Updated electrical and plumbing along with whole exterior in about 2007, blew in R-60 insulation in the attic in 2021.
Hot Water Tank
4 years old Electrical
100 amp
Asphalt shingles replaced in the summer of 2023
Amazing cell reception, Shaw is the current internet provider but Telus fibre optic is available.
Everything is within walking distance
Neighbourhood
Quiet neighbourhood, neighbours are great.

Natural Gas
$115/mo. Hydro $66/mo. Water/Sewer/ $300/quarter Garbage
Insurance $1817/yr. Taxes $3706.43/yr.
Fridge GE
Gas Stove GE
Dishwasher Kitchenaid
Microwave GE
Washer Samsung
Gas Dryer Samsung
SUITE
Fridge Fisher Paykel
Stove Delonghi
Washer Samsung
Dryer Samsung
*All appliances are negotiable

Welcome to this beautifully maintained home nestled in the sought-after East Hill community. Blending timeless heritage charm with modern comforts, this residence offers everything you need for stylish and functional living. Step inside to find an inviting open-concept layout, complete with gleaming hardwood floors and a cozy gas fireplace. Whether you're starting a new chapter or looking for room to grow, this home is ready to welcome your family and help you create lasting memories.
Stainless steel appliances, gas stove, central air conditioning, hardwood/tile flooring



Outside, you’ll find a partially fenced and landscaped yard, ideal for kids and pets to play safely. Mature trees surround the property, providing natural beauty and added privacy. The large deck offers a peaceful spot to enjoy your morning coffee or unwind in the evening.




1 (250) 309-0039
chris@chrisholm.ca chrisholmrealestate.ca
@chrisholmrealtor /chrisholmrealtor /chrisholm

Want to learn more about this property? Check out this listings featured page on our website! https://chrisholmrealestate.info/Features3302-20A
Browse more photos, watch our virtual tour video with Chris, and even take a tour through the home with the 3D tour option.
Want to schedule a viewing?
Give us a call today!

