Newport Village - Appleton DDR

Page 6

DILIGENCE REPORT
LOCATION
Blackshaws Road, South Kingsville, VIC 3015
DUE
March 2023 NEWPORT VILLAGE
38-48

Disclaimer

The information in this document is not investment advice.

The information in this document has been published as an information service. The information contains general information and does not take into account any investor’s particular circumstances and needs. Each investor should consider whether the information is appropriate for his or her particular needs, financial situation and investment objectives.

While the information provided by Blue Wealth Property is believed to be accurate, Blue Wealth Property does not accept responsibility for any inaccuracy or any actions taken upon reliance of the information in this report.

No returns or performance is guaranteed. Any forecasts are dependent on the current market conditions and knowledge available at the time of producing this document.

Important Notices

This information is subject to change without notice. Updated information can be obtained by contacting Blue Wealth Property on (02) 9743 0077 or their authorised Business Partner.

CONTENTS 1.0 Newport Village 2.0 Melbourne 2.1 Population & Demographics 2.2 Economics & Employment 2.3 Infrastructure Spending 2.4 Supply & Demand 01 04 05 07 08 10 10 11 12 13 3.0 Newport 3.1 Population & Demographics 3.2 Economics & Employment 3.3 Infrastructure Spending 3.4 Supply & Demand 14 15 19 4.0 Floorplate 5.0 Renders 6.0 Land Real NEWPORT VILLAGE CONTENTS 03

1.0

NEWPORT VILLAGE

Project Details

• Located 10 kilometres from the Melbourne CBD

• A tight rental market with huge growth potential, offering strong yields and low vacancies

• Experienced local developer who consistently delivers high quality offerings

• An aesthetically appealing and well-designed project

Number of dwellings

36 apartments

Price ranges

1 bedroom, 1 bathroom, 1 car space: from $480,000

1 bedroom, 1 bathroom, 1 study, 1 car space: from $560,000

2 bedroom, 1 bathroom, 1 car space: from $599,000

2 bedroom, 1 bathroom, 1 car space: from $722,500

Size ranges

1 bedroom, 1 bathroom, 1 car space: 52.5-59sqm

1 bedroom, 1 bathroom, 1 study, 1 car space: 57.5-60sqm

2 bedroom, 1 bathroom, 1 car space: 68-78sqm

2 bedroom, 1 bathroom, 1 car space: 77-83sqm

Estimated completion Quarter 4, 2024

Estimated outgoings

Council & Water Rates: $2,800 - $3,300 pa approx

Levies: $3,000 - $4,500 pa approx

Conditions of purchase

Deposit on Exchange: 10% on exchange of contracts

1
1.0 NEWPORT VILLAGE
2 1.0 NEWPORT VILLAGE
Newport Village South Kingsville, VIC

2.0

MELBOURNE

Victoria

In 2022, Melbourne was ranked the tenth most liveable city in the world by The Economist Intelligence Unit. This follows seven consecutive years as number one. This performance can be attributed to world class healthcare, education and infrastructure, along with the city’s cultural diversity, environment and of course Australia’s political stability.

The Melbourne property market has been one of the strongest and most consistent performers over the last four decades. House price growth has ebbed and flowed over the course of the property cycle but the long-term performance has been outstanding with median house prices increasing by 8.9% per annum and apartment prices increasing by 6.7% per annum.

Although the Covid related lockdowns endured by Melbourne have proven challenging, the market has turned the corner with the return of both buyers and sellers. Consumer confidence and auction clearance rates have both improved and this is beginning to be reflected in price with houses increasing by 17.4% in the 12 months to June 2021. Uncertainty around inflation and rising interest rates has since slowed the rate of price increases. Nevertheless, we remain in the early stages of a macro bull run in property on the East Coast.

3
2.0 MELBOURNE
'An average of over 120,000 new residents per year are moving to Melbourne'

2.1

Population & Demographics

The population of Greater Melbourne was 5,150,766 as at 2022. The population growth rate has been near the top of any Australian state or territory with a pre-pandemic growth rate of 1.6%. This translates to an average of 120,000 residents added per year.

The growing population requires an additional 45,000 new dwellings per year. With a growth rate outstripping Sydney over the past decade and it is set to become Australia’s most populous city by 2026.

Assessing the population structure and how this may change in the future is critical to understanding where property demand will come from. The current household size is 2.7 people. However, the fastest growing cohort is lone person households. This suggests that future demand will most likely skew towards medium and high-density property types.

As of June 30th, 2022, lone person households and coupled families

without children make up 49% of Greater Melbourne’s population. By 2031 these household types are expected to increase to 59%.

Rising prices for detached dwellings have strained affordability with a resultant spill over of demand into medium and high density dwellings.

4
2.0 MELBOURNE
'Melbourneisexpected toovertakeSydneyasthe nation'slargestcityin2030, withjustover5.9million peopleinthatyear'

Economics & Employment Growth

Victoriarepresents3%ofAustralia's totallandmass, yetaccountsfor 23.3%ofnationalGDPand competeswiththelargest economiesinSoutheastAsia.It currentlyboaststhehighest contributiontoGDPofanystateor territory.

Victoriaistheleaderinpremium foodandfibreproductsexports accountingfor27%ofAustralia’s foodandfibreexportsin201819.Inaddition,77%ofAustralia’s dairyexports,50%ofAustralia’s horticulturalexportsand32%of Australia’spreparedfoodexports comefromVictoria.

The largest service sector export is the international education sector. In 2018-19, education exports enjoyed 17% year on year growth. Tourism increased by 12% over the same period, indicative of a significant rise in international tourists and students choosing Melbourne as their chosen place to live, study and work.

Victoria is one of two Australian states to receive a triple-A credit rating from Standard & Poors and Moodys – a rating it has managed to retain for 18 years and a reflection of the economic performance that delivered 27 years of continuous economic growth.

One of the structural features of Western economies has been the decline of the manufacturing sector. Melbourne has been able to replace the job losses from this sector with faster growing knowledge-based service sector jobs. This has been a significant theme in the economy since at least the mid 1980’s and one of the success stories of Melbourne with 523,000 new jobs created between November 2014 and March 2020.

5
2.2 Victoria
$454.5 billion
Gross state product
23.3% 2.0 MELBOURNE
Percentage of Australian gross domestic product
'Lone person households are the fastest-growing household type'

Victoriarepresents3%ofAustralia'stotalland mass,yetaccountsfor23.3%ofnationalGDP

6
2.0 MELBOURNE

2.3

InfrastructureSpending

ThemostsignificantinfrastructurespendinginMelbourneisthePlan Melbourne2017-2050strategy Thisisametropolitanplanningstrategyto managethegrowthinthecityoverthenext29years.Itintegratesover112 actionplanstoaccommodateforpopulation,housing,andemploymentneeds.

MajorgrowthcorridorsintheSouthwest(Wyndham-Geelong),North(Hume) andSoutheast(Dandenong)willultimatelybeconnectedasaplannedeconomic triangle.

Majorinvestmentsinclude:

WestGateTunnelProject

Constructionontheprojectbeganin2018andcompletionisanticipatedfor 2025.ItinvolveswideningtheWestGateTunnelenhancingconnectivityfrom thesouth-westofMelbourneintotheCBD Theprojectisexpectedtocreate 6,000jobs.

MetroTunnelRailLink

The$11billionprojectconsistsoftwo9kilometretraintunnels,includingfive undergroundstationsfromSouthKensingtontoSouthYarra.Theconstruction periodwillresultintheemploymentof3,500people.Constructionbeganin 2018andisforecasttobecompletedby2025.Oncompletiontheprojectwill serviceanextra504,000commutersduringpeakhour

SkyRailProject

Thismulti-billiondollarprojectis aimedateasingtrafficcongestion throughoutthewholeofGreater Melbourne.75differingleveltrain crossingsarebeingremovedand liftedovera5-yearconstruction timeframe.Completionisexpectedto befinishedby2029

FishermansBendUrbanRenewal

Thelargesturbanrenewalproject inAustralia,theprecinctislocated 1kilometresouthwestoftheCBD. Over480hectareshasbeenrezoned forresidential,commercial,and retailspacestoexpandthecapital cityzone.Theareahaspotential toaccommodate80,000jobsand 80,000residentsby2050

7
2.0 MELBOURNE

2.4

Supply & Demand

The Melbourne property market can be best described as segmented. The result is, significant variation in property market gauges (supply, vacancy rates, time on market, yields and the like) when a suburb-bysuburb approach is taken.

The strong performance in Melbourne’s housing market and strain on affordability is driving demand for townhomes and apartments. This coupled with strong population growth in Metro Melbourne has seen medium and high-density dwellings tenanted and occupied quickly.

Melbourne had a vacancy rate pre COVID-19 of 2.8% as of April 2020, this spiked to 9.4% during the height of the pandemic in October 2020 but has since fallen back to 1.7%, indicating that Melbourne is undersupplied. With projected population increases exceeding those of other capital cities, Melbourne is challenged with the task of ensuring long term strategies are applied that will allow supply to match demand sustainably. Projections suggest that 1.6 million dwellings are required to keep up with population forecasts to 2031 - this will continue to drive demand.

8
2.0 MELBOURNE
9
3.0 NEWPORT
Newport Village South Kingsville, VIC

NEWPORT 3.0

3.1

Population & Demographics

Newport, which is ten kilometres from Melbourne's central business district, is a part of the Hobsons Bay local government area (LGA). The Australian Bureau of Statistics (ABS) estimates that Hobsons Bay City has 91,322 residents as of 2021 census. Hobsons Bay City's population has been steadily growing for the past ten years. The City's estimated resident population was 83,863 in 2011, and it has increased by an average of 1.6% annually since then, according to the ABS.

The Newport suburb is diverse and growing in Melbourne's inner west. It currently has an estimated population of 13,658 which has increased by 5.7% in the past five years. The latest census data shows that the suburb has a median age of 38 and an average household size of 2.6. According to ABS data, over 28.6% of dwellings within Footscray are rented, highlighting the suitability of rental tenure within the suburb.

Couples without children make up over 32.7 percent of local households, indicating a specific need for apartment supply, particularly in an area where median home prices have performed significantly over the previous five years. The substantial price difference between houses and apartments will primarily drive apartment demand. Currently, median house prices are 69.5 percent higher than median unit prices. Longterm, continued pressure on housing affordability will shift demand from home stock to apartment units.

10
Population 13,658 Median age 38 Average household size 2.7 3.0 NEWPORT

Economics & Employment

Hobsons Bay City's Gross Regional Product is estimated at $6.51 billion, which represents 1.38% of the state's GSP (Gross State Product). The Manufacturing sector is the largest employer with the LGA, generating 7,174 local jobs in 2020/21.

The residents of Newport are overwhelmingly employed in white collared occupations with 54.7% of residents being employed in either a professional or managerial occupation. The size of Newport’s labour force during the census period was 10,678, of which 2,139 were employed part-time and 4,783 were full time workers. Within the workforce, the Hospital industry is

the largest employer accounting for 3.6% of total employment follower by Computer System Design and Related Services (2.9%) and Higher education (2.5%). The diversity of the market’s employment base makes it less susceptible to unemployment risks.

Surrounding regions leverage heavily off numerous hospital facilities. Nearby is Footscray Hospital which is currently under a $1.5 billion dollar redevelopment will treat almost 15,000 more patients and allow almost 20,000 extra people to be seen the emergency department each year.

This non-industry-specific profile is less susceptible to structural economic shifts that have greater bearing on the manufacturing and industrial sectors.

Newport’s average household income is $2,657 per week, which has increased by 22.9% between the past censuses. Furthermore, economics and employment are excellent indicators of prospective tenant profiles and the resale markets. It allows us to gauge the most suitable style of accommodation for local demographics within a property market.

11
3.2 3.0 NEWPORT Gross Regional Product $6.51
Household Income Growth 22.9% Industry Profile White Collar
billion (NEIR 2021)

3.3

The Victorian Government continue to invest in strengthening the state’s infrastructure. Understanding the extent of the population growth that Melbourne is experiencing, it is critical that sufficient infrastructure is in place to accommodate for the demand of future residents. Numerous public and private infrastructure initiatives are being implemented throughout the Melbourne’s west, particularly within the Hobsons Bay City. These initiatives include:

• New Footscray Hospital – The Victorian Government has provided up to $1.5 billion to deliver a new Footscray Hospital – the largest ever health infrastructure investment in the State. With an increase of nearly 200 beds, the new hospital will treat approximately 15,000 additional patients and enable around 20,000 additional people to be seen by the emergency department each year. Construction of the new Footscray Hospital is now underway, with the hospital expected to open in 2025.

• Fishermans Bend Renewal Project – The Fishermans Bend project is a major urban renewal project located in the inner-city suburb of Melbourne. The project aims to transform the area, which was formerly an industrial site, into a vibrant mixed-use community, with a focus on sustainability and innovation. The project is expected to create up to 80,000 new jobs and provide housing for around 80,000 residents

• West Gate Tunnel Project – The $6.7 billion West Gate Tunnel is a ‘game changer’ for the area, connecting Melbourne’s Inner West with the CBD. The project will give Melbourne a second freeway link between the west and the city

12
Infrastructure Spending 3.0 NEWPORT

3.4

Supply & Demand

The evolving demography of Newport has had direct impacts on the local rental market. The professional demographic that dominates the suburb’s landscape has inflated Newport’s tenant pool. According to ABS data, 28.6% of dwellings within Newport are rented.

VacancyRates

AsofJanuary2022,thevacancyrate inNewportwas1.5%,wellbelowthe equilibriumlevelof3%.Importantly, vacancyincreaseisfleetingindication thatdemandreactsquicklytonew supply Thisphenomenonhasthe effectoflimitingrentalmarket volatilitybystabilisingvacancyrates andsmoothingrentalcashflow (propertythatisvacantforlesstime andvacancyisminimiseddueto reactivedemand).

Yields

Impliedgrossrentalyieldsfor apartmentswere3.6%asofFebruary 2023accordingtodataforSQM research.Themedianrentalamount foranapartmentinthesuburbwas $552.

TimeonMarket

Theuptakeofresidentialsupplyin thesuburbhasbeenrobustwithan averagedaysonmarketfigureof45 days.Indicatingthestrongmarket sentimentinNewport

13
3.0 NEWPORT
Vacancy Rates 1.5% Gross Rental Yield 3.6% Estimated time on market 45 days
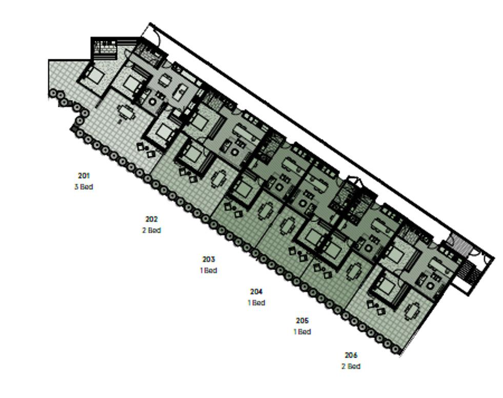
14 4.0 FLOORPLATE N
4.0 FLOORPLATE

RENDERS

15 5.0 RENDERS
5.0 Newport Village Retail Newport Village, VIC
16 5.0 RENDERS Courtyard
Village,
Newport
VIC
Courtyard Newport Village, VIC
17 5.0 RENDERS Living Roo Newport Village, VIC Kitchen
VIC
Newport Village,
18
Bedroom
5.0 RENDERS
Newport Village, VIC Bathroom Newport Village, VIC

LAND REAL

• With over 35 years experience in the industry, Land Real are a Melbourne focused developer specialising in residential and mixed-use property.

• Land Real strive to deliver innovative developments focused around creating quality homes for people with cosmopolitan lifestyle.

• It is this philosophy that has led to a number of Land Real’s projects being awarded the Urban Design Institute of Australia award for design excellence.

• Land Real have developed a diverse range of housing projects including townhouses, houses, boutique low rise apartments through to high rise apartment buildings.

19
6.0 LAND REAL
6.0
20 6.0 LAND REAL Land Real 14 Spring Road, Malvern
Level 2, 8 Australia Avenue, Sydney Olympic Park, NSW 2127 P: +61 (0)2 9743 0077 | E: enquiries@bluewealth.com.au | W: www.bluewealth.com.au

Turn static files into dynamic content formats.

Create a flipbook
Issuu converts static files into: digital portfolios, online yearbooks, online catalogs, digital photo albums and more. Sign up and create your flipbook.