Ashna Chakraborty_work portfolio - architectural assistant part 1

Page 1

Ashna Chakraborty

MANCHES TER SCHOOL OF ARCHITECTURE

Atelier: Continuity in Architecture

Preston Gastronomy Centre

commercial | industrial

DESIGN DEVELOPMENT site analysis & sketching

PERSPECTIVE CITY SKETCH:

The

ATELIER ETHOS:

The atelier urges to establish a direct relationship not just with the surrounding built environment but also with the intangible heritage and culture of the site.

the brief:

‘Preston Guild’; to establish a new craft economy (to learn, research, make & build)

inspiration:

During my initial visits to the site, I discovered bustling markets that offered a delightful lunch experience. Among the diverse stalls, there was always an impressive cheese stall, showcasing a wide array of cheese varieties. Preston, renowned for its locally produced Lancashire Cheese, has a longstanding tradition of cheese production and trade. It proves that craftsmanship goes beyond art and weaving and can encompass intangible skills as well, like the craft of producing fine cheese, a skill inherited and treasured by the city.

programme proposal:

Primary Cheese factory, with wine preservatories, a cheese & wine dining experience, a cheese-making workshop/ teaching room, a vertical indoor farm to produce organic herbs and produce served at the restaurant & bar, food-specific library+ cafe.

STUDIO 3
SERIAL VISION: On-site sketching while walking around the site through to showcase different perspectives and the surrounding context. sketch essentially shows the Marketplace Conservation Area in Preston City Centre, and the presence of multiple graded buildings portraying the rich cultural heritage present around the site. Preston station Fishergate Bapist Church Harris Musuem & Art Gallery St. John’s Minister The Guild Hall Preston Bus Station green- site maroon- graded buildings

site analysis | concept development

SITE RESPONSE:

There was a cotton mill on site which was demolished in the 20th century. Since then, the plot of land has been an unused green open space which so much potential. Due to the possibility of lively, crowded pedestrian traffic, the design needs to adjust around it.

CONNECTIVITY

MAIN ENTRANCES

STATIONARY AREAS

Site map 1 : the map presents the stationary areas in the city including the main entrance points. The site chosen clearly becomes a huge stationary point for pedestrians due to its location.

Site map 2: The map depicts the presence of diversity in the building typologies around the High street mainly. It shows the clear distinction between the thriving High Street and the break in the shops with a high population of derelict buildings. The Site chosen thrives in the centre of various commercial properties and is also just opposite the Bus station.

FOOD & DRINK

RETAIL STORES

DERELICT BUILDINGS

PUBLIC BUILDINGS

Studying the two site maps, the site seems like an ideal location for food & drinks and also form a space for reviving the local tradition of cheesemaking and add communal heritage value to the site.

DESIGN DEVELOPMENT
MANIFESTO
“how to transform an industrial space for productivity, to an artistic space targerting communal engagement”
MASSING MODEL ON SITE: Since the site is the only open green space in the area, the idea was to preserve some of it by the formation of a courtyard initially, then the building mass was manuvered to fit the pedestrian pathway; the building was then broken down into two massings to differentiate the usage of the spaces. Site Map 1 Site Map 2

arch typologies

breaking down the mass: on the basis of privacy, proportion & rhythm.

The building treats different arches as different thresholds, different layers of skin, a disassociative wall with narrower arches and a walking pathway with arches (arcade).

syncopation; glass atrium

The project envisaged, in fact, to “empty” and free the central space of the ground floor, creating a triple- height and a complete transparency between the street and the garden of the central courtyard.The furniture placed inside is minimal and depicts the entrance paths to both buildings.

Syncopation in the atrium;a disturbance or interruption of the regular flow of rhythm; the arches

FACADE 2: ground floor can be window or void parts of the wall are extruded. This shows the distinct phases of liminality: separation, transition and incorporation. The intricating of the arches and the rhythm it follows differentiates it from the other building and also reflects the delicate programme of the building (restaurant) compared to the industrial mass on site.

DETAIL JOINT 01

2mm corten steel steel bracket

tubular steel profile

80x40x 40mm tubular steel profile

titanium screw

LED strip lights

6mm cellular polycarbonate

FACADE DEVELOPMENT
FACADE DEVELOPMENT
Detail joint 01: detailed section through metallic arch-funnel main entrance Detail joint 02: detailed section through metallic arch-funnel detailing the joints between two coten steel plates 3D render of the triple-height glass atrium, with a vertical facade of stone louvers and a corten-steel archfunnel entrance Stone-louvre facade testing; (different dimensions & angles) for lighting & thermal comfort FACADE 1: ground floor can be window or void parts of the wall are extruded.This shows the distinct phases of liminality: separation, transition and incorporation. FACADE 3: the back walls of the building facing the service road and the row of houses on the main street. Since the building width is above 9m, it has to have openable windows on both sides. hence narrow tall windows places at irrregular intervals whenever needed.

detail; double-skin, south-facing facade with outdoor patio

1/ FLOOR BUILD-UP

ghulam timber joists

timber beams

12mm interior plywood cladding

timber floor planks

moisture barrier layer

vapour control layer

sheepwool acoustic insulation

Level 2 @ 7m

celing height @ 6.5m

plan @ 1:20 on A2

section @ 1:20 on A2

2/ WALL BUILD-UP

stone cladding

damp-proof menbarne

thermal insulation

vapour control layer

sheating board

160mm timber columns 500c/c

Level 1 @ 3.5m

celing height @ 3m

3/ FOUNDATION

concrete foundation

250mm sand-binded hardcore

damp proof membrane with DPC

ghulam timber joists

timber beams

12mm interior plywood cladding

timber floor planks

vapour control layer

sheepwool acoustic insulation

Level 0

elevation @ 1:20 on A2 THE ENVELOPE

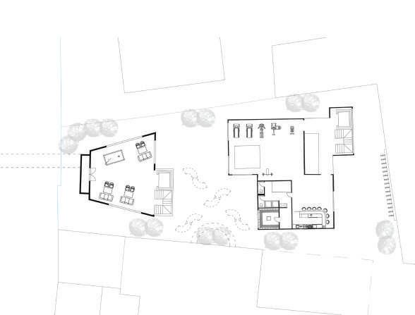
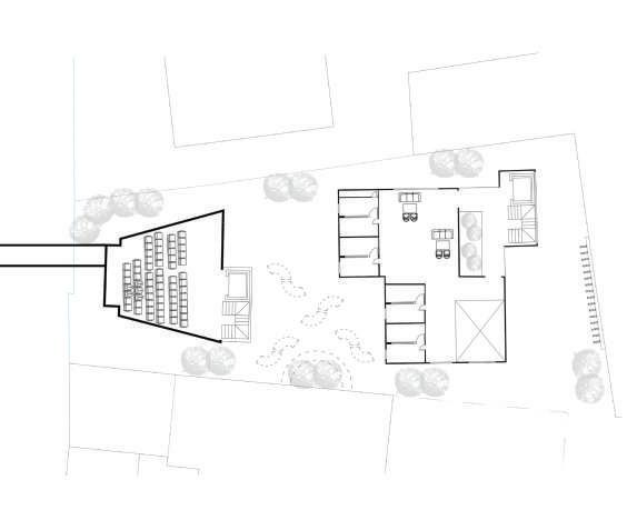
plan | south-east section

first floor plan

second floor plan

ground floor plan

1/ indoor vertical farm

2/ wine cellar + gift shop

3/ toilets

4/ multipurpose auditorium

5/ cheese-making workshop

6/ reception

7/ restaurant

8/ marketplace courtyard

south-east section

DIAGRAMS
1:200 @ A2
GENERAL ARRANGEMENT
scale

GENERAL ARRANGEMENT DIAGRAMS

elevation

south-east elevation

south-east elevation

north-west elevation

scale 1:200 @ A2

STUDIO 2.2

PADhouse; for performing artists

community housing | residential

the brief:

To design an affordable and stimulating housing scheme for performing artists adversely affected by COVID-19. It should fit their accommodation units and spaces for their daily routines, like recording studios and rehearsal spaces. The site needed to accommodate 8-16 living units with different typologies of units available. The scheme should also have a public-facing element to integrate itself within Ancoats’s multi-faceted community.

SITE RESPONSE:

The site was initially a car park, with limited accesibility via Pollard street. It sits next to Hope mill theatre in Ancoats.

SWOT Analysis:

S trengths

1. prsence of Green open area, which can also act as a performance space for the housing artists.

2. views of the Canal.

W eaknesses

1. enclosed by buildings from three sides

2. irregular shape of the plot

3. limited accessibility into the site

O pportunities T

1. engaging site with public: form high accessibility path across canal into the site

2. materiality: connect Old brick industrial Ancoats to modern Ancoats

hreats

1. constructability: hard, preferably construct using modularity

2. building needs to be taller than 6m to be seen

key creative drivers:

1/ privacy: grid pattern of surrounding buildings & street lines to decide orientation of the new scheme

2/ connectivity to site

3/ incorporating views of the canal

DESIGN DEVELOPMENT site strategy | initial concept development
site map 1: SIte Perspective Sketch: gray area- site, looking over the Ashton Canal, and a big green space just opposite site. site map 2: brick: old Ancoasts vs concrete: modern Ancoats site map 3: environmental analysis: sunpath & shading

GENERAL ARRANGEMENT DIAGRAMS

ground floor plan

bar & reception

first floor plan

communal area & gym

second floor plan

open theatre & recording studios

third floor plan

3 bedroom apartments

fourth floor plan

2 bedroom apartments

fifth & sixth floor plan

1 bedroom & studio units

scale 1:200 @ A2
plan

section | elevation

south-west long section

south-east elevation

south-west elevation

scale 1:200 @ A2
GENERAL ARRANGEMENT DIAGRAMS

SPATIAL QUALITIES vigenttes

open- amphitheatre 3D render exterior ground floor bar landscaping recording studio 3BHK: typical housing unit

STUDIO 2.1

Nourishing the Community

| commercial

site strategy | initial concept development

key creative drivers:

1/ street grid pattern

2/ vernacular architecture: glass stained windows

3/ sustainability | materaility: bamboo food stalls

site map 4: massing model inspiration: street grid pattern

site map 3: environmental analysis: sunpath showing shaded area on site noise levels around site: due to metro and train lines

the brief:

To design a Culinary school with a Food Hall and a marketplace with a provision for making and selling the produce. The cooking school scheme should have four spaces for 10-12 people and the other necessary apparatus and spaces required. The Food Hall should have seating for up to 50 people.

site map 2: highlighting the car parks available nearby, usual car traffic route and dotted pedestrian pathway

site map 1: darker- site figure ground map

educational
DESIGN DEVELOPMENT

plan | south-east section

south-east long section

GENERAL ARRANGEMENT DIAGRAMS scale 1:200 @ A2
ground floor plan first floor plan second floor plan

GENERAL ARRANGEMENT DIAGRAMS

elevation

south-east elevation

north-west elevation

scale 1:200 @ A2
Thank you Ashna Chakraborty ashna.c02@gmail.com +44 7555189012

Turn static files into dynamic content formats.

Create a flipbook
Issuu converts static files into: digital portfolios, online yearbooks, online catalogs, digital photo albums and more. Sign up and create your flipbook.