De gezouten energie - Een decentrale energieopwekker zonder taboes

Page 1

G

D ZOUTEN

een decentrale energieopwekker zonder taboes

I

E N E R G E

Jorrit van der Weide

Augustus 2023

ArtEZ Academie van Bouwkunst

Colofoon Studie

ArtEZ

Academie van Bouwkunst

Master Architectuur

Student

Jorrit van der Weide

Mentor

Manfred Wansink

Venhoeven CS

Begeleiding

Annamariken Hilbrink

Ralph Brodruck

Wouter Hilhorst

Afstudeer beoordelaar

Gerd-Jan Oud

Datum

14-08-2023

Afstudeerdatum

13-09-2023

Trefwoorden

architectuur, energie, energietransititie, gesmolten zout, fossiele energie, kernenergie, koolstofdioxide, landschap, menselijke maat, park, paviljoen, post-fossiel, perspectiefmanipulatie, Rotterdam, stad, stedelijk weefsel, taboe, thorium, uitstoot, uranium, verdichtingsopgave, waterstof

© copyright 2023 Jorrit van der Weide Niets uit dit verslag mag worden gereproduceerd of op eniger wijze worden vermenigvuldigd en/of verspreid zonder voorafgaande schriftelijke toestemming van de auteur. No part of this book may be reproduced in any way whatsover without written permission of the writer

Maquette, radiator als gebouw, gebouw als radiator.

Voorwoord

Dit is mijn afstudeeronderzoek aan de Academie van Bouwkunst ArtEZ te Arnhem. Als onderdeel van mijn masterstudie wordt een door mijzelf geformuleerd afstudeervoorstel, welke een oplossing probeert te formuleren voor een maatschappelijk gedragen probleem. Dit verslag vormt de tekstuele toelichten en onderbouwing van mijn afstudeeronderzoek en het ontwerpvoorstel dat hieruit voortvloeide.

Dit verslag is bedoeld voor geïnteresseerde die meer te weten willen komen over mijn afstudeeronderwerp en de beweegredenen van mijn afstudeerproject. De opbouw van het gehele verslag is dan ook chronologisch en probeert een zo veelzijdig mogelijk beeld te geven van mijn afstuderen. Het is geen volledige weerspiegeling maar richt zich op sleutelmomenten in het proces van mijn afstuderen.

Deze scriptie en daarmee mijn afstuderen markeren het einde van mijn periode als architectuurstudent aan de Academie van Bouwkunst. Een tijd waarin ik mijzelf als bouwkundige heb mogen ontwikkelen tot Architect. Nu mag ik mijzelf in de praktijk verder ontwikkelen als Architect.

Hierbij wil ik alle mensen bedanken die mij direct en indirect hebben geholpen bij mijn afstudeerproject.

Om een aantal personen uit te lichten. Als eerste mijn vrouw. Die vijf jaar geleden samen met mij het Academie avontuur is aangegaan. Zij is mij blijven ondersteunen en motiveren gedurende deze hele periode.

Mijn dank gaat ook uit naar mijn mentor: Manfred Wansink (Venhoeven CS), hij heeft mij begeleid in het volledige afstudeertraject. Waarbij hij vanuit zijn ervaring en kritische houding mijn afstuderen de juiste richting heeft weten te geven.

Gerrit, Fadia, Veerle en Wouter, mijn mede studiegenoten wil ik graag bedanken voor de vele sparsessie en scherpe gesprekken welke mijn afstuderen iedere keer weer een stukje verder brachten.

Tenslotte wil ik de begeleiding vanuit de ArtEZ bedanken: Annemariken Hilberink, Ralph Brodruk en Wouter Hilhorst. Gerard van Heel voor alle randzaken die kwamen kijken bij de afstudeerperiode.

Dank jullie wel allemaal voor de hulp, feedback en ondersteuning!

De wereld om ons heen is in een rap tempo aan het veranderen. Wij zijn met steeds meer mensen op de aarde, verbruiken en gebruiken steeds meer en wonen dichter op elkaar dan ooit. Met het vooruitzicht dat tegen 2050 twee derde van de wereldbevolking in een stad woont, zal de stad een belangrijkere rol innemen binnen de samenleving.

Mede door onze huidige manier van leven warmt de aarde langzaam op als gevolg van de uitstoot van verschillende broeikasgassen. De energiebehoefte zal met meer mensen op onze planeet in alle waarschijnlijkheid blijven toenemen, zelfs als alle apparaten, installaties en manieren van verwarmen en koelen efficiënter worden.

Om dit enigszins te compenseren bouwen wij zon- windmolenparken midden in het landschap, zolang het maar uit de buurt van de bebouwde kom blijft want anders leidt dit tot weerstand van de lokale opinie. Dit lost maar een deel van het probleem op en tasten wij hiermee het toch al beperkte landschap buiten de verstedelijking verder aan. Bijkomend nadeel zijn de daarbij behorende lek-, opwekkings-, transport-, conversie- en systeemverliezen als gevolg van de afstand tot de gebruikers. De ruimtelijke impact van fossiele naar een post fossiele samenleving is enorm. Effectief wordt er slechts 5,3 procent van de totale energie behoefte daadwerkelijk CO2 vrij opgewekt. Geen wind of zon betekend geen elektriciteit.

Samenvatting

Om grip te krijgen op de schaal, maat en de processen in energiecentrales zijn vormen van energieopwekking met elkaar vergeleken. Hieruit bleek dat alle energieopwekking via een lineair proces plaatsvindt. Maar ook dat de huidige duurzame bronnen vanwege hun beperkte opwekking per vierkante meter geen optie zijn voor opwekking in de stad. Het moet een energiebron zijn die een hoge energiedichtheid heeft, zodat hij minimale impact heeft op de beperkte ruimte in de stad.

De wereld is bekend met kernreactoren en de daarbij behorende gevaren. In het verleden zijn er ook andere kernreactoren ontworpen, zo ook de gesmolten zoutreactor. Waarbij de splijtbare stof, opgelost is in een zoutoplossing. Wat begon met de ontwerpvraag naar een compacte reactor die een vliegtuig kon aandrijven werd uiteindelijk de gesmolten zoutreactor. De bezwaren van een klassieke kerncentrale zijn bij deze reactor niet van meer toepassing. Een meltdown is onmogelijk en het afval is een duizendste van wat een normale kernreactor produceert.

Doormiddel van het combineren van verschillende geografische informatielagen wordt onderbouwd hoe de locatie voor de energiecentrale gekozen is. Vanuit deze methode blijkt de plek Smeetsland in Lombardijen Rotterdam zuid een geschikte plek. Met name vanwege de nabijheid van verschillende energiestromen als ook dat het op dit moment een braakliggend terrein is en er dus niets gesaneerd wordt.

Het ontwerp is een compacte energiecentrale die voorziet in elektriciteit, warmte en mobiliteit voor de stad. In tegenstelling tot klassieke energieopwekking is deze energiecentrale toegankelijk voor iedereen. De energiecentrale is gelegen in een nieuw park. De route naar de centrale maakt samen met de gevel dat er op ontdekkingstocht wordt gegaan. De gevel is afhankelijk van de benadering open of gesloten. Tijdens een wandeling door het park, kan de gevel net zoals bij een schutting een glimp laten zien van wat er achter de gevel schuil gaat. Eenmaal bij de entree van de energiecentrale aangekomen begint de wandeling om op menselijke schaal met de energieopwekking te komen.

7

Dit verslag is een weergave van mijn afstudeertraject dat is gestart in september 2021, de werkelijke start van de opgave die ik hier heb geformuleerd ligt veel verder terug. Namelijk mijn middelbare schooltijd: Hier kreeg ik tijdens schei- en natuurkunde les van twee docenten, die grote kansen zagen voor een voor mij onbekende en nieuwe energievorm, vrij van CO2 en compact van formaat. De eerste zaadjes die geplant werden voor mijn uiteindelijke afstudeeropgave.

Gekoppeld aan deze enigszins technische fascinatie zit de ruimtelijke impact van onze huidige energieopwekking en de weerslag hiervan op het landschap. Maar ook hoe wij als mens ons kunnen verhouden tot deze energieopwekking. Dit onderzoek is naast de maatschappelijke impact van onze energieopwekking ook een reactie op de façade architectuur die op dit moment komt kijken bij onze energieopwekking. Over de ruimtelijke impact aan de binnen- en buitenzijde werd tot nu toe nooit nagedacht, dit terwijl hier een enorme kans ligt. Bij de bouw van iedere vorm van energieopwekking zijn altijd vooren tegenstanders. Echter de aangedragen oplossingen om de weerstand weg te nemen zijn veelal van technische aard, bijna nooit van ruimtelijke of ontwerpende aard.

Inleiding

De titel van dit onderzoek lijkt op het eerste gezicht foutief geschreven, echter dekt het de lading van het probleem en het onderwerp. Veel mensen zijn vrij uitgesproken over de gekozen energievorm en hebben hier een ‘ongezouten’ mening over. De hier gekozen energievorm leunt op een zoutemulsie. Deze twee woorden samen komen terug in de titel als ‘gezouten’. Verdere uitweiding over de gekozen energievorm en overige zaken worden in dit onderzoek toegelicht.

De maatschappelijke weerstand tegen de gekozen energievorm speelt al sinds de introductie van de energievorm in de jaren zestig van de vorige eeuw. Daarbij hebben de drie incidentie: Three-Mile-Island, Harrisburg in Amerika (1979), Tsjernobyl in Oekraïne (1986) en Fukushima, Japan (2011)2 niet bijgedragen aan het positieve karakter die rond deze energievorm hangt. Zeker gezien het feit dat de eerste twee ontstaan zijn door menselijke fouten. In dit onderzoek zal door begrip te creëren voor de gekozen alternatieve vorm van kernenergie getracht worden de sociale emotionele maatschappelijk weerstand te verlagen en misschien bij sommige mensen zelfs weg te nemen. Een energiecentrale letterlijk in de achtertuin is namelijk niet iets waar iemand lichtvoetig over kan denken, los van welke energievorm er gebruikt wordt.

De originele onderzoeksvraag van het afstudeervoorstel was: Hoe kan een energiecentrale bijdragen aan het stedelijk metabolisme van het stadsdeel Feyenoord city in Rotterdam. De gestelde onderzoeksvraag is de gehele afstudeerperiode aan verandering onderhevig geweest. De uiteindelijk onderzoeksvraag luidt als volgt:

Hoe kan er gezamenlijk met de verdichtingsopgave worden nagedacht over de inpassing van een energiecentrale in de stad?

Het onderzoek zal in de eerste hoofdstukken ingaan op de complexiteit van ons energienetwerk en de post-fossiele samenleving. Een vergelijking tussen verschillende energievormen en de relevantie voor de ontwerpdiscipline. Ook zal de maatschappelijke weerstand belicht worden. Hierna volgt een onderbouwing voor de keuze van de stad en wordt uitgelegd welke methode is gebruikt om een geschikte locatie in de stad te vinden. Het ontwerp wordt van groot naar klein toegelicht. Waarbij ook paralellen worden getrokken tussen ontwerpuitgangspunten en tweetal referentieprojecten. Op het laatst wordt de toekomstwaarde en de relevantie van mijn afstudeeropgave toegelicht. Er wordt afgesloten met een persoonlijke reflectie op mijn gehele afstudeertraject.

Bronnen:

1. United Nations, department of economic and social affairs, Population division 2019

2. Wikipedia-bijdragers. (2022). Kernramp. Wikipedia. https://nl.wikipedia.org/wiki/Kernramp

8

Inhoudsopgave

Samenvatting

Inleiding

- Vooronderzoek -

Onze verantwoordelijkheid

De relevantie

De post fossiele samenleving

Energie, ruimte en de stad

Analyse energiecentrales

Vergelijking energievormen

Energie: Een lineair proces

Vergelijking met duurzame bronnen

De nieuwe ’oude’ energie

Proefreactor op het KEMA terrein

Hernieuwde blik

- De locatie -

Waarom en waar?

Rotterdam

Grid analyse Rotterdam zuid

Ontwikkeling Rotterdam zuid

Smeetsland

31

32

34

36

38

- Toelichting op het ontwerp -

Benodigde functies

Hoe functioneert de energiecentrale

De Geslotenheid

Het onzichtbare zichtbaar

Het concept

De organisatie

De stempels

De vorm van het paviljoen

De bron

Paviljoen gelegen in het park

Situatie tekening

Wat maakt een park?

Route als zoektocht

Een wandeling door het park

Doorsnede en gevelaanzicht

Referentieprojecten

De gevel

Materiaalkeuzes

Plattegronden en doorsneden

Eerste verdieping

De energiecentrale

Overzicht functies

De warmtecentrale

De waterstofcentrale

- ConclusiesConclusie

Reflectie

- Bijlagen -

Afbeeldinglijst

Bijlages

bijlage 1 Voorstel afstuderen

bijlage 2 Ondersteunende onderzoeken

bijlage 3 Reactieschema

gesmolten zoutreactor

9
p. 10 p. 12 p. 14 p. 16 p. 18 p. 20 p.
p. 22 p.
p.
p.
p.
p.
p.
p.
p.
21
24
26
28
p. 44 p. 45 p. 46 p. 48 p. 50 p. 52 p. 53 p. 54 p. 56 p. 57 p. 58 p. 60 p. 61 p. 62 p. 66 p. 68 p. 72 p. 76 p. 78 p. 79 p. 82 p. 83 p. 84 p. 86
Literatuurlijst
p.
p.
p.
p.
90
92
94
95 p. 97

Onze verantwoordelijkheid

De wereld om ons heen is in een rap tempo aan het veranderen. Wij zijn met steeds meer mensen op de aarde, verbruiken en gebruiken steeds meer en wonen dichter op elkaar dan ooit. Met het vooruitzicht dat tegen 2050 twee derde van de wereldbevolking in een stad woont 1, zal de stad een steeds belangrijkere rol innemen binnen de samenleving. Mede door onze huidige manier van leven warmt de aarde langzaam op als gevolg van de uitstoot van verschillende broeikasgassen 2. Hiervan is 80% CO2 waarvan vier vijfde wordt veroorzaakt door onze energie en warmte behoefte 3. Deze energiebehoefte zal met meer mensen op onze planeet dan ook in alle waarschijnlijkheid blijven stijgen, zelfs als alle apparaten, installaties en manieren van verwarmen en koelen efficiënter worden. Er is nog een ander probleem in Nederland, op dit moment zitten grote delen van het elektriciteitsnetwerk vol 4. Bijkomend is het hoog tijd dat Nederland zich gaat inzetten om de gestelde klimaatdoelen van Parijs (2015) te gaan halen. Hier is meer voor nodig dan nu gebeurd.

Om de CO2 uitstoot terug te dringen en verdere opwarming van de Aarde te voorkomen, wordt er in Nederland vol ingezet op CO2 vrije herwinbare energiebronnen zoals zon en wind. Deze bronnen hebben nadelen. Zij vragen veel van onze ruimte en als er geen zon of wind is, is er geen energie. Hieruit kan geconcludeerd worden, dat er naast de zon en wind nog een CO2 vrije energiebron noodzakelijk is, zonder de afhankelijkheid van het weer en de ruimte eis. Maar die wel bijdraagt aan het behalen van de klimaatdoelen.

Wij zijn allemaal bekend met deze CO2 vrije energievorm, maar deze verkeert helaas voor veel mensen in een taboehoek, een gesprek met de voor- en tegenstanders gaat dan ook heel vaak over het gevoel dat zij er bij hebben dan de werkelijke feiten en mogelijkheden 5. Moet deze energievorm, dan wel in een ‘nieuw’ jasje, geen tweede kans krijgen?

10
Speeltuin naast de gemeentelijke gasfabriek in Tilburg, Regionaal archief Tilburg, fotograaf: Schmidlin 1952

Hoe kan er gezamenlijk met de verdichtingsopgave van onze steden worden nagedacht over de inpassing van een energiecentrale in de stad? Waarbij wordt geprobeerd om de energie- en warmtevraag van de stad ook daadwerkelijk op te lossen binnen de grenzen van de stad. Waarmee de pijn uit het landschap gehaald kan worden. Wat zijn de ruimtelijke consequenties van het bouwen van een CO2 vrije energiecentrale in de stad, welke (neven)functie(s) kunnen gekoppeld worden aan deze energiecentrale? Kan de energievraag en de ruimte die nog beschikbaar is in de stad zorgen voor een versterkende werking? Kan de centrale bijdrage aan de geldende systemen in de stad? Op welke manier kan de energiecentrale bijdragen aan het stedelijk metabolisme, waardoor het gehele systeem beter wordt.

De hier links getoonde foto laat de gasfabriek in Tilburg zien met een speeltuin er pal naast. De energie voorziening en de bewoners van de stad komen hier met elkaar in aanraking. In dit geval was de energievoorziening nog een zichtbaar onderdeel van de stad, waarbij de afstand tot de gebruikers klein was.

In de opgave wordt onderzocht waar de mogelijkheden liggen binnen de grenzen van de stad, de regelgeving rondom de menselijke afstand ten opzichte van de energieopwekking wordt buiten beschouwing gelaten. Deze energievorm kan met aanpassing van de huidige regelgevingen namelijk eenvoudig en veilig geïmplementeerd worden binnen de grenzen van een stad.

Onze huidige energievormen lijken niet te nauwelijks ontworpen met de mens als gebruiker in gedachte. Er wordt nog nagedacht over welke kleur de gevel krijgt, maar het zijn hoofdzakelijk steriele anonieme onmenselijke objecten in de ruimte, waar wij ons niet of nauwelijks toe kunnen verhouden. Dit terwijl zij wel degelijk een impact hebben op de plekken waar zij gebouwd zijn. Ons huidige leven kan zelfs niet zonder de installaties in deze objecten. Hier ligt dus een ruimtelijk opgave, voor zowel de buiten als binnenzijde.

Uitstoot wereldwijd verontreinigende stoffen 2017

Broeikasgasuitstoot in de EU per sector in 2019

Uitstoot wereldwijd verontreinigende stoffen 2017, UNFCCC Data Inferface, 2017

Broeikasgasuitstoot in de EU per sector 2019, Europees Milieuagentschap (EEA), Eurostat, 2019

Bronnen:

1. United Nations, department of economic and social affairs, Population division 2019

2. IPCC 2021: Climate Change 2021: The Physical Science Basis. Contribution of Working Group I to the Sixth Assessment Report of the Intergovernmental Panel on Climate Change, Masson-Delmotte et al, Cambridge University Press, In Press, 2021-08-07

3. Europees Milieuagentschap EEA, Eurostat

4. Extra update capaciteit elektrictiteitsnet, Liander, 17-11-2022

5. ‘Kernenergie-debat gaat óók over emoties’, Paul Luttikhuis, NRC 2021-05-10

11

De relevantie

De meeste energiecentrales zijn gebouwd op plekken waar weinig mensen komen, veelal op industrieterreinen of ergens midden in een landschap langs een rivier, eigenlijk vergelijkbaar met de windmolens en zonneparken. Al deze vormen van energieopwekking hebben hun negatieve weerslag op het landschap. Doordat de energievormen ver van de eindgebruiker afstaan. Staat de gebruiker net zoals bijvoorbeeld de landbouw, ver van de bron. Zij hebben geen idee hoe en waar het vandaan komt. Het helpt ook niet mee dat het meestal geen gebouwen zijn die tot de verbeelding spreken of over een duidelijke typologie beschikken.

Boeren die zonnepanelen op hun stal leggen maar niet mogen aansluiten op het net. Het plaatsen van laadpalen voor elektrische auto’s wordt uitgesteld. Nieuwe supermarkten krijgen een dieselaggregaat op de parkeerplaats, gewoonweg omdat er geen capaciteit meer is op het elektriciteitsnet voor nieuwe vraag of aanbod.

De gehele energietransitie is tot nu toe bijna altijd als een technisch vraagstuk benaderd.

‘‘Bij de concrete inrichtingsopgave verkeren de technici vaak in de veronderstelling dat ruimtelijke ordening slechts het juridische traject is waar ‘ze nog even door moeten’ en is het idee dat het ook een ontwerpopgave betreft ver weg.’’ 1

Dit terwijl deze transitie grote ruimtelijke implicaties heeft voor ons allemaal. De zonneen windmolenparken die al gebouwd zijn op land en zee, zijn niet te missen en bepalen inmiddels al heel duidelijk onze horizon. Dus naast de ruimtelijke gevolgen worden de maatschappelijke gevolgen steeds duidelijker. Met name de ‘niet in mijn achtertuin’ is een vaak gehoord argument. Men wil wel dat de energie duurzamer wordt opgewekt, maar beseft niet dat de huidige vormen iets van onze ruimtelijk omgeving vragen. Daarom ligt hier een enorme kans voor ons als ontwerpers. Om de energietransitie opgave op te pakken voordat de technici hier mee aan de slag gaan, om zo de

12
Turbine gebouw, Paks nuclear power plant, Hongarije, Ryan Smith 2018

ruimtelijke impact te kunnen sturen en daarmee te beperken.

Waarom wordt er niet geprobeerd om de energie- en warmtevraag van de stad ook daadwerkelijk op te lossen binnen grenzen van de stad? Waarmee de pijn uit het landschap gehaald kan worden. Wat zijn de ruimtelijke consequenties van het bouwen van een CO2 vrije energiecentrale in de stad, welke (neven) functie(s) kunnen gekoppeld worden aan deze energiecentrale? Kan de energievraag en de ruimte die nog beschikbaar is in de stad zorgen voor een versterkende werking? Kan de centrale bijdrage aan de geldende systemen in de stad? Op welke manier kan de energiecentrale bijdragen aan het stedelijk metabolisme, waardoor het gehele systeem beter wordt.

Daarnaast ligt er nog een uitdaging tussen de schaal van de mens en de schaal die komt kijken bij onze energieopwekking. Op dit moment is lastig om in te schatten hoe groot bepaalde installaties zijn. Wat is bijvoorbeeld de diameter

van de buizen die in het gele volume op de afbeelding hier links verdwijnen. Wat is er eigenlijk te zien op deze foto?

Kan door een duidelijke typologische signatuur de bewustwording van de omgeving en zijn gebruiker worden versterkt? Kan er door het plaatsen van een energiecentrale in de stad de publiekelijke afstandelijkheid ten opzichte van de energieopwekking worden verkleind. Dat er straks net zoals vroeger de kinderen in de nabijheid van de gasfabriek speelde zij straks rondom de nieuwe energievoorziening kunnen spelen. Op deze manier kan de energiecentrale onderdeel worden van het stedelijk weefsel. De stedeling wordt zo bewust van het gehele systeem dat nodig is voor de huidige en toekomstige manier van leven. Zij leren op deze manier op een menselijke schaal naar de energieopwekking kijken waarmee er begrip kan ontstaan voor het gehele systeem. Maar misschien nog wel belangrijker: Bewustwording van de opwarming van de aarde door ons toedoen.

13
Bronnen: 1. Nationaal perspectief Energie en ruimte, Dirk Sijmons et al, 2017 Energievormen, Julian Stratenschulte/dpa

De post fossiele samenleving

Het grootste deel van het huidige energielandschap wordt gedomineerd door fossiele fossielen, zoals kolen- en gascentrales. Deze fabrieken voorzien voor drie kwart in onze energie- en warmtevoorziening. Dit landschap zal de komende jaren gaan veranderen als gevolg van de gemaakte klimaatafspraken om zo CO2 uitstoot terug te dringen. De eerste veranderingen hiervan beginnen inmiddels zichtbaar te worden, zoals de grootschalige zonne- en windmolenparken. Deze nieuwe elementen domineren nu in bepaalde streken van Nederland al de horizon en het landschap. Op dit moment voorzien alle duurzame en herwinbare bronnen pas in 8,7 procent van onze totale energievraag1, 61 procent is hiervan met biomassa opgewekt, deze bron is verre van CO2 vrij. Deze vorm van energie maakt namelijk gebruik van houtsnippers en hier ontstaat bij verbranding wel degelijk CO2. Effectief wordt slechts 5,3 procent van onze totale energie behoefte daadwerkelijk CO2 vrij opgewekt.

De huidige duurzame energievormen in Nederland zijn: Zon, wind en in mindere mate geothermie2. Hebben samen een groot nadeel. Wanneer er geen wind of zon is, kan er geen energie worden opgewekt. Hierop is erg lastig te reageren door het energienet. Daarnaast moet voor levering van energie er ook vraag naar zijn. Het gehele systeem moet in balans zijn. Als overdag veel zon en wind verwacht wordt, wordt hierop geanticipeerd: kolen- en gascentrales produceren op dat moment minder energie. Echter in de avond neemt de wind af en gaat de zon onder, dan nemen de kolen- en gascentrales langzaamaan de energie productie weer volledig over. In de avond en ochtend is het moment dat de vraag naar energie en warmte het grootst is. Iedereen komt thuis, gaat eten maken en laat het huis verwarmen, doet de lampen aan en stapt bijvoorbeeld onder de douch. Kortom, op dit moment kunnen wij nog niet zonder de fossiele energievormen.

14
Hemweg centrale Amsterdam, John Gundlach/ANP

Met de bouw van de verschillende zonneen windmolenparken wordt de pijn van de overgang van fossiel naar post-fossiel steeds meer zicht- en voelbaarder in het landschap. In bepaalde regio’s van Nederland zal deze manier van energie opwekking gaan voldoen aan de vraag. Echter de plekken waar gezien de prognoses steeds meer mensen gaan wonen, zijn deze bronnen verre van zelfvoorzienend. Los van een aantal oude energiecentrales, zoals bijvoorbeeld de hier onder afgebeelde HEMweg centrale in Amsterdam liggen de meeste energie voorzieningen ver buiten de grenzen van een stad. Betekent dit dat in de toekomst, het energieprobleem van de stad de pijn van het omringend landschap gaat worden? Hoe kan straks, in een post fossiele samenleving de energie- en warmtevraag van de stad op een goede CO2 vrije manier worden opgewekt zonder dat het landschap hier de dupe van wordt?

Voor iedere kWh aan gebruikte elektriciteit moet als gevolg van lek-, opwekkings-, transport-, conversie- en systeemverliezen 3-8 kWh aan elektriciteit geproduceerd worden 3. Een groot deel van deze verliezen zit hem in de omzetting en transport van de energie bron naar de gebruiker. Door de afstand tot de eindgebruiker te verkleinen, zijn er automatisch minder omzettingen nodig. Hierdoor kan het gehele systeem dus efficiënter functioneren en is er dus minder opwekking nodig. Wat weer resulteert in kleinere centrales.

Biomassa 5

Biomassa wordt in dit onderzoek niet meegenomen omdat uit onderzoeken blijkt dat de uitstoot van biomassa centrales vergelijkbaar en soms zelfs hoger is dan die van kolencentrales. Een biomassa centrale kan wel bestempeld worden als een herwinbare energie, maar niet één die vrij van uitstoot is.

Elektriciteitsproductie per bron

Elektriciteitsproductie per bron, Centraal bureau voor statistiek maart 2022

Cijfers: Duurzaam opgewekt energie in Nederland, Centraal bureau voor statistiek, 2019

Gemiddeld wordt er per kWh opgewekte elektriciteit in Nederland 0,457 kg CO2 uitgestoten 4. Frankrijk stoot per kWh maar 0,047 kg CO2 uit. Dit verschil is eenvoudig te verklaren: Kernenergie. Deze energievorm stoot namelijk los van de bouw van de energiecentrale geen CO2 uit tijdens de opwekking van elektriciteit. Kortom, als de afstand van gebruik tot bron kan worden beperkt heeft dit een positief effect op de uitstoot, maar ook op de daadwerkelijk op te wekken energie, aangezien hiermee lek-, opwekkings-, transport-, conversie- en systeemverliezen aanzienlijk kunnen worden beperkt. Gevolg is dat de centrales compacter kunnen worden.

Bronnen:

1. Hernieuwbare energie in Nederland, Centraal bureau voor de statistiek, 2020

2. United Nations. (z.d.). What is renewable energy? | United Nations. https://www.un.org/en/ climatechange/ what-is-renewable-energy

3. Nationaal perspectief Energie en ruimte, Dirk Sijmons et al, 2017

4. 2019 Grid Electricity Emissions Factors v1.0 –June 2019

5. JRC Science for policy report, 2021, The use of woody biomassa for energy production in the EU, Gamia A, et al, European Commission

15
‘Duurzaam’ opgewekte energie in Nederland in 2019

Netschema Transportnet 22NLT02 door HoogspanningsNet

Energie, ruimte en de stad

De vrije ruimte in onze huidige steden is vrij beperkt en zal in de toekomst dan ook alleen maar afnemen door verdere verdichting van het stedelijk weefsel met de toename van inwoners van de stad. Dit betekent dat parken en pleinen voor de stad van nog grotere waarde worden.

Naast dat de ruimte boven de grond in de stad beperkt is, is ditzelfde geval onder de grond. Dit als gevolg van huidige en nieuwe ontwikkelingen. Denk aan extra waterbuffering en infiltratie als gevolg van klimaatadaptie, maar ook bovengrondse functies die naar de ondergrond verdwijnen zoals afvalinzameling en bijvoorbeeld fietsenstallingen. Door de energietransitie moeten bestaande elektriciteitskabels verzwaard worden, wat leidt tot meer en dikkere kabels. Gevolg van dit alles is dat de ondergrond vol raakt en er knooppunten ontstaan waar bijna geen ruimte meer is. Dus zowel bovenals ondergronds wordt de ruimte in met name steden steeds beperkter.

Netcongestie kaart Nederland 2022

Verder hebben wij nog te maken met een ander probleem: netcongestie. Zo wordt het plaatsen van laadpalen voor elektrische auto’s lastig en kunnen in bepaalde gebieden zonneweides niet aan het elektriciteitsnetwerk worden gekoppeld. De oorzaak van de beperkte net capaciteit is niet van gisteren en speelt al langere tijd. Dit probleem is dan ook niet zomaar opgelost. Kan door de afstand van gebruiker tot bron te verkleinen een slag geslagen worden om de netcongestie en de verliezen terug te dringen?

Netcongestie 1

Er is meer vraag dan het elektriciteitsnet kan leveren. Dit komt doordat het elektriciteitsnet overbelast is door een de omvang van de bestaande aansluitingen. Wij merken de gevolgen hiervan al, zoals plotselinge stroomuitval en schommelingen in het netwerk, denk aan knipperende verlichtingen met kerst. Daarnaast helpt het opschalen van de industrie en het bouwen van nieuwe huizen niet mee. Want er is een tekort aan aansluitcapaciteit voor elektriciteit beschikbaar.

16
TenneT's netcapaciteitskaart, 17 november 2022
EHV Network of the Netherlands HOOGSPANNINGSNET COM 01-04-2022 National transmission grid and interconnectors 380 kV 220 kV 450 kV DC Generating unit(s) Transformer Station name Town HoogspanningsNet alles over hoogspanning op het net Phase shifter Converter componentcapacity MVA or Mvar for compensation. Capacitor bank Reactor coil Sub net Grid opening 22NLT02 320 kV DC Bleiswijk Krimpen aan den IJssel Crayestein Wateringen Westerlee Maasvlakte Simonshaven BritNed Grain UK (NationalGrid) Beverwijk Vijfhuizen Diemen Lelystad Breukelen Hengelo Oele Gronau Wesel Doetinchem DE (Amprion) DE (Amprion) Geertruidenberg Borssele Eindhoven Oberzier Van Eyck Maasbracht Boxmeer Zandvliet BE (Elia) G Louwsmeer Oudehaske Bergum 110 kV net Zwolle Hessenweg Zeyerveen Weiwerd Aldel Oostpolder Vierverlaten Eemshaven Oost Eemshaven Robbenplaat Oudeschip NorNed ESD Sic Gemini Onshore Feda NO (StatNett) Meeden Delesto Ens Siersdorf DE (Amprion) 953 884 (953) 953 953 953 953 953 953 884 230 1500 (2635) 1975 1995 1645 1995 1900 2635 1000 1710 1525 3x 500 3x 1000 2x 350 1x 370 1x 500 3x 500 80 3x 1x 370 1x 500 1x 500 60 20 kV 20 kV kV 1500 (2635) 150 300 160 150 2x 45 50 1x 45 2x 100 1x 100 Hoek van Holland 225 603 EPZ EB Stedin Stedin Doekegat 1645 Endrup DK (Energinet) 400 Borssele Alpha 350 (380) Rilland 2x 200 Groningen Drenthe Enexis G G G G G G G Gemini Zee-Energie Gemini Buitengaats W W 2635 Overijssel Utrecht (FGU) 150 kV net Noord Brabant 150 kV net Limburg G G DC Noord Holland 150 kV net G G De Lier 150 kV net Zuid Holland 150 kV net Botlek 150 kV net Drechtsteden 150 kV net Zeeland 150 kV net 1400 Wind farm G W Third Party asset (private owned) Values with asterisk are are inconsistent (different values) Zeeuwse Kust Borssele Beta 350 (380) 2x 400 2x 400 W 66 kV 940* 2x Noordoostpolder 150 kV net 1400 Eemshaven 110 kV net W 2x 100* Hogeland (3) 1x 370 design capacity of an assets which confined lower operational capacity limiting factor elsewhere the grid. Filter Filter station Relevant notes for this release 2x 35* Maasvlakte Noord 2635 2635 350 (380) 350 (380) kV 35 Alpha

Op dit moment wordt maar een klein deel van de energie en warmtevraag van de stad daadwerkelijk opgewekt in de stad zelf. Dit gebeurt hoofdzakelijk in de vorm van biomassacentrales voor stad- en of wijkverwarming. De elektriciteit wordt opgewekt met zonnepanelen op daken en een klein deel van woningen en bedrijfsgebouwen wordt middels een warmtewisselaars verwarmt of gekoeld. Zelfs als wij alle geschikte daken voorzien van zonnepanelen kan er maar worden voorzien in 20% van de totale energie behoefte van woningen en kantoren. Daarnaast is de levering van energievorm enorm afhankelijk van het weer. Ook dragen met name de zonnepanelen als gevolg van de donkere afwerking bij aan de verdere opwarming van de stad en dus de aarde 2. Dit resulteert in extra hittestress voor de steden, iets wat wij juist willen voorkomen en terugdringen 3 .

Naast deze duurzame bronnen kan een stad ook gebruik maken van warmtenetten die worden gevoed met de restwarmte van de industrieën rondom een stad. Het gevolg van verminderde productie bij zulke industrieën resulteert in een direct te kort aan warmte voor de gebouwen die hierop zijn aangesloten. Verder zijn deze systemen moeilijk in staat in te spelen op een veranderende vraag, zoals groeiende steden.

Het is vreemd, als je bedenkt wat de ruimtelijke impact van een stad op het landschap is. Wordt het dan niet tijd om de energieopwekking op te nemen in het stedelijke weefsel. Zoals vroeger al gebeurde met de gasfabrieken die weliswaar aan de rand, maar toch direct verbonden waren met de stad. Vanuit deze gedacht kan worden gekeken naar hoe een energiecentrale kan worden geïntegreerd in het huidige stedelijke weefsel en daarnaast bijdraagt aan een stuk bewustwording van onze energievraag en gebruik. Een positieve bijkomstigheid is dat hiermee de druk van het gehele energienet gehaald kan worden. Minder knooppunten en kortere afstand van bron tot gebruiker betekend minder verlies. Dus is minder opwekking noodzakelijk. Hierdoor kan de energiecentrale een compacte verschijning zijn die voorziet in meerdere energievormen. Zoals warmte, elektriciteit en energie voor mobiliteit.

Kan een zintuigelijke beleving bijdrage aan de verbinding tussen alle schaalniveaus? De huidige vormen van energieopwekking hebben weinig met de menselijke schaal te maken, hierdoor kan men zich er dan ook moeilijk tot verhouden. De zoektocht biedt mogelijke het antwoord en op deze vraag en kan leiden tot een nieuwe typologie waarbij mens en onze energieopwekking zich tot elkaar verhouden.

Kan de ruimtevraag van de energiecentrale bijdragen aan de beleving van de energieopwekking en het stedelijk leven?

Waardoor de energiecentrale niet alleen voorziet in schone energie, warmte en mobiliteit. Ook bijdraagt in een stuk bewustwording die de huidige manier van leven vraagt.

Bronnen:

1. Rijksoverheid, landelijk actieprogramma Netcongestie, 21-12-2022

2. The Photovoltaic Heat Island Effect: Larger solar power plants increase local temperatures, Barron-Gafford et, 2016

3. RIVM, Ontwikkeling Standaard Stresstest Hitte RIVM Briefrapport 2019-0008, T. de Nijs et al. 2020

17

Gascentrale, Little Brook D, Engeland

Analyse energiecentrales

Voor het begrijpen van de werking van een energiecentrale volgt nu een vergelijkend onderzoek. Waarbij gekeken wordt naar een kolen-, gas-, biomassa- en een kerncentrale. Maar ook naar zon- en windenergie. De vergelijking tussen de energievormen wordt gemaakt op de afmetingen van de energiecentrales en het verloop van de energieopwekking. Er is in het onderzoek aangegeven waar welke onderdelen zich in de centrales bevinden. Aan het einde wordt een vergelijkingen gemaakt tussen de energiecentrales en waar de verschillen zitten. De centrales worden vergeleken op basis van kilogram per opgewerkte kWh. Het afval dat na opwekking overblijft en de uitstoot per kWh opgewekt energie.

Kolencentrale, de IJsselcentrale in Zwolle, Nederland

Legenda

Brandstof

Ketel

Pompen

Machinekamer (turbine en generator)

Schakelstation (aansluiting op het net)

Kantoren

Controle kamer

Werkplaats

Afval

Energie richting

18
3 ketels
Littlebrook Site Layout. (z.d.). Power Stations of the UK. https://www.powerstations.uk/littlebrook-d-power-station-dartford-kent/littlebrook-site-plan-2/ Situatie tekening Ijsselcentrale. P. De Gruyter 1955. 3-09-2022

Biomassa-centrale,

Kerncentrale, Borsele, Nederland

Googlemaps, kaart van Kerncentrale Borsele. 3-09-2022, van https://www.google.nl/maps/place/EPZ

Kopenhill drawings, BIG 2020 | Bjarke Ingels Group. (z.d.).Bjarke Ingels et al 2022 Kopenhill, Denemarken

Gascentrale

CO2 uitstoot per kg/GJ

56,6 1

Benodigd voor 1 kWh

0,106 m3 gas 1

Doden per tWh opgewekte energie

4

Uitstoot

Ammoniak, koolstofdioxide en stikstof.

> Analyse energiecentrales

Vergelijking energievormen

CO2 uitstoot per kg/GJ

94,0 1

Benodigd voor 1 kWh

0,120 kg kolen 1

Doden per tWh opgewekte energie

100

Afval/uitstoot

ammoniak, arsenicum, beryllium, borium, cadmium, chromium, cobalt, koolstofdioxide, kwik, lood, selenium, strontium, stikstof, thallium, thorium, uranium en vadium. Bij verbranding van kolen ontstaat dus ook radioactief afval!

Biomassa centrale

CO2uitstoot per kg/GJ

109,6 (biomassa) 1 104,4 (afval) 1

Benodigd voor 1 kWh

1,266 kg afval 3

Doden per tWh opgewekte energie

12

Uitstoot

Ammoniak, koolstofdioxide, stikstof en VOS (vluchtige organische stoffen: o.a. PAK’s en benzeen)

20 0 419 461 1,133 714 226 272 60 100 215 96 205 900 m2 480 000 m2 17 280 m2 60,000 m2 6 000 m2 113,000 m2 2 m 419 461 714 226 272 60 100 215 96 500 205 900 m2 17 280 m2 60 000 m2 6 000 m2 113 000 m2 785,398 m2 0 m 419 461 1,133 714 226 272 60 100 215 96 500 205 900 m2 480 000 m2 17 280 m2 60,000 m2 6 000 m2 113 000 m2 785 398 m2 Gascentrale, Little Brook, Dartford, Engeland Kolencentrale, de IJsselcentrale in Zwolle, Nederland
Biomassa-centrale, Kopenhill, Kopenhagen, Denmarken
Kolencentrale

Kerncentrale Zonnepark Windturbine

CO2 uitstoot per kg/GJ *1,1 1

Benodigd voor 1 kWh

0.04 x10^-6 kg 3 uranium

Doden per tWh opgewekte energie 0,04

Afval uranium, plutonium, cesium 35 ton afval dat 10.000 jaar radioactief is.

CO2 uitstoot per kg/GJ *2,44 2

CO2 uitstoot per kg/GJ

*1,94 2

Doden per tWh opgewekte energie 0,44

afval

Na 20 jaar is een zonnepaneel afgeschreven, deze panelen zijn op dit moment niet te recyclen en zijn dus afval.

Doden per tWh opgewekte energie 0,15

afval

Na 20 jaar is de windmolen afgeschreven, er blijft dan over een betonnen fundering, een stalen poot en wieken van polymeren die niet te recyclen zijn.

Zonnepark Noordscheschut Hoogeveen, Nederland

Uitstoot CO2 vrije bronnen

De uitstoot van kern-, zon-en windenergie is op basis van de bouw of productie van de energievorm. Bij de opwekking van de daadwerkelijke energie wordt geen CO2 uitgestoten.

Een windturbine van 100 meter hoog

Bronnen

1. drs. P.J. Zijlema 2020, Nederlandse lijst van energiedragers en standaard CO2 emissiefactoren, versie januari 2020, Rijksdienst voor Ondernemend Nederland

2. Asdrubali, F., Baldinelli, G., D’Alessandro, F., & Scrucca, F. (2015). Life cycle assessment of electricity production from renewable energies: Review and results harmonization. Renewable & Sustainable Energy Reviews, 42, 1113–1122. https://doi.org/10.1016/j.rser.2014.10.082

3. Van Loon, K. (2020). Biomassa, hout voor elektriciteit; de feiten. De Groene Rekenkamer. https://groene-rekenkamer.nl/11721/biomassahout-voor-elektriciteit-de-feiten/

4. Wang, B. (2021, 15 april). Deaths per TWhfor all energy sources: Rooftop solar power is actually more dangerous than Chernobyl |. NextBigFuture.com. https://www.nextbigfuture. com/2008/03/ deaths-per-twh-for-all-energysources.html

21 0 m 461 1,133 714 226 272 60 100 215 96 500 480,000 m2 17,280 m2 60 000 m2 6 000 m2 113 000 m2 785,398 m2 Kerncentrale, Borssele, Nederland 714 60 100 215 96 500 226 500 17,279 966 m2 6,000 000 m2 17,280 m2 6,000 m2 113,000 m2 785,398 m2 GSPublisherVersion 0.66.100.100 200 m m g © 2 23 e d n e a S e © 0 3 y e 0 3 Ae a a n o u y 714 60 100 215 96 500 226 500 17,279 966 m2 6,000 000 m2 17,280 m2 6,000 m2 113,000 m2 785,398 m2

Brandstof

> Analyse energiecentrales

Energie: Een lineair proces

Uit de analyse van verschillende energie centrales kan worden geconcludeerd dat iedere vorm van energieopwekking een bepaalde mate van lineariteit heeft in het gehele proces. De gemene deler bij de gekozen centrales is dat er altijd een turbine wordt aangedreven ten behoeve van de elektriciteitsproductie. Doordat een vloeistof of gas als gevolg van verwarming of een chemische reactie verwarmd wordt en langs de turbinebladen wordt geleid.

De grote verschillen zitten in het type brandstof ten behoeve van de energieopwekking en de benodigde oppervlakte van de energiecentrales. Waarbij de kolen- en gascentrales de grootste zijn met oppervlaktes van 205.000 m2 en 480.000 m2. Daarvan is minimaal een kwart nodig voor de opslag van de kolen of het gas. De biomassacentrale Kopenhill in Kopenhagen is van een vriendelijker formaat vergeleken met de kolen- en gascentrales, namelijk 17.280 m2. Dit wordt met name bereikt door een aantal functies

op elkaar te plaatsen, waardoor een compact volume ontstaat. Een kleine kerncentrale als die in Borsele is 60.000 m2 groot. Hier rechts zijn alle centrales ten opzichte van elkaar weergegeven, waarbij onderaan een voetbalveld ter referentie schaal is getekend. De schaal van de huidige energie opwekking is iets waar wij ons moeilijk tot kunnen verhouden.

Geconcludeerd kan worden dat door functies te bundelen en dichter op elkaar te plaatsen er compactere lay-outs gecreëerd kunnen worden zoals in de Kopenhill in Kopenhagen. Bij de klassieke energiecentrales is er namelijk heel veel ‘lucht’ tussen de afzonderlijke functies van energie centrales. Een energiecentrale in de stad zal dan ook moeten proberen compacter te zijn, waarmee hij meer kan aansluiten bij de maat en schaal van een stad.

Vergelijking van oppervlakte per energieopwekking

22 0 © 419 461 1,133 714 226 272 60 100 215 96 205 900 m2 480 000 m2 17 280 m2 60,000 m2 6 000 m2
Kolencentrale, de IJsselcentrale in Zwolle, Nederland Biomassa-centrale, Kopenhill, Kopenhagen, Denmarken Kerncentrale, Borssele, Nederland Voetbalveld ter referentie
Opwekking Energie Proces verloop in een elektriciteitscentrale 0 m 419 461 1,133 226 272 205 900 m2 480 000 m2 60 000 m2 6 000 m2 113 000 m2 0 419 461 226 272 60 100 215 96 500 205 900 m2 17 280 m2 60,000 m2 6 000 m2 113,000 m2 0 m 419 461 1,133 714 226 272 60 100 215 96 500 205 900 m2 480 000 m2 17 280 m2 60 000 m2 6,000 m2 113,000 m2 785 398 m2 419 461 1,133 714 226 272 60 100 215 96 500 205 900 m2 480,000 m2 17 280 m2 60 000 m2 6 000 m2 113 000 m2 785,398 m2
Verwarmen Turbine

Vergelijking met duurzame bronnen

Hoe verhouden CO2 vrije bronnen als zonen windenergie zich tot de meer klassieke energiebronnen. De vorm van energieopwekking lijkt op het eerste oog anders maar het verloop van de opwekking is redelijk vergelijkbaar met andere energievormen. Bij zon- en windenergie is de keten alleen korter. Er hoeft geen brandstof verwarmt te worden. Er wordt of direct een turbine aangedreven door wind die langs de rotorbladen gaat welke vervolgens een transformator aandrijft. Of er ontstaat een elektrische lading tussen het positieve en negatieve gedeelte van een zonnecel. Om een goede vergelijking te kunnen maken tussen de verschillende energiebronnen is er voor gekozen op de opwekking in megawatt (MW) uit te drukken. Dit is het maximale netto vermogen en niet de daadwerkelijk opgewekte energie welke wordt uitgedrukt in kilowattuur (kWh). De kWh waarde fluctueert namelijk door de gehele dag heen bij zowel zon- als windenergie als gevolg van het weer en het moment op de dag. De CO2 vrije bronnen worden vergeleken met

de kolengestookte IJsselcentrale in Zwolle en de kerncentrale in Borsele. Bij een windmolen is nog iets anders aan de hand, hij heeft vrije ruimte nodig om goed te kunnen functioneren, volgens het onderzoek van Arcadis (april 2022) is er voor een windmolen type Vestas V136 een vrije straal van 500 m rondom de windmolen noodzakelijk 1

Windmolen Vestas V136 3,5 MW 2

Zonnepark 12 MW 3

Kopenhill 190 MW 3

IJsselcentrale 350 MW 4

Borsele 485 MW 5

De benodigde ruimte voor zon, maar met name wind op land is enorm. Op het perceel van Zonnepark Noordscheschut in Hoogeveen past de energiecentrale Borsele bijna twee keer in. Ook de opwekking staat in contrast met elkaar, Borsele wekt veertig keer meer energie op met de helft van het ruimte gebruik van het zonnepark. Met windenergie is het verschil zelfs bijna honderdveertig keer meer energie met een dertien keer kleiner oppervlakte. Hiermee zijn zon- en windenergie door hun lage energiedichtheid per vierkante meter en daar uit resulterende vierkante meter eis geen optie voor de energieopwekking in de stad.

Bronnen

1 Arcadis (2022). Onderzoek afstandsnormen windturbines. Ministerie van Economische zaken en Klimaat

2 V136-3.45 MW®. (z.d.). https://www.vestas.com/en/ products/4-mw-platform/V136-3-45-MW

3 Zonnepark Noordscheschut - HoogeveenNovar. (2023, 13 april). Novar. https://www.novar.nl/ projecten/zonnepark-noordscheschut-hoogeveen/ 4 Wikipedia-bijdragers. (2023). IJsselcentrale. Wikipedia. https://nl.wikipedia.org/wiki/ IJsselcentrale

5 Ministerie van Algemene Zaken. (2023, 16 mei). Kernenergie in Nederland. Duurzame energie | Rijksoverheid.nl. https://www.rijksoverheid.nl/ onderwerpen/duurzame-energie/opwekkingkernenergie

23 714 60 100 215 96 500 226 500 17,279 966 m2 17,280 m2 785,398 m2
Zonnepark Noordscheschut Hoogeveen, Nederland Zonnepark Noordscheschut in Hoogeveen, foto van Novar.
500 m 100 m 100 96 500 226 500 m2 6,000 000 m2 m2 113,000 m2 785,398 m2
Windmolens in Groningen, foto van Eneco Een windturbine van 100 meter hoog

De nieuwe ‘oude’ energie

Veel mensen zijn bekend met het begrip kernenergie. De bron van deze energievorm is uraniumerts. Iedereen is bekend met de risico’s en gevaren die komen kijken bij kernenergie. Echter biedt deze energievorm wel degelijk kansen, zeker met het oog op de energietransitie.

Er is namelijk een ander element uit dezelfde groep van de actiniden ¹ die meer aanwezig is op onze aarde en eenvoudiger te delven is. Het element thorium wordt momenteel gezien als een restproduct dat overblijft tijdens het delven naar edele metalen. De eigenschap van deze groep metalen, is dat zij uit zichzelf kunnen vervallen tot lagere elementen en uiteindelijke in lood 1. Bij het ‘verval’ komt energie vrij in de vorm van warmte. Afhankelijk van het atoomnummer en enkele andere kenmerken kan dit verval in andere elementen binnen enkele seconden of in miljoenen jaren plaatsvinden. Deze tijd heet de halveringstijd. Thorium heeft van nature een lange halveringstijd, namelijk veertien miljard jaar. Thorium is dan ook niet in staat om een kettingreacties op de gang te brengen, laat staan gaande te houden.

Zout en lichtwater

De wereld is bekend met de lichtwaterreactor, deze reactor wordt gekoeld met water. Omdat bij de splijtingsreactie temperaturen van boven de 300 oC worden bereikt, wordt het water dus ook deze temperatuur. Hier kleeft een nadeel aan, water bij een temperatuur van boven de 300 oC zou spontaan splijten in zuurstof en waterstof, een vrij explosieve mix. Om te voorkomen dat het water dus in stoom en uiteindelijk zuurstof- en waterstofgas veranderd staat een lichtwaterreactor onder druk, hiermee blijft water een vloeistof en kan het op een veilige manier zijn warmte afgeven bij een warmtewisselaar. Via de warmtewisselaar gaat er hete stoom richting een turbine die op zijn beurt een generator aandrijft om stroom te produceren. Hiermee is het waterreactor gedeelte verklaard. De volledige naam van dit type reactor is lichtwaterreactor. Het woord licht, slaat daadwerkelijk op het fenomeen dat

zichtbaar wordt tijdens de kernsplijting. De neutronen die vrij komen bij de kernsplijting gaan met enorme snelheden, zo snel dat neutronen sneller gaan dan licht door water kan, dit effect wordt het Vavilov-Cherenkov straling genoemd 2. Cherenkov won voor het beschrijven van dit fenomeen in 1958 de Nobelprijs. Hier komt de blauwe gloed vanaf die altijd zichtbaar is bij een ingeschakelde lichtwaterreactor. Tijdens de ontwikkeling van de verschillende type kernreactoren zijn er ook andere reactoren ontwikkelt. Zo ook de gesmolten zoutreactor, waarbij de splijtbare stof, opgelost wordt in een zoutoplossing. Deze zoutoplossing wordt door het gevolg van kernsplijtingen warm. De warmte wordt vervolgens met een warmtewisselaar omgezet in stoom welke vervolgens een turbine aandrijft. De grondlegger van dit type reactor is Alvin Weinberg en zijn team (1967). Wat begon met de ontwerpvraag naar een compacte reactor die een vliegtuig kon aandrijven werd het homogene reactor experiment (Engels: Homogeneous Reactor Experiment:HRE). Dit zou uiteindelijk de gesmolten zoutreactor worden.

Door te kiezen voor thorium als energiedrager van de centrale in de vorm van een gesmolten zoutoplossing, een gesmolten zoutreactor3, worden de bezwaren van een klassieke kerncentrale weggenomen. Bij deze vorm van kernenergie is de zogenaamde ‘meltdown’ of kernsmelting onmogelijk 4. Een zoutoplossing heeft namelijk de positieve bijkomstigheid dat wanneer de oplossing warmer wordt de oplossing uitzet. Hetgeen automatisch zorgt voor temperatuur afname, waarmee het smelten van een reactor onmogelijk wordt. Er wordt in dit geval dan ook gesproken van een passieve veiligheid. Mocht de reactor te warm worden of als gevolg van een elektrische storing stil vallen dan smelt er een actief gekoelde zout plug. Hierdoor wordt het radioactieve zout afgevoerd naar vaten waar het zout verder kan afkoelen. Daarnaast is het afval dat de centrale produceert laag radioactief en een duizendste van wat een normale kernreactor produceert, ook ontstaat er geen plutonium als restproduct 5

24
Bal van thorium in handpalm, Flibe Energy 2018. Deze kleine bal thorium bevat alle energie die een persoon in zijn leven zal gebruiken, aldus Flibe Energie Alvin Weinberg in 1967 bij de gesmolten zoutreactor in Oak Ridge, bron: National Laboratory/US Department of Energy

Betonnen deksel

De eerste gesmolten zoutreactor

Zoutpomp t.b.v. het secundaire circuit

Zoutpomp t.b.v. het reactorvat

Warmtewisselaar

Reactor vat o 2 meter

Gekoelde zoutplug

Noodopslag voor radioactieve zout

Werking van de gesmolten zoutreactor in Oak Ridge National Laboratory in 1967

Warmtewisselaar

Ventilatoren t.b.v. de koeling van het secundaire circuit

Cherenkov_radiation

3. Briant, R. C., & Weinberg, A. M. (1957). Molten Fluorides as Power Reactor Fuels. Nuclear Science and Engineering, 2(6), 797–803. https://doi.org/10.13182/nse57-a35494

4. Wikipedia-bijdragers. (2022). Kernsmelting. Wikipedia. https://nl.wikipedia.org/wiki/Kernsmelting

5. Groene kernenergie (2011-06-03): helemaal 21ste eeuw, Chris Pangers,Intermediair

25
22

Hiernaast is een krantenartikel uit de Trouw van zesentwintig maart 1957. De proefreactor waar in dit artikel over gesproken wordt, een zogenaamde suspensiereactor. Is één van de eerste ontwerpen van een gesmolten zoutreactor. Kernenergie was toen een nieuw begrip in Nederland. Over de plaatsing van deze reactor op het KEMA (Keuring van Elektrotechnische Materialen Arnhem) terrein was destijds veel ophef. De reactor heeft enkele jaren probleemloos gefunctioneert maar heeft nooit elektriciteit opgewekt 1. De reactor is uiteindelijk ontmanteld, daarna is er in Nederland bijna veertig jaar geen onderzoek meer gedaan naar dit type kernreactor.

Proefreactor op het KEMA terrein

Krantenartikel : Dr. J.A.H.J.S. Bruins slot, Trouw 26-03-1957, Kernenergie in plaats van kolen? Proef-reactor in Arnhem dit jaar in bedrijf Bronnen: 1. Opening Arnhem’s kernlab | Kernenergie in Nederland. (z.d.). https://kernenergieinnederland.nl
27
Schetsen van het lamelonderzoek tijdens 2e schouw

De voorgaande onderzoeken zijn met name ingegaan op de feitelijkheden: Zoals het vergelijken van verschillende energievormen, hun omvang enzovoorts. Na de energiecisis (die eigenlijk nog niet voorbij is) veroorzaakt door onder andere de corona pandemie en de oorlog in Oekraïne. Hebben voor een verstoorde geopolitieke situatie heeft gezorgd met directe gevolgen voor onze energievoorzieningen. Hierdoor is het iedereen duidelijk geworden hoe afhankelijk de gehele wereld van elkaar is. Daarbij komend staat de klimaatverandering bij steeds meer mensen hoger op de agenda. Deze punten maken dat er nu drastische keuzes en stappen gezet moeten gaan worden. Zodat er nu en in de toekomst voorzien kan worden in een stabiel energienetwerk.

Hierbij hebben de voorgaande hoofdstukken pijnlijk duidelijk gemaakt dat, ondanks de positieve eigenschappen van zon- en windenergie, zij niet de gezochten oplossing bieden waarmee de kolen- gas- en biomassacentrales gesloten kunnen worden zonder dat daarmee onze energielevering in gevaar komt. Ook bieden de CO2 vrije bronnen geen antwoord op de netcongestie. Door hun grillige levering van energie maken zij het probleem groter.

Kernenergie heeft vanwege zijn naam een bittere (na)smaak bij veel mensen. Met name door de bekende ongelukken en rampen uit het verleden, maar ook door een bepaalde angst voor het onbekende. Zoals al benoemd in de inleiding heeft kernenergie geen schone lei. Echter moet dan ook de vraag gesteld worden: Welke energievorm heeft dat wel? Het antwoord hierop is helaas geen enkele! Iedere energievorm kent zijn dodelijke slachtoffers. Veruit de meeste slachtoffers ontstaan tijdens de bouw of tijdens een ongeluk ten tijde van de productie van energie. Als het bij de huidige vormen van kernenergie misgaat, zijn de gevolgen wel groter dan bij andere energievormen als gevolg van de mogelijke vrijgekomen straling. Per kWh opgewekte elektriciteit is kernenergie de minst dodelijke energievorm die wij kennen, alsook de schoonste. Zelfs als er vergeleken wordt met zon- en windenergie1

Hernieuwde blik

De splijtingsreactie in een gesmolten zoutreactor vinden plaats in het zout onder normale druk, door deze factoren is een kernsmelting of explosie onmogelijk. De gesmolten zoutreactor gebruikt als gevolg van zijn efficiëntie 1/250ste van de brandstof van een klassieke reactor. Dit betekent een kleinere reactor en minder radioactief afval. Door het type splijtingsreactie in een gesmolten zoutreactor is het afval driehonderd jaar radioactief, echter is het na tien jaar al stabiel. Dat wil zeggen dat de straling in het reactorvat is afgenomen tot een niveau dat het veilig kan worden vervoerd, geleegd en gereinigd. Zodat hij vervolgens weer gevuld kan worden met een zoutoplossing voor een nieuwe cyclus. Bij de werking van de hier voorgestelde kerncentrale worden de reactorvaten pas radioactief als zij ingeschakeld worden voor productie. Hierdoor is het reactorvat bij vervoer naar de energiecentrale niet radioactiever dan een pak hagelslag 2

Mocht er als gevolg van een oorlog of terroristische aanslag, een vliegtuig of raket bovenop een van de reactorvaten neerkomen, dan is de centrale hierop berekend en is er slechts schade aan de buitenzijde van de centrale. Deze veiligheid hebben klassieke kerncentrales ook. Mocht het toch mis gaan, dan kan als gevolg hiervan radioactief zout buiten het reactorvat terecht komen volgens ir. Theo Wolters (2022). Dit radioactieve zout kan eenvoudig worden opgeschept en veilig worden afgevoerd. Zolang het zout niet in contact komt met (oppervlakte)water kan de radioactiviteit zich niet verspreiden.

28
Bovenaanzicht van het gesmolten zoutreactor experiment in Oak Ridge, 1967 Bron: Oak Ridge National Laboratory/US Department of Energy

Waarom is deze vorm na zijn uitvinding in de jaren zestig nooit commercieel ingezet? Hierop is geen eenduidig antwoord te geven. Nu terugkijkend op de ontwikkeling van de gesmolten zoutreactor in Oak Ridge National Laboratory (ORNL) zijn er een aantal factoren die de gesmolten zoutreactor hebben tegengehouden. Kort gezegd komt het er op neer dat het Amerikaanse Atomic Energy Commission (AEC) in de jaren zeventig de voorkeur gaf aan een ander onderzoek. Een waarvan verwacht werd dat hij dichter bij zijn marktintroductie was. Kortom, er is gewoonweg op een ander paard gewed in het verleden. Ook zal het verdiensysteem achter het verrijken van brandstoffen voor deze kerncentrales hebben meegespeeld in de keuzen 4,5

De vergeten vorm Door de energiecentrale in tegenstelling tot klassieke energiecentrales open te stellen voor publiek ontstaat een kans om de sluier rondom kernenergie weg te nemen. Hierdoor kunnen de vooroordelen en angst rondom het onderwerp toegelicht worden. Zodat begrepen kan worden wat de werkelijke gevaren zijn die komen kijken bij een energiecentrale in de stad. Dat hiermee de stad een leefbare plek blijft en de ruimte en natuur buiten de stad zijn kwaliteiten kunnen behouden. Belangrijk hierbij is dat de energiecentrale een bepaalde aantrekkingskracht tot zijn omgeving heeft. Dat mensen geïnteresseerd raken om daadwerkelijke de energiecentrale te bezoeken om zo meer te weten te komen over de gebruikte energievorm. Dat duidelijk wordt waarom juist deze energievorm zo geschikt is als energievoorziening voor de stad.

Weinberg (1994): “Het was een succesvolle technologische ontwikkeling die werd gestopt omdat het té verschillend was van wat men gewend was in de wereld van reactor ontwikkeling” 3

Nu de vraag naar schone, stabiele en betaalbare energie toeneemt. Zon- en windenergie alleen als toevoeging op het bestaande energiesystemen zijn is er dus een andere energiebron nodig om de kolen- gas- en biomassacentrales te sluiten. Daarom is er met de kennis van de geschiedenis in het achterhoofd gezocht naar een nieuwe oplossing voor kernenergie. Hierdoor is er hernieuwde interesse gekomen in de positieve eigenschappen van de gesmolten zoutreactor. Zoals de passieve veiligheid, waarmee menselijke fouten zijn uitgesloten. De reactor in ORNL heeft vierduizend uren onafgebroken gefunctioneerd zonder een enkele menselijke interventie. Dit maakt de gesmolten zoutreactor een prima aanvulling op ons huidige energienetwerk zonder de bijkomstigheid van veel ruimtegebruik en uitstoot van verontreinigende stoffen.

Bron:

Bronnen

1. Wang, B. (2021, 15 april). Deaths per TWhfor all energy sources: Rooftop solar power is actually more dangerous than Chernobyl |. NextBigFuture.com. https://www.nextbigfuture. com/2008/03/ deaths-per-twh-for-all-energysources.html

2. Monitoring van radioactiviteit in voedsel en veevoer. (z.d.). RIVM.

3. Weinberg, A.M. (1994). The first nuclear era: The Life and Times of a Technological Fixer. Springer Science & Business Media.

4. Hargraves, R. & Moir, R., 2010. Liquid Fluoride Thorium Reactors. American Scientist, 98(July/August), pp. 304-313.

5. MacPherson, H., 1985. The Molten Salt Reactor Adventure. Nuclear science and engineering.

29
De verschillen in het verbruik van brandstof tussen een ‘traditionele’ kerncentrale en een thoriumcentrale. Hargraves & Moir, 2010

LOCATI D E

Rotterdam Lombardijen van uit de lucht, Paul Martens, 28-09-2018

Waarom en waar?

Alle vormen van duurzame CO2 vrije energiebronnen zoals zon- en windenergie hebben nadelen. Geen zon of wind betekend geen energie. Daarnaast is de opbrengst per vierkante meter te laag om goed te kunnen implementeren in de stad. In theorie kunnen alle daken in de stad worden voorzien van zonnepanelen, hiermee zou een deel van de vraag kunnen worden beantwoord, echter resulteert dit ook in toename van temperatuur voor de gehele stad 1. Dit is niet wenselijk en onverstandig.

Voor de energievoorziening van de stad zijn de eisen vrij eenvoudig. Hij moet betrouwbaar en compact zijn, waarmee de impact op de ruimtelijkheid beperkt blijft. Aan deze eisen voldoet een gesmolten zoutreactor. Deze energievorm kan langere tijd voorzien in stabiele energie, de reactor zelf is zo groot als een Volkswagen kever.

Om de energievorm rendabel te maken is een bepaalde omvang van de bevolking nodig, zodat er voldoende vraag naar energie aanwezig is. Daarnaast moet het aansluiten bij de ambities van de betreffende stad. Hiermee wordt de impact ook daadwerkelijk relevant. Steden kleiner dan driehonderdvijftigduizend inwoners vallen daarom dan ook af. Rotterdam heeft als een van de weinige grote gemeentes in Nederland daadwerkelijk de ambitie om tegen 2040 CO2 vrij te zijn. Dit wordt beschreven in de Rotterdamse Transitievisie Warmte 2021 2 .

Het zoekgebied voor de gesmolten zoutreactor zal zich focussen op Rotterdam, met name de zuidzijde. Dit betekent niet dat een dergelijke energie vorm niet in een andere stad van formaat geplaatst kan worden.

Overzicht verschillende reactoren, Terrestrial Energy. (2023, 18 januari). Terrestrial Energy | Carbon-Free Energy for Global Industry. https://www.terrestrialenergy.com/

Bronnen:

1. The Photovoltaic Heat Island Effect: Larger solar power plants increase local temperatures, Barron-Gafford et, 2016

2. Gemeente Rotterdam, De Rotterdamse Transitievisie Warmte 2021. Bas Kurvers et al 2021

31
Centraal Bureau voor de Statistiek. (z.d.). Inwoners per gemeente.

WAT-Kaart 2021

De WAT-kaart is onderdeel van het ambitie document ‘Rotterdamse Transitievisie Warmte’ van 2021 waarin de Gemeente Rotterdam mogelijke oplossingsrichtingen laat zien om woningen zonder aardgas te verwarmen.

Er zijn drie categorieën

Laag temperatuur(all-electric): volledig elektrisch verwarmen per huis met warmtepompen die de warmte uit lucht of bodem halen.

Laag-midden

temperatuur(collectief):collectief verwarmen met laag of midden temperatuur(gemeenschappelijke warmte rond de gestapelde bouw)

Midden-hoog

temperatuur(warmtenet):

collectief op een lokaal of centraal warmtesysteem.

Rotterdam

De stad Rotterdam heeft een ambitieus plan opgesteld om in 2050 aardgasvrij en klimaatneutraal te zijn. Dit is opgenomen in ‘De Rotterdamse Transitievisie Warmte’. Dit document is opgesteld in 2021 door Bas Kurvers, wethouder Bouwen, Wonen en Energietransitie Gebouwede Omgeving, gemeente Rotterdam. Hierin wordt beschreven hoe de gemeente Rotterdam denkt deze transitie aan te pakken. De uitdagingen die komen kijken bij een klimaatneutraal Rotterdam zijn groot. Met name het verwarmen van huizen zal, zoals de kaart op de rechter pagina weergeeft op grote collectieve schaal moeten gaan plaatsvinden. Dit komt met name door de leeftijd van de bebouwing in Rotterdam, veelal gebouwd in de jaren ’70 en ’80 en dus matig geïsoleerd. Een collectief warmtenet van deze schaal zal doelbewust gebouwd moeten worden en kan niet bestaan uit alleen maar restwarmte van de industrie.

Op dit moment staan behalve stadsverwarming en zonnepanelen eigenlijk alle vormen van energievoorzieningen voor de stad buiten de

grenzen van de stad. Verwijderd van de vraag, met de beschreven verliezen tot gevolg. Door een locatie binnen de grenzen van een stad te zoeken, waar de energiecentrale direct kan worden aangesloten op het energienetwerk van de stad, kan deze energiecentrale voor een toegevoegde waarde zorgen. Onder het energienetwerk van een stad vallen een aantal energievormen:

Elektriciteit voor huizen, fabrieken en bedrijven. Maar ook elektriciteit voor het mobiliteitsnetwerk zoals trams, treinen en metro’s.

Warmtenet, die voorziet in verwarming van huizen, bedrijven en ziekenhuizen, maar ook in warm water.

Mobiliteit voor waterstof aangedreven voertuigen zoals personenauto’s, stadsbussen, vuilniswagens etc. Waterstof kan ook gebruikt kunnen worden voor het verwarmen van huizen die niet geschikt gemaakt kunnen worden voor een warmtenet.

32
Rotterdamse WAT-kaart 2021, gemeente Rotterdam, 2021

De keuze van de locatie hangt dus af van de volgende factoren, waarbij de keuze en is, en niet en of

Is er een elektriciteitsnetwerk nabij van tenminste 150 kV, waar op kan worden aangesloten?

Is er mobiliteit die gebaat is bij duurzame energie, zoals trammen, bussen, metro of treinen?

Is er een vorm van collectieve warmtevoorziening als stadsverwarming al reeds aanwezig, of is deze gepland?

Is er vraag naar duurzame mobiliteitsoplossingen voor het stad en streek vervoer, als ook personenvervoer?

Als er op twee of meer van deze vragen ‘ja’ kan worden geantwoord is er voldoende vraag naar energie om een energiecentrale te plaatsen, dan rest alleen nog de vraag of de ruimte rondom deze energieknooppunten voldoende is voor een centrale.

kV 2

De term kV betekend kilovolt en is een eenheid dat behoort tot het Internationaal Stelsel van Eenheden (SI). Een kilovolt is gelijk aan duizend volt.

Uit voorgaande onderzoeken is duidelijk geworden dan een energiecentrale met het oppervlak van Kerncentrale Borsele voldoende energie kan leveren voor heel Rotterdam Zuid. De kaart hieronder is een weergave van de elektriciteitsleidingen ondergronds, als ook de bovengrondse transformator huizen. Daarnaast is het grondvlak van de Kerncentrale Borsele op verschillende plekken in Rotterdam Zuid geprojecteerd. Deze kaart vertelt niet het gehele verhaal van de ondergrondse energie in Rotterdam Zuid. Er is namelijk nog een warmtenet en een openbaarvervoersnetwerk waar op aangesloten kan worden.

Legenda

10 kV ondergronds

25 kV ondergronds

150kV ondergronds

150kV bovengronds

Buitenwerkse maat

Kerncentrale Borsele Transformatorhuis

33
De Kuip Industrie terrein Industrie terrein School en sportvelden OV Station Rotterdam Ahoy 150 kV 23 kV 10 kV 23 kV RET Hub 10 kV 10 kV RET Hub 25 kV 23 kV 10 kV 25 kV 10 kV 10 kV 10 kV 25 kV 10 kV Braakliggend
Google maps, met eigen overlay van elektriciteitsleidingen in Rotterdam terrein Bronnen: 1. Gemeente Rotterdam, De Rotterdamse Transitievisie Warmte 2021. Bas Kurvers et al 2021 2. De Natuurwetenschappen, N. N. V. V. H. O. I., & Bouwens, R. (2013). Binas: havo/vwo : informatieboek havo/vwo voor het onderwijs in de natuurwetenschappen.

De grid analysekaart hier rechts laat zien waar alle energiestromen door de stad lopen en geeft inzicht in waar welke bronnen worden gebruikt. Op deze manier wordt eenvoudig inzichtelijke waar mogelijke locaties liggen voor de energiecentrale.

Aantal punten vallen direct op. Grote delen van de stad Rotterdam worden gebouwen verwarmd met gas (gele vlakjes). Ditzelfde geld ook voor de omliggende steden zoals, Barendrecht, Rhoon, Ridderkerk etc. Dit is vreemd en mogelijk zelfs tegenstrijdig. Er is namelijk een warmtenet aanwezig (groene lijn). Dit warmtenet beslaat zo goed als heel Rotterdam zuid. Terwijl er maar enkele plekken zijn die werkelijk gebruik maken van dit warmtenet. De reden hiervan is dat de bron van dit warmtenet, industrie in de haven. Op dit moment niet voldoende warmte over heeft om daadwerkelijk een warmtenet te voorzien van voldoende warmte.

De gekozen locatie voor de energie centrale bevindt zich te midden van twee ondergrondse 150 kV lijnen en is ook in de nabijheid van het warmtenet. Bijkomend is er een tramhalte langs het perceel. Deze factoren maken dat er gekozen is voor deze plek in Rotterdam zuid.

Grid analyse Rotterdam zuid

legenda

Energie gebouwen

Aardgas woningen

Aardgas bedrijven

Elektriciteit bedrijven

Stadsverwarming

Stadsverwarmings leiding

Gebouwen aangesloten op stadsverwarming

Elektriciteit

150 Kv leidingen

Overige

Tram en trein

Verbinding met aanwezige de netwerken

34
Hotel New York Euromast Waalhaven Rhoon Analysekaart van alle energiestromen door Rotterdam Zuid en omstreken Maashaven A15 Nieuwe Maas
35
A16 A15 Maasstad Ziekenhuis Station Lombardijen De Kuip Varkensoord Barendrecht Ridderkerk Krimpen aan den IJssel Ahoy Erasmus brug Ikazia Ziekenhuis Braakliggend terrein Station Zuidplein Station Rotterdam-Zuid Maashaven Rijnhaven Nieuwe Maas Maashaven

Voor 1164 was heel Rotterdam zuid onderdeel van de noordelijk oevers van de Waal, de Nieuwe Maas bestond toentertijd nog niet 1. In het gebied vonden regelmatig rivieroverstromingen en stormvloeden plaats 2. Naar meerdere herdijkpogingen en verzwaringen aan verschillende dijken door de eeuwen heen wordt in 1446 een overeenkomst gesloten waarbij een generale orde op de schouw van de gezamenlijke dijken werd opgesteld. Zodat toekomstige schade kon worden vermeden 3. Tot aan de annexatie van de gemeente IJsselmonde in 1941 door Rotterdam waren de polders in handen van het gemenelandsheemraden van Oost-IJsselmonde en Riederwaard.

Sporen van deze inpoldering zijn nog steeds zichtbaar in straatnamen, maar ook fysiek zoals de hoger gelegen Smeetslandsdijk. Deze dijk vormt de scheiding tussen Vreewijk en Lombardijen

Tuinstad Lombardijen is tot stand gekomen aan de hand van de uitbreidingsplan Lombardijen (1951-1959) en gebouwd in de periode 1960-1967.

Ontwikkeling Rotterdam zuid

Rotterdam zuid omstreeks 1164

In 1872 is de spoorlijn Rotterdam Mallegat (huidige Rotterdam Blaak) Breda in gebruik genomen. Op deze kaart zijn ook nog duidelijk de dijken te zien. Katendrecht is nog niet opgenomen in de stad Rotterdam en van de wijken Vreewijk is nog geen spoor te bekennen. Het werk aan de Maashaven is al gaande, echter nog niet verwerkt op deze tekening. In 1905 wordt de Maashaven in gebruik genomen

Bronnen:

1. Hoek (11), blz. 12 | Renting (20), blz. 193 e.v.

2. Gottschalk (8), deel I, blz. 227.

3. Nieuwenhuis (14), Inv.nr. 1770, Akte van overeenkomst tussen Margriete van Comene, ambachtsvrouwe van Ridderkerk, en Godschalk Oem met Hugo van Lannoy, ambachtsheren van Oost-IJsselmonde, met betrekking tot het onderhoud en de schouw over de Hordijk en de eigendom van de Middeldam, regest nr. 8 | Nieuwenhuis (13), blz. 2069.

* Gemeente Atlas Nederland 1865-1870, J. Kuyper, "Gemeente Oost en west Barendrecht"

* Meer, Ad van der en Boonstra, Onno “Repertorium van Nederlandse gemeenten” 1812–2011, KNAW, 2006/2011

* Topotijdreis: 200 jaar topografische kaarten. (z.d.). Topotijdreis. https://topotijdreis.nl/

Rotterdam zuid omstreeks 1900:

Onder: Kaart van TopoTijdreis, Rotterdam Zuid 1900

Boven: Kaart van IJsselmonde in 1164, Nieuwenhuis 2014

36
Lombardijen

Rotterdam zuid omstreeks 1940:

Holland Amerika Lijn (huidige Hotel New York) 1901

Het Zuiderziekenhuis 1929-1939 gesloten in 2011

Stadstuindorp Vreewijk 1919-1940

De Kuip 1936

De kuip werd in 1936 in gebruik genomen en de contouren van het huidige Rotterdam zuid worden zichtbaar op de plattegrond. Rond 1913 werd de wijk Vreewijk opgeleverd, het eerste Rotterdamse Tuindorp. Na de tweede wereld oorlog worden in de jaren 60 de volgende wijken gerealiseerd: Pendrecht, Zuidwijk en Sportdorp rond 1960. Daarna volgt rond 1965 de ontwikkeling van Lombardijen, Kreekhuizen en Hordijkerveld. En in 1970 worden Reijeroord, Groenenhagen en Tuinhoven ontwikkelt. Heel Rotterdam zuid zoals wij dat nu kennen is binnen een eeuw gerealiseerd. Echter zijn in deze wijken de herinneringen aan het dijklandschap nog zichtbaar. Zo is in Lombardijen met name op de Ogierslingel en de Smeetslandseweg de dijklichamen nog zichtbaar in het landschap.

Holland Amerika Lijn (huidige Hotel New York)

1901

Rotterdam zuid omstreeks 2020:

Station Zuid 2 mei 1877

Aanleg Van Brienenoordbrug 1965

1872 Aanleg spoorlijn naar Breda en station Rotterdam Mallegat (huidige Rotterdam Blaak)

Station Zuidplein 1968

Ikazia Ziekenhuis 1968

Ahoy Rotterdam 1970

Het Zuiderziekenhuis 1929-1939 gesloten in 2011

Lombardijen

Stadstuindorp Vreewijk 1919-1940

De Kuip 1936

Sint Clara Ziekenhuis 1949 gesloopt in 2018

Station Lombarijen 1968

Maasstad ziekenhuis 2011

Lombardijen 1919-1940

Locaties van oude dijken

37
Dijklichaam van de Smeetlandse dijk nog zichtbaar in het landschap Dijklichaamop de Ogiersling nog zichtbaar in het landschap Boven: Kaart van TopoTijdreis, Rotterdam Zuid 1940 Onder: Kaart van TopoTijdreis, Rotterdam Zuid 2020

In Rotterdam Zuid is een braakliggend terrein genaamd Smeetsland. Smeetsland ligt tussen de wijken Vreewijk en Lombardijen in en is onderdeel van een bijzonder stukje geschiedenis van Rotterdam als stad. Smeetsland is ontstaan na de bombardementen op Rotterdam van 1940. Hierdoor waren ineens heel veel mensen dakloos geworden. Er was dus een acute woningnood. Onderdeel van het Wederopbouw plan van 1940 is onder andere Smeetsland geweest. Hier werden ongeveer 500 semipermanente woningen gebouwd als ook andere wijkfuncties. Wanneer er in 1963 gestart wordt met de bouw van Lombardijen wordt een deel van Smeetsland gesloopt. In 1989 vindt er nog een renovatie ronde plaats voor de bestaande woningen van Smeetsland. Zo werden de woningen voorzien van isolatie, dubbelglas en ventilatiesystemen. Dit allemaal met behulp van bouwacademie studenten tezamen met de buurtbewoners. Vanaf de eeuwwisseling voldoen de huurwoningen eigenlijk niet meer aan de huidige eisen en zijn er plannen om de gehele woonwijk te slopen. Sinds de sloop van de rest van de woonwijk in 2010 is het een braakliggend terrein midden in de woonwijk

Smeetsland

Bronnen:

* https://wederopbouwrotterdam.nl/ artikelen/rotterdam-in-nood

* Bewoners Organisatie Lombarijen, Smeetsland 1941-1991 (1991), Kranz en A. Straver, 1991

* DeBoektant, Rotterdam LombarijenSmeetsland in vroeger tijden(2001), T. de Does, 2001, ISBN 9055341673

* Stichting Ons Rotterdam, Nooddorp ‘Smeetsland’ is niet meer (2010), M. Groeneweg 2010. Ons Rotterdam Jrg. 32, no. 3, 2010, p. 39-40

38
Onder: Ruimtekaart Locatie Locatie Boven: Bebouwingskaart De bouw van nooddorp Smeetsland in 1940. Archief Hans Grootenhuijs

Zowel op de bebouwingskaart, als de ruimtekaart maken duidelijk dat er een groot leeg vlak aanwezig is in Lombardijen. Een die centraal in de wijk ligt en daarmee geschikt is voor een collectieve functie. Waar de wijk en het volledige stadsdeel baat bij kunnen hebben.

Conclusie

Smeetsland is vanwege zijn ligging nabij een tramstation, de relatief korte afstand tot een warmtenet en de ondergrondse 25 en 150 kV elektriciteitsleiding als locatie zeer geschikt voor de functie van de energiecentrale. Bijkomend voordeel, omdat het huidige Smeetsland al gesloopt is, dat er geen verdere gebouwen of structuren moeten te worden gesaneerd. Al deze eigenschappen maakt dat in Smeetsland in Rotterdam zuid een geschikte locatie is.

legenda

39
Boven: Openbaar groen, waarbij moet worden opgemerkt dat Smeetsland op dit moment niet openbaar is Locatie Locatie
Ontsluiting auto Eenrichtingsweg auto Fietspad Tram/trein bebouwingshoogte water openbaar groen
Onder: Focus op ontsluiting van de wijk en hoogtes van de bebouwing.
40
Eerste ruimtelijke maquette van de energiecentrale
41
Verhouding tussen een klassieke turbine hal en een gesmolten zoutreactorvat

TOELIC OP TING

H E T ON WERP

42
43
Entree van één van de gebouwen

De benodigde functies

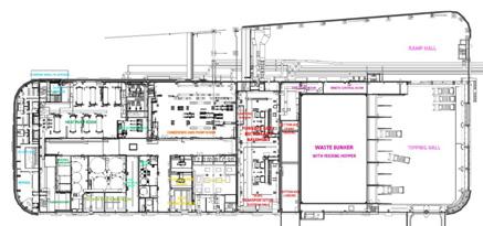
Het programma van eisen kan gezien worden als een conclusie van de analyses van de verschillende vormen van energiecentrales. Maar ook wat een gesmolten zoutcentrale een stad kan bieden aan warmte, energie en mobiliteit in combinatie met de hier aan gekoppelde installaties. De oppervlakte eis van al deze installaties komt van de verschillende fabrikanten. In veel van deze oppervlakte eisen zit ook een component veiligheid en onderhoud verwerkt. Zo moet er bijvoorbeeld naast de turbine ruimte zijn om onderhoud uit te voeren aan de betreffende turbine. Ditzelfde geld in mindere mate voor de overige installaties van de centrale

Het relatieschema hieronder laat de richting van energie zien. Waarbij er vanuit de actieve reactor drie energiestromen lopen voor elektriciteitsopwekking, waterstof ten behoeve van mobiliteit en stadsverwarming.

Ontvangst gebouw

Kantoren

40x10x 3 lagen

Expeditie

Controle kamer

Reactor gebouw

Nieuwe reactor

Actieve reactor

Werkplaats Opslag gebruikte reactor

Dieselgenerator

Legenda

Restwarmte

Energieverloop

Verbonden gebouwen

Verplaatsing reactor

Warm

Koud

Uit gesprekken met onder andere ir. Theo Wolters en Mark Verheijen (Ingenieur bij TenneT 2022) is inpassing binnen de huidige stedelijke context goed mogelijk, zeker omdat maar een derde van de benodigde energie nodig is door zeer beperkte lek-, opwekkings-, transport-, conversie- en systeemverliezen als gevolg van de afstand van bron tot gebruiker. Een oppervlakte areaal zoals Kerncentrale Borsele is meer dan voldoende om de energie voor een stad op te wekken. (Theo Wolters 2022) Wel zal er volgens Theo Wolters een oplossing gevonden moeten worden voor de beperkte warmte die overblijft na de energieopwekking.

Energieopwekking in drie vormen

Turbine Generator Schakeltuin Warmte wisselaar

Elektriciteit elektriciteit

Warmte wisselaar

Mobiliteit elektrolyser Opslag waterstof Waterstof buffervaten

Stadsverwarming

Warmte wisselaar

Buffervat Warmte woningen Pompstation

Koeling

Relatieschema van de energieopwekking in de energiecentrale

44

Hoe functioneert deze energiecentrale

Net als bij de klassieke energiecentrales is er een brandstof. In dit geval bevind de brandstof zich in een afgesloten reactorvat. Door de splijtingsreactie hierin op te starten wordt het vat warm. Door het te koelen met een zoutoplossing wordt de warmte van de reactie overgedragen naar een drie warmtewisselaars. Deze warmtewisselaars zorgen ervoor dat er drie vormen van energie worden opgewekt.

Pompstation

Warmtewisselaar

Buffervat

Warmtewisselaar

Reactor gebouw Invoer reactorvaten

Schakeltuin

Opslag waterstof

Elektrolyser & Buffervaten

Warmtewisselaar

Werkplaats Expeditie Kantoren

45
Turbine & generator Controle kamer
Indeling energiecentrale

De geslotenheid

Alle vormen van energieopwekking bevinden zich achter gesloten deuren en omheiningen. In feite een hek met daar achter een anonieme doos met veelal een schoorsteen en hoogspanningsmasten. Voordat je daadwerkelijk de installaties kan aanschouwen moet je veelal langs een poort of een deur die bewaakt wordt of op slot zit. Ergens is deze bescherming van onze energievoorziening begrijpelijk, er is namelijk mogelijk veel van afhankelijk. Maar er is wellicht een mogelijk om de afstand en zeker het zicht op de installaties te verbeteren en te verkleinen? De hier links afgebeelde energiecentrales in laten in ieder geval al iets van de ingewanden zien. Echter is de afstand van centrale tot aanschouwer nog steeds aanzienlijk.

Kan er door de afstand tussen de gebruiker en de opwekking te verkleinen respect ontstaan voor deze type installaties. Dit zou kunnen bijdrage aan een beter begrip voor wat de energie opwekking van onze ruimte vraagt. Het doel van de ingreep is om de grens te laten vervagen, of zelfs volledig weg te nemen. Zodat

Huidige situaties, bron onbereikbaar

er circulatie van bezoekers in de centrale plaats vindt. Bepaalde onderdelen zoals de daadwerkelijke omzetting van beweging naar elektriciteit en de omvorming van gelijkspanning naar wisselstroom hebben gewoon een bepaalde afstand tot de gebruikers nodig vanwege veiligheid. Daarom is er gekeken welke minimale afstand noodzakelijk is zonder dat er een harde barrière ontstaat tussen de installaties en de bezoeker. Zodat wij als mens leren verhouden tot de daadwerkelijke opwekking van onze energievraag.

Nieuwe situaties, bron toegankelijk

46 Bron Bron
Huidige en toekomstige bereikbaarheid van onze energieopwekking
47
Lausward energie centrale, Kadawittfeldarchitektur, fotograaf:Jens Kirchner, 2016 Tower of Light and Wall of Energy in Manchester, Tonkin Liu, Fotograaf: David Valinsky 2022

Het onzichtbare zichtbaar

Energie is overal om ons heen, zonder dat wij het direct ervaren. Met een druk op de knop springt een lamp aan of start computer op. Het maakt ons huidige moderne leven mogelijk. Wij nemen dit allemaal voor lief, zien het als iets vanzelfsprekends. Intussen zijn mensen verbaasd dat er niet zomaar een laadpaal bij geplaatst kan worden of boos als de zonnepanelen op het dak niet altijd de opgewekte elektriciteit terug leveren aan het net. Het is voor de meeste mensen dan ook niet duidelijk waarom dit allemaal niet kan.

Daarom moet de energieopwekking zichtbaar worden, waardoor begrip en respect ontstaat voor het complexe energiesysteem achter en onder onze samenleving. Dat dit systeem helemaal niet zo vanzelfsprekend is als iedereen denkt. Dit systeem is niet feilloos en op dit moment zelfs aan het wankelen met netcongestie als huidige uitwerking. Black-outs kunnen een realiteit worden als wij niet anders omgaan met de beschikbare energie.

De getoonde voorbeelden van Wolfgang Buttres en Lead Pencil Studio zijn beelden die mij hebben geïnspireerd te zoeken naar een verschijningsvorm die iets onzichtbaars zichtbaar probeert te maken. Waarbij een ander perspectief een andere aanblik geeft. Denk aan schutting waar je langs loopt, hier krijg je binnen het ritme van de planken soms een schim mee van wat er achter de schutting schuil gaat. Hiermee wordt de nieuwsgierigheid gewekt.

48
UK Pavilion, Milan Expo, 2015, Wolfgang Buttress Lead Pencil Studio 2010, border of Canada and US Het zichtbare = ingeschakeld Het onzichtbare = uitgeschakeld
49 De energiecentrale bij avondlicht

Schema: Atoommodel van Bohr

Het concept

Voor het concept van de energiecentrale is gekeken naar de natuurkunde achter het atoommodel van Bohr (1913). Dit model beschrijft in combinatie met het atoommodel van Rutherford (1911) en de kwantumtheorie van Planck (1900) een nieuw atoommodel. Volgens dit model bevinden de elektronen zich in een aantal schillen rondom de kern van het atoom. Iedere schil heeft zijn eigen energieniveau en een beperkt aantal elektronen. Hoe verder van de kern verwijderd, hoe hoger het energieniveau en aantal elektronen per schil. 1

Vanuit deze achterliggende theorie ontstaat het concept voor mijn energiecentrale. Er is een kern die voorziet in de ‘ruwe’ energievorm. Vanuit de kern ontstaan er verschillende vormen van energie een ring verder. In het park zal deze rimpeling zichtbaar worden. Deze uitgangspunten hebben gevolgen voor de lay-out, maar ook voor de verschijningsvorm van de energiecentrale. Het moet duidelijk zijn dat er iets gebeurt binnen de volumes. Zij mogen energie uitstralen, maar tegelijkertijd ook mensen verleiden om op onderzoek uit te gaan. Tijdens deze ontdekkingstocht kan de energiecentrale van binnen worden ervaren.

Schets: Concept energiecentrale

0. Route rondom de bron langs alle functies

50
Energie niveau
BRON
Bronnen: 1. Natuurkunde 4, J. Ritzen, Hogeschool Enschede Elektronen Schillen Kern BRON
51 Waterstof Elektriciteit Warmte Overige BRON Waterstof Elektriciteit Warmte Overige BRON
1. De bron voorziet in energie voor de drie energiedragers
Bezoekers Bezoekers Bezoekers Bezoekers Waterstof Warmte Elektriciteit Overige BRON
2. Energie naar buiten toe uitstralen, om zo mensen te verleiden 3. Zicht op het binnenplein bieden

Schema: lineaire organisatiestructuur

De organisatie

Uit voorgaande onderzoeken is gebleken dat de meeste energievormen functioneren volgens een lineair relatieschema. Deze energiecentrales voorzien altijd in een enkele energievorm. De energiecentrale in mijn opgave zal gaan voorzien in elektriciteit, warmte en mobiliteit, hoe kan een dergelijke energiecentrale georganiseerd worden.

De lineaire organisatie zoals de meeste energiecentrales zijn georgansieerd werkte wel. Echter nodigde deze structuur niet uit om op ontdekking te gaan. Bij een lineaire routing is het direct duidelijk en zichtbaar waar je doorheen kan en biedt dan ook geen verrassingen. Kortom de spanning noodzakelijk voor ontdekking ontbrak.

Schema: radiale organisatiestructuur

Vanuit het PVE en de analyses van de energiecentrales was de eerste veronderstelling dat een radiaal model, een aantal lineaire composities met een gemeenschappelijk centrum kon leiden tot een goede organisatie van het model. Deze opzet bracht een probleem met zich mee. Het model begon zich steeds meer te gedragen als een geclusterde organisatie. Daarnaast begon het gebouw op plattegrond niveau langzaam het gevaren tekenen van radioactiviteit te lijken. Deze letterlijke verwijzing moet voorkomen worden. Ook biedt deze organisatie vorm geen aanleiding tot verwevenheid met de omliggende woonwijk.

Door de radiale organisatie structuur te vereenvoudigen word de leesbaarheid van het ensemble van volumes verbeterd. Hierdoor verandert de organisatie van radiaal naar een geclusterde samenstelling van volumes. Zo kunnen bepaalde volumes samen een gemeenschappelijke vorm delen. Alle volumes verhouden zich tot de bron van de centrale en delen allemaal dezelfde gevel. Deze geclusterde organisatie zie je ook terug in de stempelvormen van de omringende woonwijk.

Schema: geclusterde organisatiestructuur

Onderzoek naar geclusterde organisatiestructuren met functies

Bronnen:

1. Ching, F. (1979). Architecture, form, space & order.

52
GSPublisherVersion 0.67.100.100
Schetsend zoeken naar het ensemble van volumes

De stempels

De omringende woonwijken rondom de locatie worden sterk gekenmerkt door de stempelstructuur van de jaren ‘70. De stempels in deze wijk kenmerken zich door rondom een groene openbare ruimte te zijn georganiseerd. Deze groene zone is bereikbaar door veelal langs de kopse kant van de appartementen de groene zone binnen te lopen.

Om mijn ingreep in het park te laten aansluiten op zijn omgeving, wordt er gebruik gemaakt van dit principe. Waarbij de wanden net als bij de appartementengebouwen de grens creëren tussen het park/woonwijk en de kern/het groen. De organisatie van de appartementen rondom de groene plek is in feite een geclusterde organisatie. Deze twee eigenschappen gebruik ik ook bij de verdere vormgeving van mijn energiecentrale

De locatie

53
Stempel structuren schaal 1:1000 Structuur 3 Structuur 9 Structuur 5 Structuur 8 Structuur 11 Structuur 4 Structuur 7 Structuur 10 Structuur 2 Structuur 1 Conclusie Structuur 13
Onder: Google maps view met enkele stempels uitgelicht in de omringende woonwijken Boven: Registratie van de voorkomende stempels in de wijk met conclusie.

Vierkante meter eisen per functie

De gekozen vorm van het paviljoen ontstaat in een aantal stappen, waarbij alle volumes rondom de bron georganiseerd zijn. De eerste stap, het verschalen van de volumes komt voort uit het opgestelde PVE, waar per functie vierkante meter eisen zijn opgesteld. Zo heeft het gebouw waar elektriciteit wordt opgewekt het grootste oppervlak: volume E. Gevolgd door de wijkverwarming: volume W. Daarna het elektrolysegebouw voor de productie van waterstof: volume H2 Het kleinste gebouw is het controle gebouw die dienende is aan de gehele centrale: volume D. Zo ontstaan er vier volumes die zich tot elkaar verhouden.

0. Startpunt van de vorm

Volumes verschalen naar de gevraagde functie Volumes aanpassen

1.

3. Volumes afschuinen:

1. De volumes worden in een opeenvolging rondom de bron georganiseerd. Vergelijkbaar met de stempelstructuur in de omringende woonwijken. Waarbij woongebouwen rondom een (groen) plein zijn georganiseerd.

2. Door ruimte tussen de volumes te maken door verschuiving van de volumes ten opzichte van elkaar, ontstaan er toegangen tot het plein rondom de bron.

vier funties organiseren rondom de bron

3. Door één afgeschuinde lijn mee te geven aan de afzonderlijke volumes ontstaat er een convergerende werking van de wanden. Gevolg is dat er een circulatie rondom de bron ontstaat.

De vier funties organiseren rondom de bron

Volumes afschuinen : hierdoor vervormd het plein en krijgt het een richting

54
W
D E
naar functie
H2
GSPublisherVersion 0.67.100.100
2. Volumes los van elkaar plaatsen
GSPublisherVersion 0.67.100.100
Organiseren rondom de bron
Bron
De vorm van het paviljoen
W H2 D E
Programma van eisen

4. Door het maaiveld bij entree van de energiecentrale te laten oplopen, wordt in combinatie met de convergerende wand en bepaalde oneindigheid meegeven aan de wand. Vergelijkbaar met het effect van het Sea Level van Richard Sierra (1996)

5. Door een verschil van ritme aan te brengen tussen de binnen en buitengevel wordt het voor de bezoeker leesbaar wanneer hij zich binnen de grenzen van de energiecentrale bevindt.

Hellingbaan brengt je vier meter omhoog, om vervolgens weer af te dalen naar het centrum

6. Door in de gevel duidelijke openingen aan te brengen, wordt duidelijk waar de volumes toegankelijk zijn. Daarnaast wordt hierdoor de activiteit in de gevel naar buiten toe zichtbaar.

Verschil in gevelrimte tussen de buiten- en binnengevel

Gevels maken duidelijk waar de volumes toegankelijk zijn, ook wordt de activiteit zichtbaar aan de buitengevel

55
GSPublisherVersion 0.67.100.100
4. Hellingbaan introduceren
GSPublisherVersion 0.67.100.100
5. Gevelrimte 6. Gevelopeningen

De bron

Het reactorgebouw, de energiebron van alle energievormen bevindt zich in het centrum van de energiecentrale. Zodra de bezoekers zich op menselijke schaal met de energieopwekking begeeft is het reactorgebouw zichtbaar. Hier zijn meerdere plekken voor kleine reactoren, waardoor er eenvoudig kan worden op- of afgeschaald, afhankelijk van groei of

van de stad.

56
Maaiveld rondom naar beneden drukken waardoor het reactorgebouw weer zichtbaar wordt Dak overstek meegeven waardoor het zicht van de bezoeker wordt opgepakt 2. Maaiveld rondom de randen naar beneden drukken waar het reactorgebouw weer zichtbaar wordt. 4. Dakoverstek meegeven waardoor het zicht van de bezoeker wordt opgepakt naar de andere kant van de energiecentrale Reactor gebouw in het maaiveld drukken hierdoor vrij zicht op de binnenplaats Reactorgebouw visuele open maken, hierdoor worden de reactoren zichtbaar 1. Reactorgebouw wordt in het maaiveld gedrukt, hierdoor vrij zicht over de binnenplaats. 3. Reactorgebouw visueel open maken, hierdoor worden de reactoren weer zichtbaar. krimp
GSPublisherVersion 0.66.100.100
Doorsnede over bron van de energiecentrale schaal 1 : 500 Boven: Overzicht over het binnenplein van de energiecentrale

Ondersteuning

Paviljoen gelegen in het park

Elektriciteitscentrale

Oplopend maaiveld

Warmtecentrale

Openingen in de gevel

Openingen in de gevel

Openingen in de gevel

Waterstofcentrale

Openingen in de gevel

57
De Kern Isometrie van de energiecentrale in het park

De situatie tekening laat de configuratie van de volledige energiecentrale in het park zien. De energiecentrale ligt gecentreerd in het park. Het park en dus de energiecentrale is vanuit verschillende plekken langs de randen van het park toegankelijk. Vanaf deze randen start de route naar de entrees van de verschillende gebouwen die samen de energiecentrale vormen

Situatie tekening

Schaal 1 : 2000

58 GSPublisherVersion 0.66.100.100

Smeetlandsedijk

Turbine & generator gebouw Pomp installatie

Stadsverwarmings installatie

Warmtewisselaar

Transformator gebouw

Reactor gebouw Controle kamer

Warmtewisselaar Warmtewisselaar

Ogierssingel

Waterstof opslag

Kantoren, ontvangst werkplaats en opslag

Turbine & generator gebouw Pomp installatie

Stadsverwarmings installatie

Warmtewisselaar

Transformator gebouw

Reactor gebouw Controle kamer

Kantoren, ontvangst werkplaats en opslag

Meester Arend van der Woudenslaan

Waterstof opslag

Elektrolyse gebouw Molenvliet

Warmtewisselaar Warmtewisselaar

Elektrolyse gebouw

Meester Arend van der Woudenslaan

Molenvliet Smeetlandsedijk
Schaal : 1 : 2000 0 10 20 50

Wat maakt een park?

Een park is veelal een omsloten tuin waar iedereen welkom is. Het is een stuk door mens gecultiveerde natuur. Parken worden tegenwoordig vaak bestempeld als de groene longen van de stad.

De energiecentrale komt op een centrale plek in de wijk te liggen. Een gebied dat normaal gesproken gereserveerd wordt voor recreatie mogelijkheden. Wat is er nodig om deze plek als integraal onderdeel te laten zijn van het stedelijk weefsel.

Zoals Kevin Lynch (1960) omschrijft in zijn ‘The Image of the City’ 1 heeft een openbare ruimte een bepaalde visuele kwaliteit, die men ervaart door waarneming/ beleving. Deze ‘Mentale Map’ beschikt over vijf elementen: route, randen, gebieden, knooppunten en herkenningstekens. Deze elementen vormen samen of individueel de visuele kwaliteit van de openbare ruimte.

Een park kan daarnaast over een aantal eigenschappen beschikken. Zo kan er ruimte zijn voor rust, spel, sport, studie en ontmoeting. Een park is een plek waar mensen komen om te ontladen of om juist op te laden. Aan deze eigenschappen kunnen de elementen van Kevin Lynch gekoppeld worden.

Door het park te voorzien van een route met knooppunten, ontstaan op deze knooppunten rust- en ontmoetingsplekken. De route door het park is zo georganiseerd langs de energiecentrale, dat er ook momenten met een doorzicht naar andere plekken in het zijn park zijn. Dit uitnodigt uit tot ontdekking(studie). Ook zal blijken bij verdere ontdekking van de route, dat sommige routes doodlopend zijn en nergens naar toe leiden(spel/sport)

Bronnen:

1. The Image of the City, Kevin Lynch |1960, Cambridge: the M.I.T. press

60
Eerste schetsen van wat de zoektocht zou kunnen betekenen
1 3 2
Route als zoektocht, waarbij de hellingbanen een visueel voorproefje geven van het midden plein in de centrale.

Route als zoektocht

Door de route naar de centrale toe een ontdekkingsreis te maken, zijn er doodlopende paden toegevoegd. Deze doodlopende stukken werken als rustpunten op de route, net als de plekken waar wandelpaden samen komen. Telkens werkt de energiecentrale als herkenningspunt langs de routes. Waarbij de gevel helpt met het vinden van een mogelijke entree de energie centrale in. De ruimtes tussen de afzonderlijke gebouwen helpen, in combinatie met de hellingbaan de blik van de bezoeker op het binnenplein te richten en de nieuwsgierigheid te wekken om op verdere ontdekking te gaan.

De route van en naar de energiecentrale toe is onderdeel van een zoektocht naar mogelijke entrees. Hierdoor kan de bezoeker van het park rustige de energiecentrale in zich opnemen alvorens hij probeert op menselijke schaal met de energieopwekking te komen. Door deze zoektocht door het park wordt de bezoeker langs de gevels genavigeerd waarbij er af en toe een blik op de ingewanden van de energiecentrale geworpen mag worden.

61
Rust moment langs de route met een blik op de energiecentrale
3 1 2
Doodlopend pad, met blik op centrale en binnenplaats Boven: Blik op de ingewanden van de energiecentrale

Bij aankomst in het park wordt het duidelijk waar het park betreedbaar is, door verschil in afwerking wordt duidelijk wanneer het park betreden wordt. Vanaf dit moment start de ontdekkingstocht naar de juiste route de energiecentrale in. Sommige routes zullen dan ook korter blijken te zijn dan andere routes. Hieronder is een globale weergave van één van de vele wandelroutes vanuit de woonwijk de centrale in.

Een

wandeling door het park

Een voorbeeld route naar de energiecentrale toe

62
1 3 4 5 6 7
1 2
Bij entree van het park is het niet persé direct duidelijk wat er midden in het park staat.

de energieopwekking

63
3 2 4
Boven: Terwijl de bezoeker zich langs de route beweegt blijkt de gevel minder gesloten is dan in eerste opslag leek. Links: Het is duidelijk geworden waar de entree opening in het volume zit. Een eerste stap om vanaf een ander perspectief te mogen aanschouwen.

De waterdamp ter plaatse van de helling baan, heeft net als de gevel zelf een functionele eigenschap. Om de centrale goed te laten functioneren moet de zoutoplossing die gebruikt wordt in de warmtewisselaars gekoeld worden. Een groot deel gebeurt door de gevel het andere gedeelte gebeurt door koelwater bassins binnen de vier gebouwen. Gevolg hiervan is dat er waterdamp vrij komt.

>Een wandeling door het park

64
5
Met het gewicht van de betonwand in de nabijheid langzaam op menselijke schaal komen met de energieopwekking.

Boven: Op menselijke schaal de energieopwekking aanschouwen.

Onder: Vanaf dit punt kan er een blik terug worden geworpen op de wijk, waar de energie naar toe vloeit

De afgelegde route helpt om als bezoeker van de energiecentrale op een menselijke schaal ten opzichte van de energieopwekking te komen. Dit gebeurt door langs een hellingbaan, met een betonwand aan één zijde omhoog te lopen, net zoals bij het Sea Level van Richard Sierra (1996) het geval is. Hierbij is aan het begin van de route het gewicht van de energieopwekking te voelen als gevolg van de nabijheid van de betonwand. Ook lijkt de route langer dan dat hij daadwerklijk is als gevolg van de perspectiefmanipulatie.

65
6
7

Doorsnede en gevelaanzicht

Gevelaanzicht: elektriciteitsgebouw Schaal 1:400

Langsdoorsnede: elektriciteitsgebouw Schaal 1:400

66 GSPublisherVersion 0.66.100.100
-3,000 MV +1,400 +4,000
Dwarsdoorsnede: elektriciteitsgebouw Schaal 1:400

Zuiderhof van Dudok (1960) en het Sea Level van Richard Serra (1996) beschikken beide over een verschijnsel dat iets doet met je zintuigen en perceptie. Namelijk iets verder weg laten lijken dan het is en een bepaald gewicht op de gebruiker overdragen. Dit wordt bereikt doordat de perceptie van het maaiveld veranderd.

In beide gevallen vindt de verandering in het maaiveld plaats over plus minus tweehonderd meter. In Zuiderhof voert het pad je over twee evenwijdige paden langs de graven van overledene. Bij het Sea level snijden twee tegen over elkaar gelegen wanden dwars door twee afzonderlijke taluds heen, ook staan de wanden onder een hoek ten opzichte van zijn omgeving.

Referentie projecten

Gegevens Zuiderhof Hilversum

Crematorium ontworpen door Dudok in 1960

Hoogteverschil : 6 m

Lengte : 214 m

Verhouding : 1 : 35 hoogte per meter : 0.028 m

68
6m hoog 214m lang 5m breed pad Onder: Crematorium in de rug de helling op kijkend Links boven: Blik rechts langs het crematorium de helling omhoog Rechts boven: Crematorium in de rug de helling op kijkend

De vergelijking

Het verloop van de helling is bij crematorium Zuiderhof minder voelbaar als je eenmaal aan het hoofdgebouw voorbij bent. Dit komt door het ontbreken van een directe oriëntatie, de bomen lijken visueel met de hellingshoek mee te gaan. Gevolg is dat hierdoor de bomenrij niet anders wordt ervaren dan wanneer er langs een vlak pad was gelopen.

De helling is alleen waarneembaar met het gebouw in beeld. De hellingshoek van Zuiderhof is twee keer zo stijl als bij het Sea Level, echter door het ontbreken van een directe referentie ervaar je dit niet zo. Daarnaast helpt de opdeling in drie vakken mee met het verkleine van de optische afstand. Om dit te bereiken is het eerste vak, welke het dichts bij het crematorium ligt het kleinste, het verst gelegen vak is het grootst

Zodra je het crematoriumgebouw van Zuiderhof achter je laat valt ook het zichtbare verloop van het maaiveld weg. Dit gebeurt niet bij het Sea level, hier wordt juist door de wand in de helling het verloop in het maaiveld benadrukt.

69
Peil P+6 m 214 m Boven: Google maps view met afmetingen en vlak verdeling van de begraafplaats Onder: Blik links langs het crematorium de helling omhoog

De vergelijking

Het volledige kunstwerk bestaat uit twee wanden die worden gescheiden door een sloot die er diagonaal doorheen snijdt. Beide tegen over elkaar liggende wanden zijn opgenomen in een dijklichaam

Het hoogte verloop door nabijheid van de wand is voelbaar, je voelt als het gewicht van de wand op je drukken wanneer je er langs omhoog loopt. Door de constante referentie van de wand wordt de helling ervaren. Daarnaast voelt de wandeling omhoog door de perspectivische vertekening ook langer. Het contrast van de betonwand in het groene gras draagt ook bij aan de gehele ervaring.

> Referentie projecten

Gegevens Sea level

Landart ontworpen door Richard Serra in 1996

Hoogteverschil : 3 m

Lengte : 200

Verhouding : 1 : 63

hoogte per meter : 0.015 m

70
3m hoog 190mlang
Onder: Sea level schuin van voren Links boven: Frontaal aanzicht op het Sea Level Rechts boven: Langs gezicht van het Sea Level

Perspectiefmanipulatie

In beide projecten kan gesproken worden over perspectiefmanipulatie, waarbij de reële ruimte naar de hand van de ontwerper wordt gezet. Hiermee wordt een nieuwe verwachting neergelegd bij de bezoekers, die bij ervaring van de ruimte er gaandeweg achter komt dat het slechts een illusie blijkt. Deze vorm van perspectiefmanipulatie is terug te herleiden naar de tuin van Vaux-le-Vicomte ontworpen door André Le Nôtre 1. Waar ook wordt gespeeld met hellingen en verhoudingen om optische afstanden te creëren die bij beleving van de afstanden korter of langer blijken te zijn. 200m

Conclusie

Zuiderhof van Dudok en het Sea Level van Richard Serra beschikken beide over een verschijnsel dat iets doet je met je zintuigen en perceptie. Namelijk iets verder weg laten lijken dan het is. Daarnaast weten beide ontwerpen en een bepaald gewicht op de gebruiker overdragen. Dit wordt onder andere bereikt doordat de perceptie van het maaiveld veranderd.

In beide gevallen vindt de verandering in het maaiveld plaats over plus minus tweehonderd meter. In Zuiderhof voert het pad je over twee evenwijdige paden langs de graven van overledene. Bij het Sea level snijden twee tegen over elkaar gelegen wanden dwars door twee afzonderlijke taluds heen, ook staan de wanden onder een hoek ten opzichte van zijn omgeving.

71
Bronnen: 1. Steenbergen, C. M., & Reh, W. (2003). Architectuur en landschap: het ontwerpexperiment van de klassieke Europese tuinen en landschappen.
P-3 m
Peil Onder: Blik gericht langs het fietspad met het Sea Level in het zicht Boven: Google maps view met afmetingen en vlak verdeling van de landart

De gevel

De eerste ontwerp aanzetten van de energiecentrale, gingen over doorkijkjes en begeleiden van het zicht. Dit heeft mij uiteindelijk bij de definitieve gevel gebracht. Een gevel voorziet meestal in aantal functies. Het biedt bescherming tegen de elementen en is daarmee de grens tussen binnen en buiten. Verder fungeert een gevel meestal ook als het canvas voor de entree. Samen met de openingen vormt dit de facade van het gebouw. Doormiddel van schetsen en het maken van maquettes is de uiteindelijke gevel tot stand gekomen. De gevel voor de energiecentrale heeft nog een paar taken erbij gekregen, één daarvan is die van constructief element. Samen met het dak vormt de gevel een constructief geheel. Door de gekozen vorm werkt de gevel afhankelijk van de kijkhoek als een lamel. Vanuit bepaalde hoeken lijkt de gevel gesloten, maar als er langs de gevel bewogen wordt ontstaan er openingen in de gevel die zicht bieden op de ingewanden van de energiecentrale. Door het onderbreken van het ritme in de gevel wordt duidelijk waar de gebouwen toegankelijk zijn. De andere functie is die van warmtewisselaar. Als gevolg van de energieopwekking blijft er nog een deel van restwarmte over. Om te voorkomen dat er luidruchtige machines op het terrein geplaatst moeten worden fungeert de gevel als één grote warmtewisselaar om het laatste beetje warmte kwijt te raken.

72
Maquettes van mogelijke geveldoorgangen Maquettes van lamelwerking

Maquette onderzoek naar schaduw en lichtwerking in de gevel Gevelonderzoek door middel van schetsen. Waarbij ook gekeken worden naar gevelopeningen

73
Maquette onderzoek naar lamelwerking

>De gevel

De gevel is in feite een samenstelling van twee driehoeken met een zakgoot ertussen. Omdat de gevel een warmtewisselaar is, is het een logische keuze om de gehele gevel op te bouwen uit metaal. Dit geleidt nou eenmaal beter warmte dan beton of hout. Belangrijk hierbij is dat de gevel ook in het aangezicht ‘aanvoelt’ als een metalen gevel. Daarom is onderzoek gedaan naar verdeling van de gevel en invulling van deze verdeling. Uiteindelijk levert dit de gevel op zoals op het rechter blad in aanzicht en render zichtbaar is.

74
5. Lamel toevoegen
GSPublisherVersion 0.71.100.100 1.
2.
3.
Wand en dak
Naar binnen duwen
Punten naar elkaar 4. Punt naar voren
Onderzoek naar verdeling van geveldelen Schema van de gevelvervorming Onderzoek naar invulling met gekozen richting voor de afwerking
75
Gevelaanzicht vanaf de Meester Arend van der Woudenslaan Gevelaanzicht waterstof schaal 1:400

Materiaalkeuzes

Alle gebouwen in de energiecentrale hebben dezelfde uniforme uitstraling. De gevels werken allemaal volgens hetzelfde principe. Loop je van één kant richting het gebouw kan de gevel dicht gesloten lijken, vanaf een andere richting kijk je de centrale in. Dit komt doordat er een diepere lamel is toegevoegd aan de gevel. Door deze lamel een andere kleur mee te geven dan de rest van de gevel kan er onderscheid gemaakt worden tussen de vier afzonderlijke hoofdvolumes. De kleuring gebeurt door het temperen van de afwerking van de gevel. Door het staal op een bepaalde temperatuur te verwarmen kan er kleur worden meegegeven aan een anders blank stuk staal. Hiermee krijgen de gelijkende volumes van de centrale ook aan de buitenkant een eigen identiteit.

76
Warmte Elektriciteit Dienend
Open of dichte gvel afhankelijk van je aanloop route. Waarbij er aan de kleur van de wangen verschil tussen de gebouwen kan zien Voorbeelden van getemperd staal. Schema van lamelwerking van de gevel
Waterstof
Maquette: Gevel wordt opent zich terwijl je er langs beweegt

Boven: Aanzicht van een gesloten gevel

Onder: Aanzicht van een geopende gevel

77

Plattegronden en doorsneden

Begane grond

Schaal 1 : 1000

78 GSPublisherVersion 0.66.100.100 DRSA DRSA
B-DRS B-DRS C-DRS C-DRS
GSPublisherVersion 0.66.100.100 A A B B C C Eerste verdieping 79 Schaal 1 : 1000
80
Kijkend naar de waterstof centrale

>Plattegronden en doorsneden

82 De energiecentrale GSPublisherVersion 0.66.100.100 A B -3,000 MV +1,400 +4,000 Schaal 1 : 500 Langsdoorsnede en plattegrond van de elektriciteitscentrale Schaal 1:400

De gevels De vier functies

Overzicht van de functies

De route en het middenplein

Geëxpandeerde isometrie van de energiecentrale

Warmte

Elektriciteit Dienend Waterstof

83

>Plattegronden en doorsneden

84 GSPublisherVersion 0.66.100.100 B C E -6,000 MV +4,000 +8,000 De warmtecentrale
1 : 500 Langsdoorsnede en plattegrond van de warmtecentrale
1:400
Schaal
Schaal
85 Te
midden van de warmtecentrale
86 GSPublisherVersion 0.66.100.100 D A E MV +4,000 +8,000 +12,000 De waterstofcentrale Schaal 1 : 500 Langsdoorsnede en plattegrond van de waterstofcentrale Schaal 1:400 >Plattegronden
en doorsneden
87 Zicht op de waterstofcentrale
88
De energiecentrale gezien vanuit het park in de avond, waarbij de gevel energie uitstraalt.

In deze afstudeeropgave is onderzoek gedaan naar hoe een CO2 vrije energievorm kan worden opgenomen in het stedelijk weefsel. Dit onderzoek kan gezien worden als één van de mogelijke antwoorden om de klimaatverandering terug te dringen, de netcongestie te verhelpen en een antwoord om onze energieopwekking een duurzamere mix te maken. De maatschappelijke gevolgen van een te kort aan elektriciteit, warmte of mobiliteit zijn moeilijk in te schatten. Wel snapt iedereen dat onze huidige samenleving niet zonder deze bronnen kan.

Gezien de huidige klimaatproblematiek zal onze houding open moeten zijn naar iedere aangedragen oplossing, anders komen wij geen stap verder. Wij kunnen blijven inzetten op de al bekende CO2 vrije duurzame energiebronnen van zon- en windenergie, maar hiermee gaan kolen- en gascentrales niet snel worden uit gefaseerd. Gewoon weg omdat deze bronnen geen alternatief, maar een aanvulling zijn op de aanwezige fossiele energiebronnen. Een vervanger van de fossiele energiebronnen zal continu een stabiele hoeveelheid energie moeten opwekken, waarbij zon- en windenergie de aanvulling hierop zijn. Een gezonde CO2 vrije energiemix.

Conclusie

Wat ik mij terdege besef, is dat de gekozen oplossing gefronste wenkbrauwen zal opleveren, of zelfs mensen die faliekant tegen zijn. Dat mag, want een tegengeluid zal zorgen voor een breder gedragen oplossing. Veelal zijn deze mensen tegen omdat zij bij het woord kernenergie een bepaalde negatieve associatie hebben, veelal ongegrond en gebaseerd op een gevoel in plaats van daadwerkelijke feiten. Uit de onderzoeken die ik heb gedaan en de gesprekken die zijn gevoerd met experts. Kan worden geconcludeerd dat de gekozen energievorm. Die van een gesmolten zoutreactor, alle bekende bezwaren geheel of grotendeels wegneemt en dat het eigenlijk een gemiste kans is om deze oude energievorm niet een tweede kans te geven. Zelfs als er naar de sterfgevallen per opgewekte kWh wordt gekeken, is het risico zeer gering. Zelfs zon- en windenergie blijken dan de dodelijkere alternatieve. Dit betekent niet dat kernenergie vrij van zijn risico’s is. Want het afval blijft net als bij alle andere energievormen altijd een probleem. Door de energiecentrale publiekelijk toegankelijk te maken, kan door het betreden van de energiecentrale op een menselijke manier op de energieopwekking worden gekeken. Hierdoor ontstaat er begrip voor de werking en de betekenis voor de stad, zijn bewoners en de omgeving rondom de stad.

Met de bouw van een energiecentrale in de stad kan het landschap met rust gelaten worden. Waardoor de energievraag van de stad ook daadwerkelijk wordt opgelost binnen de grenzen van de stad. Waarmee lek-, opwekkings-, transport-, conversie- en systeemverliezen enorm kunnen worden beperkt. Deze efficiëntieslag resulteert heeft een kleinere energiecentrale tot gevolg. De energie wordt namelijk efficiënter gebruikt omdat het stedelijk netwerk door de kortere afstanden minder verlies kent. Een kleinere energiecentrale is dan ook noodzakelijk voor de moderne stad. De ruimte in de huidige steden is al beperkt en zal in de toekomst alleen maar verder afnemen. De zoektocht naar een locatie in de stad Rotterdam was een rationele. Op basis van het openbare geografisch informatiesysteem (GIS) was te achterhalen waar de energie door de stad loopt. Ook is er informatie beschikbaar over het gebruik van de verschillende energiebronnen. Door deze verschillende lagen te combineren ontstond een nieuwe kaart. Met deze kaart is de meest logische plek voor een energiecentrale bepaald. Een plek waar eenvoudig kan worden aangesloten op aanwezige energiestromen. Deze energiestromen kunnen variëren van onder- of bovengrondse elektriciteitsleidingen, transformatorhuizen, warmtenetten maar ook een tram of treinnetwerk.

90

Belangrijk bij energieopwekking in de stad, is dat de bewoner maar zeker ook de bezoeker van de energiecentrale zich op een menselijke schaal gaat leren verhouden tot de installaties die komen kijken bij onze energievoorzieningen. Hiermee zal er begrip ontstaan. De gekozen gevelvorm doet iets met je perceptie. Afhankelijk van de aanloop route richting het park, kan er wel of niet een glimp van de ingewanden van de energiecentrale worden opvangen. Als er langs de randen van het park wordt bewogen zal dit beeld telkens veranderen. Wanneer het park daadwerkelijk betreden wordt, dan wordt het vinden van de juiste route onderdeel van de zoektocht naar de entree van de energiecentrale. Tijdens deze wandeling wordt de blik van de bezoeker af en toe richting het binnenplein van de energiecentrale getrokken. Eenmaal bij een entree aangekomen begint de wandeling om op menselijk schaal ten opzichte van de installaties te komen. Hierbij begeleid een hellingbaan en het ritme van de gevel de bezoeker langzaam omhoog. Om vervolgens oog in oog te staan met de installaties. Vanaf dit niveau zijn de overige gebouwen en de bron op het midden plein van de energiecentrale te aanschouwen en te betreden.

Naast de maatschappelijke en technische oplossingen die het ontwerp biedt. Bied de afstudeeropgave ook een nieuwe ruimtelijk kijk op onze energieopwekking. De ruimtelijke uitwerking van de huidige energie opwekkers is veelal de conclusie van de vele technische uitgangspunten. Dit ontwerp koppelt hier een menselijke en ruimtelijk kant aan. Deze energiecentrale is in plaats van een afstandelijk anoniem volume in de ruimte een toegankelijk herkenbaar object in de stad geworden. Een die niet alleen een gevel is, maar ook uitnodigt tot op onderzoek uitgaan en ontdekken wat er achter de gevels schuil gaat.

Als ontwerpers zijn wij instaat om nieuwe oplossingen voor problemen te formuleren. Sommige ideeën zorgen, omdat zij zo tegendraads zijn in het begin voor gefronste wenkbrauwen of leveren onbegrip op. Echter is de intentie van deze ideeën altijd om de wereld een stapje beter, gezonder en prettiger te maken. Zo ook het idee van een energiecentrale in de stad. Waarmee de directe energievoorziening van een stad is gewaarborgd. De netcongestie wordt terug gedrongen, het landschap buiten de stad wordt ontzien en er een enorme reductie in verontreinigende stoffen kan worden behaald.

Dit onderzoek is een aanzet om gesmolten zoutreactoren weer op de agenda te krijgen. Ja het schuurt. Wie wil er een energiecentrale in de stad. De vraag is, waarom willen we energiecentrales in het landschap? Doordat de afstand van bron tot gebruikers groter is, hebben we meer en grotere energiebronnen nodig en wordt de netcongestie zeker niet opgelost. Dit is geen broeikasgas uitstotend monster, of een slagschaduw zoevende witte kolos. Hij reflecteert niet de hele dag zonlicht precies door jou raam. Dit is een mensvriendelijk en toegankelijke paviljoen in een park. Hij maakt het leven in de stad op een duurzame CO2 vrije manier mogelijk.

91

Twee jaar geleden ben ik gestart aan mijn afstudeeropgave. Een laatste kans om vrij van de ‘echte’ wereld geheel zelf een opdracht te formuleren. Waarbij ik door in gesprek te zijn met begeleiders, mentor en mede studiegenoten mijn eigen koers mocht uitstippelen.

De motivatie van mijn afstudeeropgave ligt echter deels veel verder terug. In mijn tiener jaren toen ik voor het eerst in aanraking kwam met natuur- en scheikunde. Dit gecombineerd met mijn ambities om als architect gebouwen te maken, welke iets toevoegen aan een groter systeem maakte de beginselen van mijn opgave.

Mijn afstudeervoorstel leverde zeker in het begin een hoop weerstand op. De maatschappelijke relevantie en de betekenis voor het vakgebied werden zelfs in twijfel getrokken. Ondanks deze weerstand mocht ik doorgaan met mijn gekozen onderwerp. Mijn mentor stond achter mijn standpunten waardoor mijn afstuderen doorgang vinden. Tot en met de eerste derde schouw heb ik altijd getwijfeld aan mijn gehele opgave. Ik had dan ook het gevoel iedere keer alle aanwezige te moeten overtuigen van mijn standpunten. Hierbij moet ik wel bekennen dat ik in de theoretische onderbouwing sommige presentaties ben doorgeslagen en hiermee wellicht het onderdeel van vormgeving en architectuur enigszins verwaarloosd heb. Dit is punt waar ik aandacht aan moet blijven besteden. Complexe technische uitgangspunten pluis ik altijd het liefst helemaal uit, om deze vervolgens het hoofdonderwerp van een presentatie te maken. Ik zal in de toekomst meer moeten inzetten op het ontwerp. Waarbij ik de kennis van het onderwerp ga inzetten om het ontwerp kracht bij te zetten. Mede hierdoor kwam mijn derde schouw niet helemaal uit de verf. Ik was zo gefocust om iedereen mee te krijgen in het technische verhaal waarom mijn onderwerp noodzakelijk voor onze samenleving, dat ik hiermee de uitleg van mijn ontwerp te kort deed.

Reflectie

Toen ik begon met afstuderen had nog bijna niemand gehoord van netcongestie of de energietransitie. Vaag was er bij veel mensen bekent dat wij een klimaatprobleem hadden. Maar niet iedereen durfde deze direct te linken aan onze manier van leven. Zij zagen dan ook geen bedreig voor onze samenleving, het was een ver van je bed show. Zo werd mijn afstudeervoorstel door de beoordelaars gebagatelliseerd. De oorlog in Oekraïne en de aardbevingen in Groningen hebben veel Nederlanders laten merken dat ons hele energienetwerk best kwetsbaar is. Ik ben stiekem dan ook blij voor mijn standvastigheid over dit ontwerp. Ik denk dat inmiddels wel degelijk is vastgesteld dat wij met de gehele westerse samenleving een energie- en klimaatprobleem hebben dat veroorzaakt wordt door onze manier van leven. Ik hoop dat door mijn gekozen stelling van een kerncentrale in een stad dit dialoog voor kernenergie ansicht open gevoerd kan worden. Omdat ik van mening ben dat deze energievorm samen met de duurzame CO2 vrije energiebronnen een gezonde energiemix voor de wereld kan zijn, totdat er een beter alternatief is…

Dat mijn onderwerp en zeker de gekozen energievorm voor opgetrokken wenkbrauwen zou gaan zorgen heb ik altijd begrepen. Maar had gehoopt dat vanuit de pioniers en experimenteer gedachte van de Academie, deze keuze tot op een zekere hoogte positief ontvangen zou worden. Gelukkig ben ik eigenzinnig genoeg en heb ik het onderwerp toch doorgezet. Daarnaast mag een afstudeeronderwerp schuren, dit zorgt uiteindelijk voor scherpere gesprekken.

Het begin van mijn afstudeeronderzoek was bijna een literair onderzoek, waarbij ik mij heb verdiept in ons elektriciteitsnet. Af en toe voelde het alsof ik tegen een muur op liep, kennis van bijvoorbeeld de lay-out van kerncentrales en tekeningen van installaties in energiecentrales worden gewoon niet vrij gegeven. Vind je wel tekeningen dan is het vaak een onleesbare of onscherpe tekening. Uiteindelijk door gesprekken te voeren met mensen die kennis van deze zaken hebben, werd het voor mij mogelijk om de puzzel van de indeling van energiecentrales te kunnen maken.

Als ik terug kijk op met name de indeling van het uiteindelijk ontwerp mag ik meer varen op mijn intuïtie. Een van de eerste schetsen was eigenlijk al raak qua goede lay-out. Echter heb ik deze schets in het proces naast mij neer gelegd. Vervolgens ben ik verder gaan zoeken naar een mogelijke indeling. Toen ik mijn eerste derde schouw niet gehaald heb, ben ik terug gaan kijken op al het werk dat ik had gedaan. Wat bleek, vergelijking van de verschillende lay-outs die ik al reeds had gemaakt, was een mijn eerste schetsen al de juiste richting.

Al met al heb ik veel energie en tijd in het afstuderen gestoken, korte nachten en lange dagen waren er zeker. De gehele afstudeerperiode had ik eigenlijk altijd een stemmetje in mijn achterhoofd dat ik bezig moest zijn. Dit was vergelijkbaar met de ‘normale’ periode op de Academie. Ik denk dat mijn omgeving het niet altijd even leuk heeft gevonden hoeveel tijd en energie in mijn afstuderen is gaan zitten. Maar ik heb het altijd waard gevonden en ik ben trots op het werk dat het geworden is.

92
93
Het middenplein met het reactorgebouw rond middernacht

(kranten)Artikelen

- United Nations, department of economic and social affairs, Population division 2019

Europees Milieuagentschap EEA, Eurostat

Extra update capaciteit elektrictiteitsnet, Liander, 17-11-2022

- 2019 Grid Electricity Emissions Factors v1.0 –June 2019

- Hernieuwbare energie in Nederland, Centraal bureau voor de statistiek, 2020

Rijksoverheid, landelijk actieprogramma

Netcongestie, 21-12-2022

RIVM, Ontwikkeling Standaard Stresstest Hitte

RIVM Briefrapport 2019-0008, T. de Nijs et al. 2020

drs. P.J. Zijlema 2020, Nederlandse lijst van energiedragers en standaard CO2 emissiefactoren, versie januari 2020, Rijksdienst voor Ondernemend

Nederland

Bewoners Organisatie Lombarijen, Smeetsland 1941-1991 (1991), Kranz en A. Straver, 1991

- Gemeente Rotterdam, De Rotterdamse Transitievisie Warmte 2021. Bas Kurvers et al 2021

- Gottschalk (8), deel I, blz. 227. - ‘Kernenergie-debat gaat óók over emoties’, Paul Luttikhuis, NRC 2021-05-10

- Groene kernenergie (2011-06-03): helemaal 21ste eeuw, Chris Pangers,Intermediair 22

- Nationaal perspectief Energie en ruimte, Dirk Sijmons et al, 2017

Nieuwenhuis (14), Inv.nr. 1770, Akte van overeenkomst tussen Margriete van Comene, ambachtsvrouwe van Ridderkerk, en Godschalk Oem met Hugo van Lannoy, ambachtsheren van Oost-IJsselmonde, met betrekking tot het onderhoud en de schouw over de Hordijk en de eigendom van de Middeldam, regest nr. 8 | Nieuwenhuis (13), blz. 2069.

- De Natuurwetenschappen, N. N. V. V. H. O. I., & Bouwens, R. (2013). Binas: havo/vwo: informatieboek havo/vwo voor het onderwijs in de natuurwetenschappen.

- Weinberg, A.M. (1994). The first nuclear era: The Life and Times of a Technological Fixer. Springer Science & Business Media.

- Hargraves, R. & Moir, R., 2010. Liquid Fluoride Thorium Reactors. American Scientist, 98(July/August), pp. 304-313.

- MacPherson, H., 1985. The Molten Salt Reactor Adventure. Nuclear science and engineering.

Literatuurlijst

> Boeken

- Hoek (11), blz. 12 | Renting (20), blz. 193 e.v.

- Gemeente Atlas Nederland 1865-1870, J. Kuyper, “Gemeente Oost en west Barendrecht”

- Meer, Ad van der en Boonstra, Onno “Repertorium van Nederlandse gemeenten” 1812–2011, KNAW, 2006/2011

- DeBoektant, Rotterdam Lombarijen-Smeetsland in vroeger tijden(2001), T. de Does, 2001, ISBN 9055341673

Stichting Ons Rotterdam, Nooddorp ‘Smeetsland’ is niet meer (2010), M. Groeneweg 2010.

Ons Rotterdam Jrg. 32, no. 3, 2010, p. 39-40

- Ching, F. (1979). Architecture, form, space & order

- Steenbergen, C. M., & Reh, W. (2003). Architectuur en landschap: het ontwerpexperiment van de klassieke Europese tuinen en landschappen.

Van Den Boomen, T. (2017). Stedelijke vraagstukken, veerkrachtige oplossingen: ontwerpend onderzoek voor de toekomst van stedelijke regio’s.

Weinberg, A.M. (1994). The first nuclear era: The Life and Times of a Technological Fixer. Springer Science & Business Media.

Internet bronnen

- United Nations. (z.d.). What is renewable energy? | United Nations. https://www.un.org/en/ climatechange/ what-is-renewable-energy

- Asdrubali, F., Baldinelli, G., D’Alessandro, F., & Scrucca, F. (2015). Life cycle assessment of electricity production from renewable energies: Review and results harmonization. Renewable & Sustainable Energy Reviews, 42, 1113–1122. https://doi.org/10.1016/j.rser.2014.10.082

- Van Loon, K. (2020). Biomassa, hout voor elektriciteit; de feiten. De Groene Rekenkamer. https://groene-rekenkamer.nl/11721/biomassahout-voor-elektriciteit-de-feiten/

- V136-3.45 MW®. (z.d.). https://www.vestas.com/en/ products/4-mw-platform/V136-3-45-MW

- Zonnepark Noordscheschut - HoogeveenNovar. (2023, 13 april). Novar. https://www.novar.nl/ projecten/zonnepark-noordscheschut-hoogeveen/

Wikipedia-bijdragers. (2023). IJsselcentrale. Wikipedia. https://nl.wikipedia.org/wiki/ IJsselcentrale

- Ministerie van Algemene Zaken. (2023, 16 mei). Kernenergie in Nederland. Duurzame energie | Rijksoverheid.nl. https://www.rijksoverheid.nl/ onderwerpen/duurzame-energie/opwekkingkernenergie

- Wikipedia-bijdragers. (2021). Actinide. Wikipedia. https://nl.wikipedia.org/wiki/Actinide https://nl. wikipedia.org/wiki/Actinide

> Internet bronnen

- Wikipedia contributors. (2023). Cherenkov radiation. Wikipedia. https://en.wikipedia.org/wiki/ Cherenkov_radiation

- Briant, R. C., & Weinberg, A. M. (1957). Molten Fluorides as Power Reactor Fuels. Nuclear Science and Engineering, 2(6), 797–803. https://doi.org/10.13182/nse57-a35494

- Wikipedia-bijdragers. (2022). Kernsmelting. Wikipedia.

https://nl.wikipedia.org/wiki/Kernsmelting

- Wikipedia-bijdragers. (2022). Kernramp. Wikipedia. https://nl.wikipedia.org/wiki/Kernramp

- Topotijdreis: 200 jaar topografische kaarten. (z.d.). Topotijdreis. https://topotijdreis.nl/

- https://wederopbouwrotterdam.nl/ artikelen/rotterdam-in-nood

- zWikipedia-bijdragers. (2022). Kernramp. Wikipedia. https://nl.wikipedia.org/wiki/Kernramp

- Ir. Theo Wolters, Directeur van technisch ontwerpbureau Fabrique Invent. geinterviewd in oktober 2022

- Verheijen Ingenieur bij Tennet Telefonische interview in oktober 2022

Rapporten

- IPCC 2021: Climate Change 2021: The Physical Science Basis. Contribution of Working Group I to the Sixth Assessment Report of the Intergovernmental Panel on Climate Change, Masson-Delmotte et al, Cambridge University Press, In Press, 2021-08-07

- Arcadis (2022). Onderzoek afstandsnormen windturbines. Ministerie van Economische zaken en Klimaat

- The Photovoltaic Heat Island Effect: Larger solar power plants increase local temperatures, Barron-Gafford et, 2016

- JRC Science for policy report, 2021, The use of woody biomassa for energy production in the EU, Gamia A, et al, European Commission

- Wang, B. (2021, 15 april). Deaths per TWhfor all energy sources: Rooftop solar power is actually more dangerous than Chernobyl |. NextBigFuture.com. https://www.nextbigfuture. com/2008/03/ deaths-per-twh-for-all-energysources.html

- Monitoring van radioactiviteit in voedsel en veevoer. (z.d.). RIVM.

94
-
-
-
-
-
-
-
-
Boeken Mensen
-
-
-

-

Afbeeldingen

- Speeltuin naast de gemeentelijke gasfabriek in Tilburg, Regionaal archief Tilburg, fotograaf: Schmidlin 1952

Turbine gebouw, Paks nuclear power plant, Hongarije, Ryan Smith 2018

- Energievormen, Julian Stratenschulte/dpa

- Hemweg centrale Amsterdam, John Gundlach/ANP

- Littlebrook Site Layout. (z.d.). Power Stations of the UK.

Situatie tekening Ijsselcentrale. P. De Gruyter 1955.

3-09-2022

- Kaart van TopoTijdreis, Rotterdam Zuid 1940

- Kaart van TopoTijdreis, Rotterdam Zuid 2020

- De bouw van nooddorp Smeetsland in 1940. Archief Hans Grootenhuijs

- Bebouwingskaart

- Ruimtekaart

- Openbaar groen,

- Focus op ontsluiting van de wijk en hoogtes van de bebouwing.

- Eerste ruimtelijke maquette van de energiecentrale

Renders

- Entree van één van de gebouwen

- De energiecentrale bij avondlicht

- Overzicht over het binnenplein van de energiecentrale

- Route als zoektocht, waarbij de hellingbanen een visueel voorproefje geven van het midden plein in de centrale.

- Rust moment langs de route met een blik op de energiecentrale

- Blik op de ingewanden van de energiecentrale

-

Kopenhill drawings, BIG 2020 | Bjarke Ingels Group. (z.d.).Bjarke Ingels et al 2022

- Googlemaps, kaart van Kerncentrale Borsele.

3-09-2022, van https://www.google.nl/maps/place/EPZ

- Windmolens in Groningen, foto van Eneco

Zonnepark Noordscheschut in Hoogeveen, foto van Novar.

Bal van thorium in handpalm, Flibe Energy 2018.

- Alvin Weinberg in 1967 bij de gemolten zoutreactor, Oak Ridge. Bron: National Laboratory/ US Department of Energy

- Werking van de gesmolten zoutreactor in Oak Ridge National Laboratory in 1967

Schetsen van het lamelonderzoek tijdens

2e schouw

Bovenaanzicht van het gesmolten zoutreactor experiment in Oak Ridge, 1967 Bron: Oak Ridge National Laboratory/US Department of Energy

- De verschillen in het verbruik van brandstof tussen een ‘traditionele’ kerncentrale en een thoriumcentrale. Bron: Hargraves & Moir, 2010

- Rotterdam Lombardijen van uit de lucht, Paul Martens, 28-09-2018

- Overzicht verschillende reactoren, Terrestrial Energy. (2023, 18 januari). Terrestrial Energy | Carbon-Free Energy for Global Industry.

- Rotterdamse WAT-kaart 2021, gemeente Rotterdam, 2021

- Google maps, met eigen overlay van elektriciteitsleidingen in Rotterdam

Analysekaart van alle energiestromen door Rotterdam Zuid en omstreken

Dijklichaam van de Smeetlandse dijk nog zichtbaar in het landschap

- Dijklichaamop de Ogiersling nog zichtbaar in het landschap

- Kaart van IJsselmonde in 1164, Nieuwenhuis 2014

- Kaart van TopoTijdreis, Rotterdam Zuid 1900

- Verhouding tussen een klassieke turbine hal en een gesmolten zoutreactor vat

- Lausward energie centrale, Kadawittfeldarchitektur, fotograaf:Jens Kirchner, 2016

- Tower of Light and Wall of Energy in Manchester, Tonkin Liu, Fotograaf: David Valinsky 2022

- Het zichtbare = ingeschakeld

- Lead Pencil Studio 2010, border of Canada and US

- UK Pavilion, Milan Expo, 2015, Wolfgang Buttress

- Schetsend zoeken naar het ensemble van volumes

- Google maps view met enkele stempels uitgelicht in de omringende woonwijken

- Eerste schetsen van wat de zoektocht zou kunnen betekenen

- Crematorium in de rug de helling op kijkend

- Blik rechts langs het crematorium de helling omhoog

- Crematorium in de rug de helling op kijkend

- Blik links langs het crematorium de helling omhoog

- Google maps view met afmetingen en vlak verdeling van de begraafplaats

- Sea level schuin van voren

- Frontaal aanzicht op het Sea Level

- Langs gezicht van het Sea Level

- Blik gericht langs het fietspad met het Sea Level in het zicht

- Google maps view met afmetingen en vlak verdeling van de land art

- Maquettes van lamelwerking

- Maquettes van mogelijke geveldoorgangen

- Maquette onderzoek naar lamelwerking

- Maquette onderzoek naar schaduw en lichtwerking in de gevel

- Onderzoek naar verdeling van geveldelen

- Onderzoek naar invulling met gekozen richting voor de afwerking

- Voorbeelden van getemperd staal.

- Maquette: Gevel wordt opent zich terwijl je er langs beweegt

- Doodlopend pad, met blik op centrale en binnenplaats

- Bij entree van het park is het niet persé direct duidelijk wat er midden in het park staat.

- Terwijl de bezoeker zich langs de route beweegt blijkt de gevel minder gesloten is dan in eerste opslag leek.

- Het is duidelijk geworden waar de entree opening in het volume zit.

- Een eerste stap om de energieopwekking vanaf een ander perspectief te mogen aanschouwen.

- Met het gewicht van de betonwand in de nabijheid langzaam op menselijke schaal komen met de energieopwekking.

- Op menselijke schaal de energieopwekking aanschouwen.

- Vanaf dit punt kan er een blik terug worden geworpen op de wijk, waar de energie naar toe vloeit

- Gevelaanzicht vanaf de Meester Arend van der Woudenslaan

- Aanzicht van een gesloten gevel

- Aanzicht van een geopende gevel

- Kijkend naar de waterstof centrale

- Te midden van de warmtecentrale

- Zicht op de waterstofcentrale

- De energiecentrale gezien vanuit het park in de avond, waarbij de gevel energie uitstraalt.

- Het middenplein met het reactorgebouw rond middernacht

95
-
-
-
-
-
-
-
Afbeeldingenlijst

Tabellen

- Uitstoot wereldwijd verontreinigende stoffen 2017, UNFCCC Data Inferface, 2017

- Broeikasgasuitstoot in de EU per sector 2019, Europees Milieuagentschap (EEA), Eurostat, 2019

- Elektriciteitsproductie per bron, Centraal bureau voor statistiek maart 2022

- Cijfers: Duurzaam opgewekt energie in Nederland, Centraal bureau voor statistiek, 2019

- Netschema Transportnet 22NLT02 door Hoogspanningsnet

- TenneT’s netcapaciteitskaart, 17 november 2022

- Centraal Bureau voor de Statistiek. (z.d.). Inwoners per gemeente.

- Relatieschema van de energieopwekking in de energiecentrale

- Indeling energiecentrale

- Huidige en toekomstige bereikbaarheid van onze energieopwekking

Lineaire organisatiestructuur

- Radiale organisatiestructuur

- Geclusterde organisatiestructuur

- Onderzoek naar geclusterde organisatiestructuren met functies

- Registratie van de voorkomende stempels in de wijk met conclusie.

- Schema van lamelwerking van de gevel

Tekeningen

- Doorsnede over bron van de energiecentrale schaal 1 : 500

- Isometrie van de energiecentrale in het park - Situatie tekening

schaal 1:2000

- Route als zoektocht, waarbij de hellingbanen een visueel voorproefje geven van het midden plein in de centrale.

- Langsdoorsnede: elektriciteitsgebouw

schaal 1:400

- Dwarsdoorsnede: elektriciteitsgebouw

schaal 1:400

- Gevelaanzicht: elektriciteitsgebouw

schaal 1:400

- Gevelonderzoek door middel van schetsen. Waarbij ook gekeken worden naar gevelopeningen

- Schema van de gevelvervorming

- Gevelaanzicht waterstof

schaal 1:400

- Open of dichte gvel afhankelijk van de aanloop route. Waarbij er aan de kleur van de wangen verschil tussen de gebouwen kan zien

- Begane grond

schaal 1:1000

- Eerst verdieping

schaal 1:1000

- Langsdoorsnede: elektriciteitsgebouw

schaal 1:400

- Plattegrond: elektriciteitsgebouw

schaal 1:400

- Geëxpandeerde isometrie van de energiecentrale

- Langsdoorsnede en plattegrond van de warmtecentrale

schaal 1:400

-

Langsdoorsnede en plattegrond van de waterstofcentrale

schaal 1:400

96
> Afbeeldingenlijst
-

Bijlages

Voorstel afstuderen Ondersteunende onderzoeken: - De menselijke maat Reactie schema gesmolten zoutreactor

Bijlage 1

Bijlage 2

Bijlage 3

97

Bijlage 1 Afstudeervoorstel

E = m.c2 en de Stad

Hoe kan een energiecentrale bijdragen aan het stedelijke metabolisme van het stadsdeel Feyenoord city in Rotterdam?

Afstudeervoorstel Jorrit van der Weide

ArtEZ Academie van Bouwkunst: Master Architectuur d.d. 30-08-2021

Mentoren: Manfred Wansink (VenhoevenCS), Ralph Brodruck en Wouter Hilhorst

Foto: Independent, Dbakr

E=m.c2 & de Stad

De afgelopen drie jaar heb ik tijdens het studeren en werken mijn gereedschapskist mogen vullen met kennis en ervaring. Hierdoor ben ik op het punt gekomen dat ik mag beginnen met afstuderen.

In dit voorstel probeer ik te motiveren hoe mijn onderzoek een mogelijke oplossing kan bieden voor een maatschappelijk probleem en hoe het een relevante bijdrage kan leveren aan ons vakgebied. Daarnaast probeer ik in dit afstudeervoorstel een richting aan te geven, een stip aan de horizon, waarbij ik een locatie beschrijf en aangeef wat ik uiteindelijk als doel voor ogen heb met mijn afstudeeronderzoek. Ook motiveer ik mijn mentorkeuze en is er een eerste opzet van de planning bijgevoegd. Tijdens mijn onderzoek hoop ik ook antwoord te vinden op mijn eigen vraag: Wat voor een architect wil ik worden?

Ik ben Jorrit van der Weide en dit is mijn afstudeervoorstel.

Inhoud

Mijn fascinatie

Onze verantwoordelijkheid

Relevantie voor het vakgebied

De opgave

Locatie

Het onderzoek

Mentor keuze

Referentie

Planning

99

Mijn fascinatie/motivatie

De motivatie voor mijn afstudeeropgave bestaat uit een aantal elementen: Naast mijn interesse in architectuur heb ik een fascinatie voor techniek en vormgeving. Ik vind het een uitdaging om ingewikkelde dingen er eenvoudig uit te laten zien. Door mijn opgedane kennis in het werkveld en de academie, is mijn interesse gewekt voor het stedelijk metabolisme en de verdichtingsopgave. Dit alles gekoppeld aan de urgentie van het veranderende klimaat, zijn mijn ingrediënten van waaruit mijn afstudeeropgave ontstond.

Een mooi voorbeeld van stedelijk metabolisme is het riool van de stad Parijs in de negentiende eeuw, een noviteit voor die tijd. Barles (2009) beschreef dit fenomeen als volgt: “De gesloten fosfaatcyclus van Parijs, door het rioolafval te gebruiken als bemesting voor de voedselproductie langs de Seine. Die enorme toename van voedsel die dit tot gevolg had, werd gebruikt om de Parijse bevolking te voeden. Stedelijk metabolisme avant la lettre dus.” 1

Zou er net als in Parijs door een toevoeging aan een bestaand systeem, de energiecyclus van een stad verbeterd kunnen worden, die naast een bijdrage aan de stad ook een bijdrage levert aan een gezondere wereld?

Bronnen:

1. ‘Urban Metabolism of Paris and it’s Region’s’, S. Barles. In Journal of Industrial Ecology, Vol. 13,2009

Foto: Energievormen, Julian Stratenschulte/dpa

Onze verantwoordelijkheid

Dat onze Aarde opwarmt door ons eigen toedoen is helaas een feit 1. Dat tegen 2050 twee derde van de wereldbevolking in een stad woont is een voorspelling die wel eens dicht bij de werkelijkheid kan komen 2. Met deze groei zal ook de vraag naar warmte en energie toenemen in de toekomst, dus ook de uitstoot van verontreinigende stoffen in onze atmosfeer. Van al deze schadelijke stoffen is 80% CO2, hiervan wordt 4/5 veroorzaakt door onze energie en warmtebehoefte 3

Om de CO2 uitstoot terug te dringen en verdere opwarming van de Aarde te voorkomen, wordt er in Nederland ingezet op zon en wind als CO2 vrije energiebronnen. Deze bronnen hebben nadelen. Zij vragen veel ruimte en als er geen zon of wind is, is er geen energie. Hieruit kan geconcludeerd worden, dat er naast de zon en wind nog een CO2 vrije energiebron nodig is, zonder de nadelen van het weer.

Wij zijn allemaal bekend met een CO2 vrije energievorm die hieraan voldoet, maar deze verkeert helaas voor sommige mensen in een taboehoek, een gesprek met de voor- en tegenstanders gaat dan ook heel vaak over het gevoel dat zij er bij hebben dan de werkelijke feiten en mogelijkheden 4. Moet deze energievorm, dan wel in een ‘nieuw’ jasje geen tweede kans krijgen?

Een Thoriumcentrale 5 zou kunnen bijdragen aan het terugdringen van onze CO2 uitstoot. Deze Thoriumreactor kan een stabiele aanvulling zijn op de al aanwezige duurzame energiebronnen zonder de nadelen van het ruimtegebruik en het weer. Kan deze energievorm worden opgenomen in het stedelijk weefsel? Zodat een hele stad voorzien wordt van energie en warmte, zonder het verlies van ruimte buiten de stad? Nu worden veelal biomassacentrales aan de rand van stadswijken geplaatst, maar deze zijn verre van CO2 neutraal. Door mensen bewust te maken van functioneren van een Thoriumreactor kan het draagvlak toenemen. Helemaal als daarmee onze CO2 productie wordt teruggedrongen, zodat de gestelde klimaatdoelen gehaald kunnen worden en de aarde niet verder opwarmt. De architectonische en stedenbouwkundige uitdaging ligt in het creëren van een goede stedelijke inpassing op de juiste plek. Maar ook in het vinden van een nevenfunctie die bijdraagt aan de energiecentrale binnen het stedelijke weefsel.

Bronnen:

1. IPCC 2021: Climate Change 2021: The Physical Science Basis. Contribution of Working Group I to the Sixth Assessment Report of the Intergovernmental Panel on Climate Change, Masson-Delmotte et al, Cambridge University Press, In Press, 2021-08-07

2.United Nations, department of economic and social affairs, Population division 2019

3.Europees Milieuagentschap EEA, Eurostat

4.‘Kernenergie-debat gaat óók over emoties’, Paul Luttikhuis, NRC 2021-05-10

5.A multi-physics solver for liquid-fueled fast systems based on the discontinuous Galerkin FEM discretization, Kloosterman, Jan Leen, 2020

101
‘‘I would like nuclear fusion to become a practical power source. It would provide an inexhaustible supply of energy, without pollution or global warming.’’
Stephen Hawking

Relevantie voor het vakgebied

De meeste energiecentrales zijn gebouwd op plekken waar weinig mensen komen, veelal op industrieterreinen of ergens midden in een landschap langs een rivier, eigenlijk vergelijkbaar met de windmolens en zonneparken. Zij hebben allemaal hun (negatieve) weerslag op het landschap. Doordat de energievormen ver van de eindgebruiker staat, staat de gebruiker net als bij de landbouw ver van de bron af, of heeft geen idee hoe het tot stand komt. Daarnaast zijn het meestal geen gebouwen die tot de verbeelding spreken of over een duidelijke typologie beschikken.

Wat zijn de ruimtelijke consequenties van het bouwen van een CO2 vrije energievorm in de stad, welke nevenfunctie(s) kunnen gekoppeld worden aan deze energiecentrale? Kan de energievraag en de ruimte die nog beschikbaar is in de stad zorgen voor een versterkende werking? Kan de centrale bijdrage aan de geldende systemen in de stad? Op welke manier kan de energiecentrale bijdragen aan het stedelijk metabolisme, waardoor het gehele systeem beter wordt.

Kan door een duidelijke typologische signatuur de bewustwording van de omgeving worden versterkt? Daarnaast kan door de toevoeging van de energiecentrale de publiekelijke afstandelijkheid ten opzichte van de energieopwekking worden verkleind, zodat de

stedeling bewust wordt van het gehele systeem dat nodig is voor de huidige manier van leven. Maar misschien nog wel belangrijker: Bewustwording van de opwarming van de aarde door ons toedoen.

Foto: Alvin Weinberg in 1967 bij de MSR in het Oakridge labratorium, https://www.thmsr.com

“Door lek-, opwekkings-, transport-, conversie- en systeemverliezen in de fossiele opwekkingsketen wordt van alle opgewekte energie slechts 12-20% uiteindelijk in zinvolle arbeid omgezet. 1 PJ die wordt bespaard, scheelt dus 3-8 PJ aan opwekking.” 1

Deze verliezen zijn ook aanwezig voor herwinbare en CO2 vrije energiebronnen. Kan door te kiezen voor een energiebron waarbij de opwekking een hoog rendement kent en de afstand van bron tot energievragers wordt verkort, een deel van de bovenstaande problemen verkleind of worden weggenomen? Kortom, lokaal opwekken in de stad.

Kan een zintuigelijke beleving hierbij werken als verbinding tussen alle schaalniveaus? De huidige energiecentrales hebben weinig met de menselijke schaal te maken, hierdoor kan men zich hiertoe dan ook niet verhouden. De zoektocht hiernaar biedt mogelijk het antwoord op deze vraag.

Doordat de menselijke schaal in een normale energiecentrale ontbreekt kan er wellicht een nieuwe typologie worden gevonden die antwoord geeft op de menselijke schaal.

Kan de ruimtevraag van de energiecentrale bijdragen aan de beleving van de energieopwekking en het stedelijk leven? Waardoor de energiecentrale niet alleen voorziet in schone energie, warmte, brandstof

en bijdraagt in een stuk bewustwording die de huidige manier van leven vraagt.

Bronnen

1. Nationaal perspectief Energie en ruimte, Dirk Sijmons et al, 2017

Door te kiezen voor Thorium als energiedrager van de centrale in de vorm van een gesmolten zout oplossing, een zogenaamde MSR 1zijn de bezwaren van een klassieke kerncentrale weggenomen. Bij dit type centrale is de zogenaamde ‘meltdown’ namelijk onmogelijk. Daarnaast is het afval dat de centrale produceert laag radioactief en een duizendste van wat een normale kernreactor produceert. 2

Bronnen

1. Briant, R. C., & Weinberg, A. M. (1957). Molten Fluorides as Power Reactor Fuels. Nuclear Science and Engineering, 2(6), 797–803. https://doi.org/10.13182/nse57-a35494

2. Groene kernenergie: helemaal 21ste eeuw, Chris Pangers,Intermediair 22, 3 Juni (2011)

Afbeelding: Nedelandse elektriciteitsnet,Netbeheer Nederland 24-05-2019

103

afbeelding: Feyenoord City Masterplan, OMA | LOLA

Locatie

Om de energiecentrale enigszins efficiënt te laten functioneren is een stedelijke locatie met minimaal half miljoen inwoners noodzakelijk. Dit is voor Nederlandse begrippen groot, er voldoen namelijk maar drie steden in Nederland aan deze eis: Den Haag(547.757), Rotterdam(652.541) en Amsterdam(872.922) 1

Uiteindelijk is mijn keuze, mede door het masterplan Feyenoord City van OMA en LOLA op Rotterdam gevallen 2. Het stadsdeel Feyenoord city binnen de wijk Feyenoord moet na de transformatie ruimte bieden aan een kwart miljoen bewoners. Met mijn ingreep wil ik dit stadsdeel in één keer CO2 vrij maken, door naast warmte en energie ook brandstof aan te bieden voor vervoer in de vorm van waterstof. Daarnaast kan de centrale een bijdrage bieden aan het gehele OV netwerk voor de regio Rotterdam.

Bronnen

1. De grootste gemeenten in inwoners in Nederland. (2021, 17 augustus). AlleCijfers.nl. https://allecijfers.nl/ranglijst/de-grootste-gemeenten-ininwoners-in-nederland/

2. Feyenoord City Masterplan. (2019, oktober). OMA en LOLA

Het onderzoek

Hoofdvraag:

Hoe kan een energiecentrale bijdragen aan het stedelijke metabolisme van het stadsdeel Feyenoord city in Rotterdam?

Het onderzoek zal uit drie delen bestaan.

1. Een onderzoek naar de meeste geschikte locatie voor de energiecentrale, waarbij ik gebruik maak van de uitgangspunten uit het masterplan van OMA | LOLA.

2. Een juiste stedelijke inpassing. Hiervoor is een architectonische analyse van de locatie nodig. Daarbij zal er aanvullend onderzoek gedaan worden naar referentieprojecten die aansluiten op de schaal van de opgave en het onderdwerp.

3. Een analyse van de ruimtelijke gevolgen van deze inpassing binnen het stedelijk weefsel en hoe deze bijdraagt aan het stedelijke metabolisme

Resultaat:

Het afstudeerproject zou kunnen dienen als een eerste aanzet over opwekken van energie in de stad. Een die zorgt voor een open dialoog over onze energie opwekking en de weerslag hiervan op het stedelijk weefsel, wat de gevolgen hiervan kunnen zijn in de toekomst voor Nederlandse steden.

Het resultaat zal een oplossing bieden binnen de context van Feyenoord city, waarbij de toevoeging van meerwaarde moet zijn op het stedelijke metabolisme van de regio Rotterdam.

Wel vind ik het belangrijk dat er uiteindelijk een ontwerp wordt gemaakt, een die aansluit op de verschillende schaalniveau’s van de stad. Waarbij verbeeldingskracht wordt gecombineerd met een kijk op stedelijke metabolisme en een zintuigelijke beleving bied voor de energieopwekking in de stad.

105
Foto: Wijk Feyenoord, met de kuip, ANP

afbeelding: https://venhoevencs.nl/projects/park-more-leiden-bio-science-park/

Afstudeermentor

Voor mijn opgave zocht ik een bureau met ervaring in de verschillende schaalniveaus van de stad. Een bureau met ervaring in het maken van plekken, waar beleving en stedelijkheid samen gaan, elkaar zelfs versterken. Maar ook een bureau dat kansen ziet in (nieuwe) duurzame toepassingen en voorbij de vraag kijkt. Bezig is met de klimaatverandering, energietransitie en technologische veranderingen.

Deze zoektocht heeft mij naar Manfred Wansink geleidt, partner bij VenhoevenCS.

VenhoevenCS Architecture+Urbanism

A Hoogte Kadijk 143 F15

NL1018 BH Amsterdam

T +31 (0)20 622 8210

E m.wansink@venhoevencs.nl

I www.venhoevencs.nl

foto: Manfred Wansink, http://www.hogekwartier.nl

Referentie projecten

Amager Bakke/Kopenhill in Kopenhagen

Een Biomassa energie centrale in Kopenhagen waar 400.000 ton afval verbrand wordt tot energie. Om zo de stad van schonere energie te voorzien uit het eigen geproduceerde afval. Een cyclus die gesloten is.

De centrale verzorgt meerdere functies voor de bewoners en bezoekers van de stad. Naast energie is het een recreatie plek voor de stad, waar op geskied, gewandeld en geklommen kan worden, Hiermee is de energiecentrale een nieuwe schakel in het metabolische systeem van de stad geworden.

Gegevens

Locatie : Kopenhagen

Architect : BIG

Opgeleverd : 2018

afmetingen : 41000 m2

Hoogte : 100 meter

foto: https://big.dk/#projects-arc

plattegronden van de centrale: https://www.architectmagazine.com

107

Plassen Cultural Center

Locatie : Molde, Noorwegen

Architect : 3XN

Opgeleverd : 2009

Geactiveerde plinten

Kilden Performing Arts Center

Locatie : Helsinki, Finland

Architect : ALA Architects

Opgeleverd : 2011

foto: Plassen Cultural Center, 3XN foto: Kilden Performing Arts Center, ALA Architects

Basketbalveld Pigalle

Locatie : Parijs, Frankrijk

Architect : Pigalle & III-Studio

Opgeleverd : 2017

Geactiveerde pleinen

Blake Hobbs Play-za

Locatie : New York, Amerika

Architect : Landscape Architecture D.P.C.

Opgeleverd : 2015

109
foto: Basketbalveld Pigalle, Alex Penfornis foto: Blake Hobbs Play-za, Landscape Architecture D.P.C.

Van Nelle Fabriek

Locatie : Rotterdam

Architect : Brinkman en Van der Vlught

Opgeleverd : 1937

Industriële uitstraling

Geactiveerde gevels

Escola de Escalada

Locatie : Bruneck, Italië

Architect : Stifter + Bachmann

Opgeleverd : 2012

Planning

Juli

- Afronden vak ‘voorbereiding afstudeervoorstel’

- 3e koersbepaling/ voorleggen afstudeervoorstel aan academie

Augustus

- Verder aanscherpen afstudeervoorstel

- Vaststellen mentor

- Locatie vaststellen

September

- Analyse en locatiebezoek

- Analyses en locatiebezoeken uitwerken in analysedocument

- Ontwerpuitgangspunten vaststellen met gemaakte analysedocument

Oktober

- PVE voor energiecentrale en nevenfunctie

- Schetsmaquette omgeving

- Concept, aanzet ontwerp

- Presentatie voorbereiden

1e schouw 12 & 13 November

- Evalueren & aanscherpen

- Massamodellen

- Voorlopig ontwerp

- Stedenbouwkundige inpassing

December

- Voorlopig ontwerp

- Toets voorlopig ontwerp aan ontwerpuitgangspunten/ PVE

- Presentatie voorbereiden

afbeelding: Europees Milieuagentschap (EEA), Eurostat

2e schouw 11 & 12 Februari

- Evalueren & aanscherpen

- Opzet maken afstudeerverslag

- Praktijkportfolio 7

- Definitief ontwerp

- Constructie, materialisering definitief

Maart

- Werken aan afstudeerverslag: tekst en beeld

- Visueel uitwerken definitief ontwerp

- Presentatie voorbereiden

3e schouw 1 & 2 April

- Evalueren & aanscherpen

- Werken aan afstudeerverslag: tekst en beeld

Mei

- Werken aan afstudeerverslag: tekst en beeld

- Definitieve maquette gebouw

- Nieuwe stedenbouwkundige maquette maken

- Sfeermaquette

- Maquette van beeldbepalende element

Juni

- Werken aan afstudeerverslag: tekst en beeld

- Definitieve maquette gebouw

- Nieuwe stedenbouwkundige maquette maken

- Sfeermaquette

- Maquette van beeldbepalende element

4e schouw 1/& Juli

- Inleveren afstudeerverslag

- Inleveren praktijkportfolio 8

- Eindpresentatie

111

E=m.c2 & de Stad

Hoe kan een energiecentrale bijdragen aan het stedelijke metabolisme van het stadsdeel Feyenoord city in Rotterdam?

foto: Rotterdam by night, Michiel Buijse

Jorrit van der Weide

A Dravik 23

3892 BA Zeewolde

T +31 (0) 6 4351 4075

E j.vanderweide01@student.artez.nl

113

Bijlage 2 ondersteunenden onderzoeken

De menselijke maat

De schaal van onze energieopwekking en de mens staan ver van elkaar. Het is dan ook lastig om je als mens te verhouden tot de onmenselijke schaal die komt kijken bij onze energieopwekking. Om hier grip op te krijgen is er onderzoek gedaan naar de mens en wanden. De aanleiding van dit onderzoek is gelegd bij het hoofdstuk ‘referentie projecten’ waar de wanden iets deden met de perceptie van het geheel. Dit onderzoek geeft daar een gevolg aan.

Wanneer is een wand nog prettig, wanneer begint het gewicht van een wand op de mens in te werken. Wat doet een helling met de perceptie van afstand en gewicht van een wand. In het hoofdstuk ‘referentie projecten’ is al gebleken dat een helling gecombineerd met een wand afstanden langer kunnen doen lijken. Dit onderzoek bekijkt naast dit fenomeen ook wat de afstand tussen twee tegenover elkaar gelegen wanden betekent. Het onderzoek is een combinatie van maquettes op schaal 1:100 en computer modellen.

De onderzochte hellingen hadden een verhouding van 1: 12 t/m 1:35. 1:12 betekend per twaalf centimeter gaat het maaiveld één centimeter omhoog. Een hogere 1: xx betekent een flauwer helling

114
Helling 1 : 12 Helling 1 : 16 Helling 1 : 20 Helling 1 : 25 Helling 1 : 30 Helling 1 : 35 10 meter hoge wand 5 meter hoge wand 10 meter hoge wand
4,000 4,000 4,500 5,000 5,000 6,000 6,000 3,500 3,500 3,500 3,000 3,000 3,000 4,500 3,000 3,500 4,000 4,500 5,000 6,000 4,000 4,500 5,000 6,000 4000 9000 000 000+ 5000 9000+ 000 6000 9000 000+ warmtewisselaar generatorruimte generatorruimte schakelruimte 000+ 000+ 000 000 000+ 3500 000+ 000+ 000 warmtewisselaar generatorruimte generatorruimte schakelruimte 000 6000+ 3000 4500 000+ 000+ 000+ 000+ 6000 6000+ 6000 6000+ 6000 6000+ warmtewisselaar schakelruimte warmtewisselaar schakelruimte 4500 4500+ 4500+ 4500+ 4500+ 4500+ 4500+ 4500+ 4500+ A : Warmte wisselaar & Generator ruimte B : Generator ruimte & Schakelruimte C : Waterstof productie & Waterstof opslag D : Warmte wisselaar & Schakelruimte 4500 9000+ 000+ 000+ 000+ 6000+ 4500 4500 waterstof productie waterstof opslag waterstof productie waterstof opslag 6000+ 000 000+ 000+

U-233 vangt een neutron op en splijt, hierbij komt energie vrij wat resulteerd in opwarming van de zoutoplossing

Bijlage 3 Reactieschema gesmolten zoutreactor

De kern splitst zich in twee nieuwe elementen van ongelijke grootte, een zware en een lichte. daarnaast komen er twee of drie neutronen vrij.

Pa-233 heeft een halveringstijd van 27 dagen en vervalt in U-233

Th = Thorium

Pa = Protactinium

U = Uranium

Th-233 heeft een halveringstijd van 22 minuten, een neutron ondergaat betáverval en verandert in een proton. Th 233 verandert in Pa-233

115
Th-232 absorbeerd een neutron en transmuteert naar Th-233 Pa-233 Th-232 Th-233 U-233 Vrije neutron Vrije neutron Kern

G

E N E R G E I

D ZOUTEN

een decentrale energieopwekker zonder taboes

Energie

Het is er, maar toch ook niet

Het wordt pas zichtbaar aan de uiteindes

Iets waar wij vanuit gaan dat het er is Wij vinden het vanzelfsprekend, nemen het voor lief.

Het maakt onze manier van leven mogelijk Het is overal om ons heen maar je ziet het niet.

We kunnen het pas waarnemen als wij een knop indrukken, maar waar is toch de bron van deze energie?

Jorrit van der Weide

Augustus 2023

ArtEZ Academie van Bouwkunst

Turn static files into dynamic content formats.

Create a flipbook
Issuu converts static files into: digital portfolios, online yearbooks, online catalogs, digital photo albums and more. Sign up and create your flipbook.