PORTAFOLIO_DPP_ANTHONY_MAMANI

Page 1

Sección 521 20201239 Profesor: Juan Carlos Domenack Calvo PORTAFOLIO ANTHONY MAMANI ENTO Facultad de ingenieria y arquitectura Carrera de arquitectura - Comunicaciones Ciclo 2022-2 DIBUJO Y PRESENTACIÓN DE PROYECTO
EC1 ÍNDICE Pag.00 CRITERIOS: CG1,CG7 Y CG9 EC1 Pag.00 CRITERIOS: CG1,CG7, CG8, CG9 Y CG11 EC2 Pag.00 CRITERIOS: CG1,CG7, CG9 CV Pag.00
EC1 Pag.00 CRITERIOS: CG1,CG7 Y CG9 EC2 Pag.00 CRITERIOS: CG1,CG7 Y CG9 EC2 Pag.00 CRITERIOS: CG1, CG5, CG7, CG8 Y CG9 IC Pag.00

VALORACIÓN PERSONAL

DIFICULTAD

COMPRENSIÓN

DEDICACIÓN TECNICA

DEDICACIÓN PRACTICA

OBJETIVO

Reconocer y graficar el pro yecto a nivel anteproyecto. Ademas, identificar los ele mentos de un proyecto e identificarlos correctamente en un plano.

ENCARGO

Realizar todas las plantas de pre-ante proyecto en escala 1:100 más formato de lámina y membrete . Realizar 2 cortes de pre-ateproyecto en escala 1:100 más formato de lámina y membrete.

EC1
04

PRIMERA PLANTA PRE-ANTEPORYECTO

PROCESO

En esta primera parte del proyecto fue reconocer los espacios y los distintos elementos constructivos; Sin embargo, el tamaño de la planta esta sobrepro porcionada de acuerdo al plano y los ejes deben comenzar desde el comien zo hasta el nal del terreno, ademas, colocar tonos grises mejoraria el plano.

REFLEXIÓN

Este trabajo me ayudo a entender como debe el plano estar correctamente proporcionado, de no sobre escalar los espacios, las cotas, el nombre del plano, etc. Poder diseñar tu propio membrete y ver los distintos componentes que este lleva para un mayor entendimiento del proyecto. La escala de las lineas debia cambiarla, ya que no me ayudo por las lineas segmentas no se notaban porque era pequeñas.

05
06

T1 EC1

VALORACIÓN PERSONAL

DIFICULTAD

COMPRENSIÓN DEDICACIÓN TECNICA DEDICACIÓN PRACTICA

OBJETIVO

Reconocer y graficar la siguiente información de proyecto: Información para el emplaza miento de una edificación. Datos físicos y normativos del terreno. -Datos de anteproyecto en el formato oficial de plano de ubica ción del MVCS – Anexo XVI. -Información general de los com ponentes de una edificación a nivel de anteproyecto.

ENCARGO

Realizar un plano de ubicación del MVCS, donde este el terreno en escala 1:500, sec ción de vías en escala 1:200 , esquema de localización, cuadro normativo y de areas. Realizar Plano de anteproyecto en escala 1:100 más base de expresión gráfica 1:100 más formato de lámina y membrete.

08

PLANO DE UBICACIÓN DEL

MVCS

PROCESO

Para comenzar se mejoro los planos a nivel anteproyecto, con cortes y eleva ciones, esto genero mas dudas pero que servirian para llegar al nivel rpoyec tual. En el plano de ubicación se coloco la sección de vias, el terreno en escala 1/500, un esquema de ubicación y un cuadro normativo y de áreas. En el plano de ubicación falto proporcionar bien las cotas, ya que no eran legibles y esto a ecto la lectura del plano.

REFLEXIÓN

En este trabajo me di cuenta que tenia un problema en proporcionar los ambientes y los niveles. Esto aecto la lectura de los planos pero posterior mente lo corrijo. Ademas, me falto los muros de contención y en el plano de techos debia colocar los sumideros y la altura de los parapetos.

09
10

EC1

VALORACIÓN PERSONAL

DIFICULTAD

COMPRENSIÓN

DEDICACIÓN TECNICA

DEDICACIÓN PRACTICA

OBJETIVO

dentificar (nombrar y/o codi ficar) los elementos y compo nentes e indicarlos adecua damente a nivel de expe diente de proyecto. Asimis mo, Identificar (nombrar y/o codificar) los elementos y componentes e indicarlos decuadamente para el corte escantillón.

ENCARGO

Elaborar los planos en escala 1:50 más formato de cuadro de acabados, plano de techos, 4 cuartos en escala 1:50, eleva ciones 1:50 con indi caciones de compo nentes de la facha da. Un corte escanti llón con su elevación 1:25.

11

PRIMERA

PLANTA

PROCESO

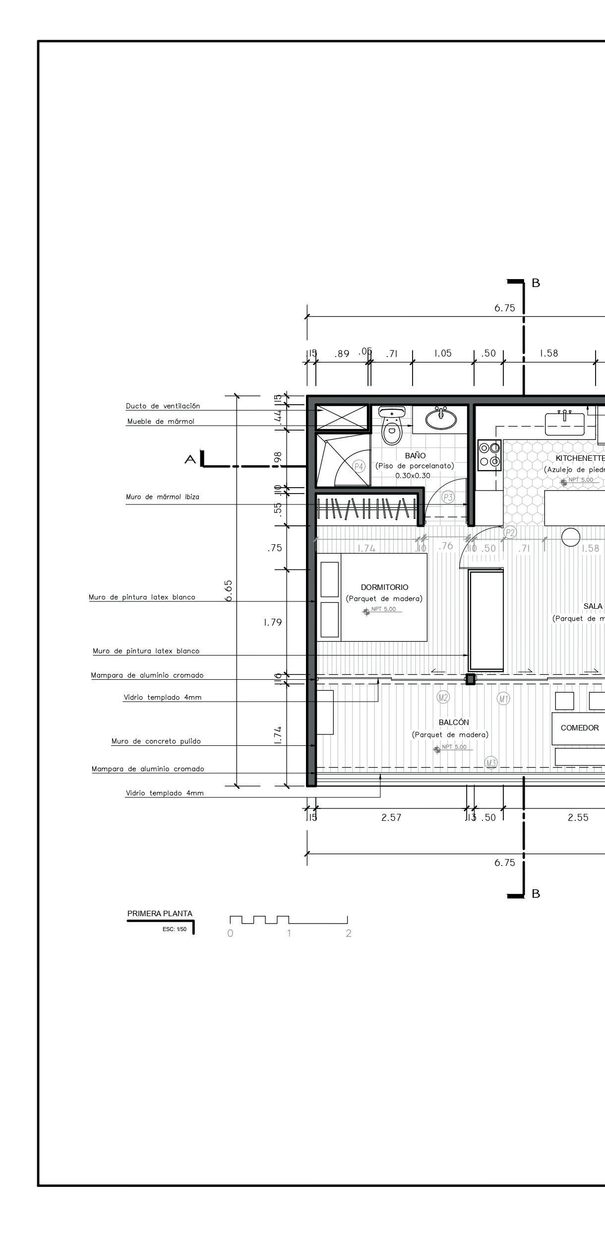
En esta etapa del proyecto, pudimos mejorar la proporción del nombre del plano, las cotas, el nombre de ambien tes, tonos grises y negros para marcar el proyecto, etc. Se agrego notas de deta lles para en el exterior y el interior. Pudo mejorar bajando el tono a las ctoas, ya que se llevaba la misma atención que el proyecto; sin embargo, ya se notaba la diferencia de grosores y el proyecto se marcaba más que el terreno. Se coloco cuadro de vanos, mamparas y puertas, donde te explicaba las dimensiones de cada una de estas.

REFLEXIÓN

Gracias a las 2 entregas pasadas de pre-anteproyecto y anteproyecto pude ver mis errores y corregirlos para la entrega de proyecto. Considero que si mejore tanto en los tonos como los grosores, proporción y organización del proecto.

12
13

DIFICULTAD

VALORACIÓN PERSONAL COMPRENSIÓN DEDICACIÓN TECNICA DEDICACIÓN PRACTICA

OBJETIVO

Reconocer y graficar la siguiente información de un espacio a nivel de detalle, Identificar (nombrar y/o codi ficar) los elementos y componentes e indicarlos adecuadamente.

ENCARGO

Carátula con índice de contenido, Lámi nas A0 como máximo tamaño y Planos y catálogo en formato digital en 1 solo archi vo PDF y 1 archivo cad.

EC2
15

PROCESO

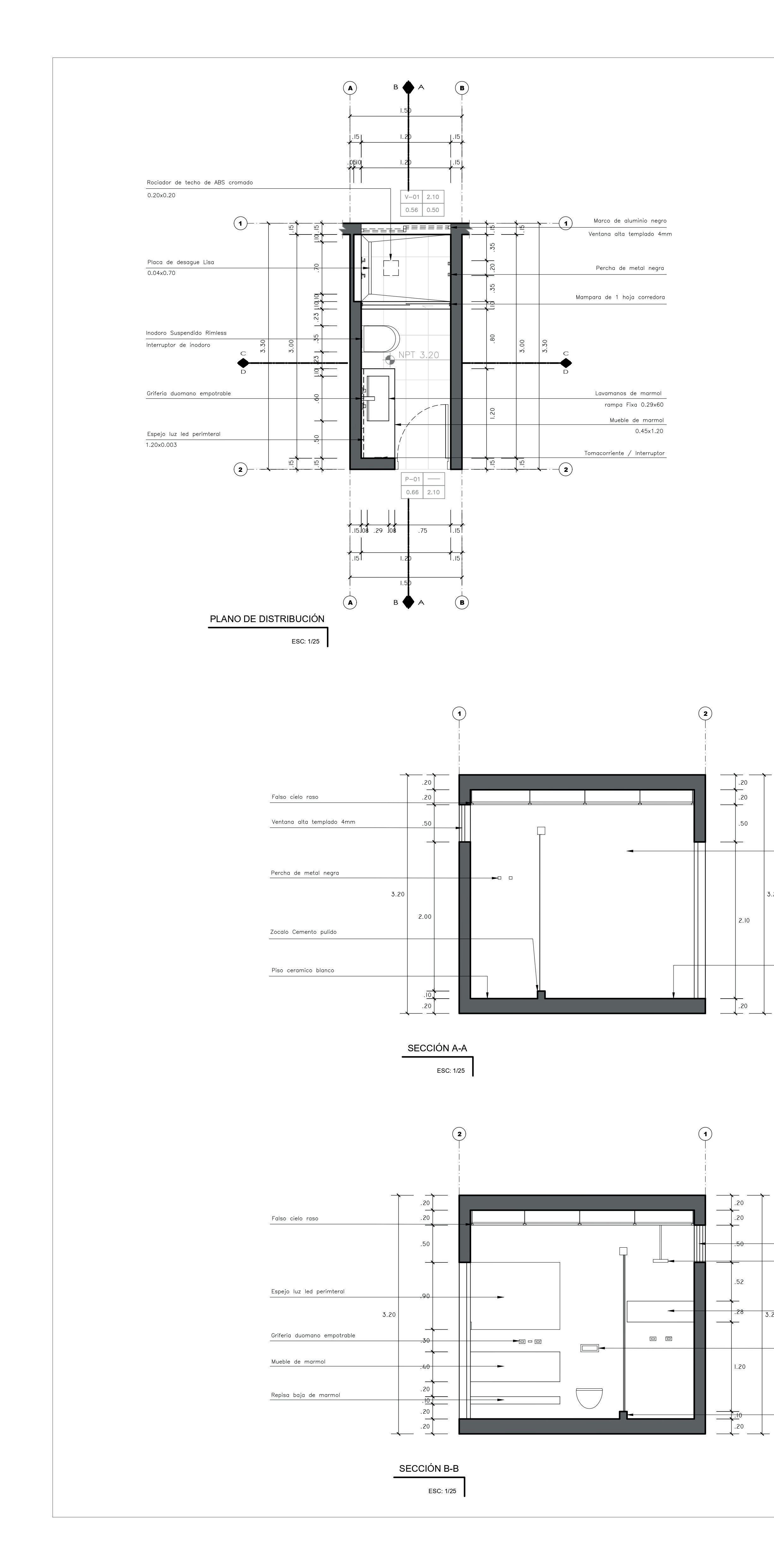
Se comenzo haciendo el plano general del baño para modi carlo, en base a lo aprendido en el nivel proyecto, se coloca las cotas, los grosores, tonos y detalles del baño correctamente, Se realizo una planta general, una planta baja y una planta de FCR con 4 cortes que muestren los distintos elementos que se colocaron en el baño, con su respectiva, marca, modelo, altura y material. Estos equipamientos del baño debian buscarse y saber su tipo de colo cación y sus dimensiones.

ACABADO DE INTERIOR BAÑO REFLEXIÓN

En este entrega cumpli con los entrega bles; sin embargo, como era la primera vez que hice un detalle de un espacio se me pasaron algunas cosas, como que las cotas de los aparatos del baño se colocan en su eje, que el inodoro nece sita su tanque de empotramiento y que en los detalles me falto su altura de colocación. En la planta de piso me falto colocar la linea de cambio de piso y en los cortes me falto el trazado y dimen siones del enchape de pared.

16
16

VALORACIÓN PERSONAL

DIFICULTAD

COMPRENSIÓN

DEDICACIÓN TECNICA DEDICACIÓN PRACTICA

OBJETIVO

Reconocer y graficar informa ción de detalle de 2 compo nentes arquitectónicos de un proyecto. Identificar (nom brar y/o codificar) los elemen tos y componentes e indicar los adecuadamente.

ENCARGO

Carátula con índice de contenido, Lámi nas A1 como máximo tamaño y Planos en formato digital en 1 solo archivo PDF y cad

EC2
18

PRIMERA

PLANTA

PROCESO

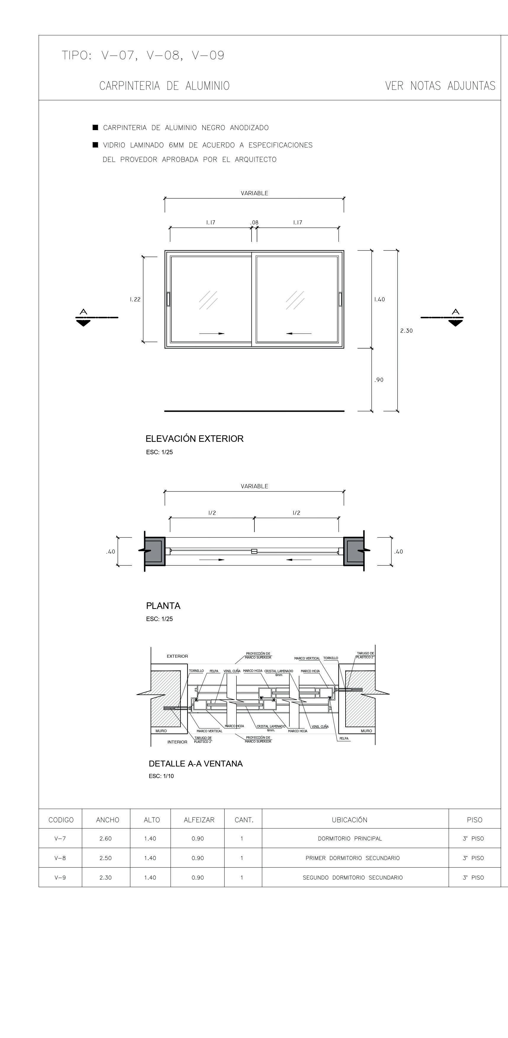
Se comenzo haciendo el detalle de venta nas, en este caso era una ventana de aluminio negro anodizado. Se coloco su planta y elevacion con sus dimensiones respectivas. En el detalle de la ventana, vemos los distintos elementos que com ponen el marco de aluminio y los elemen tos del vidrio templado. Luego se siguio con la Primera y Segunda planta de la escalera. En esta tenia que haber las dimensiones, los distintos detalles que se presenten y la estructura de la escalera. En el corte se veria a mayro detalle lo antes indicado, incluso co los detalles de la baranda. En el detalle de paso y contrapa so se ve como es la union de la viga de acero con las placas de acero y con los peladaños de madera, de msima manera que el detalle de la baranda.

REFLEXIÓN

En este trabajo considero que cumpli con los entregables y quise representar hasta los mas minimos detalles de la ventana y las escaleras para un mayor entendimien to de como seria la construcción de cada uno de estos elementos.

19
20

VALORACIÓN PERSONAL

DIFICULTAD

COMPRENSIÓN DEDICACIÓN TECNICA DEDICACIÓN PRACTICA

OBJETIVO

Demostrar los conocimientos adquiridos en el curso para la elaboración de planos de presentación de un proyecto, Identificar (nombrar y/o codi ficar) los elementos y compo nentes e indicarlos adecua damente.

EC2

ENCARGO

Carátula con índice de contenido, lámi nas A2 como máximo tamaño y planos en formato impreso, doblados en A4, en folder o file.

22

DETALLE DE KITCHENETTE

PROCESO

Primero se realizo la planta y el corte del departamento de 5 estrellas a nivel proyecto, colocando cuadro de venta nas, maparas, puertas y acabados, una correcta proporción de las cotas, nombre de ambientes y deatlles. En el detalle del kitchenette se coloca como se empotran los muebles bajos y altos, asi como sus dimensiones y la proyec ción de abertura. En la planta baja del kitchette se tendria que ver el acabado de pisos, el vacio de la lavadero y de la cocina. En los cortes se beria el revesti miento, las dimensiones de los muebles altos y bajos, etc.

REFLEXIÓN

La entrega pudo mejorar, ya que me falto tiempo para terminar las plantas de detalle del kitchenette y sus cortes. sin embargo, gracias a las entregas pasadas pude aprender a como propor cionar los elementos en un plano, hacer que ciertos elementos obresalgan mas que otros y tener una mayor organiza ción en la lamina.

23
24

Estudiante de arquitectu ra de sexto ciclo. Criterio de para toma de decisio nes, solución eficaz ante problemas y cordinación en grupos. Soy una persona con liderzago e innovación.

CONTACTO
SOBRE MI anthonymamani8899@gmail.com DATOS DE
E-MAIL TELEFONO DNI 960 165 795 75425109
25

INTERESES

PROGRAMAS

Dibujar y pintar

Hacer deporte

Viajar

ACTIVIDADES ACADEMICAS

-Tercio superior en 2do-3ero-4to-5to de secundaria

-Ingreso ITS en la PUCP

-1er puesto en la feria de proyectos en el colegio 2017

-Actuación de obra de literatura en el colegio en 2013

Autocad 2020 Revit 2020 SketchUp

Adobe Illustrator

Adobe Photoshop Minitap Power Point Excel

IDIOMAS

Español Ingles

EDUCACIÓN

2008-2014

Primaria colegio Saco Olivero

2008-2014 2008-2014 2008-2014

Secundaria colegio Saco Oliveros Academia preuniversitaria Pamer Pregrado Universidad de Lima

26

INFROMACIÓN DEL CURSO

Nombre del curso Nombre del profesor Sección

Sumilla

Proyecto de Arquitectura VI, es una asignatura obligatoria Teórico-Práctica, que forma parte del Taller Vertical. Su desarrollo temático gira en torno al diseño de un objeto arquitectónico utilizando un sistema estructural / constructivo.

Objetivo general Objetivo especifico

Proyectar un sistema que aborde las variables constructivo-estructurales inclu yendo estrategias ambientales.

1. Comprender las características técnicas y de expresión de los sistemas cons tructivos para consolidar propuestas de diseño, tanto en lo técnico como en lo conceptual.

2. Entender el comportamiento estático de los diversos componentes de la estructura a nivel de fuerzas de compresión, tracción, flexión, etc., y su influencia en la definición formal y espacial de un proyecto arquitectónico.

3. Considerar al diseñar, criterios de planteamiento estructural como modula ción, materialidad, detalles constructivos.

4. Objetivos de Desarrollo Sostenible - ODS:

Objetivo 5: Lograr la igualdad entre los géneros y empoderar a todas las muje res y las niñas.

- Objetivo 10: Reducir la desigualdad en y entre los países.

Objetivo 11: Lograr que las ciudades sean más inclusivas, seguras, resilientes y sostenibles.

27
Dibujo y presentación de proyecto Juan Carlos Domenack Calvo 521
28

Turn static files into dynamic content formats.

Create a flipbook
Issuu converts static files into: digital portfolios, online yearbooks, online catalogs, digital photo albums and more. Sign up and create your flipbook.