Design 3 Process Book

Page 1

BOOK

PROCESS
ANNA CARPENTER DESIGN 3 14 DECEMBER 2022

Anna is a second year student at Thomas Jefferson University pursuing her degree in architecture. She is in a five year program to get her bachelors of architecture. Anna plays soccer for the University and that has tought her excellent time management skills. She is from Rochester, New York but since coming to Philadelphia, she has a new and different perspective on the built environment. Anna wishes to contine learning about architecture in Philadelphia in hopes of working in the city after college.

2
ANNA CARPENTER
3
OF CONTENTS JENGA EXPLORATION ROWHOME ANALYSIS SHARSWOOD ANALYSIS ROWHOME PROJECT COMMUNITY SPACE 4 8 10 12 16
TABLE

JENGA EXPLORATION

Given a site and jenga blocks, the project explored making spaces for people to walk through the site in a way that reflected a book we read. This was based off of the book Tasting Freedom which showed Octavious Catto being a leader for the black community when voting had just became legal for them. When first walking through the jenga blocks a person feels lost and trapped. After walking through into the open space they look up to the stacked blocks and now feel more open and free.

SITE
SITE PLAN

JENGA MODEL

5

PERSPECTIVES

6

PERSPECTIVES

7

Given two types of rowhomes to study in Philadelphia, this project was to analyze these and be able to share with the class the types of rowhome. Given federal and georgian style rowhomes, the challenge was to differentiate between them since they are very similar. Plans and elevatins were used to show the qualities of the specific rowhome.

8
ROWHOME ANALYSIS
SUNLIGHT

GEORGIAN ROWHOME FEDERAL ROWHOME

9

The class studied Sharswood Philadelphia. They did an analysis of the neighborhood that included in depth research and walking through the community together. While each focusing on a few topics, the class came together to create one presentation that showed different aspects of the neighborhood.

10
SHARSWOOD ANALYSIS

ANALYSIS OF THE CLIMATE IN SHARSWOOD

PERCEPTUAL INFORMATION ANALYSIS IN SHARSWOOD

11

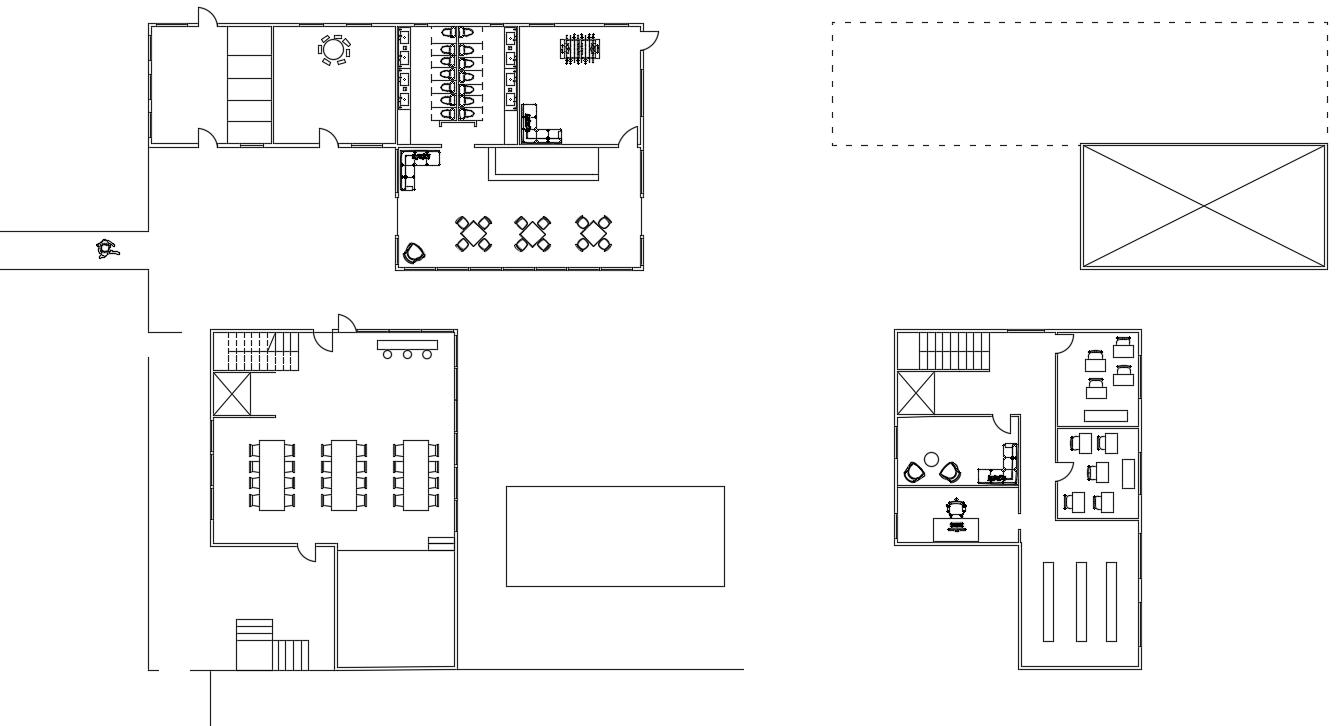
Given five lots on North 27th Street in Sharswood, Philadelphia, the objective was to create a floorplan that meets the clients needs. Then recreating that house four times to create four rohomes and design an exterior space in the empty lot between the homes. The challenge was to create new architecture while conforming to the styles already in the neighborhood. This was designed for a multigeneratinal family that values the importance of connecting with each other and their neighbors.

12
ROWHOME PROJECT

SITE PLAN

13

FLOOR PLAN

14
FIRST FLOOR SECOND FLOOR THIRD FLOOR BASEMENT

INTERIOR PERSPECTIVES

15

COMMUNITY SPACE PROJECT

After doing much research throughout the semester about the neighborhood of Sharswood, Philadelphia, this project allowed exploration of the athletic rec center. With given a multigeneration program to design spaces for, the community space is to enhance the community and bring people of all ages together.

Proposed Design:

When coming off Master Street, the path directs people towards the basketball courts. The proposed design consists of two buildings on each side of the original path. The focal point is the double height gathering space that intervenes the walkway allowing people to walk through it or continue walking past it. The windows allow natural light and make the spaces feel more welcoming. Their is a courtyard created between my buildings that allow for more interaction between community members.

16
17 SITE
PICTURES

PLAN PROCESS

18

MODEL PROCESS

19

POOL

FLOOR PLAN

GARDEN

ATHLETIC REC

FIRST FLOOR SECOND FLOOR

20
21
SITE PLAN

ELEVATIONS

22

ELEVATIONS

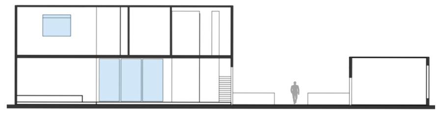
23

SECTIONS

24

SECTIONS

25

EXTERIOR PERSPECTIVE

26

EXTERIOR PERSPECTIVE

27

EXTERIOR PERSPECTIVE

28

INTERIOR PERSPECTIVE

29

MODEL PICTURE

30

MODEL PICTURES

31

SEMESTER REFLECTION

This semester I learned a lot about the built environment and what it means to design a building in a community. When researching and visiting Sharswood, Philadelphia, I got to understand how architects designs effect a community. I improved tremendously throughout the semester and learned that process is very important to get to the final product. Working throuh different iterations allowed me to create my best design for the clients and the neighborhood. As an architect, I learned you must always be concsious of where you are building and always conforming to the designs arround your proposed building.

32

Turn static files into dynamic content formats.

Create a flipbook
Issuu converts static files into: digital portfolios, online yearbooks, online catalogs, digital photo albums and more. Sign up and create your flipbook.