Facade Engineering Project.

Page 1

p 1 1 2 3
1.INTRODUCTION 2.LOADS

3.THERMALANDHYGROMETRICANALYSIS

4GLAZINGUNITASSESMENT

CW W

5.FIREPROTECTION

6.ACOUSTICPERFORMANCEREQUIREMENTS

7BUILDINGMAINTENANCESYSTEM

8SHADINGSYSTEM

9TECHINICALSPECIFICATIONS

DBT [°C] Drybulbtemperature [%]
3 3 3 y y y u u u Radiation [Wh/m 2 ] Radiationanalysis

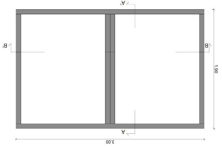
A-A:sectionbetweenspandrelandglass

B-B:sectionbetweenspandrelandspandrel

C-C:sectionbetweenglassandglass

D-D:sectionbetweenglassandspandrel (differentsectionofthetransom)

TJ,B-B B-B
C-C
.

Turn static files into dynamic content formats.

Create a flipbook
Issuu converts static files into: digital portfolios, online yearbooks, online catalogs, digital photo albums and more. Sign up and create your flipbook.
Facade Engineering Project. by Ahmed Mohamed - Issuu